단위세대평면도
정비사업 추진과정을 유리알처럼 투명하게 공개

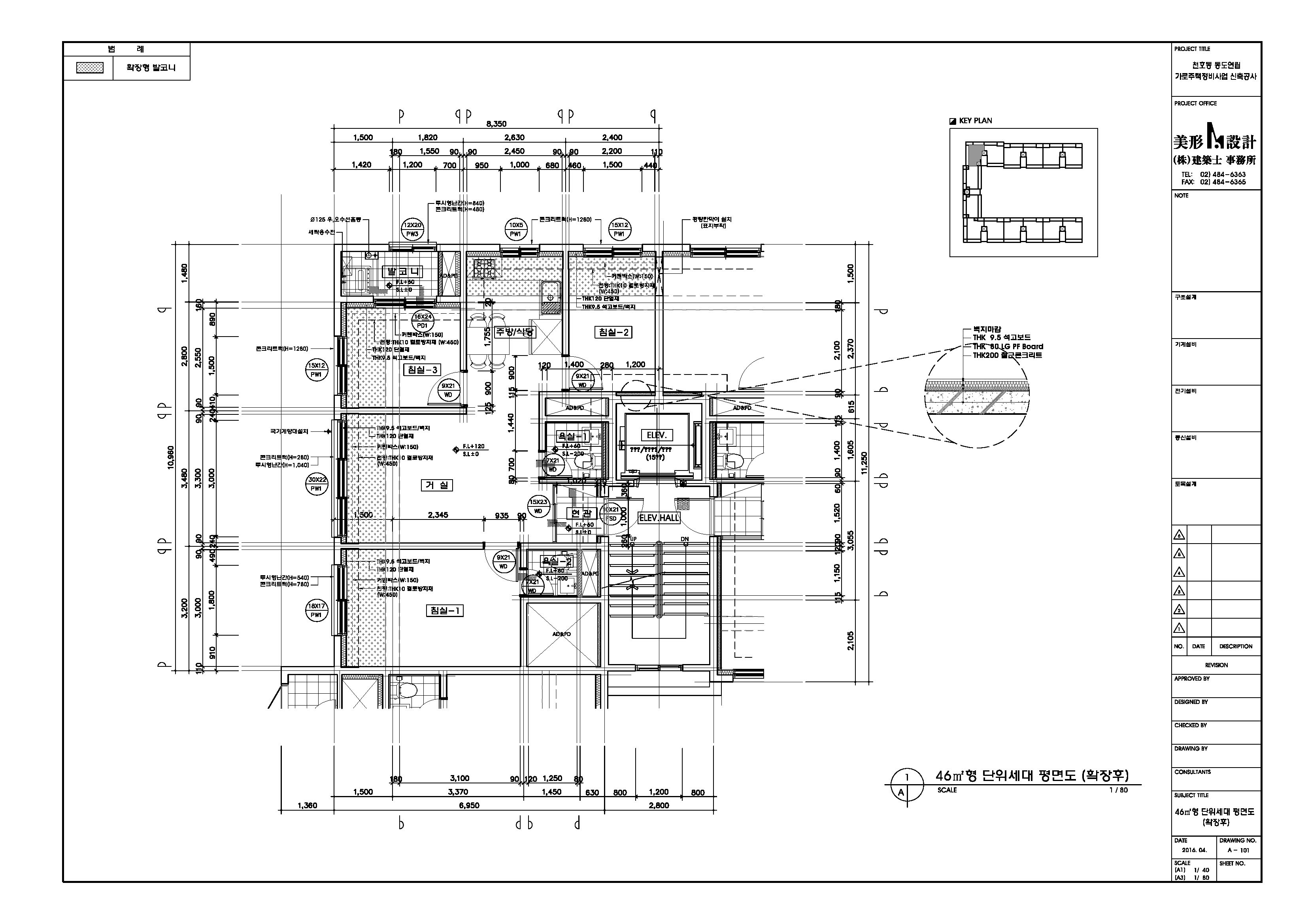
단위세대평면도_46

단위세대평면도_46
공급면적 (㎡) 58.20
사업시행인가(변경)일자 2016-06-17
형별 46㎡형
세대수 7
전용면적 (㎡) 46.55
공용면적 (㎡) 11.65

단위세대평면도 이미지

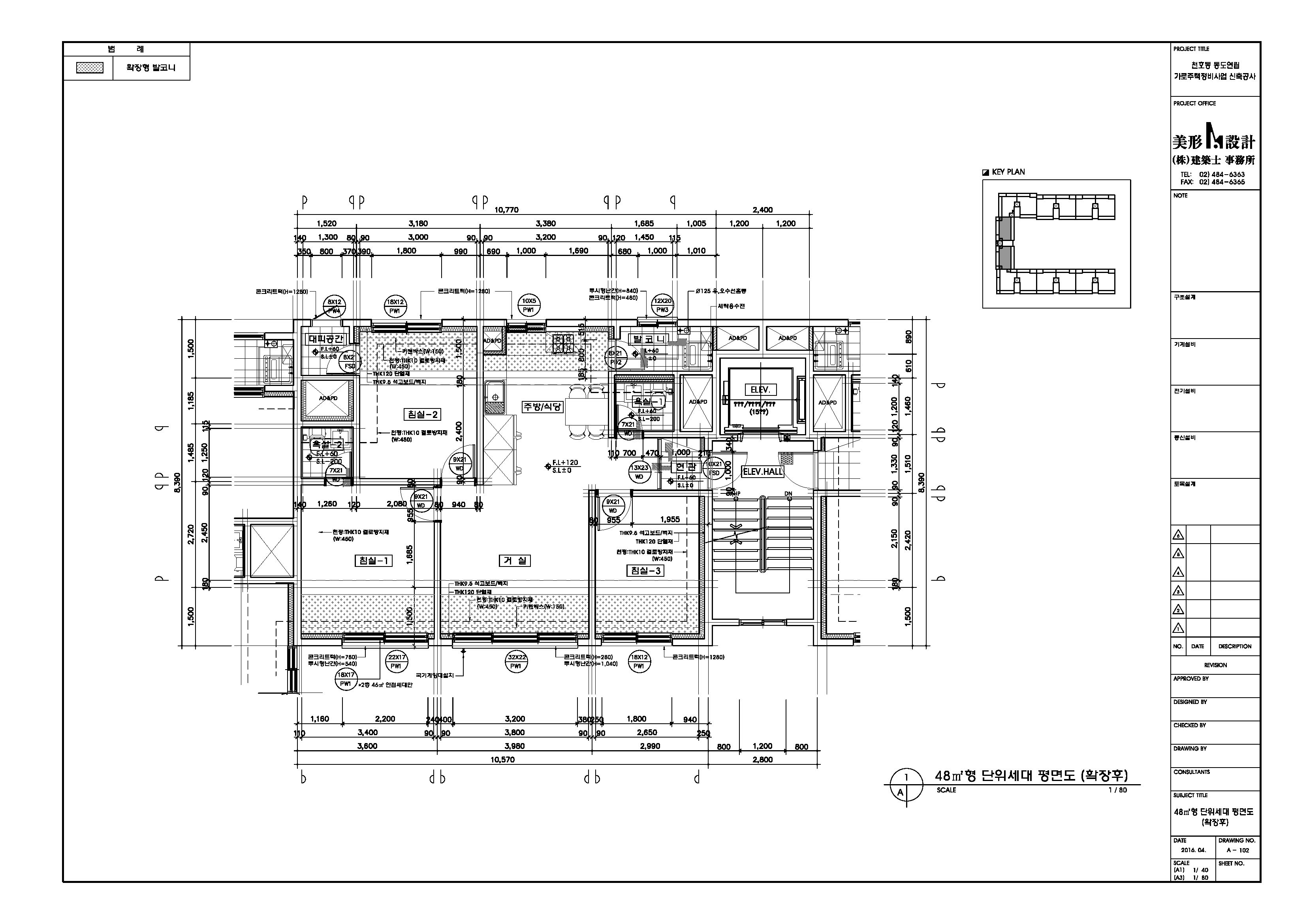
단위세대평면도_48

단위세대평면도_48
공급면적 (㎡) 60.52
사업시행인가(변경)일자 2016-06-17
형별 48형
세대수 12
전용면적 (㎡) 48.82
공용면적 (㎡) 11.70

단위세대평면도 이미지

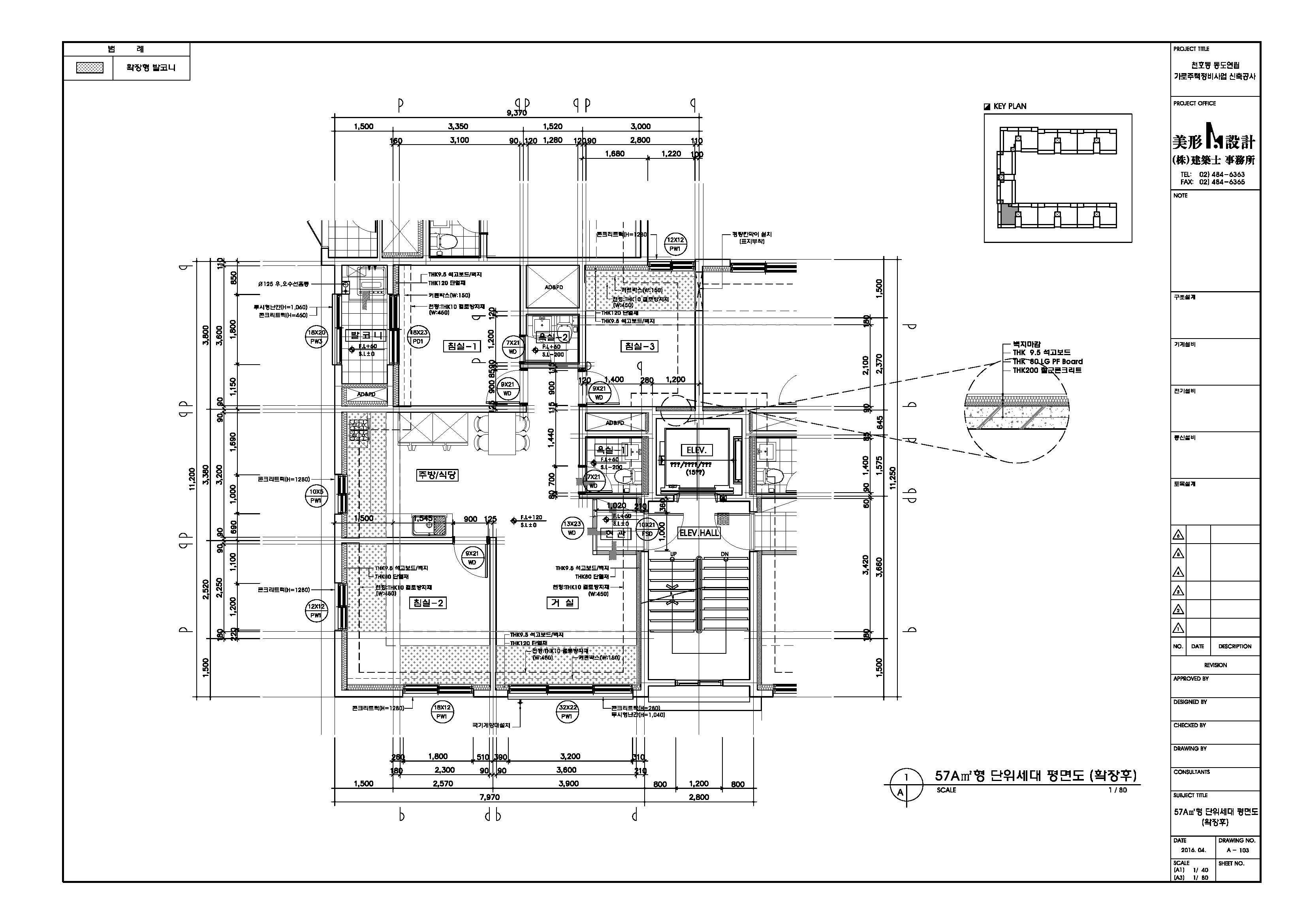
단위세대평면도_57A

단위세대평면도_57A
공급면적 (㎡) 71.24
사업시행인가(변경)일자 2016-06-17
형별 57A형
세대수 7
전용면적 (㎡) 57.43
공용면적 (㎡) 13.81

단위세대평면도 이미지

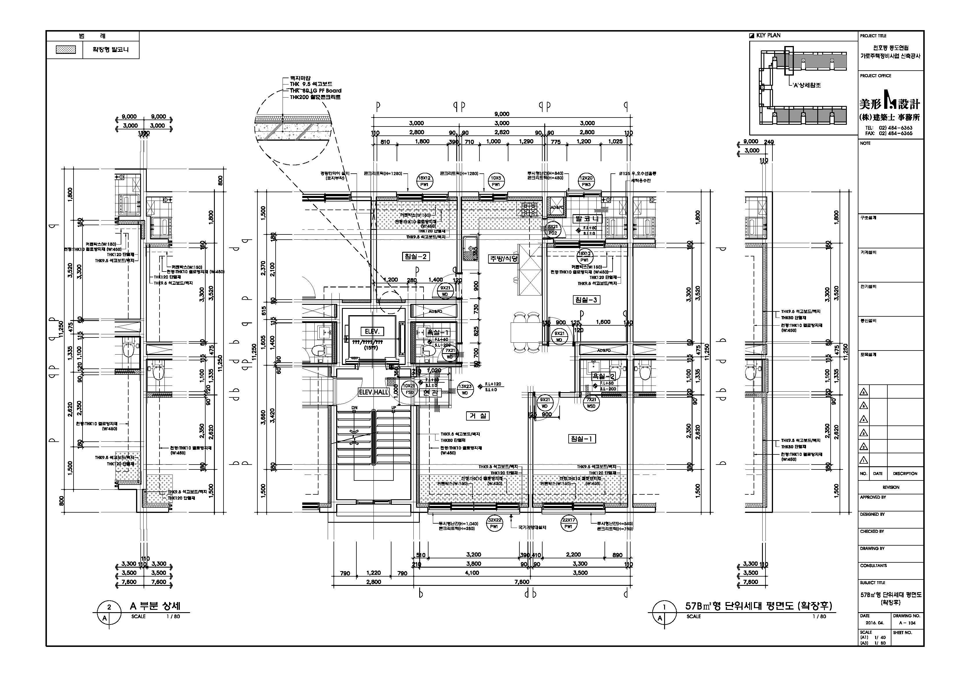
단위세대평면도_57B

단위세대평면도_57B
공급면적 (㎡) 71.75
사업시행인가(변경)일자 2016-06-17
형별 57B형
세대수 70
전용면적 (㎡) 57.78
공용면적 (㎡) 13.97

단위세대평면도 이미지

사업추진 단계별
공개자료 조회

툴팁 아이콘
원하시는 사업 추진단계에 등록된 자료들을 조회해 보실 수 있습니다.