단위세대평면도
정비사업 추진과정을 유리알처럼 투명하게 공개

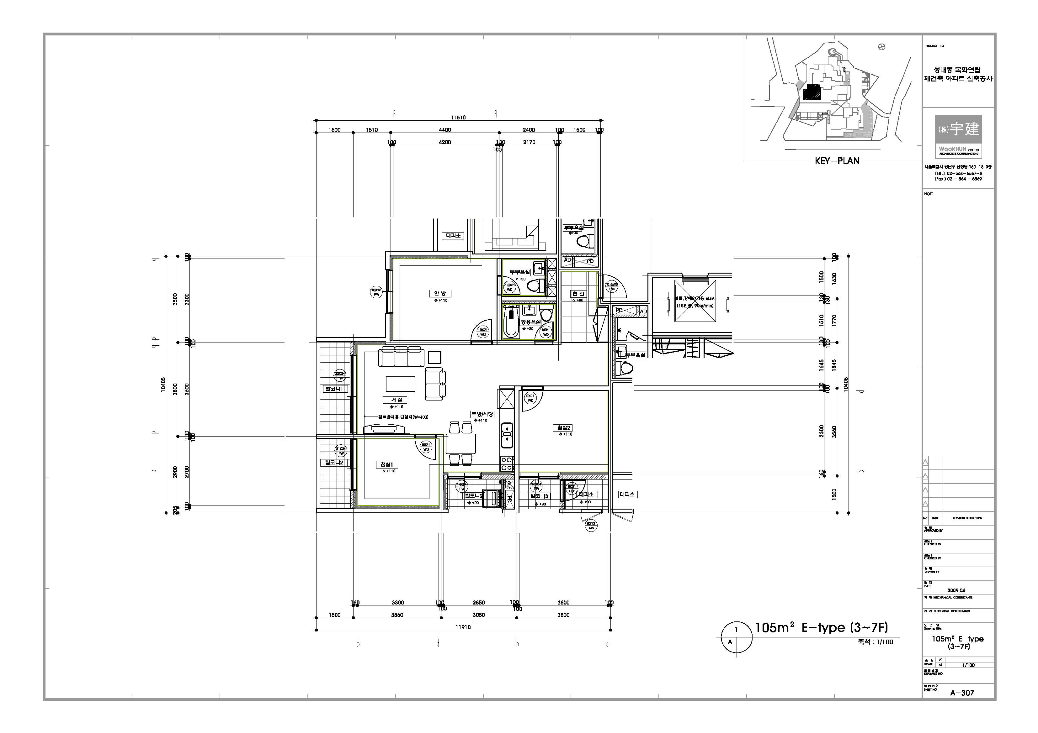
105E형 평면도

105E형 평면도
공급면적 (㎡) 105.176
사업시행인가(변경)일자 2010-01-08
형별 105E형
세대수 7
전용면적 (㎡) 84.232
공용면적 (㎡) 20.944

단위세대평면도 이미지

단위세대평면도 이미지

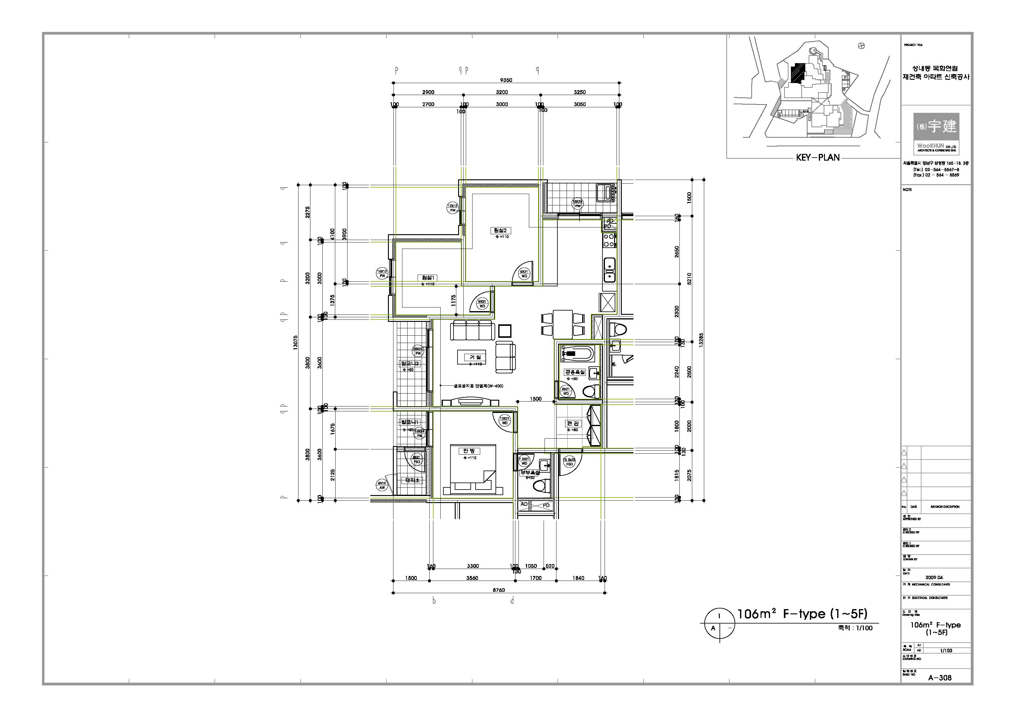
106F형 평면도

106F형 평면도
공급면적 (㎡) 106.165
사업시행인가(변경)일자 2010-01-08
형별 106F형
세대수 5
전용면적 (㎡) 84.543
공용면적 (㎡) 21.621

단위세대평면도 이미지

단위세대평면도 이미지

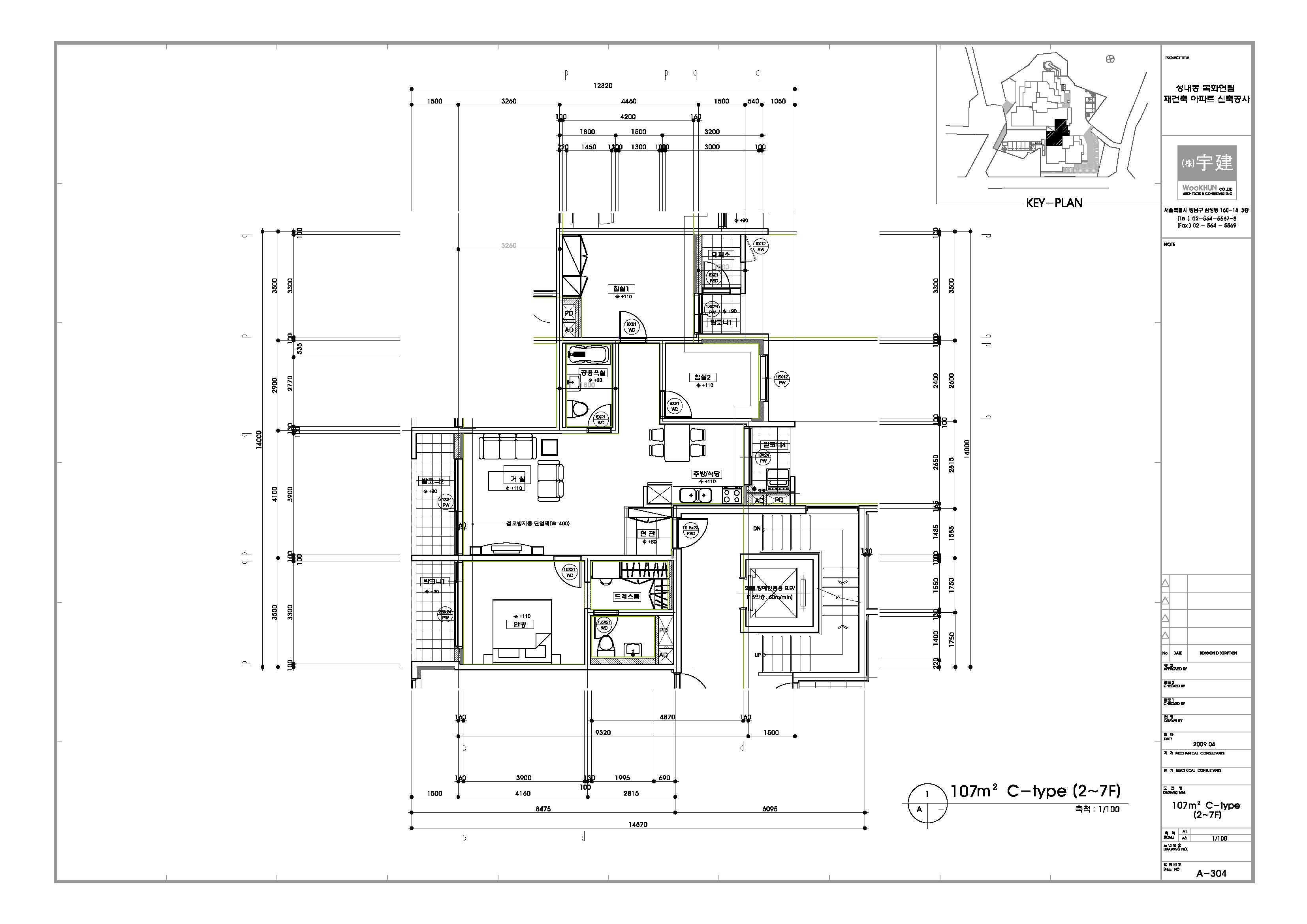
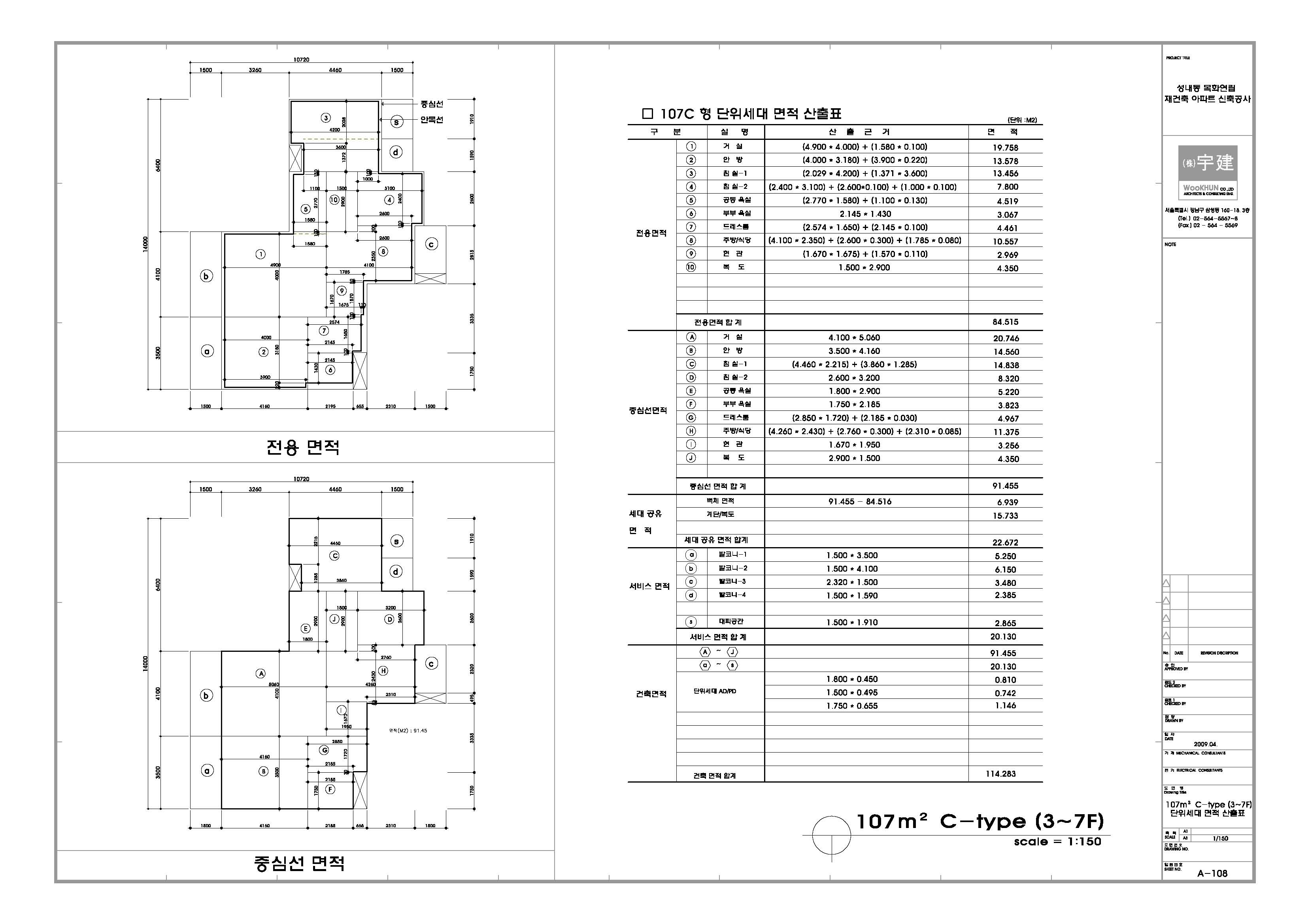
107C형 평면도

107C형 평면도
공급면적 (㎡) 107.187
사업시행인가(변경)일자 2010-01-08
형별 107C형
세대수 5
전용면적 (㎡) 84.515
공용면적 (㎡) 22.672

단위세대평면도 이미지

단위세대평면도 이미지

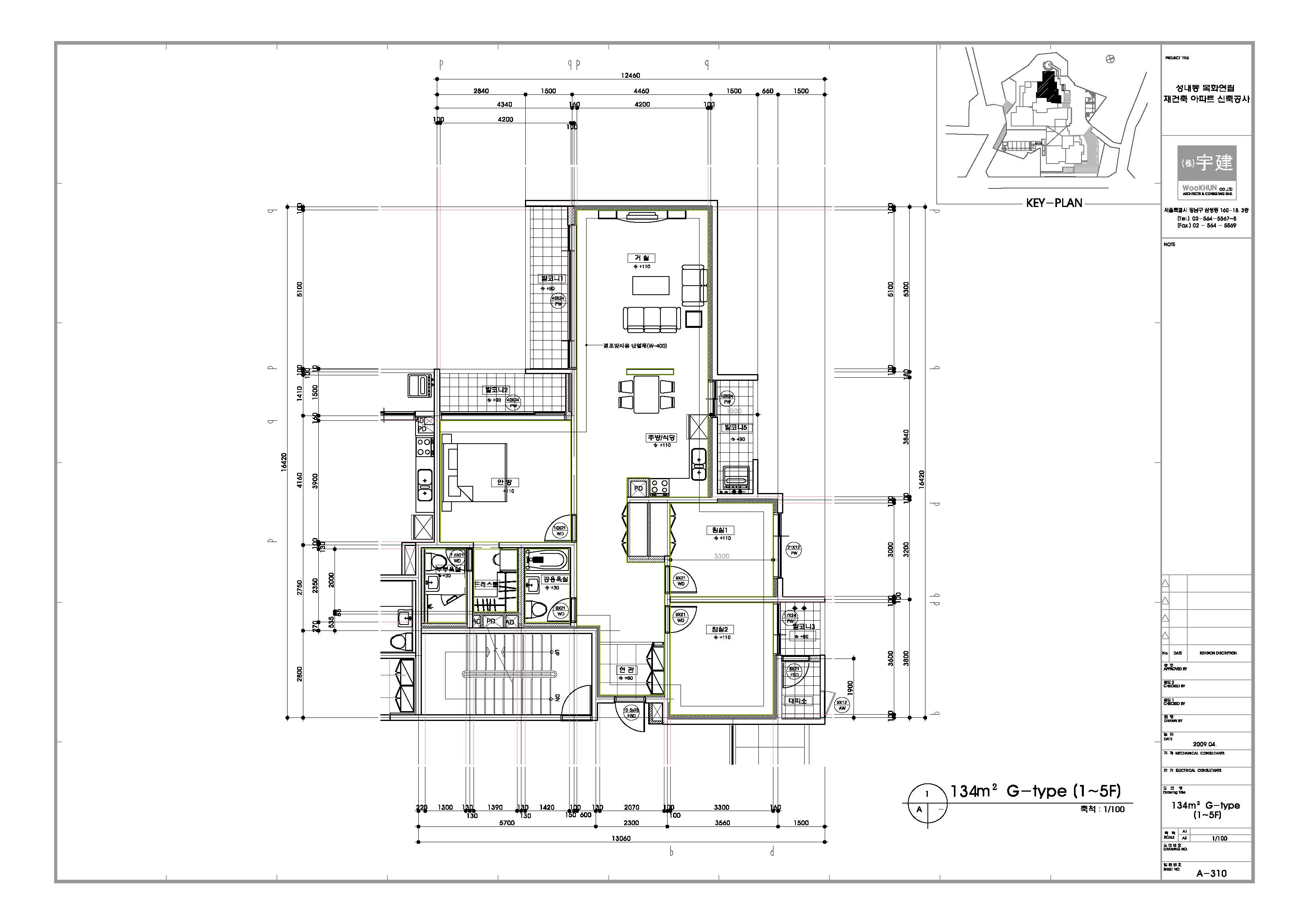
134G형 평면도

134G형 평면도
공급면적 (㎡) 134.753
사업시행인가(변경)일자 2010-01-08
형별 134G형
세대수 5
전용면적 (㎡) 107.248
공용면적 (㎡) 27.504

단위세대평면도 이미지

단위세대평면도 이미지

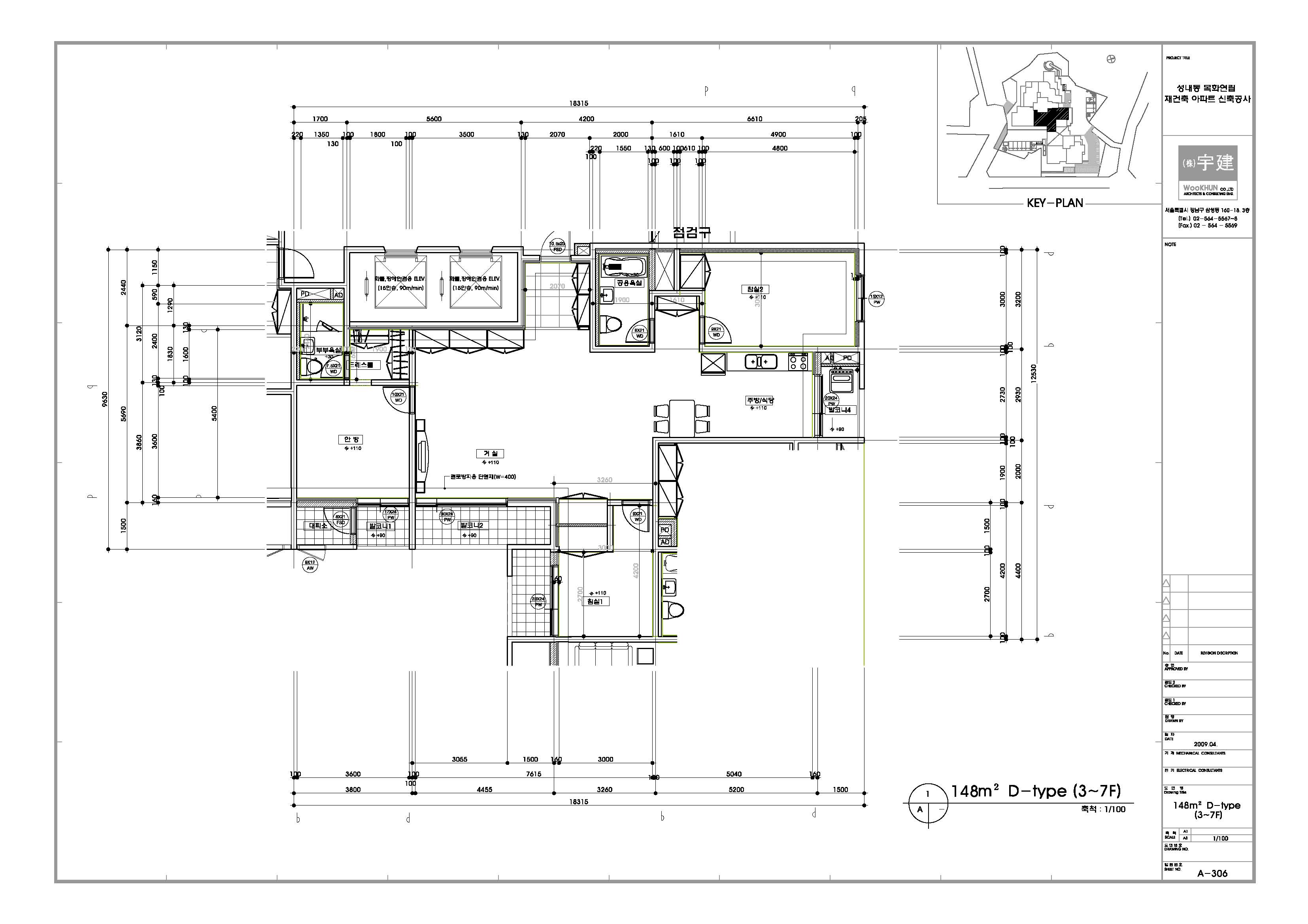
148D형 평면도

148D형 평면도
공급면적 (㎡) 148.503
사업시행인가(변경)일자 2010-01-08
형별 148D형
세대수 5
전용면적 (㎡) 118.261
공용면적 (㎡) 30.241

단위세대평면도 이미지

단위세대평면도 이미지

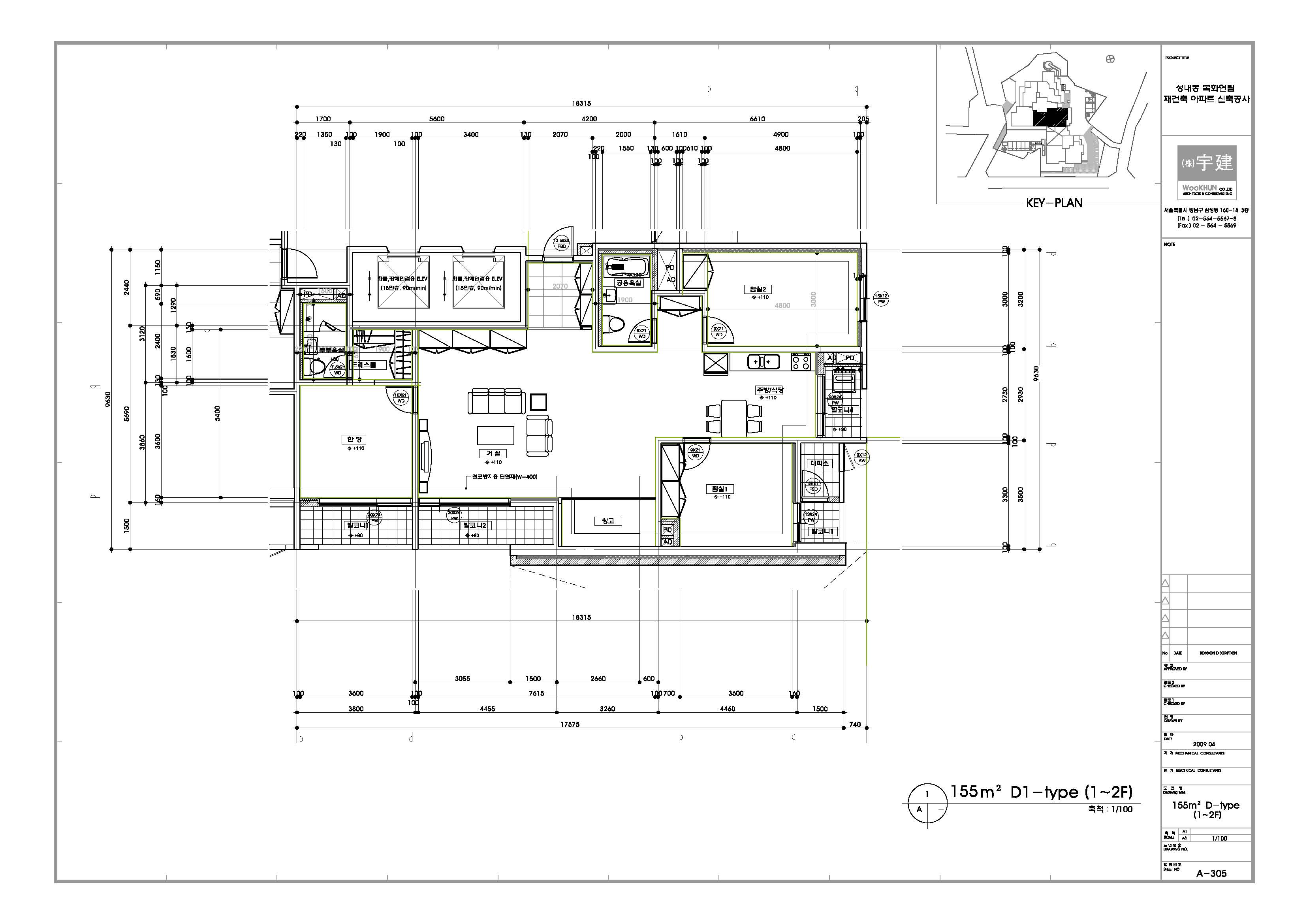
155D형 평면도

155D형 평면도
공급면적 (㎡) 155.239
사업시행인가(변경)일자 2010-01-08
형별 155D형
세대수 2
전용면적 (㎡) 124.250
공용면적 (㎡) 30.989

단위세대평면도 이미지

단위세대평면도 이미지

74F형 평면도

74F형 평면도
공급면적 (㎡) 74.565
사업시행인가(변경)일자 2010-01-08
형별 74F
세대수 2
전용면적 (㎡) 58.122
공용면적 (㎡) 16.443

단위세대평면도 이미지

단위세대평면도 이미지

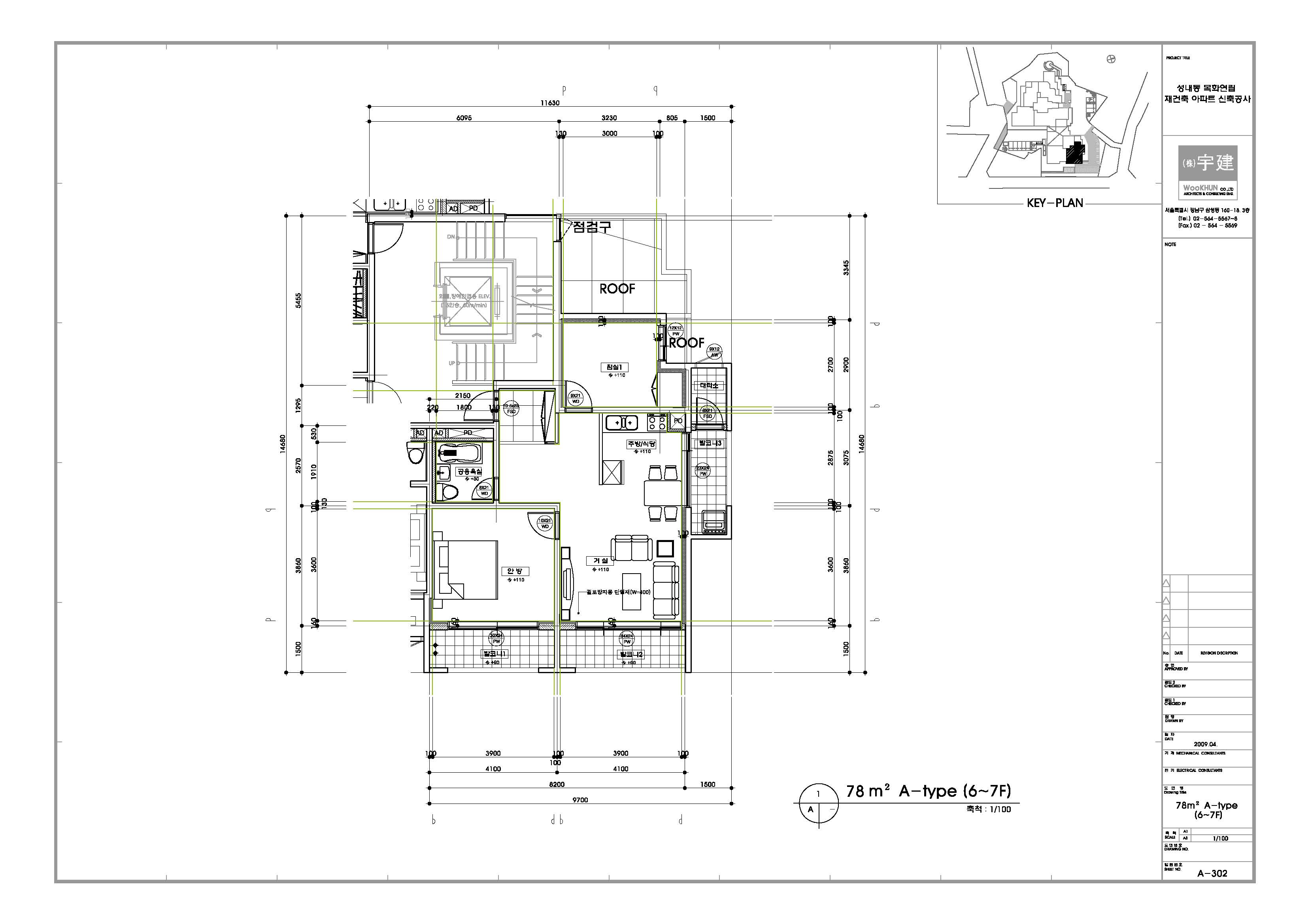
78A형 평면도

78A형 평면도
공급면적 (㎡) 78.158
사업시행인가(변경)일자 2010-01-08
형별 78A형
세대수 2
전용면적 (㎡) 62.534
공용면적 (㎡) 15.623

단위세대평면도 이미지

단위세대평면도 이미지

80G형 평면도

80G형 평면도
공급면적 (㎡) 80.158
사업시행인가(변경)일자 2010-01-08
형별 80G형
세대수 2
전용면적 (㎡) 63.025
공용면적 (㎡) 17.132

단위세대평면도 이미지

단위세대평면도 이미지

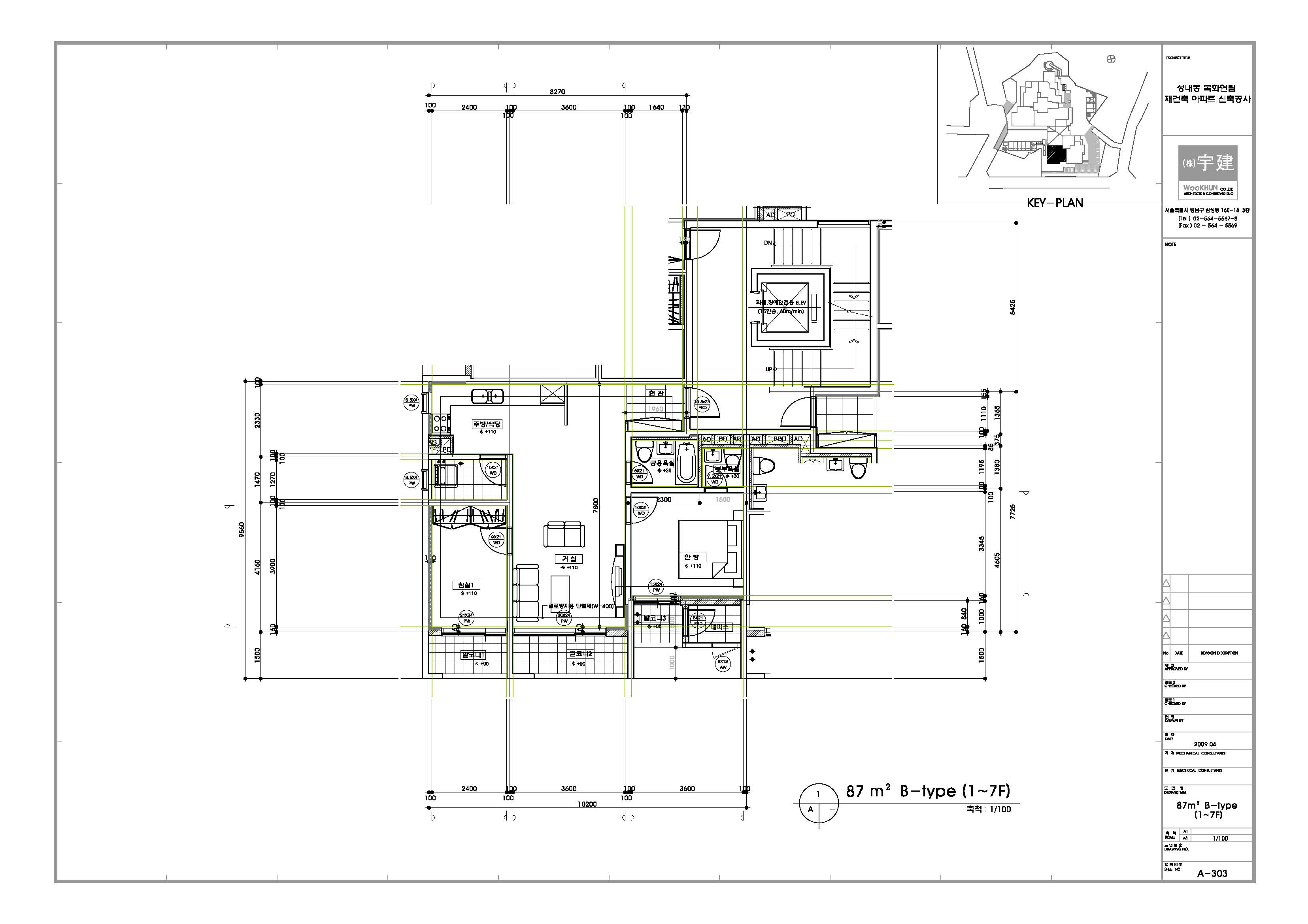
87B형 평면도

87B형 평면도
공급면적 (㎡) 87.105
사업시행인가(변경)일자 2010-01-08
형별 87B형
세대수 7
전용면적 (㎡) 69.647
공용면적 (㎡) 17.457

단위세대평면도 이미지

단위세대평면도 이미지

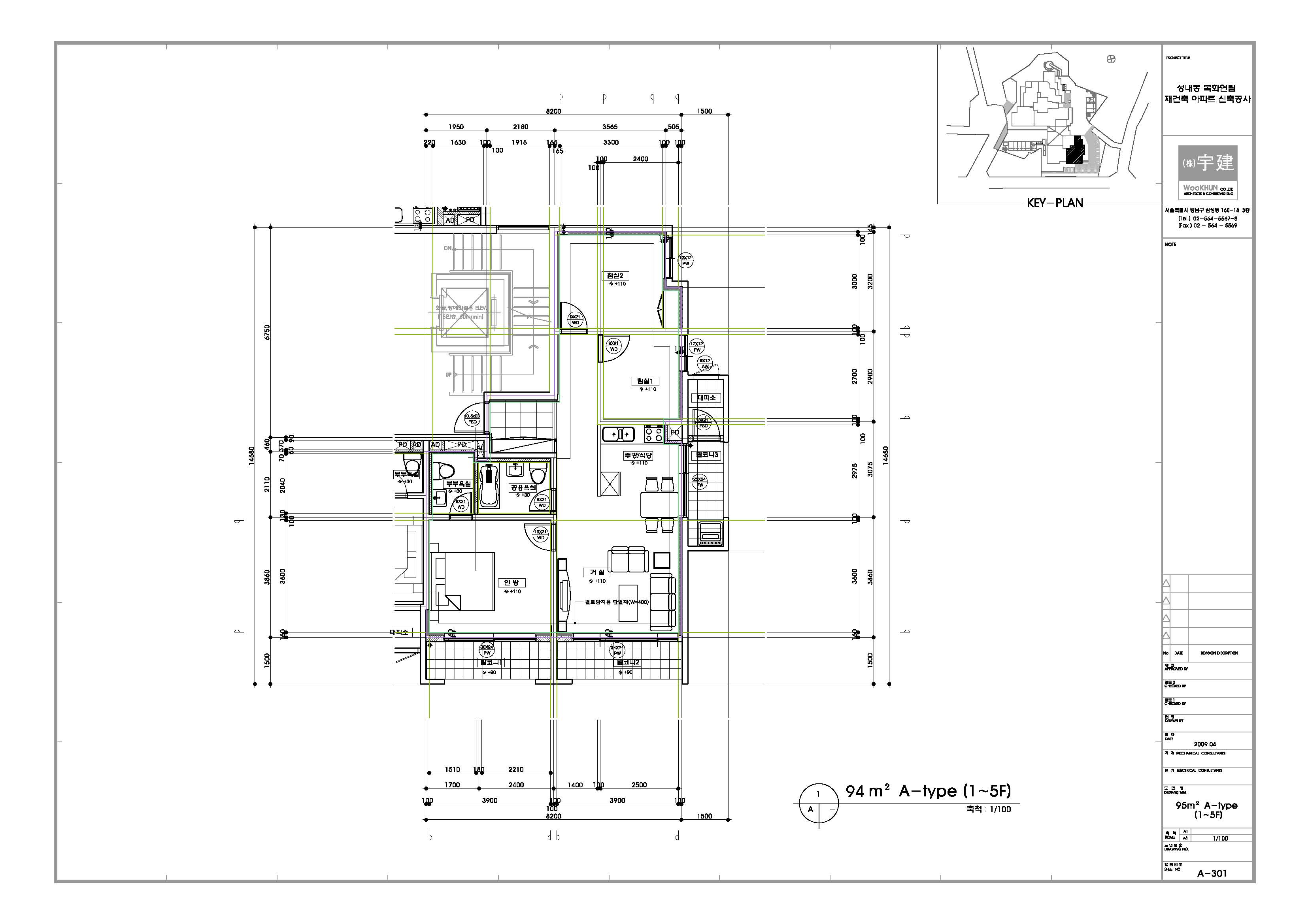
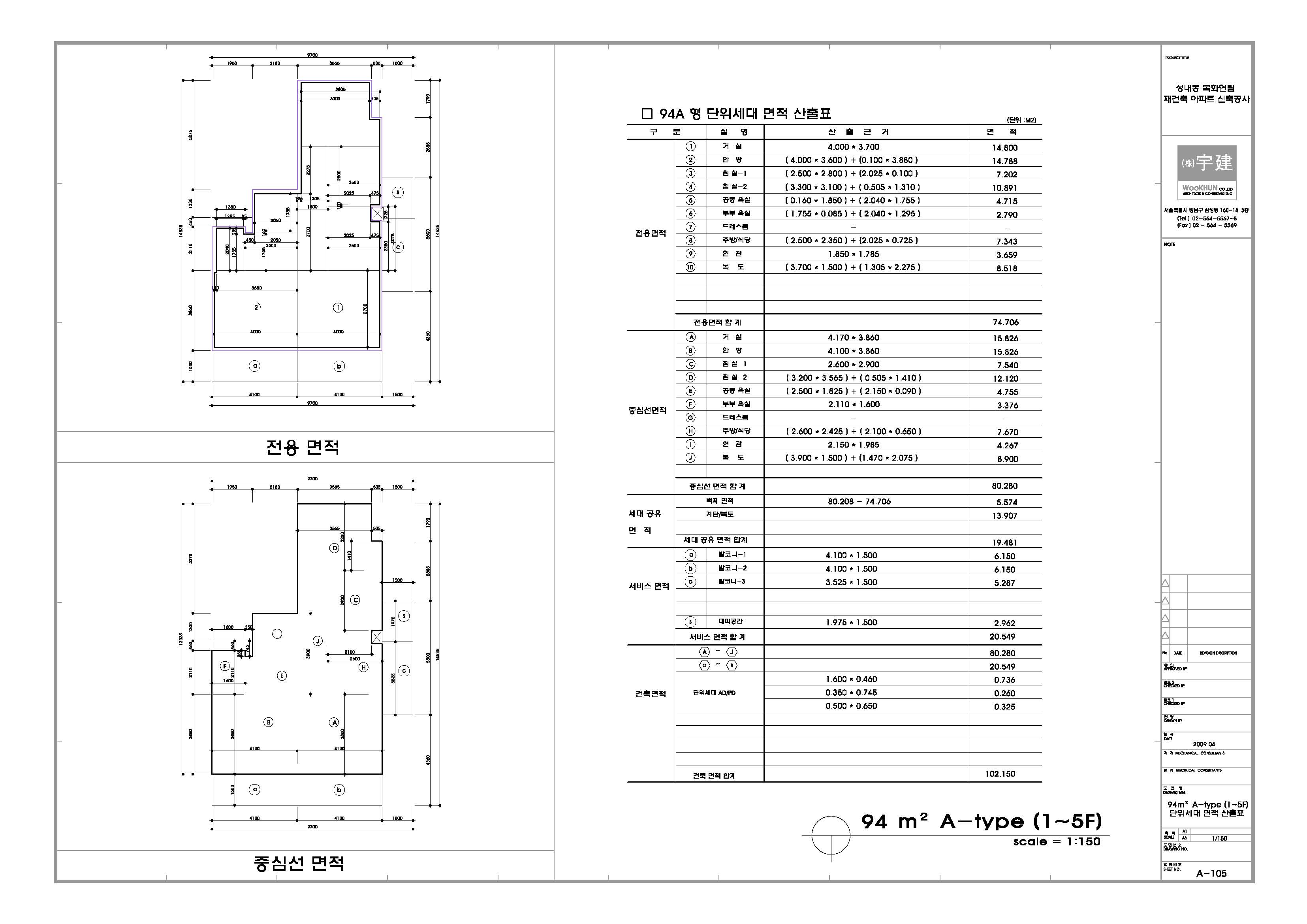
94A형 평면도

94A형 평면도
공급면적 (㎡) 94.188
사업시행인가(변경)일자 2010-01-08
형별 94A형
세대수 5
전용면적 (㎡) 74.706
공용면적 (㎡) 19.481

단위세대평면도 이미지

단위세대평면도 이미지

사업추진 단계별
공개자료 조회

툴팁 아이콘
원하시는 사업 추진단계에 등록된 자료들을 조회해 보실 수 있습니다.