단위세대평면도
정비사업 추진과정을 유리알처럼 투명하게 공개
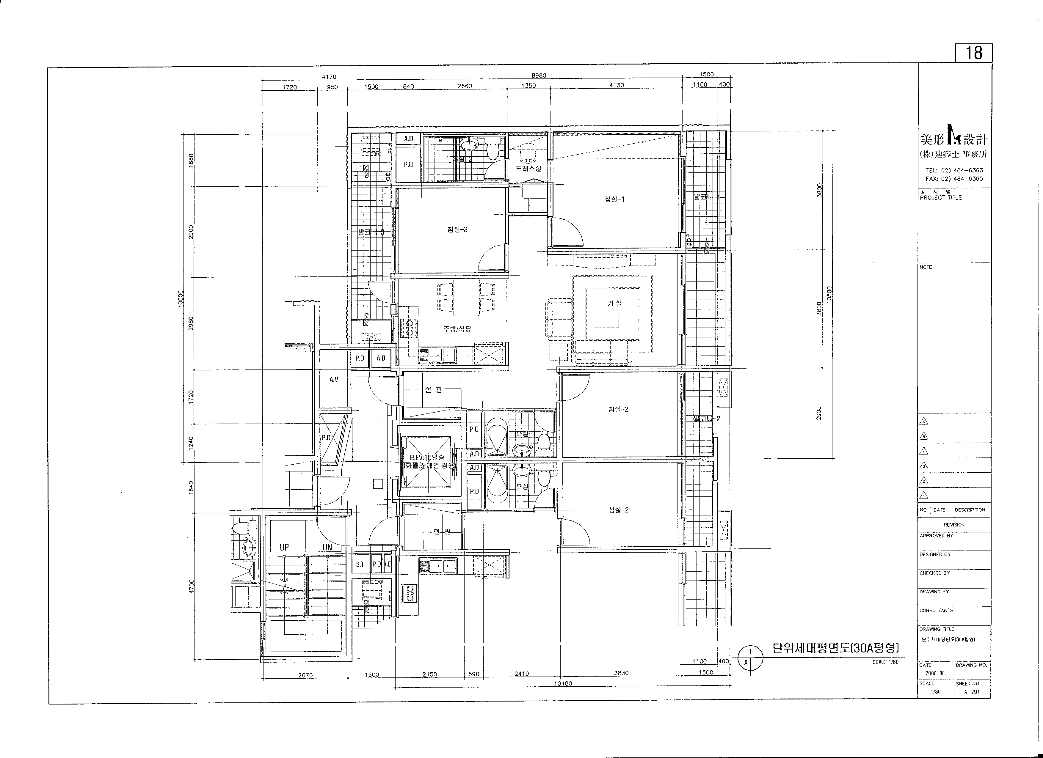
건축시설계획-단위세대평면도
건축시설계획-단위세대평면도
공급면적 (㎡)
A형(101.01) B형(101.84)
사업시행인가(변경)일자
2009-12-05
형별
A형 B형
세대수
A형(22) B형(7)
전용면적 (㎡)
A형(84.31) B형(84.31)
공용면적 (㎡)
A형(16.7) B형(17.53)
사업추진 단계별
공개자료 조회
운영구분
사업진행단계
조회
툴팁 아이콘
원하시는 사업 추진단계에 등록된 자료들을 조회해 보실 수 있습니다.
사업개요
위치도
조감도
배치도
단위세대
평면도
찾아오시는길
정보공개
자료열람
추진경과
공사비
변경내역
향후일정
전체보기