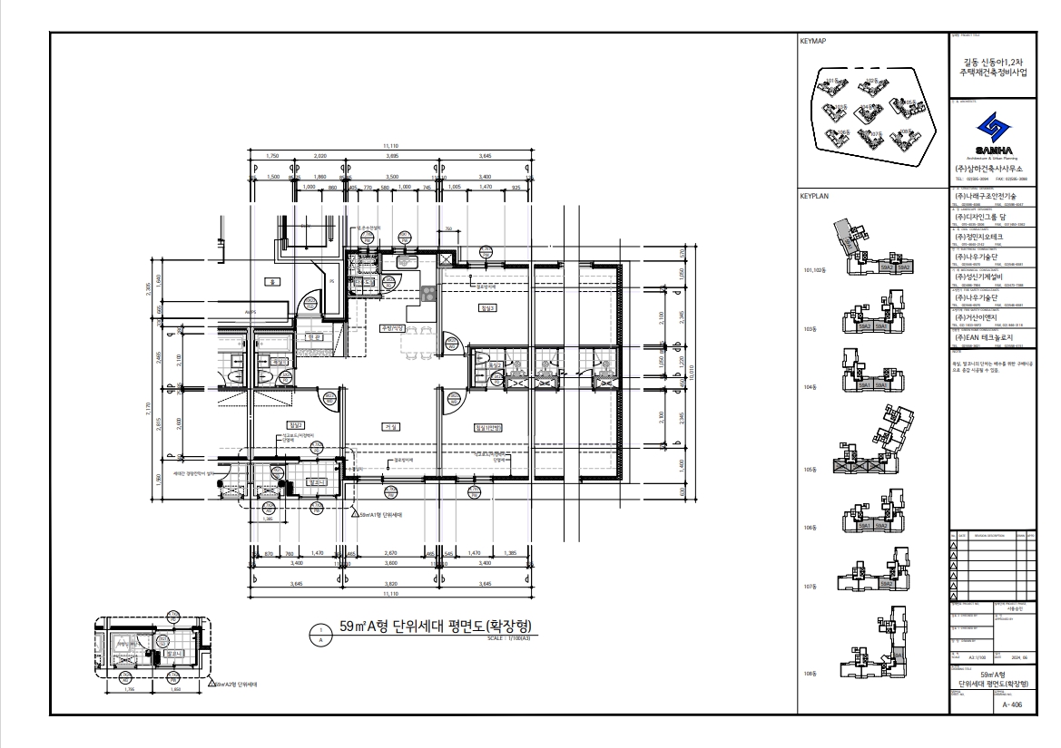
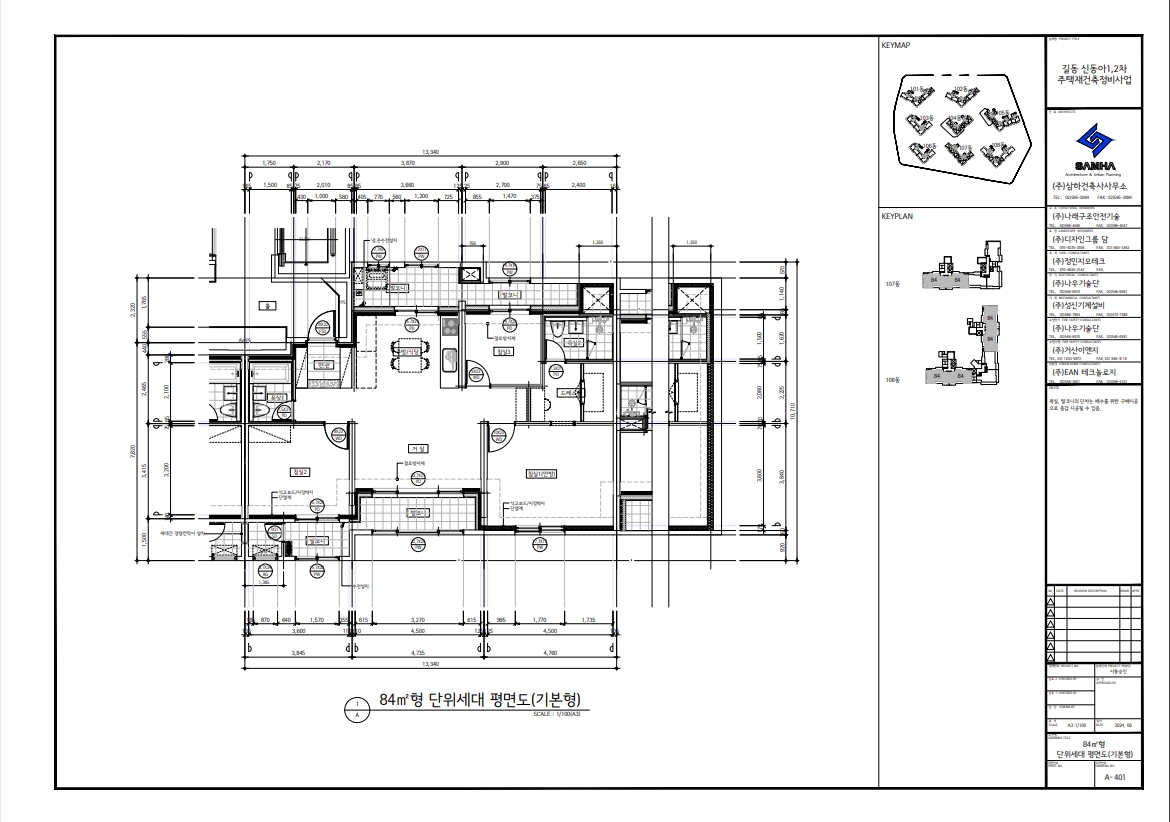
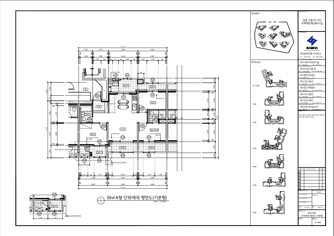
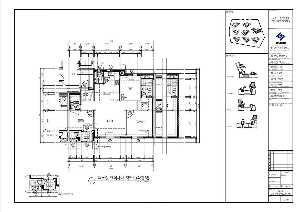
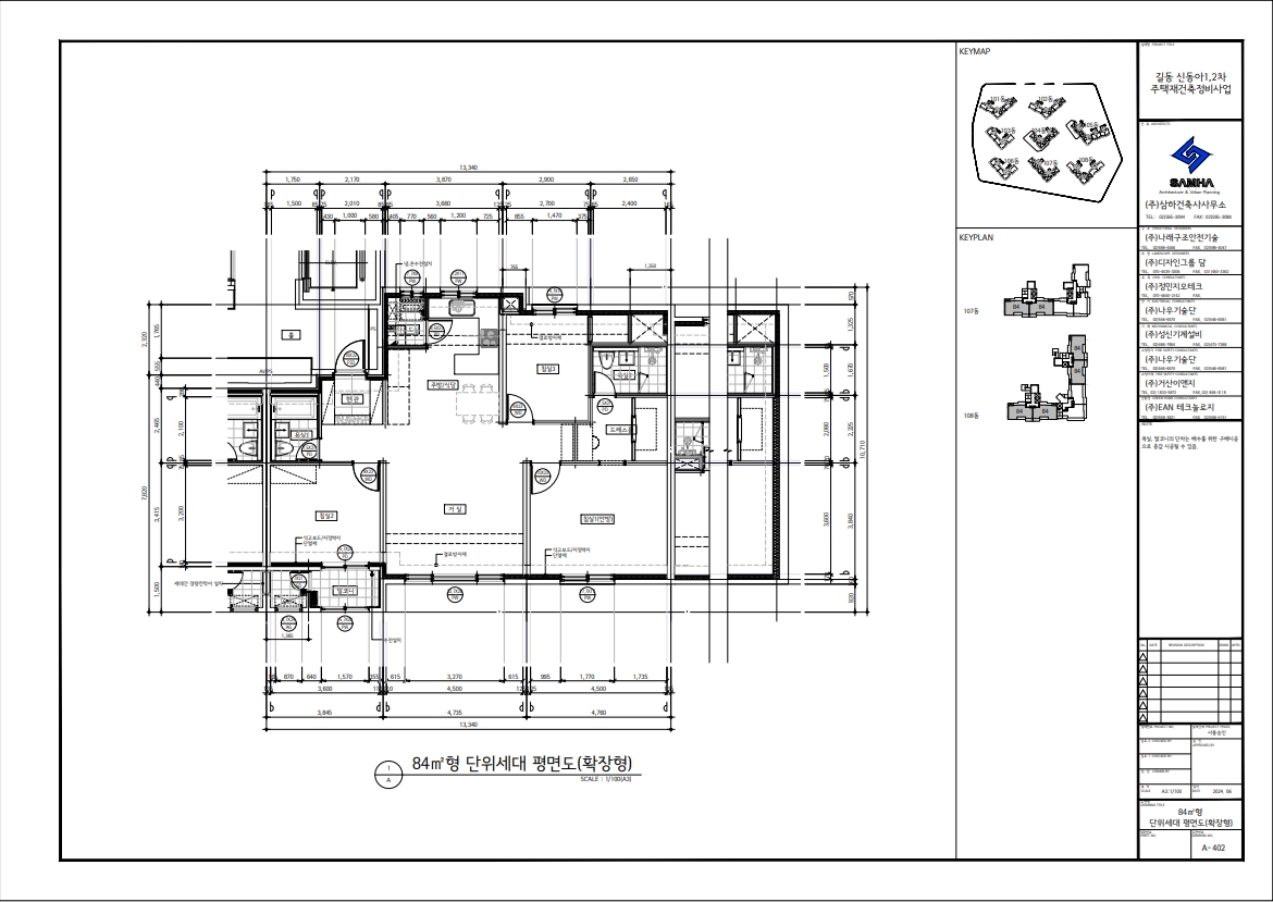
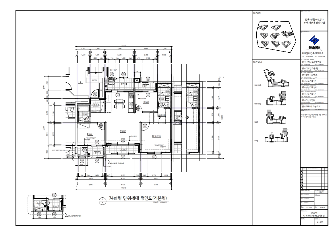
단위세대평면도
정비사업 추진과정을 유리알처럼 투명하게 공개

건축시설계획-단위세대평면도

건축시설계획-단위세대평면도
공급면적 (㎡) 33평형 - 111.685, 29평형- 99.128, 24(A)평형 - 82.050, 24(B)평형 - 82.089, 19평형 - 64.509
사업시행인가(변경)일자 2024-05-02
형별 19평형, 24평형, 29평형, 33평형
세대수 33평형 - 172, 29평형 - 187, 24A평형 - 455, 24B평형 - 263, 19평형 - 108, 임대- 24(A, B) 114
전용면적 (㎡) 33평형 - 84.977, 29평형 - 74.974, 24(A,B)평형- 59.980, 19평형-45.795
공용면적 (㎡) 33평형 - 26.708, 29평형 - 24.154, 24A평형 - 22.070, 24B평형 - 22.109, 19평형 - 18.714

단위세대평면도 이미지

단위세대평면도 이미지

단위세대평면도 이미지

단위세대평면도 이미지

단위세대평면도 이미지

단위세대평면도 이미지

단위세대평면도 이미지

단위세대평면도 이미지

단위세대평면도 이미지

단위세대평면도 이미지

사업추진 단계별
공개자료 조회

툴팁 아이콘
원하시는 사업 추진단계에 등록된 자료들을 조회해 보실 수 있습니다.