단위세대평면도
정비사업 추진과정을 유리알처럼 투명하게 공개

단위세대평면도-122(사업계획승인 변경2차)

단위세대평면도-122(사업계획승인 변경2차)
공급면적 (㎡) 152.388
사업시행인가(변경)일자 2017-04-19
형별 122
세대수 58
전용면적 (㎡) 122.082
공용면적 (㎡) 30.306

단위세대평면도 이미지

단위세대평면도 이미지

단위세대평면도-59A(사업계획승인 변경2차)

단위세대평면도-59A(사업계획승인 변경2차)
공급면적 (㎡) 83.390
사업시행인가(변경)일자 2017-04-19
형별 A
세대수 358
전용면적 (㎡) 59.981
공용면적 (㎡) 23.409

단위세대평면도 이미지

단위세대평면도 이미지

단위세대평면도-59B(사업계획승인 변경2차)

단위세대평면도-59B(사업계획승인 변경2차)
공급면적 (㎡) 84.649
사업시행인가(변경)일자 2017-04-19
형별 B
세대수 103
전용면적 (㎡) 59.984
공용면적 (㎡) 24.665

단위세대평면도 이미지

단위세대평면도 이미지

단위세대평면도-84A(사업계획승인 변경2차)

단위세대평면도-84A(사업계획승인 변경2차)
공급면적 (㎡) 111.268
사업시행인가(변경)일자 2017-04-19
형별 A
세대수 918
전용면적 (㎡) 84.923
공용면적 (㎡) 26.345

단위세대평면도 이미지

단위세대평면도 이미지

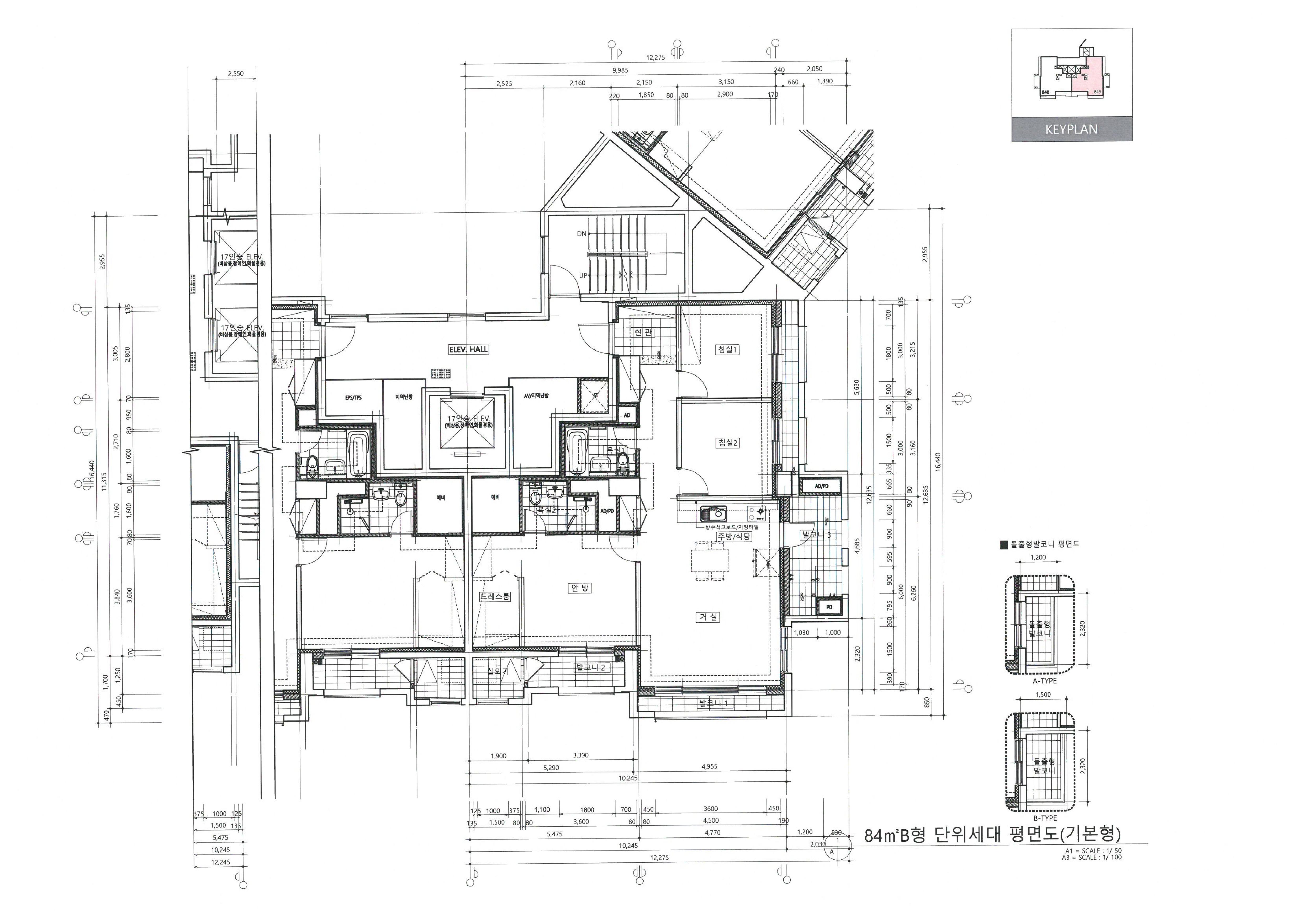
단위세대평면도-84B(사업계획승인 변경2차)

단위세대평면도-84B(사업계획승인 변경2차)
공급면적 (㎡) 112.346
사업시행인가(변경)일자 2017-04-19
형별 B
세대수 422
전용면적 (㎡) 84.146
공용면적 (㎡) 28.200

단위세대평면도 이미지

단위세대평면도 이미지

사업추진 단계별
공개자료 조회

툴팁 아이콘
원하시는 사업 추진단계에 등록된 자료들을 조회해 보실 수 있습니다.