단위세대평면도
정비사업 추진과정을 유리알처럼 투명하게 공개

(변경)단위세대평면도_102㎡

(변경)단위세대평면도_102㎡
공급면적 (㎡) 139.37㎡
사업시행인가(변경)일자 2015-12-11
형별 102㎡
세대수 86세대
전용면적 (㎡) 102.85㎡
공용면적 (㎡) 36.52㎡

단위세대평면도 이미지

단위세대평면도 이미지

(변경)단위세대평면도_120㎡

(변경)단위세대평면도_120㎡
공급면적 (㎡) 165.58㎡
사업시행인가(변경)일자 2015-12-11
형별 120㎡
세대수 6세대
전용면적 (㎡) 120.37㎡
공용면적 (㎡) 45.21㎡

단위세대평면도 이미지

단위세대평면도 이미지

(변경)단위세대평면도_130㎡

(변경)단위세대평면도_130㎡
공급면적 (㎡) 179.92㎡
사업시행인가(변경)일자 2015-12-11
형별 130㎡
세대수 3세대
전용면적 (㎡) 130.79㎡
공용면적 (㎡) 49.13㎡

단위세대평면도 이미지

단위세대평면도 이미지

(변경)단위세대평면도_59㎡ A타입

(변경)단위세대평면도_59㎡ A타입
공급면적 (㎡) 82.26㎡
사업시행인가(변경)일자 2015-12-11
형별 A타입
세대수 425세대
전용면적 (㎡) 59.97㎡
공용면적 (㎡) 22.29㎡

단위세대평면도 이미지

단위세대평면도 이미지

(변경)단위세대평면도_59㎡ B타입

(변경)단위세대평면도_59㎡ B타입
공급면적 (㎡) 82.42㎡
사업시행인가(변경)일자 2015-12-11
형별 B타입
세대수 41세대
전용면적 (㎡) 59.91㎡
공용면적 (㎡) 22.51㎡

단위세대평면도 이미지

단위세대평면도 이미지

(변경)단위세대평면도_59㎡ C타입

(변경)단위세대평면도_59㎡ C타입
공급면적 (㎡) 82.70㎡
사업시행인가(변경)일자 2015-12-11
형별 C타입
세대수 172세대
전용면적 (㎡) 59.99㎡
공용면적 (㎡) 22.71㎡

단위세대평면도 이미지

단위세대평면도 이미지

(변경)단위세대평면도_74㎡ A타입

(변경)단위세대평면도_74㎡ A타입
공급면적 (㎡) 102.27㎡
사업시행인가(변경)일자 2015-12-11
형별 A타입
세대수 154세대
전용면적 (㎡) 74.88㎡
공용면적 (㎡) 27.39㎡

단위세대평면도 이미지

단위세대평면도 이미지

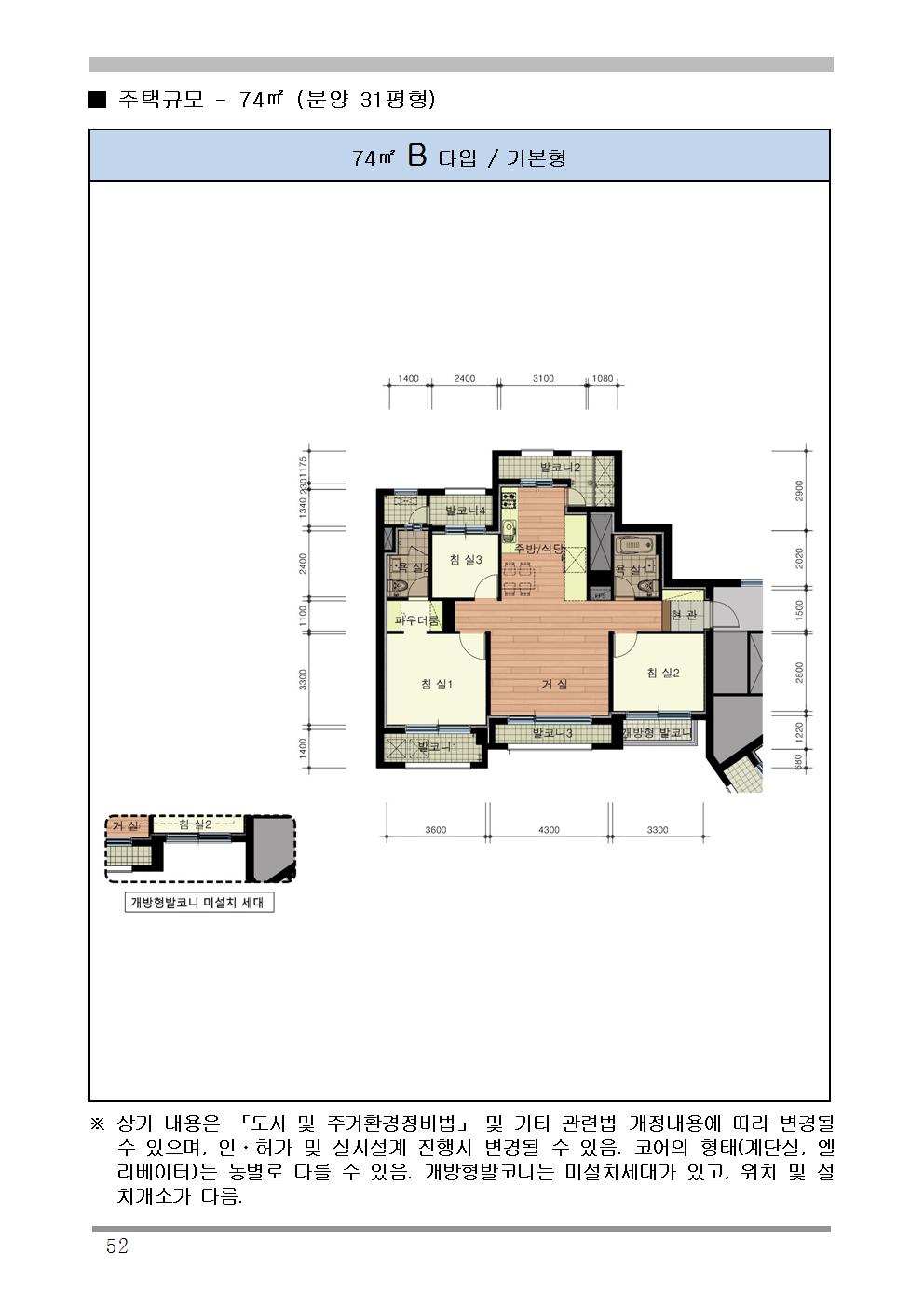
(변경)단위세대평면도_74㎡ B타입

(변경)단위세대평면도_74㎡ B타입
공급면적 (㎡) 102.64㎡
사업시행인가(변경)일자 2015-12-11
형별 B타입
세대수 65세대
전용면적 (㎡) 74.99㎡
공용면적 (㎡) 27.65㎡

단위세대평면도 이미지

단위세대평면도 이미지

(변경)단위세대평면도_84㎡ A타입

(변경)단위세대평면도_84㎡ A타입
공급면적 (㎡) 115.36㎡
사업시행인가(변경)일자 2015-12-11
형별 A타입
세대수 535세대
전용면적 (㎡) 84.91㎡
공용면적 (㎡) 30.45㎡

단위세대평면도 이미지

단위세대평면도 이미지

(변경)단위세대평면도_84㎡ B타입

(변경)단위세대평면도_84㎡ B타입
공급면적 (㎡) 115.81㎡
사업시행인가(변경)일자 2015-12-11
형별 B타입
세대수 258세대
전용면적 (㎡) 84.97㎡
공용면적 (㎡) 30.84㎡

단위세대평면도 이미지

단위세대평면도 이미지

사업추진 단계별
공개자료 조회

툴팁 아이콘
원하시는 사업 추진단계에 등록된 자료들을 조회해 보실 수 있습니다.