단위세대평면도
정비사업 추진과정을 유리알처럼 투명하게 공개

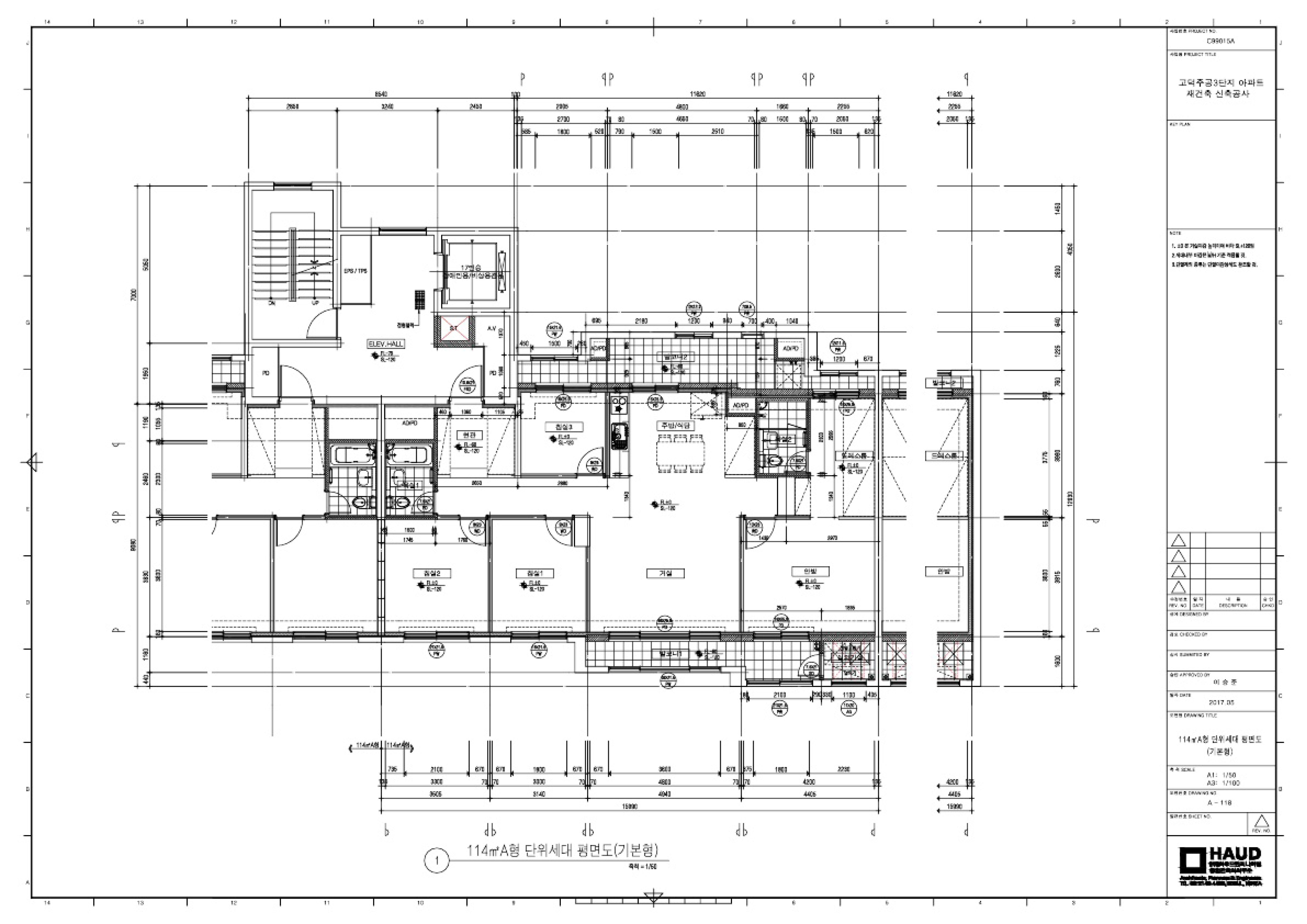
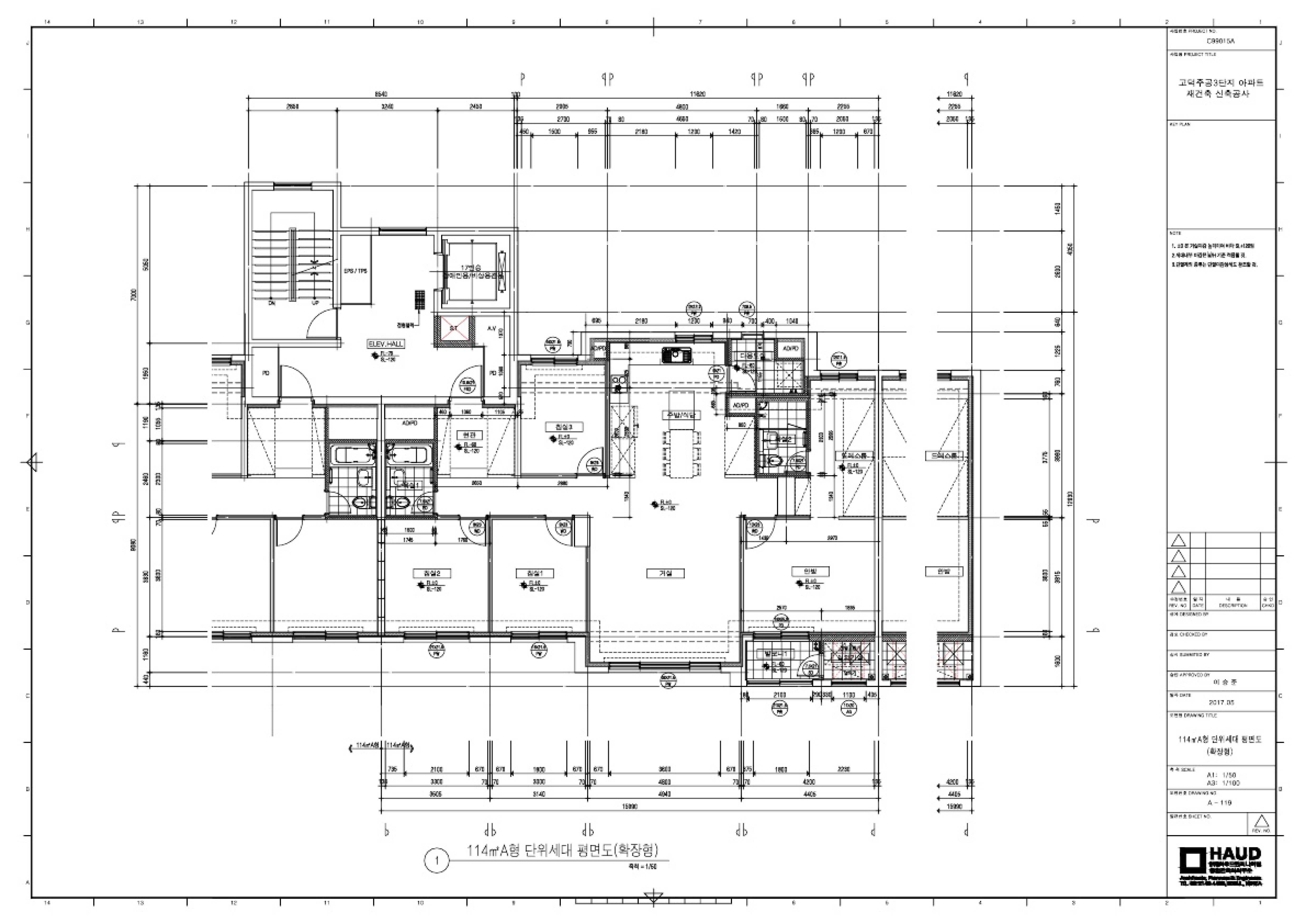
변경 단위세대 평면도 114㎡(46형)

변경 단위세대 평면도 114㎡(46형)
공급면적 (㎡) 152.72㎡
사업시행인가(변경)일자 2017-07-21
형별 A타입
세대수 170세대
전용면적 (㎡) 114.86㎡
공용면적 (㎡) 6.58㎡

단위세대평면도 이미지

단위세대평면도 이미지

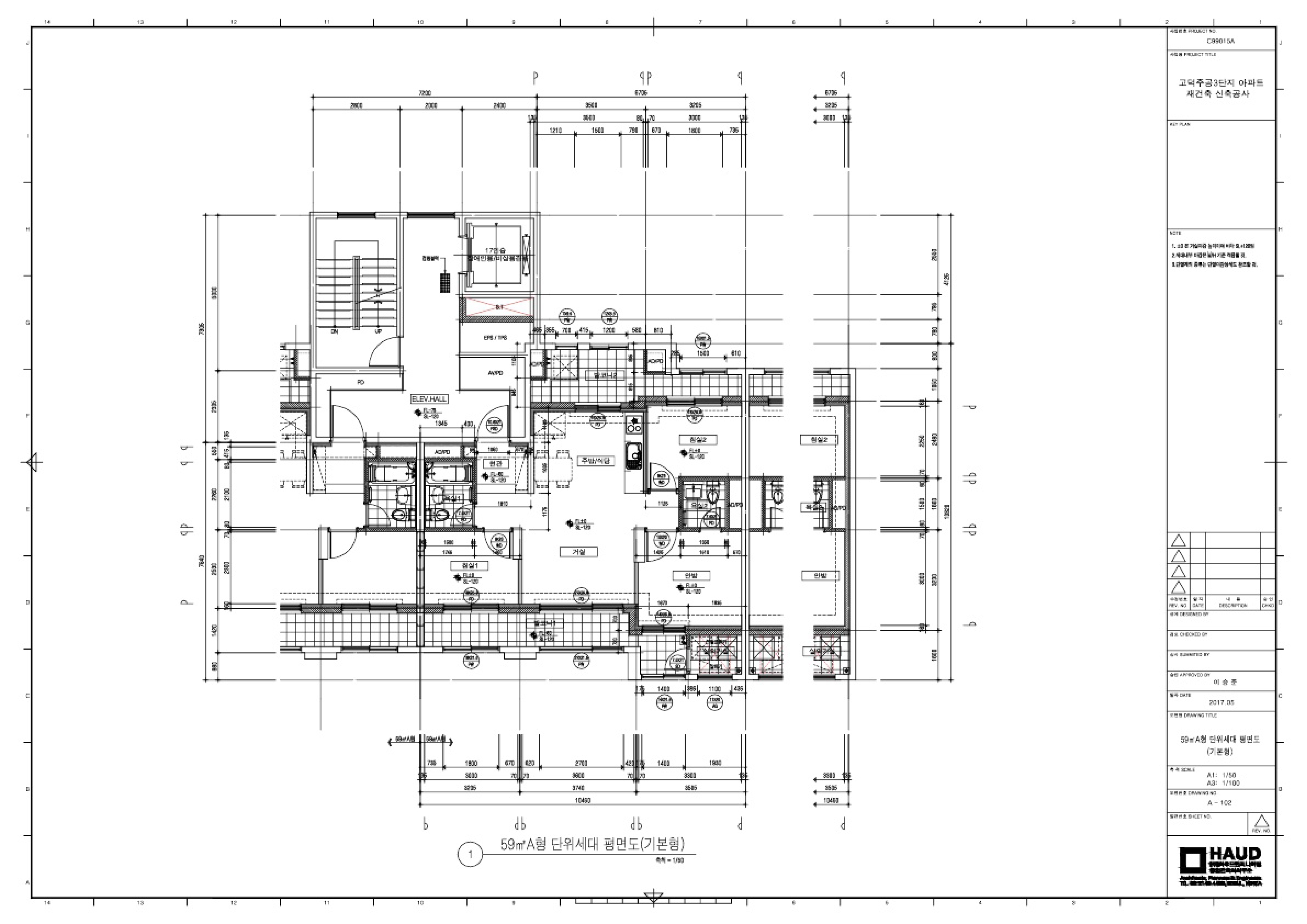
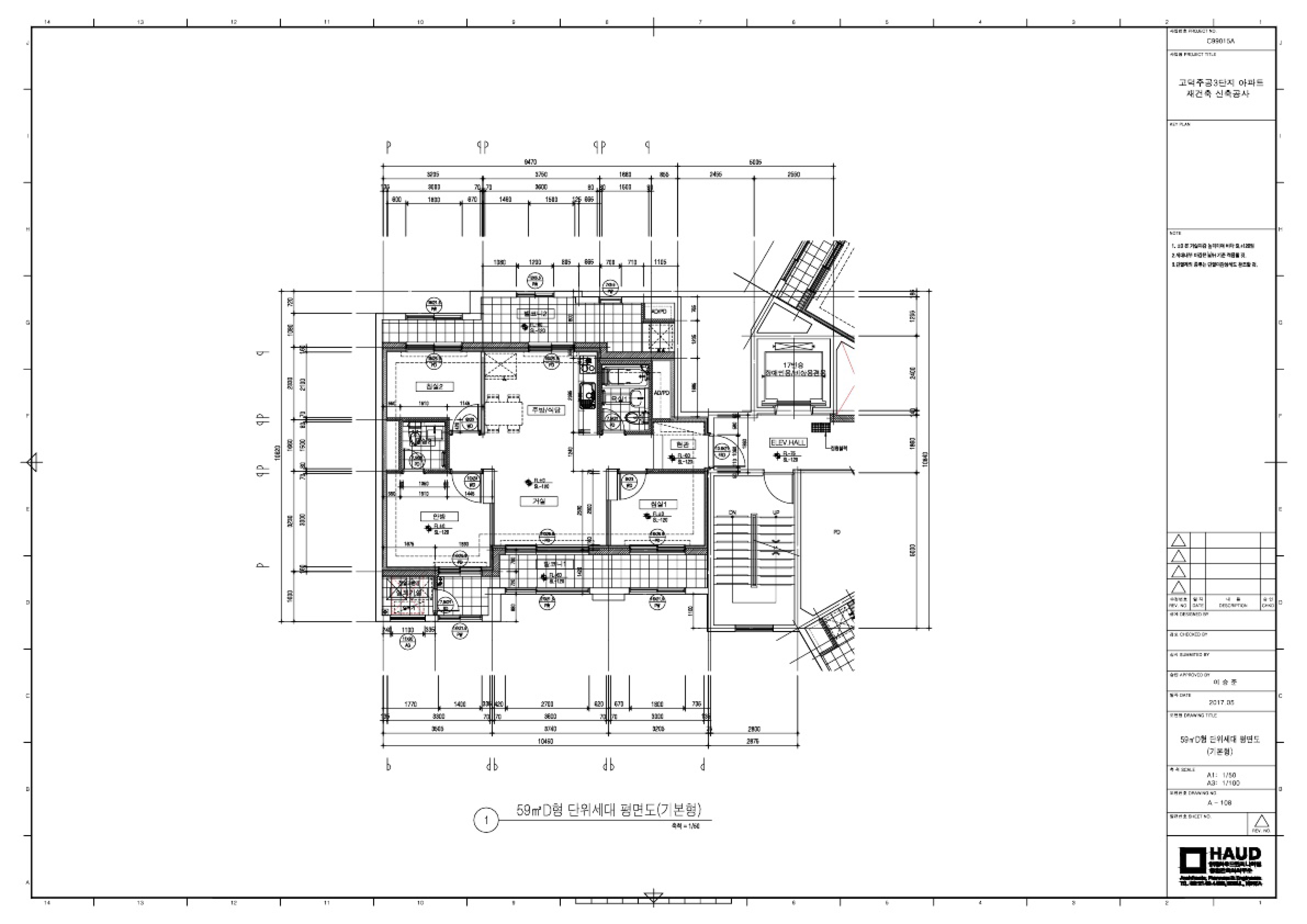
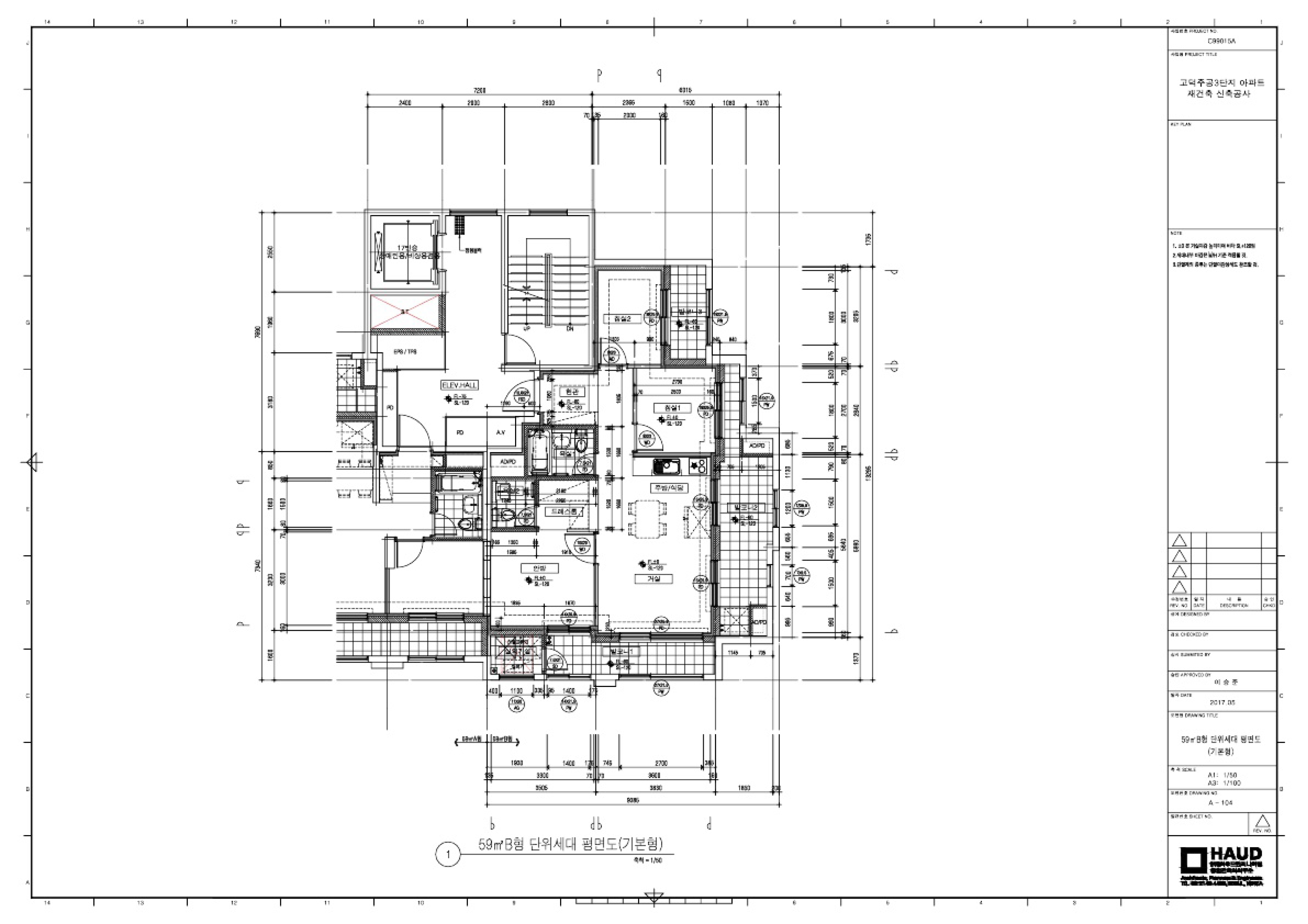
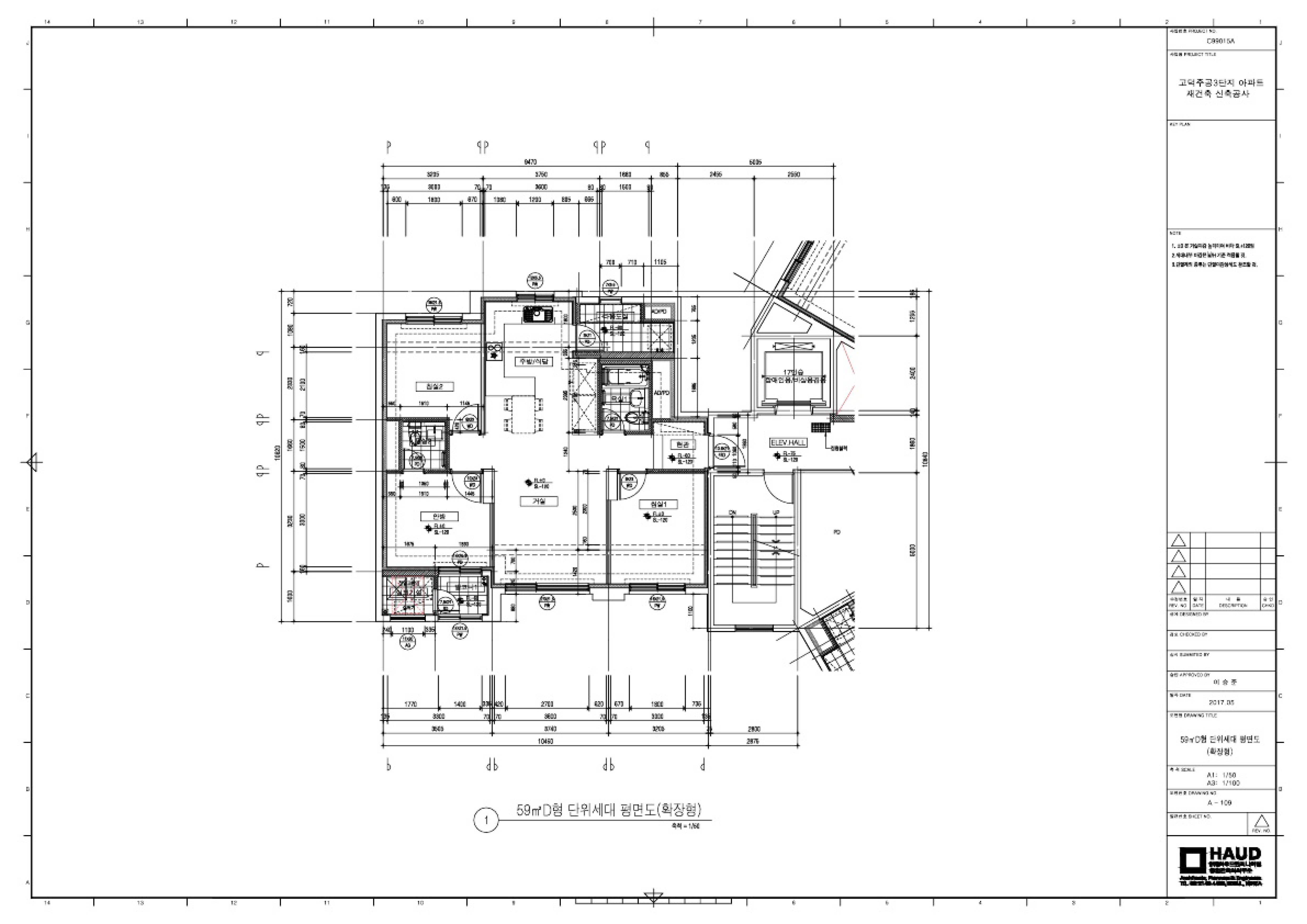
변경 단위세대 평면도 59㎡(25형)

변경 단위세대 평면도 59㎡(25형)
공급면적 (㎡) 81.05㎡ 81.40㎡ 81.56㎡ 80.86㎡
사업시행인가(변경)일자 2017-07-21
형별 A타입, B타입, C타입, D타입
세대수 1,220세대
전용면적 (㎡) 59.98㎡ 59.96㎡ 59.98㎡ 59.83㎡
공용면적 (㎡) 3.44㎡ 3.44㎡ 3.44㎡ 3.42㎡

단위세대평면도 이미지

단위세대평면도 이미지

단위세대평면도 이미지

단위세대평면도 이미지

단위세대평면도 이미지

단위세대평면도 이미지

단위세대평면도 이미지

단위세대평면도 이미지

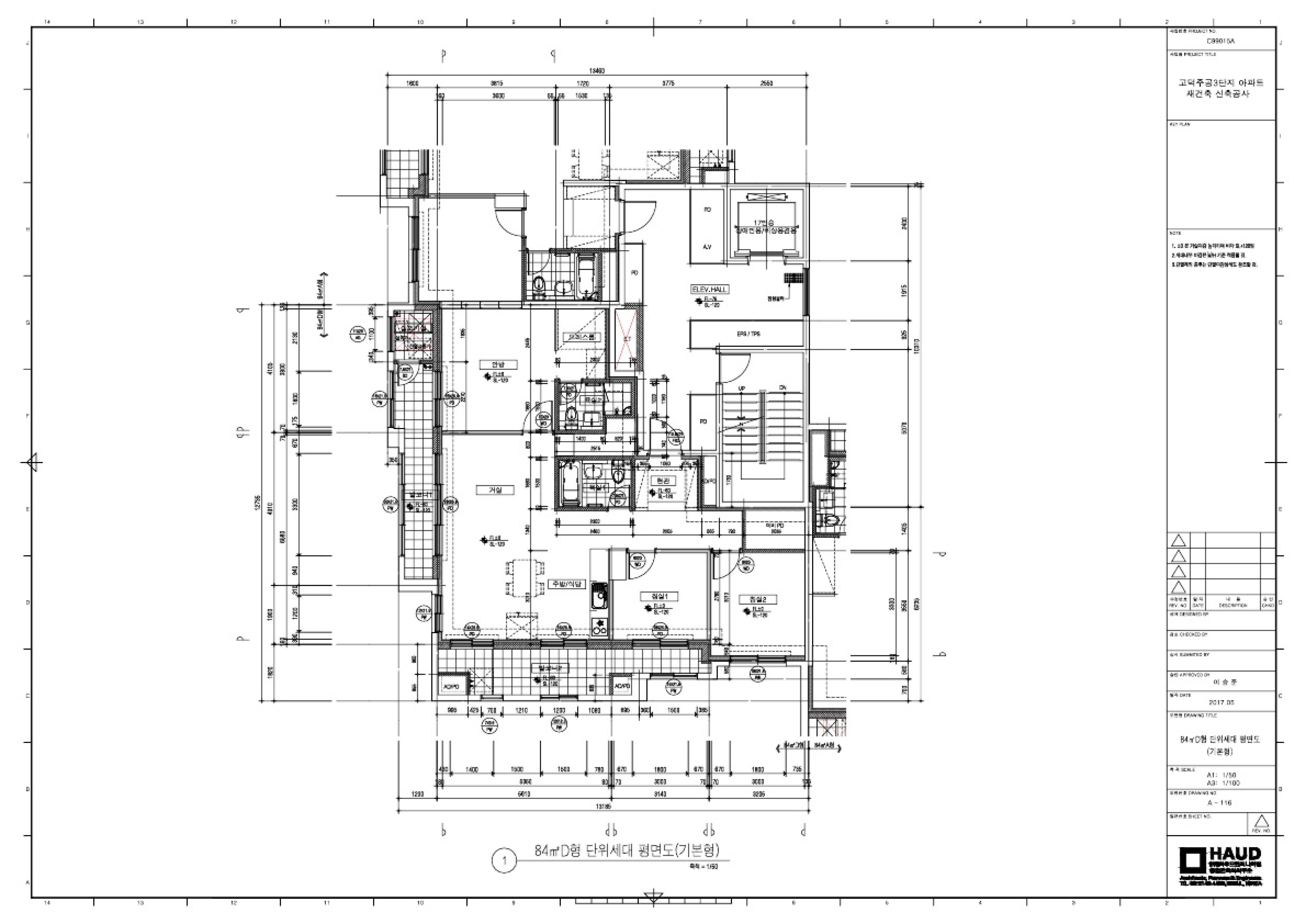
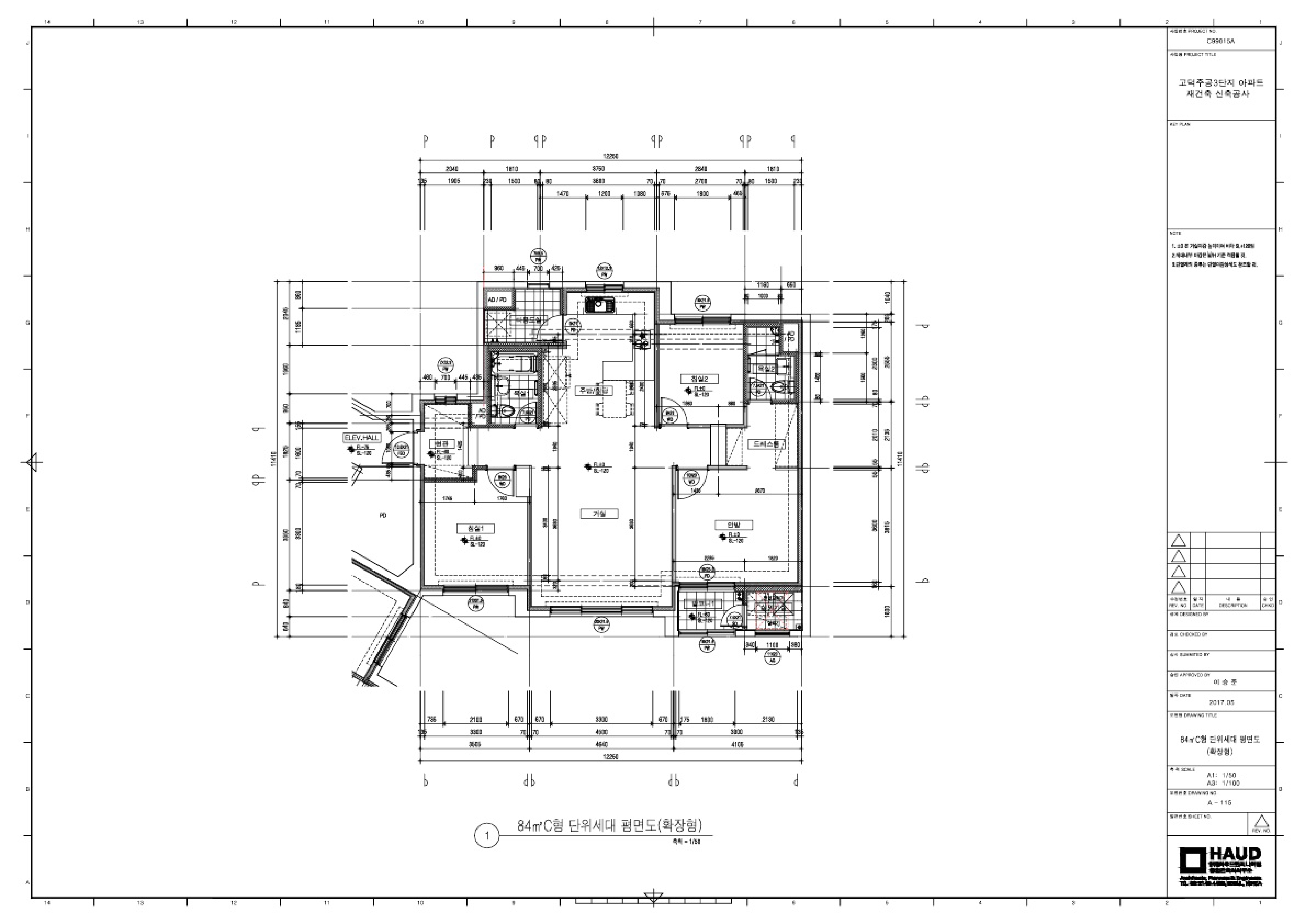
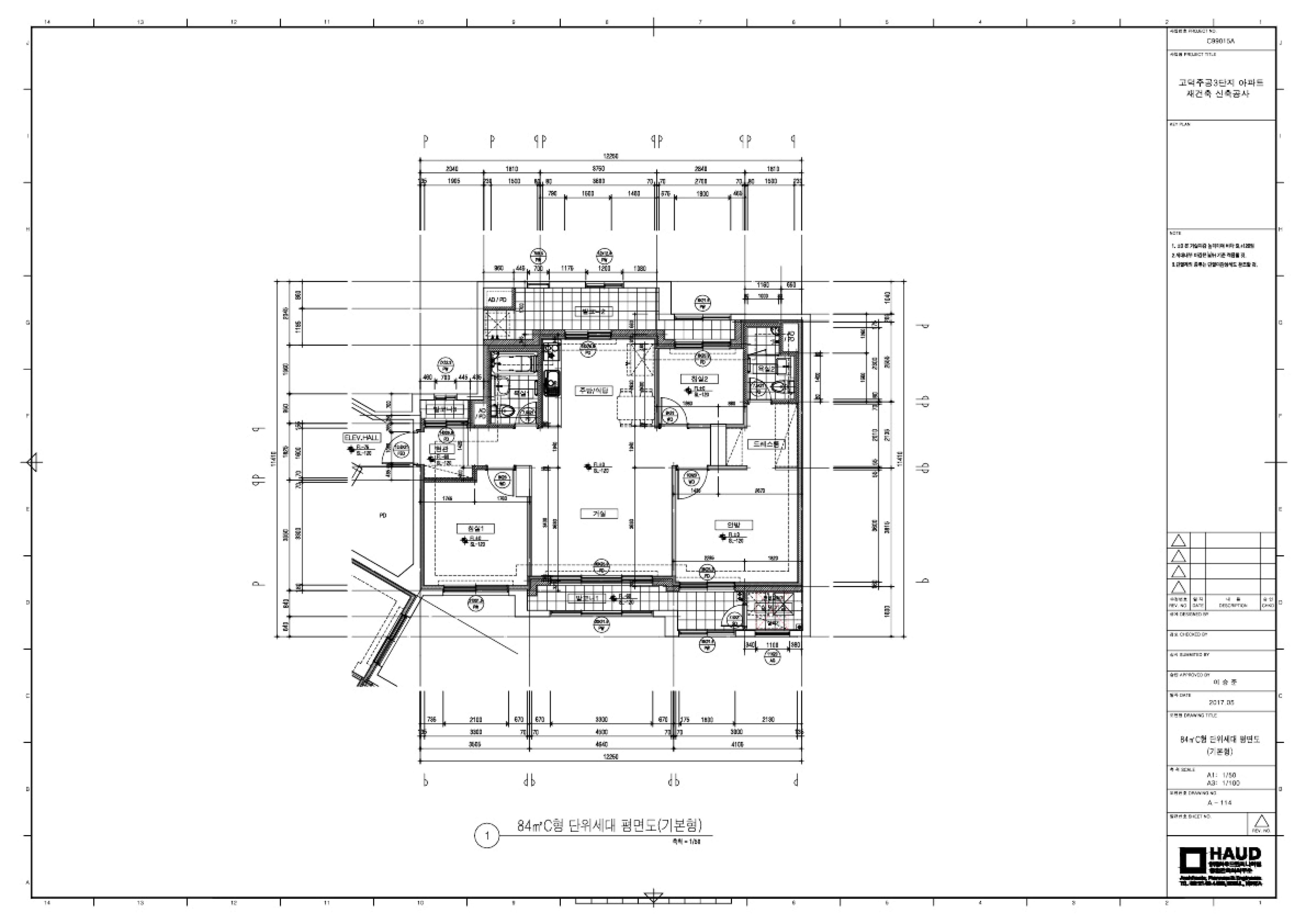
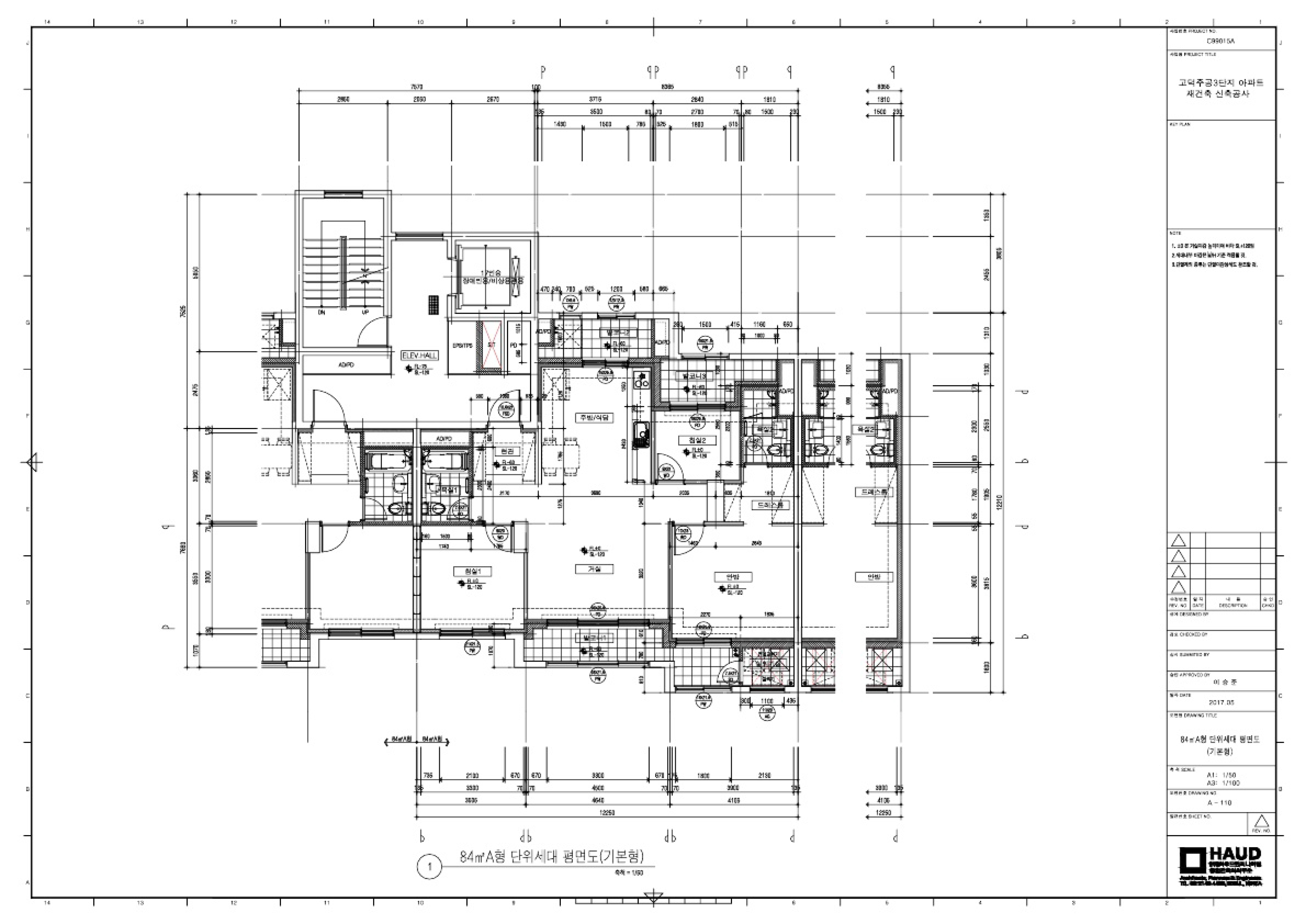
변경 단위세대 평면도 84㎡(34형)

변경 단위세대 평면도 84㎡(34형)
공급면적 (㎡) 113.98㎡ 114.35㎡ 114.14㎡ 114.58㎡
사업시행인가(변경)일자 2017-07-21
형별 A타입,B타입,C타입,D타입
세대수 2,676세대
전용면적 (㎡) 84.97㎡ 84.93㎡ 84.94㎡ 84.95㎡
공용면적 (㎡) 4.86㎡ 4.86㎡ 4.86㎡ 4.86㎡

단위세대평면도 이미지

단위세대평면도 이미지

단위세대평면도 이미지

단위세대평면도 이미지

단위세대평면도 이미지

단위세대평면도 이미지

단위세대평면도 이미지

단위세대평면도 이미지

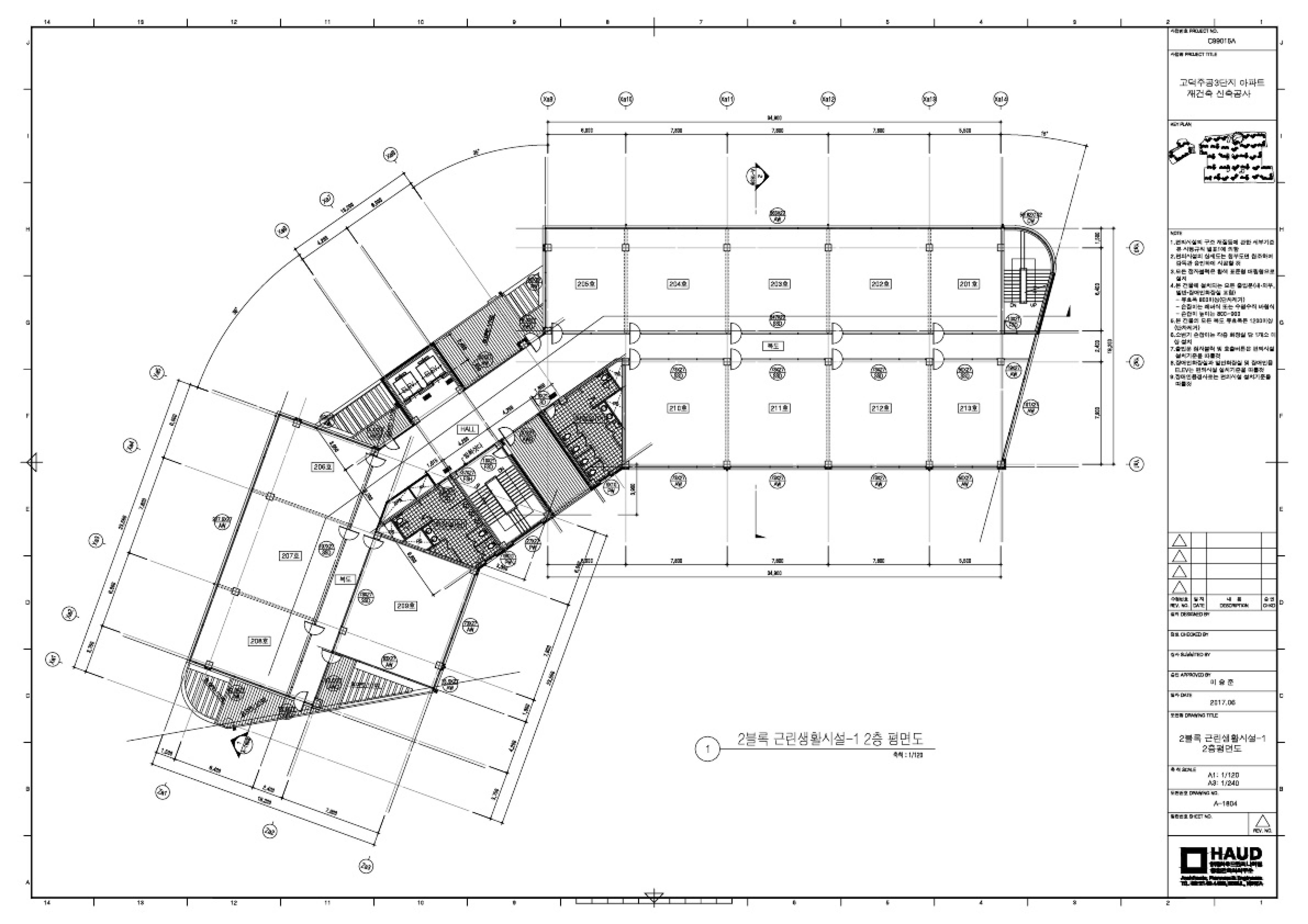
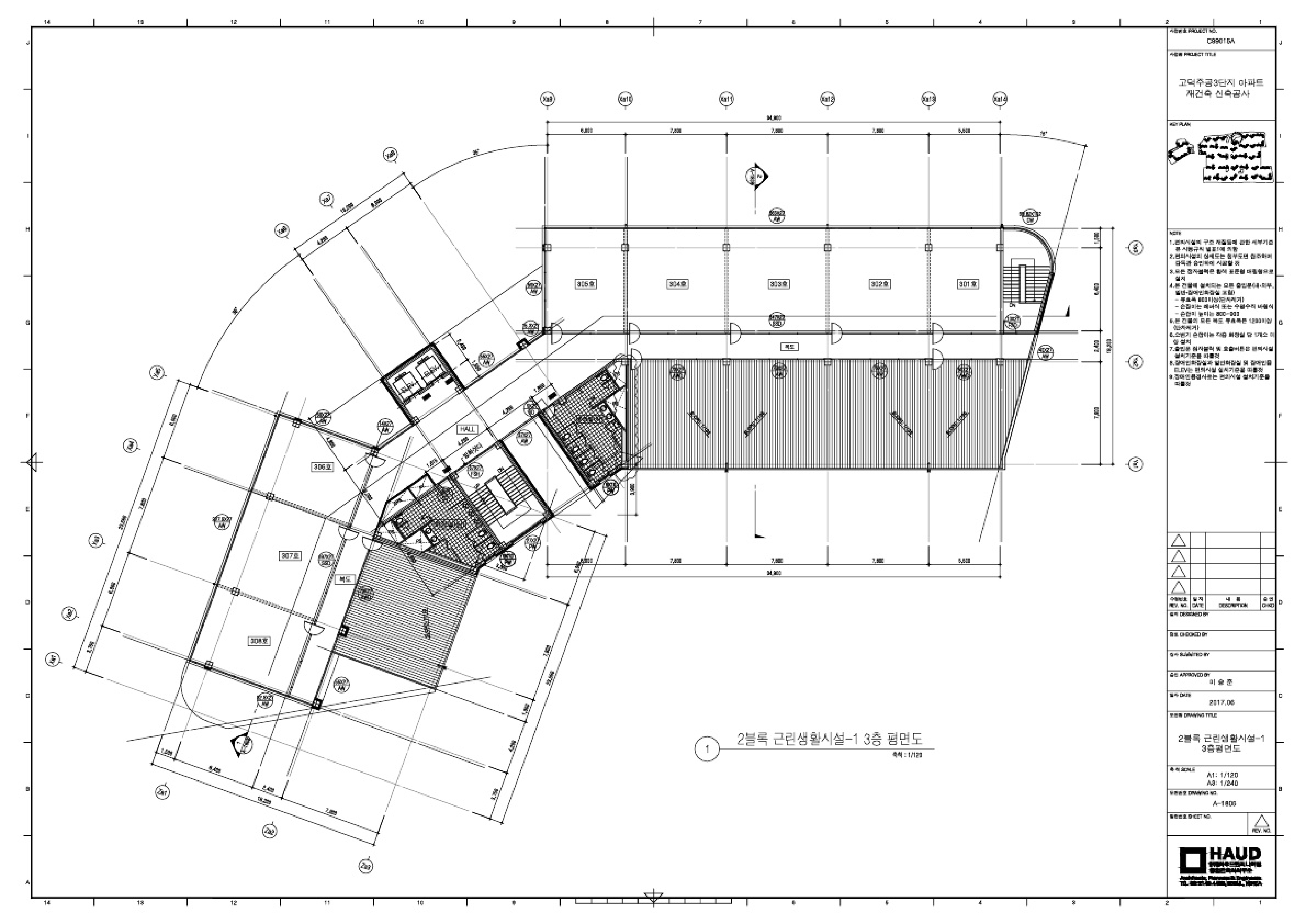
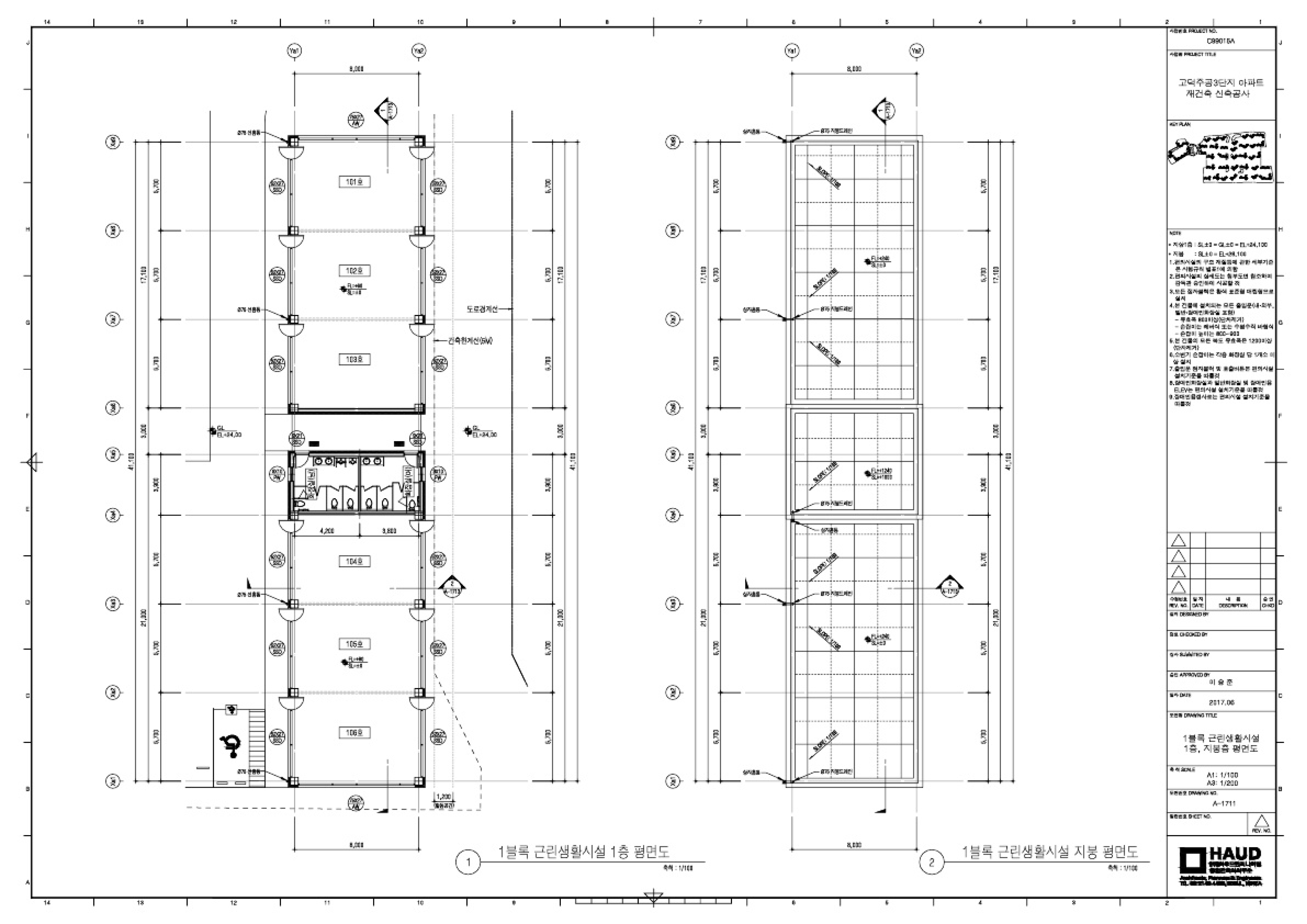
변경 단위세대 평면도(근생1)

변경 단위세대 평면도(근생1)
공급면적 (㎡) -
사업시행인가(변경)일자 2017-07-21
형별 1층,2층,3층
세대수 -
전용면적 (㎡) -
공용면적 (㎡) -

단위세대평면도 이미지

단위세대평면도 이미지

단위세대평면도 이미지

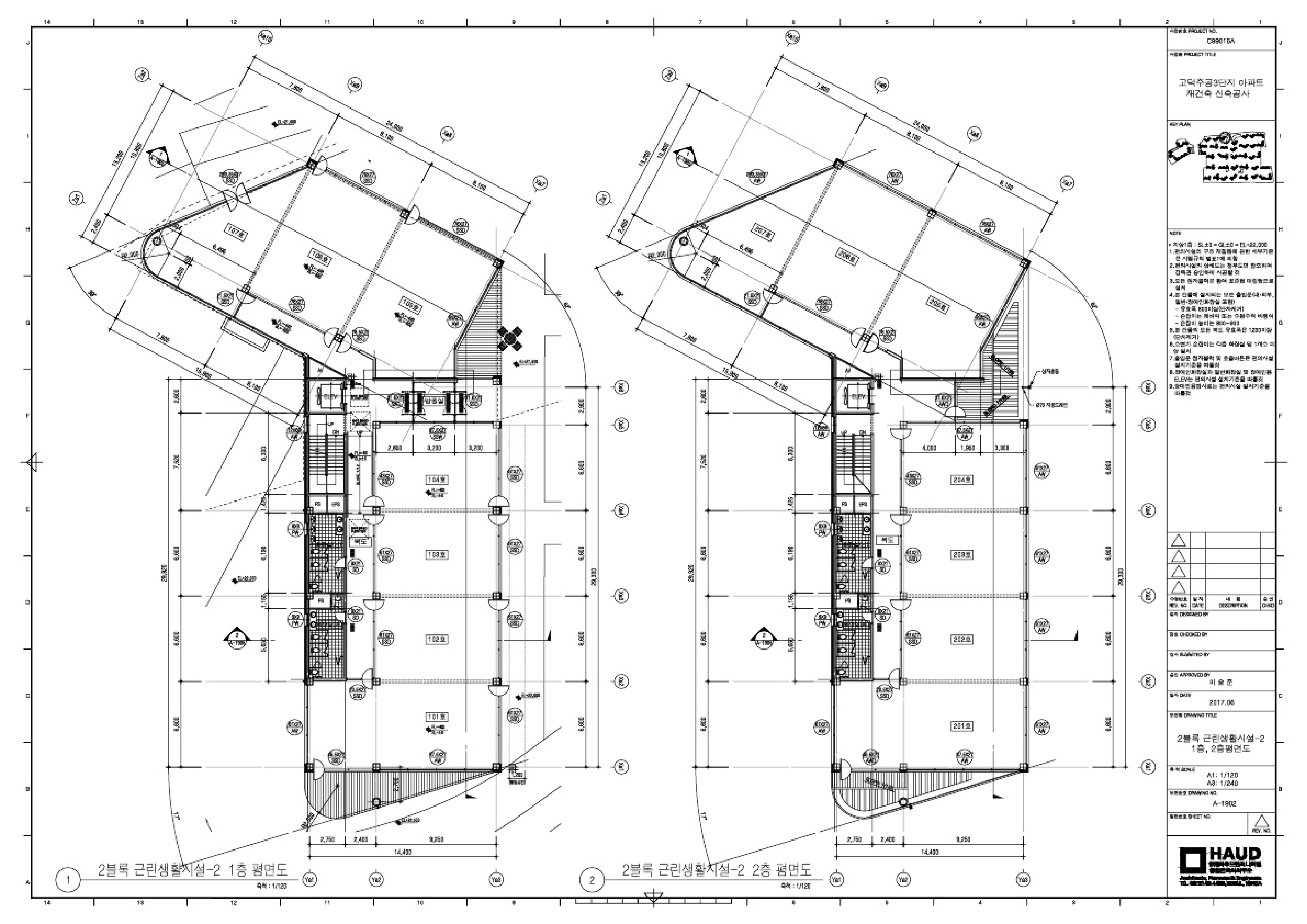
변경 단위세대 평면도(근생2)

변경 단위세대 평면도(근생2)
공급면적 (㎡) -
사업시행인가(변경)일자 2017-07-21
형별 1층, 2층
세대수 -
전용면적 (㎡) -
공용면적 (㎡) -

단위세대평면도 이미지

변경 단위세대 평면도(근생3)

변경 단위세대 평면도(근생3)
공급면적 (㎡) -
사업시행인가(변경)일자 2017-07-21
형별 1층
세대수 -
전용면적 (㎡) -
공용면적 (㎡) -

단위세대평면도 이미지

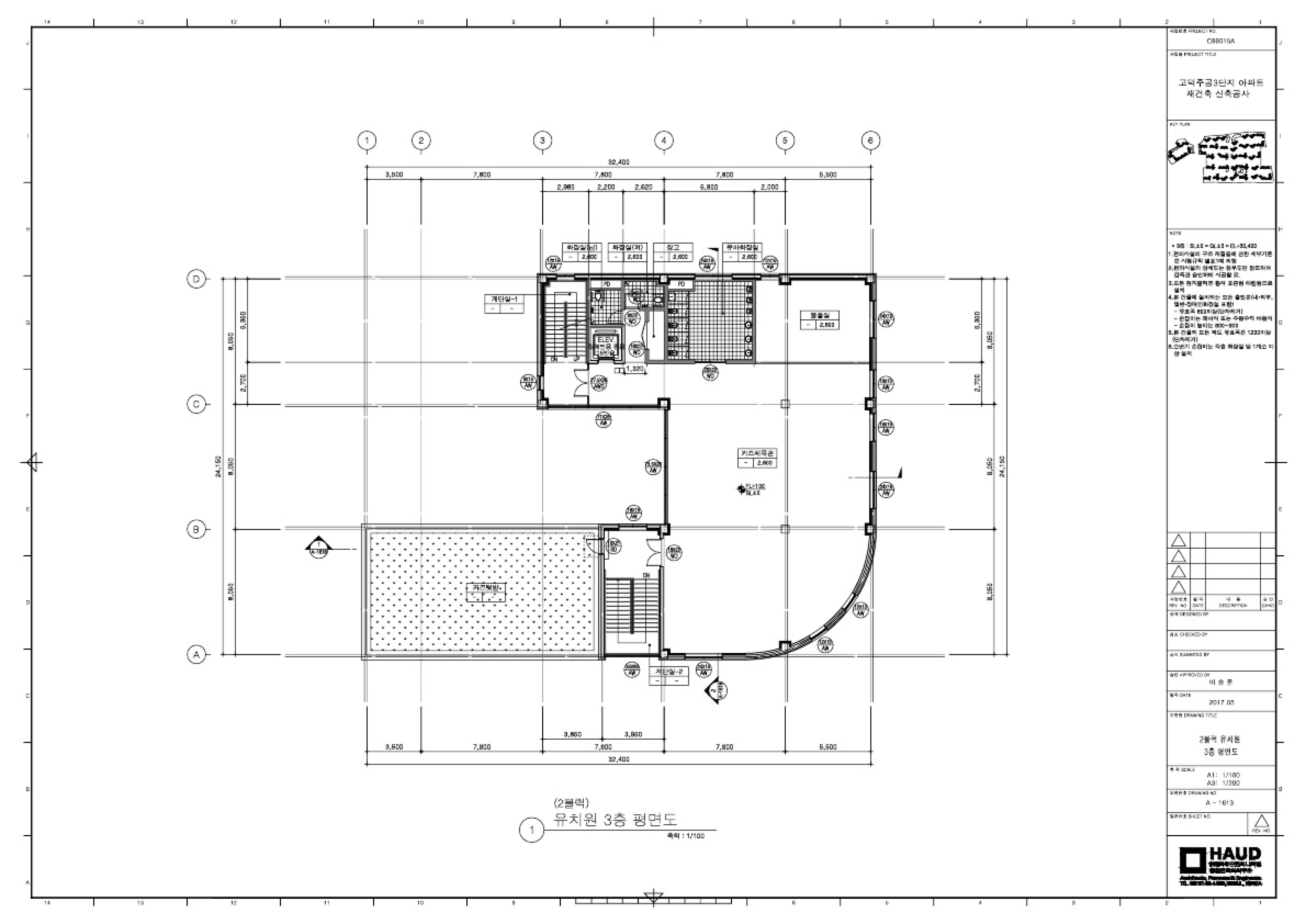
변경 단위세대 평면도(유치원)

변경 단위세대 평면도(유치원)
공급면적 (㎡) -
사업시행인가(변경)일자 2017-07-21
형별 3층
세대수 -
전용면적 (㎡) -
공용면적 (㎡) -

단위세대평면도 이미지

단위세대평면도 이미지

단위세대평면도 이미지

사업추진 단계별
공개자료 조회

툴팁 아이콘
원하시는 사업 추진단계에 등록된 자료들을 조회해 보실 수 있습니다.