단위세대평면도
정비사업 추진과정을 유리알처럼 투명하게 공개

천호2 주택재건축정비사업조합-단위세대평면도

천호2 주택재건축정비사업조합-단위세대평면도
공급면적 (㎡) 69.2691
사업시행인가(변경)일자 2020-04-09
형별 52A
세대수 32
전용면적 (㎡) 52.5268
공용면적 (㎡) 16.7423

단위세대평면도 이미지

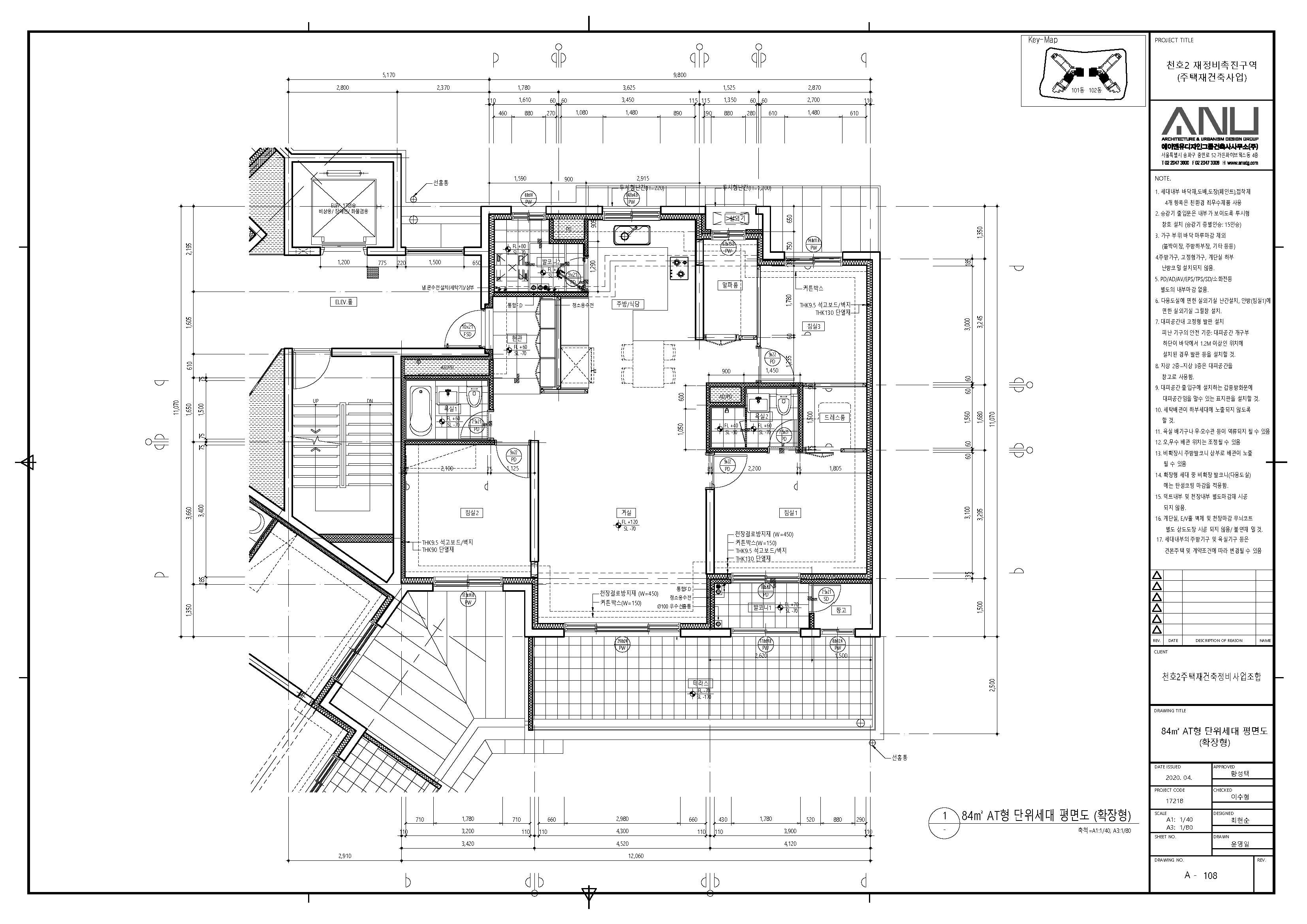
천호2 주택재건축정비사업조합-단위세대평면도

천호2 주택재건축정비사업조합-단위세대평면도
공급면적 (㎡) 69.2691
사업시행인가(변경)일자 2020-04-09
형별 52 AT
세대수 2
전용면적 (㎡) 52.5268
공용면적 (㎡) 16.7423

단위세대평면도 이미지

천호2 주택재건축정비사업조합-단위세대평면도

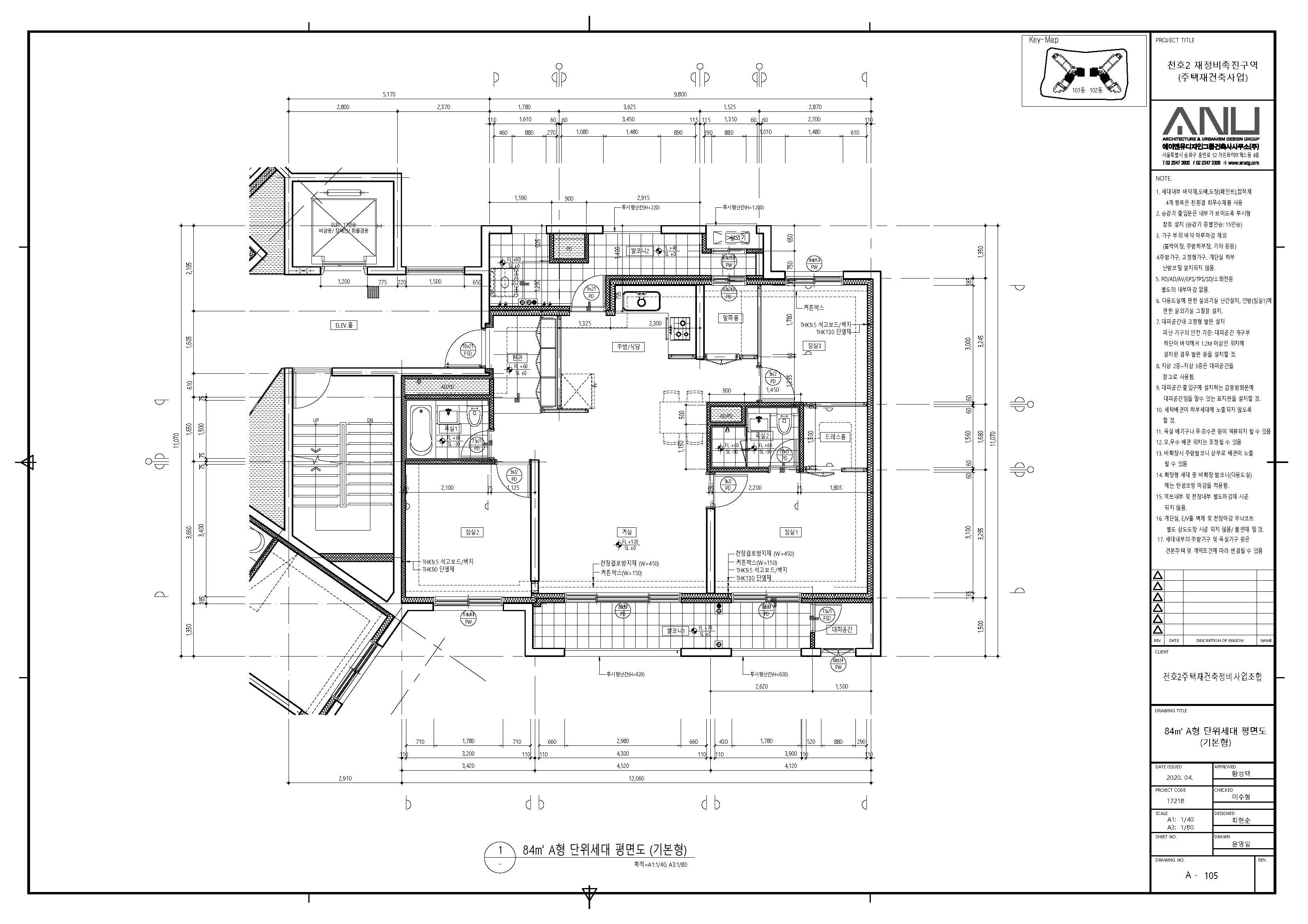
천호2 주택재건축정비사업조합-단위세대평면도
공급면적 (㎡) 79.7567
사업시행인가(변경)일자 2020-04-09
형별 59 A
세대수 20
전용면적 (㎡) 59.9777
공용면적 (㎡) 19.7790

단위세대평면도 이미지

단위세대평면도 이미지

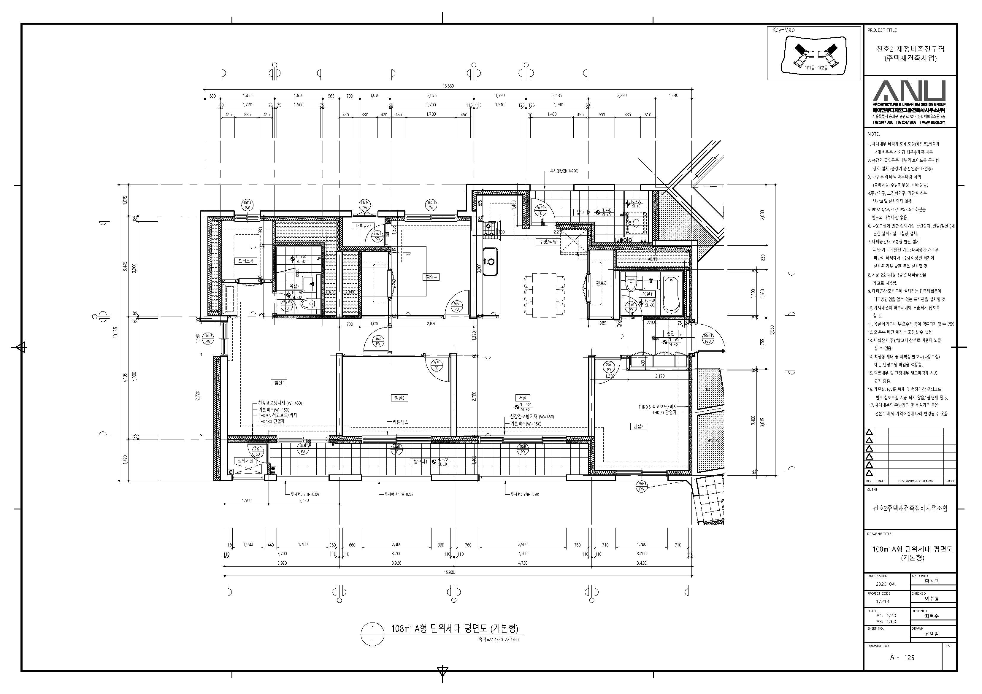
천호2 주택재건축정비사업조합-단위세대평면도

천호2 주택재건축정비사업조합-단위세대평면도
공급면적 (㎡) 111.1374
사업시행인가(변경)일자 2020-04-09
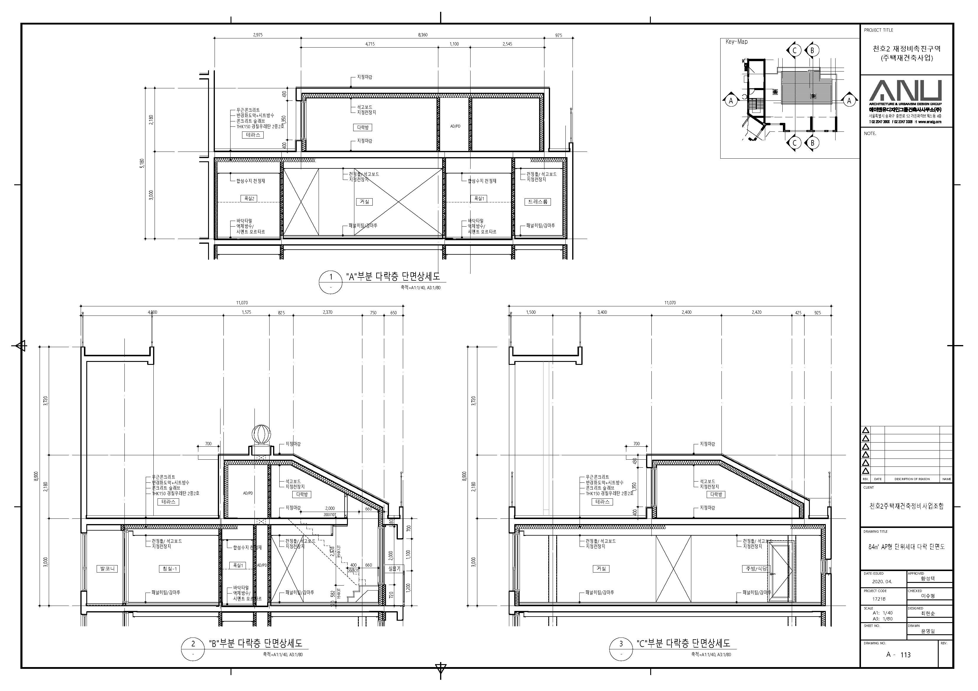
형별 84 A
세대수 66
전용면적 (㎡) 84.9627
공용면적 (㎡) 26.1747

단위세대평면도 이미지

단위세대평면도 이미지

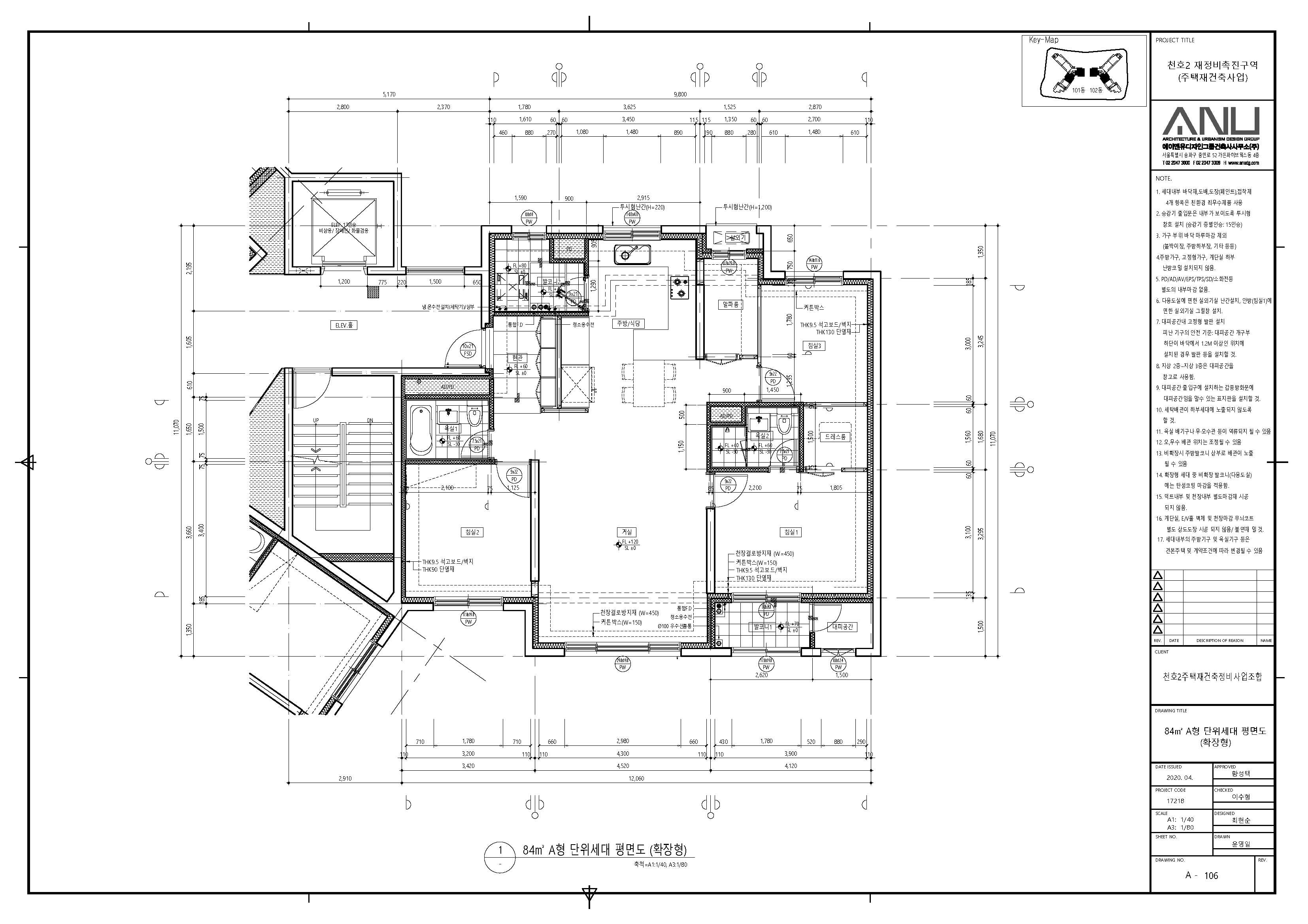
천호2 주택재건축정비사업조합-단위세대평면도

천호2 주택재건축정비사업조합-단위세대평면도
공급면적 (㎡) 111.1374
사업시행인가(변경)일자 2020-04-09
형별 84 AT
세대수 4
전용면적 (㎡) 84.9627
공용면적 (㎡) 26.1747

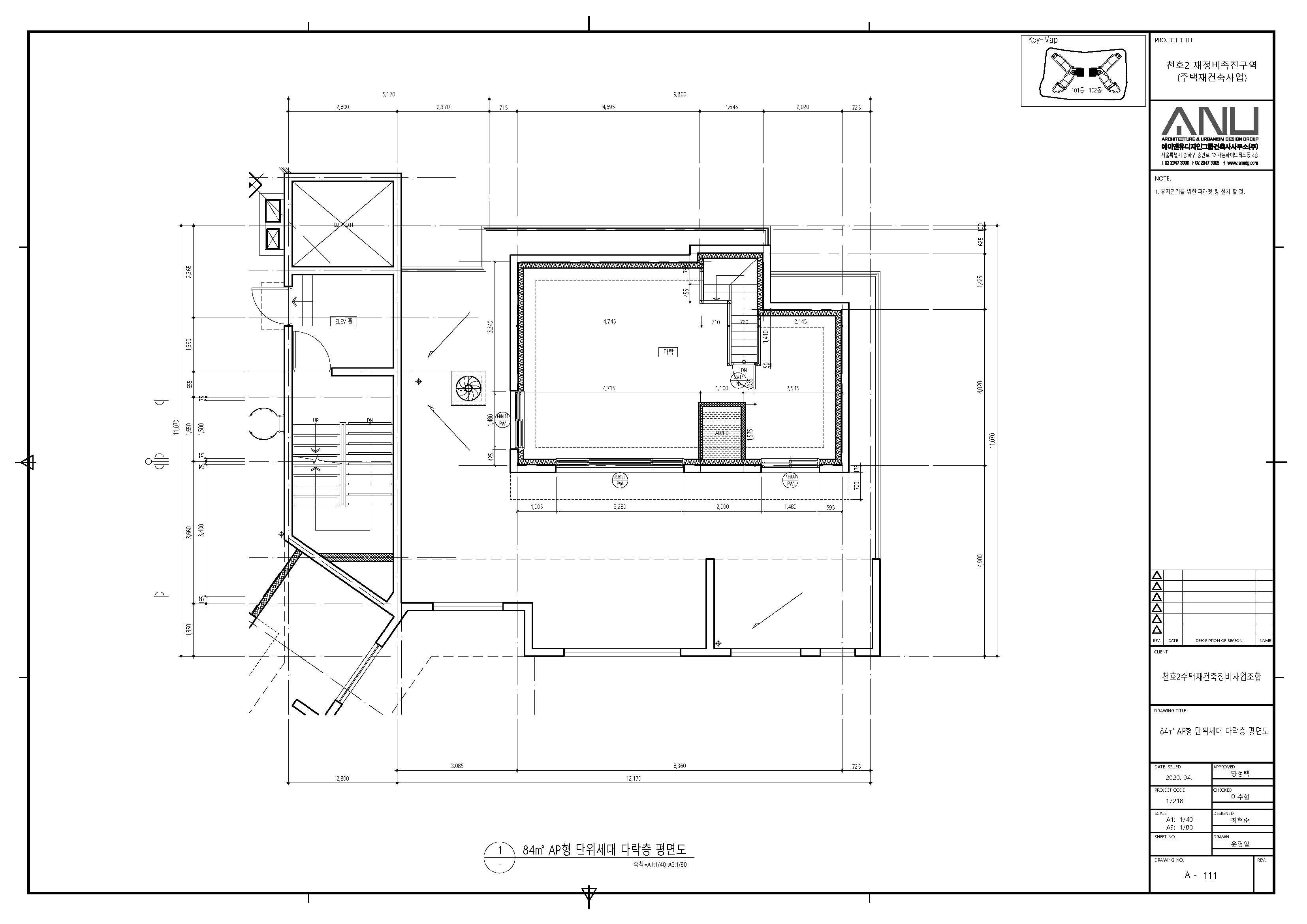
단위세대평면도 이미지

단위세대평면도 이미지

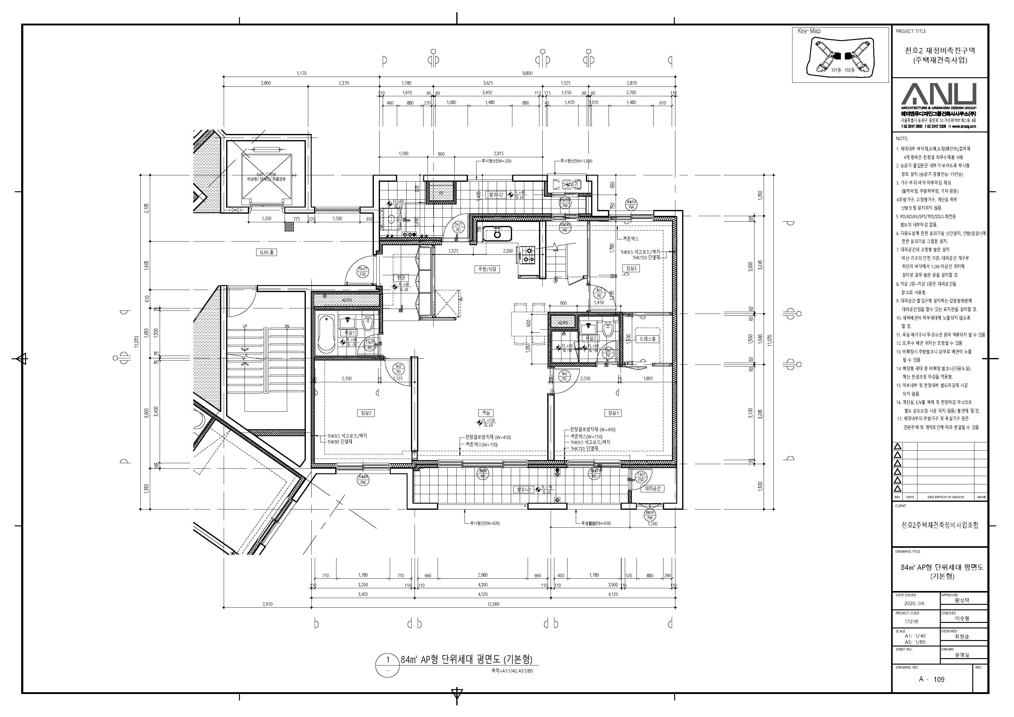
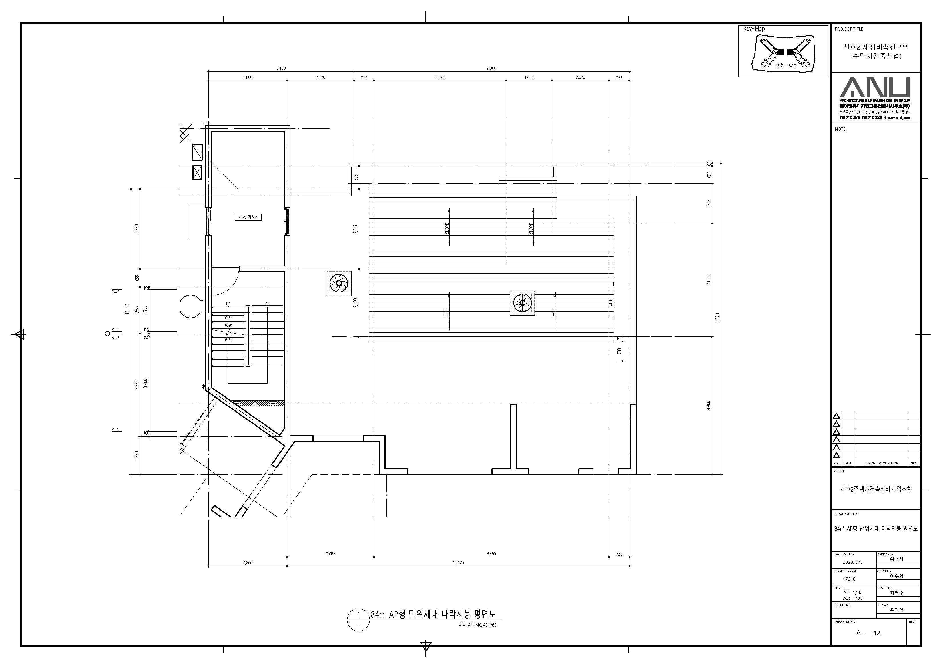
천호2 주택재건축정비사업조합-단위세대평면도

천호2 주택재건축정비사업조합-단위세대평면도
공급면적 (㎡) 111.1374
사업시행인가(변경)일자 2020-04-09
형별 84 AP
세대수 2
전용면적 (㎡) 84.9627
공용면적 (㎡) 26.1747

단위세대평면도 이미지

단위세대평면도 이미지

단위세대평면도 이미지

단위세대평면도 이미지

단위세대평면도 이미지

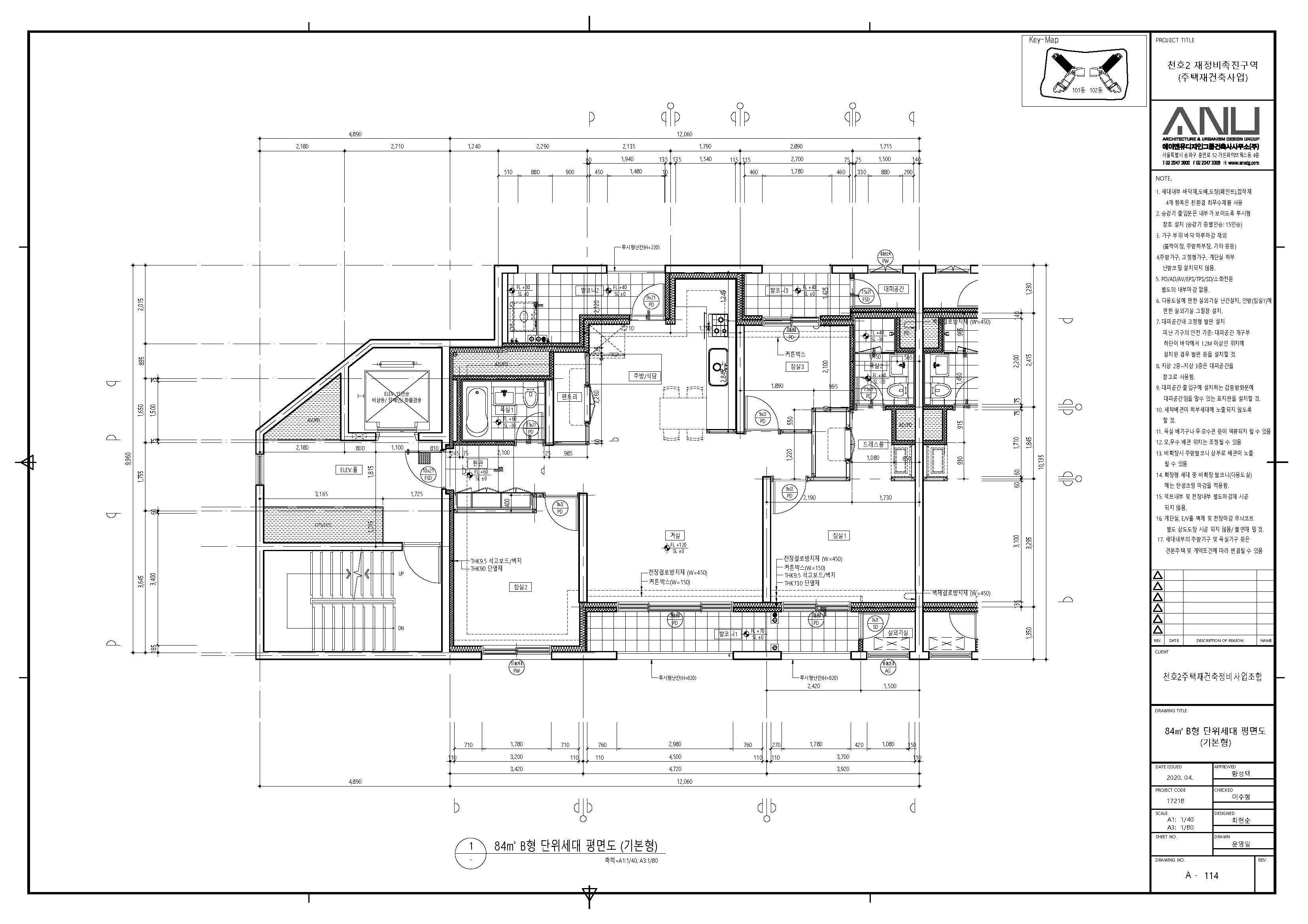
천호2 주택재건축정비사업조합-단위세대평면도

천호2 주택재건축정비사업조합-단위세대평면도
공급면적 (㎡) 111.1379
사업시행인가(변경)일자 2020-04-09
형별 84 B
세대수 40
전용면적 (㎡) 84.9914
공용면적 (㎡) 26.1825

단위세대평면도 이미지

단위세대평면도 이미지

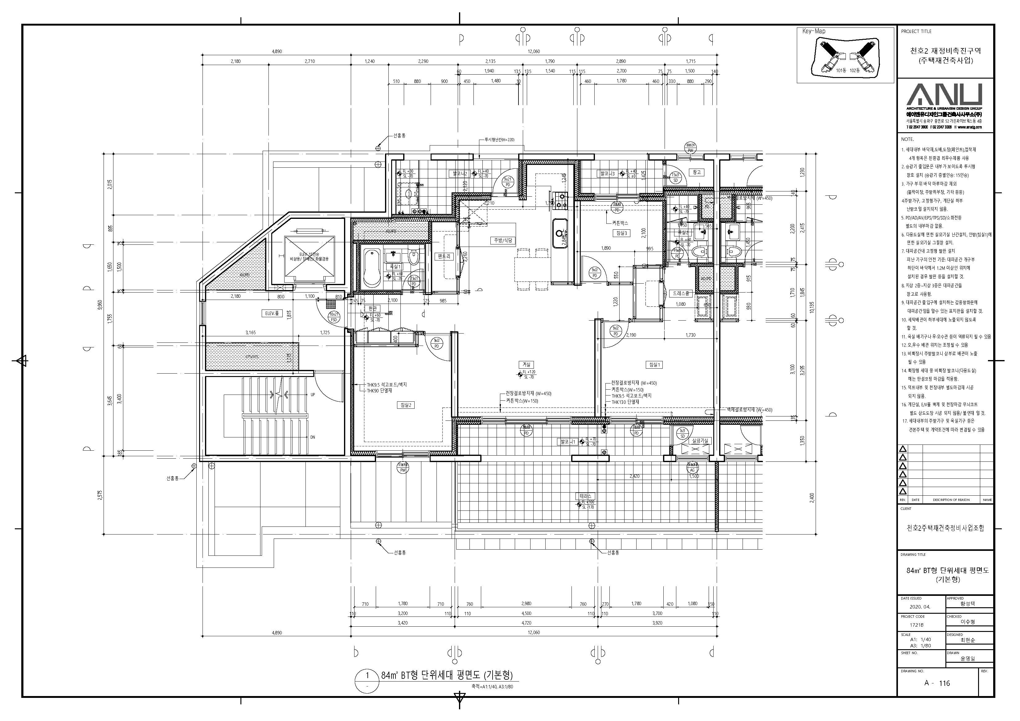
천호2 주택재건축정비사업조합-단위세대평면도

천호2 주택재건축정비사업조합-단위세대평면도
공급면적 (㎡) 111.1739
사업시행인가(변경)일자 2020-04-09
형별 84 BT
세대수 4
전용면적 (㎡) 84.9914
공용면적 (㎡) 26.1825

단위세대평면도 이미지

단위세대평면도 이미지

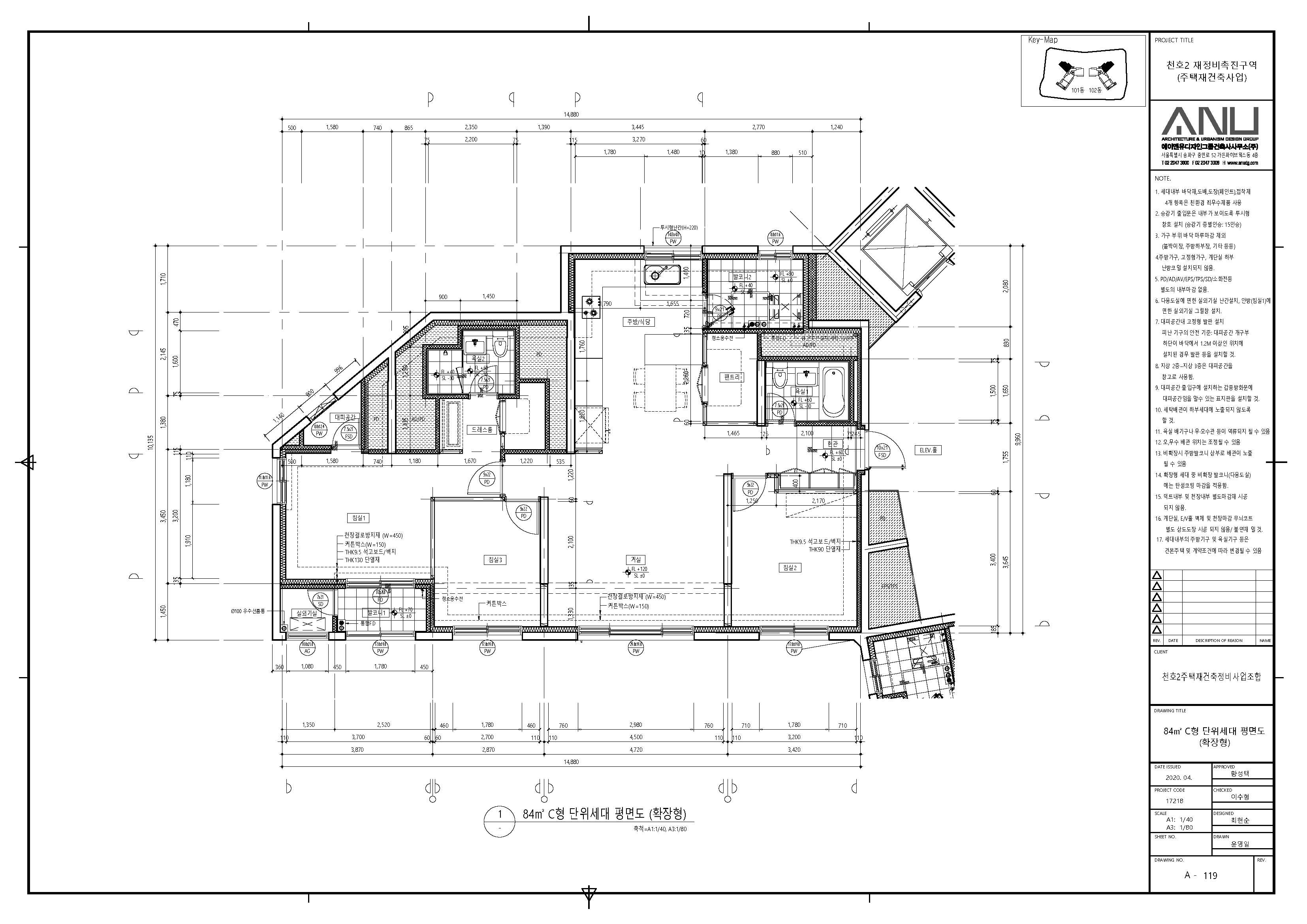
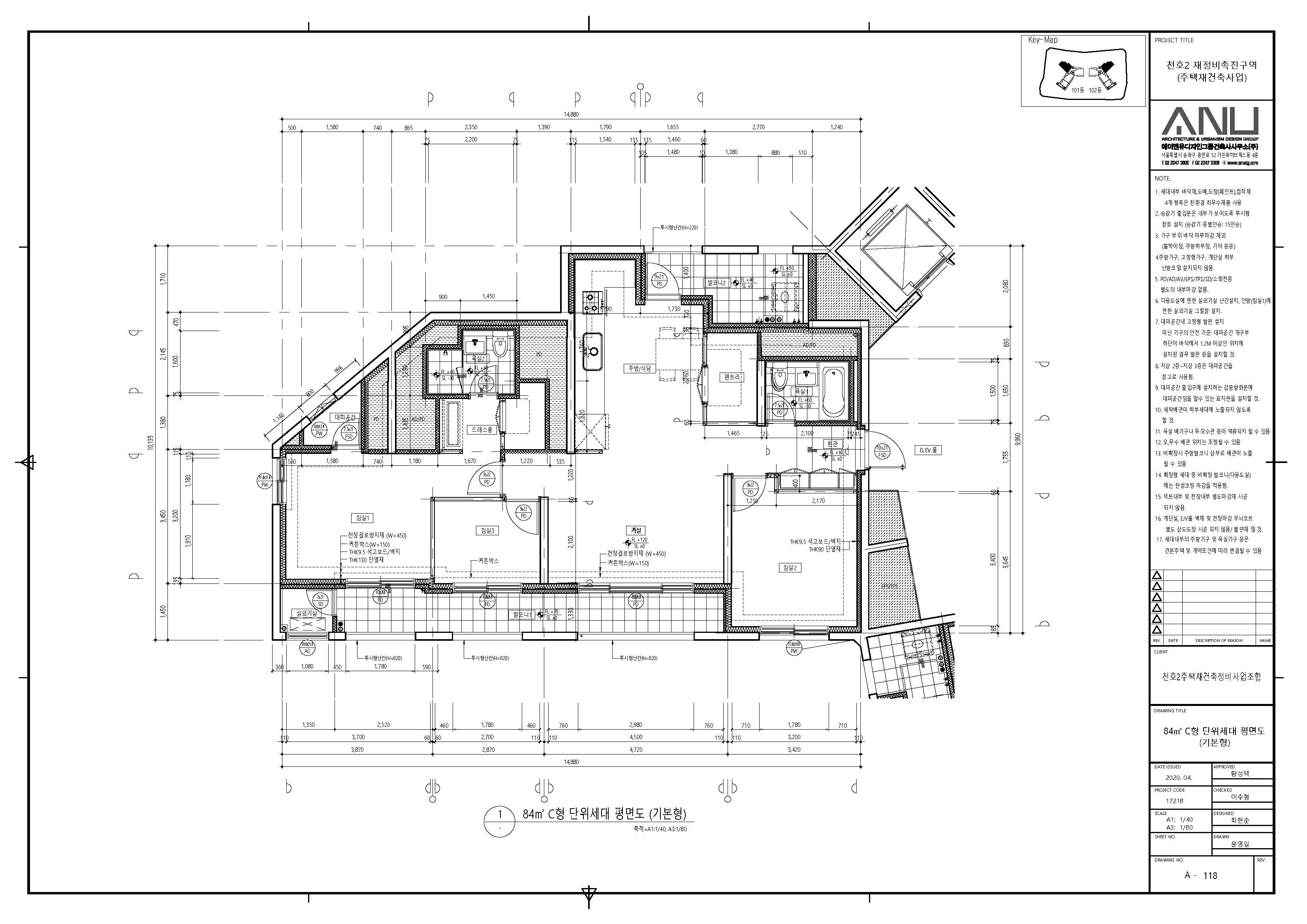
천호2 주택재건축정비사업조합-단위세대평면도

천호2 주택재건축정비사업조합-단위세대평면도
공급면적 (㎡) 112.2034
사업시행인가(변경)일자 2020-04-09
형별 84 C
세대수 6
전용면적 (㎡) 84.9893
공용면적 (㎡) 27.2141

단위세대평면도 이미지

단위세대평면도 이미지

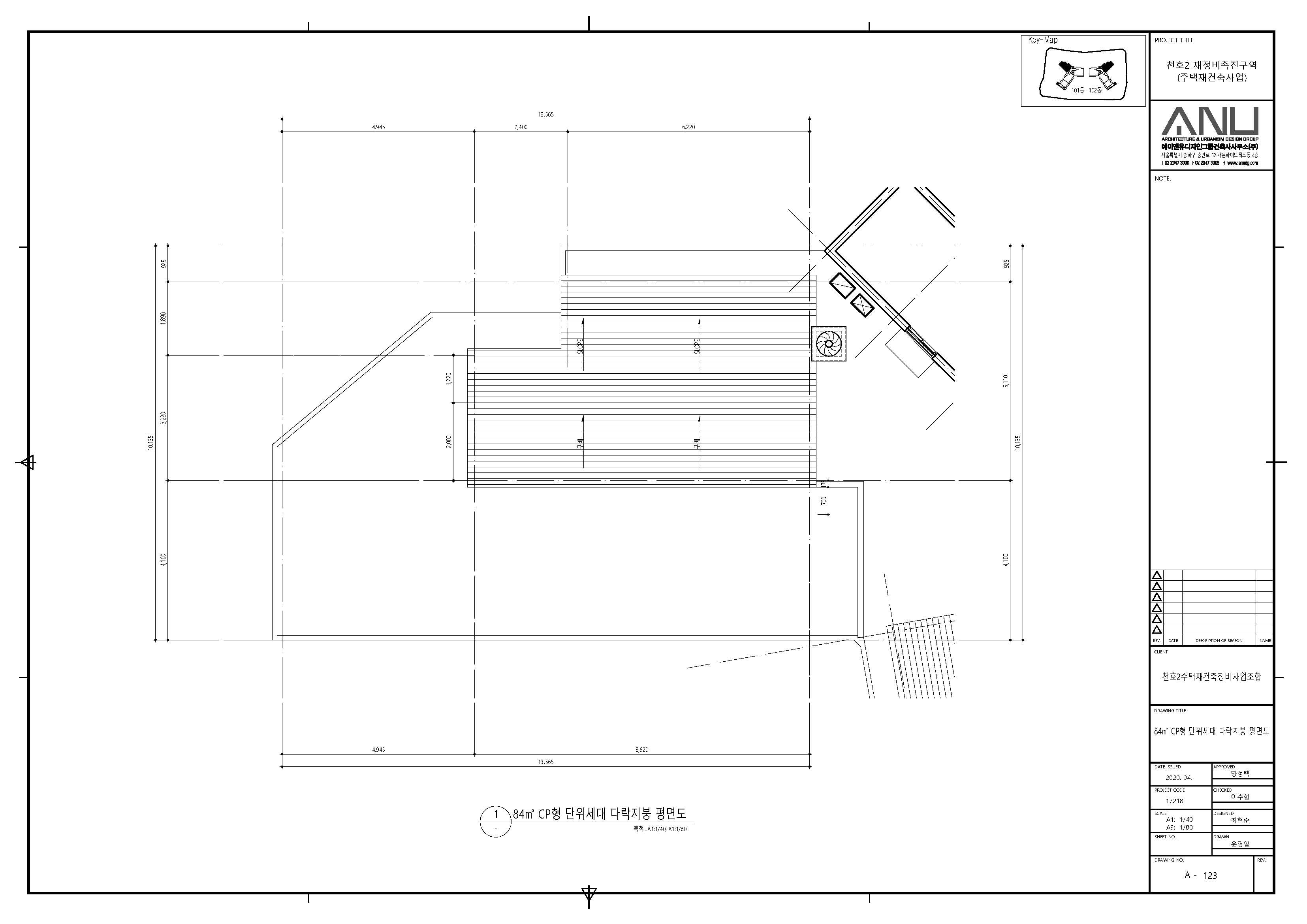
천호2 주택재건축정비사업조합-단위세대평면도

천호2 주택재건축정비사업조합-단위세대평면도
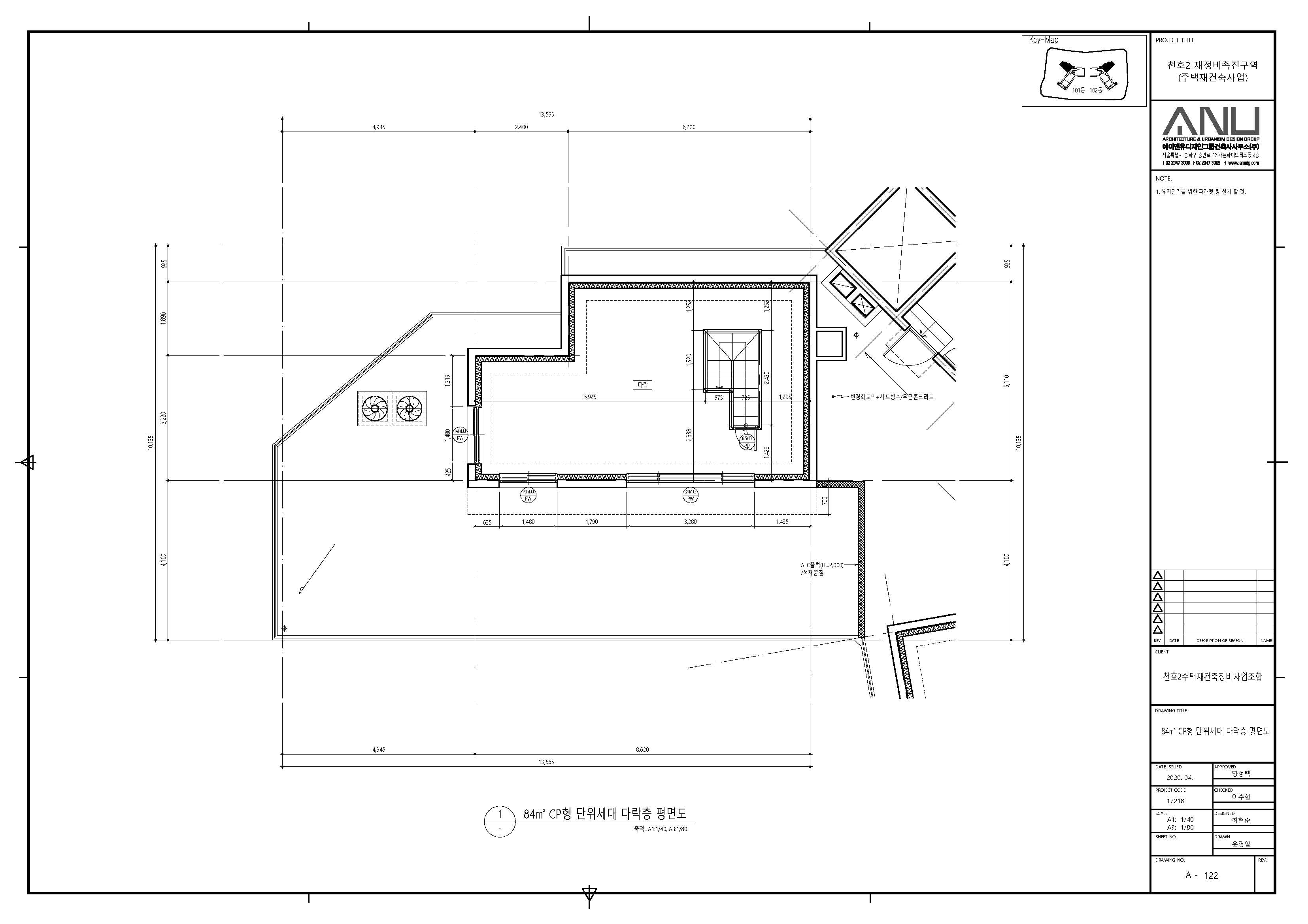
공급면적 (㎡) 112.2034
사업시행인가(변경)일자 2020-04-09
형별 84 CP
세대수 2
전용면적 (㎡) 84.9893
공용면적 (㎡) 27.2141

단위세대평면도 이미지

단위세대평면도 이미지

단위세대평면도 이미지

단위세대평면도 이미지

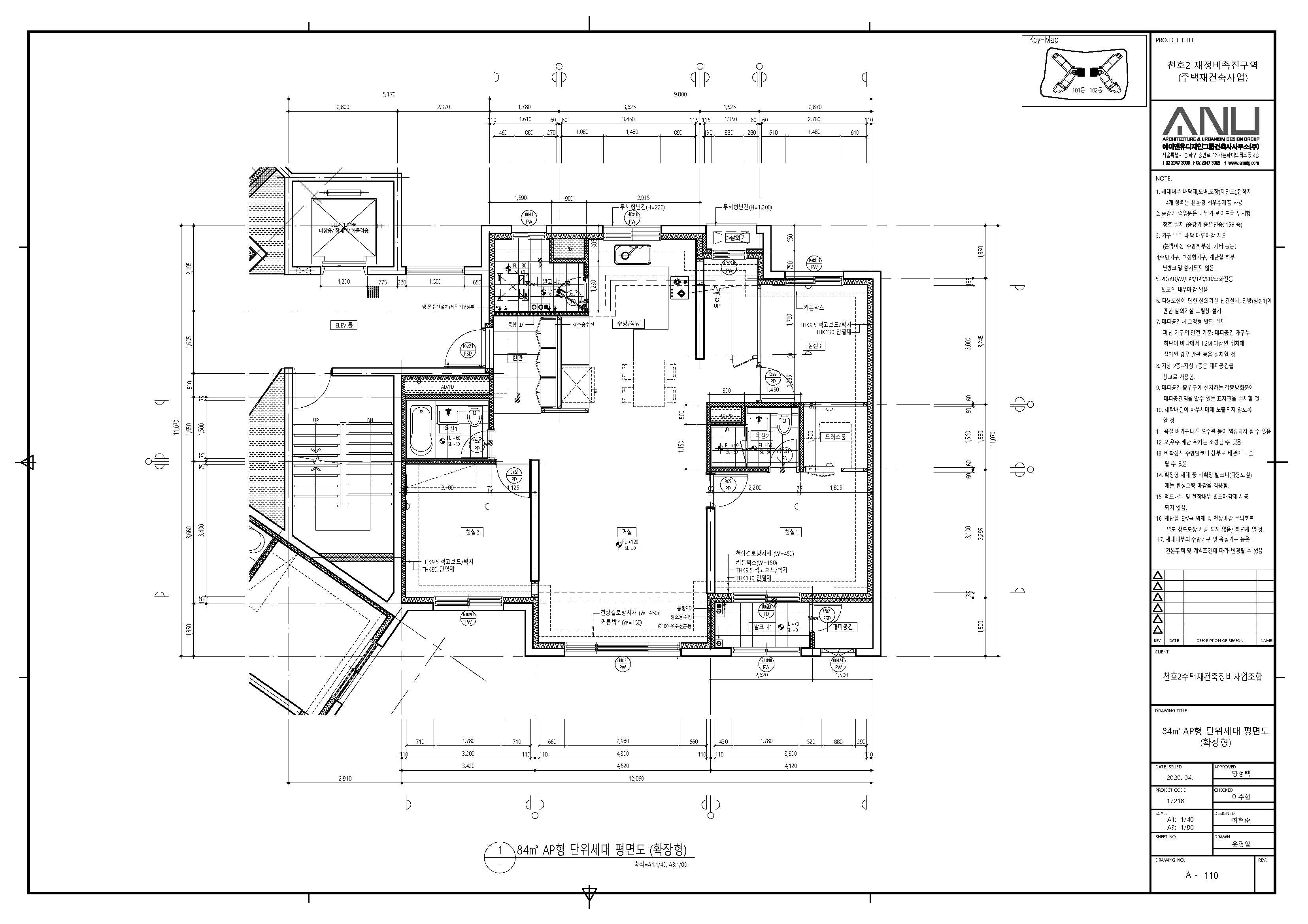
천호2 주택재건축정비사업조합-단위세대평면도

천호2 주택재건축정비사업조합-단위세대평면도
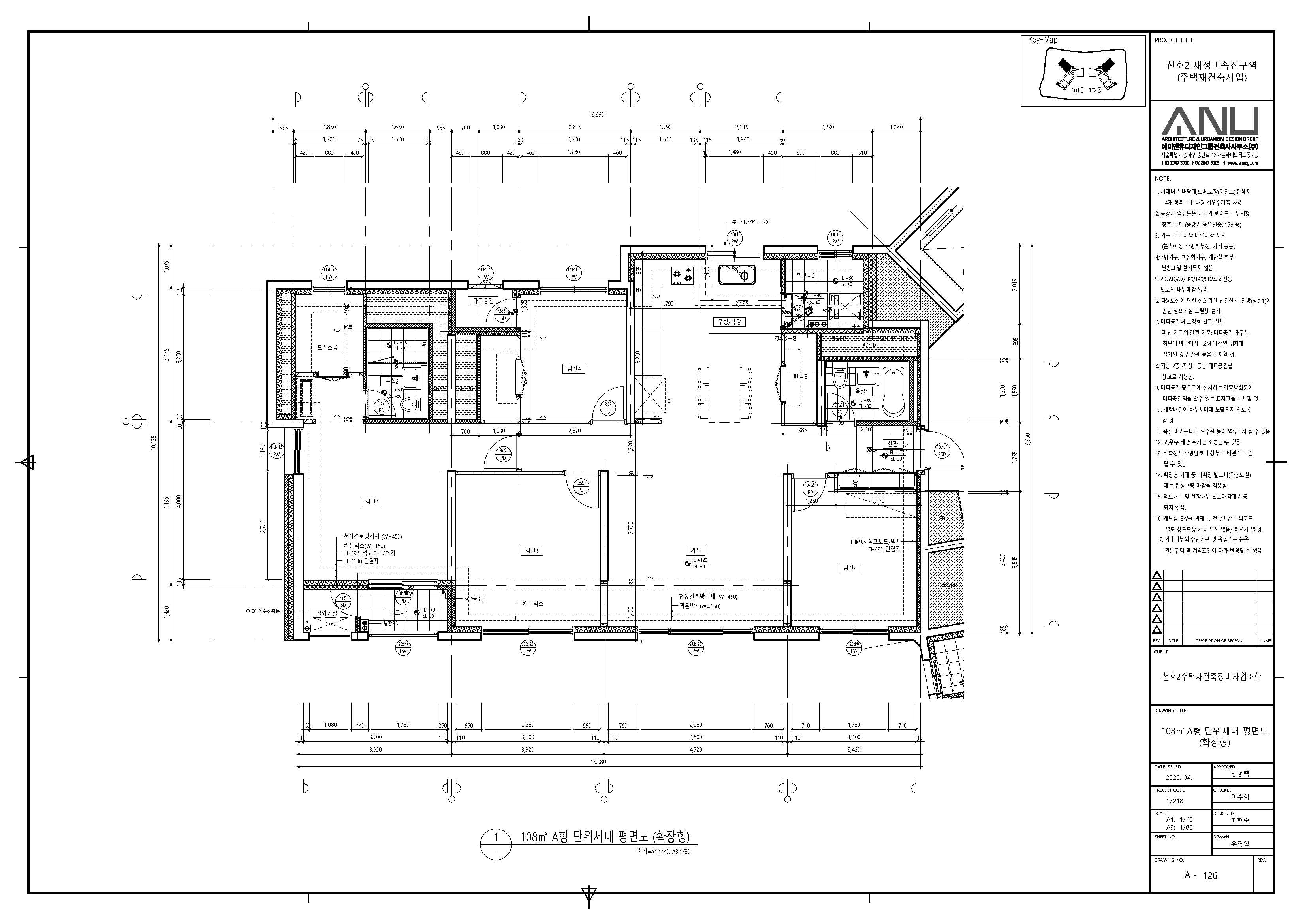
공급면적 (㎡) 142.3939
사업시행인가(변경)일자 2020-04-09
형별 108 A
세대수 4
전용면적 (㎡) 108.9568
공용면적 (㎡) 33.4371

단위세대평면도 이미지

단위세대평면도 이미지

천호2 주택재건축정비사업조합-단위세대평면도

천호2 주택재건축정비사업조합-단위세대평면도
공급면적 (㎡) 142.3939
사업시행인가(변경)일자 2020-04-09
형별 108 AT
세대수 2
전용면적 (㎡) 108.9568
공용면적 (㎡) 33.4371

단위세대평면도 이미지

단위세대평면도 이미지

천호2 주택재건축정비사업조합-단위세대평면도

천호2 주택재건축정비사업조합-단위세대평면도
공급면적 (㎡) 142.7752
사업시행인가(변경)일자 2020-04-09
형별 108 BT
세대수 2
전용면적 (㎡) 108.9484
공용면적 (㎡) 33.8268

단위세대평면도 이미지

단위세대평면도 이미지

천호2 주택재건축정비사업조합-단위세대평면도

천호2 주택재건축정비사업조합-단위세대평면도
공급면적 (㎡) 142.7752
사업시행인가(변경)일자 2020-04-09
형별 108 BT
세대수 2
전용면적 (㎡) 108.9484
공용면적 (㎡) 33.8268

단위세대평면도 이미지

단위세대평면도 이미지

사업추진 단계별
공개자료 조회

툴팁 아이콘
원하시는 사업 추진단계에 등록된 자료들을 조회해 보실 수 있습니다.