단위세대평면도
정비사업 추진과정을 유리알처럼 투명하게 공개

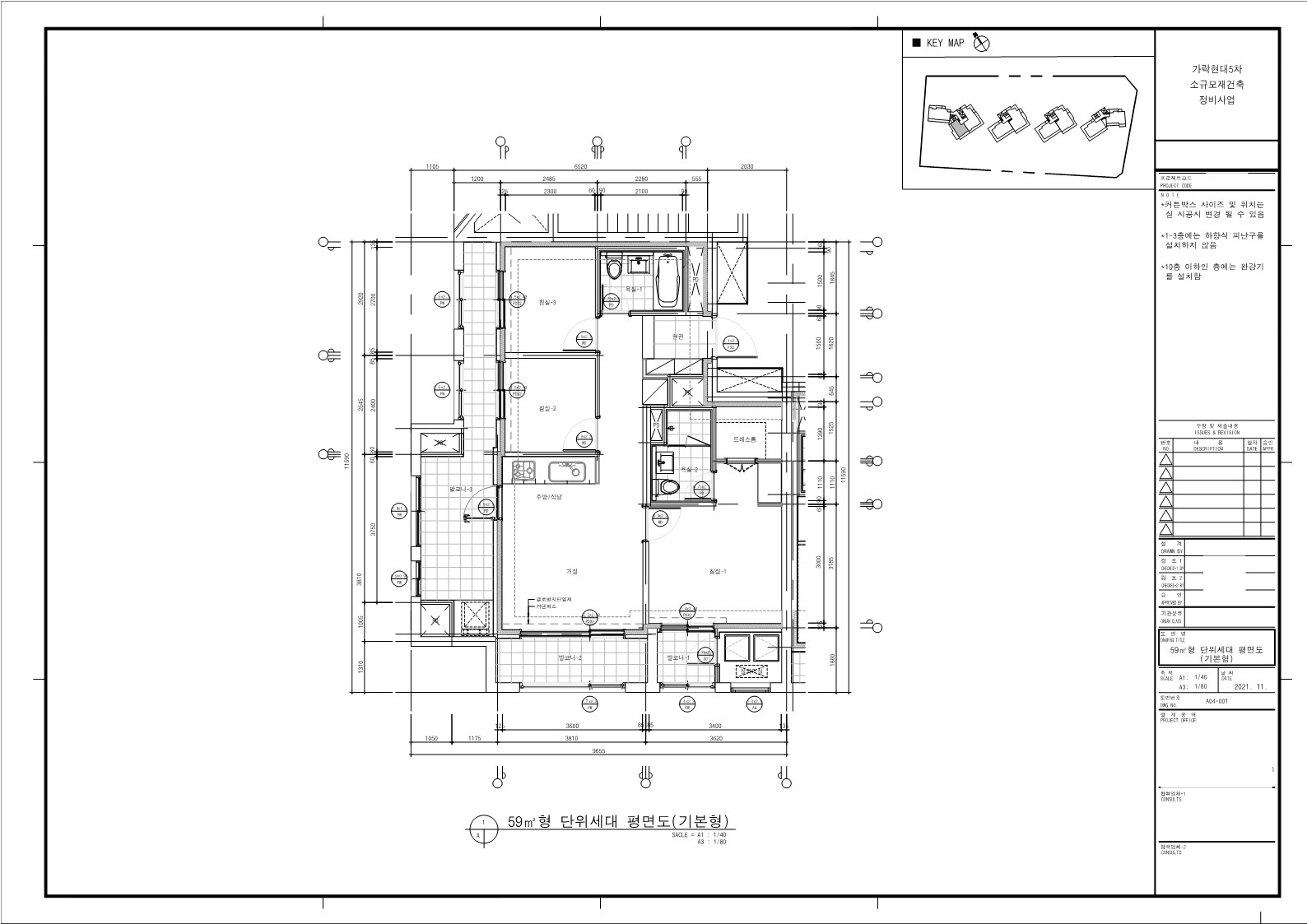
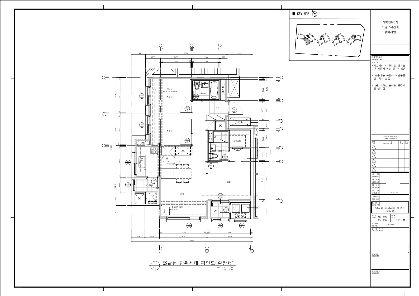
건축시설계획-단위세대평면도(59형)

건축시설계획-단위세대평면도(59형)
공급면적 (㎡) 79.6216
사업시행인가(변경)일자 2022-01-18
형별 59
세대수 13
전용면적 (㎡) 59.9523
공용면적 (㎡) 72.3177

단위세대평면도 이미지

단위세대평면도 이미지

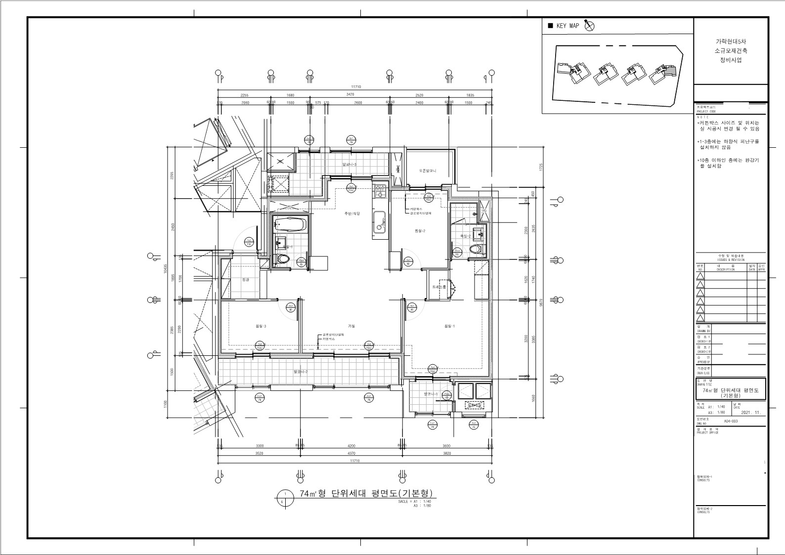
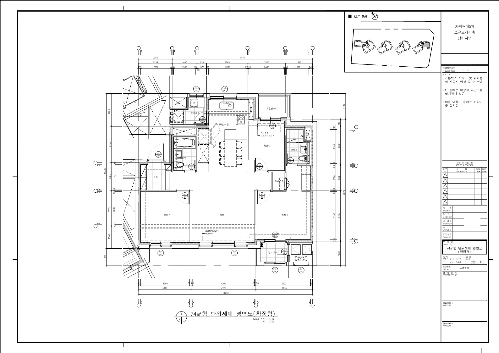
건축시설계획-단위세대평면도(74형)

건축시설계획-단위세대평면도(74형)
공급면적 (㎡) 98.8483
사업시행인가(변경)일자 2022-01-18
형별 74
세대수 23
전용면적 (㎡) 74.9753
공용면적 (㎡) 90.4392

단위세대평면도 이미지

단위세대평면도 이미지

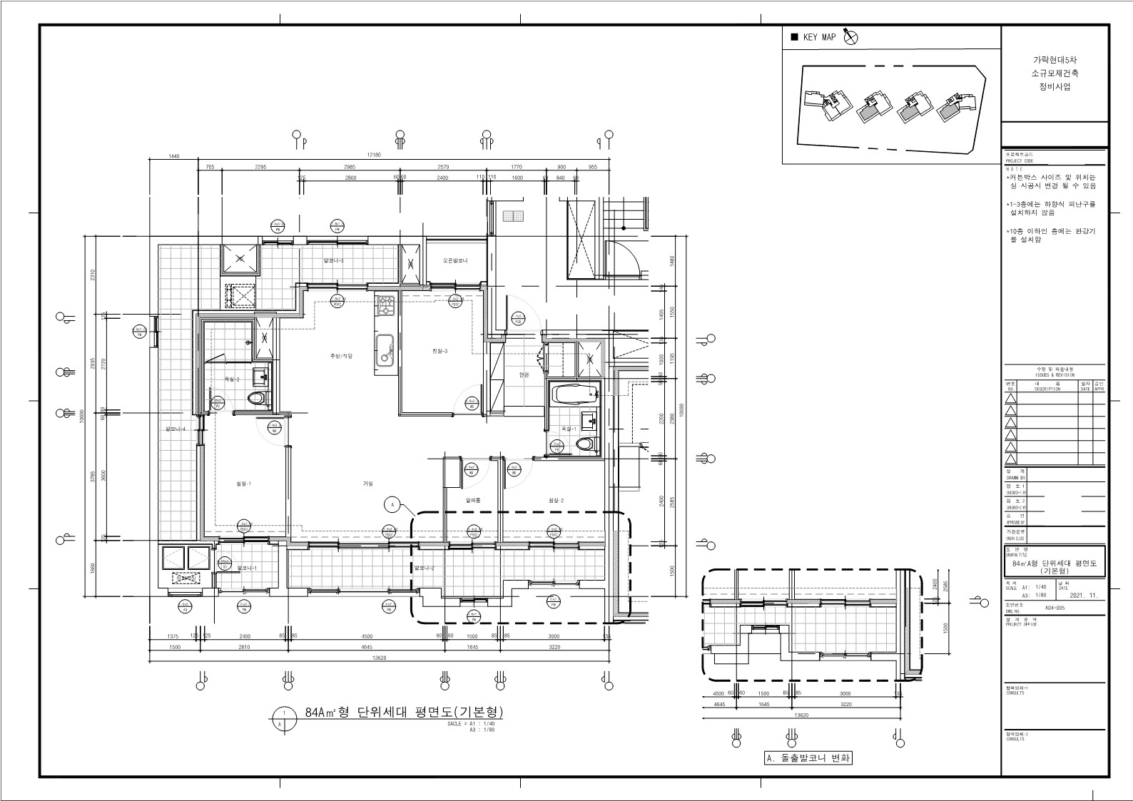
건축시설계획-단위세대평면도(84A형)

건축시설계획-단위세대평면도(84A형)
공급면적 (㎡) 111.5185
사업시행인가(변경)일자 2022-01-18
형별 84A
세대수 54
전용면적 (㎡) 84.9856
공용면적 (㎡) 102.5141

단위세대평면도 이미지

단위세대평면도 이미지

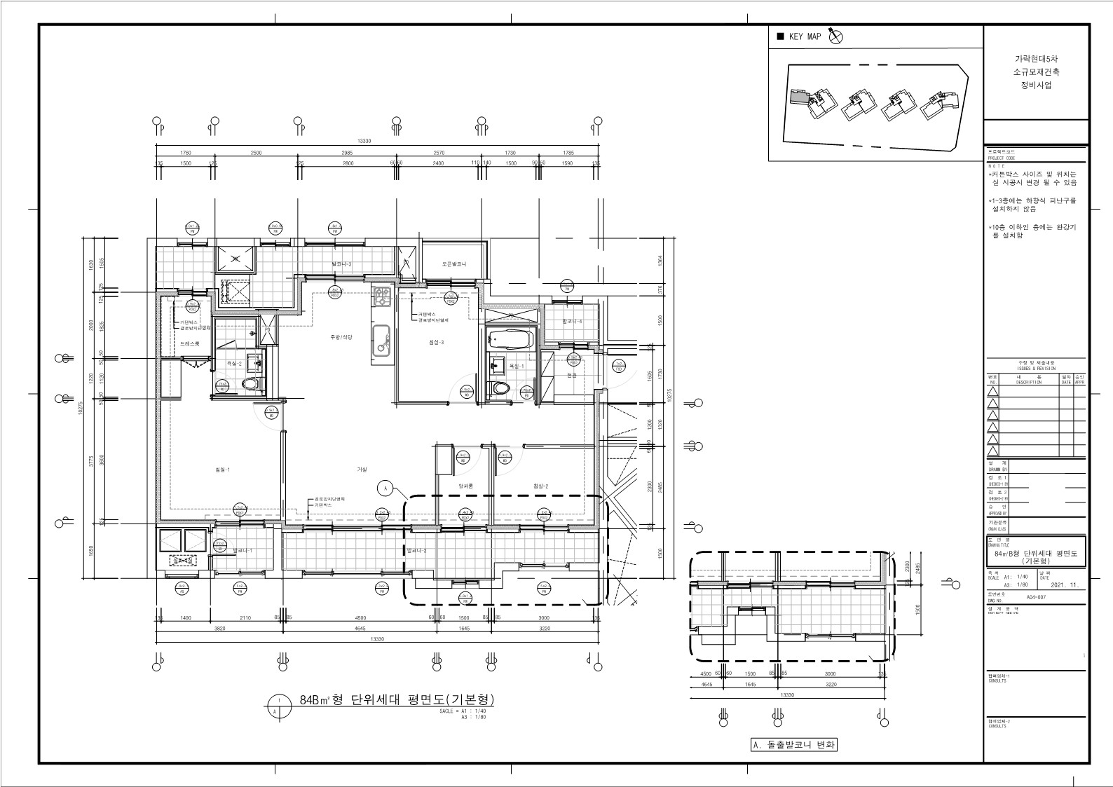
건축시설계획-단위세대평면도(84B형)

건축시설계획-단위세대평면도(84B형)
공급면적 (㎡) 111.3964
사업시행인가(변경)일자 2022-01-18
형별 84B
세대수 21
전용면적 (㎡) 84.9862
공용면적 (㎡) 102.5149

단위세대평면도 이미지

단위세대평면도 이미지

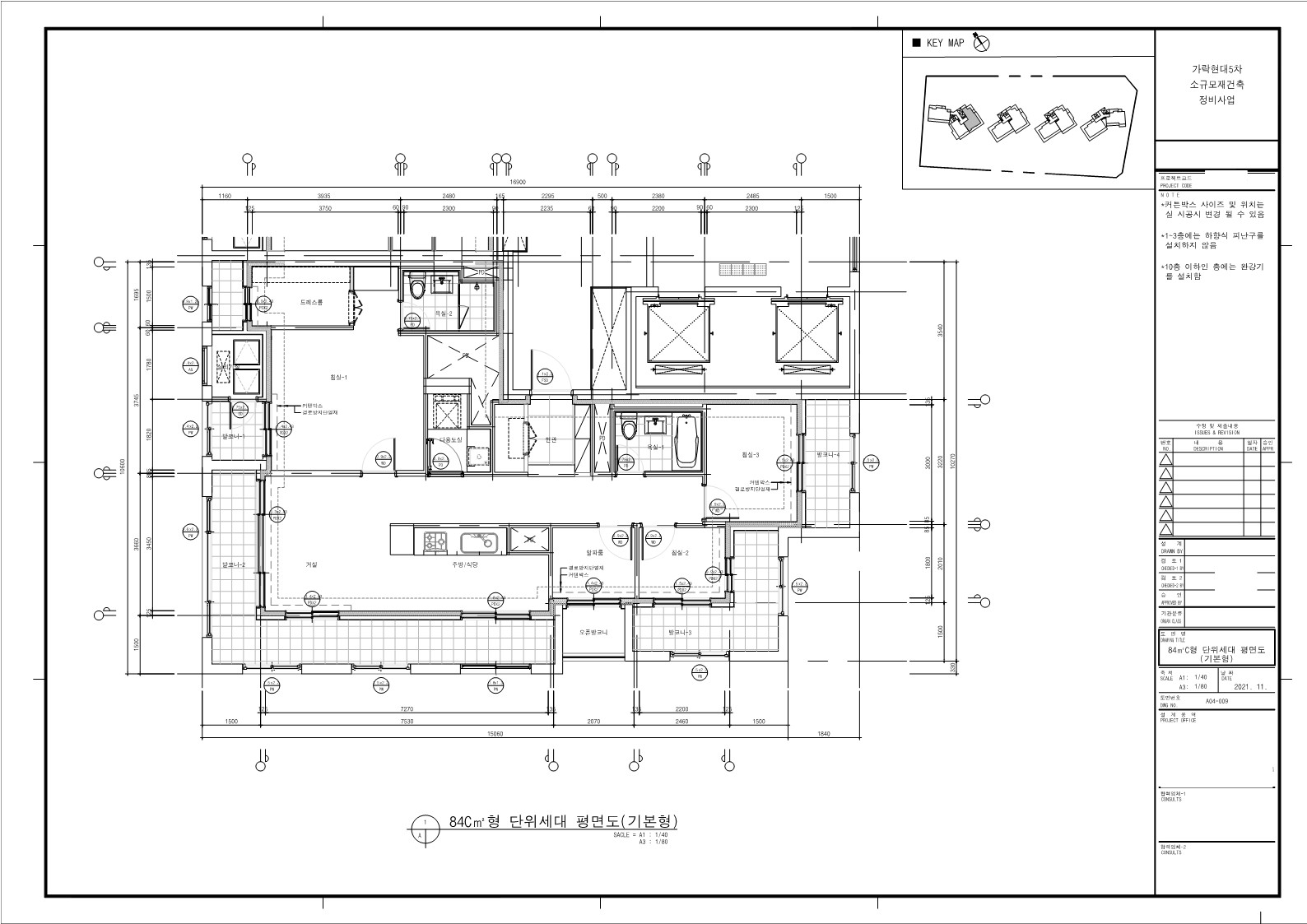
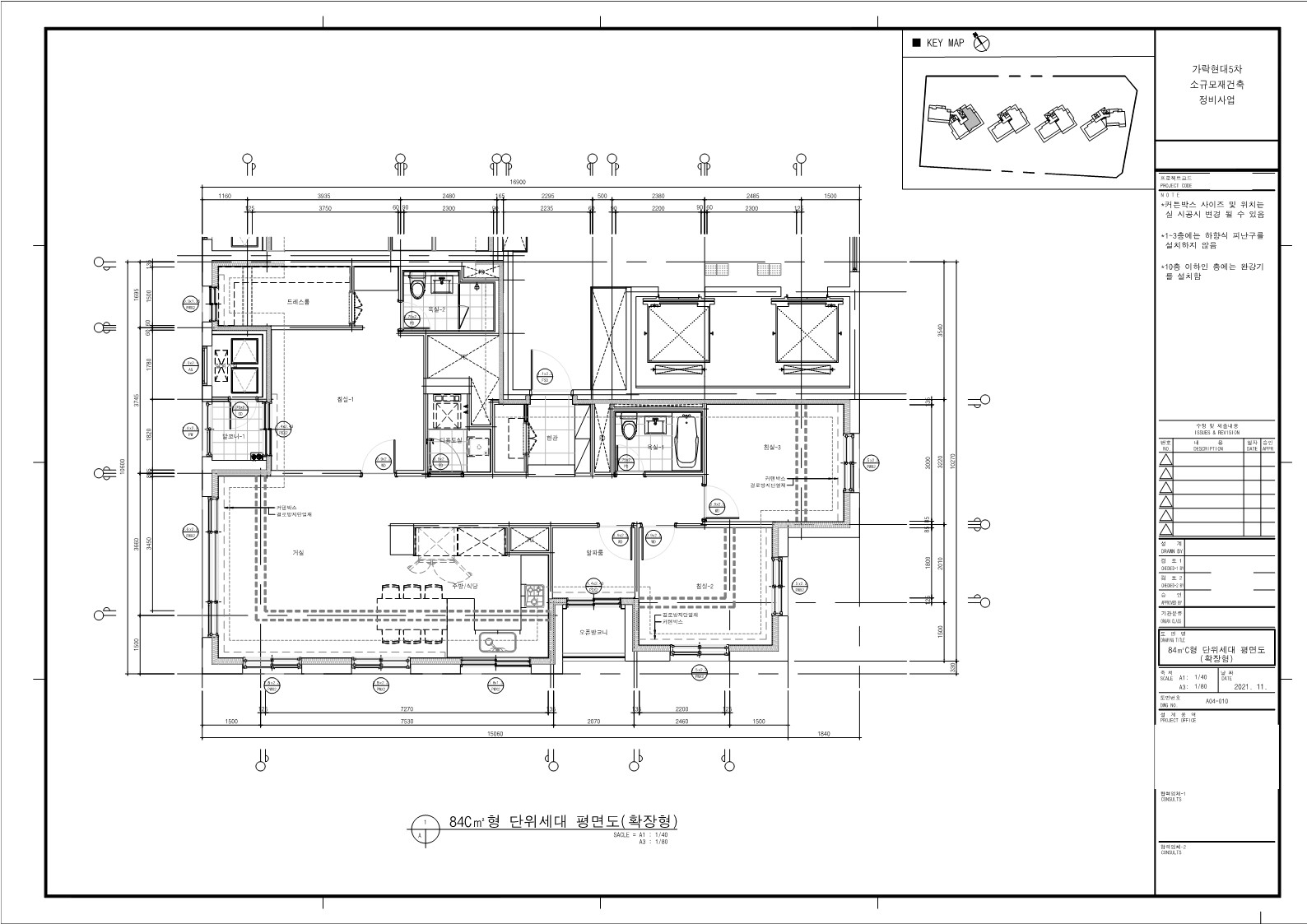
건축시설계획-단위세대평면도(84C형)

건축시설계획-단위세대평면도(84C형)
공급면적 (㎡) 112.6531
사업시행인가(변경)일자 2022-01-18
형별 84C
세대수 22
전용면적 (㎡) 84.9273
공용면적 (㎡) 102.4438

단위세대평면도 이미지

단위세대평면도 이미지

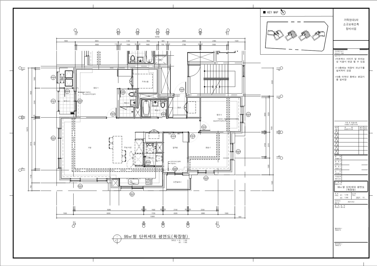
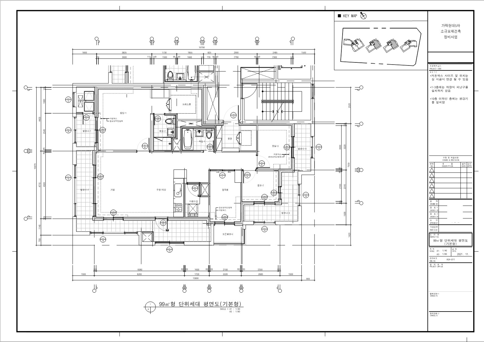
건축시설계획-단위세대평면도(99형)

건축시설계획-단위세대평면도(99형)
공급면적 (㎡) 131.0513
사업시행인가(변경)일자 2022-01-18
형별 99
세대수 46
전용면적 (㎡) 99.9989
공용면적 (㎡) 120.6240

단위세대평면도 이미지

단위세대평면도 이미지

사업추진 단계별
공개자료 조회

툴팁 아이콘
원하시는 사업 추진단계에 등록된 자료들을 조회해 보실 수 있습니다.