단위세대평면도
정비사업 추진과정을 유리알처럼 투명하게 공개

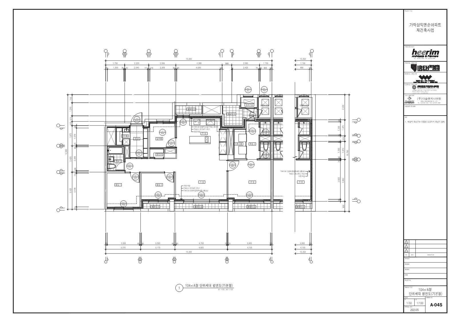
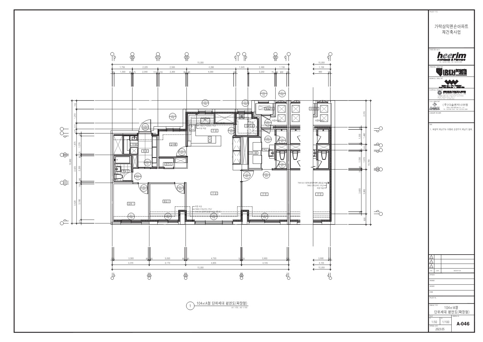
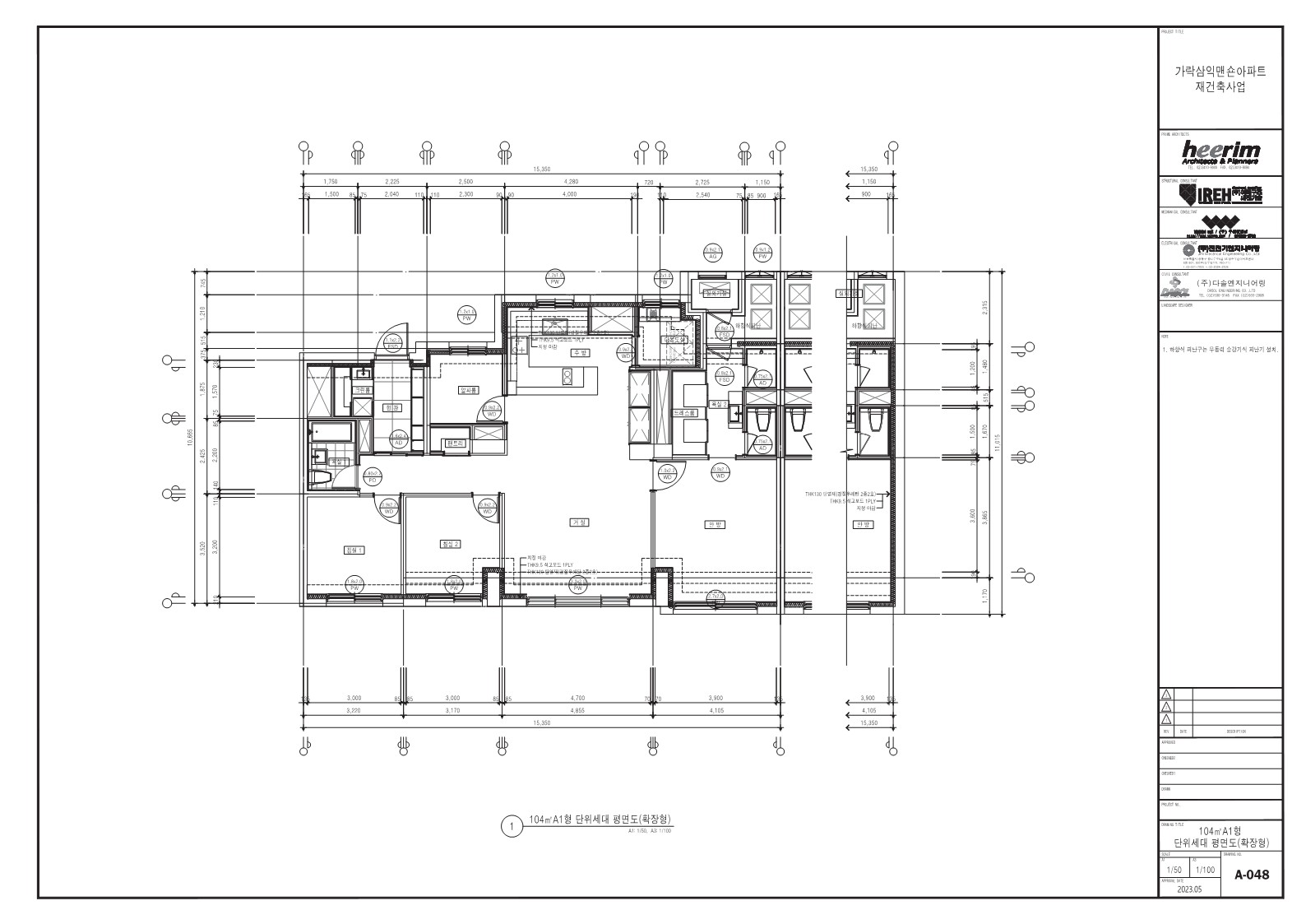
단위세대평면도(104㎡A)

단위세대평면도(104㎡A)
공급면적 (㎡) 23,561.5406㎡
사업시행인가(변경)일자 2023-11-16
형별 104㎡A
세대수 169세대
전용면적 (㎡) 17,576.845㎡
공용면적 (㎡) 5,984.6956㎡

단위세대평면도 이미지

단위세대평면도 이미지

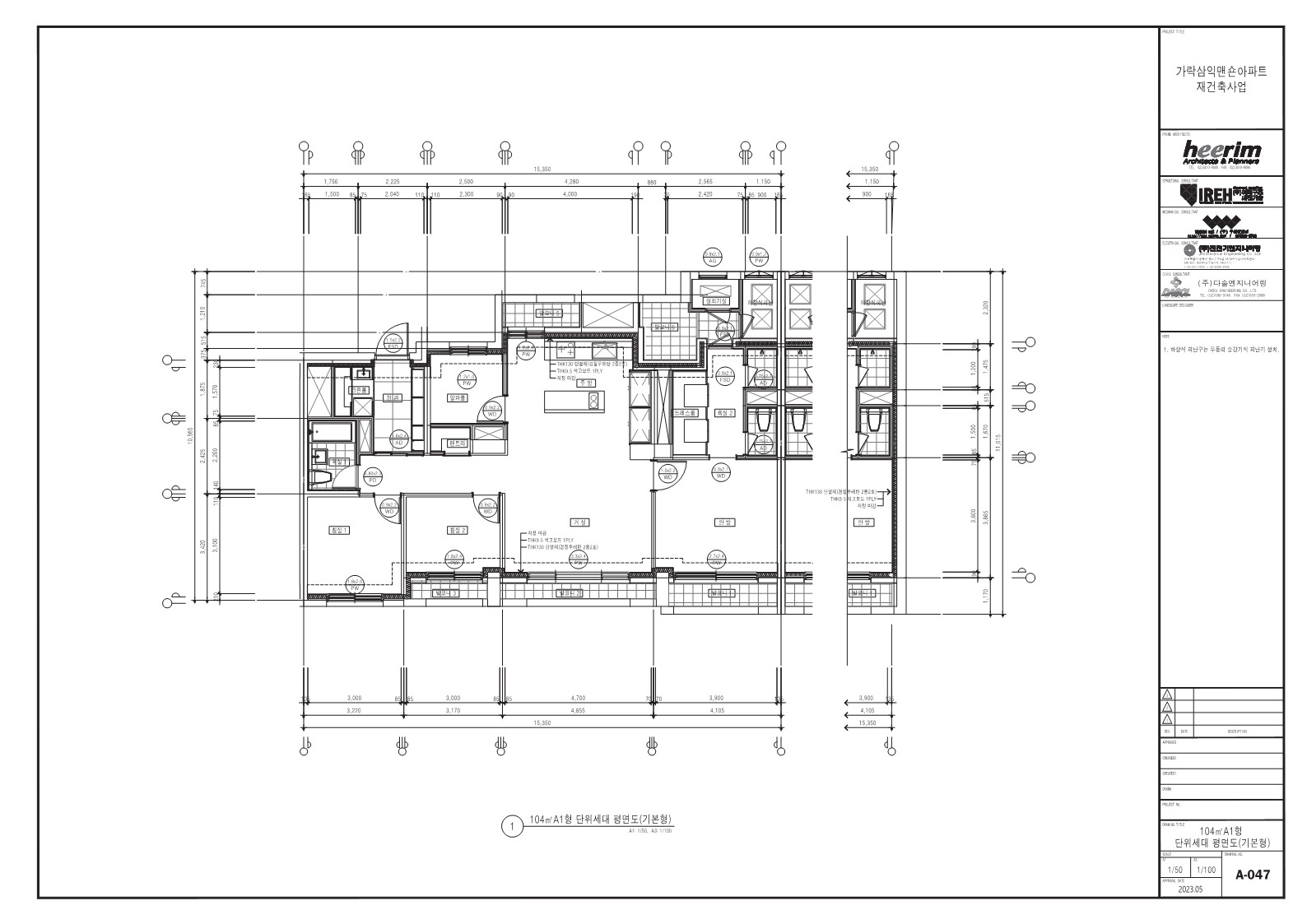
단위세대평면도(104㎡A1)

단위세대평면도(104㎡A1)
공급면적 (㎡) 3,764.2698㎡
사업시행인가(변경)일자 2023-11-16
형별 104㎡A1
세대수 27세대
전용면적 (㎡) 2,808.135㎡
공용면적 (㎡) 956.1348㎡

단위세대평면도 이미지

단위세대평면도 이미지

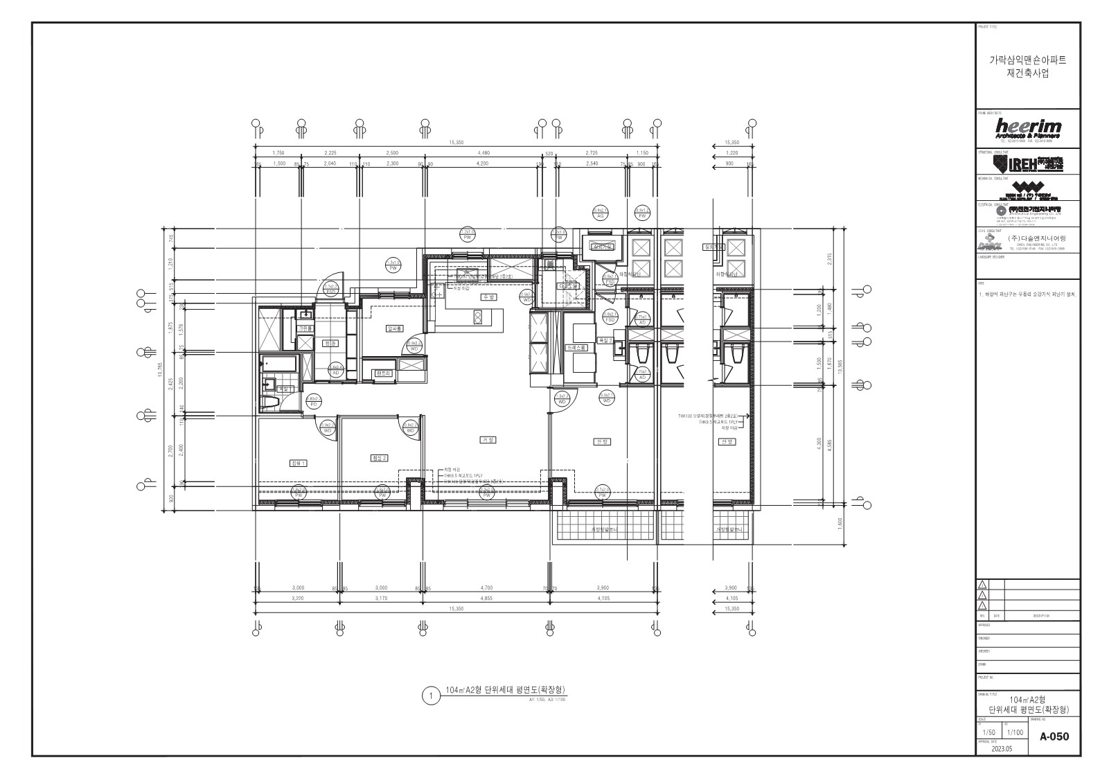
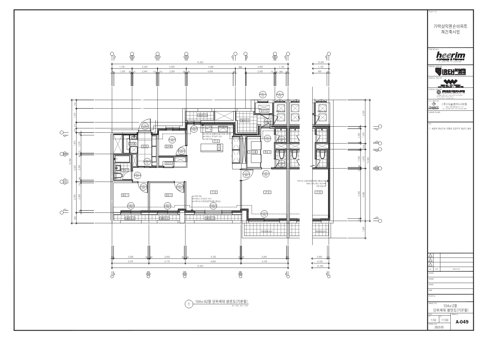
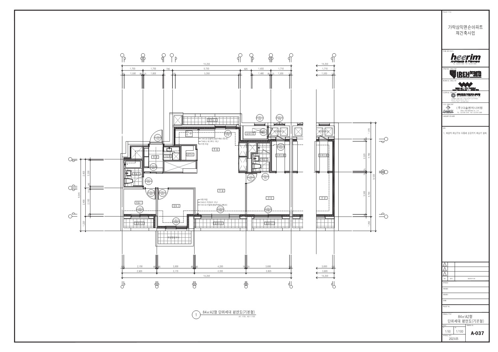
단위세대평면도(104㎡A2)

단위세대평면도(104㎡A2)
공급면적 (㎡) 10,346.3914㎡
사업시행인가(변경)일자 2023-11-16
형별 104㎡A2
세대수 74세대
전용면적 (㎡) 7,727.45㎡
공용면적 (㎡) 2,618.9414㎡

단위세대평면도 이미지

단위세대평면도 이미지

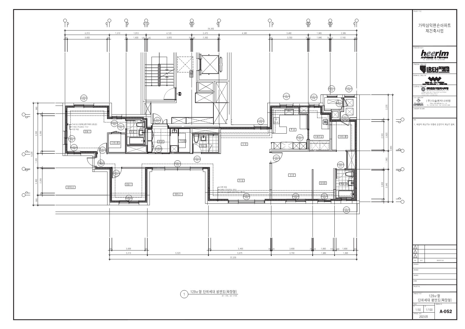
단위세대평면도(129㎡)

단위세대평면도(129㎡)
공급면적 (㎡) 878.519㎡
사업시행인가(변경)일자 2023-11-16
형별 129㎡
세대수 5세대
전용면적 (㎡) 647.909㎡
공용면적 (㎡) 230.61㎡

단위세대평면도 이미지

단위세대평면도 이미지

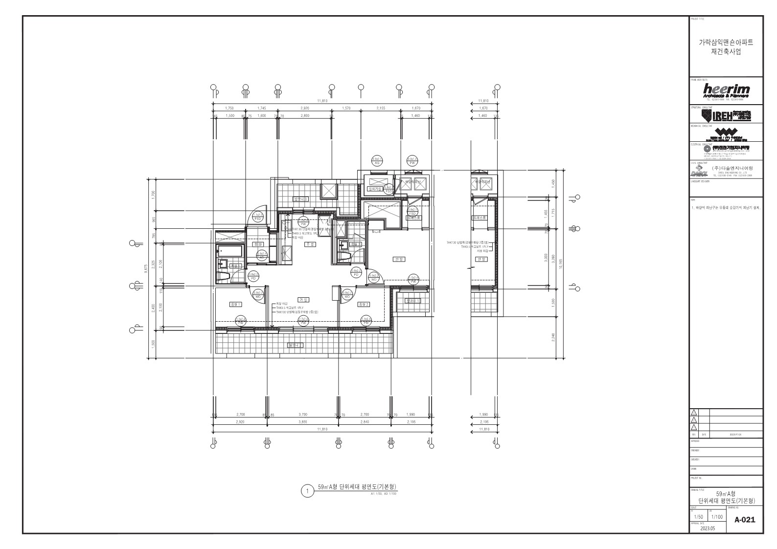
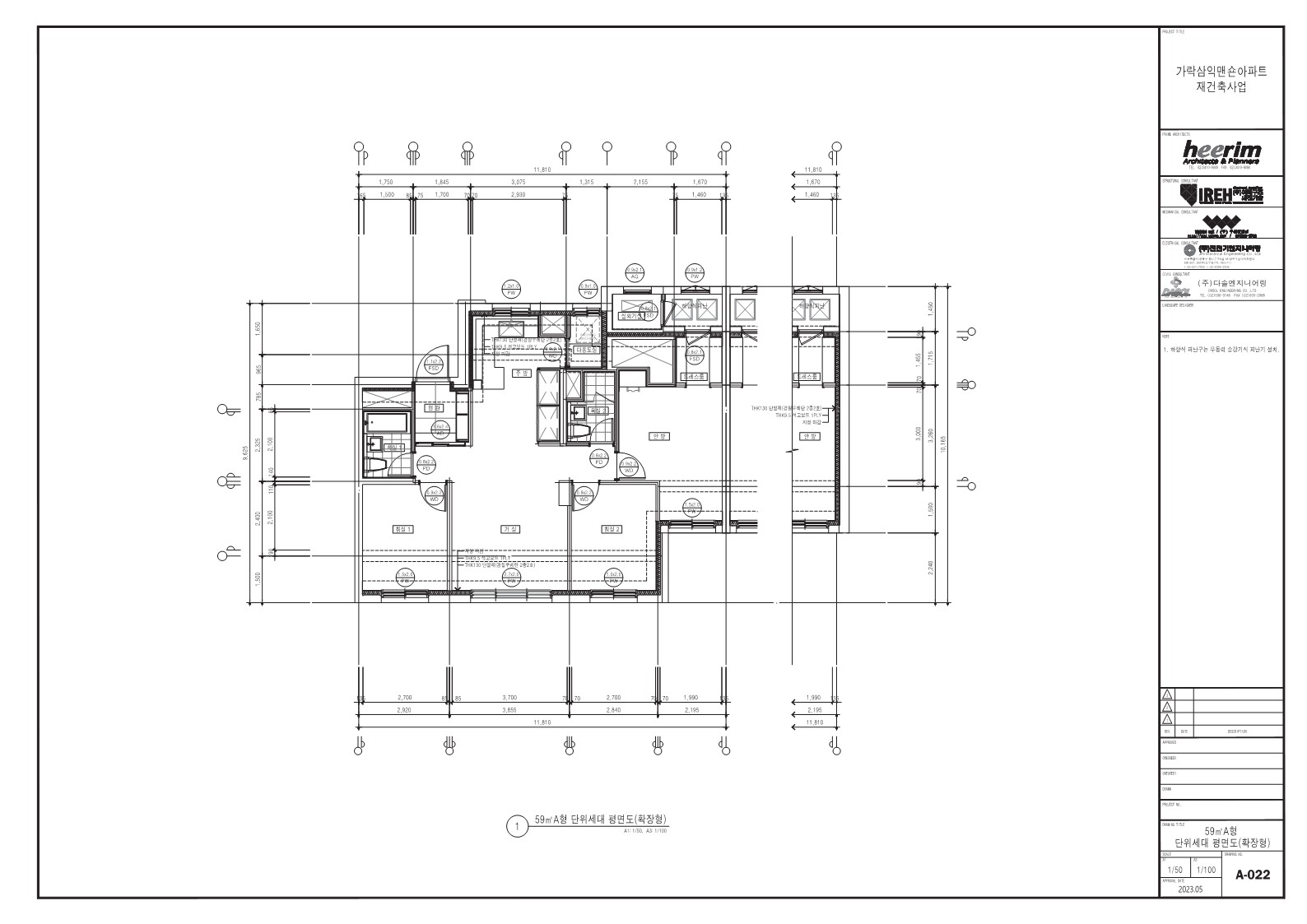
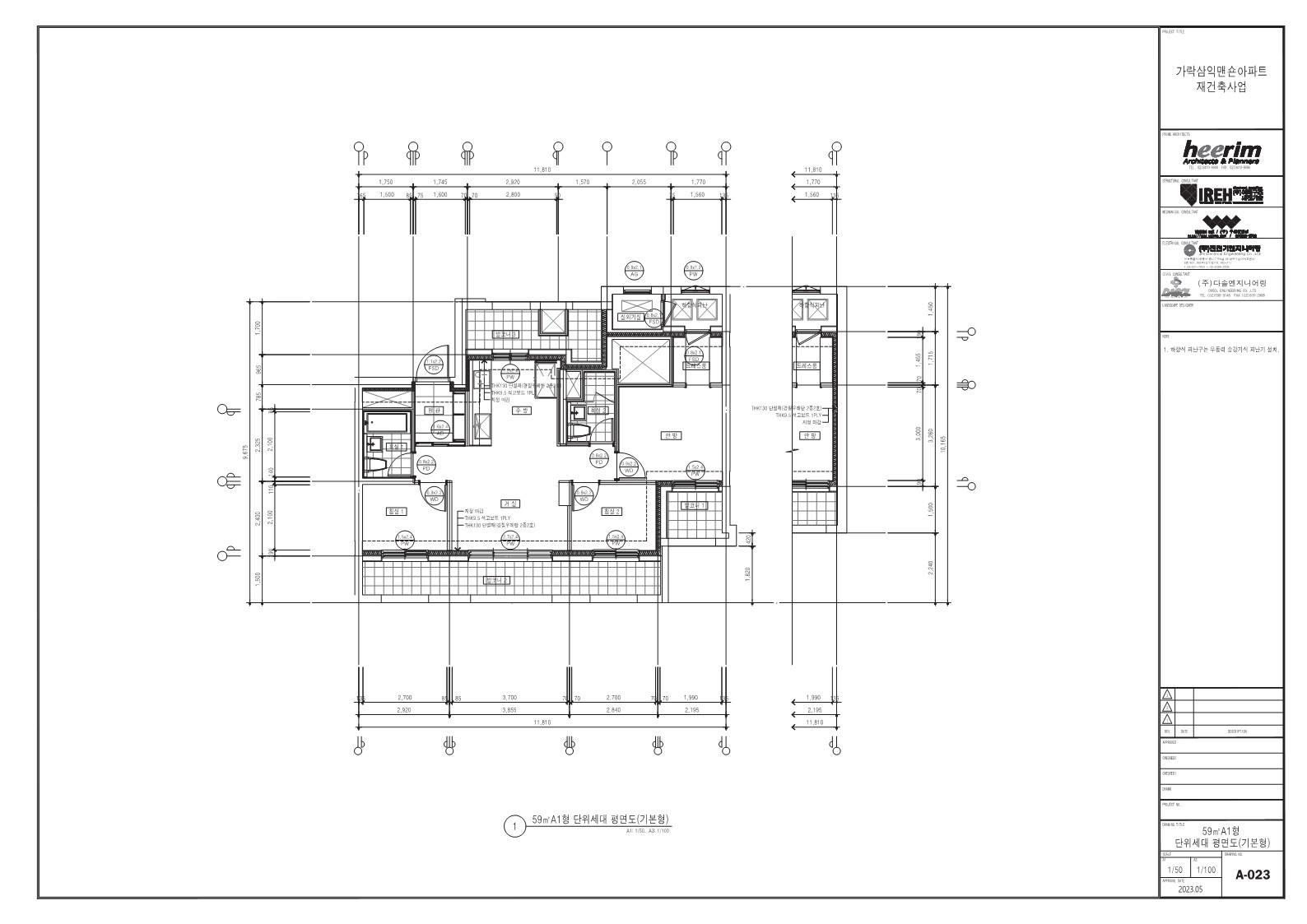
단위세대평면도(59㎡A)

단위세대평면도(59㎡A)
공급면적 (㎡) 36,600.118㎡
사업시행인가(변경)일자 2023-11-16
형별 59㎡A
세대수 454세대
전용면적 (㎡) 27,084.278㎡
공용면적 (㎡) 9,515.84㎡

단위세대평면도 이미지

단위세대평면도 이미지

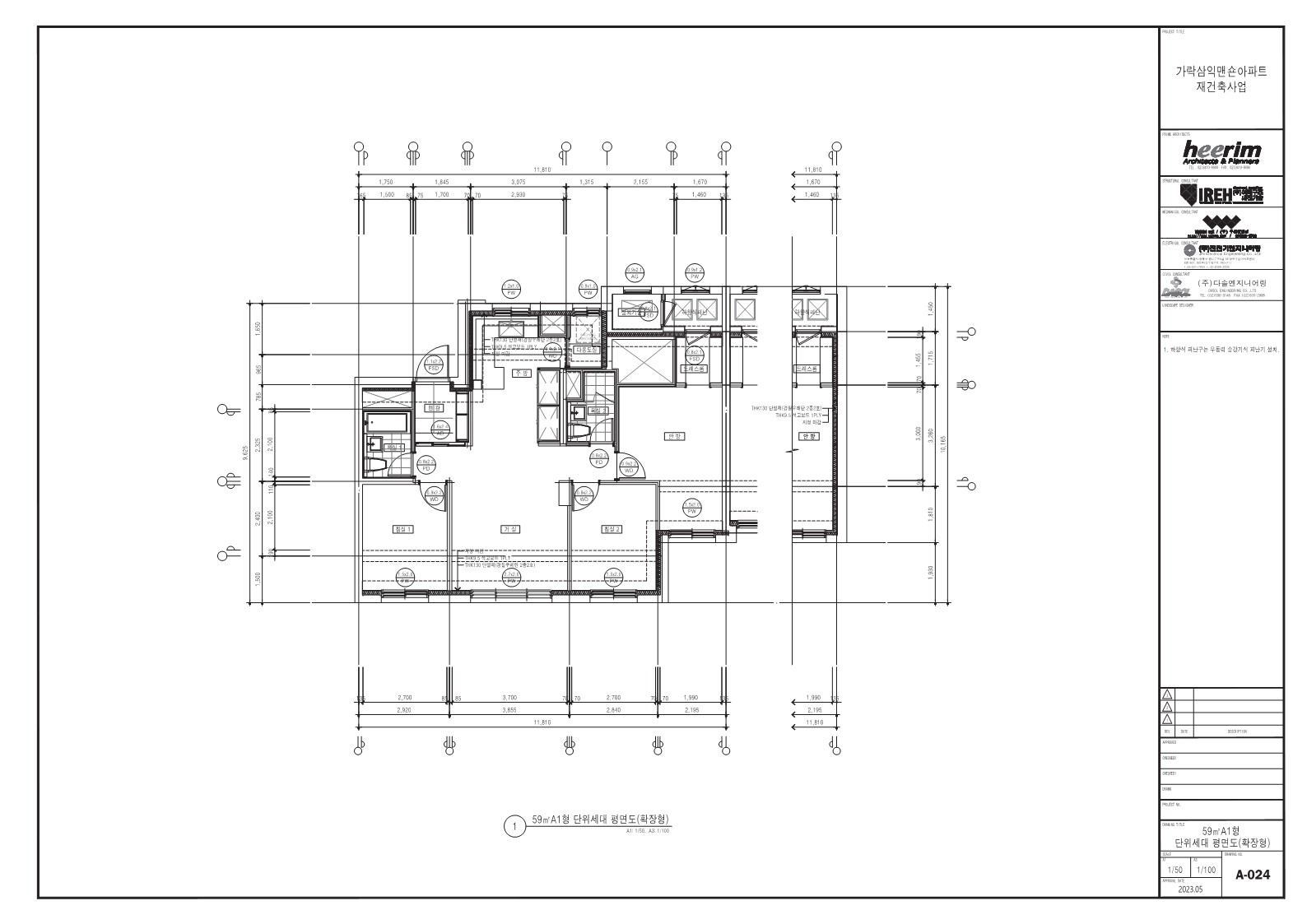
단위세대평면도(59㎡A1)

단위세대평면도(59㎡A1)
공급면적 (㎡) 9,931.8933㎡
사업시행인가(변경)일자 2023-11-16
형별 59㎡A1
세대수 123세대
전용면적 (㎡) 7,352.325㎡
공용면적 (㎡) 2,579.5683㎡

단위세대평면도 이미지

단위세대평면도 이미지

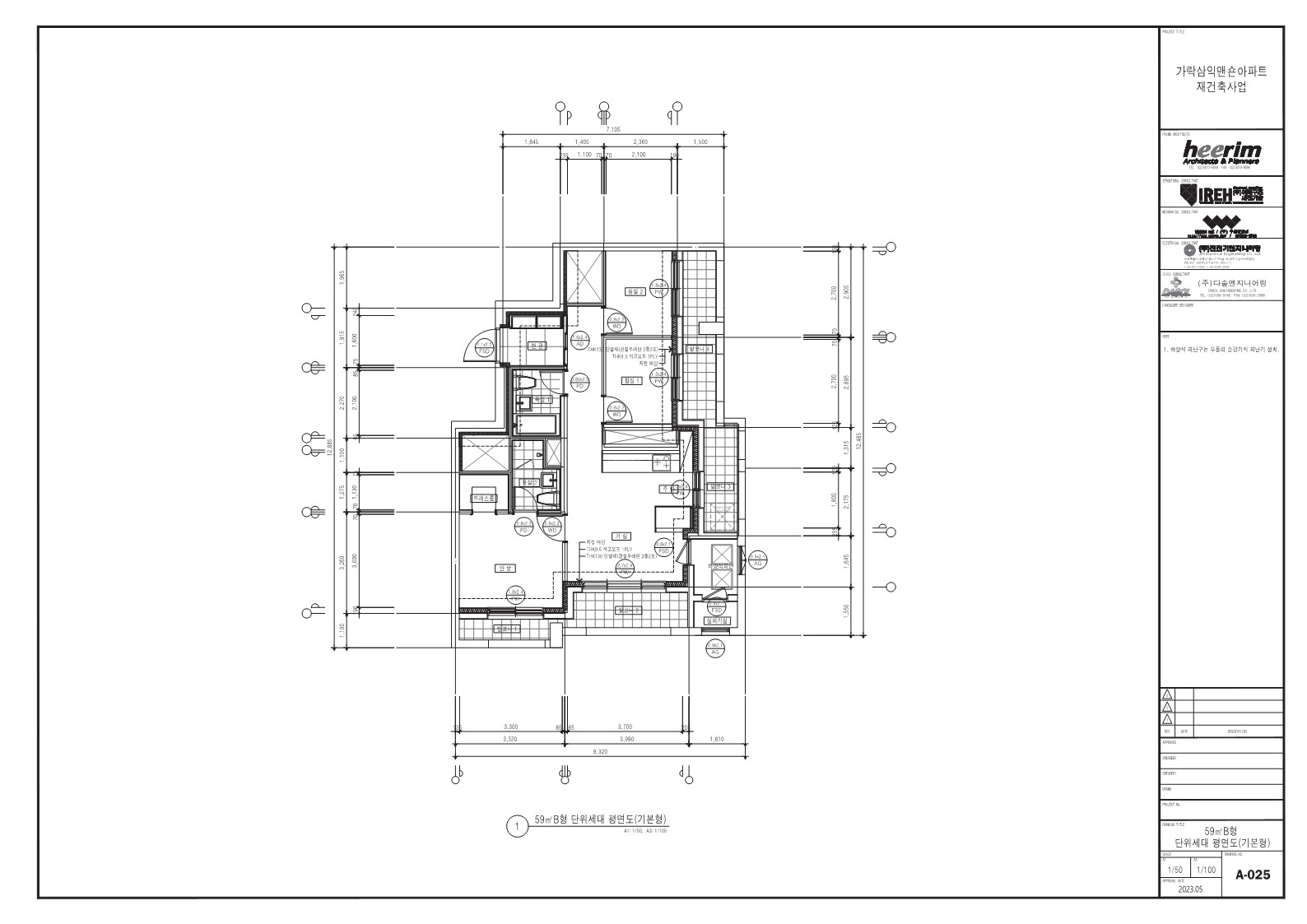
단위세대평면도(59㎡B)

단위세대평면도(59㎡B)
공급면적 (㎡) 1,386.4894㎡
사업시행인가(변경)일자 2023-11-16
형별 59㎡B
세대수 17세대
전용면적 (㎡) 1,012.2429㎡
공용면적 (㎡) 374.2465㎡

단위세대평면도 이미지

단위세대평면도 이미지

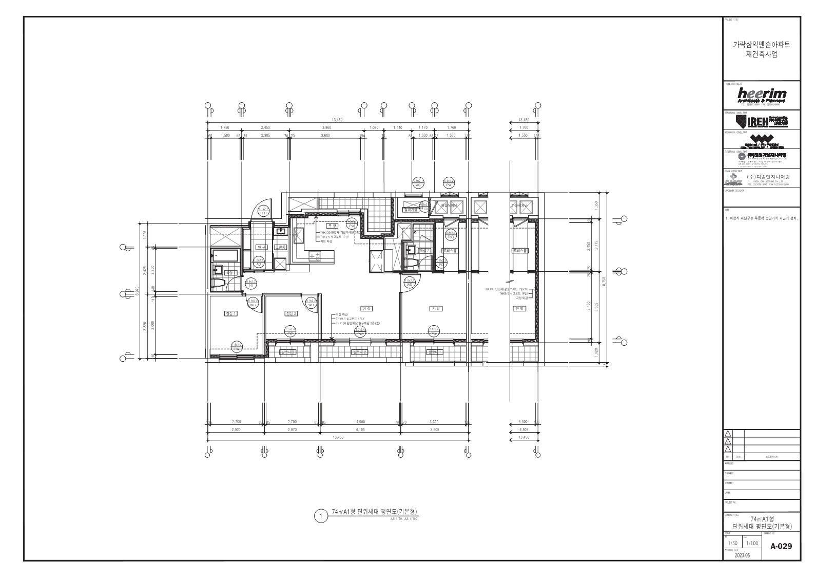
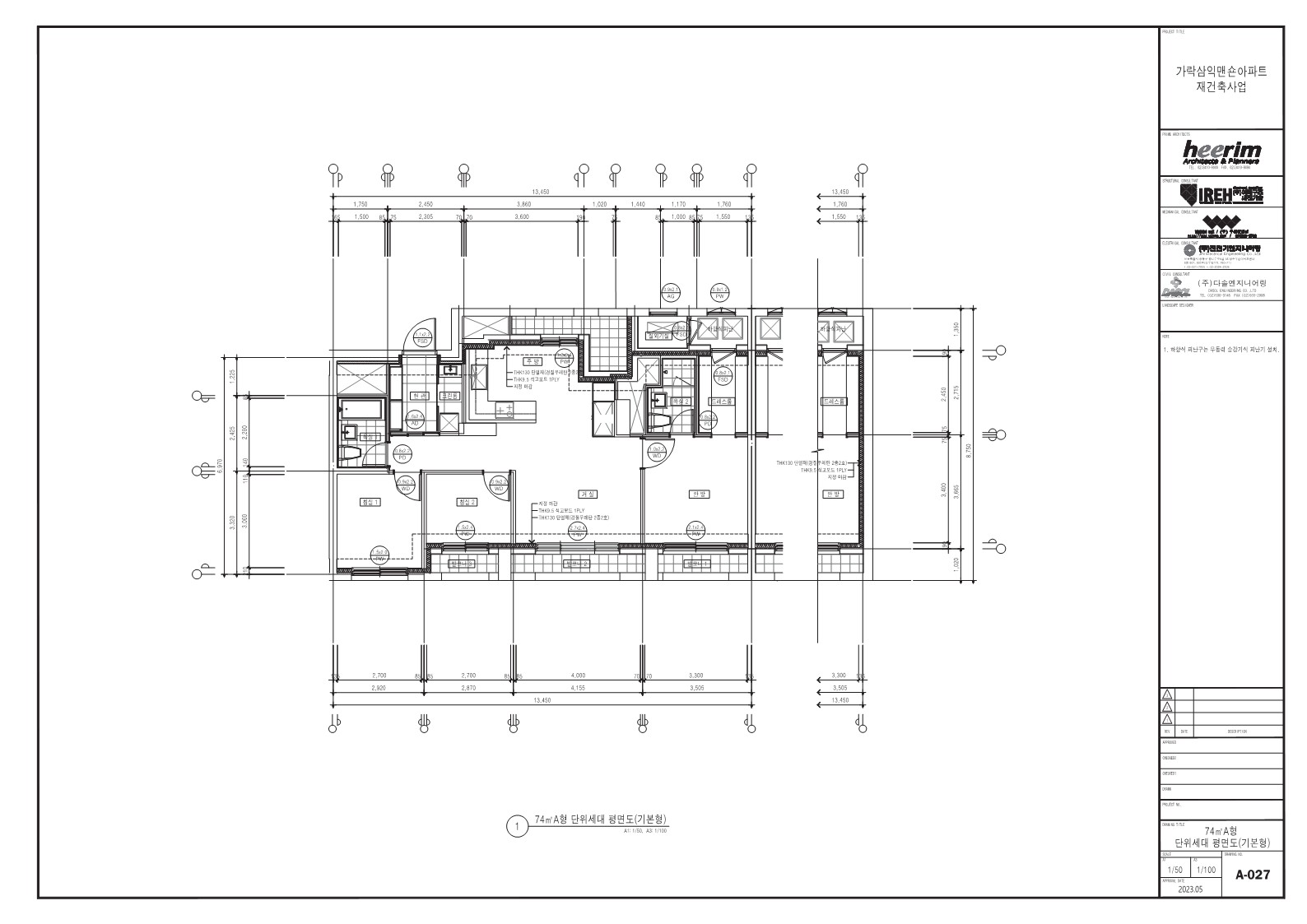
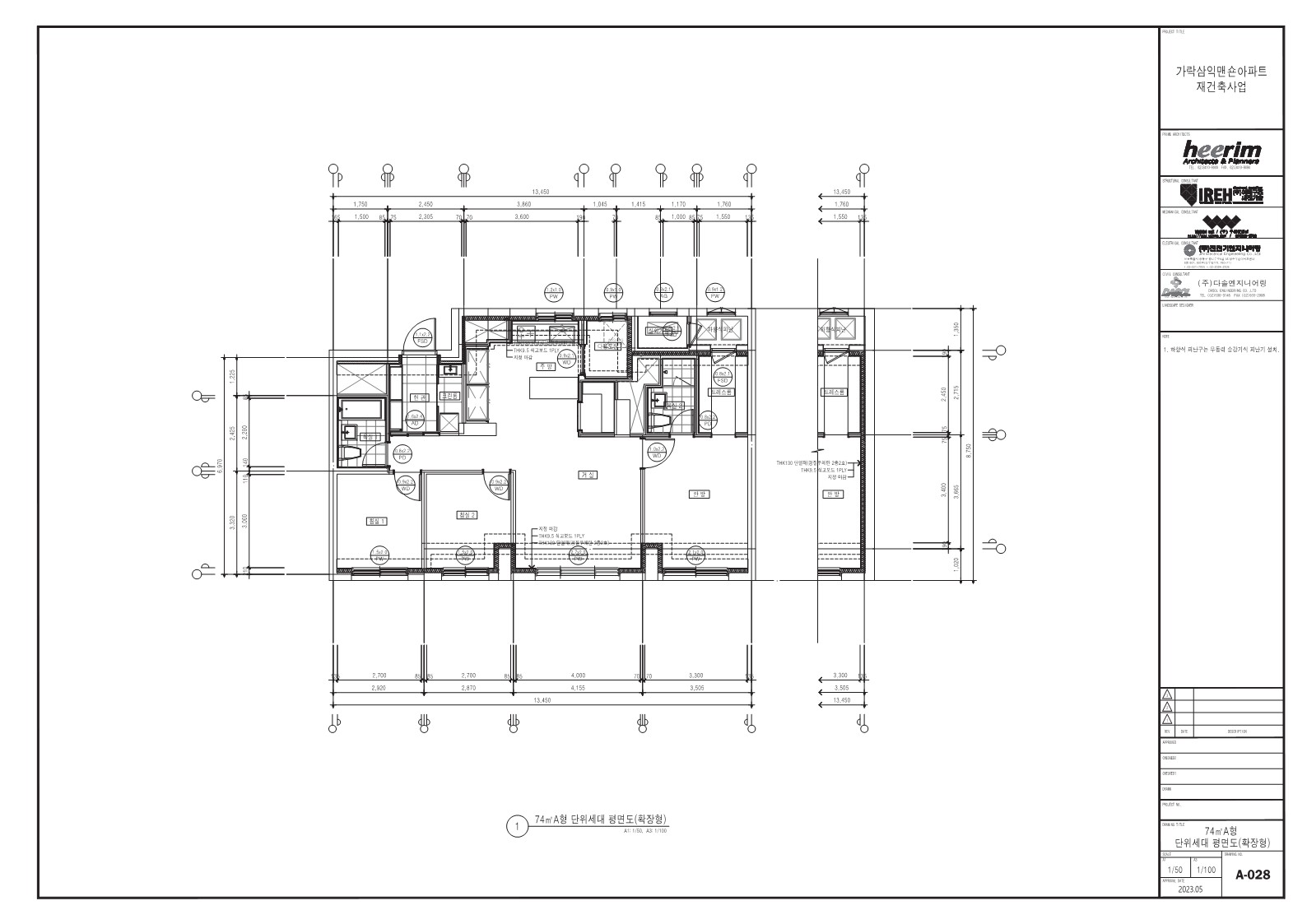
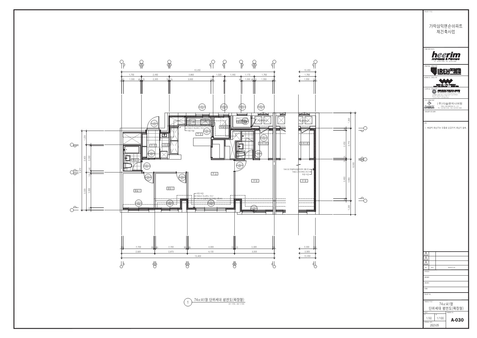
단위세대평면도(74㎡A)

단위세대평면도(74㎡A)
공급면적 (㎡) 7,039.018㎡
사업시행인가(변경)일자 2023-11-16
형별 74㎡A
세대수 70세대
전용면적 (㎡) 5,243.651㎡
공용면적 (㎡) 1795.367㎡

단위세대평면도 이미지

단위세대평면도 이미지

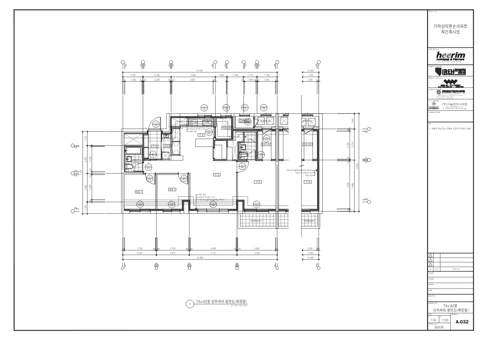
단위세대평면도(74㎡A1)

단위세대평면도(74㎡A1)
공급면적 (㎡) 1,910.1498㎡
사업시행인가(변경)일자 2023-11-16
형별 74㎡A1
세대수 19세대
전용면적 (㎡) 1,423.2767㎡
공용면적 (㎡) 486.8731㎡

단위세대평면도 이미지

단위세대평면도 이미지

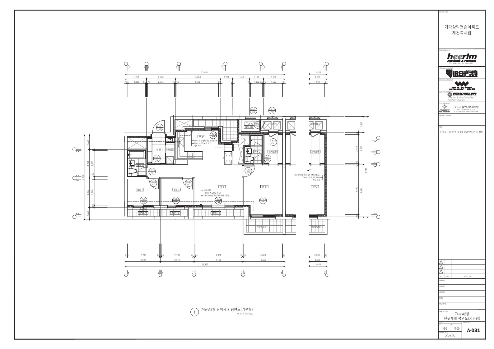
단위세대평면도(74㎡A2)

단위세대평면도(74㎡A2)
공급면적 (㎡) 3,726.8842㎡
사업시행인가(변경)일자 2023-11-16
형별 74㎡A2
세대수 37세대
전용면적 (㎡) 2,773.668㎡
공용면적 (㎡) 953.2162㎡

단위세대평면도 이미지

단위세대평면도 이미지

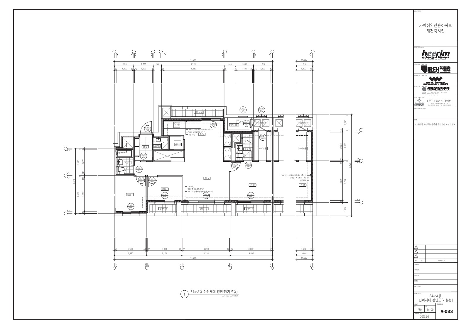
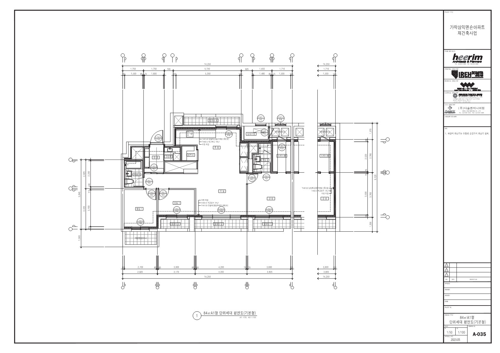
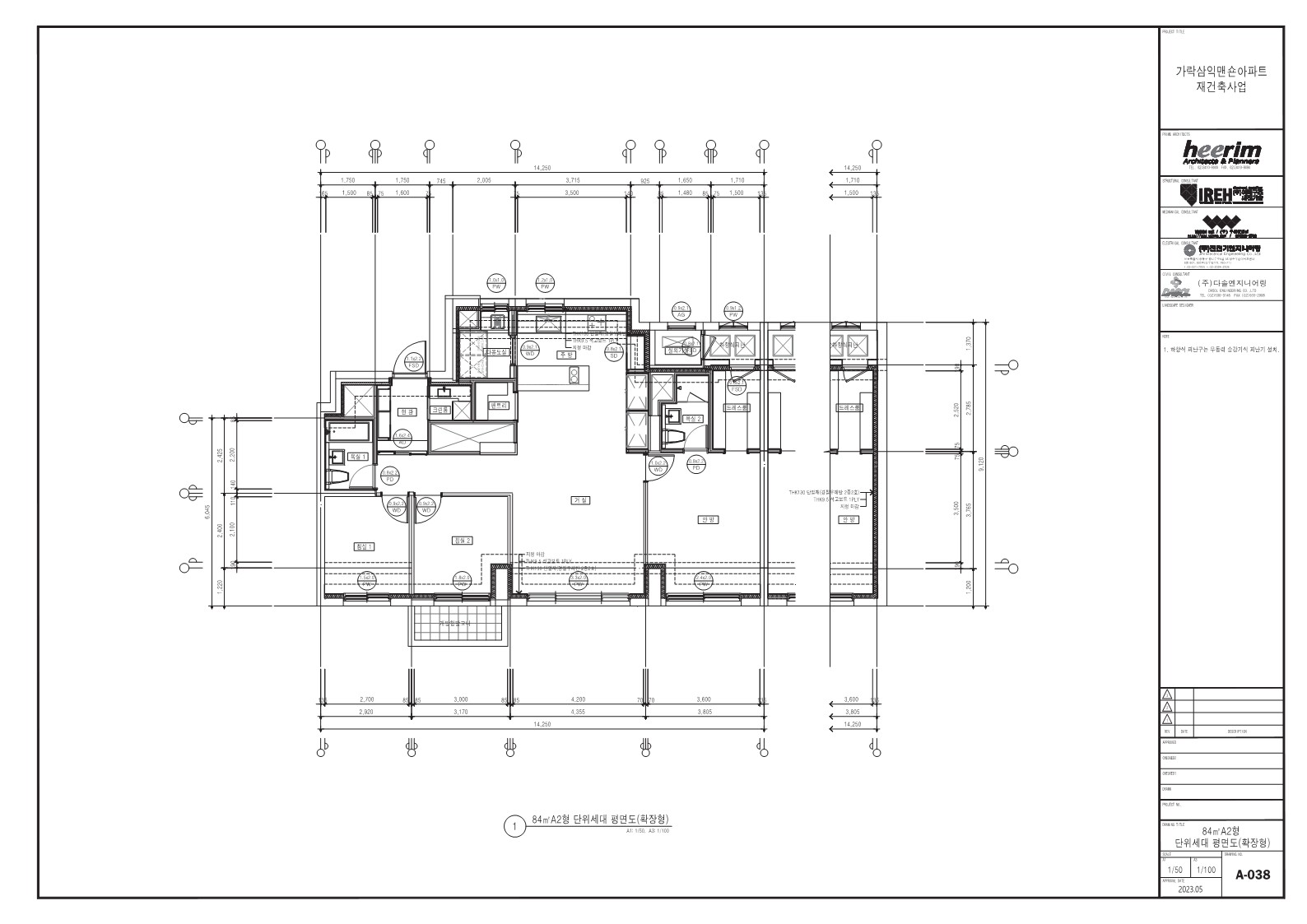
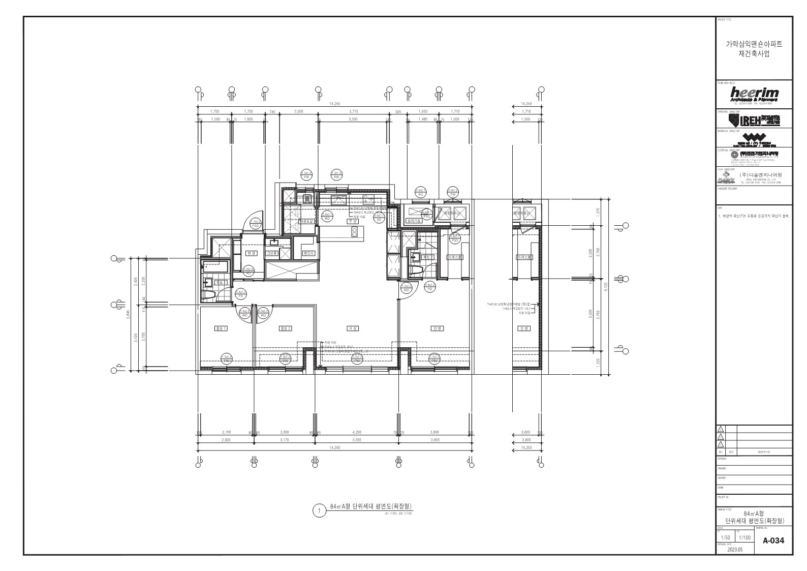
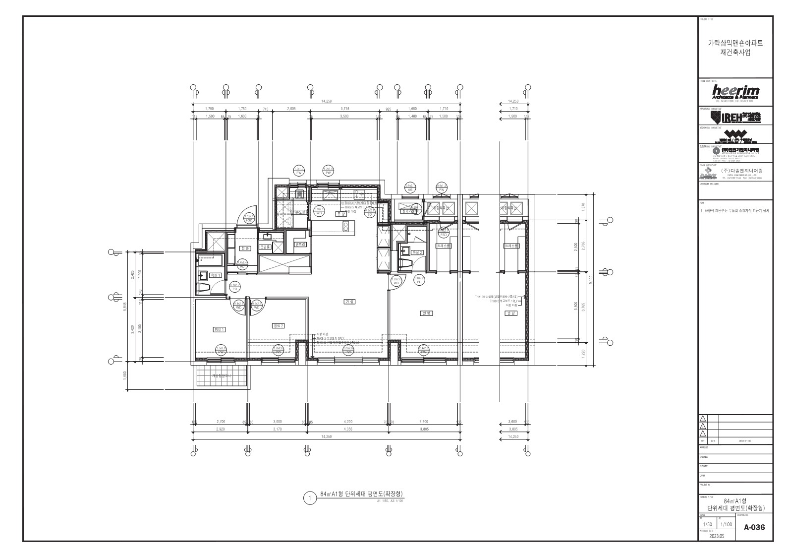
단위세대평면도(84㎡A)

단위세대평면도(84㎡A)
공급면적 (㎡) 20,896.6968㎡
사업시행인가(변경)일자 2023-11-16
형별 84㎡A
세대수 183세대
전용면적 (㎡) 15,537.1209㎡
공용면적 (㎡) 5,359.5759㎡

단위세대평면도 이미지

단위세대평면도 이미지

단위세대평면도(84㎡A1)

단위세대평면도(84㎡A1)
공급면적 (㎡) 4,681.7736㎡
사업시행인가(변경)일자 2023-11-16
형별 84㎡A1
세대수 41세대
전용면적 (㎡) 3,480.9943㎡
공용면적 (㎡) 1,200.7793㎡

단위세대평면도 이미지

단위세대평면도 이미지

단위세대평면도(84㎡A2)

단위세대평면도(84㎡A2)
공급면적 (㎡) 456.4144㎡
사업시행인가(변경)일자 2023-11-16
형별 84㎡A2㎡
세대수 4세대
전용면적 (㎡) 338.6092㎡
공용면적 (㎡) 117.8052㎡

단위세대평면도 이미지

단위세대평면도 이미지

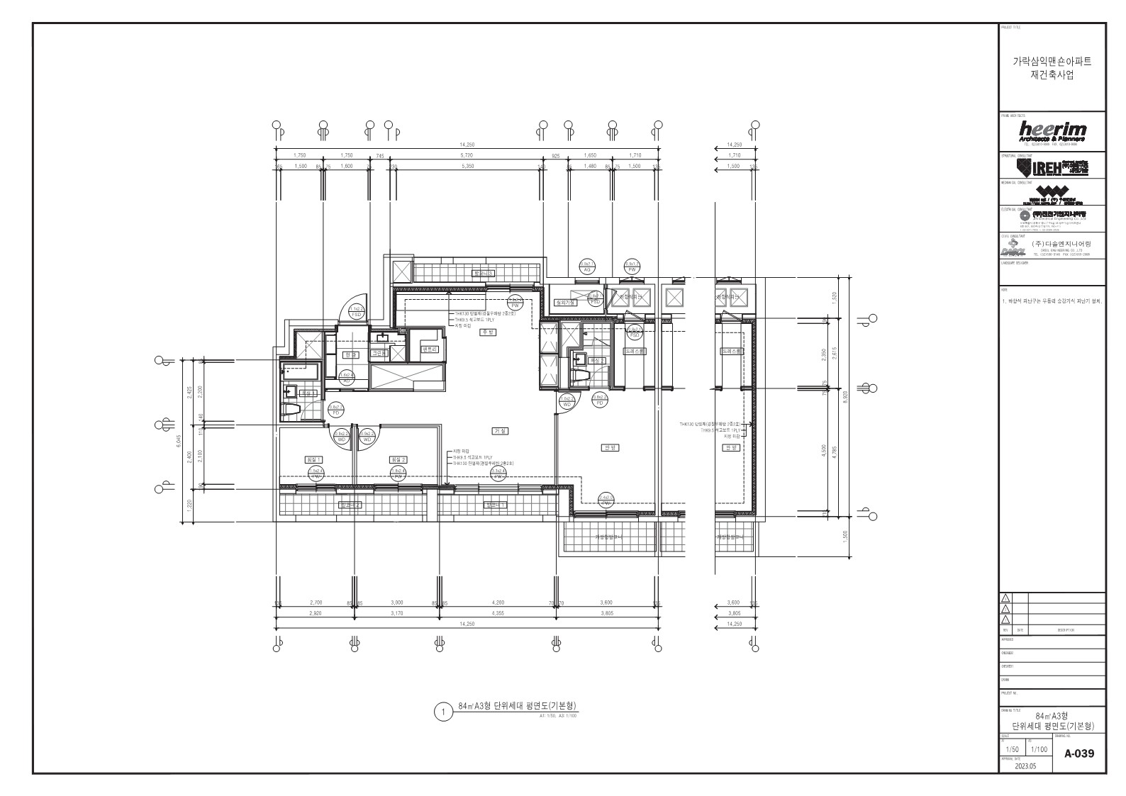
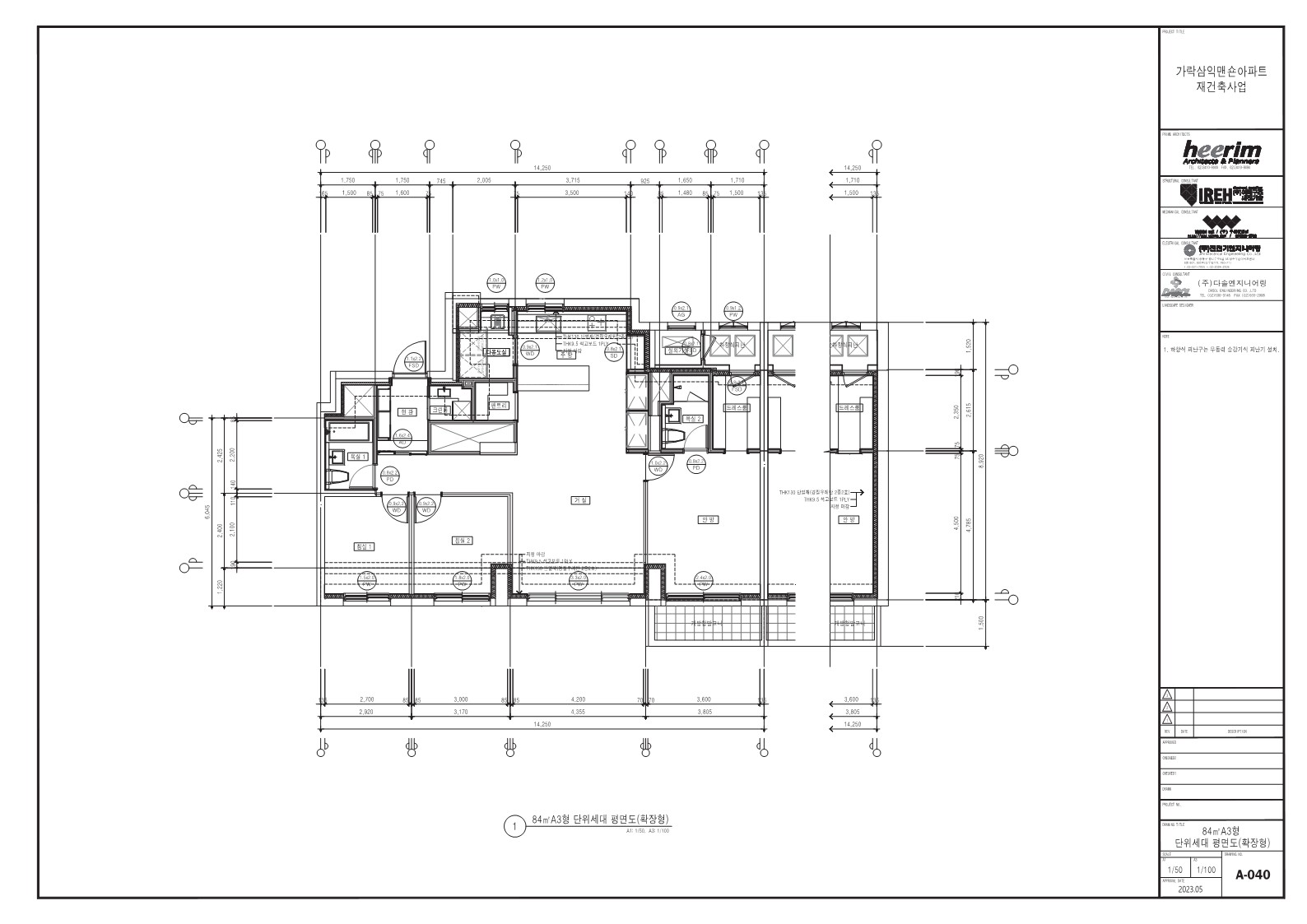
단위세대평면도(84㎡A3)

단위세대평면도(84㎡A3)
공급면적 (㎡) 10536.8152㎡
사업시행인가(변경)일자 2023-11-16
형별 84㎡A3
세대수 92세대
전용면적 (㎡) 7815.9152㎡
공용면적 (㎡) 2720.9㎡

단위세대평면도 이미지

단위세대평면도 이미지

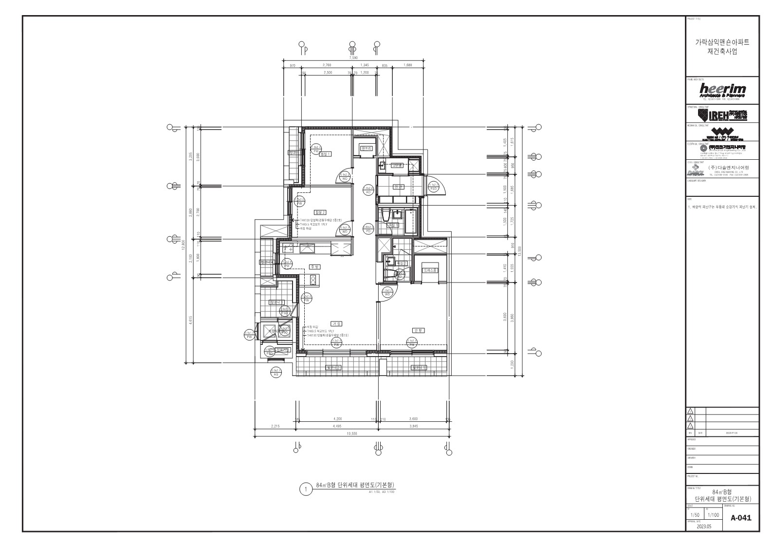
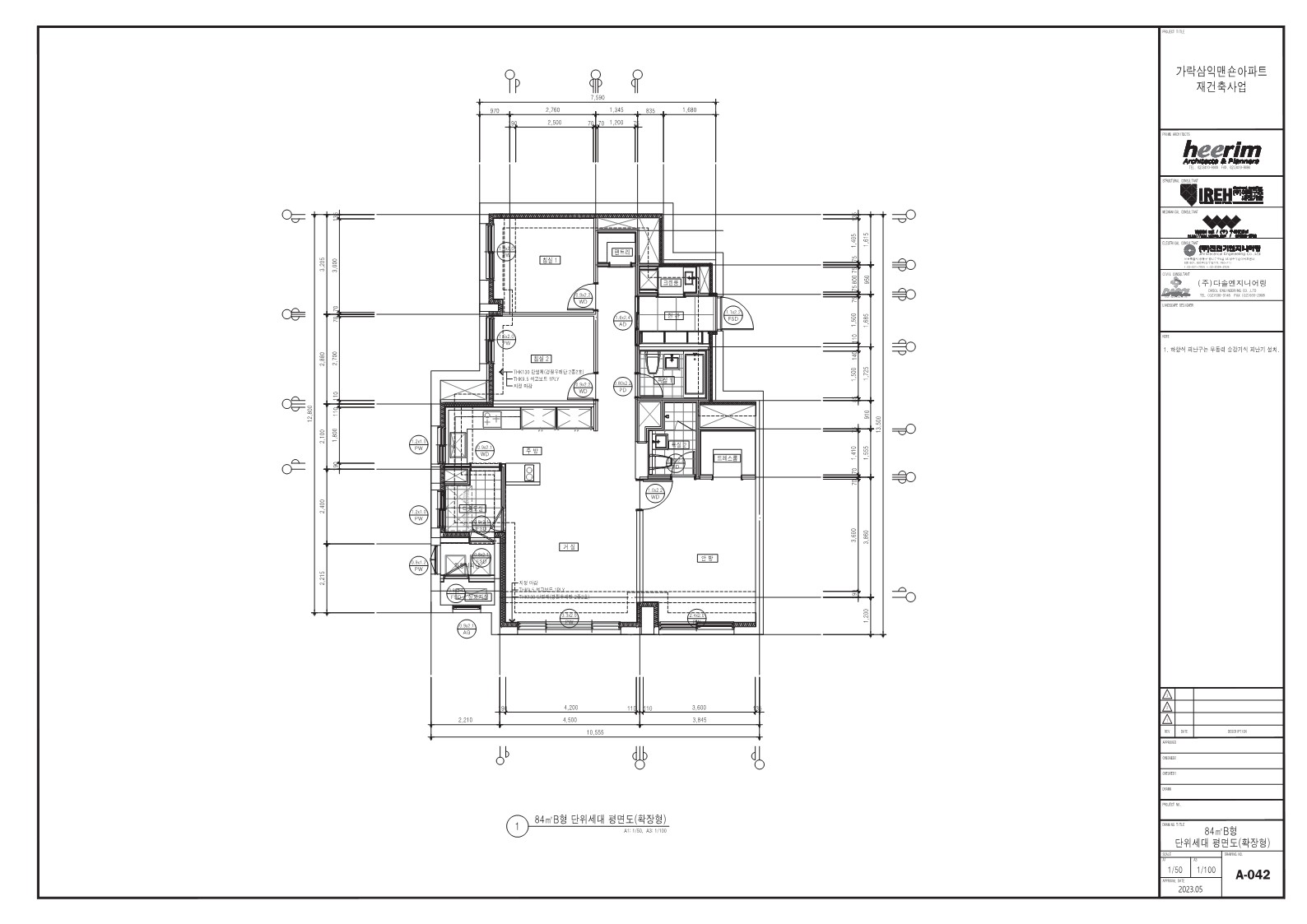
단위세대평면도(84㎡B)

단위세대평면도(84㎡B)
공급면적 (㎡) 13,132.6964㎡
사업시행인가(변경)일자 2023-11-16
형별 84㎡B
세대수 116세대
전용면적 (㎡) 9,825.8844㎡
공용면적 (㎡) 3,306.812㎡

단위세대평면도 이미지

단위세대평면도 이미지

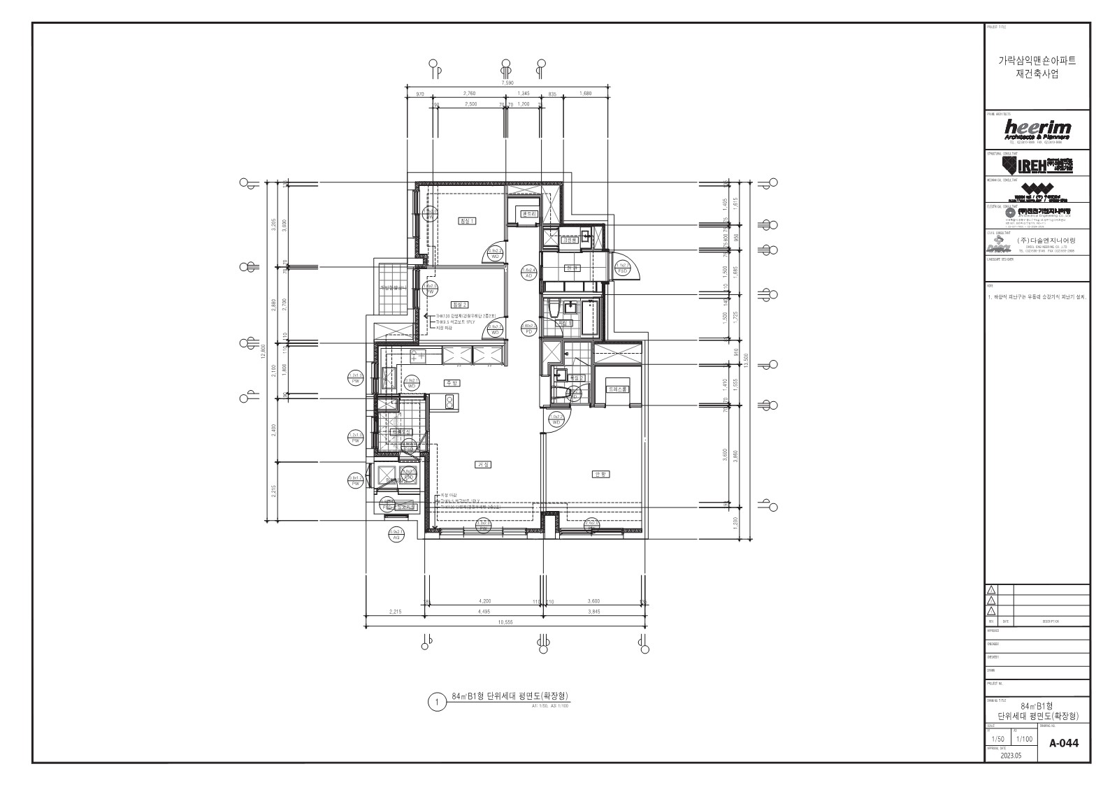
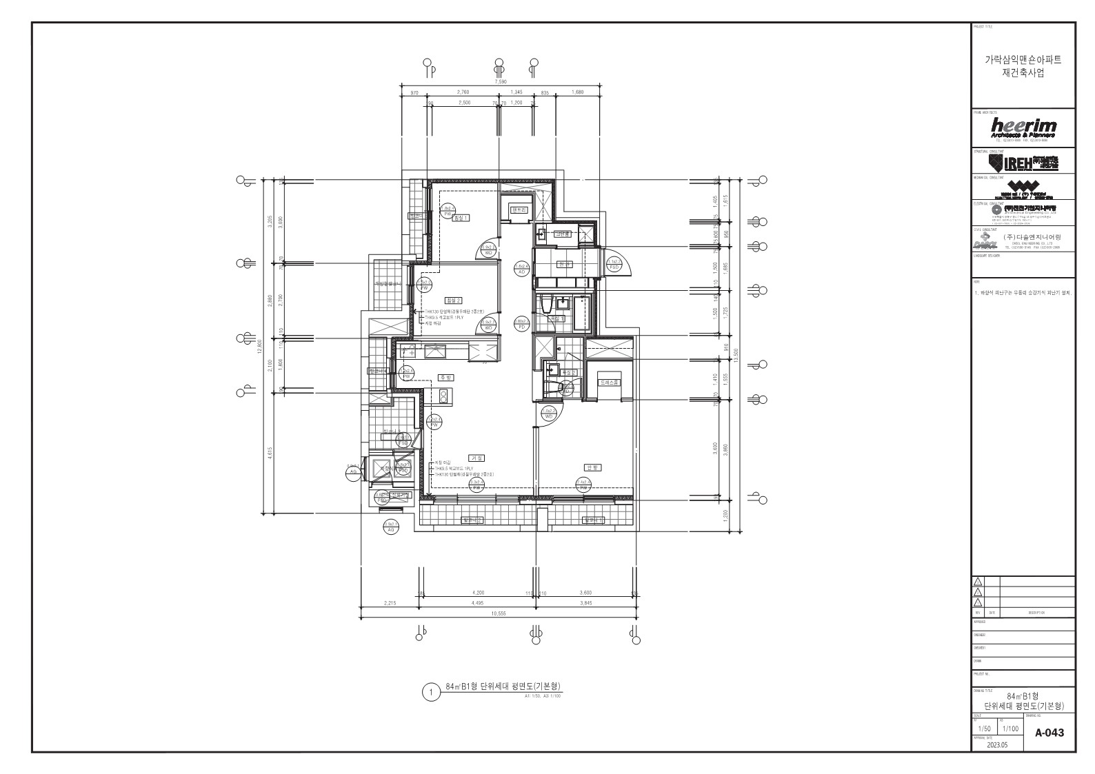
단위세대평면도(84㎡B1)

단위세대평면도(84㎡B1)
공급면적 (㎡) 11,321.29㎡
사업시행인가(변경)일자 2023-11-16
형별 84㎡B1
세대수 100세대
전용면적 (㎡) 8,470.59㎡
공용면적 (㎡) 2,850.7㎡

단위세대평면도 이미지

단위세대평면도 이미지

사업추진 단계별
공개자료 조회

툴팁 아이콘
원하시는 사업 추진단계에 등록된 자료들을 조회해 보실 수 있습니다.