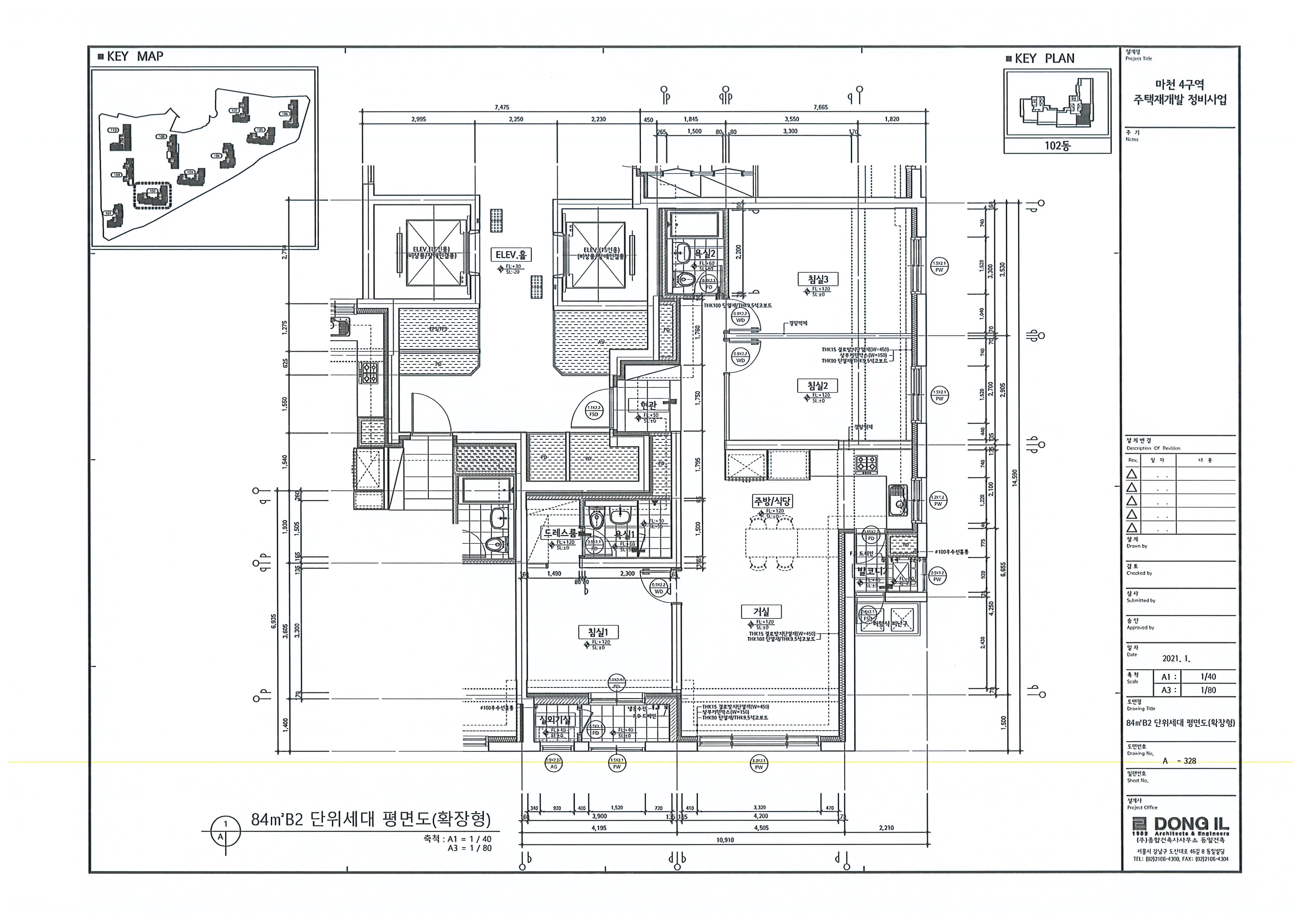
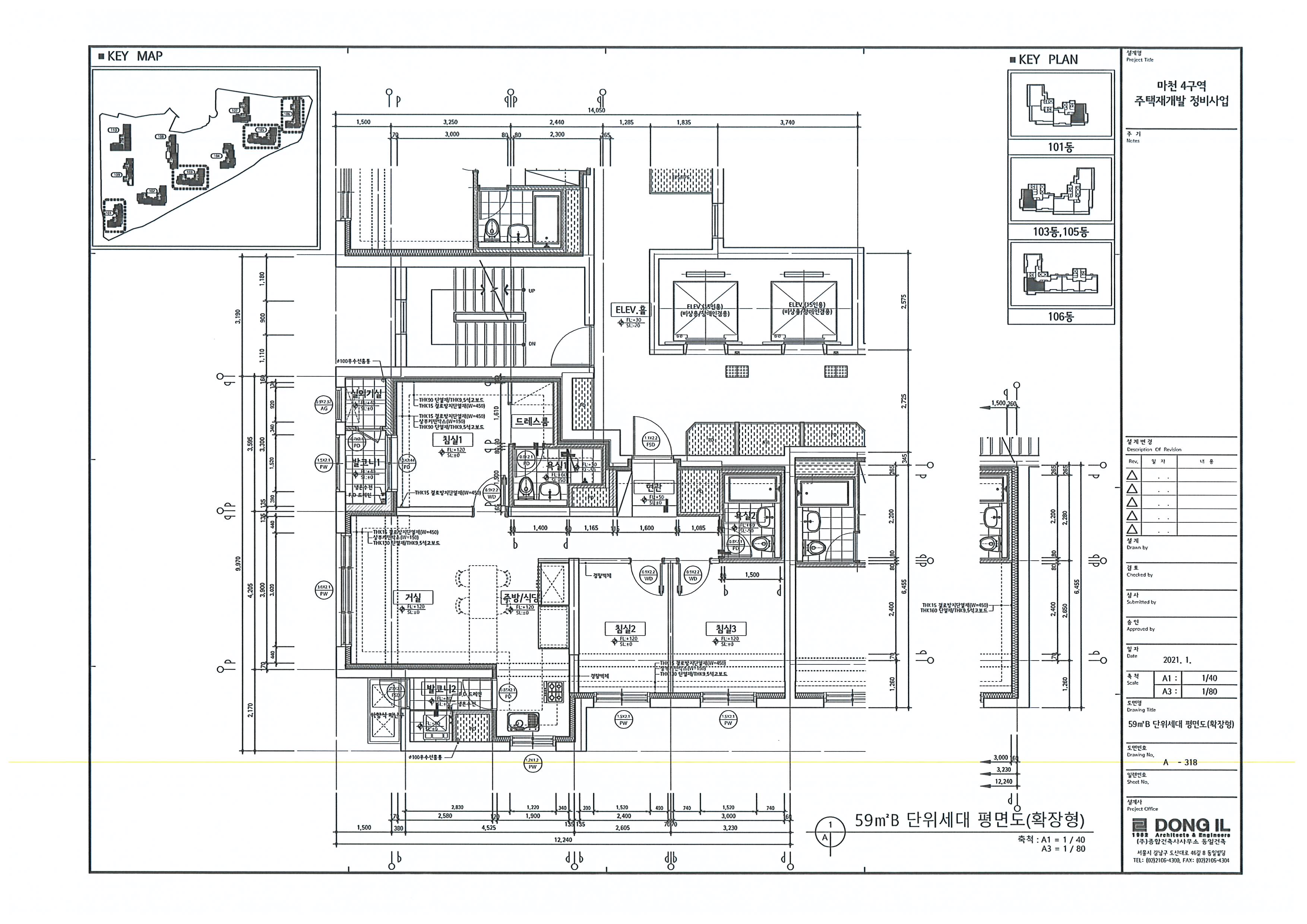
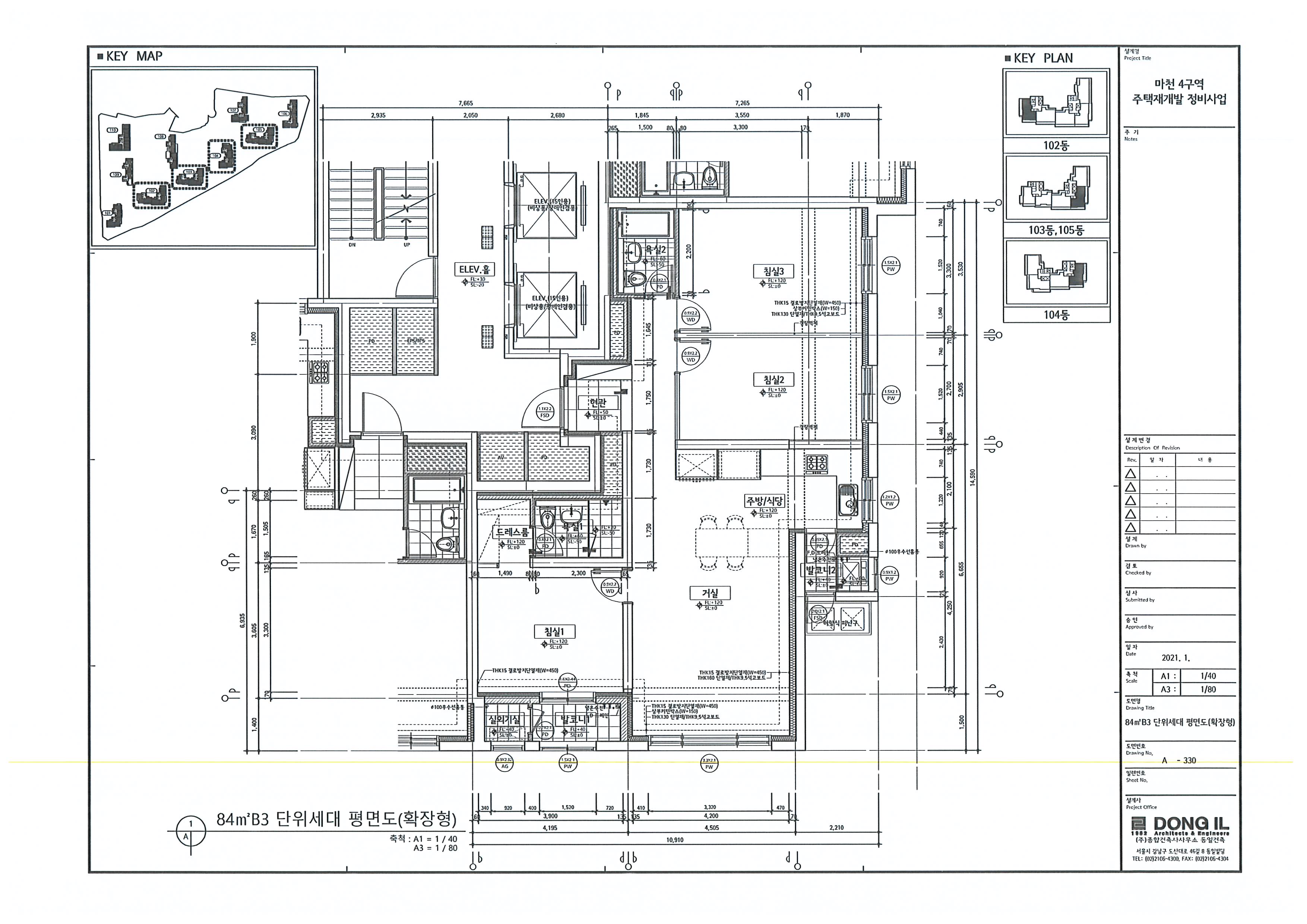
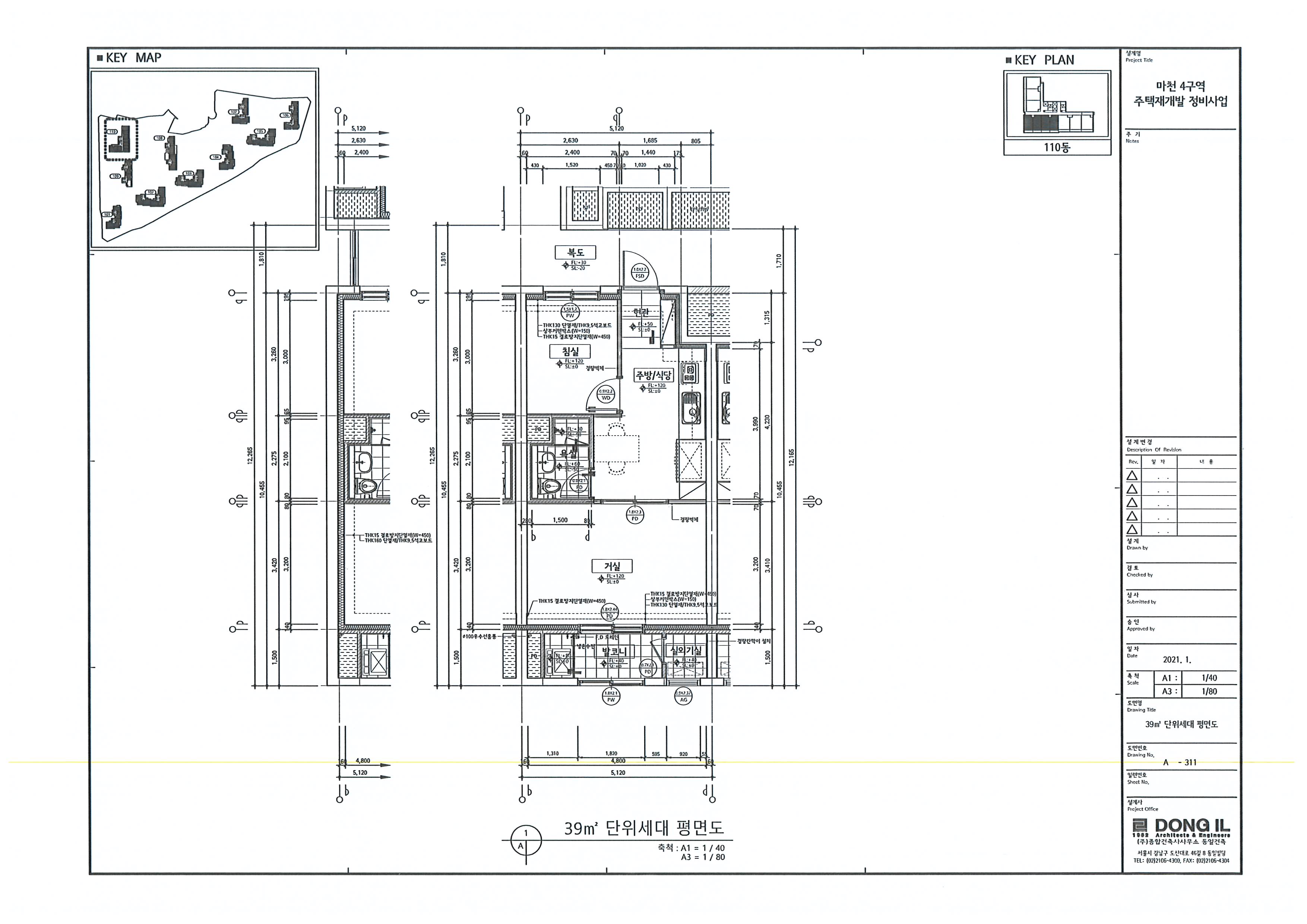
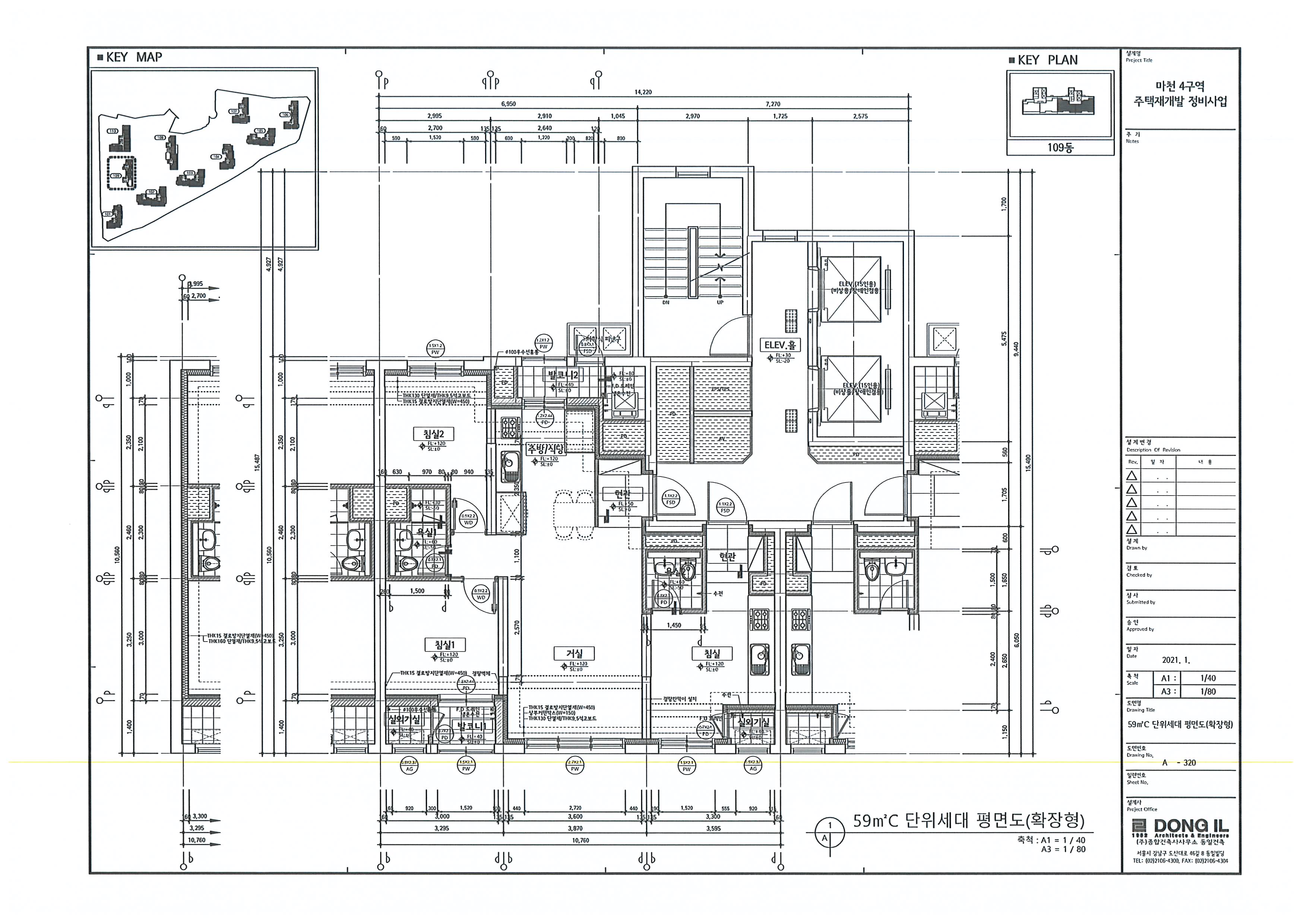
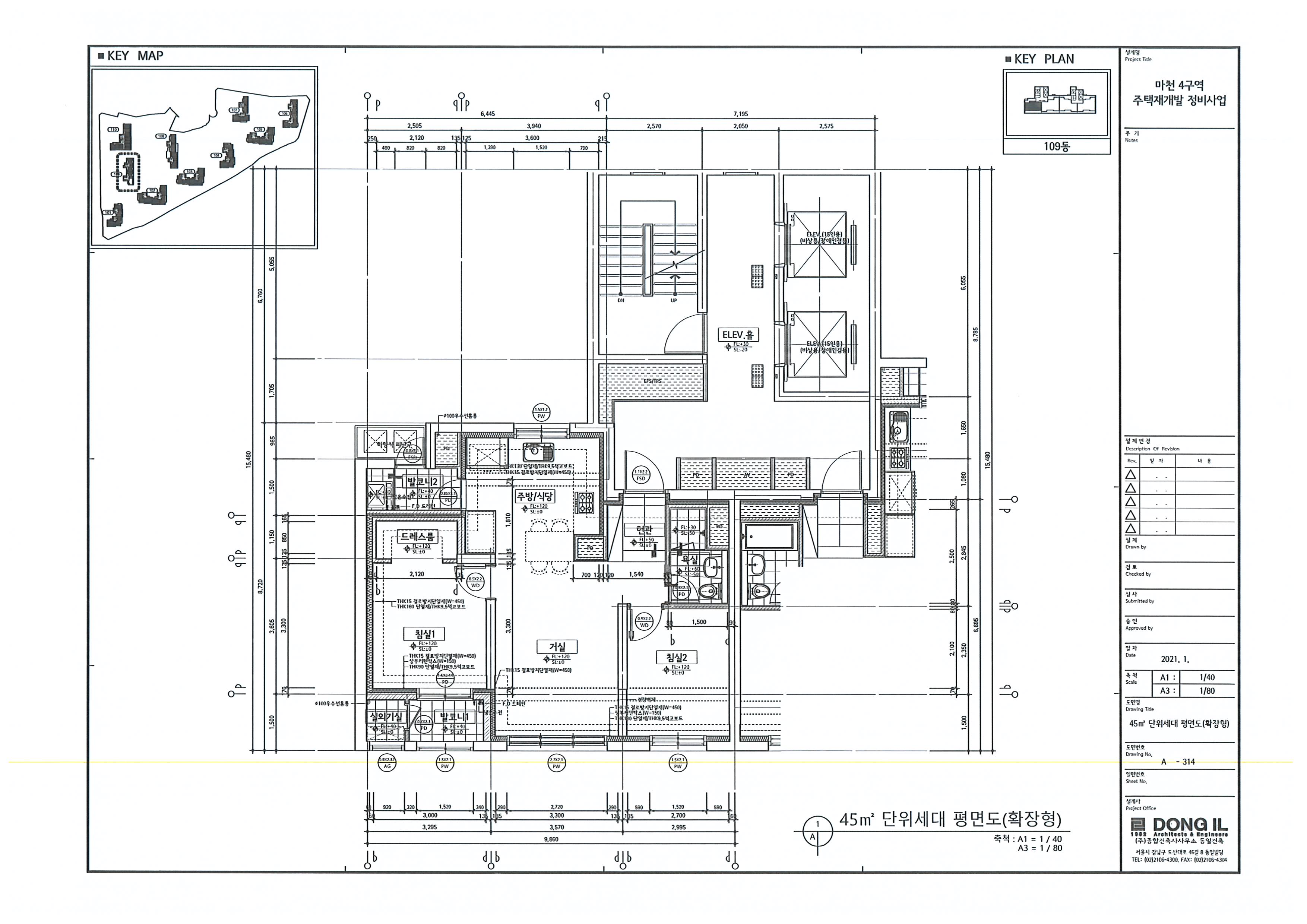
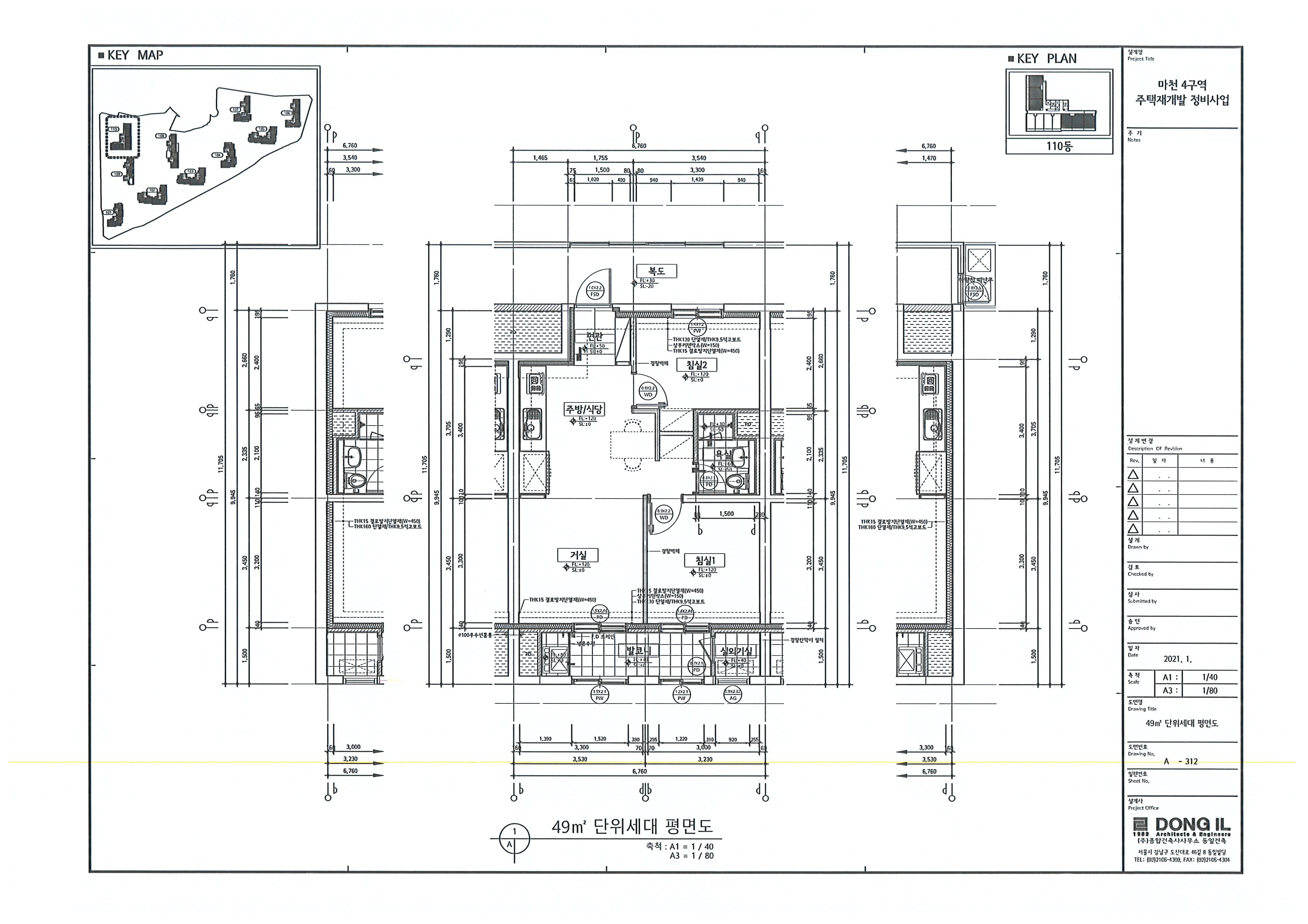
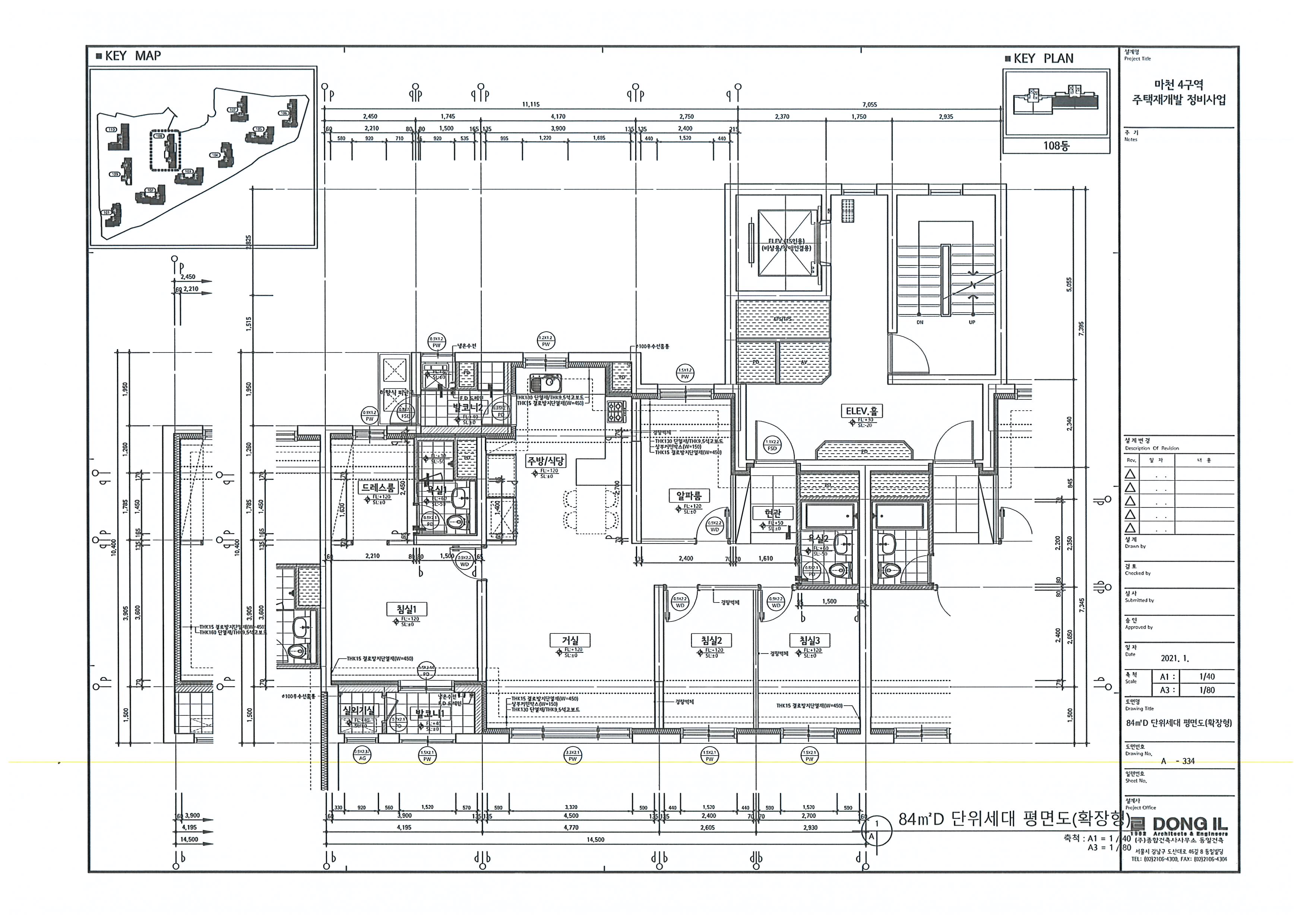
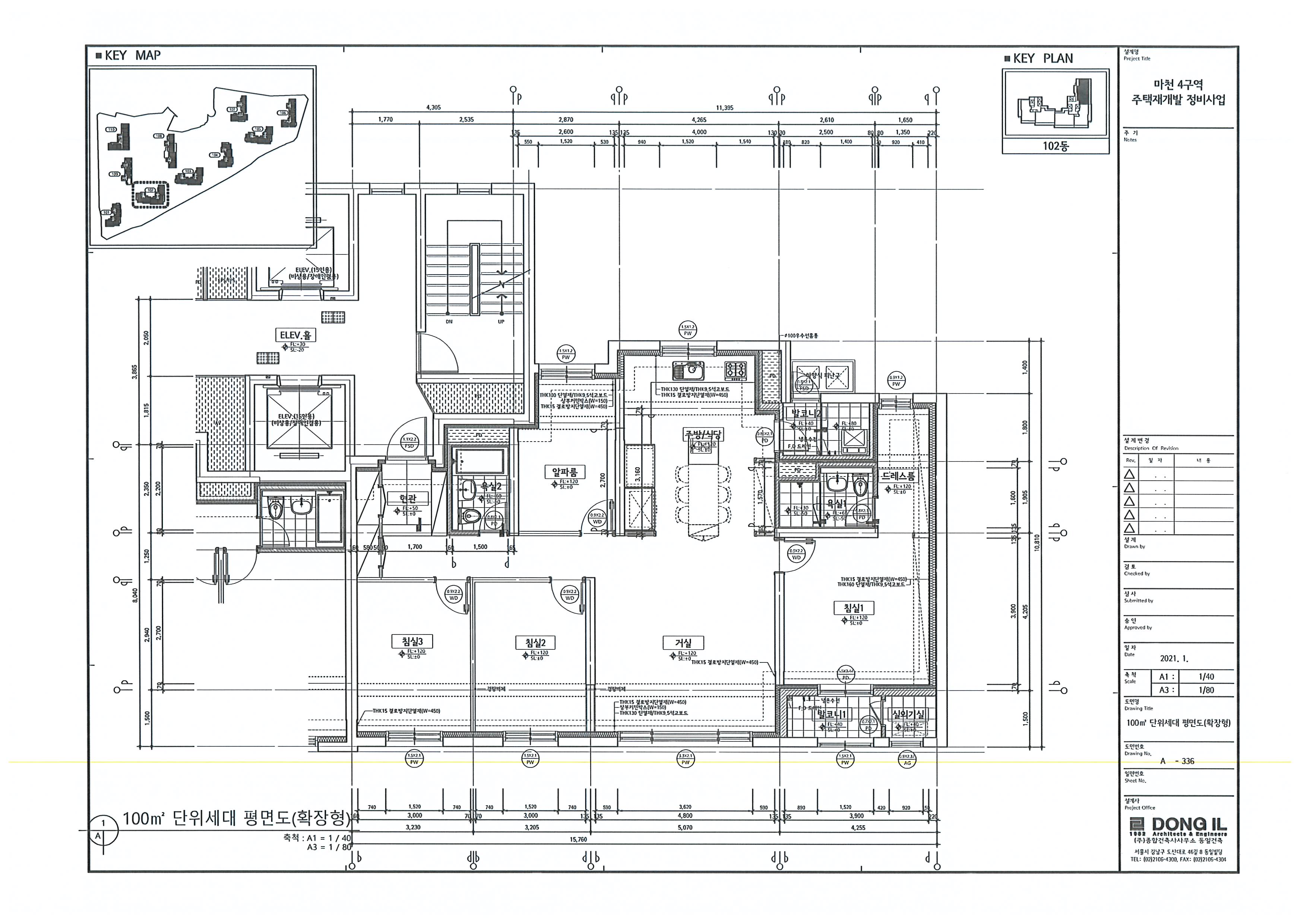
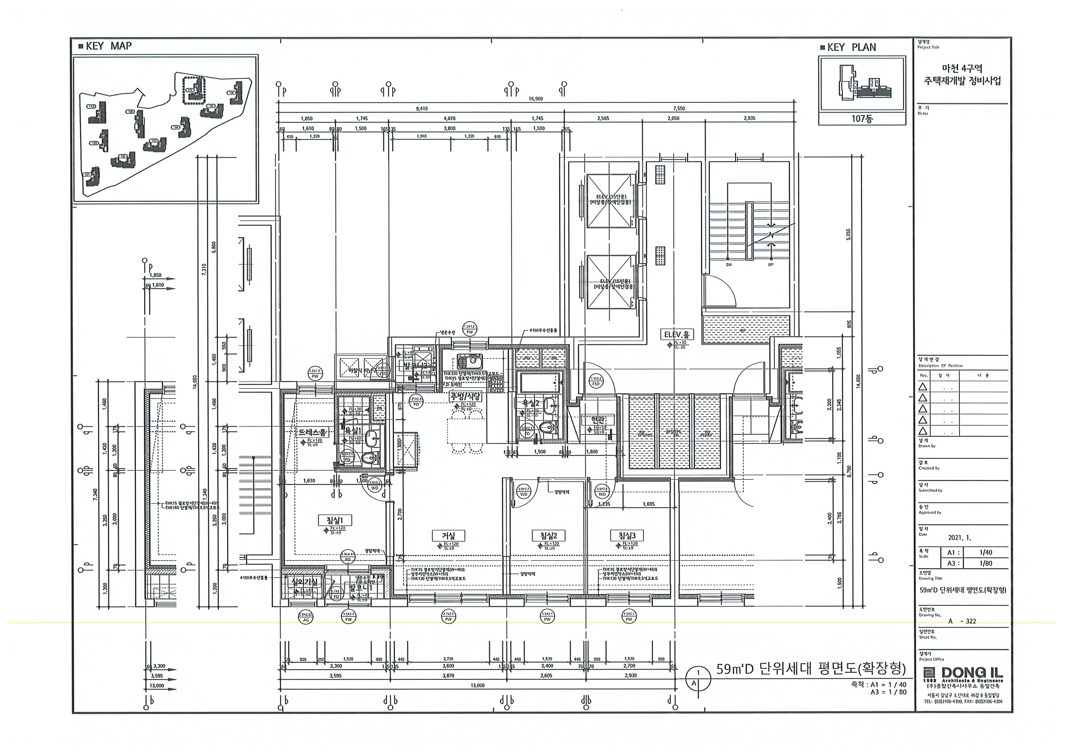
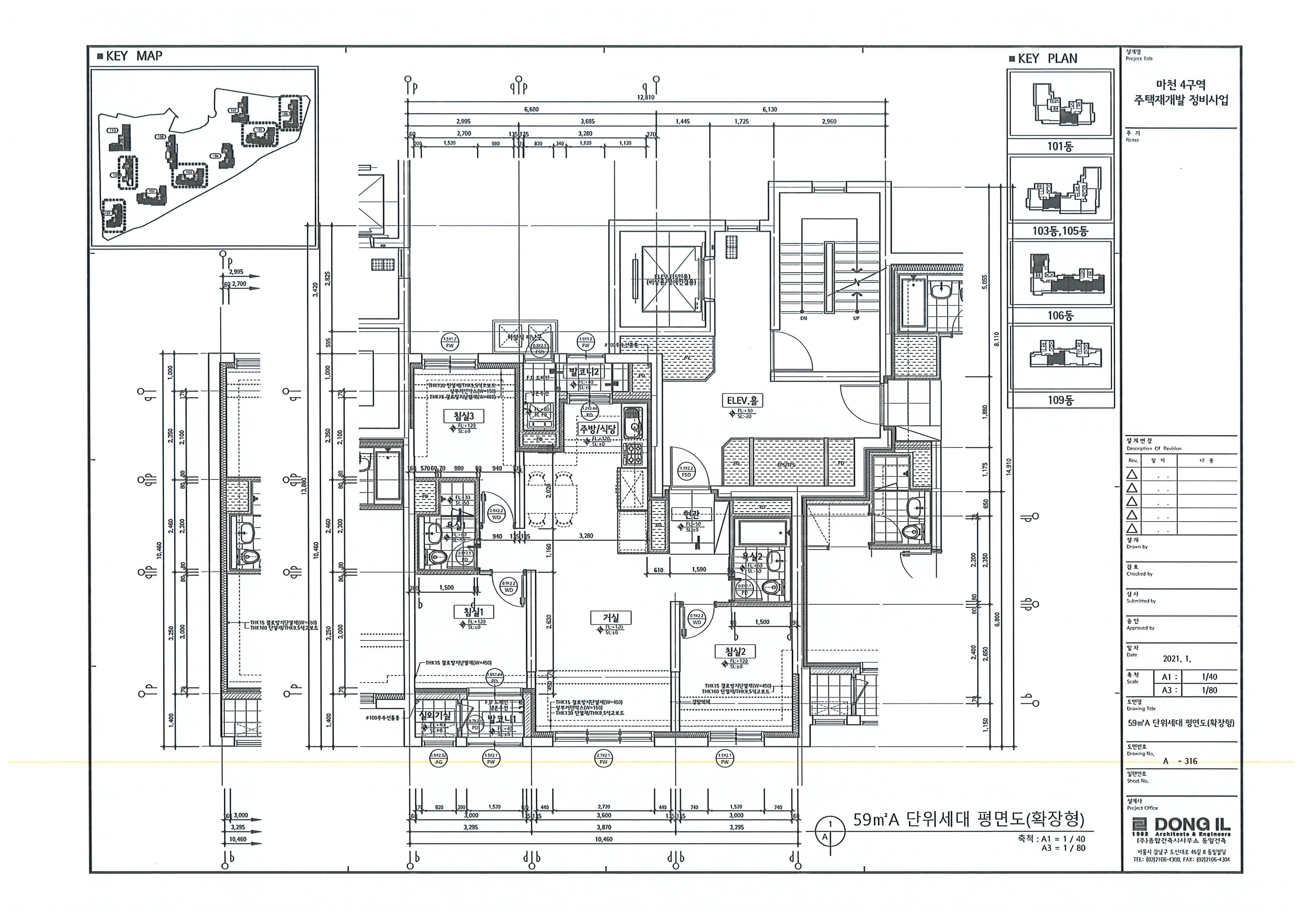
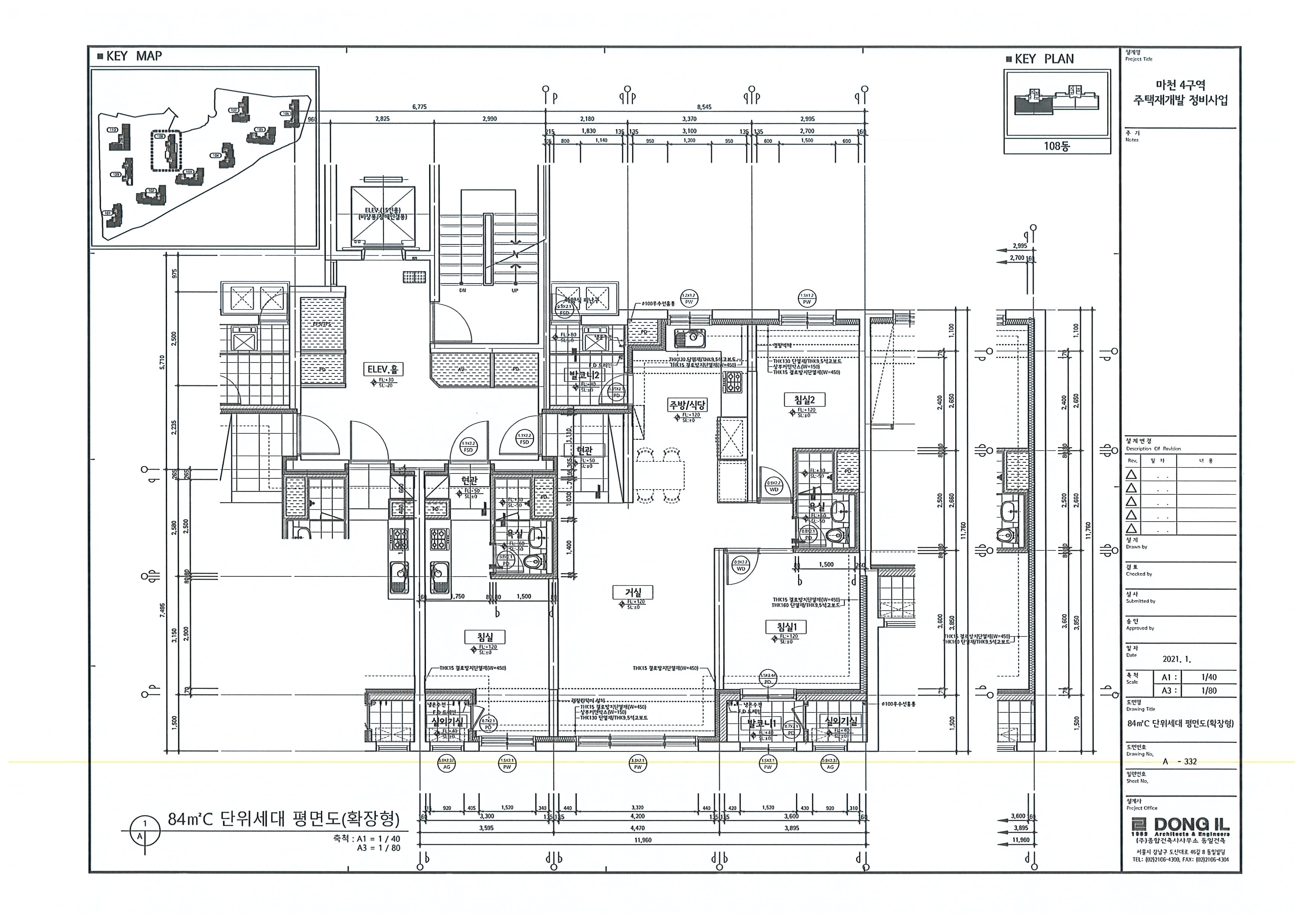
단위세대평면도
정비사업 추진과정을 유리알처럼 투명하게 공개

건축시설계획-단위세대평면도

건축시설계획-단위세대평면도
공급면적 (㎡) 39,45,49,59,84,100
사업시행인가(변경)일자 2021-04-02
형별 39,45,49,59,84,100
세대수 1372
전용면적 (㎡) 39,45,49,59,84,100
공용면적 (㎡) 18,17,22,23,30,34

단위세대평면도 이미지

단위세대평면도 이미지

단위세대평면도 이미지

단위세대평면도 이미지

단위세대평면도 이미지

단위세대평면도 이미지

단위세대평면도 이미지

단위세대평면도 이미지

단위세대평면도 이미지

단위세대평면도 이미지

단위세대평면도 이미지

단위세대평면도 이미지

단위세대평면도 이미지

사업추진 단계별
공개자료 조회

툴팁 아이콘
원하시는 사업 추진단계에 등록된 자료들을 조회해 보실 수 있습니다.