단위세대평면도
정비사업 추진과정을 유리알처럼 투명하게 공개
| 공급면적 (㎡) | 140.26 |
|---|---|
| 사업시행인가(변경)일자 | 2015-09-23 |
| 형별 | 110A |
| 세대수 | 474 |
| 전용면적 (㎡) | 110.66 |
| 공용면적 (㎡) | 29.60 |
| 공급면적 (㎡) | 141.28 |
|---|---|
| 사업시행인가(변경)일자 | 2015-09-23 |
| 형별 | 110B |
| 세대수 | 294 |
| 전용면적 (㎡) | 110.44 |
| 공용면적 (㎡) | 30.64 |
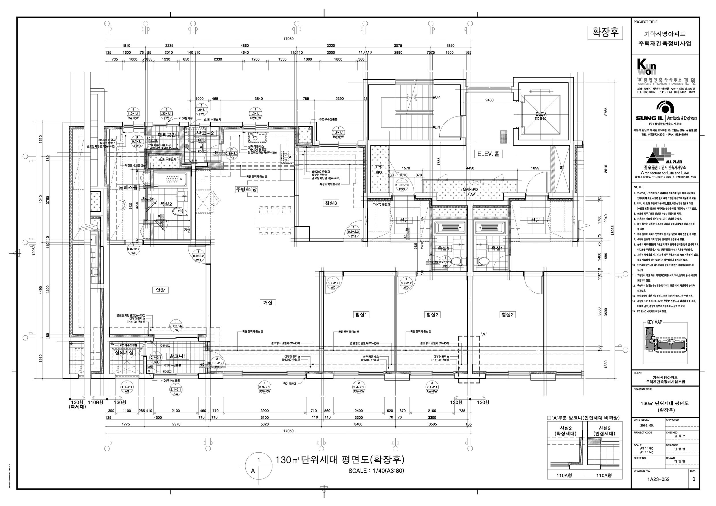
| 공급면적 (㎡) | 163.91 |
|---|---|
| 사업시행인가(변경)일자 | 2015-09-23 |
| 형별 | 130 |
| 세대수 | 136 |
| 전용면적 (㎡) | 130.06 |
| 공용면적 (㎡) | 33.85 |
| 공급면적 (㎡) | 193.06 |
|---|---|
| 사업시행인가(변경)일자 | 2015-09-23 |
| 형별 | 150A |
| 세대수 | 2 |
| 전용면적 (㎡) | 150.21 |
| 공용면적 (㎡) | 42.85 |
| 공급면적 (㎡) | 193.02 |
|---|---|
| 사업시행인가(변경)일자 | 2015-09-23 |
| 형별 | 150B |
| 세대수 | 3 |
| 전용면적 (㎡) | 150.07 |
| 공용면적 (㎡) | 42.95 |
| 공급면적 (㎡) | 193.96 |
|---|---|
| 사업시행인가(변경)일자 | 2015-09-23 |
| 형별 | 150C |
| 세대수 | 10 |
| 전용면적 (㎡) | 150.09 |
| 공용면적 (㎡) | 43.87 |
| 공급면적 (㎡) | 194.20 |
|---|---|
| 사업시행인가(변경)일자 | 2015-09-23 |
| 형별 | 150D |
| 세대수 | 9 |
| 전용면적 (㎡) | 150.09 |
| 공용면적 (㎡) | 44.11 |
| 공급면적 (㎡) | 61.37 |
|---|---|
| 사업시행인가(변경)일자 | 2015-09-23 |
| 형별 | 39A |
| 세대수 | 811(임대 543) |
| 전용면적 (㎡) | 39.1 |
| 공용면적 (㎡) | 22.27 |
| 공급면적 (㎡) | 61.53 |
|---|---|
| 사업시행인가(변경)일자 | 2015-09-23 |
| 형별 | 39B |
| 세대수 | 133(임대 18) |
| 전용면적 (㎡) | 39.12 |
| 공용면적 (㎡) | 22.41 |
| 공급면적 (㎡) | 62.46 |
|---|---|
| 사업시행인가(변경)일자 | 2015-09-23 |
| 형별 | 39C |
| 세대수 | 80(임대 1) |
| 전용면적 (㎡) | 39.86 |
| 공용면적 (㎡) | 22.60 |
| 공급면적 (㎡) | 61.44 |
|---|---|
| 사업시행인가(변경)일자 | 2015-09-23 |
| 형별 | 39D |
| 세대수 | 528(임대 503) |
| 전용면적 (㎡) | 39.17 |
| 공용면적 (㎡) | 22.27 |
| 공급면적 (㎡) | 72.47 |
|---|---|
| 사업시행인가(변경)일자 | 2015-09-23 |
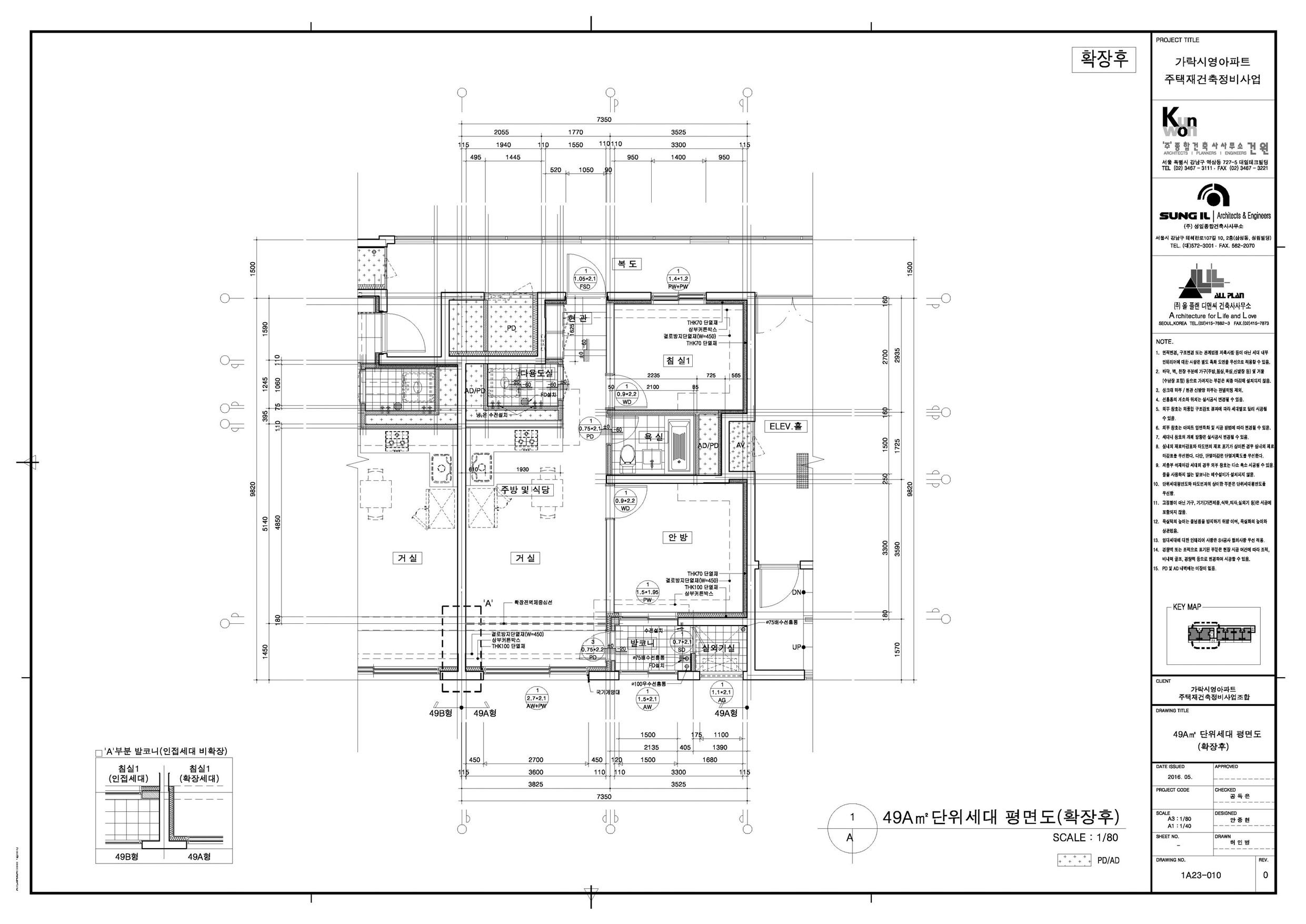
| 형별 | 49A |
| 세대수 | 20(임대 10) |
| 전용면적 (㎡) | 49.19 |
| 공용면적 (㎡) | 23.28 |
| 공급면적 (㎡) | 72.62 |
|---|---|
| 사업시행인가(변경)일자 | 2015-09-23 |
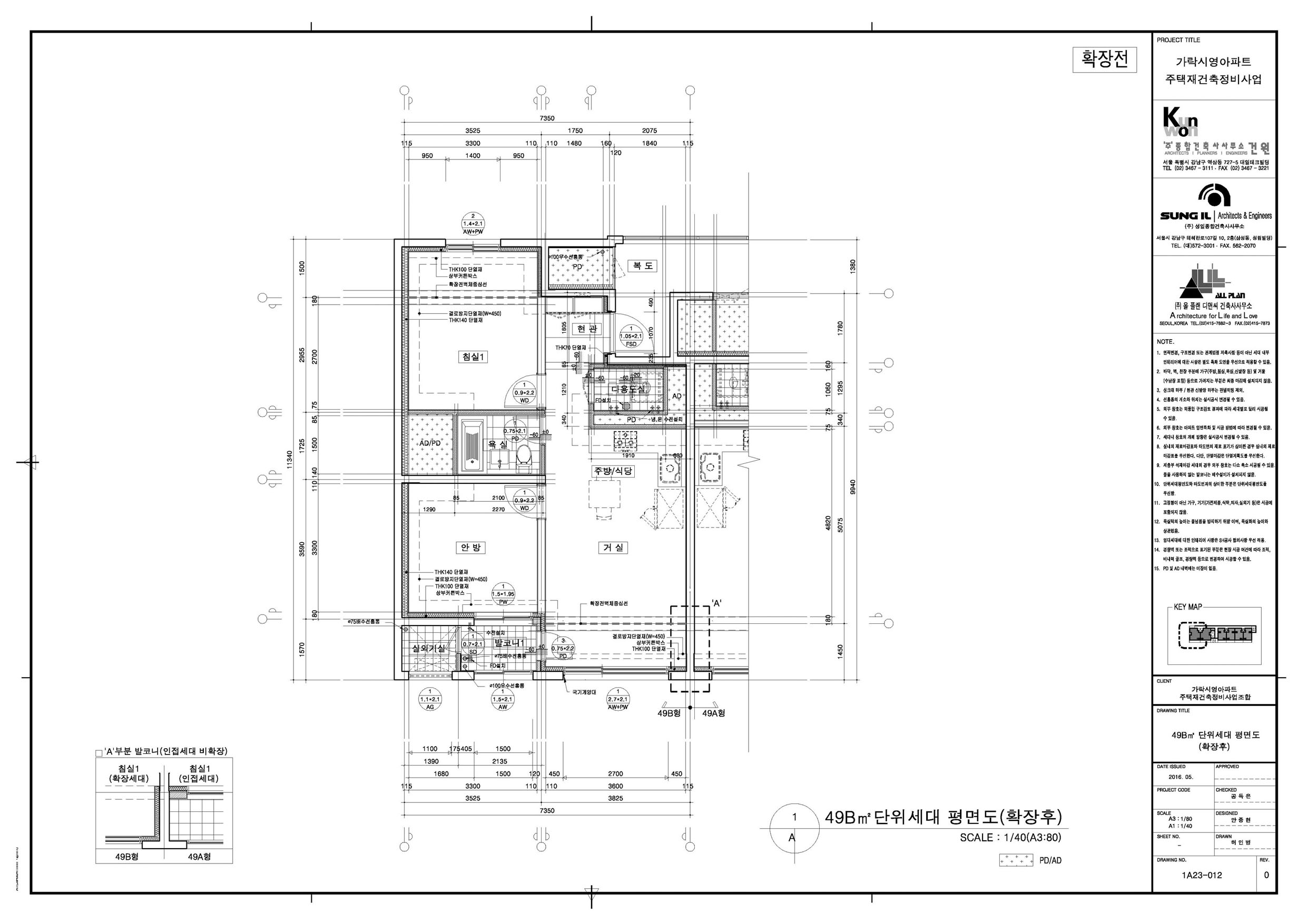
| 형별 | 49B |
| 세대수 | 20(임대 2) |
| 전용면적 (㎡) | 49.32 |
| 공용면적 (㎡) | 23.30 |
| 공급면적 (㎡) | 72.91 |
|---|---|
| 사업시행인가(변경)일자 | 2015-09-23 |
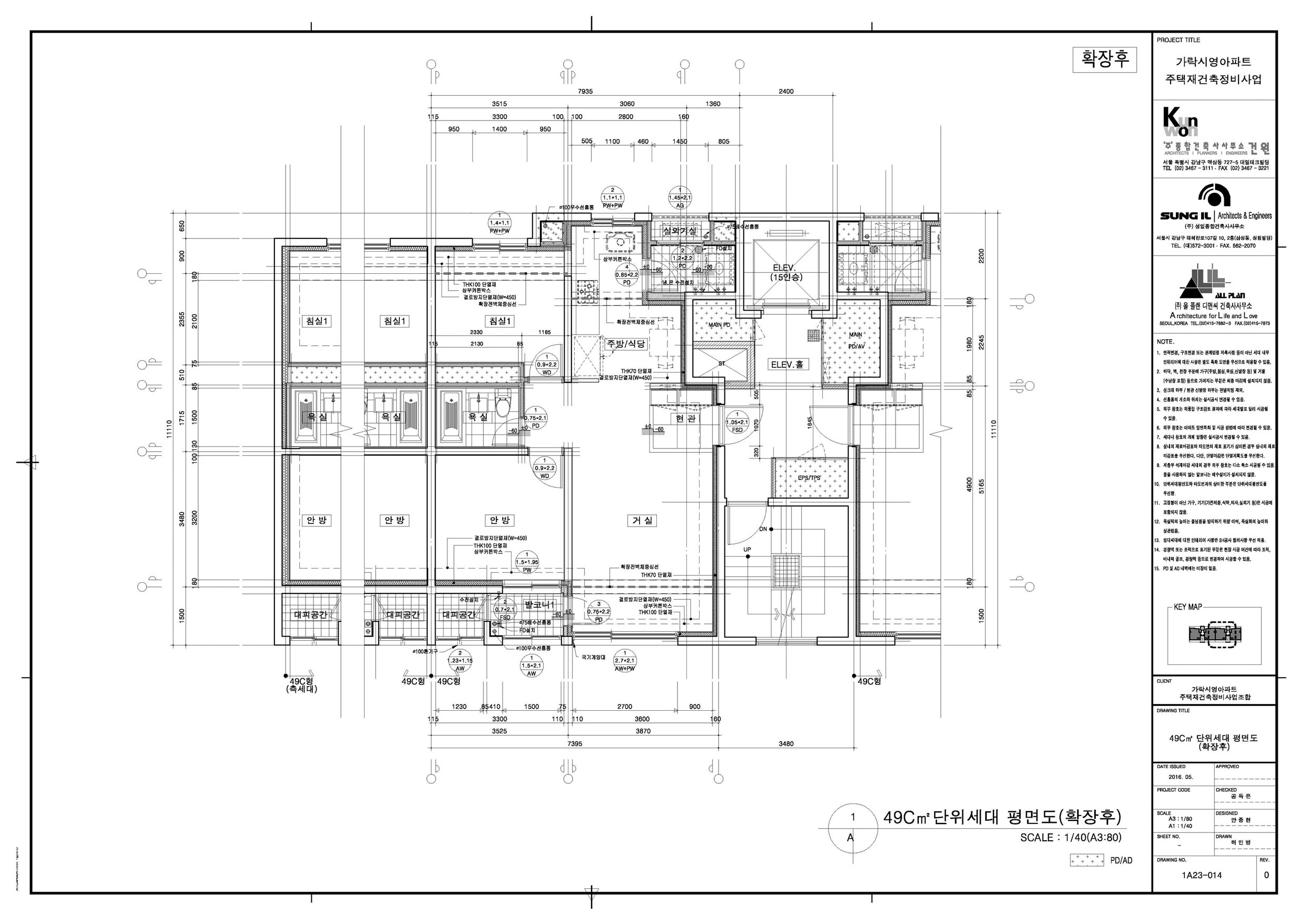
| 형별 | 49C |
| 세대수 | 136(임대 12) |
| 전용면적 (㎡) | 49.29 |
| 공용면적 (㎡) | 23.62 |
| 공급면적 (㎡) | 72.52 |
|---|---|
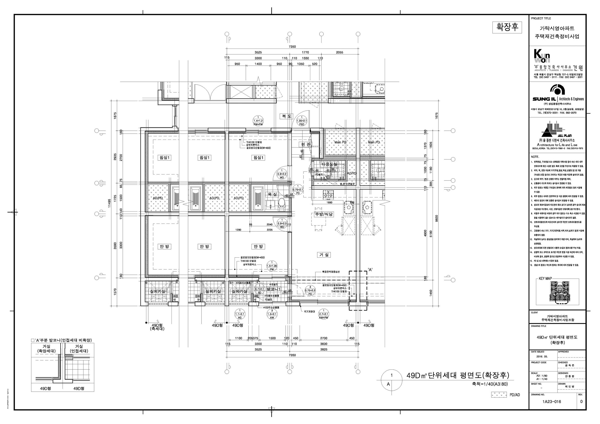
| 사업시행인가(변경)일자 | 2015-09-23 |
| 형별 | 49D |
| 세대수 | 360(임대 292) |
| 전용면적 (㎡) | 49.21 |
| 공용면적 (㎡) | 23.31 |
| 공급면적 (㎡) | 84.1 |
|---|---|
| 사업시행인가(변경)일자 | 2015-09-23 |
| 형별 | 59 |
| 세대수 | 766(임대 20) |
| 전용면적 (㎡) | 59.96 |
| 공용면적 (㎡) | 24.14 |
| 공급면적 (㎡) | 107.97 |
|---|---|
| 사업시행인가(변경)일자 | 2015-09-23 |
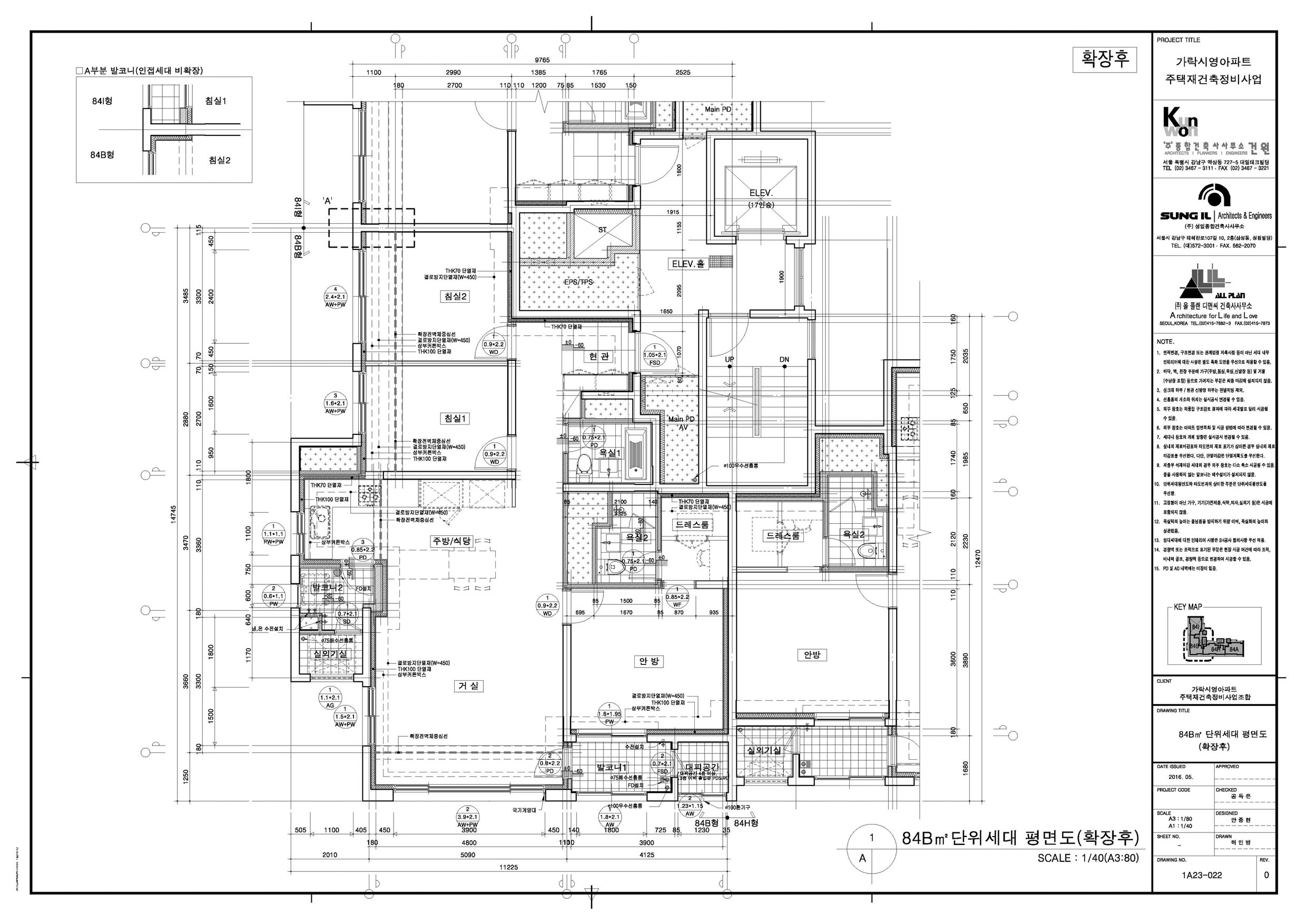
| 형별 | 84A |
| 세대수 | 731 |
| 전용면적 (㎡) | 84.98 |
| 공용면적 (㎡) | 22.99 |
| 공급면적 (㎡) | 109.76 |
|---|---|
| 사업시행인가(변경)일자 | 2015-09-23 |
| 형별 | 84B |
| 세대수 | 28 |
| 전용면적 (㎡) | 84.99 |
| 공용면적 (㎡) | 24.77 |
| 공급면적 (㎡) | 109.87 |
|---|---|
| 사업시행인가(변경)일자 | 2015-09-23 |
| 형별 | 84C |
| 세대수 | 317 |
| 전용면적 (㎡) | 84.99 |
| 공용면적 (㎡) | 24.88 |
| 공급면적 (㎡) | 110.10 |
|---|---|
| 사업시행인가(변경)일자 | 2015-09-23 |
| 형별 | 84D |
| 세대수 | 1480 |
| 전용면적 (㎡) | 84.99 |
| 공용면적 (㎡) | 25.11 |
| 공급면적 (㎡) | 109.73 |
|---|---|
| 사업시행인가(변경)일자 | 2015-09-23 |
| 형별 | 84E |
| 세대수 | 687 |
| 전용면적 (㎡) | 84.98 |
| 공용면적 (㎡) | 24.75 |
| 공급면적 (㎡) | 110.17 |
|---|---|
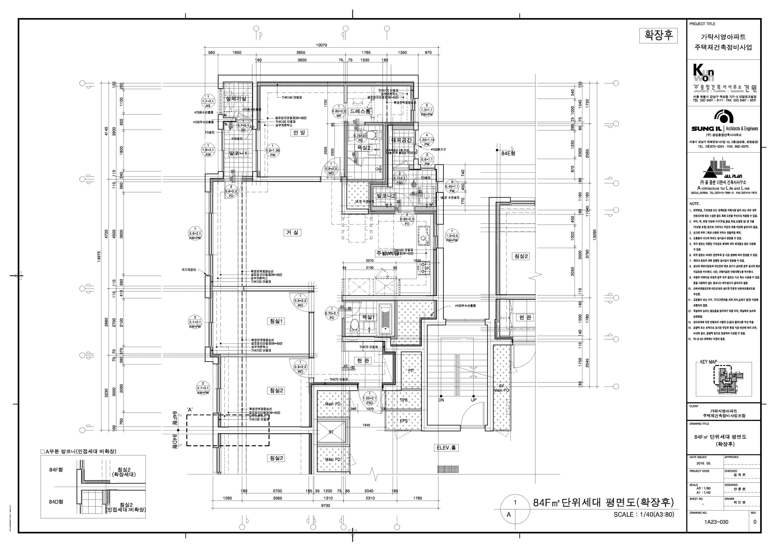
| 사업시행인가(변경)일자 | 2015-09-23 |
| 형별 | 84F |
| 세대수 | 740 |
| 전용면적 (㎡) | 84.95 |
| 공용면적 (㎡) | 25.22 |
| 공급면적 (㎡) | 108.43 |
|---|---|
| 사업시행인가(변경)일자 | 2015-09-23 |
| 형별 | 84G |
| 세대수 | 317 |
| 전용면적 (㎡) | 84.98 |
| 공용면적 (㎡) | 23.45 |
| 공급면적 (㎡) | 108.71 |
|---|---|
| 사업시행인가(변경)일자 | 2015-09-23 |
| 형별 | 84H |
| 세대수 | 27 |
| 전용면적 (㎡) | 84.98 |
| 공용면적 (㎡) | 23.73 |
| 공급면적 (㎡) | 107.66 |
|---|---|
| 사업시행인가(변경)일자 | 2015-09-23 |
| 형별 | 84I |
| 세대수 | 26 |
| 전용면적 (㎡) | 84.94 |
| 공용면적 (㎡) | 22.72 |
| 공급면적 (㎡) | 107.66 |
|---|---|
| 사업시행인가(변경)일자 | 2015-09-23 |
| 형별 | 84J-1 |
| 세대수 | 164 |
| 전용면적 (㎡) | 84.96 |
| 공용면적 (㎡) | 22.70 |
| 공급면적 (㎡) | 107.66 |
|---|---|
| 사업시행인가(변경)일자 | 2015-09-23 |
| 형별 | 84J-2 |
| 세대수 | 164 |
| 전용면적 (㎡) | 84.96 |
| 공용면적 (㎡) | 22.70 |
| 공급면적 (㎡) | 108.01 |
|---|---|
| 사업시행인가(변경)일자 | 2015-09-23 |
| 형별 | 84K |
| 세대수 | 293 |
| 전용면적 (㎡) | 84.98 |
| 공용면적 (㎡) | 23.03 |
| 공급면적 (㎡) | 108.72 |
|---|---|
| 사업시행인가(변경)일자 | 2015-09-23 |
| 형별 | 84L |
| 세대수 | 158 |
| 전용면적 (㎡) | 84.97 |
| 공용면적 (㎡) | 23.75 |
| 공급면적 (㎡) | 126.35 |
|---|---|
| 사업시행인가(변경)일자 | 2015-09-23 |
| 형별 | 99 |
| 세대수 | 596 |
| 전용면적 (㎡) | 99.60 |
| 공용면적 (㎡) | 26.75 |