단위세대평면도
정비사업 추진과정을 유리알처럼 투명하게 공개

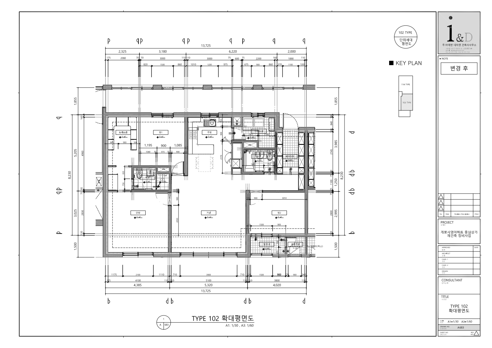
TYPE102확대평면도(사업시행변경인가)

TYPE102확대평면도(사업시행변경인가)
공급면적 (㎡) 144.5632
사업시행인가(변경)일자 2020-07-22
형별 TYPE102
세대수 2
전용면적 (㎡) 102.9354
공용면적 (㎡) 41.6278

단위세대평면도 이미지

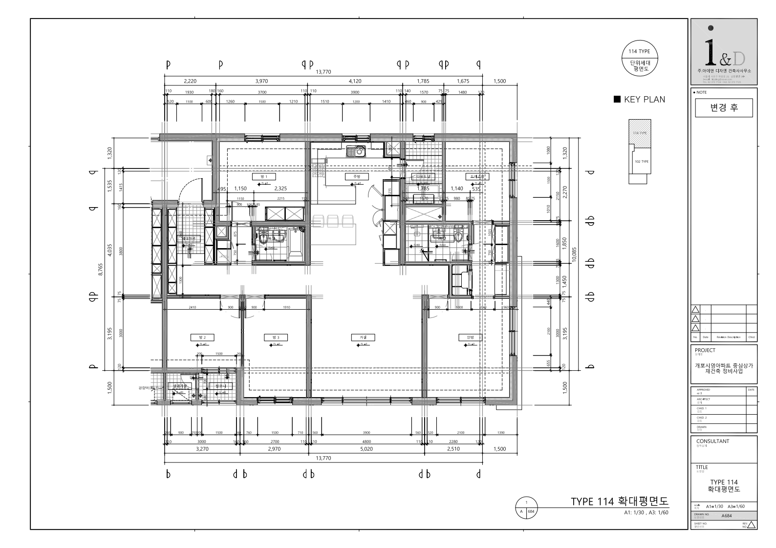
TYPE114확대평면도(사업시행변경인가)

TYPE114확대평면도(사업시행변경인가)
공급면적 (㎡) 158.9001
사업시행인가(변경)일자 2020-07-22
형별 TYPE114
세대수 2
전용면적 (㎡) 114.0800
공용면적 (㎡) 44.8201

단위세대평면도 이미지

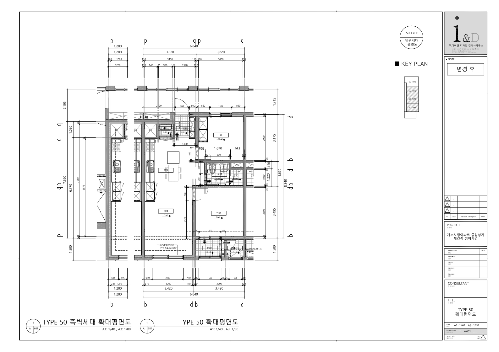
TYPE50확대평면도(사업시행변경인가)

TYPE50확대평면도(사업시행변경인가)
공급면적 (㎡) 71.8952
사업시행인가(변경)일자 2020-07-22
형별 TYPE50
세대수 18
전용면적 (㎡) 50.8665
공용면적 (㎡) 21.0287

단위세대평면도 이미지

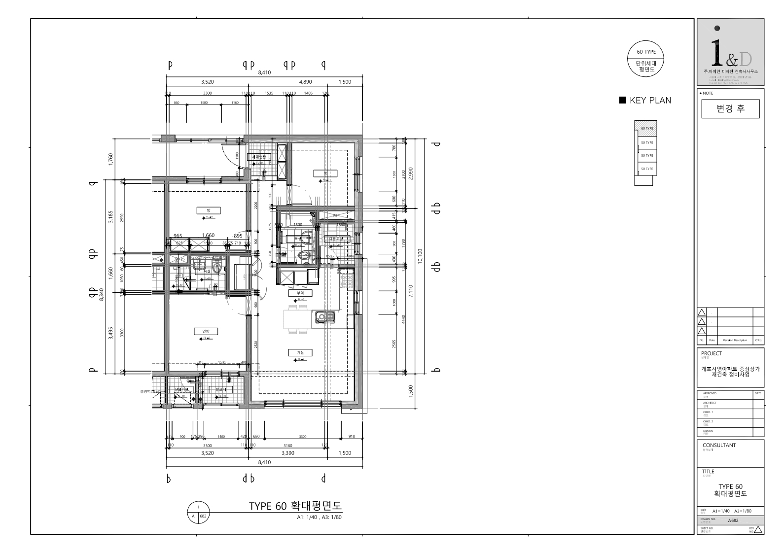
TYPE60확대평면도(사업시행변경인가)

TYPE60확대평면도(사업시행변경인가)
공급면적 (㎡) 85.8796
사업시행인가(변경)일자 2020-07-22
형별 TYPE60
세대수 6
전용면적 (㎡) 60.7676
공용면적 (㎡) 85.8796

단위세대평면도 이미지

사업추진 단계별
공개자료 조회

툴팁 아이콘
원하시는 사업 추진단계에 등록된 자료들을 조회해 보실 수 있습니다.