단위세대평면도
정비사업 추진과정을 유리알처럼 투명하게 공개

사업시행(변경)인가(2018.10.16) 단위세대 평면도 (분양/59)

사업시행(변경)인가(2018.10.16) 단위세대 평면도 (분양/59)
공급면적 (㎡) 140.1942
사업시행인가(변경)일자 2018-10-17
형별 59
세대수 79
전용면적 (㎡) 59.9972
공용면적 (㎡) 80.197

단위세대평면도 이미지

단위세대평면도 이미지

사업시행(변경)인가(2018.10.16) 단위세대 평면도 (분양/77A)

사업시행(변경)인가(2018.10.16) 단위세대 평면도 (분양/77A)
공급면적 (㎡) 181.4343
사업시행인가(변경)일자 2018-10-17
형별 77A
세대수 25
전용면적 (㎡) 77.9767
공용면적 (㎡) 103.4576

단위세대평면도 이미지

단위세대평면도 이미지

사업시행(변경)인가(2018.10.16) 단위세대 평면도 (분양/77B)

사업시행(변경)인가(2018.10.16) 단위세대 평면도 (분양/77B)
공급면적 (㎡) 181.4857
사업시행인가(변경)일자 2018-10-17
형별 77B
세대수 24
전용면적 (㎡) 77.9769
공용면적 (㎡) 103.5088

단위세대평면도 이미지

단위세대평면도 이미지

사업시행(변경)인가(2018.10.16) 단위세대 평면도 (분양/84A)

사업시행(변경)인가(2018.10.16) 단위세대 평면도 (분양/84A)
공급면적 (㎡) 197.1114
사업시행인가(변경)일자 2018-10-17
형별 84A
세대수 26
전용면적 (㎡) 84.7692
공용면적 (㎡) 112.3422

단위세대평면도 이미지

단위세대평면도 이미지

사업시행(변경)인가(2018.10.16) 단위세대 평면도 (분양/84B)

사업시행(변경)인가(2018.10.16) 단위세대 평면도 (분양/84B)
공급면적 (㎡) 196.9729
사업시행인가(변경)일자 2018-10-17
형별 84B
세대수 29
전용면적 (㎡) 84.7735
공용면적 (㎡) 112.1994

단위세대평면도 이미지

단위세대평면도 이미지

사업시행(변경)인가(2018.10.16) 단위세대 평면도 (분양/84C)

사업시행(변경)인가(2018.10.16) 단위세대 평면도 (분양/84C)
공급면적 (㎡) 196.7798
사업시행인가(변경)일자 2018-10-17
형별 84C
세대수 30
전용면적 (㎡) 84.7763
공용면적 (㎡) 112.0035

단위세대평면도 이미지

단위세대평면도 이미지

사업시행(변경)인가(2018.10.16) 단위세대 평면도 (분양/84D)

사업시행(변경)인가(2018.10.16) 단위세대 평면도 (분양/84D)
공급면적 (㎡) 197.5642
사업시행인가(변경)일자 2018-10-17
형별 84D
세대수 29
전용면적 (㎡) 84.8067
공용면적 (㎡) 112.7575

단위세대평면도 이미지

단위세대평면도 이미지

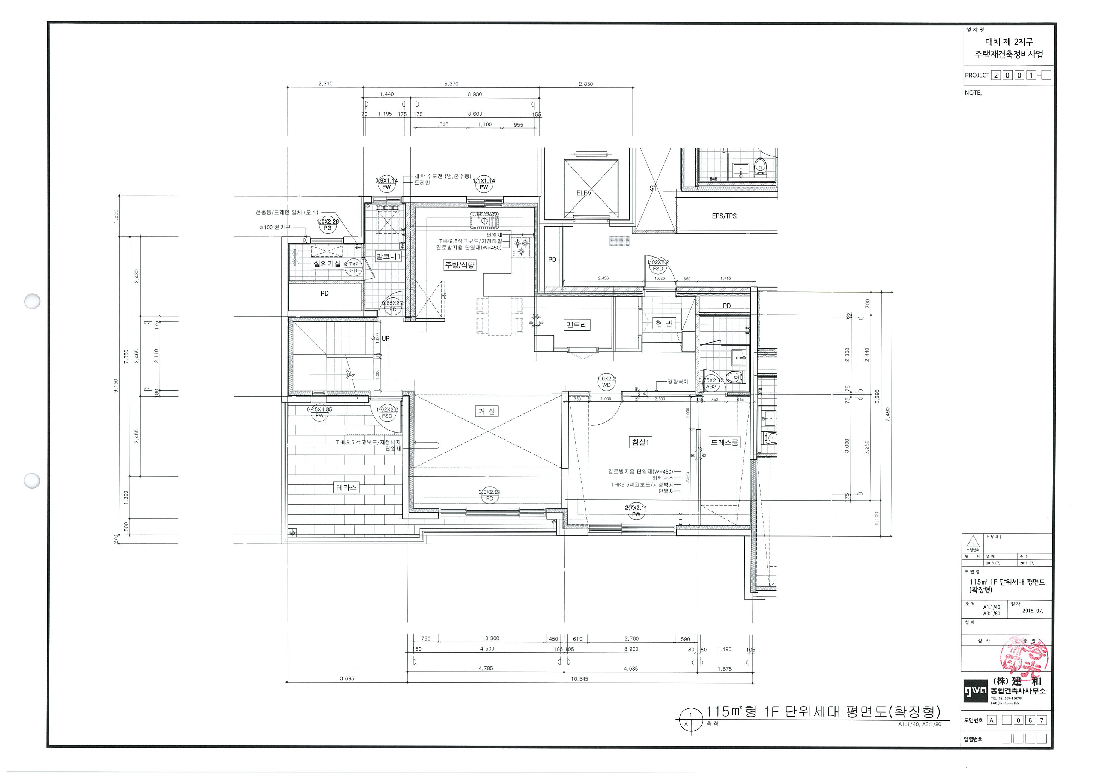
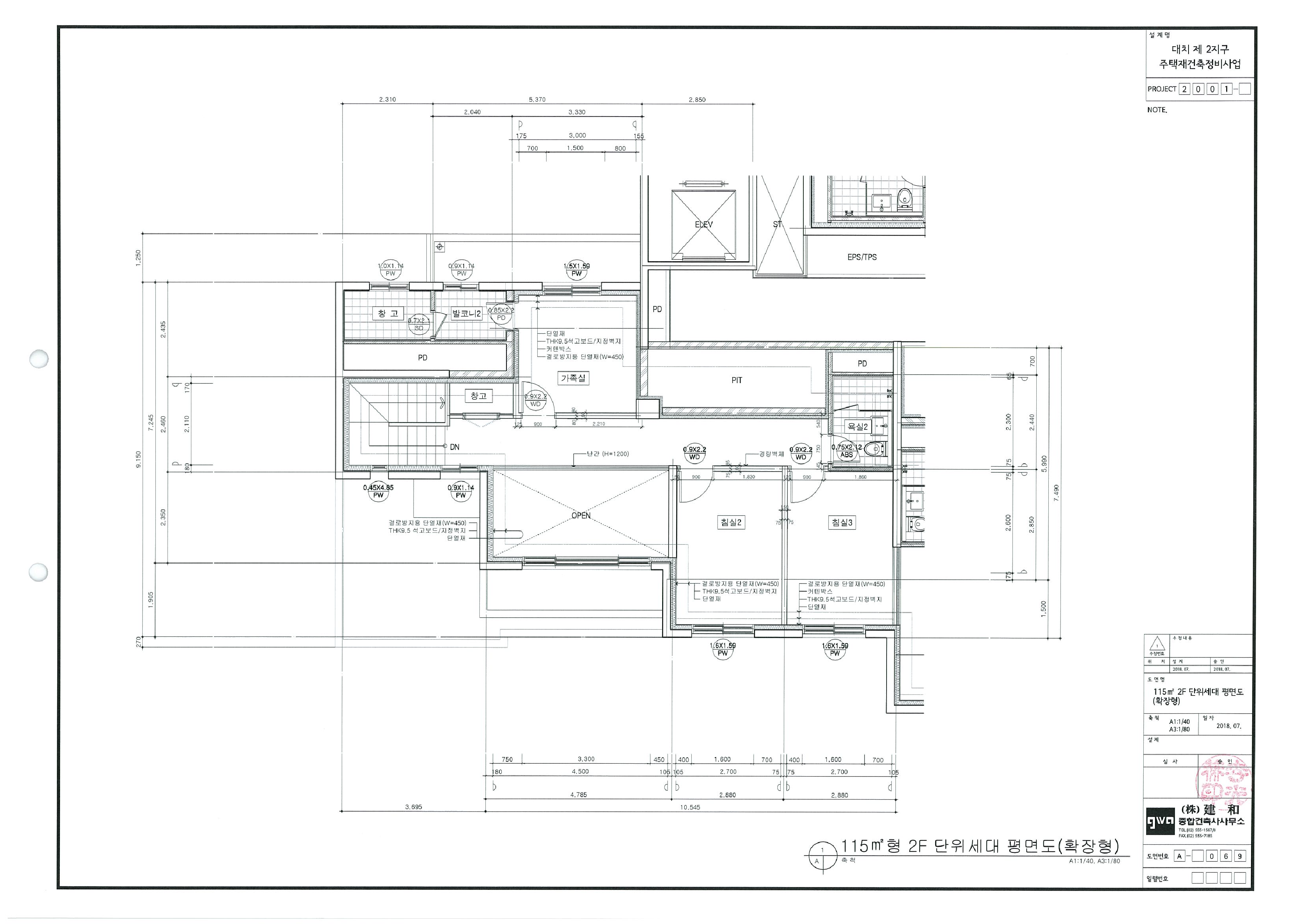
사업시행(변경)인가(2018.10.16) 단위세대 평면도 (분양/PH115)

사업시행(변경)인가(2018.10.16) 단위세대 평면도 (분양/PH115)
공급면적 (㎡) 274.3327
사업시행인가(변경)일자 2018-10-17
형별 PH115
세대수 2
전용면적 (㎡) 115.8799
공용면적 (㎡) 158.4528

단위세대평면도 이미지

단위세대평면도 이미지

단위세대평면도 이미지

단위세대평면도 이미지

사업시행(변경)인가(2018.10.16) 단위세대 평면도 (분양/TH55)

사업시행(변경)인가(2018.10.16) 단위세대 평면도 (분양/TH55)
공급면적 (㎡) 131.4946
사업시행인가(변경)일자 2018-10-17
형별 TH55
세대수 2
전용면적 (㎡) 55.9558
공용면적 (㎡) 75.5388

단위세대평면도 이미지

단위세대평면도 이미지

사업시행(변경)인가(2018.10.16) 단위세대 평면도 (분양/TH59)

사업시행(변경)인가(2018.10.16) 단위세대 평면도 (분양/TH59)
공급면적 (㎡) 140.1329
사업시행인가(변경)일자 2018-10-17
형별 TH59
세대수 4
전용면적 (㎡) 59.9540
공용면적 (㎡) 80.1789

단위세대평면도 이미지

단위세대평면도 이미지

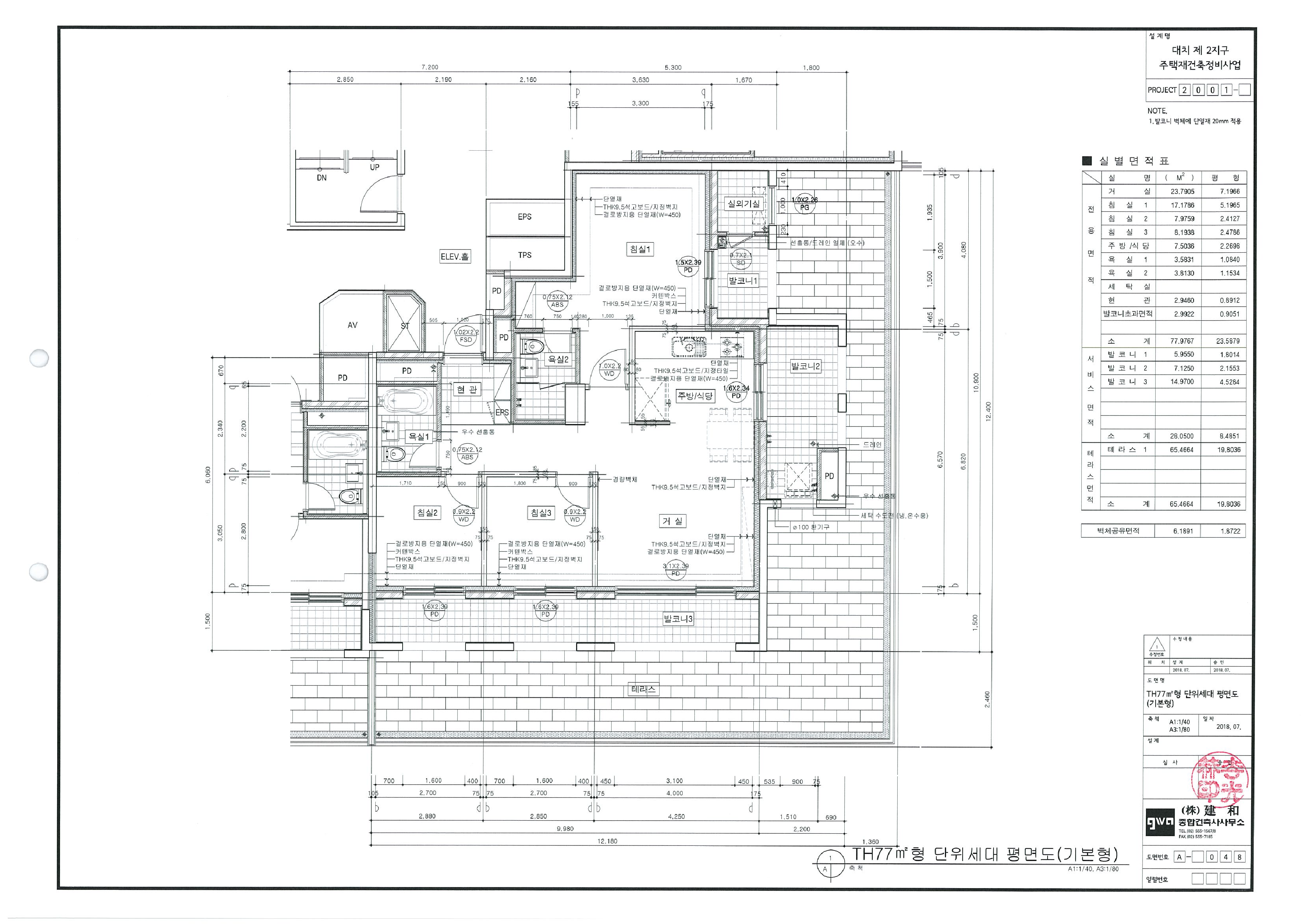
사업시행(변경)인가(2018.10.16) 단위세대 평면도 (분양/TH77)

사업시행(변경)인가(2018.10.16) 단위세대 평면도 (분양/TH77)
공급면적 (㎡) 181.4343
사업시행인가(변경)일자 2018-10-17
형별 TH77
세대수 1
전용면적 (㎡) 77.9767
공용면적 (㎡) 103.4576

단위세대평면도 이미지

단위세대평면도 이미지

사업시행(변경)인가(2018.10.16) 단위세대 평면도 (임대/35)

사업시행(변경)인가(2018.10.16) 단위세대 평면도 (임대/35)
공급면적 (㎡) 84.1214
사업시행인가(변경)일자 2018-10-17
형별 35
세대수 14
전용면적 (㎡) 36.9645
공용면적 (㎡) 47.1569

단위세대평면도 이미지

단위세대평면도 이미지

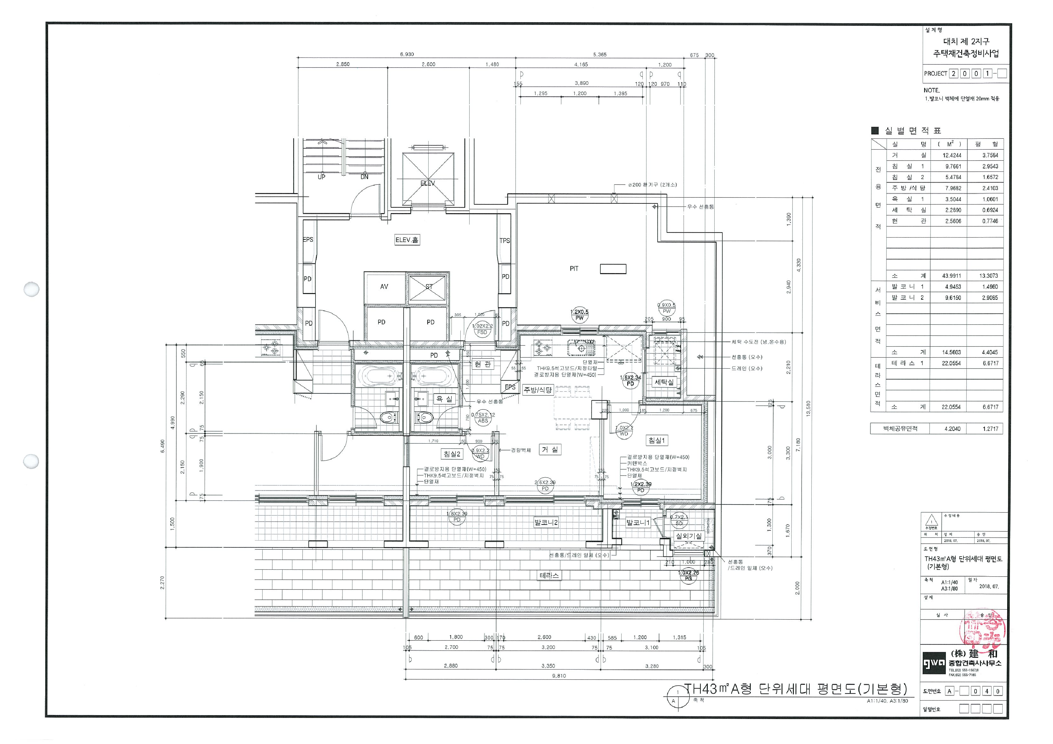
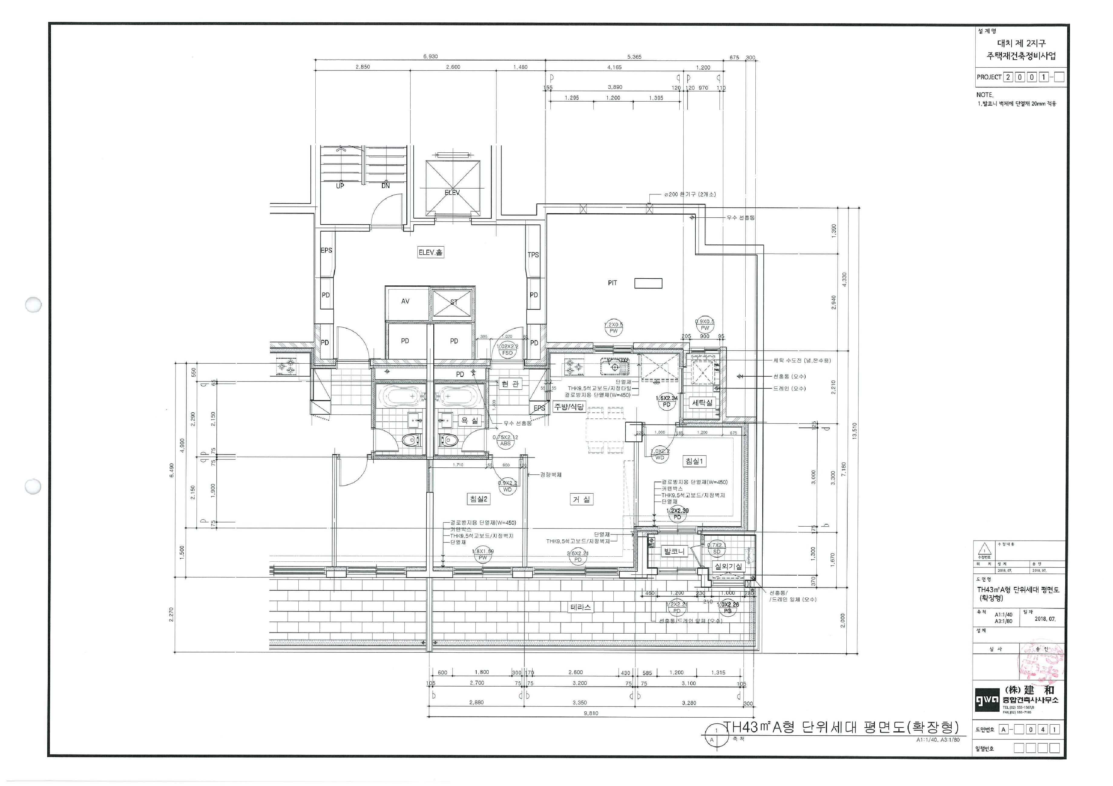
사업시행(변경)인가(2018.10.16) 단위세대 평면도 (임대/TH43A)

사업시행(변경)인가(2018.10.16) 단위세대 평면도 (임대/TH43A)
공급면적 (㎡) 103.0697
사업시행인가(변경)일자 2018-10-17
형별 TH43A
세대수 6
전용면적 (㎡) 43.9911
공용면적 (㎡) 59.0786

단위세대평면도 이미지

단위세대평면도 이미지

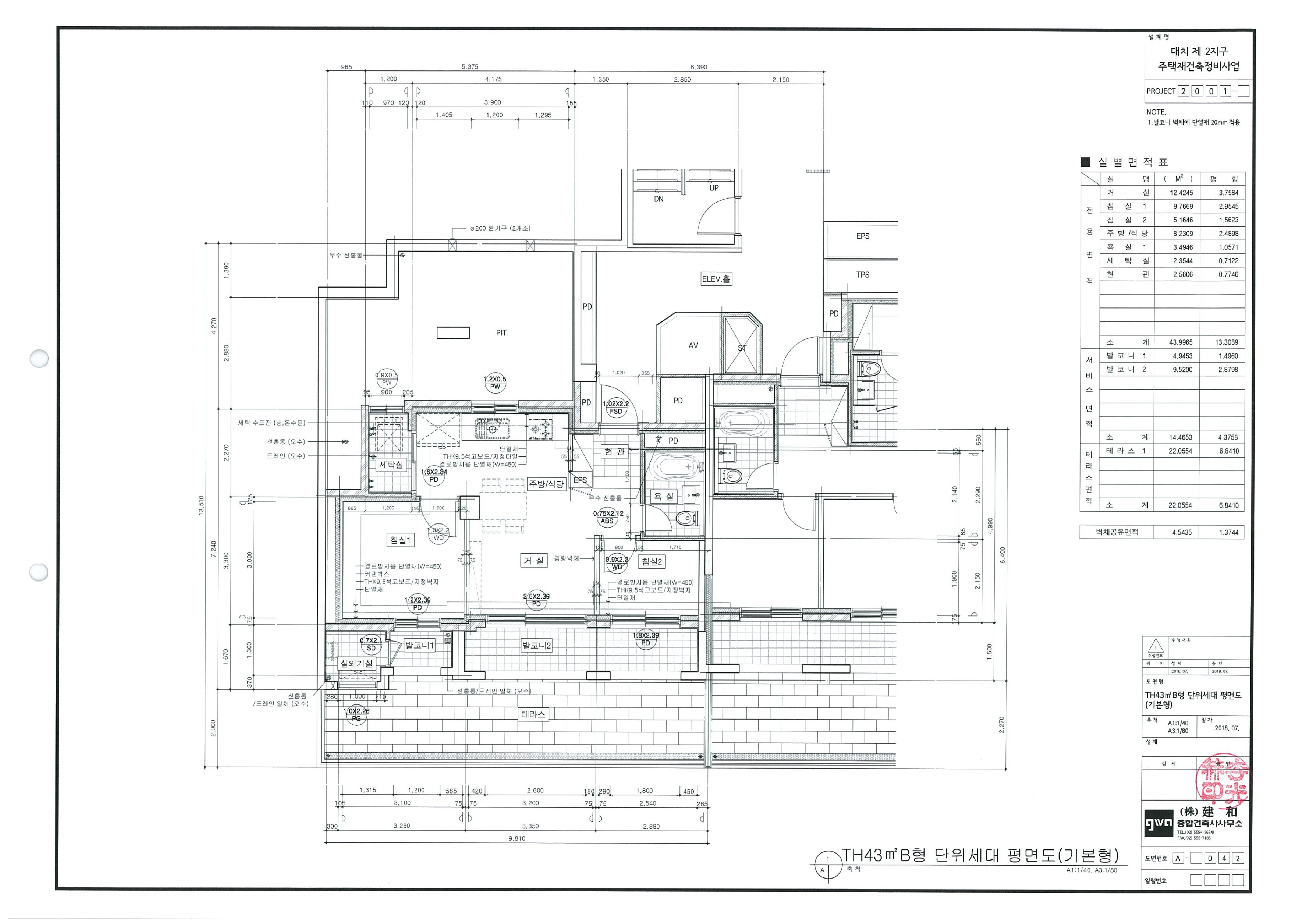
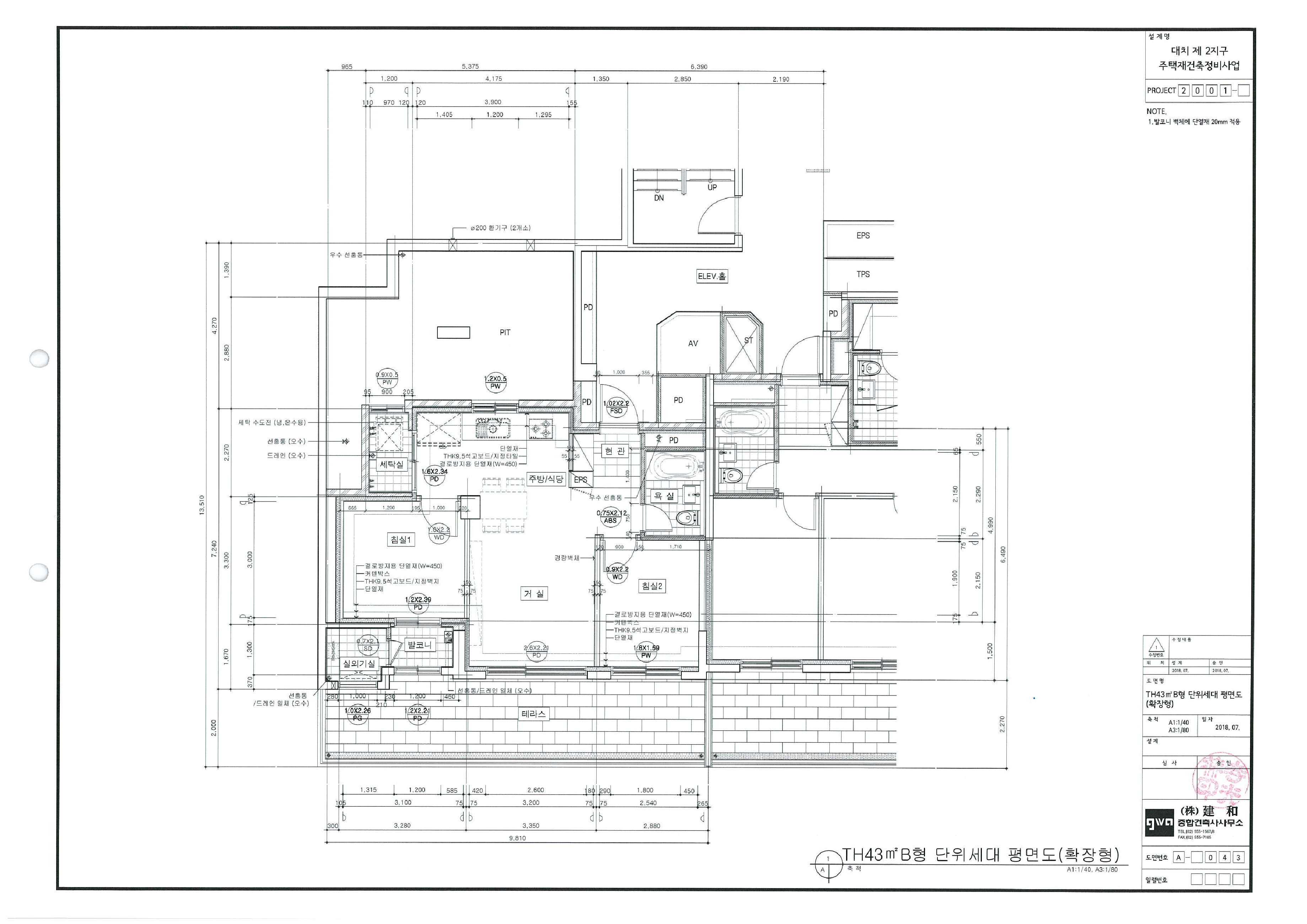
사업시행(변경)인가(2018.10.16) 단위세대 평면도 (임대/TH43B)

사업시행(변경)인가(2018.10.16) 단위세대 평면도 (임대/TH43B)
공급면적 (㎡) 103.4214
사업시행인가(변경)일자 2018-10-17
형별 TH43B
세대수 2
전용면적 (㎡) 43.9965
공용면적 (㎡) 59.4249

단위세대평면도 이미지

단위세대평면도 이미지

사업추진 단계별
공개자료 조회

툴팁 아이콘
원하시는 사업 추진단계에 등록된 자료들을 조회해 보실 수 있습니다.