단위세대평면도
정비사업 추진과정을 유리알처럼 투명하게 공개

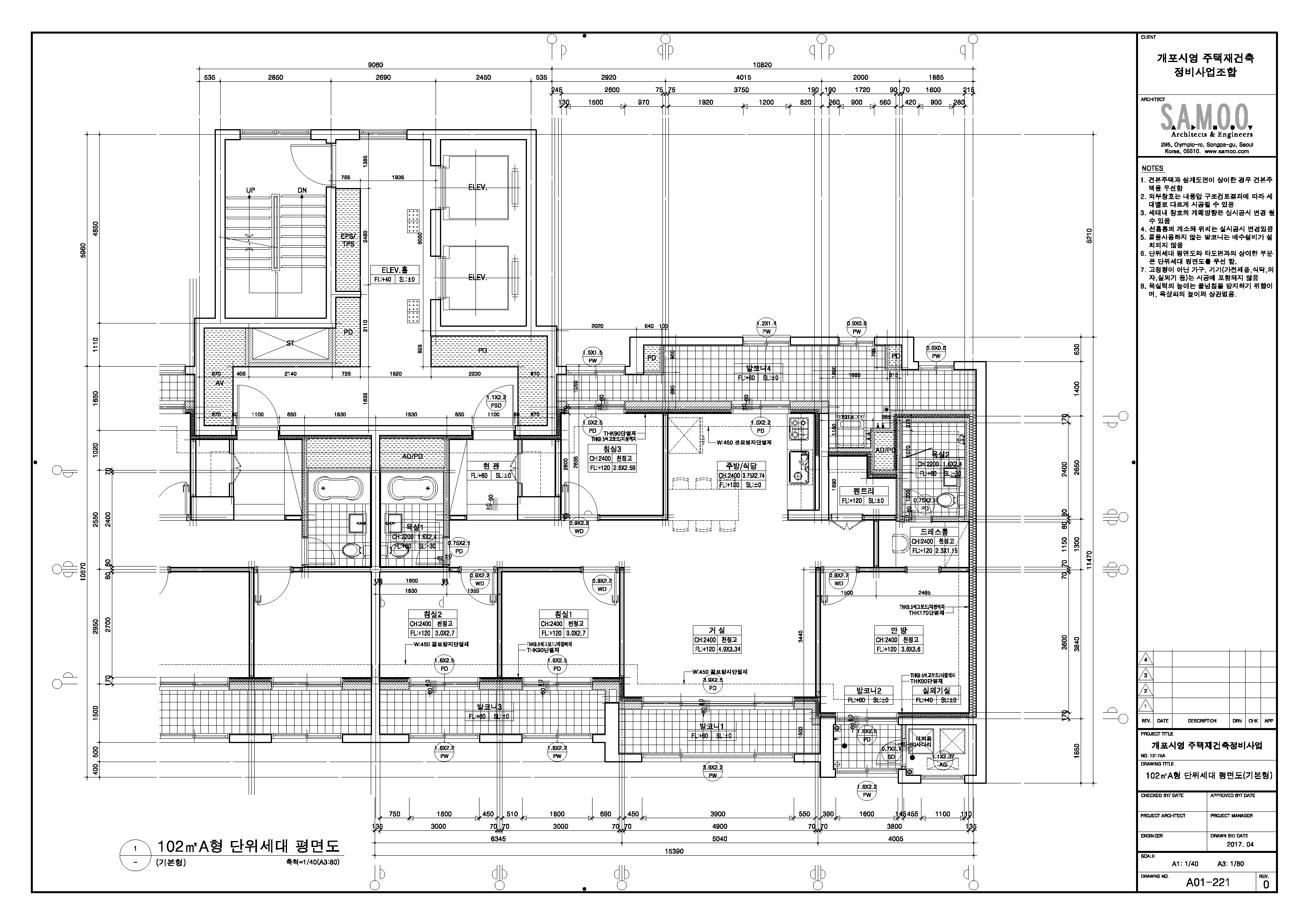
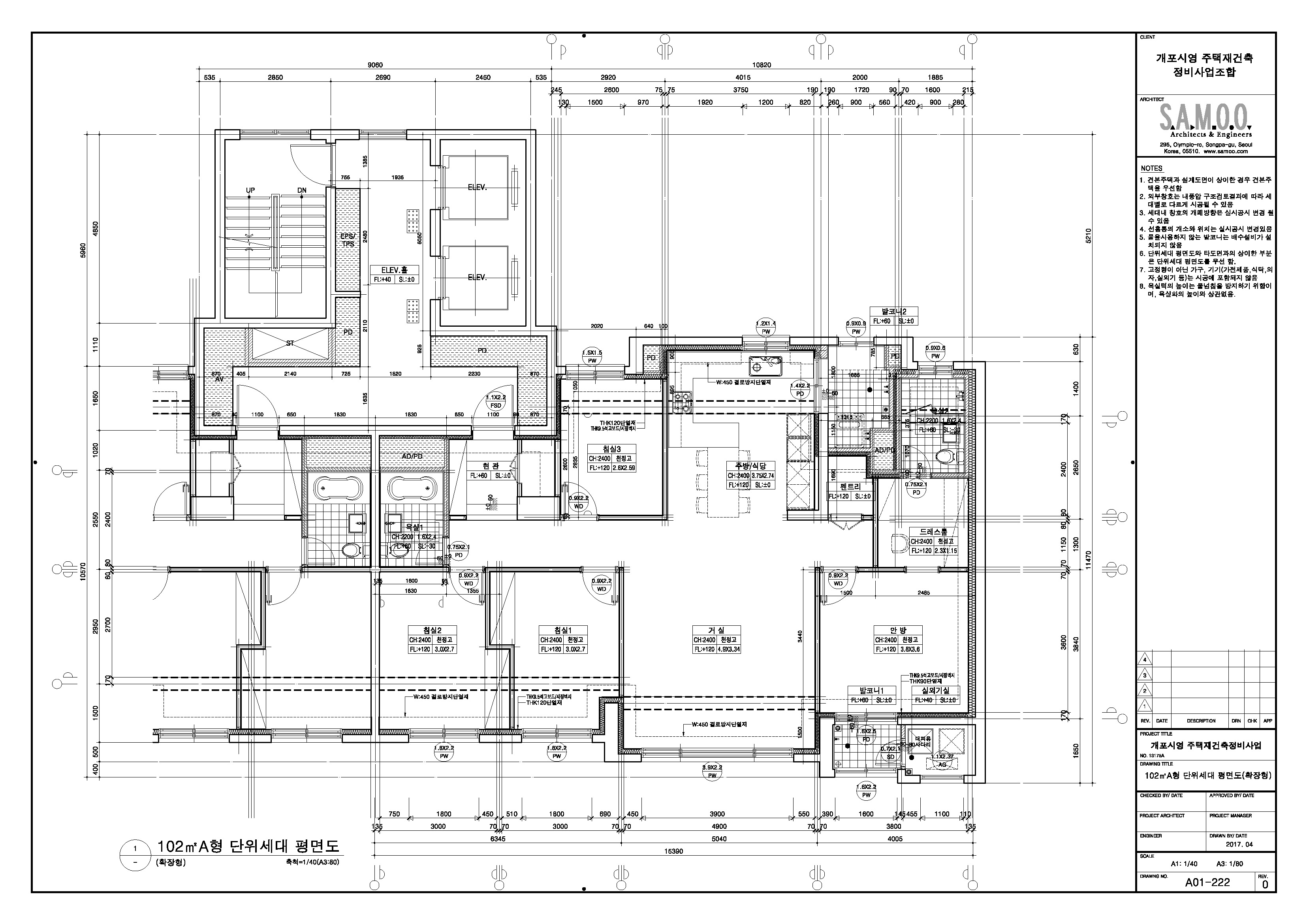
단위세대평면도(102A)

단위세대평면도(102A)
공급면적 (㎡) 135.96
사업시행인가(변경)일자 2017-07-13
형별 102A
세대수 161
전용면적 (㎡) 102.32
공용면적 (㎡) 33.64

단위세대평면도 이미지

단위세대평면도 이미지

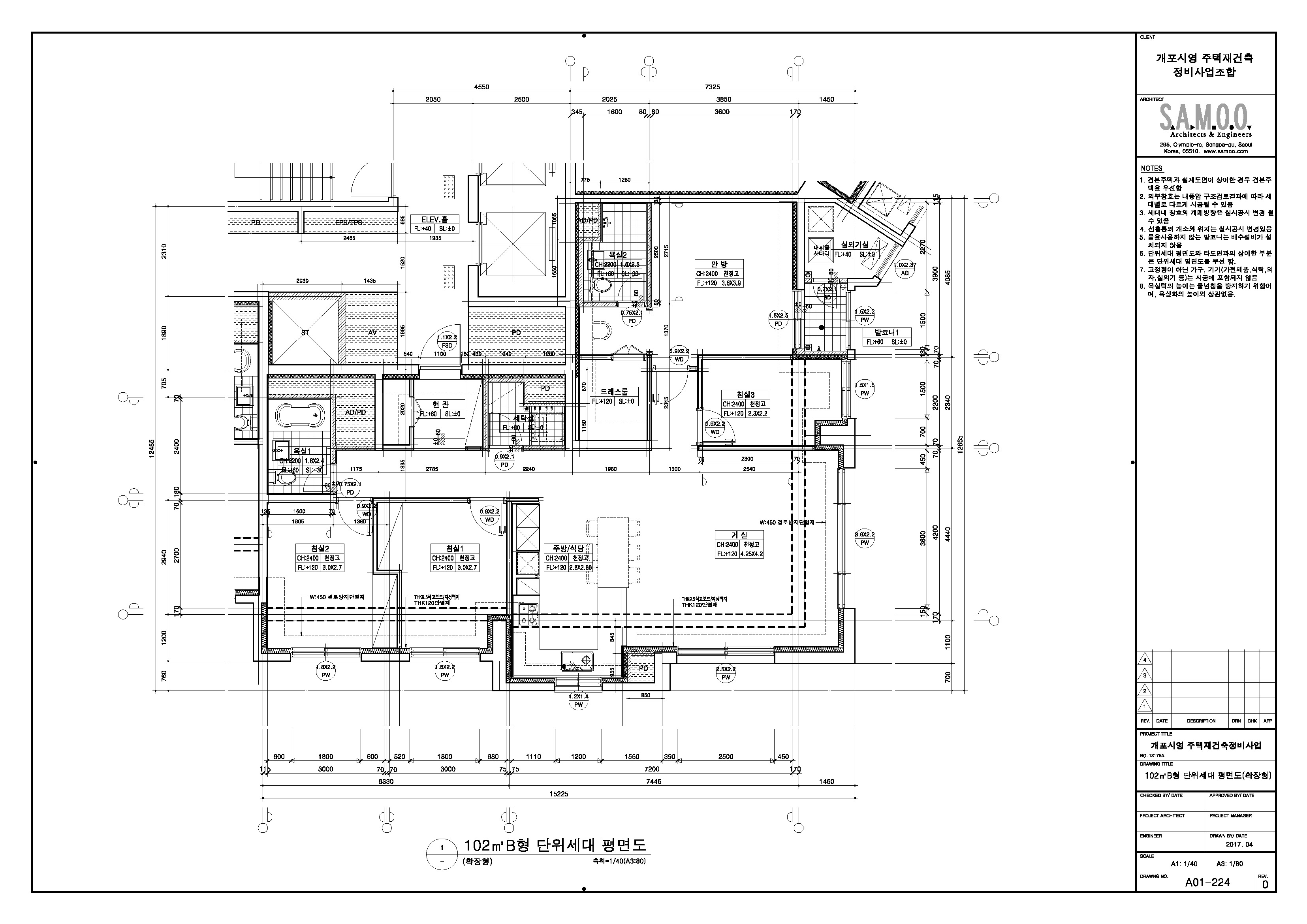
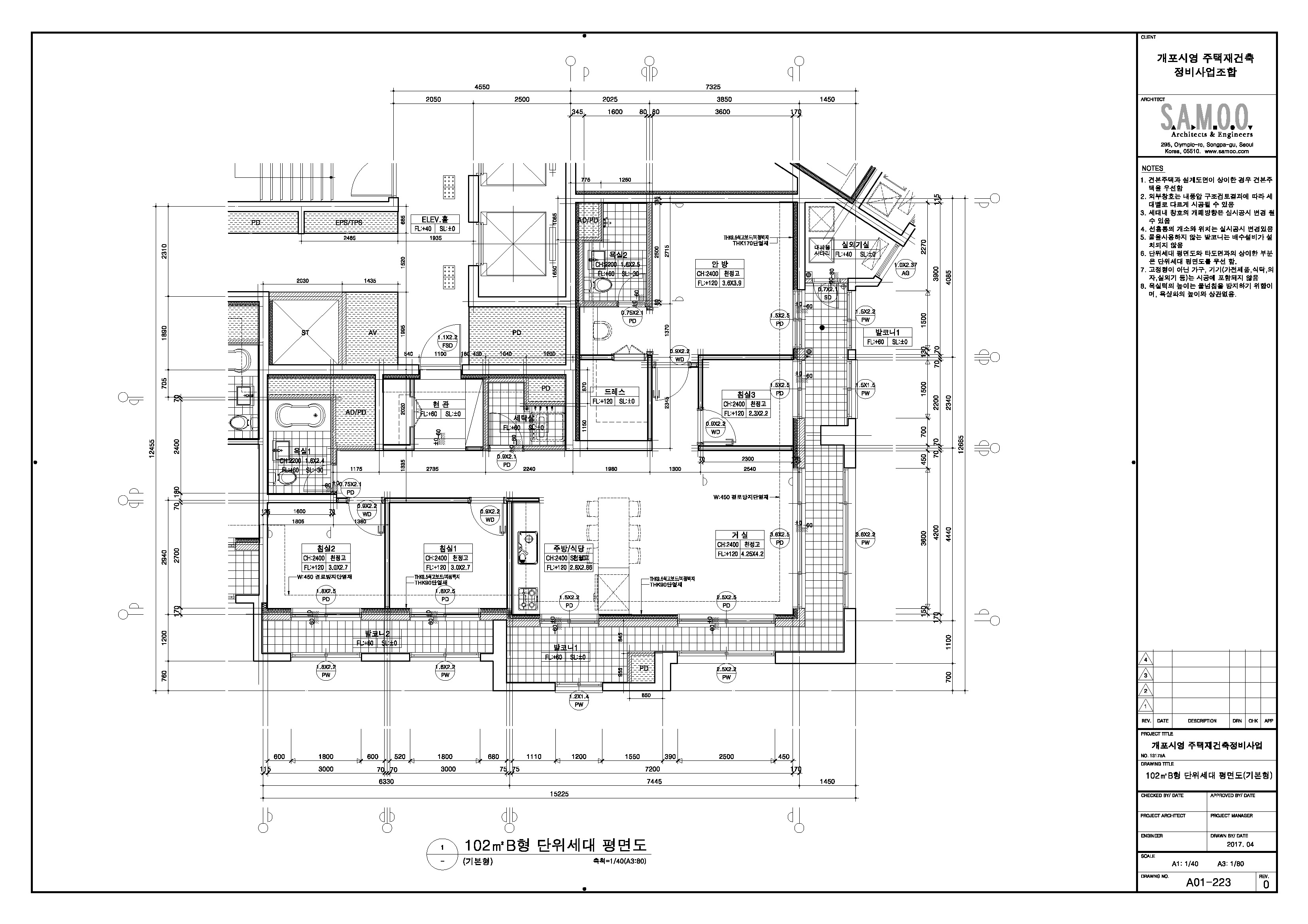
단위세대평면도(102B형)

단위세대평면도(102B형)
공급면적 (㎡) 136.79
사업시행인가(변경)일자 2017-07-13
형별 102B
세대수 31
전용면적 (㎡) 102.41
공용면적 (㎡) 34.38

단위세대평면도 이미지

단위세대평면도 이미지

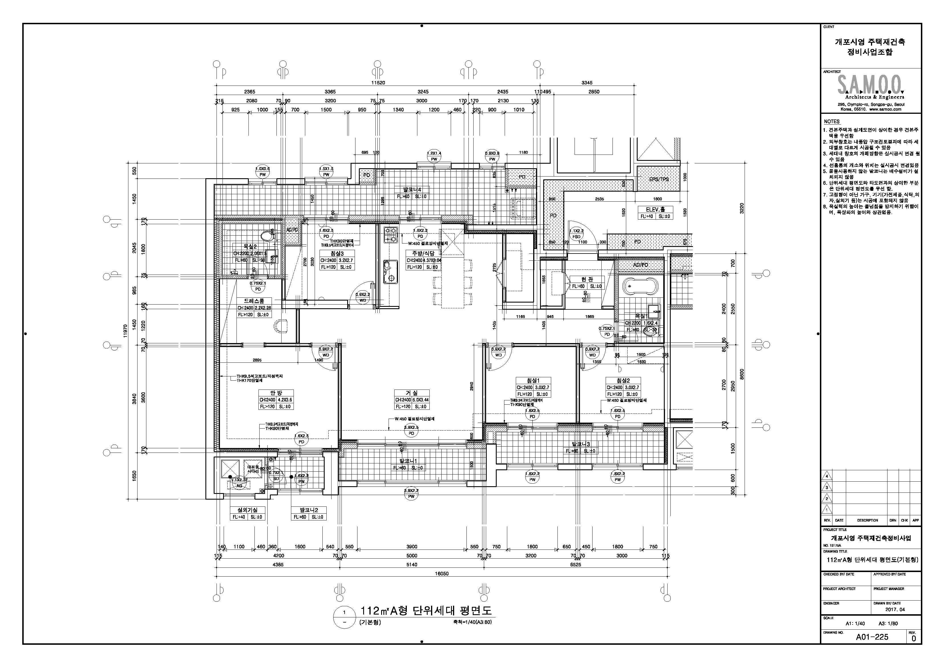
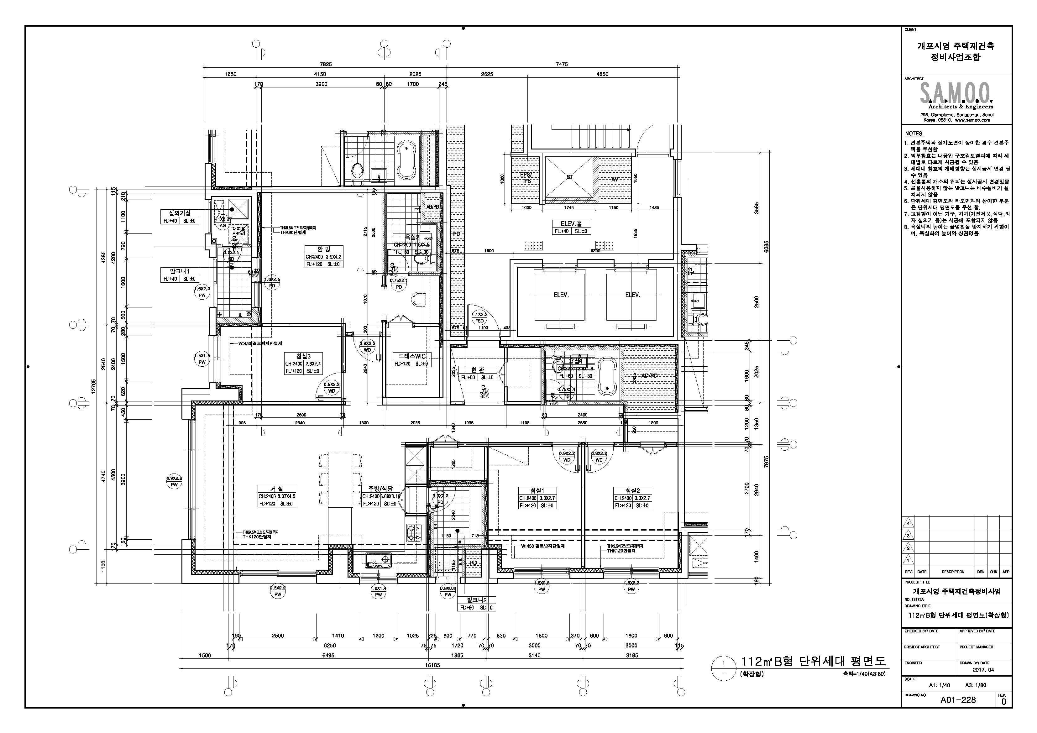
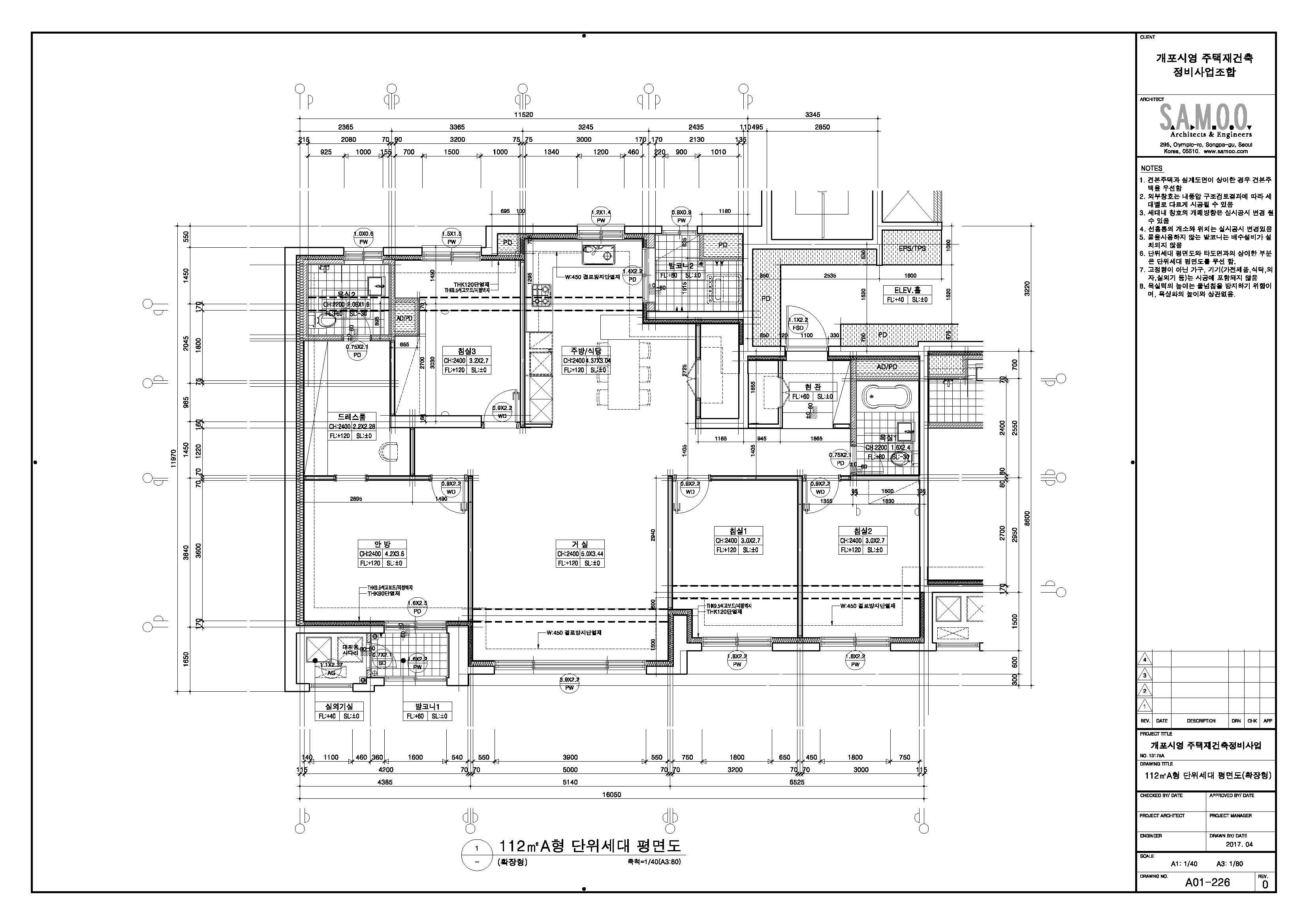
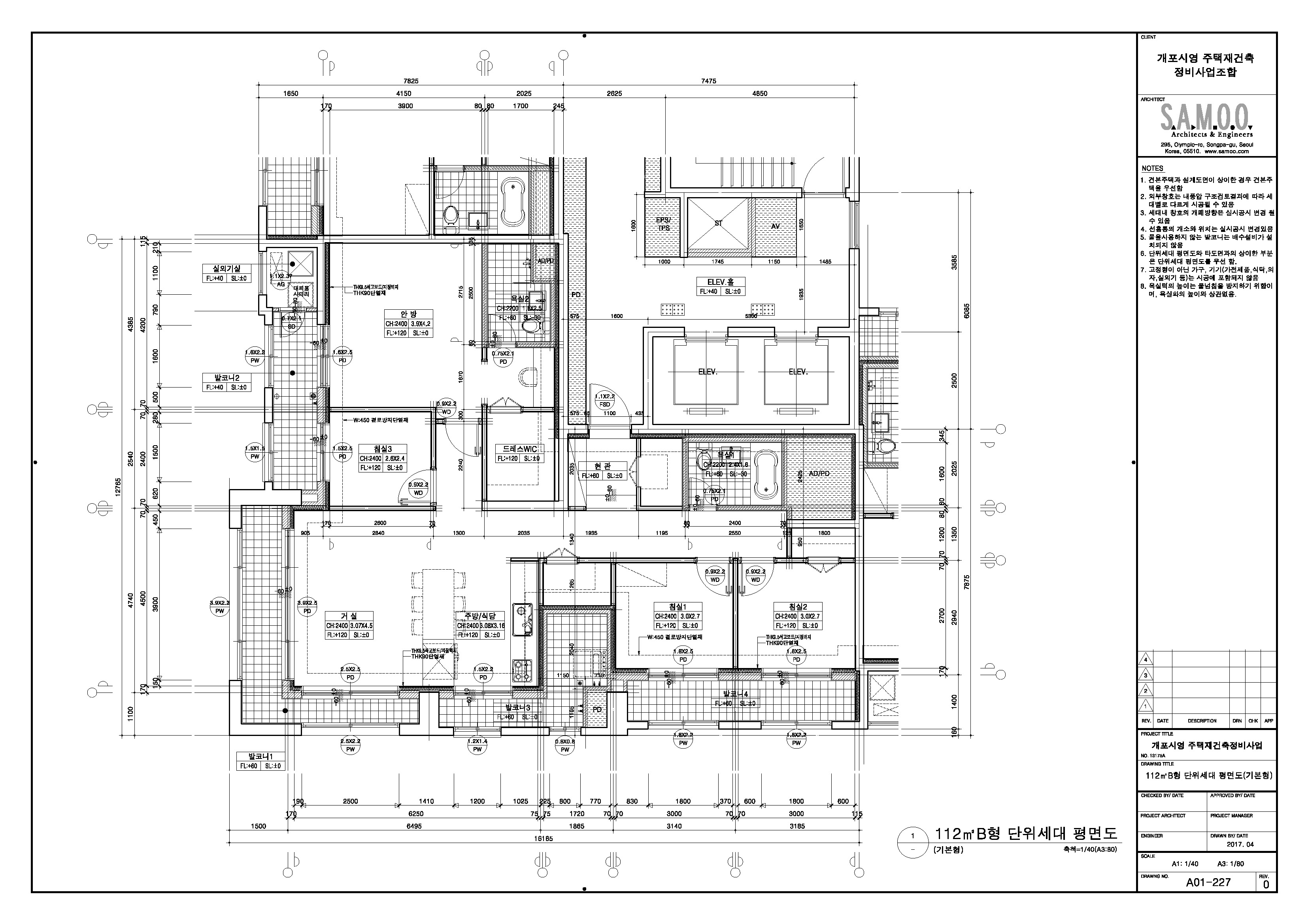
단위세대평면도(112A)

단위세대평면도(112A)
공급면적 (㎡) 148.96
사업시행인가(변경)일자 2017-07-13
형별 112A
세대수 33
전용면적 (㎡) 112.97
공용면적 (㎡) 35.99

단위세대평면도 이미지

단위세대평면도 이미지

단위세대평면도(112B형)

단위세대평면도(112B형)
공급면적 (㎡) 149.85
사업시행인가(변경)일자 2017-07-13
형별 112B
세대수 34
전용면적 (㎡) 112.73
공용면적 (㎡) 37.12

단위세대평면도 이미지

단위세대평면도 이미지

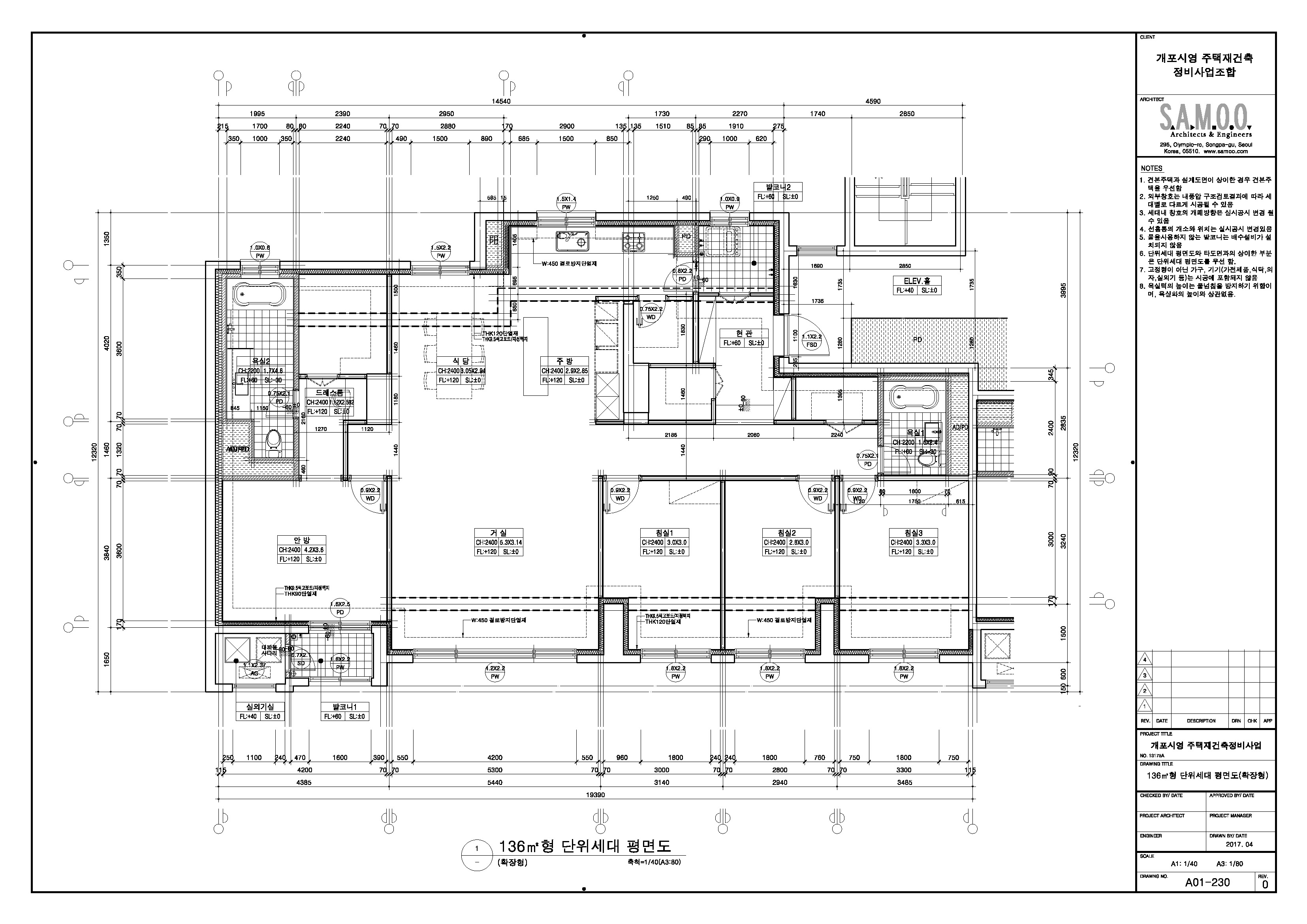
단위세대평면도(136형)

단위세대평면도(136형)
공급면적 (㎡) 174.19
사업시행인가(변경)일자 2017-07-13
형별 136
세대수 33
전용면적 (㎡) 136.06
공용면적 (㎡) 38.13

단위세대평면도 이미지

단위세대평면도 이미지

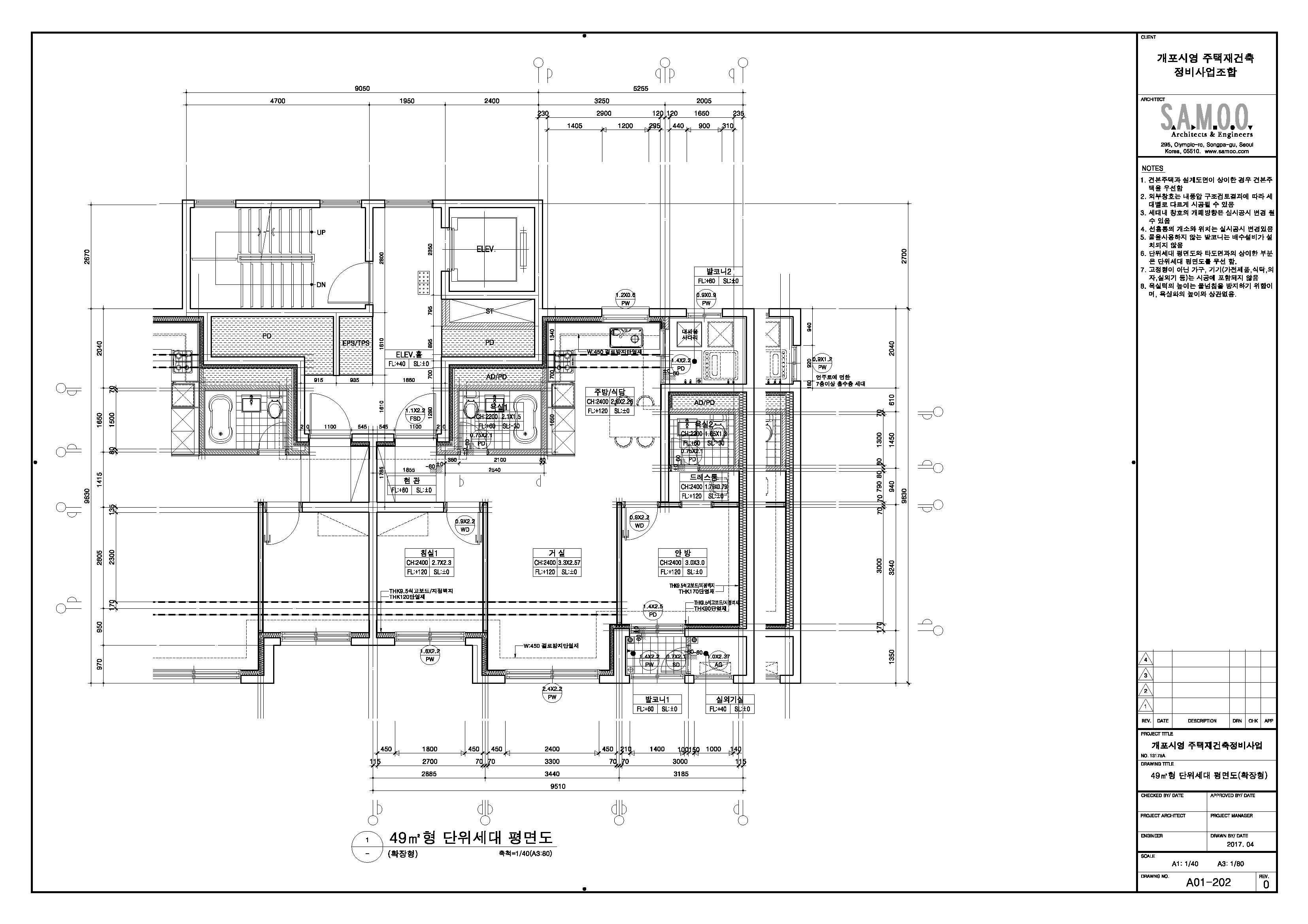
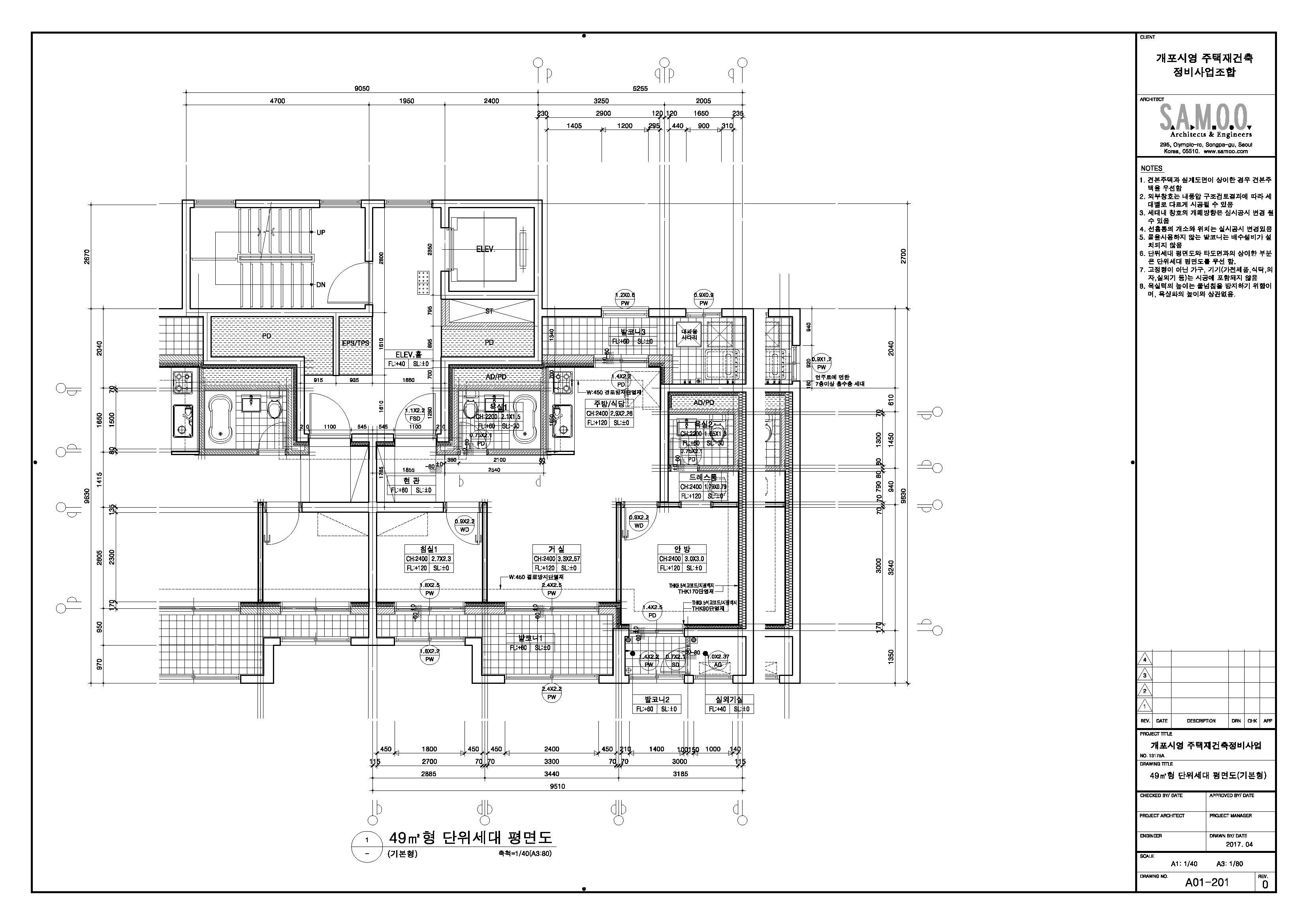
단위세대평면도(49형)

단위세대평면도(49형)
공급면적 (㎡) 74.31
사업시행인가(변경)일자 2017-07-13
형별 49
세대수 118
전용면적 (㎡) 49.92
공용면적 (㎡) 24.39

단위세대평면도 이미지

단위세대평면도 이미지

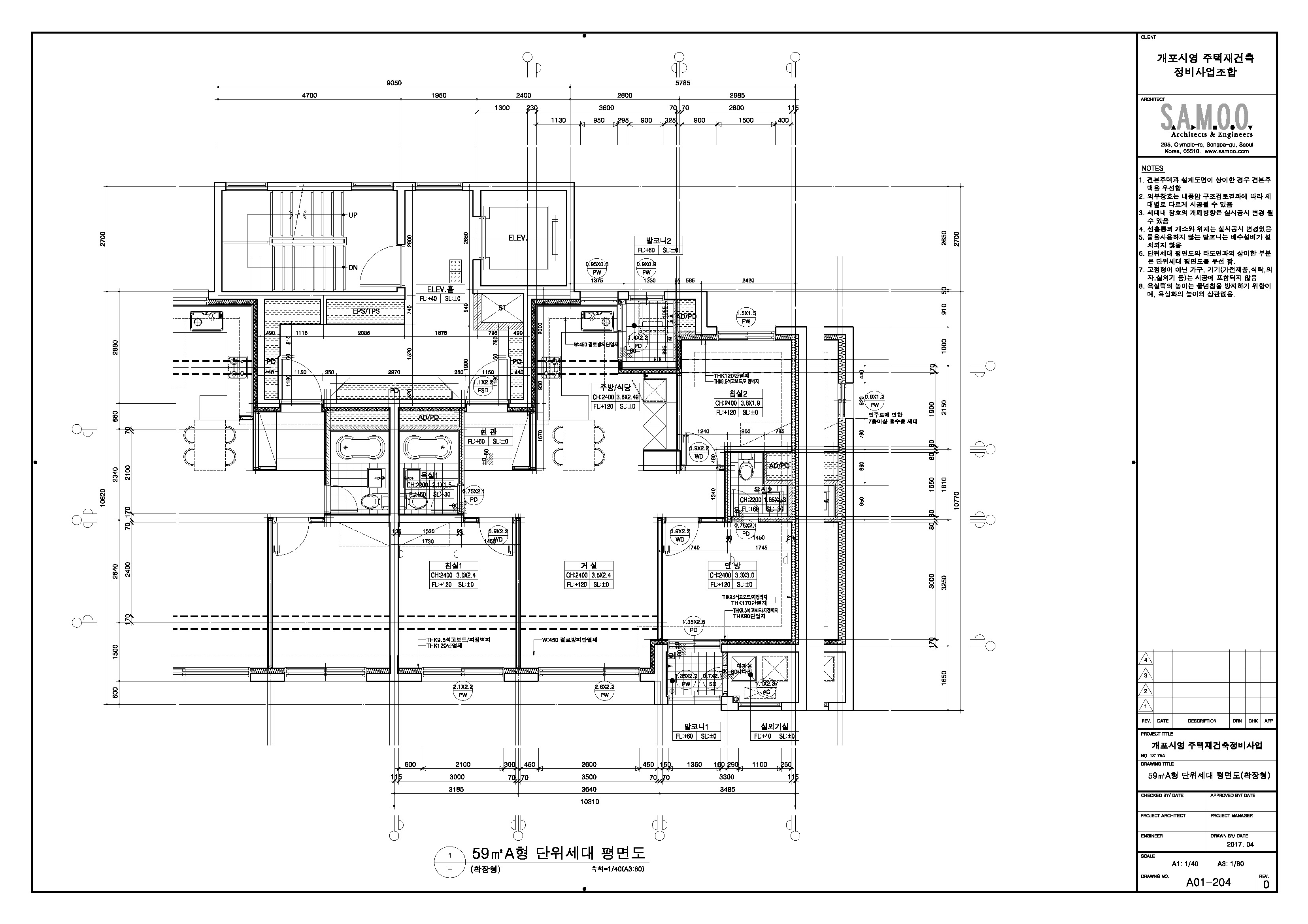
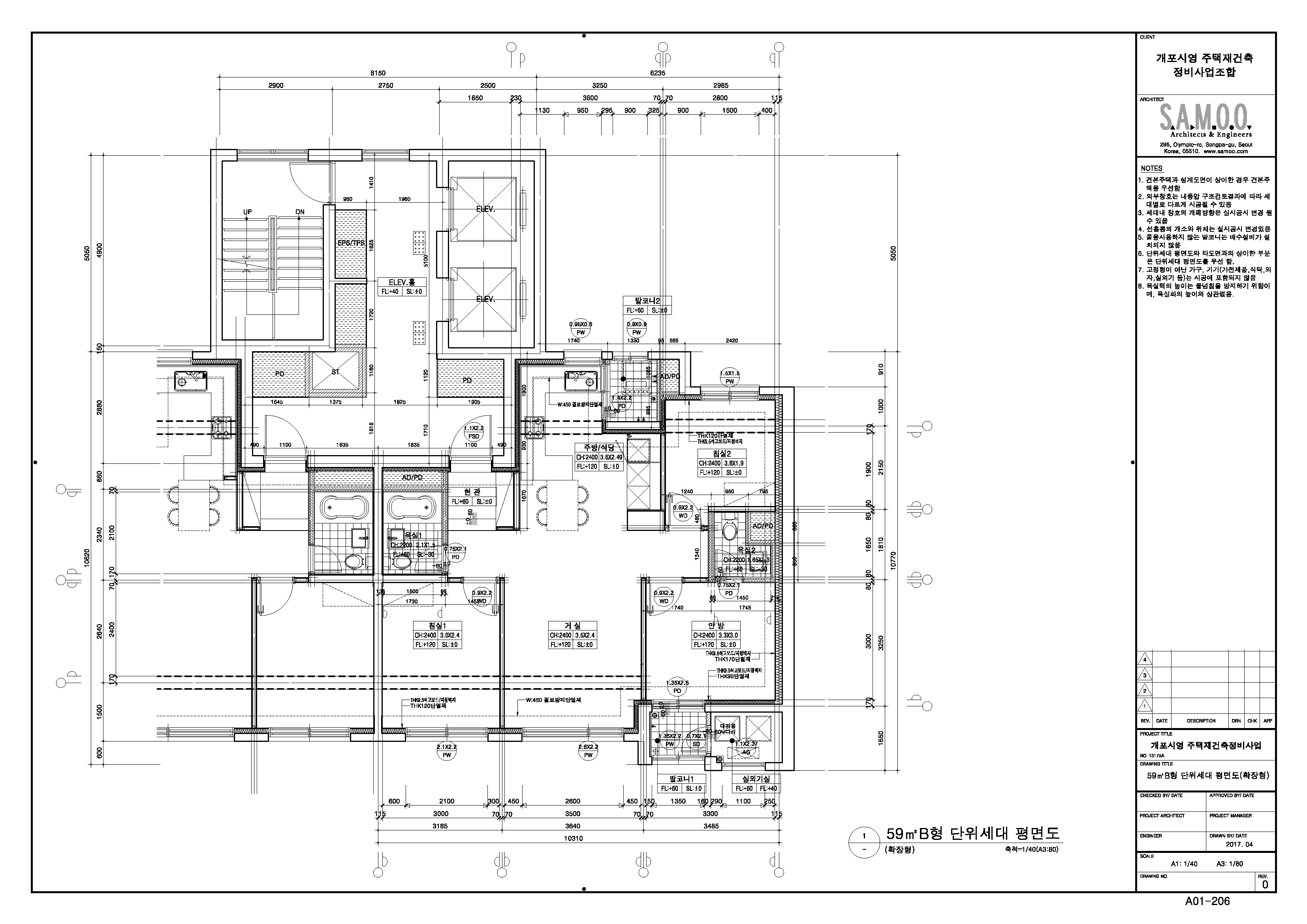
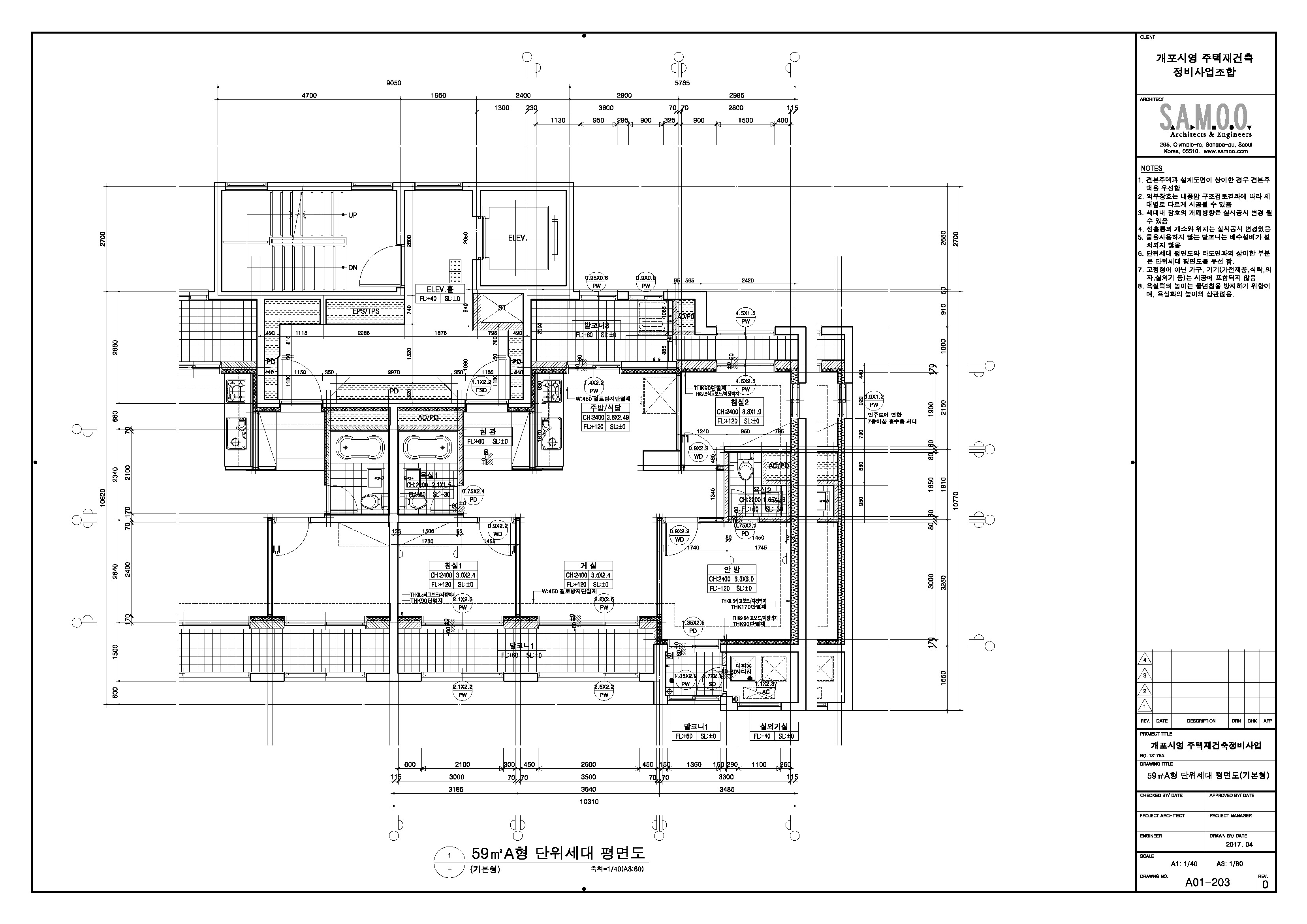
단위세대평면도(59A형)

단위세대평면도(59A형)
공급면적 (㎡) 86.05
사업시행인가(변경)일자 2017-07-13
형별 59A
세대수 713
전용면적 (㎡) 59.92
공용면적 (㎡) 26.13

단위세대평면도 이미지

단위세대평면도 이미지

단위세대평면도(59B형)

단위세대평면도(59B형)
공급면적 (㎡) 86.11
사업시행인가(변경)일자 2017-07-13
형별 59B
세대수 69
전용면적 (㎡) 59.96
공용면적 (㎡) 26.15

단위세대평면도 이미지

단위세대평면도 이미지

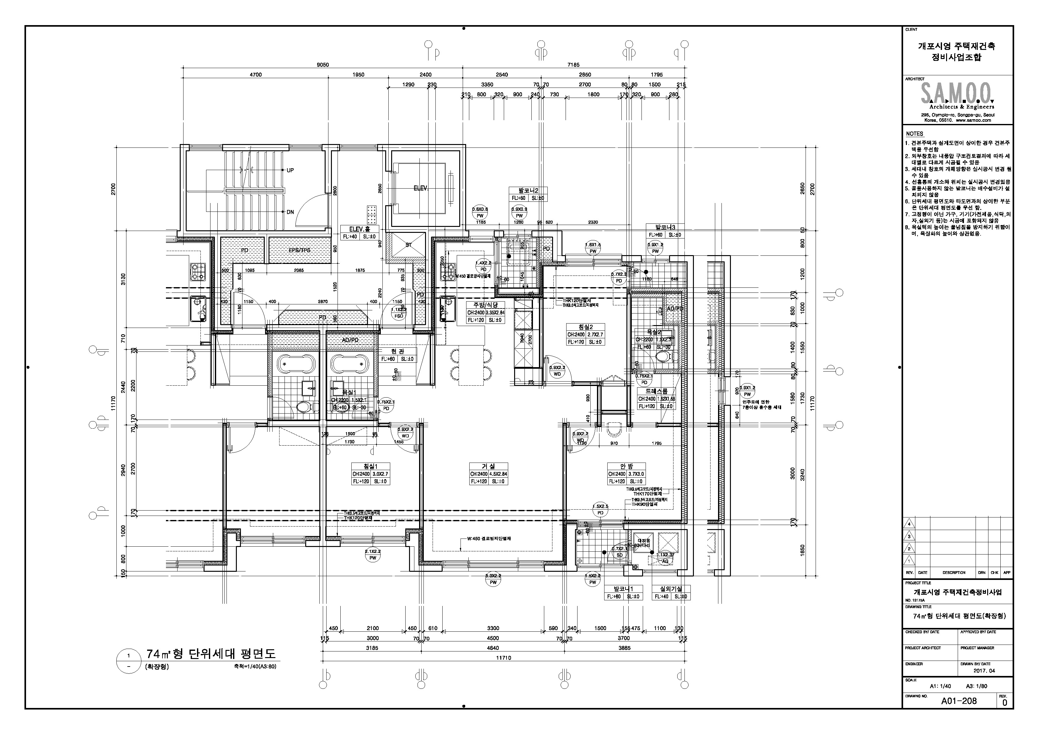
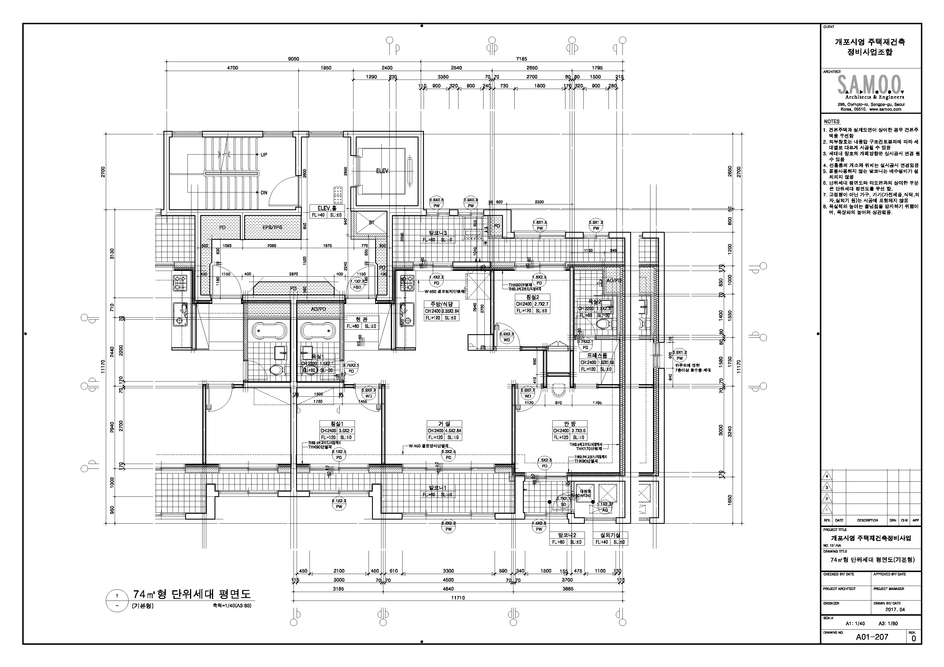
단위세대평면도(74형)

단위세대평면도(74형)
공급면적 (㎡) 101.09
사업시행인가(변경)일자 2017-07-13
형별 74
세대수 226
전용면적 (㎡) 74.66
공용면적 (㎡) 26.43

단위세대평면도 이미지

단위세대평면도 이미지

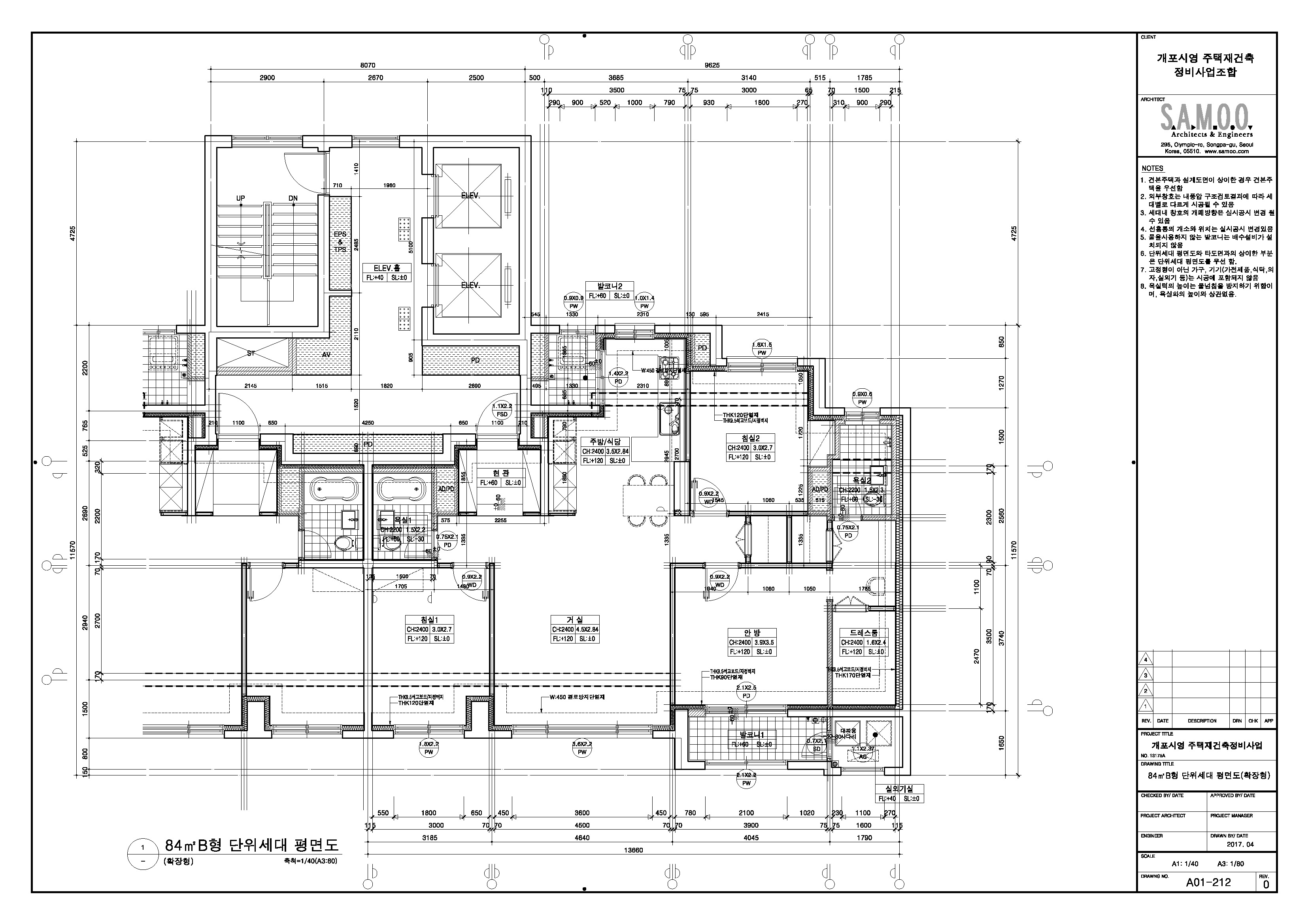
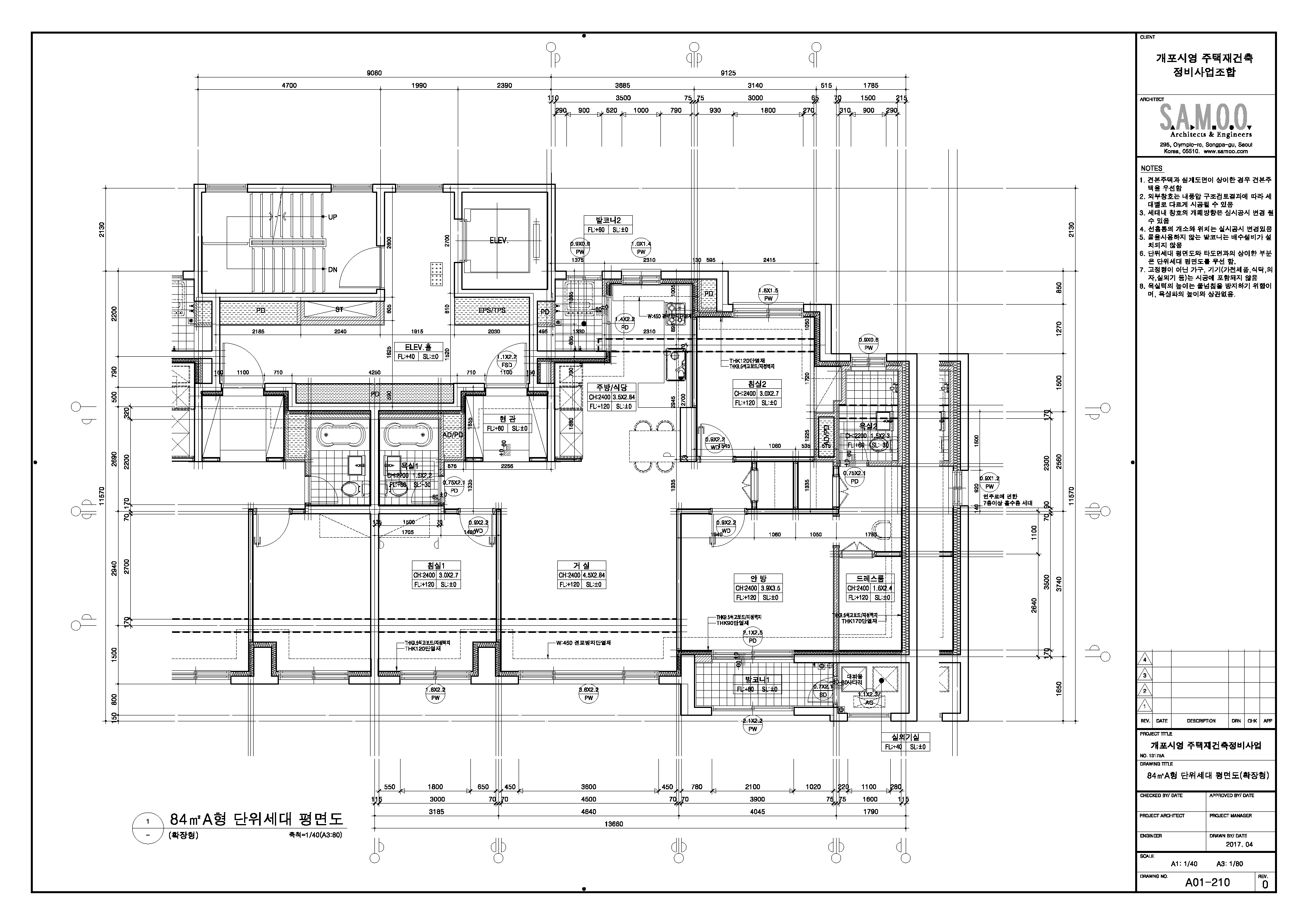
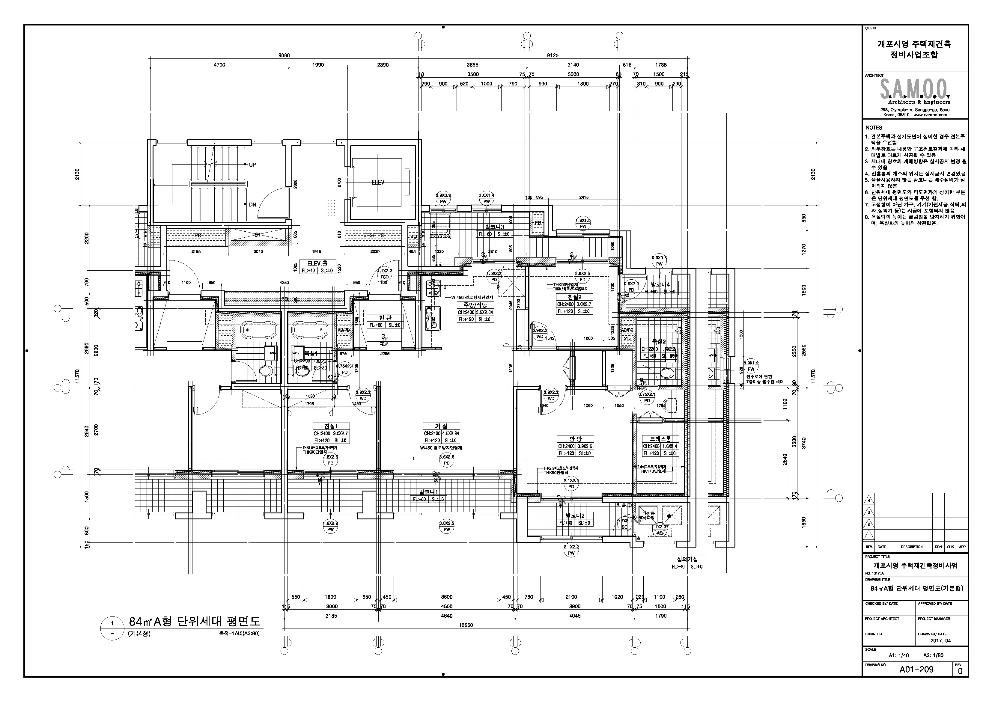
단위세대평면도(84A형)

단위세대평면도(84A형)
공급면적 (㎡) 115.41
사업시행인가(변경)일자 2017-07-13
형별 84A
세대수 348
전용면적 (㎡) 84.86
공용면적 (㎡) 30.55

단위세대평면도 이미지

단위세대평면도 이미지

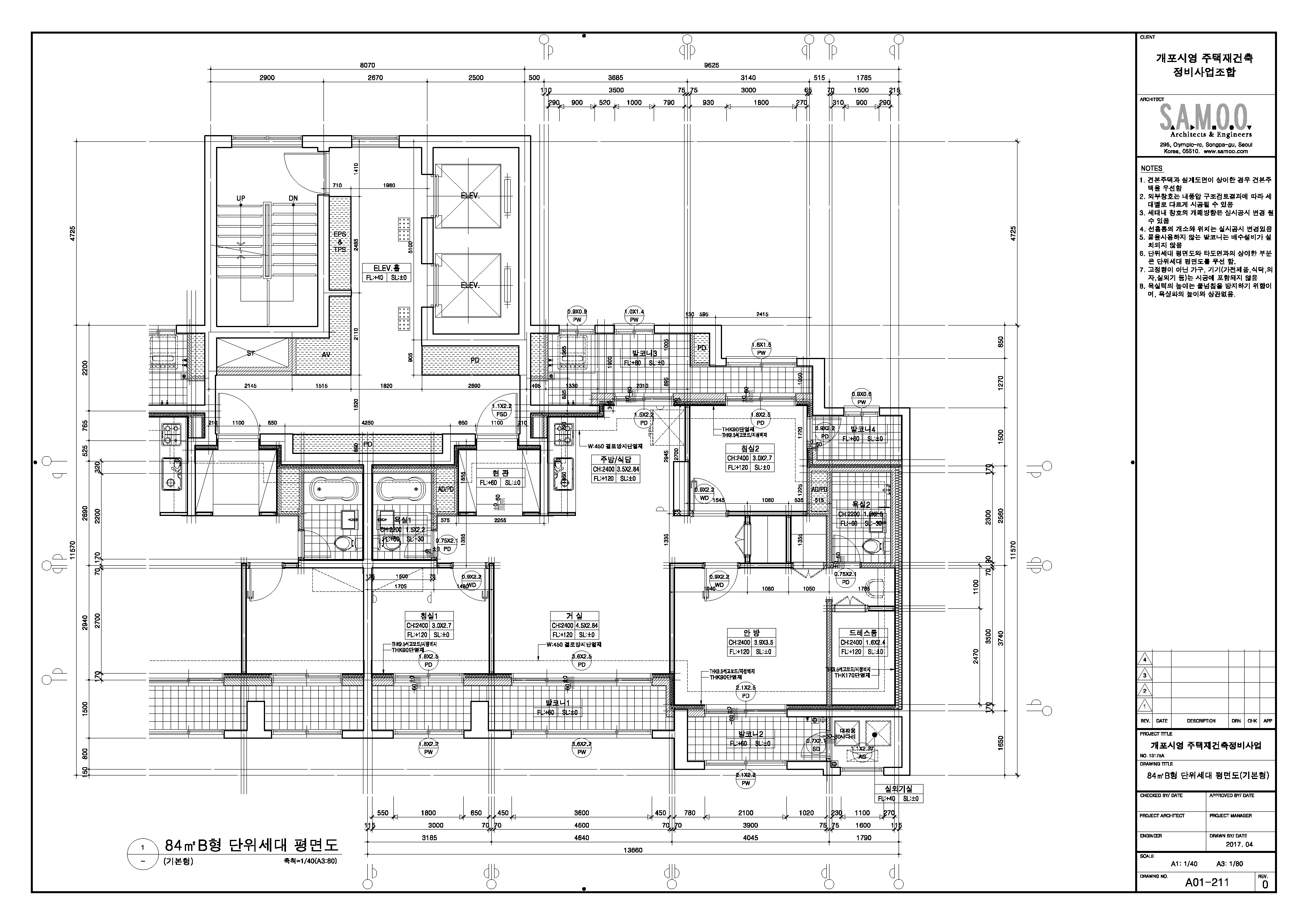
단위세대평면도(84B형)

단위세대평면도(84B형)
공급면적 (㎡) 115.37
사업시행인가(변경)일자 2017-07-13
형별 84B
세대수 266
전용면적 (㎡) 84.83
공용면적 (㎡) 30.54

단위세대평면도 이미지

단위세대평면도 이미지

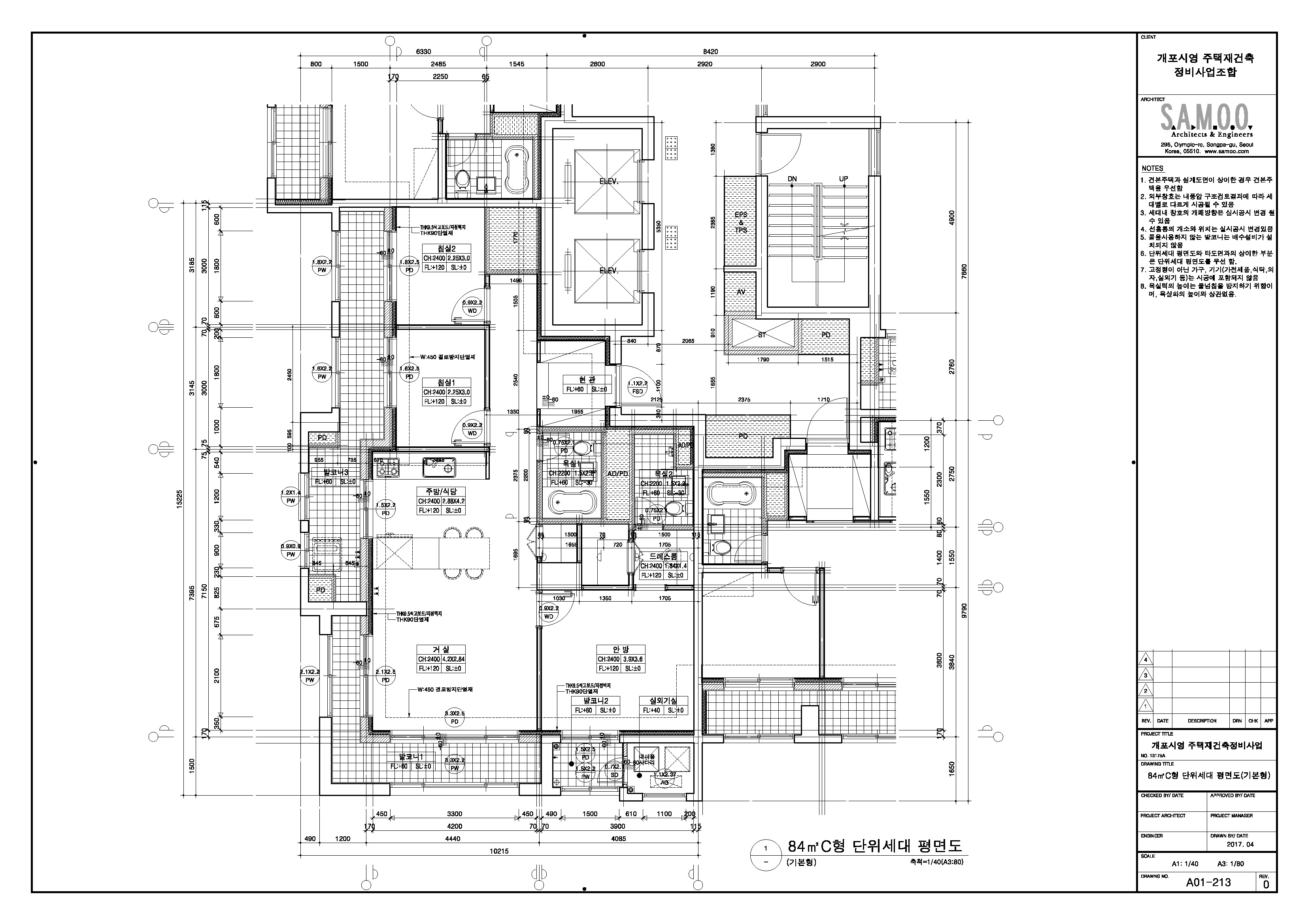
단위세대평면도(84C형)

단위세대평면도(84C형)
공급면적 (㎡) 115.68
사업시행인가(변경)일자 2017-07-13
형별 84C
세대수 35
전용면적 (㎡) 84.90
공용면적 (㎡) 30.78

단위세대평면도 이미지

단위세대평면도 이미지

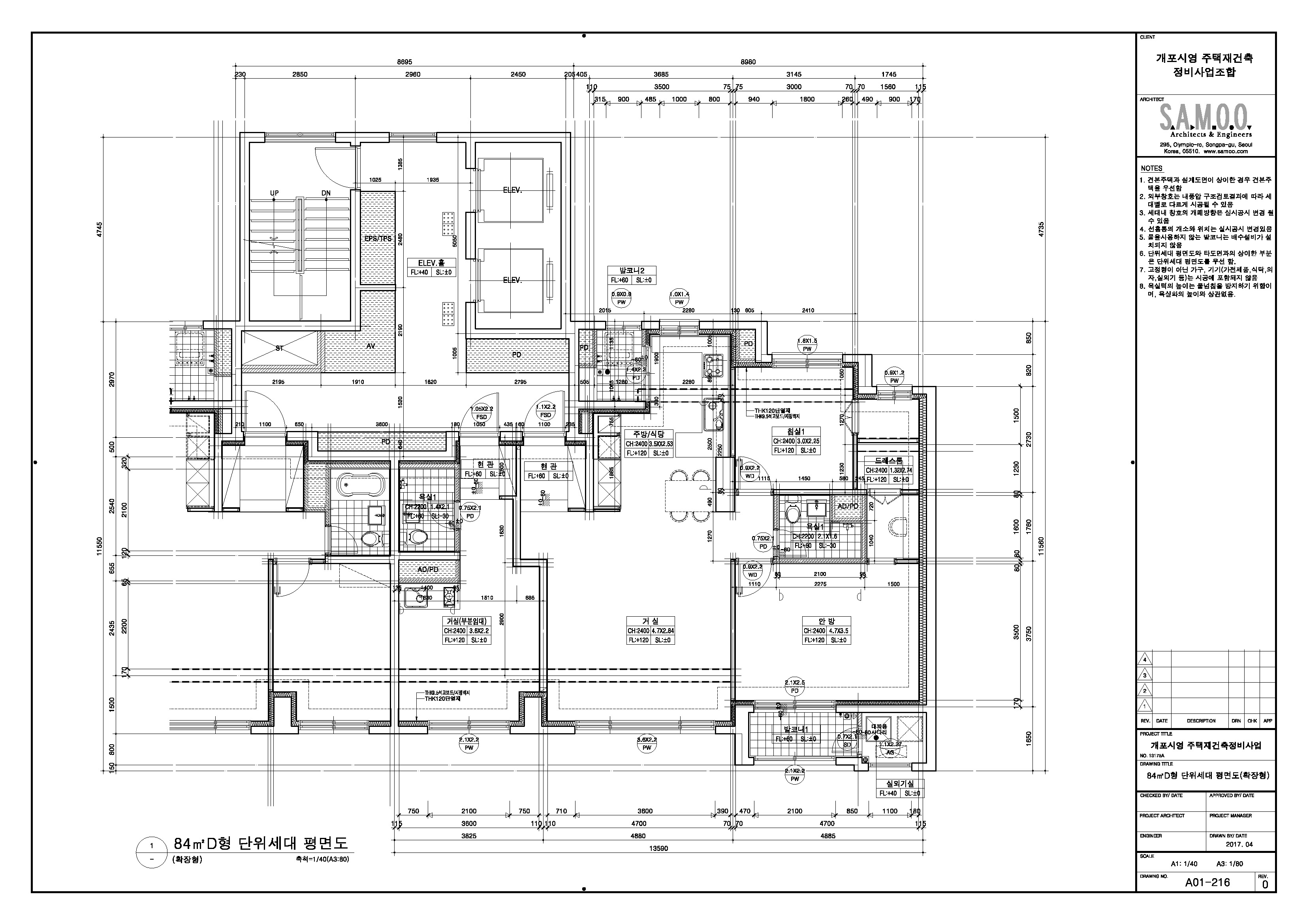
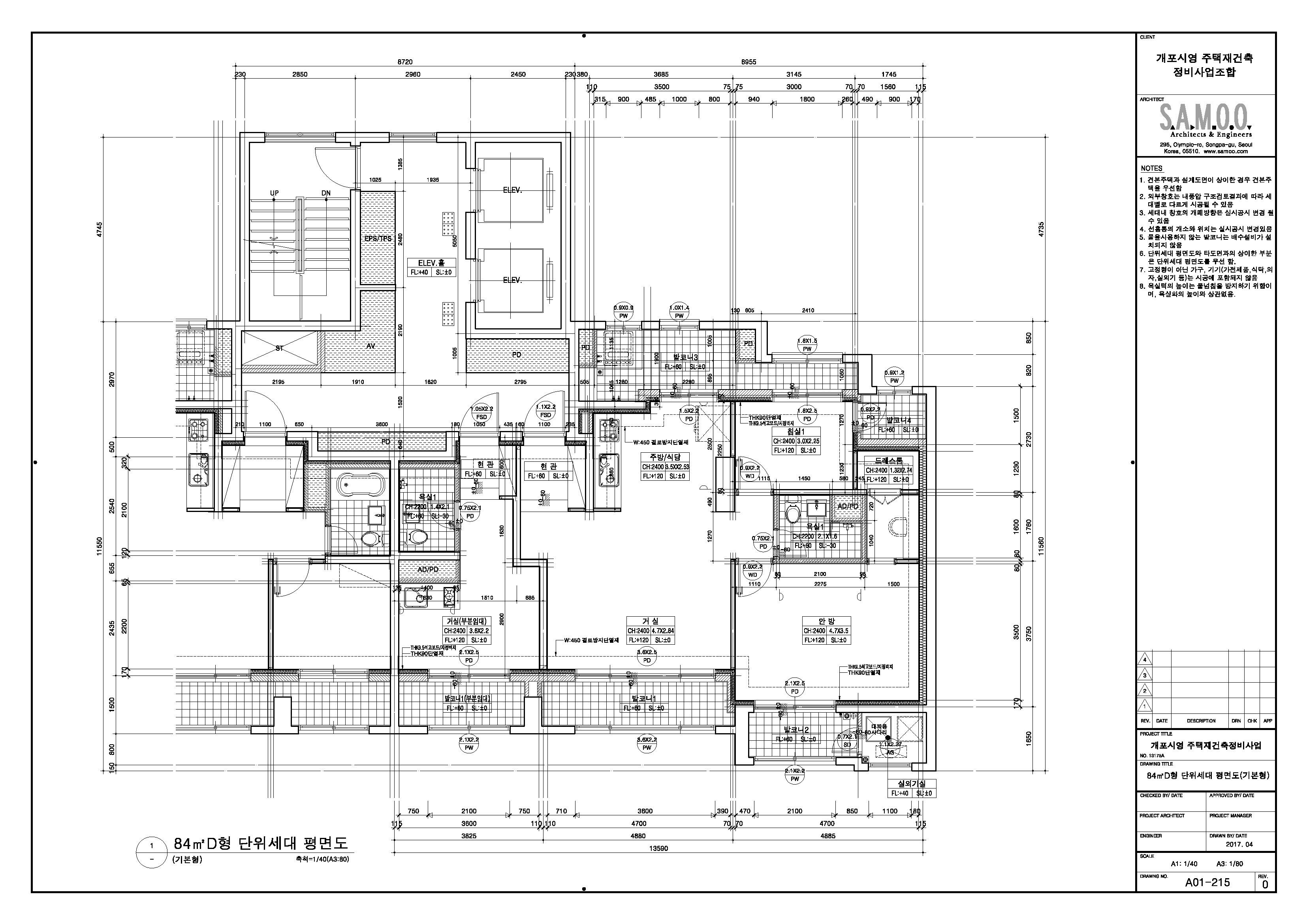
단위세대평면도(84D형)

단위세대평면도(84D형)
공급면적 (㎡) 115.18
사업시행인가(변경)일자 2017-07-13
형별 84D
세대수 30
전용면적 (㎡) 84.59
공용면적 (㎡) 30.59

단위세대평면도 이미지

단위세대평면도 이미지

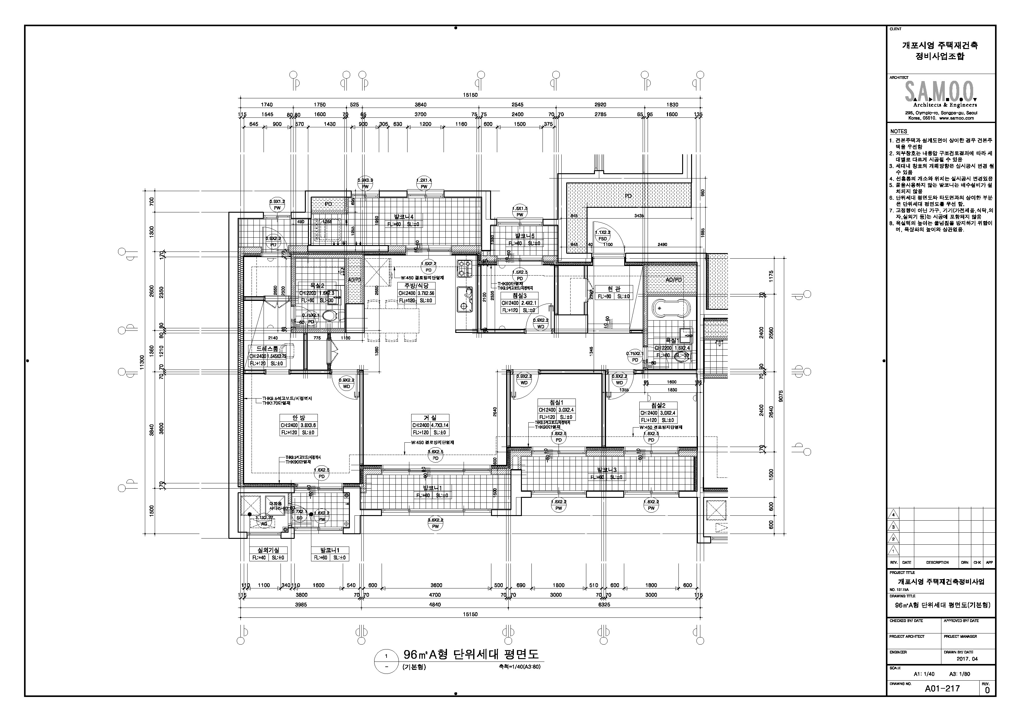
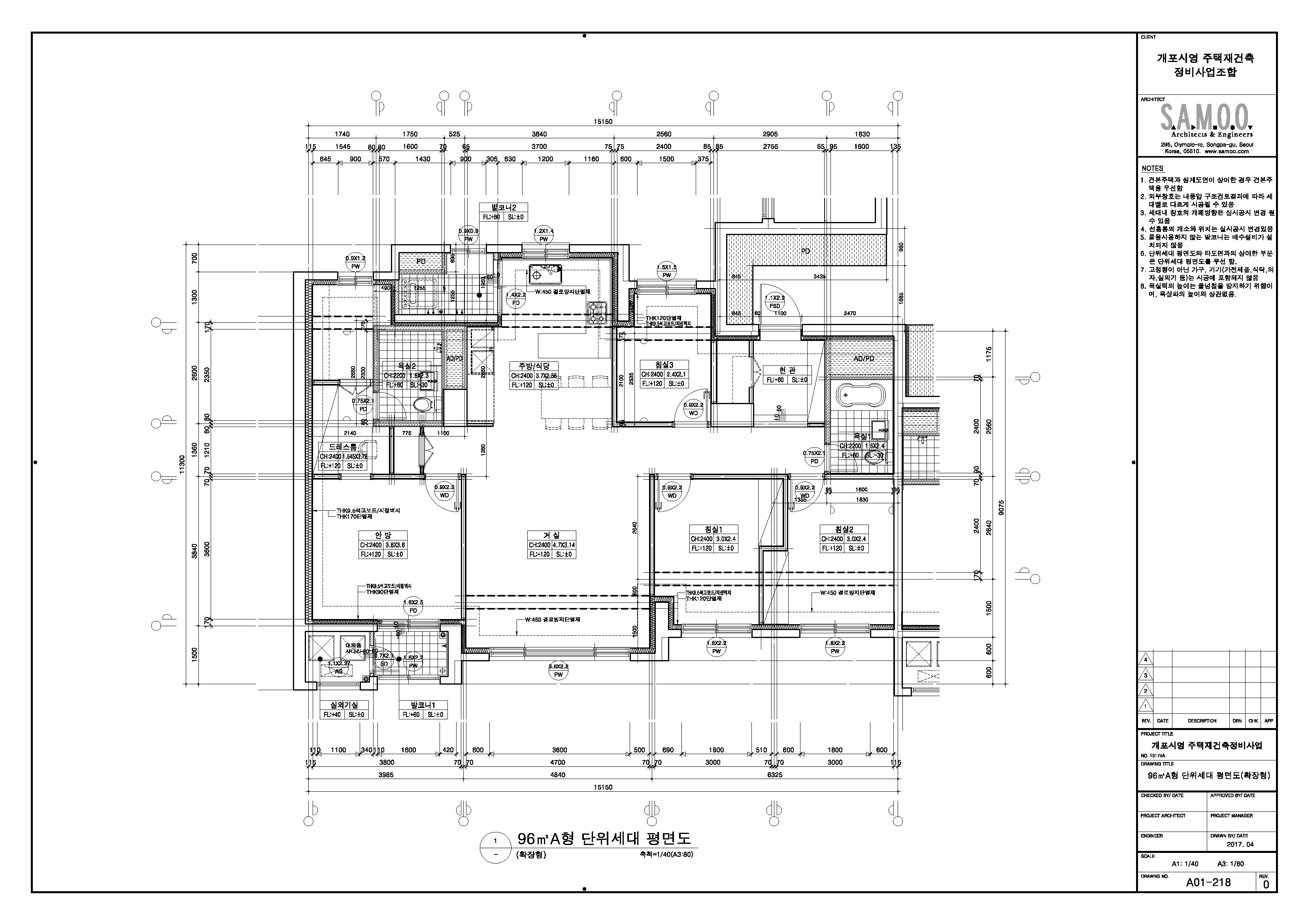
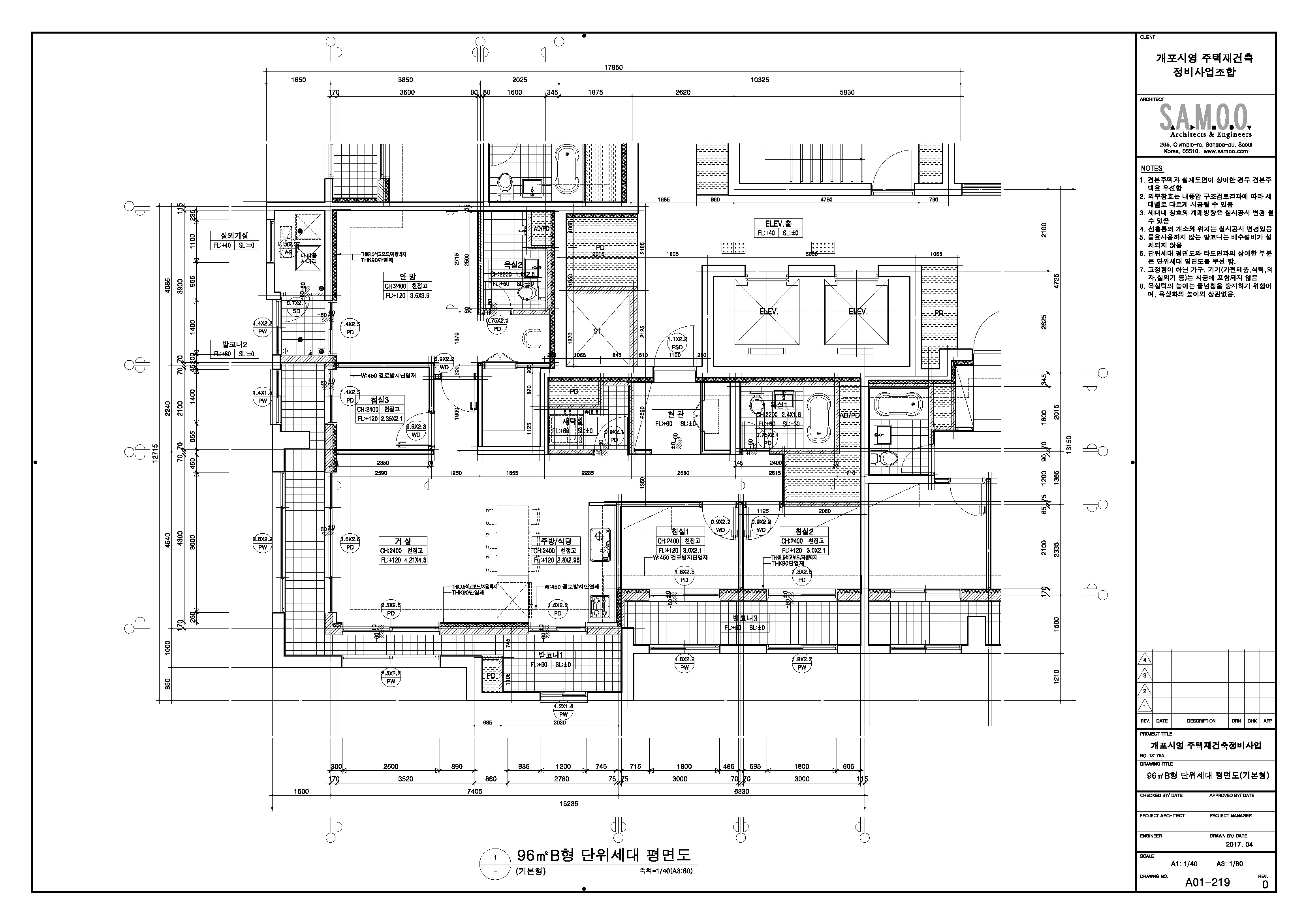
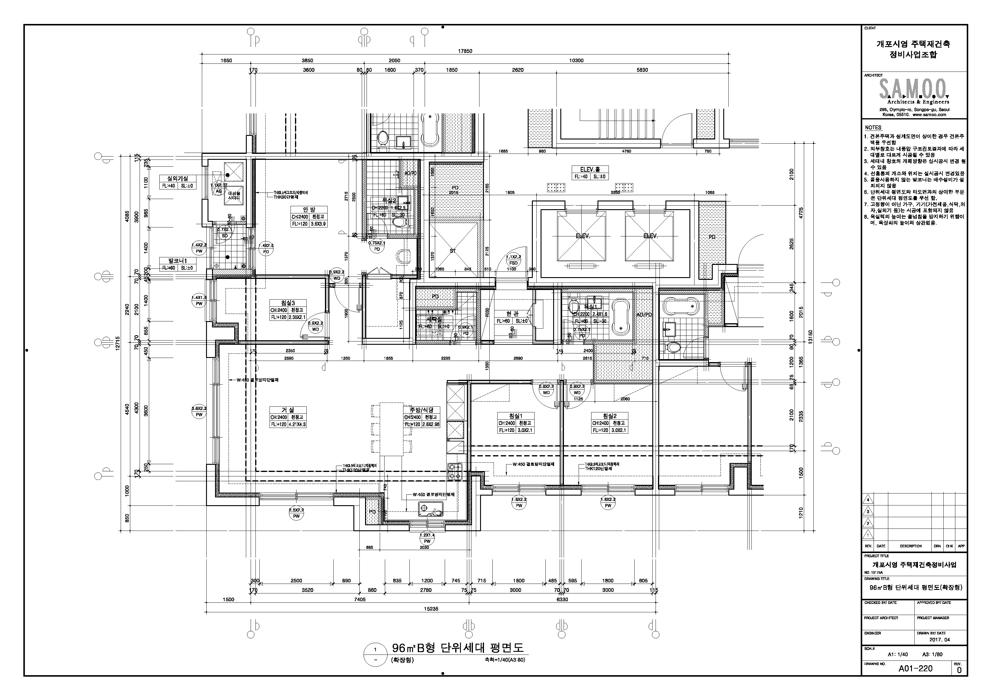
단위세대평면도(96A형)

단위세대평면도(96A형)
공급면적 (㎡) 128.91
사업시행인가(변경)일자 2017-07-13
형별 96A
세대수 99
전용면적 (㎡) 96.93
공용면적 (㎡) 31.98

단위세대평면도 이미지

단위세대평면도 이미지

단위세대평면도(96B)

단위세대평면도(96B)
공급면적 (㎡) 129.78
사업시행인가(변경)일자 2017-07-13
형별 96B
세대수 100
전용면적 (㎡) 96.91
공용면적 (㎡) 32.87

단위세대평면도 이미지

단위세대평면도 이미지

사업추진 단계별
공개자료 조회

툴팁 아이콘
원하시는 사업 추진단계에 등록된 자료들을 조회해 보실 수 있습니다.