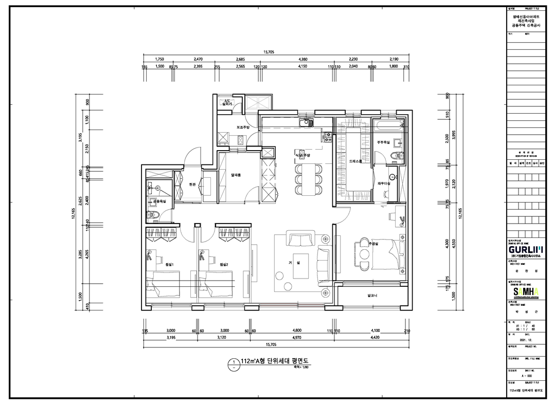
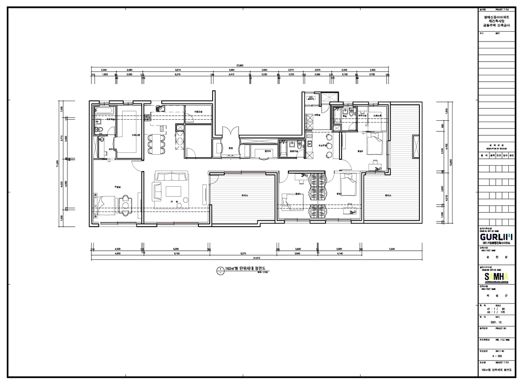
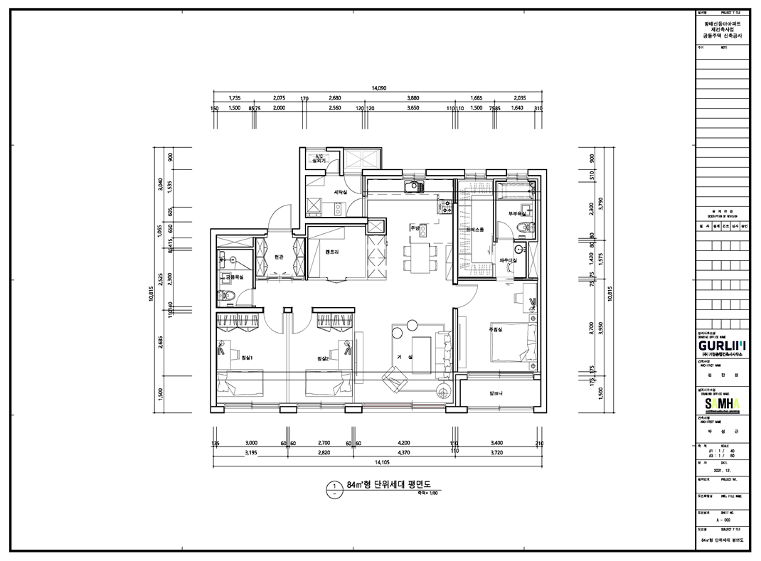
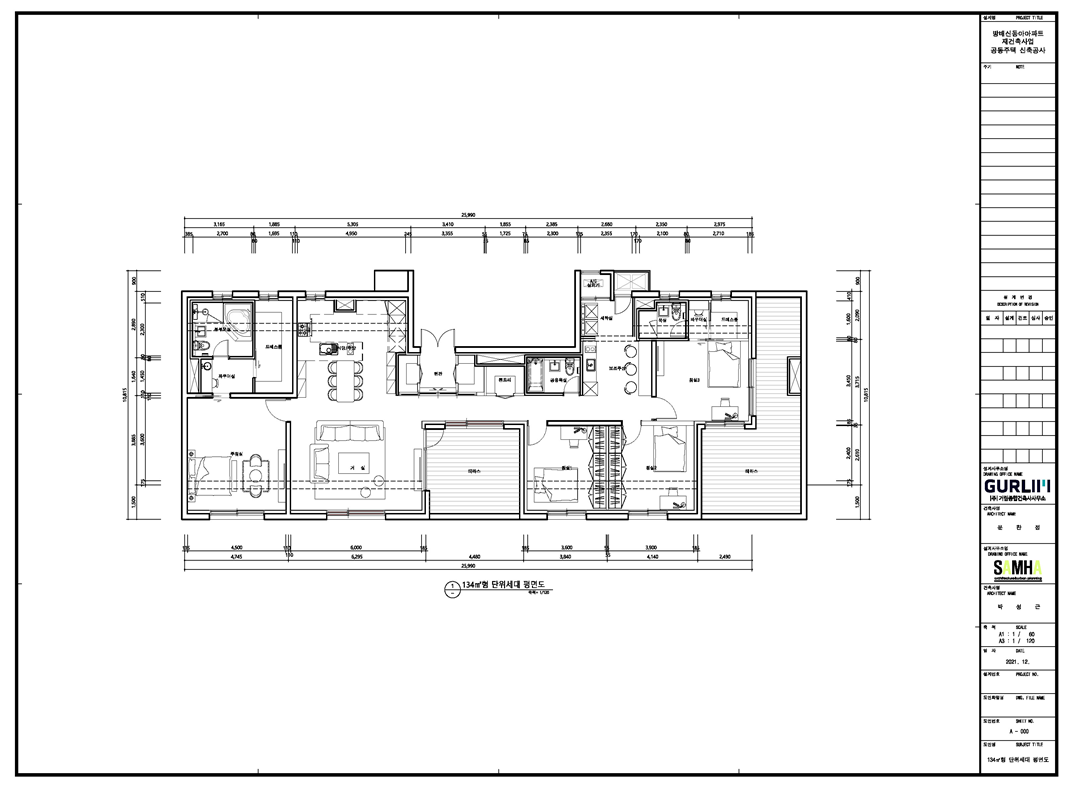
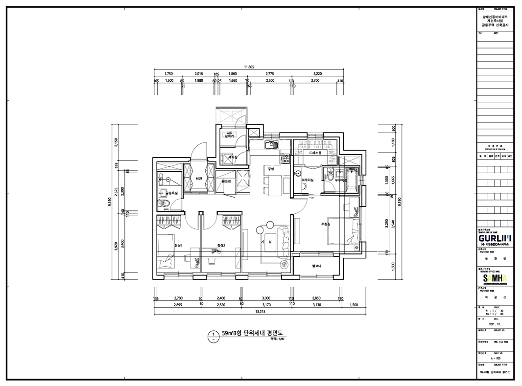
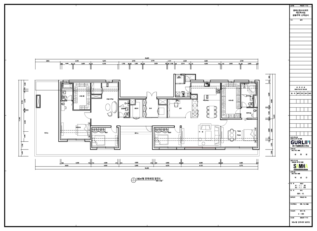
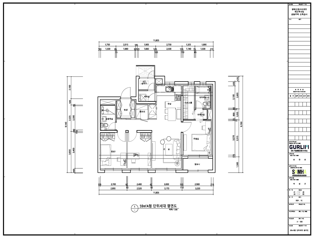
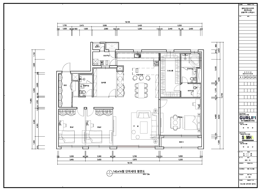
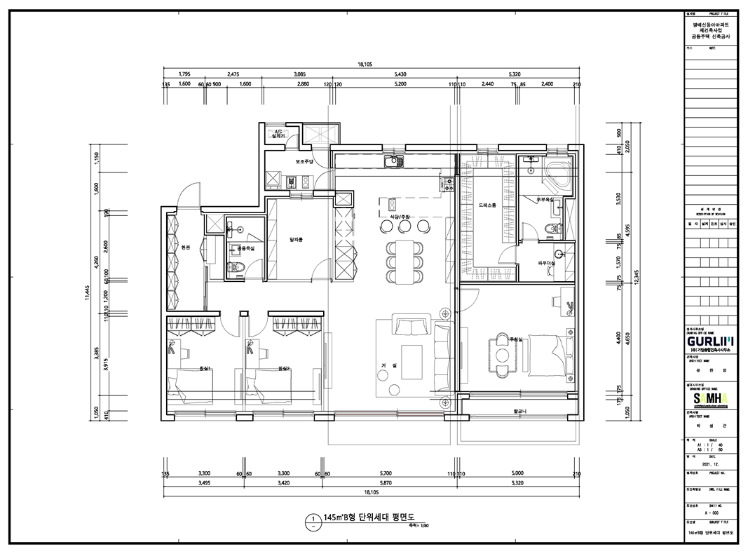
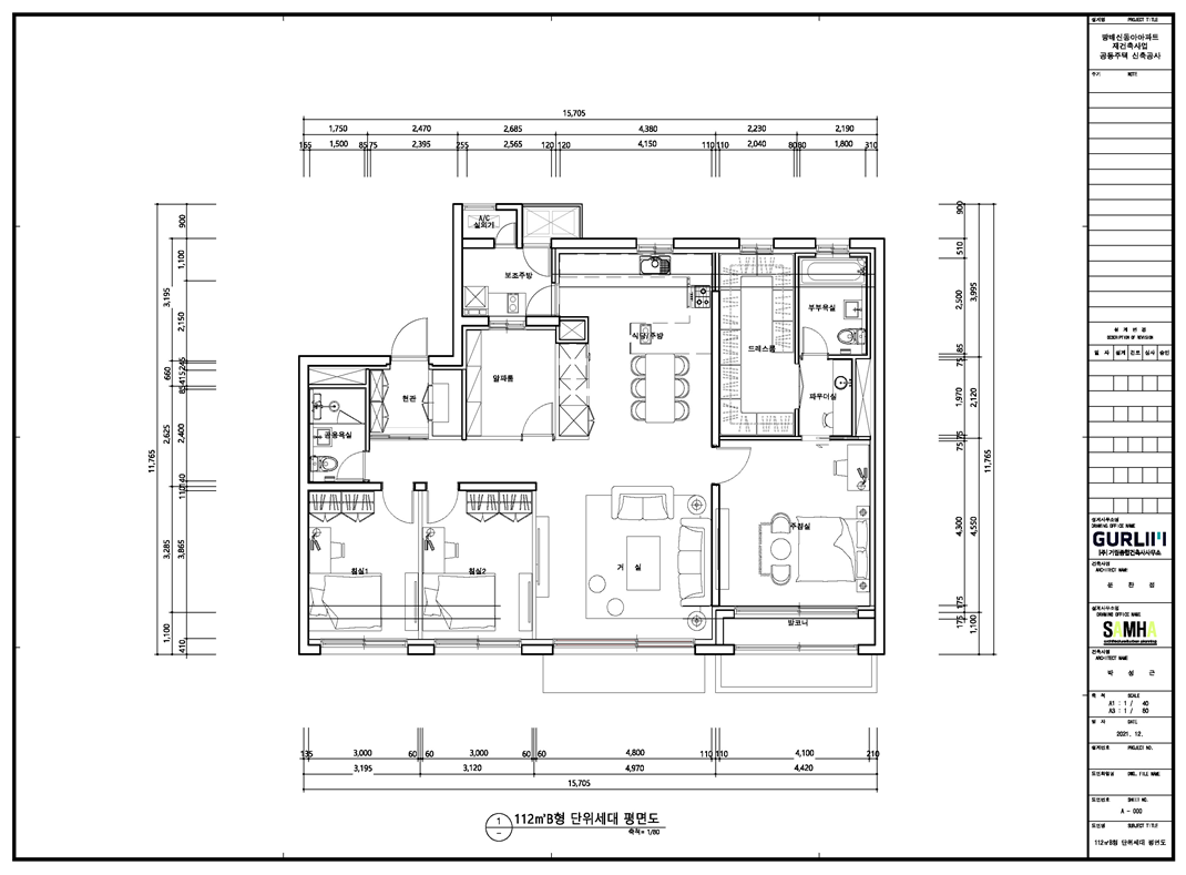
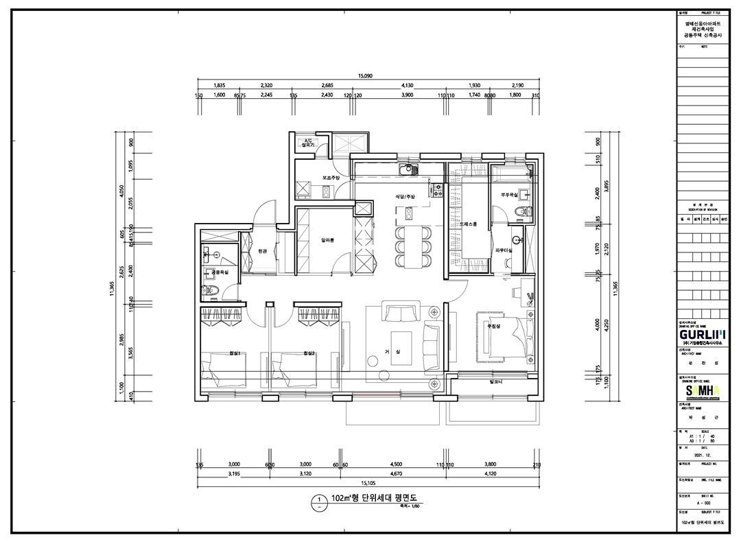
단위세대평면도
정비사업 추진과정을 유리알처럼 투명하게 공개

건축계획-단위세대평면도

건축계획-단위세대평면도
공급면적 (㎡) 107,698.6426
사업시행인가(변경)일자 2022-07-08
형별 59A/59B/84/102/112A/112B/135/145A/145B/134P/160P/180P
세대수 843
전용면적 (㎡) 81,561.2838
공용면적 (㎡) 19,460.2444

단위세대평면도 이미지

단위세대평면도 이미지

단위세대평면도 이미지

단위세대평면도 이미지

단위세대평면도 이미지

단위세대평면도 이미지

단위세대평면도 이미지

단위세대평면도 이미지

단위세대평면도 이미지

단위세대평면도 이미지

단위세대평면도 이미지

단위세대평면도 이미지

사업추진 단계별
공개자료 조회

툴팁 아이콘
원하시는 사업 추진단계에 등록된 자료들을 조회해 보실 수 있습니다.