단위세대평면도
정비사업 추진과정을 유리알처럼 투명하게 공개

(변경)단위세대평면도 125A-1㎡

(변경)단위세대평면도 125A-1㎡
공급면적 (㎡) 165.42
사업시행인가(변경)일자 2025-09-26
형별 125A-1
세대수 24
전용면적 (㎡) 125.77
공용면적 (㎡) 39.65

단위세대평면도 이미지

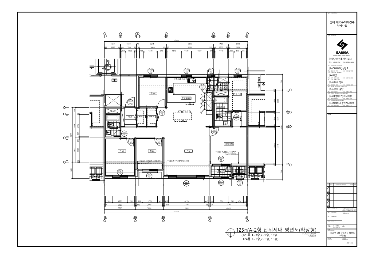
(변경)단위세대평면도 125A-2㎡

(변경)단위세대평면도 125A-2㎡
공급면적 (㎡) 165.59
사업시행인가(변경)일자 2025-09-26
형별 125A-2
세대수 28
전용면적 (㎡) 125.99
공용면적 (㎡) 39.70

단위세대평면도 이미지

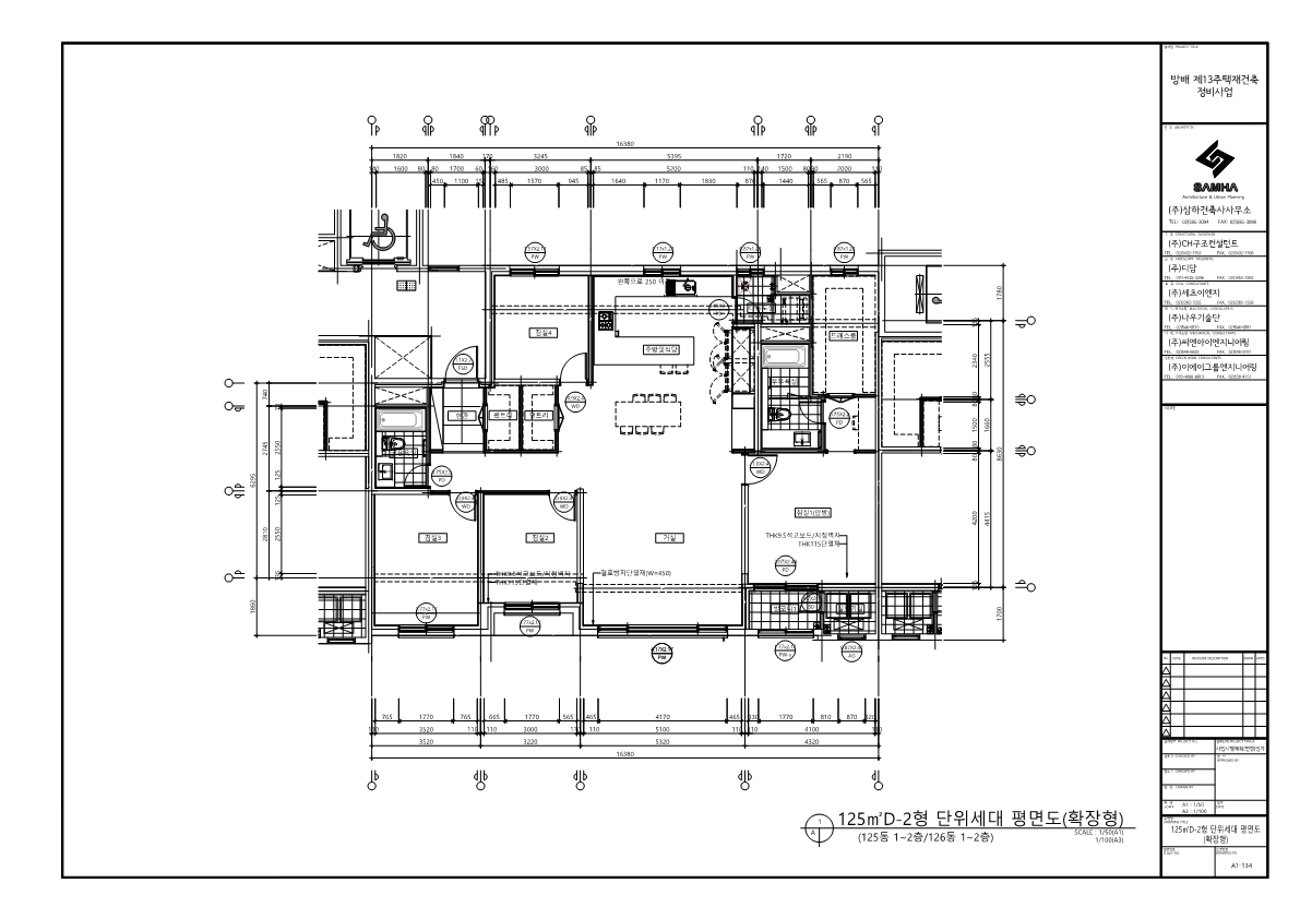
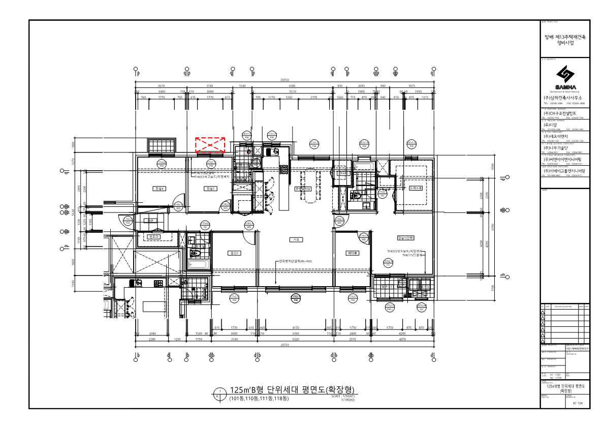
(변경)단위세대평면도 125B㎡

(변경)단위세대평면도 125B㎡
공급면적 (㎡) 167.69
사업시행인가(변경)일자 2025-09-26
형별 125B
세대수 76
전용면적 (㎡) 125.97
공용면적 (㎡) 41.72

단위세대평면도 이미지

(변경)단위세대평면도 125C-1㎡

(변경)단위세대평면도 125C-1㎡
공급면적 (㎡) 167.83
사업시행인가(변경)일자 2025-09-26
형별 125C-1
세대수 14
전용면적 (㎡) 125.95
공용면적 (㎡) 41.88

단위세대평면도 이미지

(변경)단위세대평면도 125C-2㎡

(변경)단위세대평면도 125C-2㎡
공급면적 (㎡) 167.83
사업시행인가(변경)일자 2025-09-26
형별 125C-2
세대수 13
전용면적 (㎡) 125.95
공용면적 (㎡) 41.88

단위세대평면도 이미지

(변경)단위세대평면도 125D-1㎡

(변경)단위세대평면도 125D-1㎡
공급면적 (㎡) 165.42
사업시행인가(변경)일자 2025-09-26
형별 125D-1
세대수 8
전용면적 (㎡) 125.77
공용면적 (㎡) 39.65

단위세대평면도 이미지

(변경)단위세대평면도 125D-2㎡

(변경)단위세대평면도 125D-2㎡
공급면적 (㎡) 165.69
사업시행인가(변경)일자 2025-09-26
형별 125D-2
세대수 8
전용면적 (㎡) 125.99
공용면적 (㎡) 39.70

단위세대평면도 이미지

(변경)단위세대평면도 162㎡

(변경)단위세대평면도 162㎡
공급면적 (㎡) 213.45
사업시행인가(변경)일자 2025-09-26
형별 162
세대수 53
전용면적 (㎡) 162.94
공용면적 (㎡) 50.51

단위세대평면도 이미지

(변경)단위세대평면도 39㎡

(변경)단위세대평면도 39㎡
공급면적 (㎡) 39㎡
사업시행인가(변경)일자 2025-09-26
형별 1
세대수 52
전용면적 (㎡) 39.79
공용면적 (㎡) 55.25

단위세대평면도 이미지

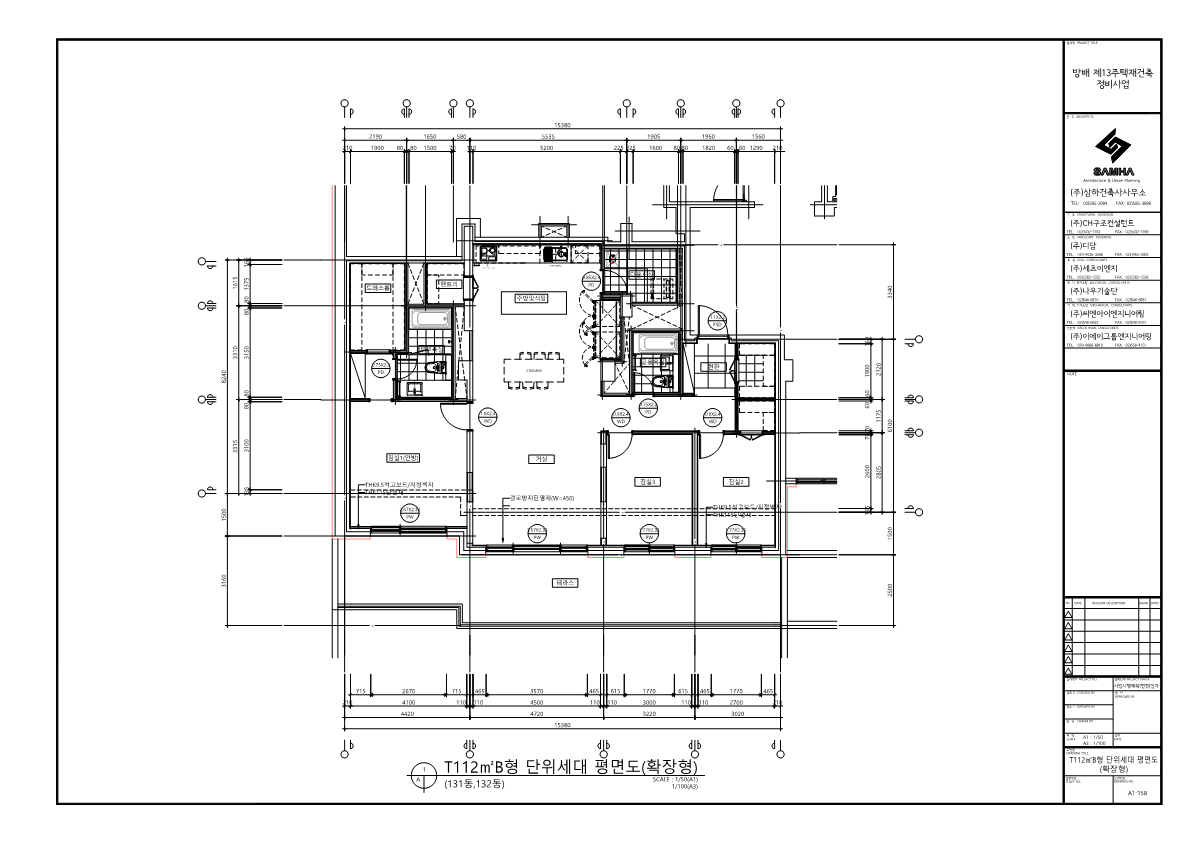
(변경)단위세대평면도 T112A㎡

(변경)단위세대평면도 T112A㎡
공급면적 (㎡) 151.49
사업시행인가(변경)일자 2025-09-26
형별 T112A
세대수 10
전용면적 (㎡) 112.71
공용면적 (㎡) 38.78

단위세대평면도 이미지

(변경)단위세대평면도 T112B㎡

(변경)단위세대평면도 T112B㎡
공급면적 (㎡) 151.66
사업시행인가(변경)일자 2025-09-26
형별 T112B
세대수 10
전용면적 (㎡) 112.77
공용면적 (㎡) 38.89

단위세대평면도 이미지

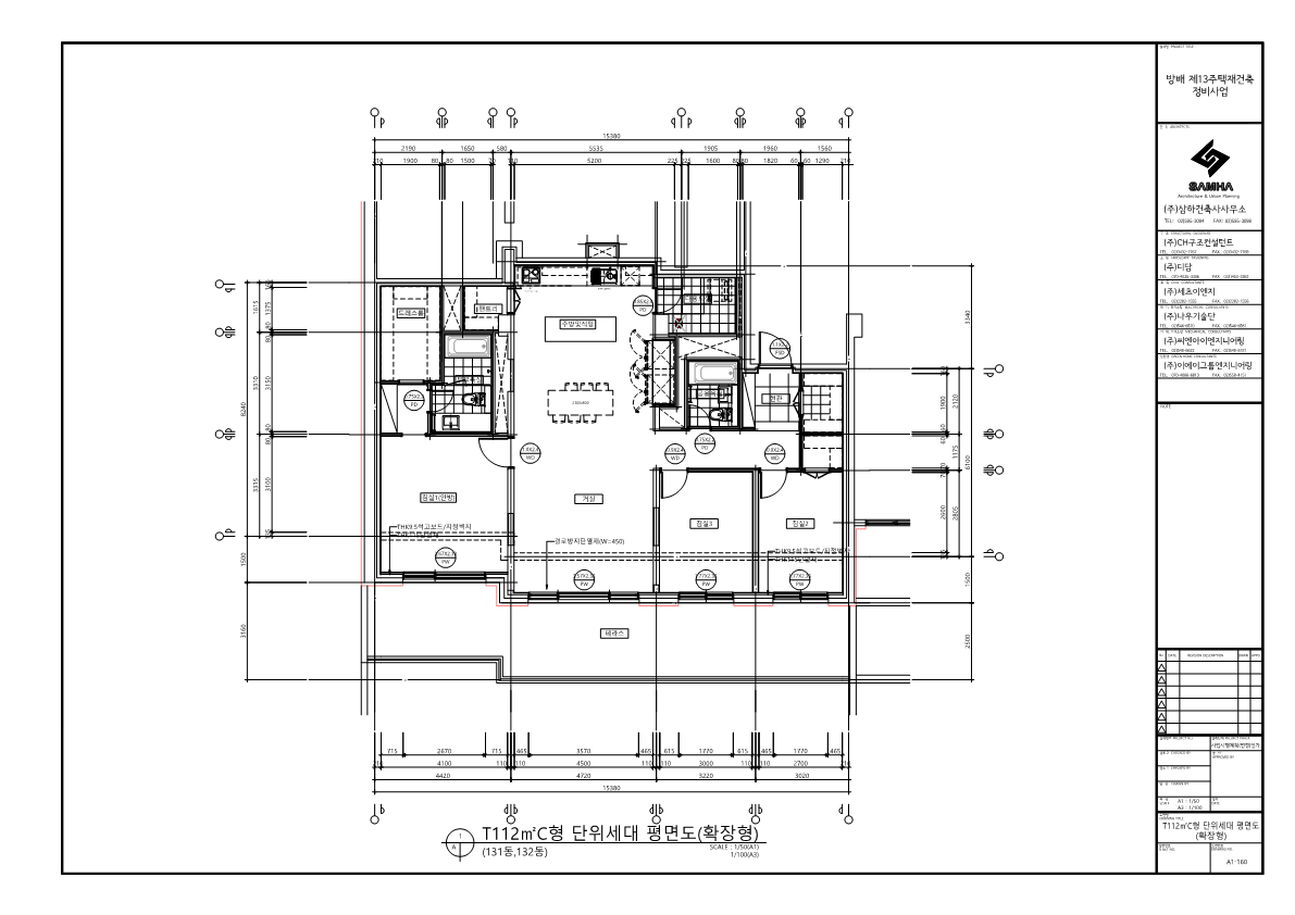
(변경)단위세대평면도 T112C㎡

(변경)단위세대평면도 T112C㎡
공급면적 (㎡) 151.77
사업시행인가(변경)일자 2025-09-26
형별 T112C
세대수 10
전용면적 (㎡) 112.87
공용면적 (㎡) 38.90

단위세대평면도 이미지

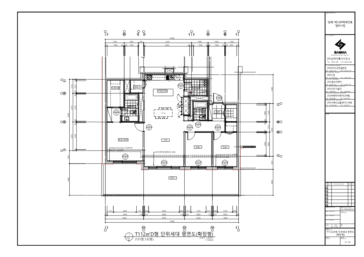
(변경)단위세대평면도 T112D㎡

(변경)단위세대평면도 T112D㎡
공급면적 (㎡) 151.78
사업시행인가(변경)일자 2025-09-26
형별 T112D
세대수 6
전용면적 (㎡) 112.87
공용면적 (㎡) 38.91

단위세대평면도 이미지

(변경)단위세대평면도 다락162㎡

(변경)단위세대평면도 다락162㎡
공급면적 (㎡) 213.45
사업시행인가(변경)일자 2025-09-26
형별 다락162
세대수 14
전용면적 (㎡) 162.94
공용면적 (㎡) 50.51

단위세대평면도 이미지

단위세대평면도 이미지

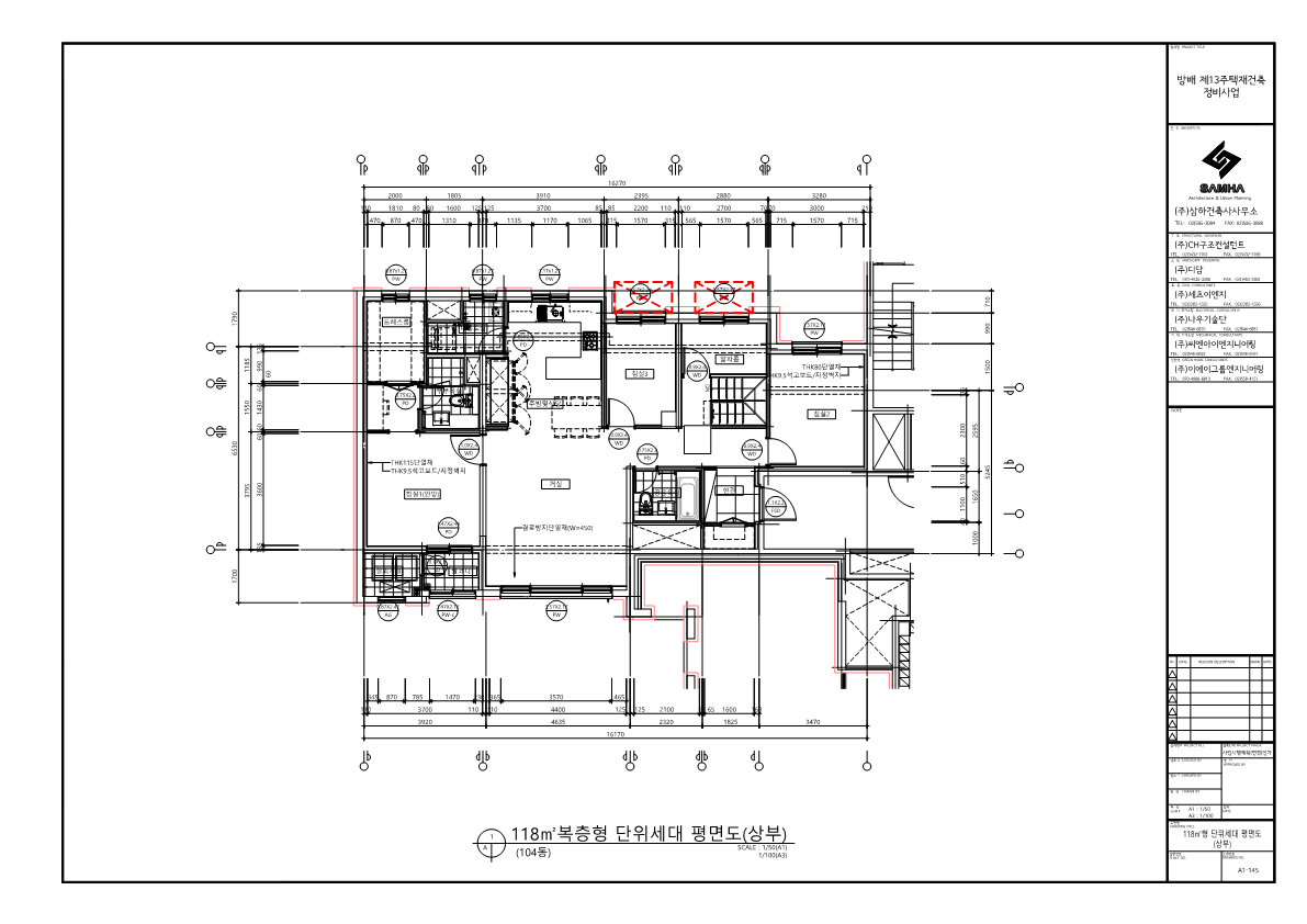
(변경)단위세대평면도 복층118㎡

(변경)단위세대평면도 복층118㎡
공급면적 (㎡) 156.45
사업시행인가(변경)일자 2025-09-26
형별 복층118
세대수 2
전용면적 (㎡) 118.74
공용면적 (㎡) 37.71

단위세대평면도 이미지

단위세대평면도 이미지

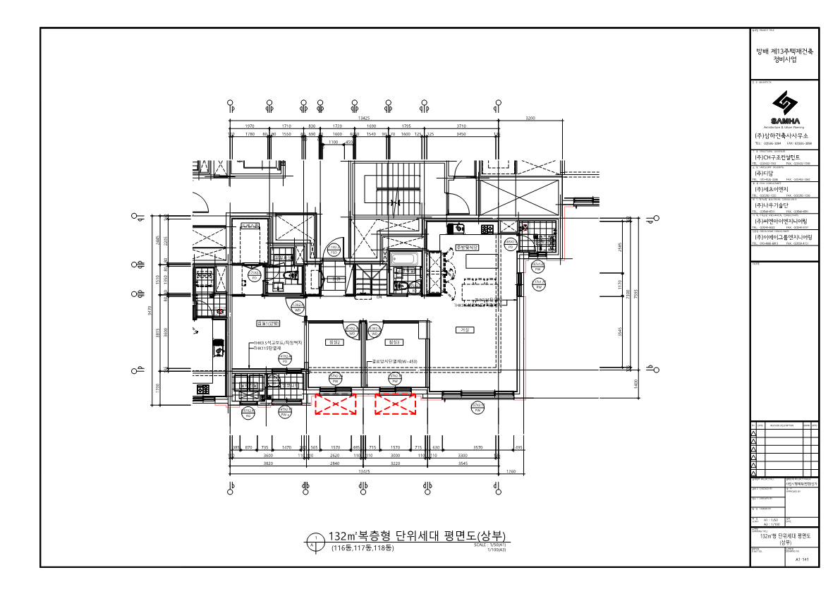
(변경)단위세대평면도 복층132㎡

(변경)단위세대평면도 복층132㎡
공급면적 (㎡) 174.19
사업시행인가(변경)일자 2025-09-26
형별 복층132
세대수 3
전용면적 (㎡) 132.79
공용면적 (㎡) 41.40

단위세대평면도 이미지

단위세대평면도 이미지

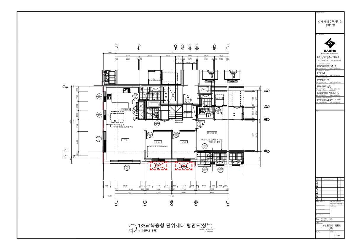
(변경)단위세대평면도 복층135㎡

(변경)단위세대평면도 복층135㎡
공급면적 (㎡) 177.27
사업시행인가(변경)일자 2025-09-26
형별 복층135
세대수 2
전용면적 (㎡) 135.60
공용면적 (㎡) 41.67

단위세대평면도 이미지

단위세대평면도 이미지

(변경)단위세대평면도 복층140㎡

(변경)단위세대평면도 복층140㎡
공급면적 (㎡) 182.66
사업시행인가(변경)일자 2025-09-26
형별 복층140
세대수 1
전용면적 (㎡) 140.02
공용면적 (㎡) 42.64

단위세대평면도 이미지

단위세대평면도 이미지

(변경)단위세대평면도 복층153㎡

(변경)단위세대평면도 복층153㎡
공급면적 (㎡) 203.45
사업시행인가(변경)일자 2025-09-26
형별 복층153
세대수 2
전용면적 (㎡) 153.09
공용면적 (㎡) 50.36

단위세대평면도 이미지

단위세대평면도 이미지

(변경)단위세대평면도 복층163㎡

(변경)단위세대평면도 복층163㎡
공급면적 (㎡) 218.79
사업시행인가(변경)일자 2025-09-26
형별 복층163
세대수 1
전용면적 (㎡) 163.43
공용면적 (㎡) 55.36

단위세대평면도 이미지

단위세대평면도 이미지

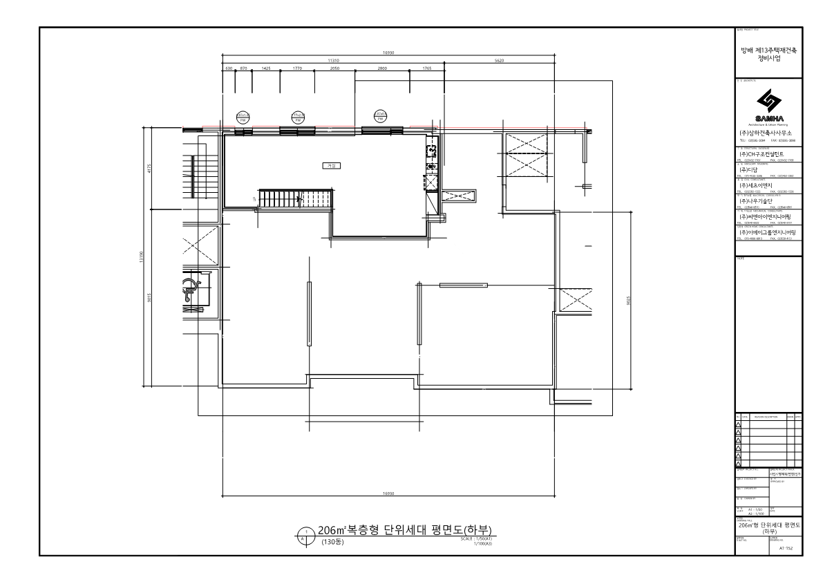
(변경)단위세대평면도 복층206㎡

(변경)단위세대평면도 복층206㎡
공급면적 (㎡) 273.05
사업시행인가(변경)일자 2025-09-26
형별 복층206
세대수 1
전용면적 (㎡) 206.80
공용면적 (㎡) 66.25

단위세대평면도 이미지

단위세대평면도 이미지

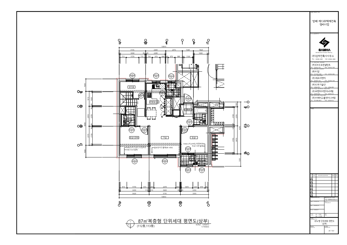
(변경)단위세대평면도 복층87㎡

(변경)단위세대평면도 복층87㎡
공급면적 (㎡) 117.65
사업시행인가(변경)일자 2025-09-26
형별 복층87
세대수 3
전용면적 (㎡) 87.16
공용면적 (㎡) 30.49

단위세대평면도 이미지

단위세대평면도 이미지

(변경)단위세대평면도112㎡

(변경)단위세대평면도112㎡
공급면적 (㎡) 149.13
사업시행인가(변경)일자 2025-09-26
형별 112
세대수 78
전용면적 (㎡) 112.98
공용면적 (㎡) 36.15

단위세대평면도 이미지

(변경)단위세대평면도39㎡

(변경)단위세대평면도39㎡
공급면적 (㎡) 55.25
사업시행인가(변경)일자 2025-09-26
형별 39
세대수 52
전용면적 (㎡) 39.79
공용면적 (㎡) 15.46

단위세대평면도 이미지

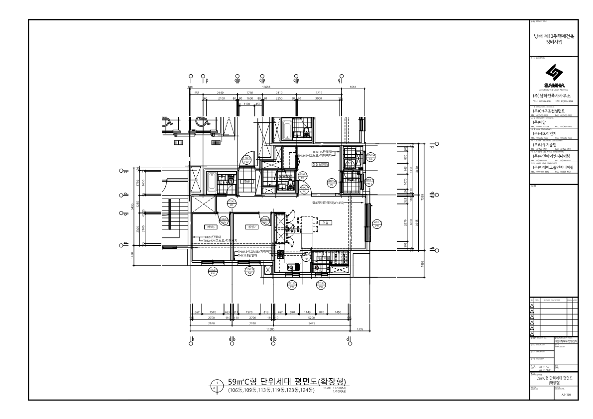
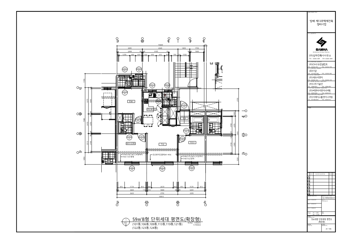
(변경)단위세대평면도59A㎡

(변경)단위세대평면도59A㎡
공급면적 (㎡) 80.34
사업시행인가(변경)일자 2025-09-26
형별 4
세대수 427
전용면적 (㎡) 59.91
공용면적 (㎡) 20.43

단위세대평면도 이미지

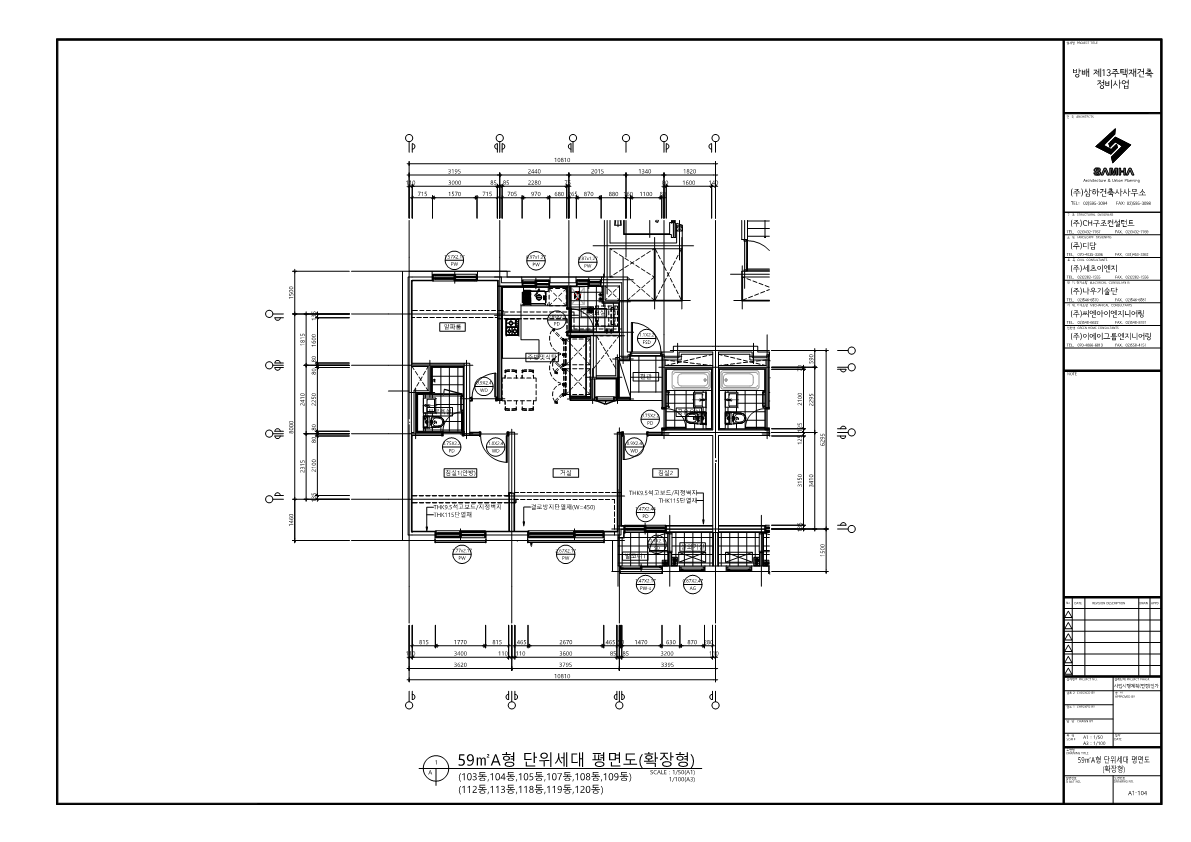
(변경)단위세대평면도59B㎡

(변경)단위세대평면도59B㎡
공급면적 (㎡) 80.94
사업시행인가(변경)일자 2025-09-26
형별 4
세대수 266
전용면적 (㎡) 59.86
공용면적 (㎡) 21.08

단위세대평면도 이미지

(변경)단위세대평면도59C㎡

(변경)단위세대평면도59C㎡
공급면적 (㎡) 81.27
사업시행인가(변경)일자 2025-09-26
형별 59C
세대수 89
전용면적 (㎡) 59.99
공용면적 (㎡) 21.28

단위세대평면도 이미지

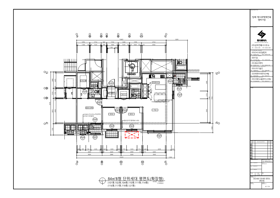
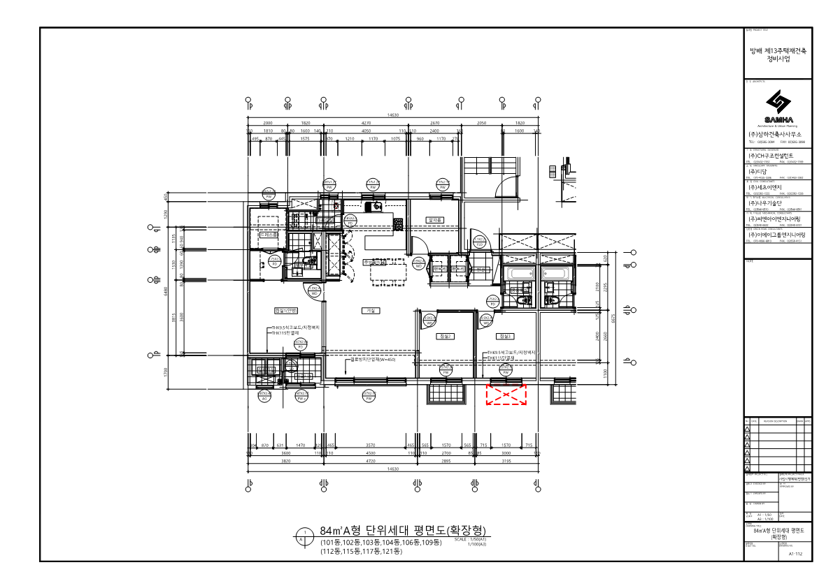
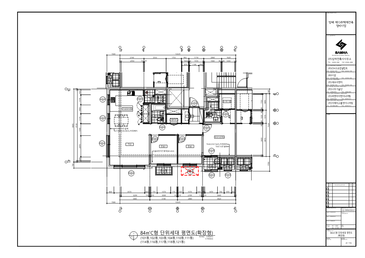
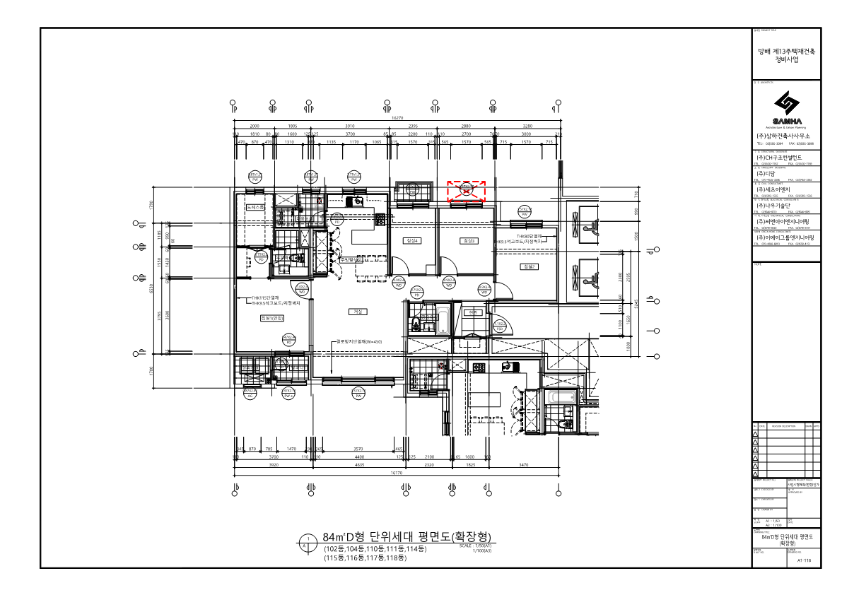
(변경)단위세대평면도84A㎡

(변경)단위세대평면도84A㎡
공급면적 (㎡) 113.05
사업시행인가(변경)일자 2025-09-26
형별 84A
세대수 249
전용면적 (㎡) 84.95
공용면적 (㎡) 28.10

단위세대평면도 이미지

(변경)단위세대평면도84B㎡

(변경)단위세대평면도84B㎡
공급면적 (㎡) 113.41
사업시행인가(변경)일자 2025-09-26
형별 84B
세대수 280
전용면적 (㎡) 84.77
공용면적 (㎡) 28.64

단위세대평면도 이미지

(변경)단위세대평면도84C㎡

(변경)단위세대평면도84C㎡
공급면적 (㎡) 113.21
사업시행인가(변경)일자 2025-09-26
형별 84C
세대수 219
전용면적 (㎡) 84.98
공용면적 (㎡) 28.23

단위세대평면도 이미지

(변경)단위세대평면도84D㎡

(변경)단위세대평면도84D㎡
공급면적 (㎡) 113.59
사업시행인가(변경)일자 2025-09-26
형별 84D
세대수 202
전용면적 (㎡) 84.83
공용면적 (㎡) 28.76

단위세대평면도 이미지

사업추진 단계별
공개자료 조회

툴팁 아이콘
원하시는 사업 추진단계에 등록된 자료들을 조회해 보실 수 있습니다.