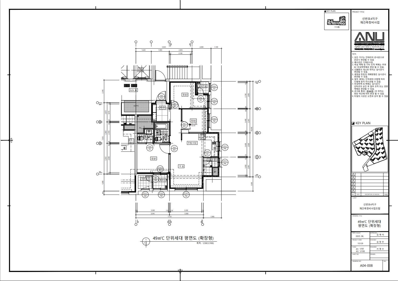
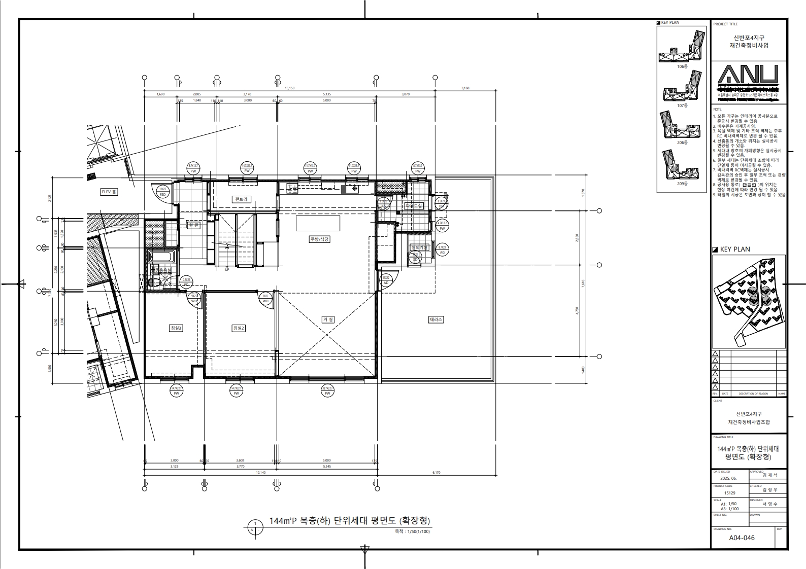
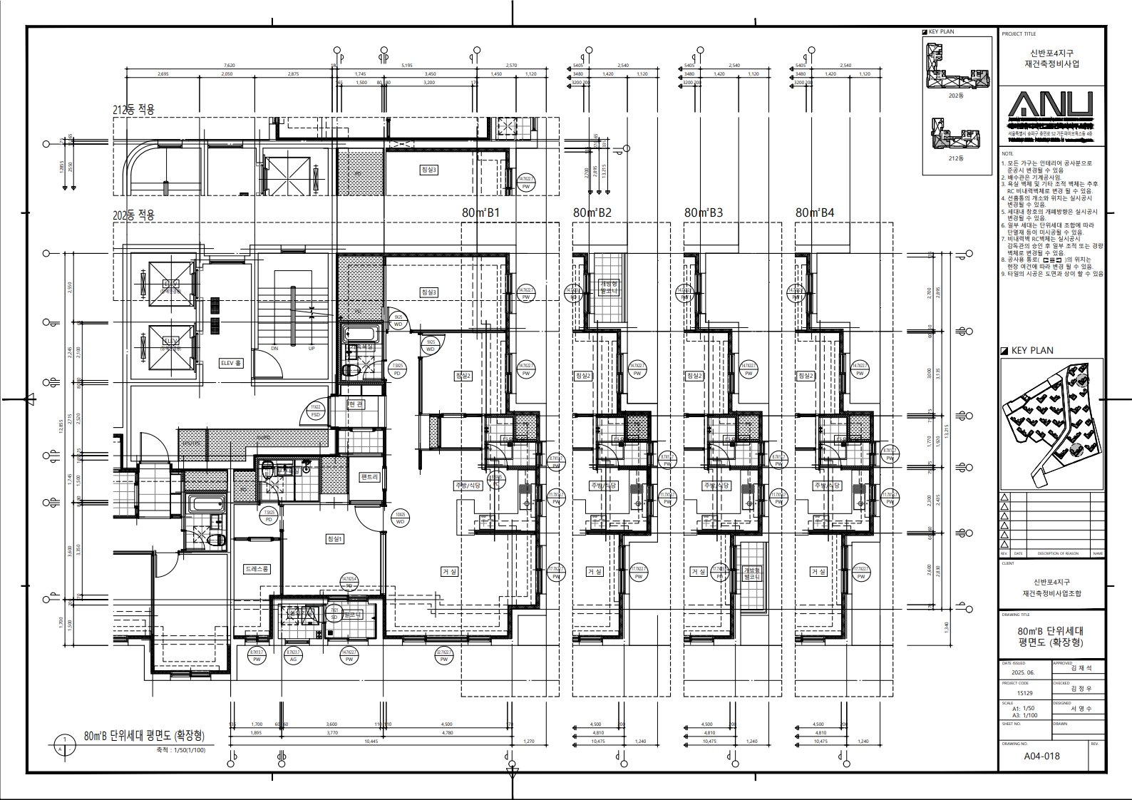
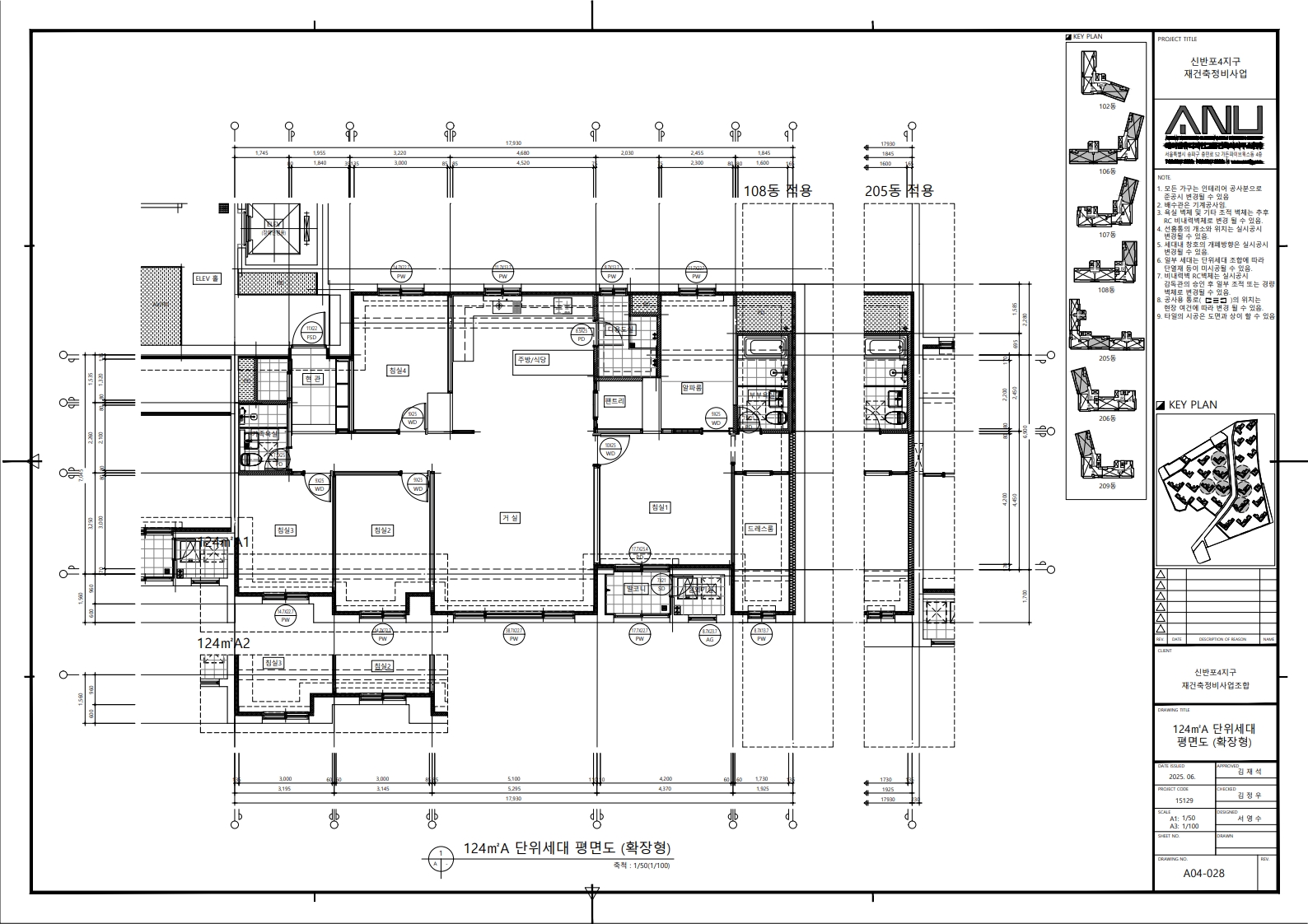
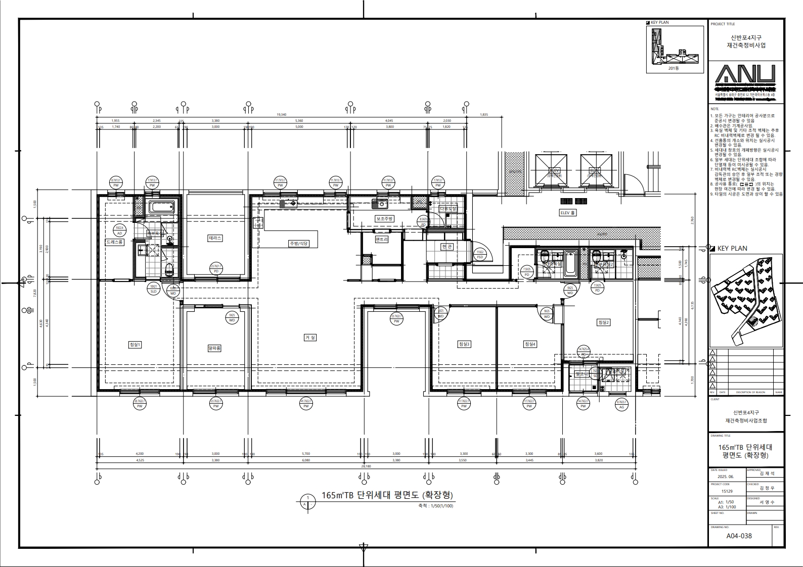
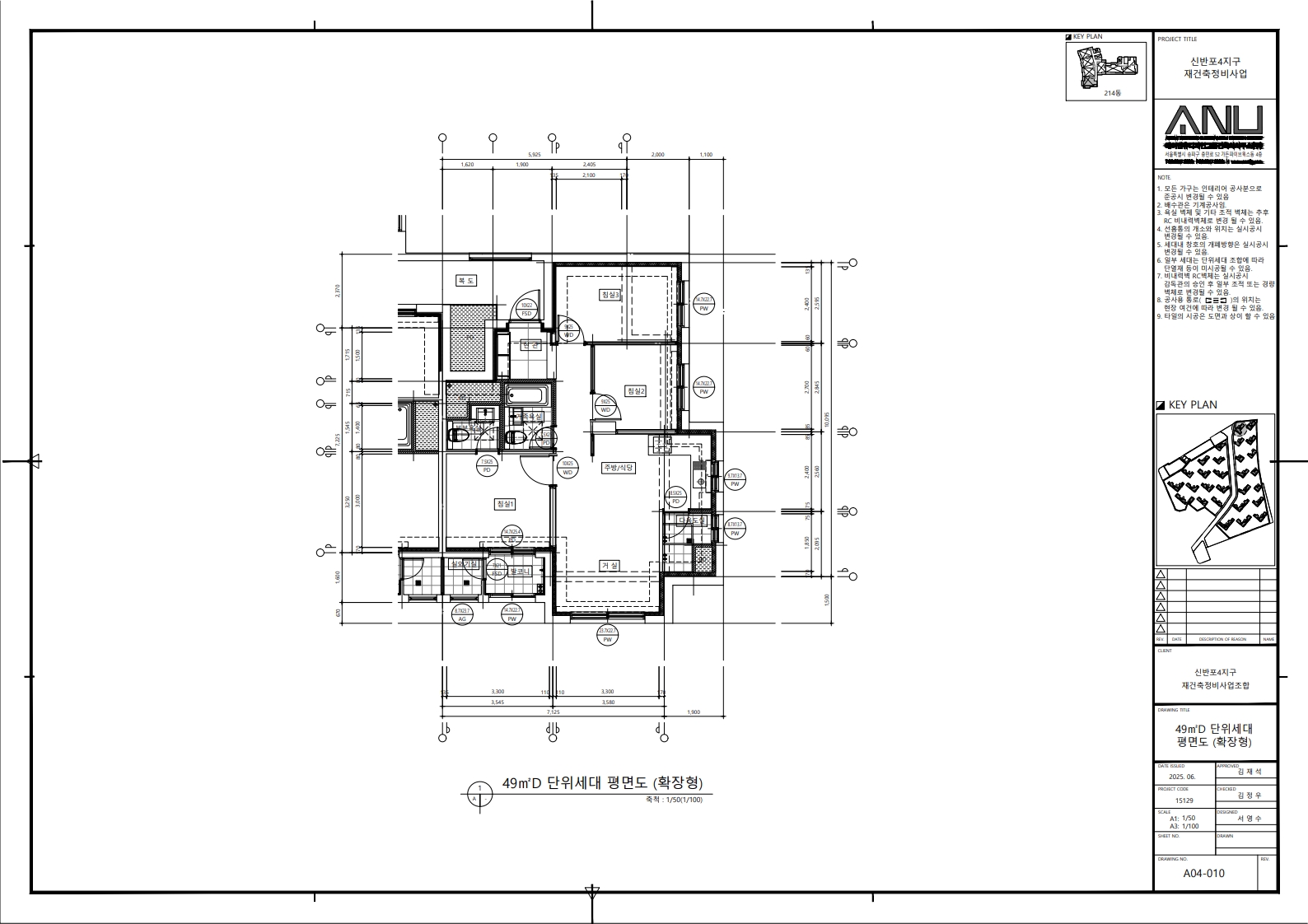
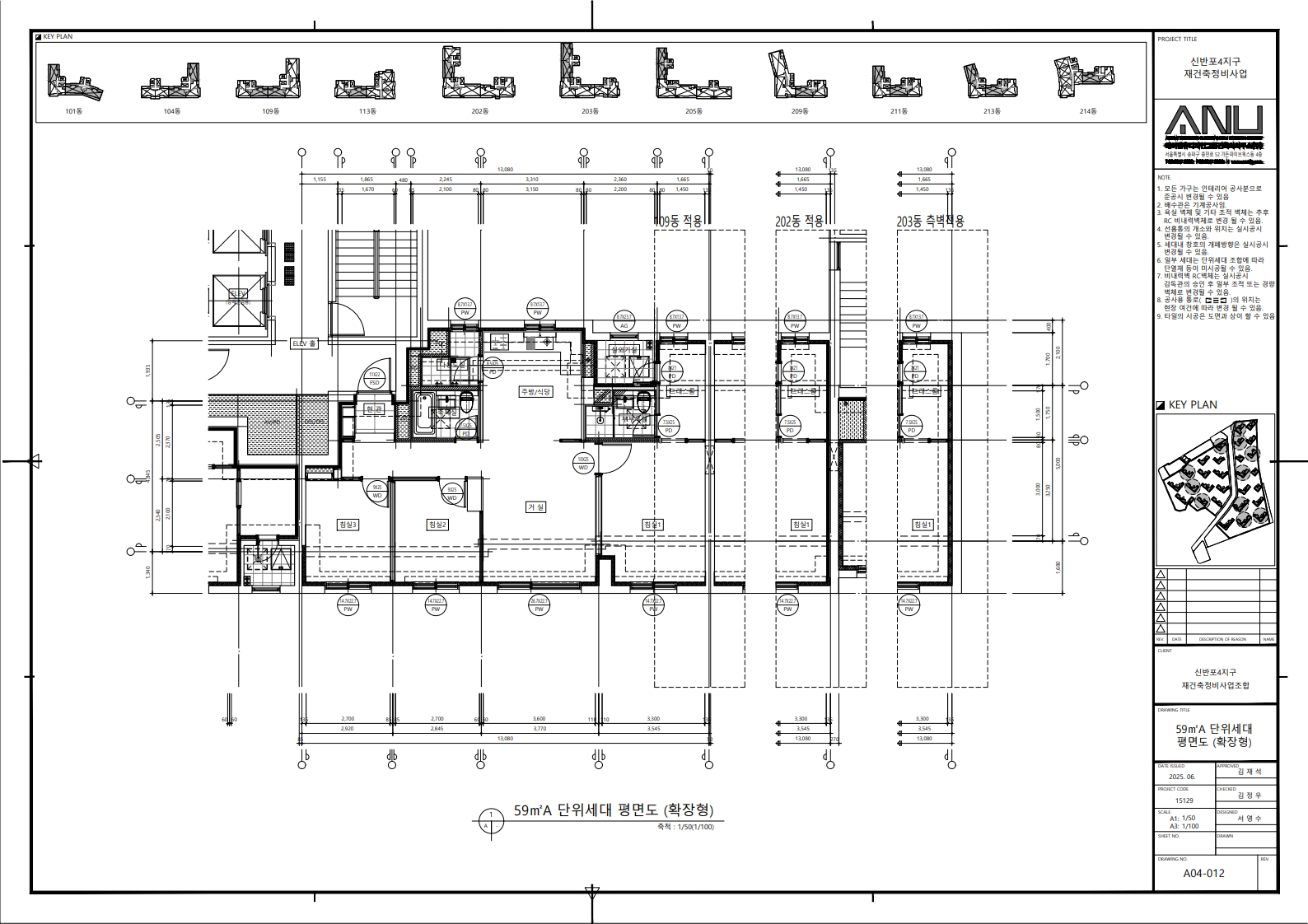
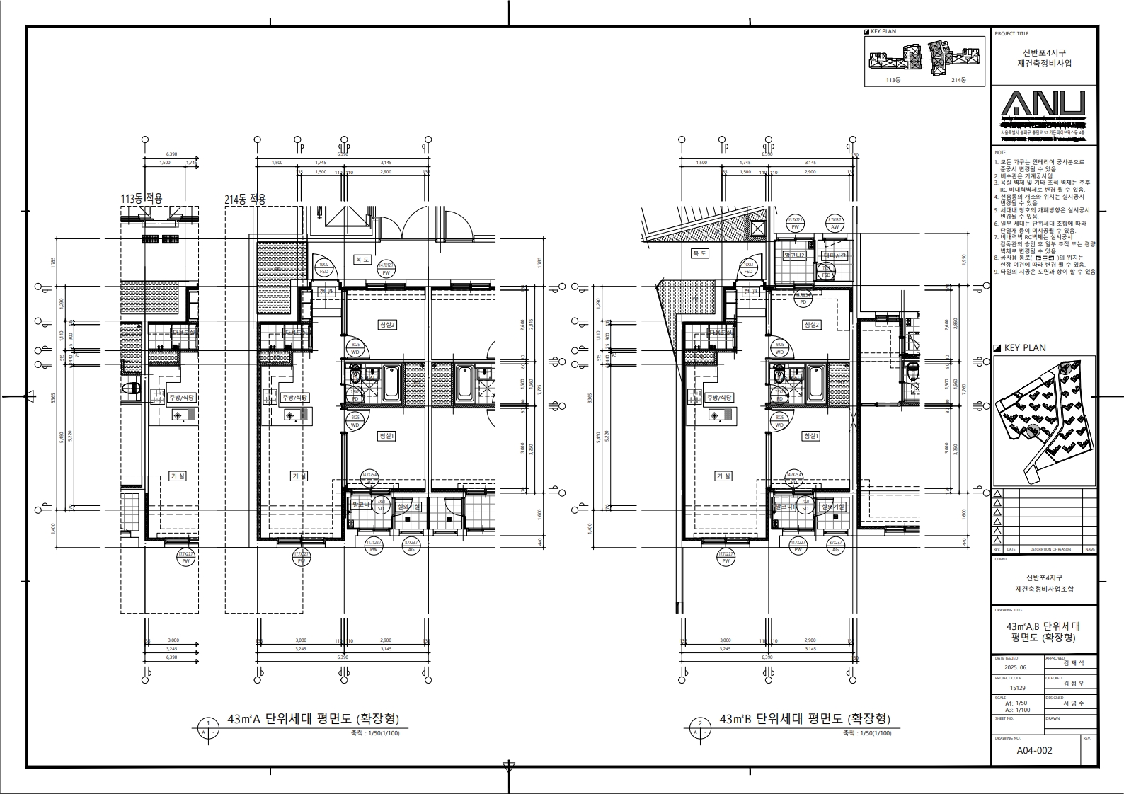
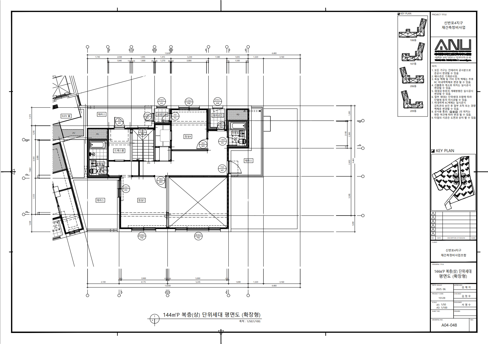
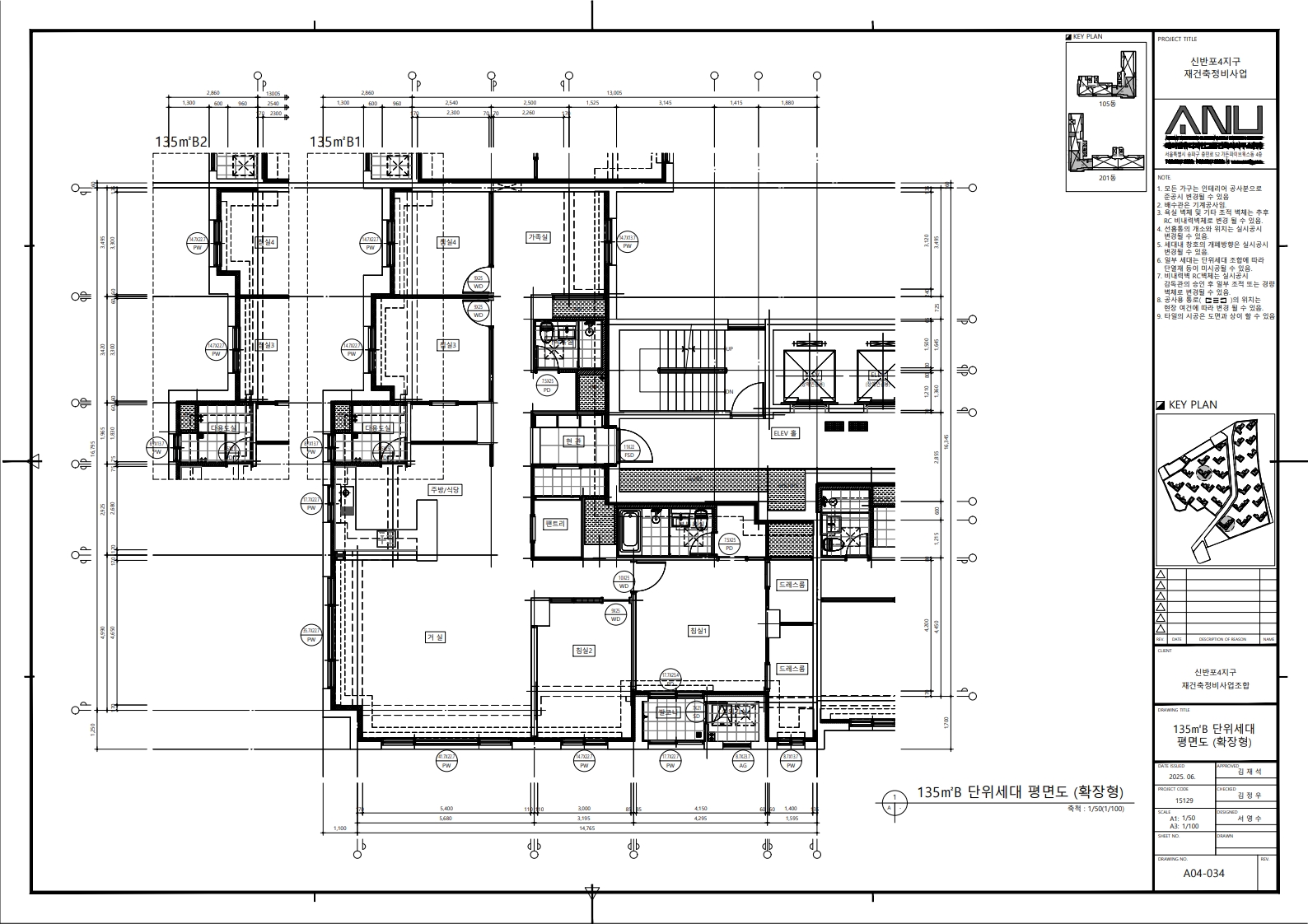
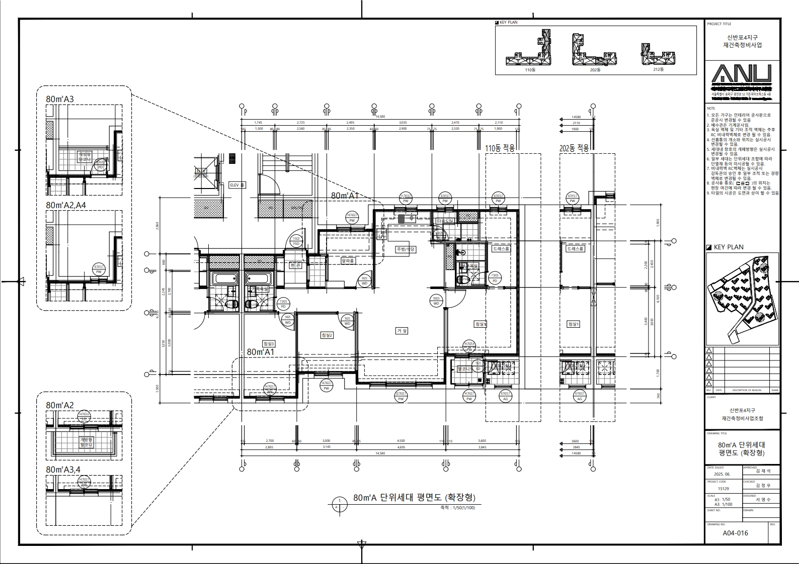
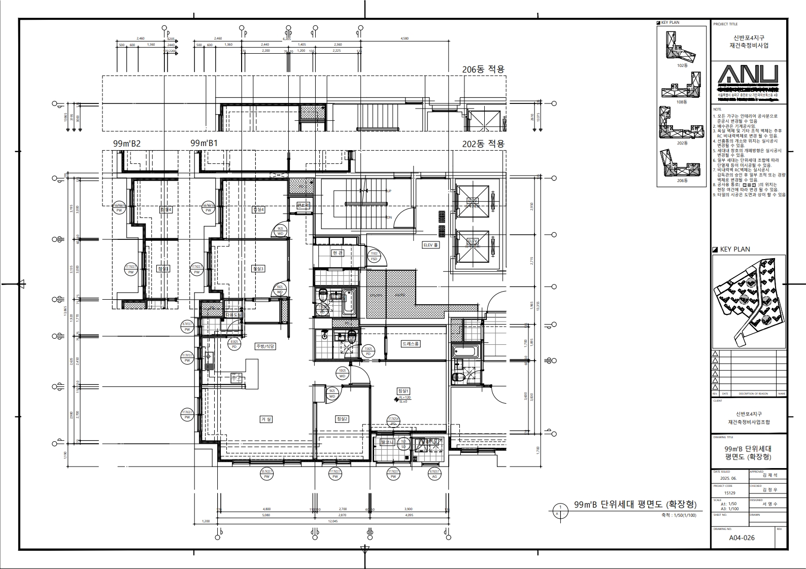
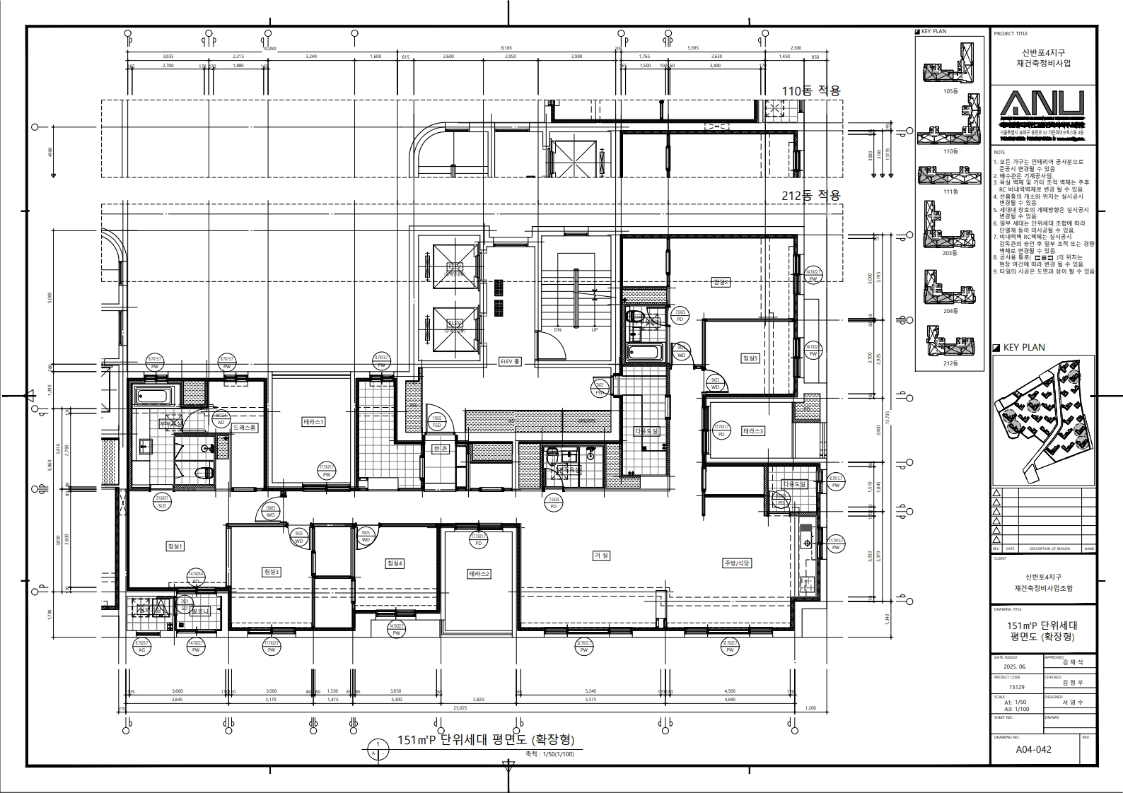
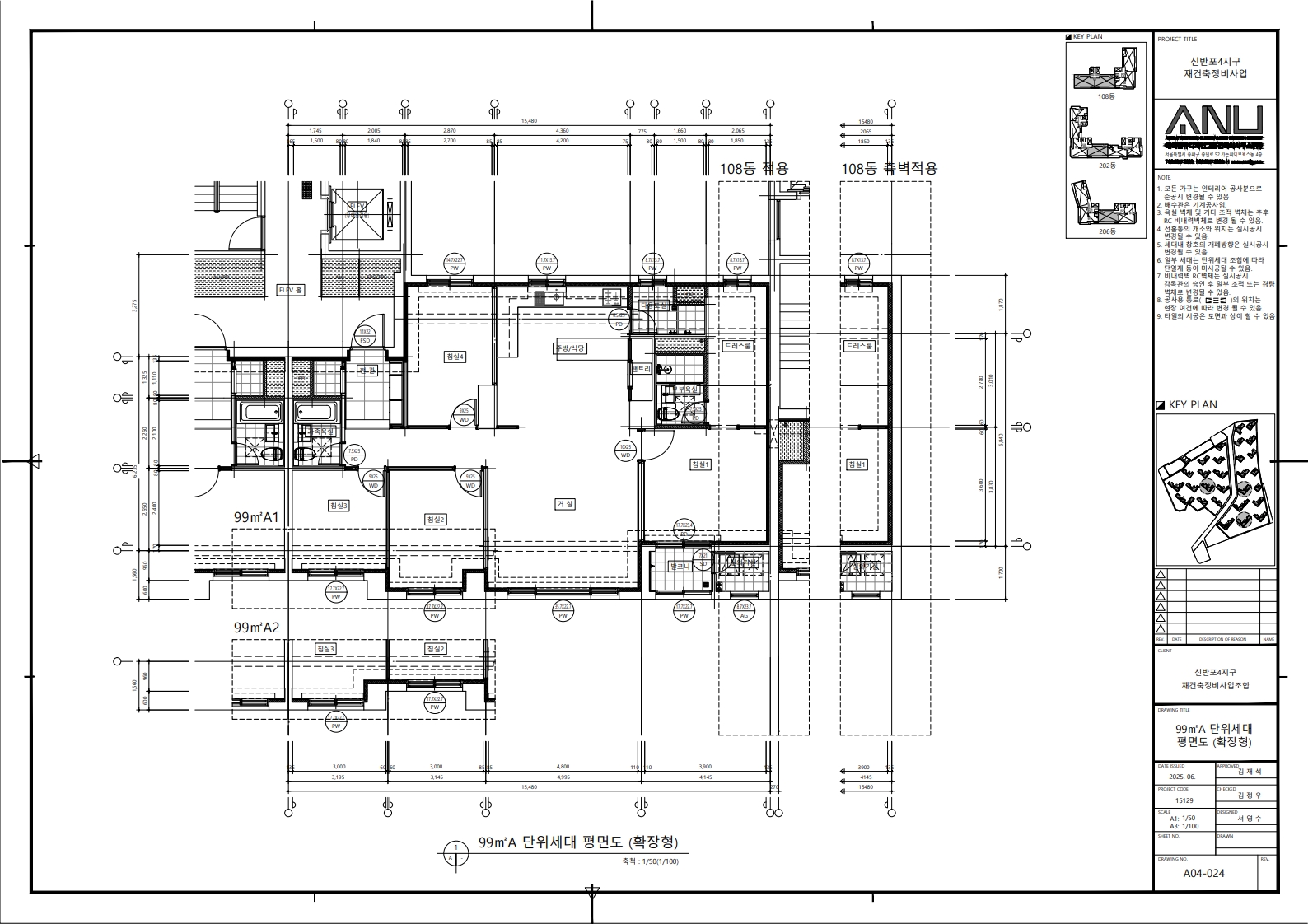
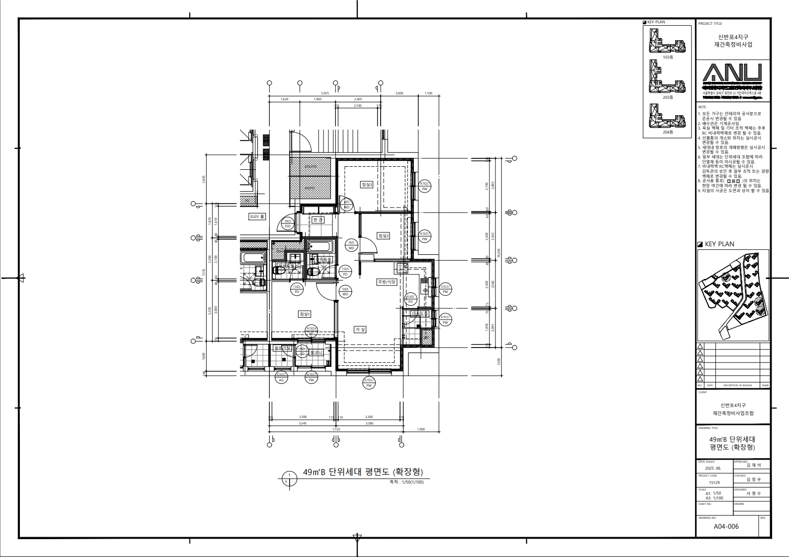
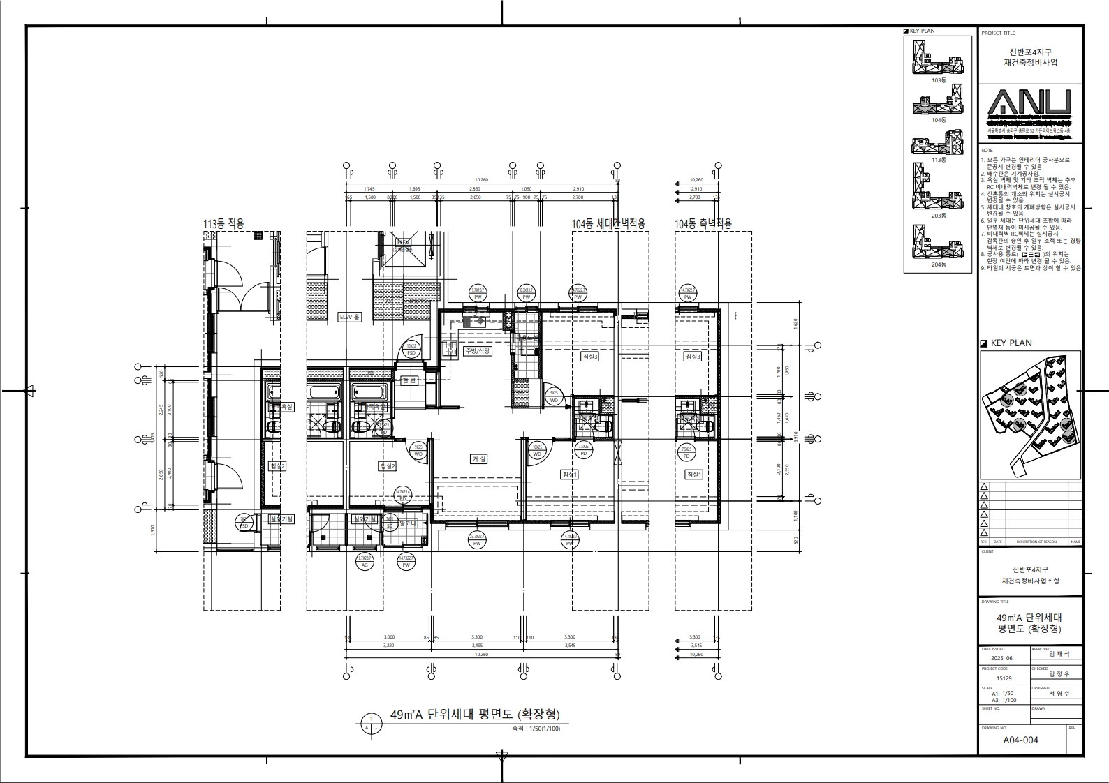
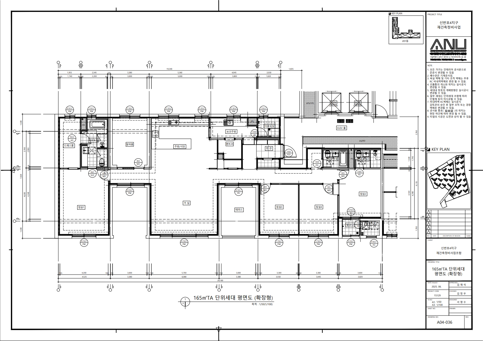
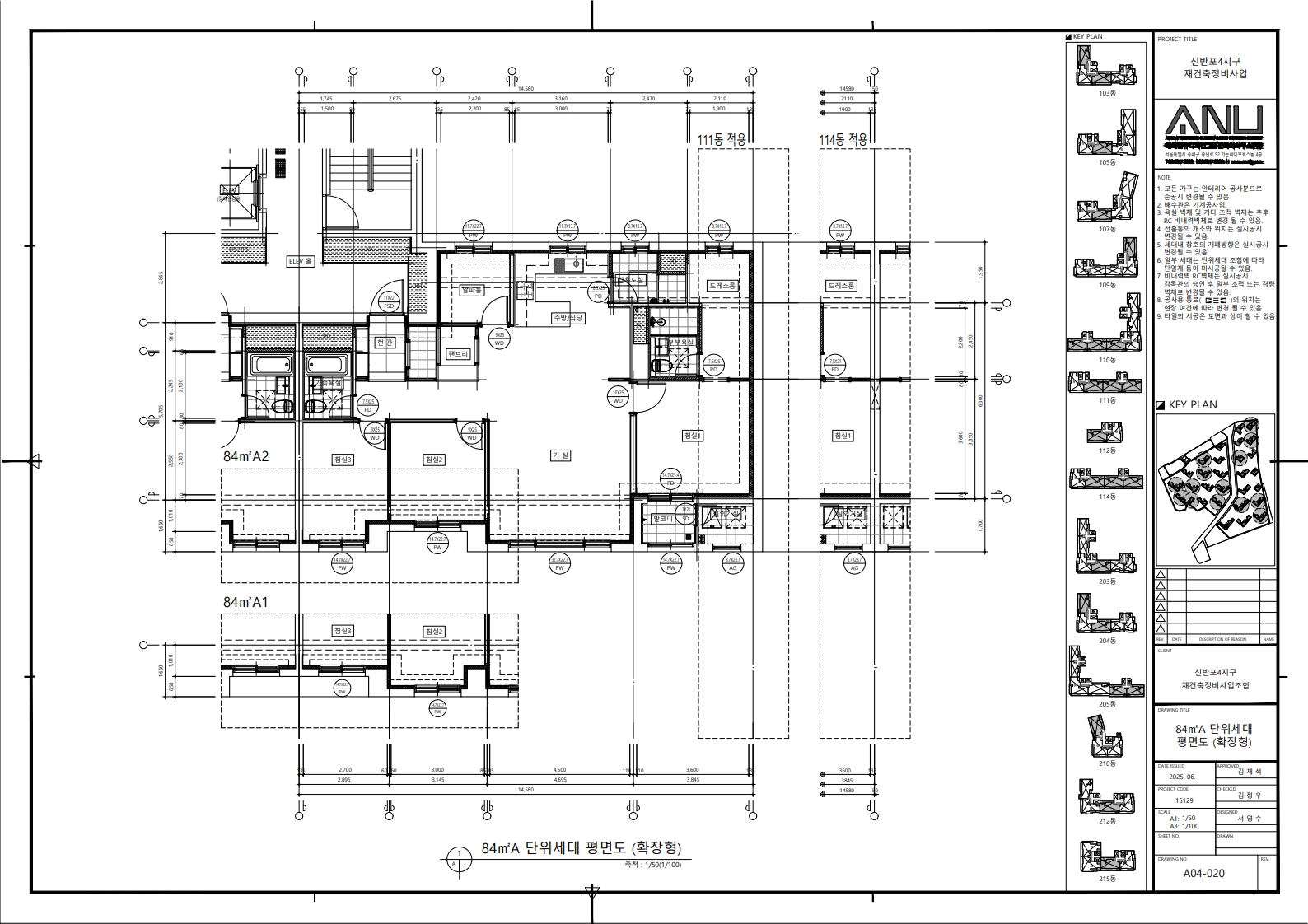
단위세대평면도
정비사업 추진과정을 유리알처럼 투명하게 공개

사업시행계획(변경)인가 4차 단위세대 평면도

사업시행계획(변경)인가 4차 단위세대 평면도
공급면적 (㎡) 83.79
사업시행인가(변경)일자 2023-11-14
형별 59A
세대수 491
전용면적 (㎡) 59.17
공용면적 (㎡) 24.62

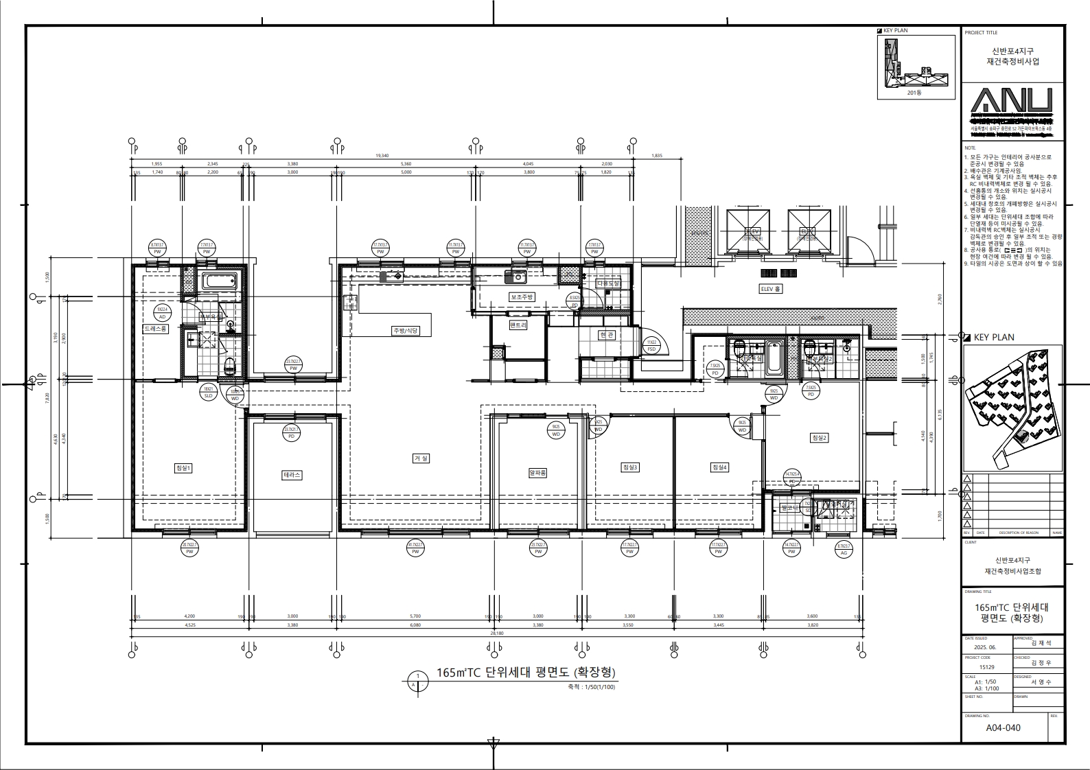
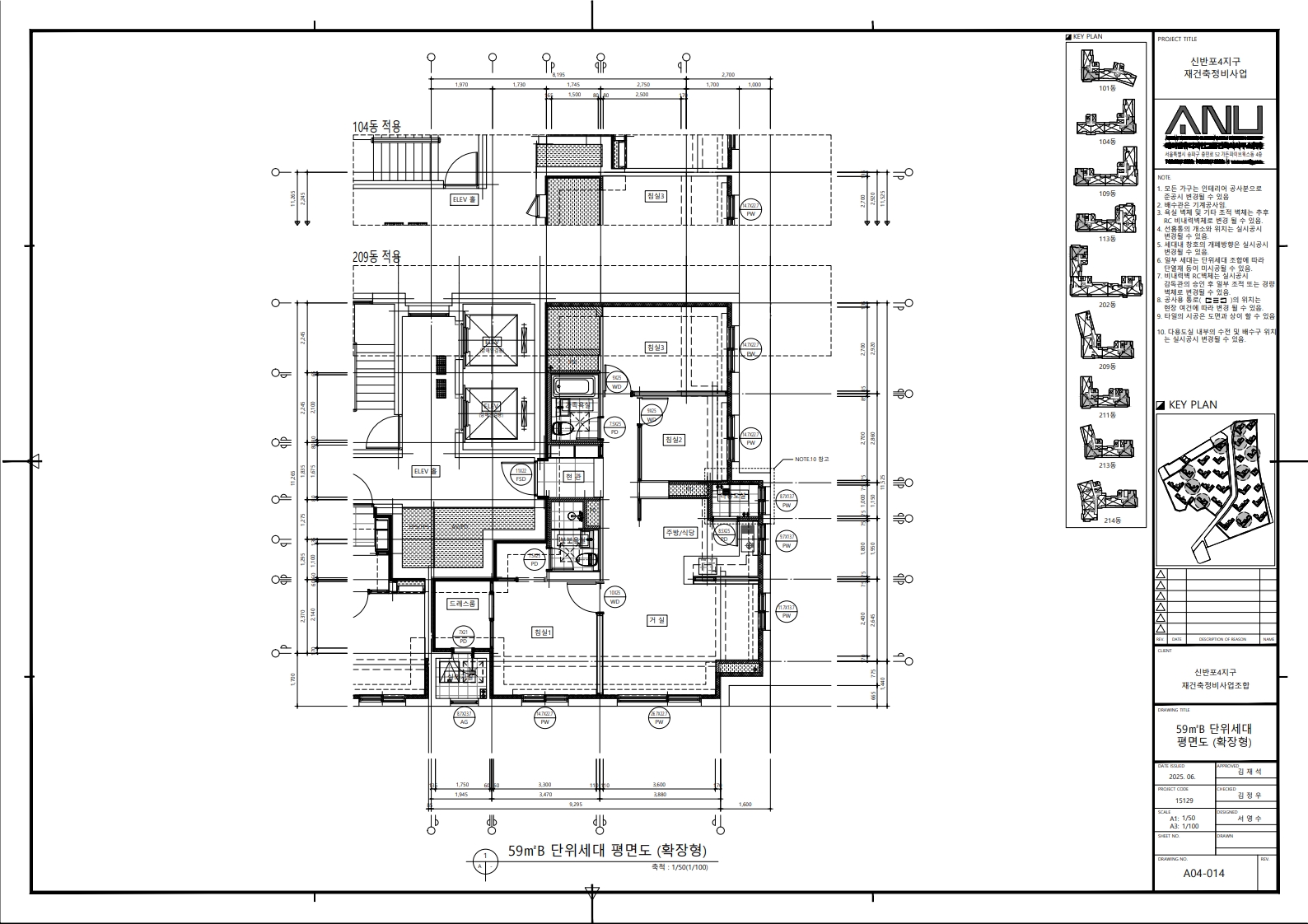
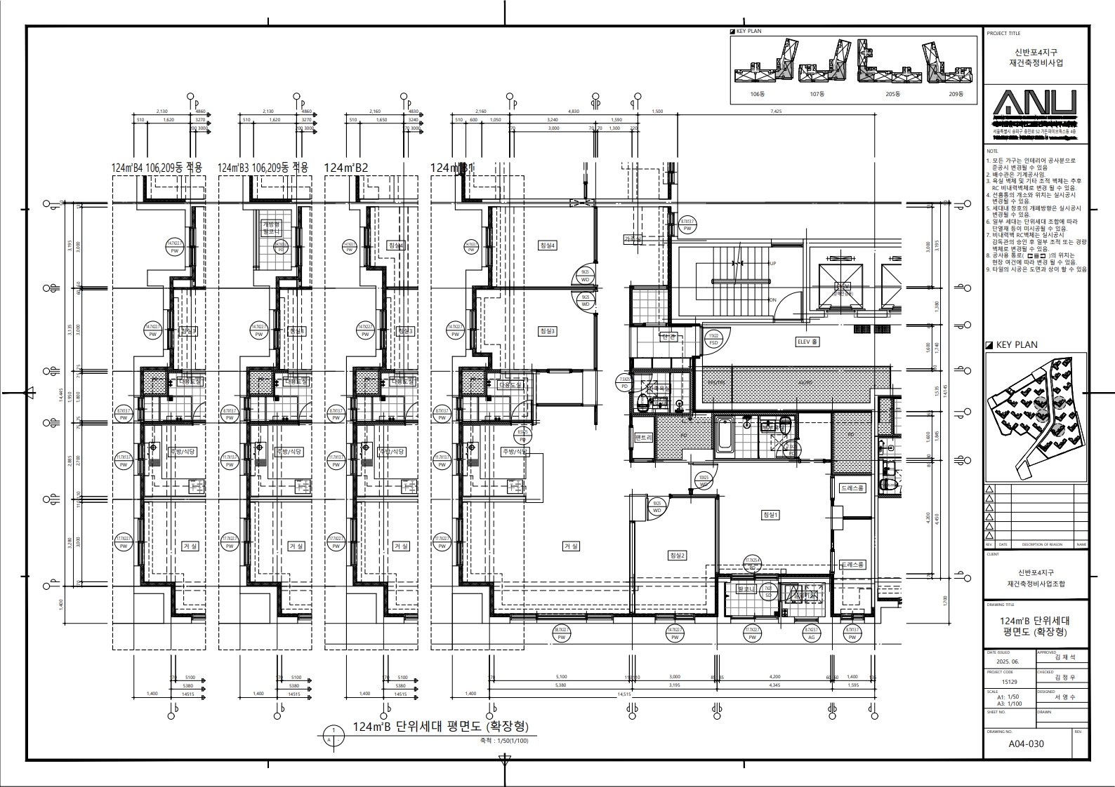
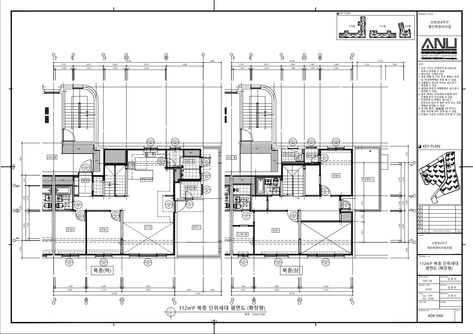
단위세대평면도 이미지

단위세대평면도 이미지

단위세대평면도 이미지

단위세대평면도 이미지

단위세대평면도 이미지

단위세대평면도 이미지

단위세대평면도 이미지

단위세대평면도 이미지

단위세대평면도 이미지

단위세대평면도 이미지

단위세대평면도 이미지

단위세대평면도 이미지

단위세대평면도 이미지

단위세대평면도 이미지

단위세대평면도 이미지

단위세대평면도 이미지

단위세대평면도 이미지

단위세대평면도 이미지

단위세대평면도 이미지

단위세대평면도 이미지

단위세대평면도 이미지

단위세대평면도 이미지

단위세대평면도 이미지

단위세대평면도 이미지

단위세대평면도 이미지

제4차 사업시행계획(경미한 변경)인가

제4차 사업시행계획(경미한 변경)인가
공급면적 (㎡) 85.0189
사업시행인가(변경)일자 2023-11-14
형별 59B형
세대수 292
전용면적 (㎡) 59.5368
공용면적 (㎡) 25.4821

단위세대평면도 이미지

사업추진 단계별
공개자료 조회

툴팁 아이콘
원하시는 사업 추진단계에 등록된 자료들을 조회해 보실 수 있습니다.