단위세대평면도
정비사업 추진과정을 유리알처럼 투명하게 공개

34평형(--->34평형)

34평형(--->34평형)
공급면적 (㎡) A:111.79 B:113.14 C:113.12 D:114.05
사업시행인가(변경)일자 2012-05-17
형별 A~D타입
세대수 299세대
전용면적 (㎡) A:84.41 B:84.46 C:84.46 D:84.42
공용면적 (㎡) A: 52.68 B: 52.65 C: 52.65 D: 52.63

단위세대평면도 이미지

단위세대평면도 이미지

단위세대평면도 이미지

단위세대평면도 이미지

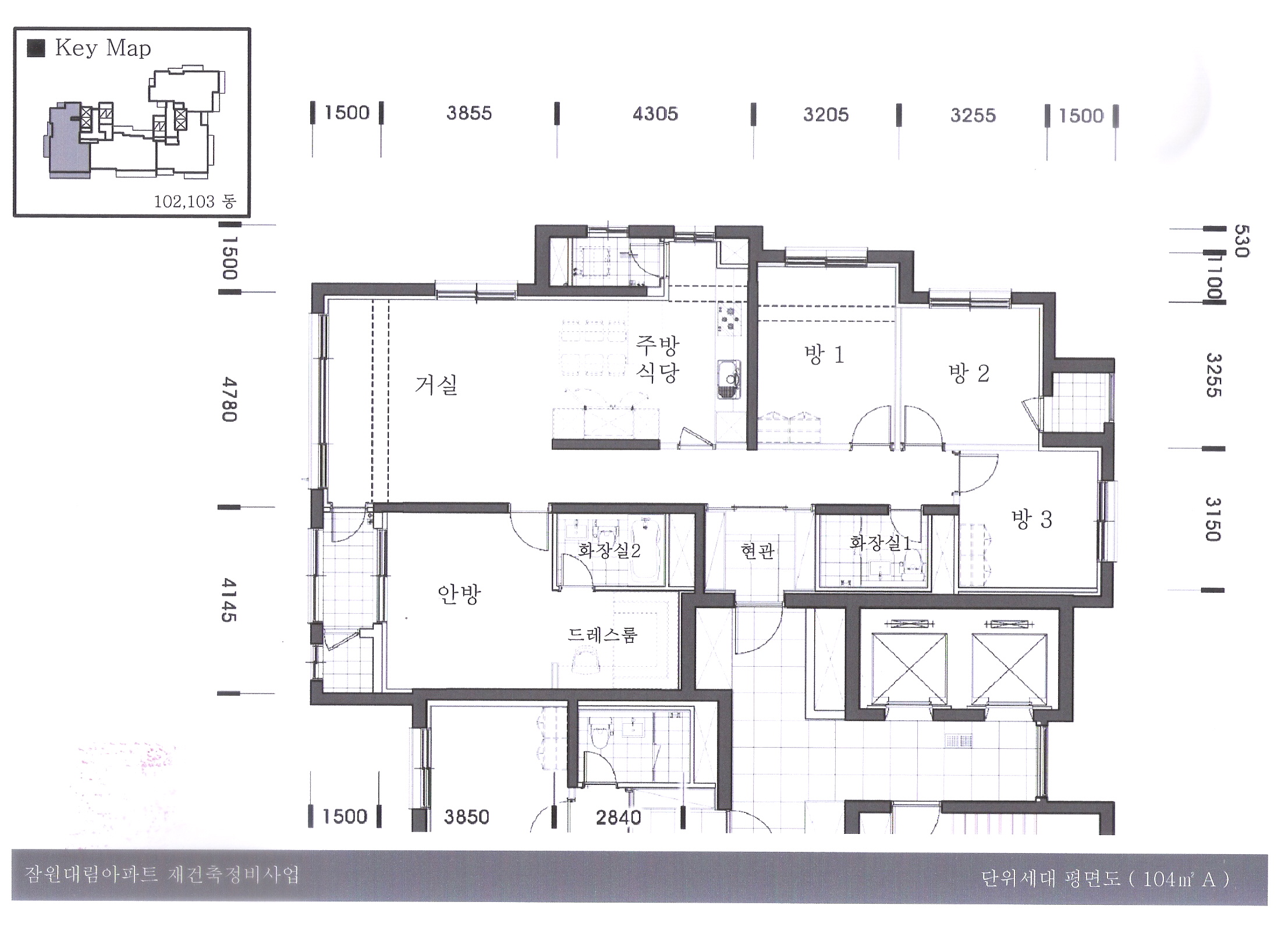
39평형(--->41평형)

39평형(--->41평형)
공급면적 (㎡) A:137.97 B:137.06 C:137.64 D:136.96
사업시행인가(변경)일자 2012-05-17
형별 A~D
세대수 234
전용면적 (㎡) A:104.05 B:104.08 C:104.05 D:104.03
공용면적 (㎡) A: 64.86 B: 64.89 C: 64.87 D: 64.86

단위세대평면도 이미지

단위세대평면도 이미지

단위세대평면도 이미지

단위세대평면도 이미지

49평형(--->51평형)

49평형(--->51평형)
공급면적 (㎡) A:168.94 B:168.04 C:168.13 D168.54
사업시행인가(변경)일자 2012-05-17
형별 A~D
세대수 104세대
전용면적 (㎡) A:133.03 B:133.03 C:133.03 D:133.01
공용면적 (㎡) A: 82.95 B: 82.96 C: 82.94 D: 82.93

단위세대평면도 이미지

단위세대평면도 이미지

단위세대평면도 이미지

단위세대평면도 이미지

사업추진 단계별
공개자료 조회

툴팁 아이콘
원하시는 사업 추진단계에 등록된 자료들을 조회해 보실 수 있습니다.