단위세대평면도
정비사업 추진과정을 유리알처럼 투명하게 공개

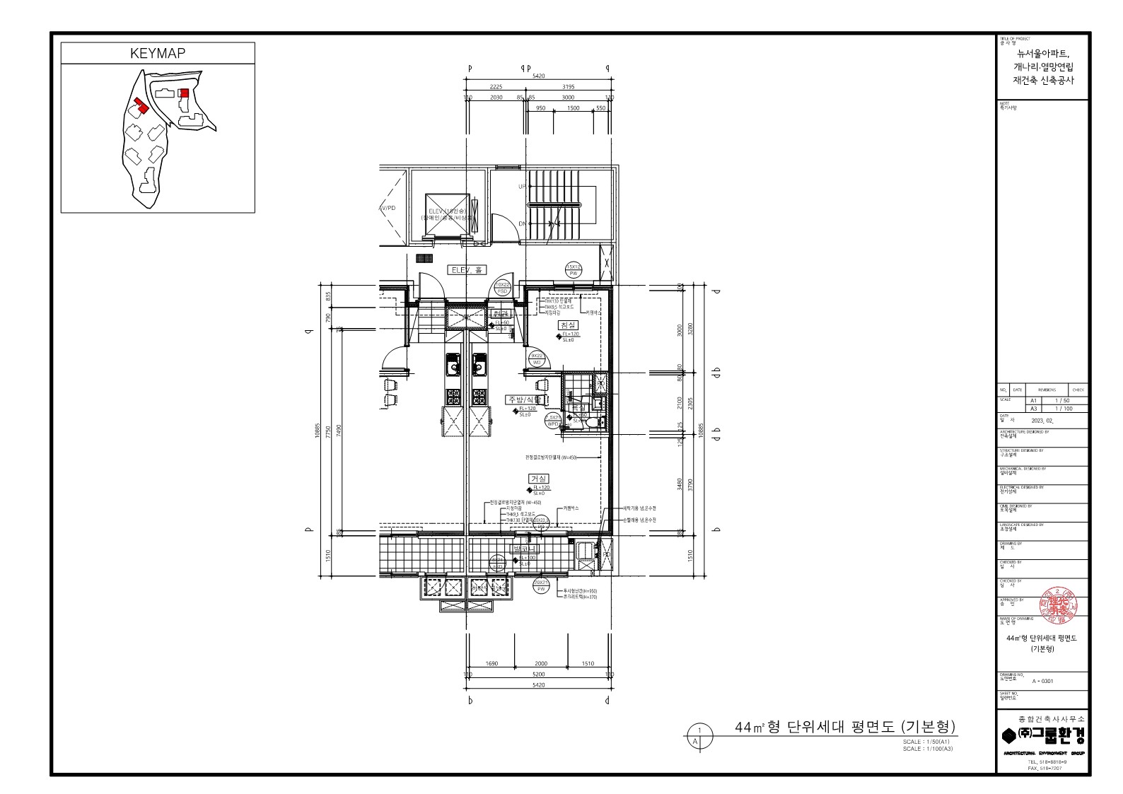
사업시행계획인가 건축시설계획 - 단위세대평면도(44㎡)

사업시행계획인가 건축시설계획 - 단위세대평면도(44㎡)
공급면적 (㎡) 57.6705
사업시행인가(변경)일자 2023-07-05
형별 44형
세대수 분양 : 22 / 임대 : 31
전용면적 (㎡) 44.1339
공용면적 (㎡) 13.5366

단위세대평면도 이미지

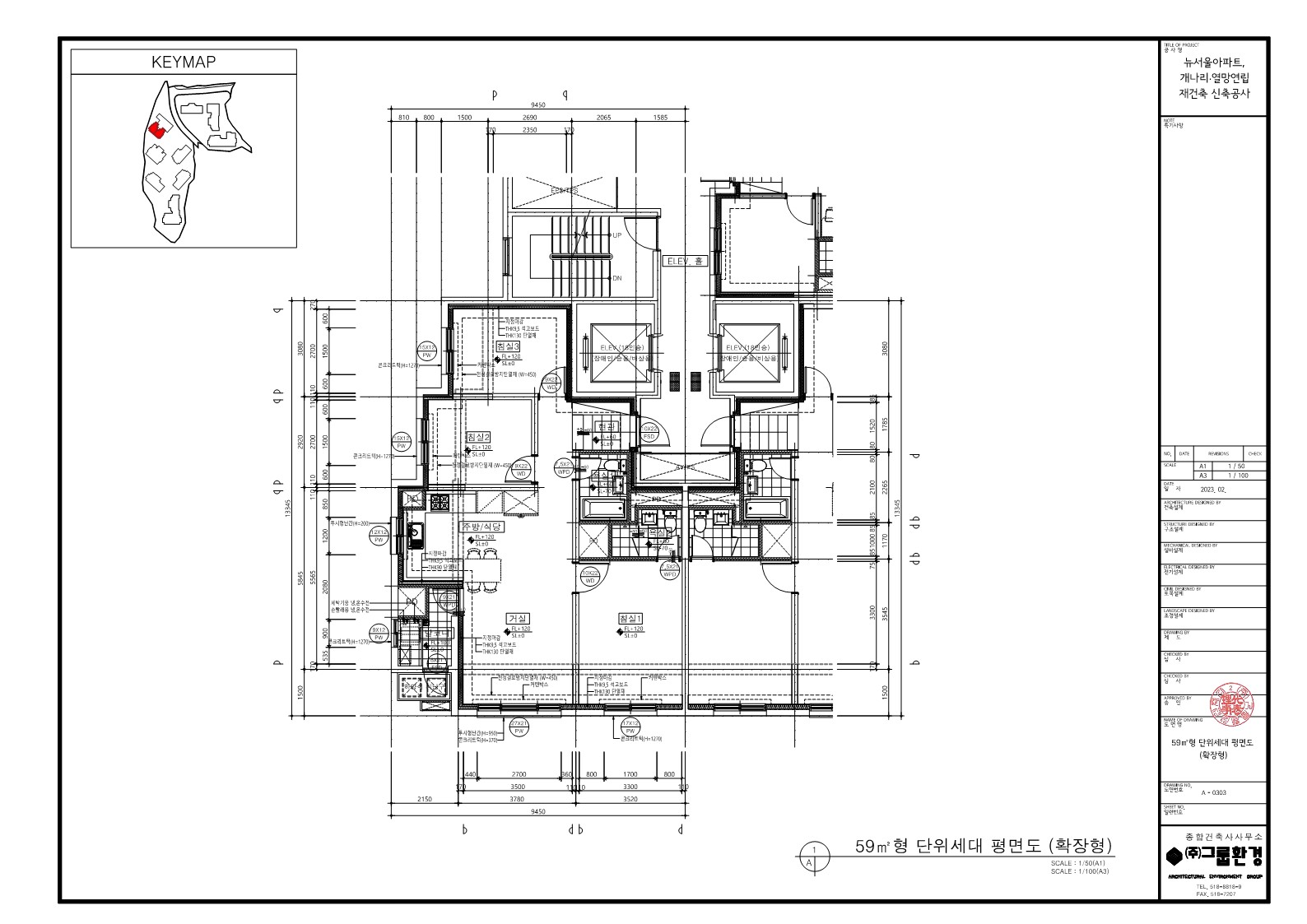
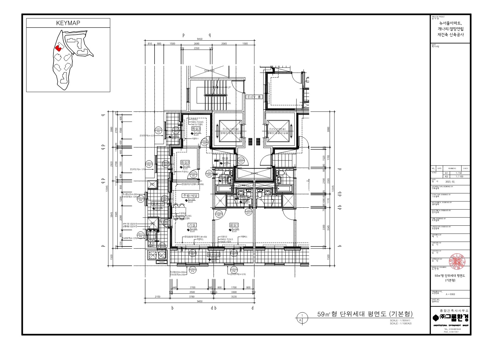
사업시행계획인가 건축시설계획 - 단위세대평면도(59㎡)

사업시행계획인가 건축시설계획 - 단위세대평면도(59㎡)
공급면적 (㎡) 79.0089
사업시행인가(변경)일자 2023-07-05
형별 59형
세대수 22
전용면적 (㎡) 59.7279
공용면적 (㎡) 19.2810

단위세대평면도 이미지

단위세대평면도 이미지

사업시행계획인가 건축시설계획 - 단위세대평면도(72㎡)

사업시행계획인가 건축시설계획 - 단위세대평면도(72㎡)
공급면적 (㎡) 93.5689
사업시행인가(변경)일자 2023-07-05
형별 72형
세대수 52
전용면적 (㎡) 72.2662
공용면적 (㎡) 21.3027

단위세대평면도 이미지

단위세대평면도 이미지

사업시행계획인가 건축시설계획 - 단위세대평면도(84㎡A)

사업시행계획인가 건축시설계획 - 단위세대평면도(84㎡A)
공급면적 (㎡) 108.8407
사업시행인가(변경)일자 2023-07-05
형별 84A형
세대수 93
전용면적 (㎡) 84.3660
공용면적 (㎡) 24.4747

단위세대평면도 이미지

단위세대평면도 이미지

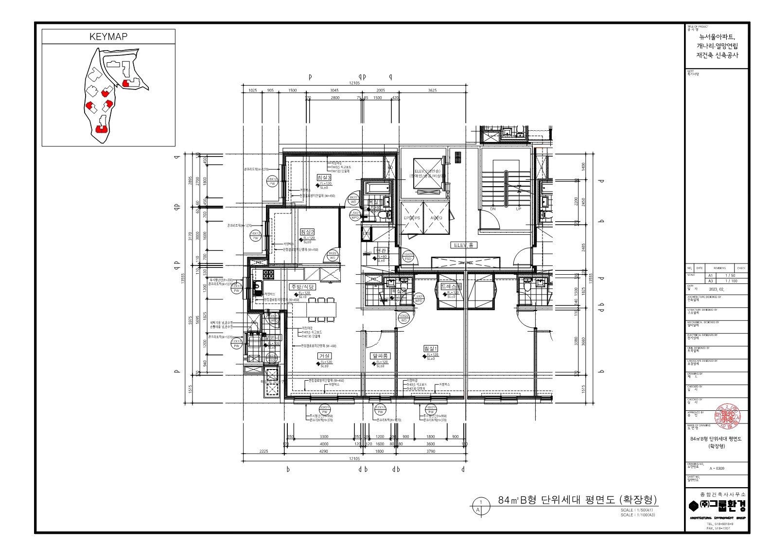
사업시행계획인가 건축시설계획 - 단위세대평면도(84㎡B)

사업시행계획인가 건축시설계획 - 단위세대평면도(84㎡B)
공급면적 (㎡) 111.4159
사업시행인가(변경)일자 2023-07-05
형별 84B형
세대수 46
전용면적 (㎡) 84.3262
공용면적 (㎡) 27.0897

단위세대평면도 이미지

단위세대평면도 이미지

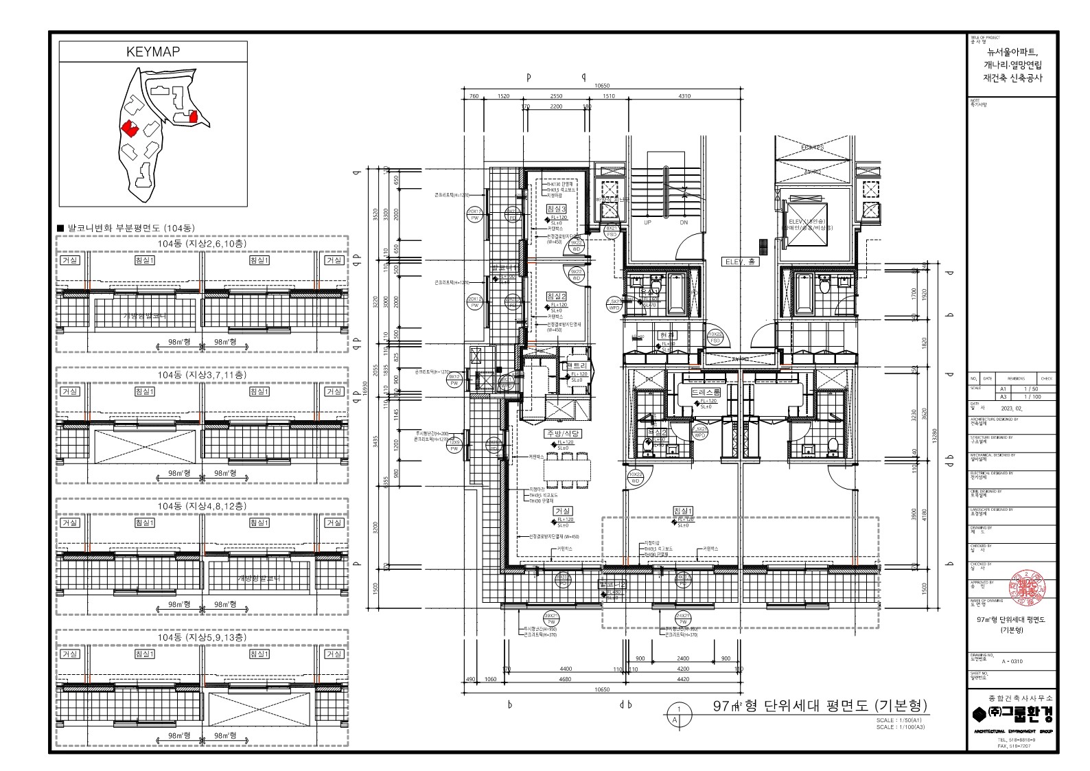
사업시행계획인가 건축시설계획 - 단위세대평면도(97㎡)

사업시행계획인가 건축시설계획 - 단위세대평면도(97㎡)
공급면적 (㎡) 130.7459
사업시행인가(변경)일자 2023-07-05
형별 97형
세대수 40
전용면적 (㎡) 97.1184
공용면적 (㎡) 33.6275

단위세대평면도 이미지

단위세대평면도 이미지

사업추진 단계별
공개자료 조회

툴팁 아이콘
원하시는 사업 추진단계에 등록된 자료들을 조회해 보실 수 있습니다.