단위세대평면도
정비사업 추진과정을 유리알처럼 투명하게 공개

107제곱미터형

107제곱미터형
공급면적 (㎡) 144.1919
사업시행인가(변경)일자 2014-08-08
형별 107
세대수 15
전용면적 (㎡) 107.8645
공용면적 (㎡) 36.3274

단위세대평면도 이미지

단위세대평면도 이미지

110 제곱미터형

110 제곱미터형
공급면적 (㎡) 147.7729
사업시행인가(변경)일자 2014-08-08
형별 110
세대수 15
전용면적 (㎡) 110.5377
공용면적 (㎡) 37.2352

단위세대평면도 이미지

단위세대평면도 이미지

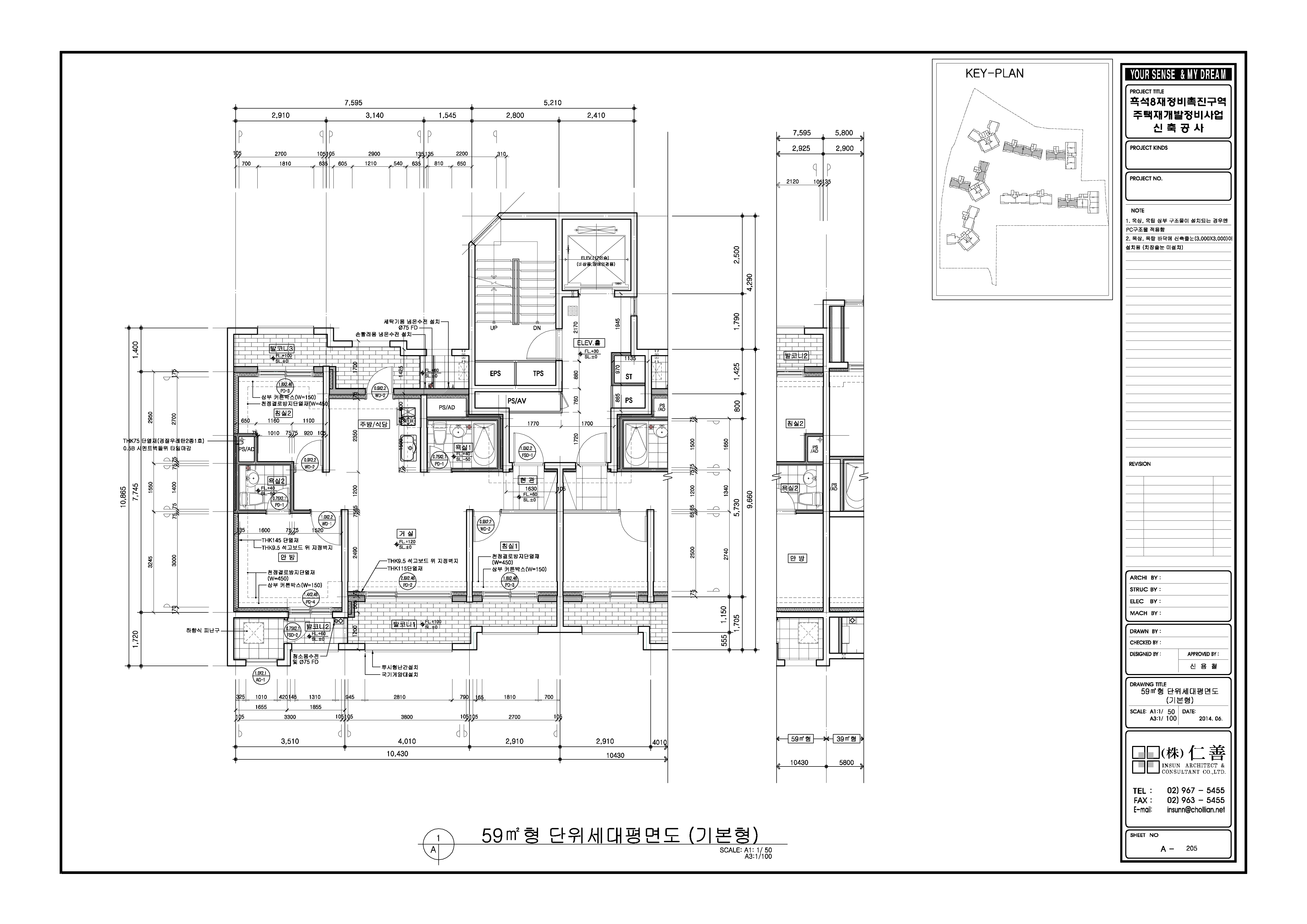
59 제곱미터

59 제곱미터
공급면적 (㎡) 81.6431
사업시행인가(변경)일자 2014-08-08
형별 59
세대수 184
전용면적 (㎡) 59.8718
공용면적 (㎡) 81.6431

단위세대평면도 이미지

단위세대평면도 이미지

84 제곱미터 B형

84 제곱미터 B형
공급면적 (㎡) 115.2041
사업시행인가(변경)일자 2014-08-08
형별 84B
세대수 30
전용면적 (㎡) 84.9971
공용면적 (㎡) 30.2070

단위세대평면도 이미지

단위세대평면도 이미지

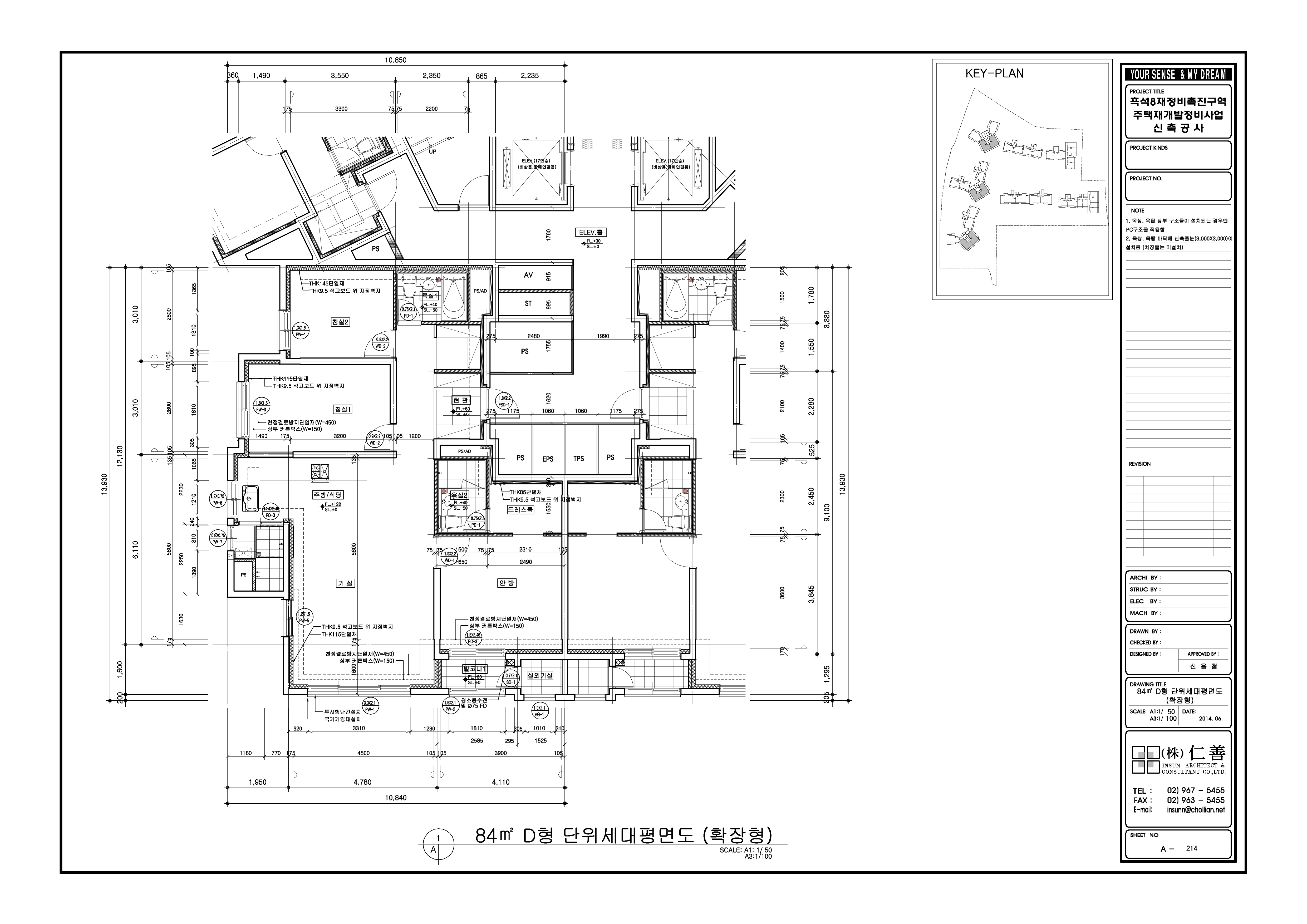
84 제곱미터 D형

84 제곱미터 D형
공급면적 (㎡) 114.8777
사업시행인가(변경)일자 2014-08-08
형별 84D
세대수 58
전용면적 (㎡) 84.9912
공용면적 (㎡) 114.8777

단위세대평면도 이미지

단위세대평면도 이미지

84 제곱미터 E형

84 제곱미터 E형
공급면적 (㎡) 114.8777
사업시행인가(변경)일자 2014-08-08
형별 84E
세대수 62
전용면적 (㎡) 84.9912
공용면적 (㎡) 29.8865

단위세대평면도 이미지

단위세대평면도 이미지

84 제곱미터A형

84 제곱미터A형
공급면적 (㎡) 113.6104
사업시행인가(변경)일자 2014-08-08
형별 84A
세대수 64
전용면적 (㎡) 84.9732
공용면적 (㎡) 28.6372

단위세대평면도 이미지

단위세대평면도 이미지

84 제곱미터C형

84 제곱미터C형
공급면적 (㎡) 115.6676
사업시행인가(변경)일자 2014-08-08
형별 84C
세대수 23
전용면적 (㎡) 84.9778
공용면적 (㎡) 30.6898

단위세대평면도 이미지

단위세대평면도 이미지

사업추진 단계별
공개자료 조회

툴팁 아이콘
원하시는 사업 추진단계에 등록된 자료들을 조회해 보실 수 있습니다.