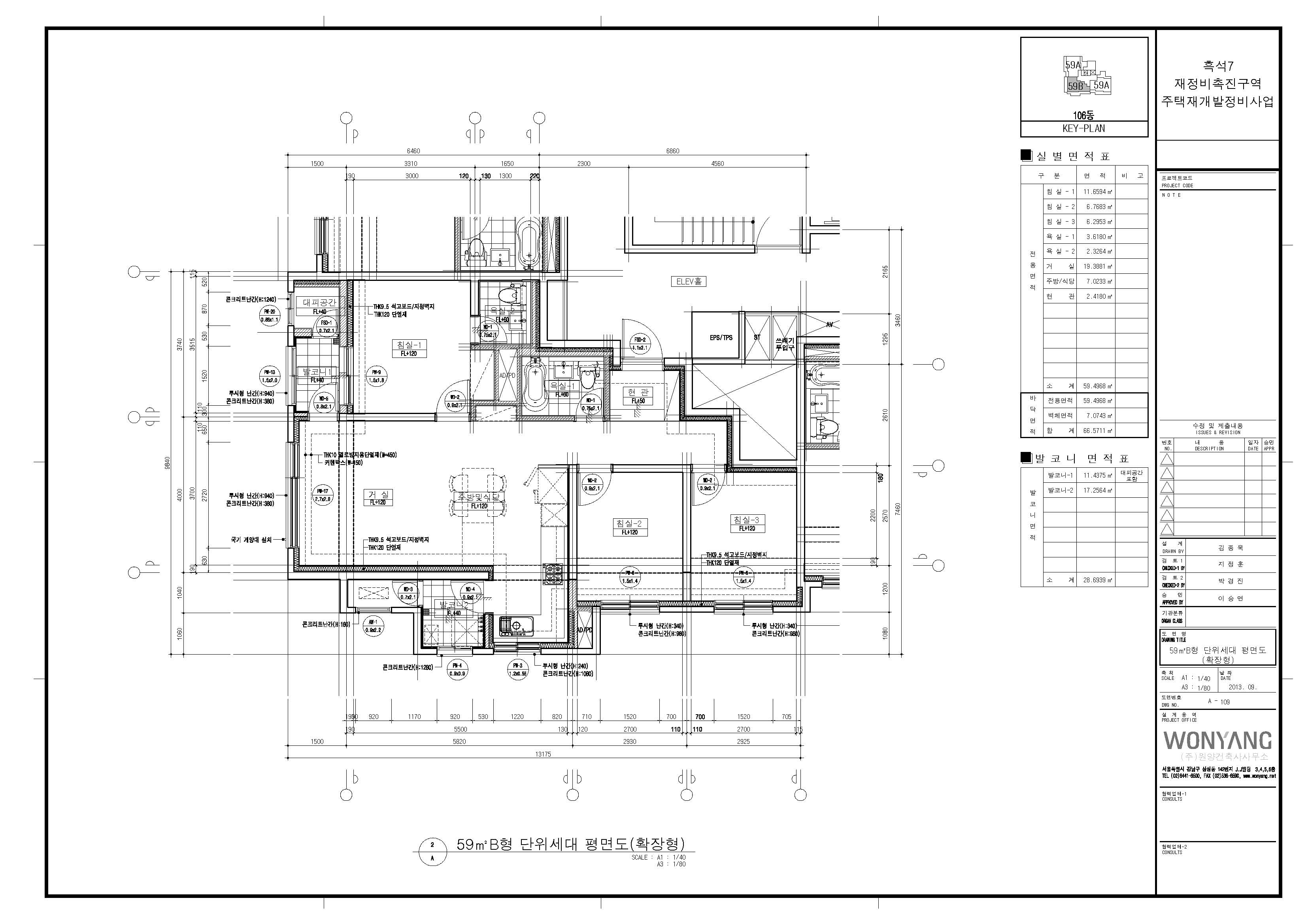
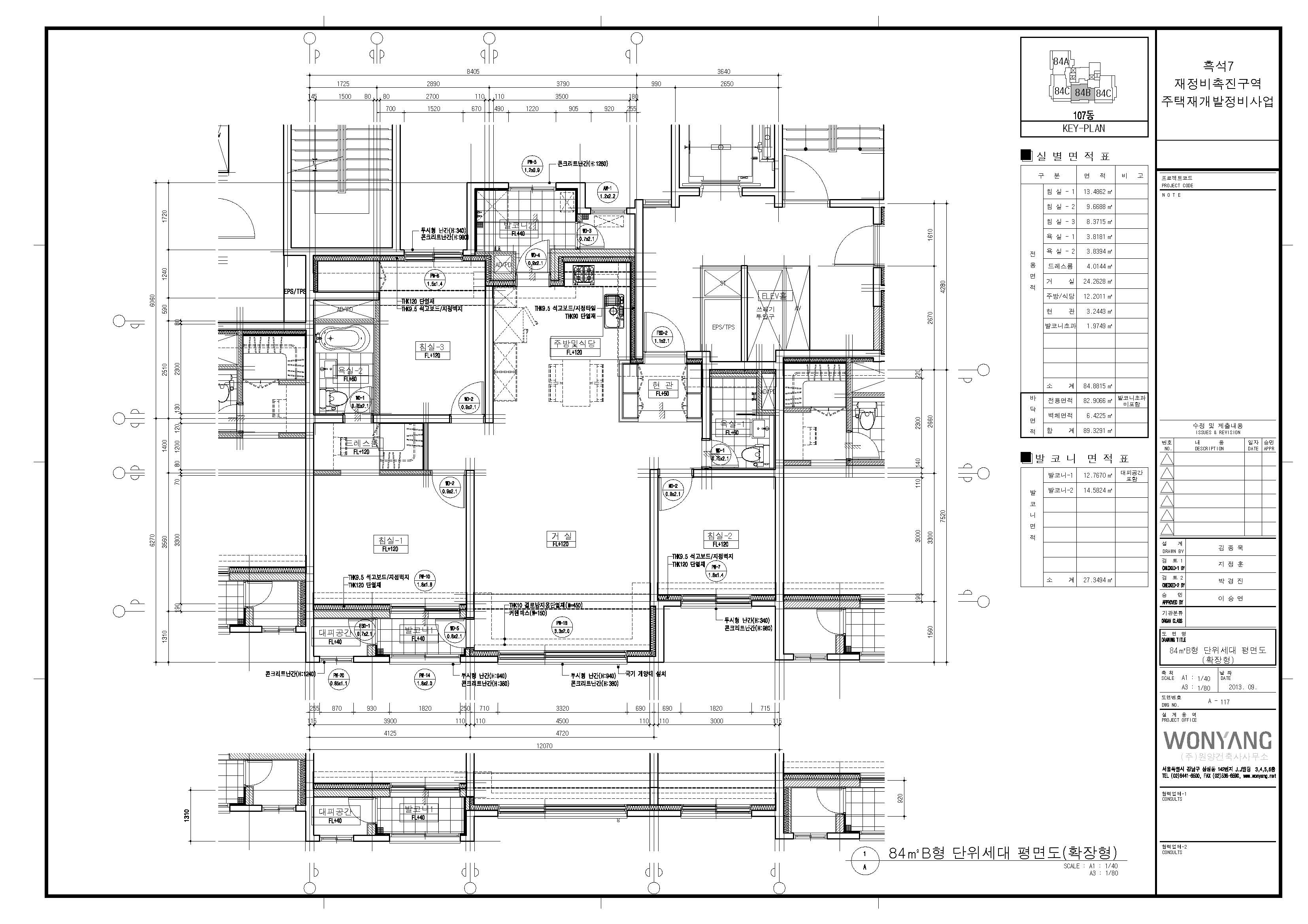
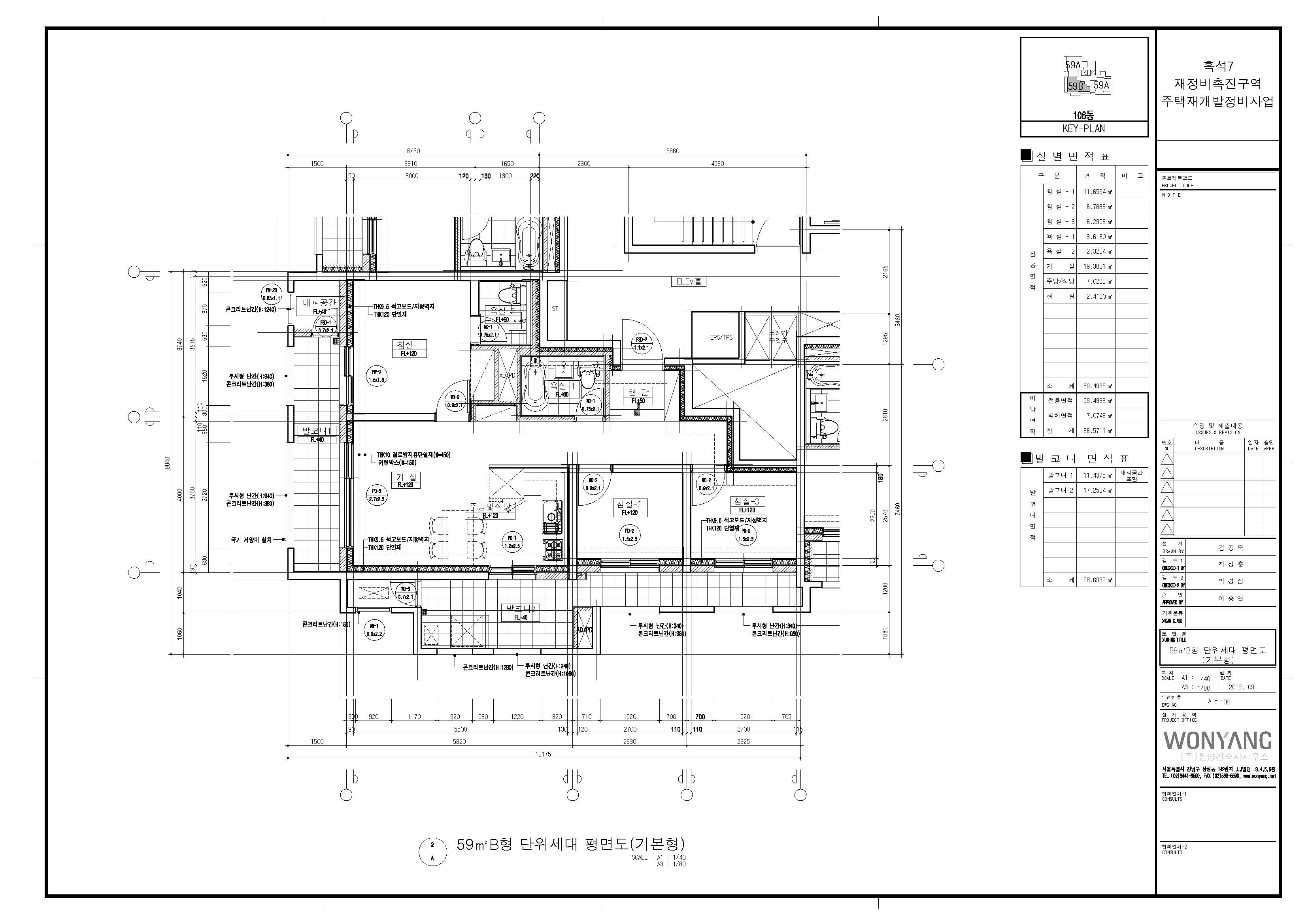
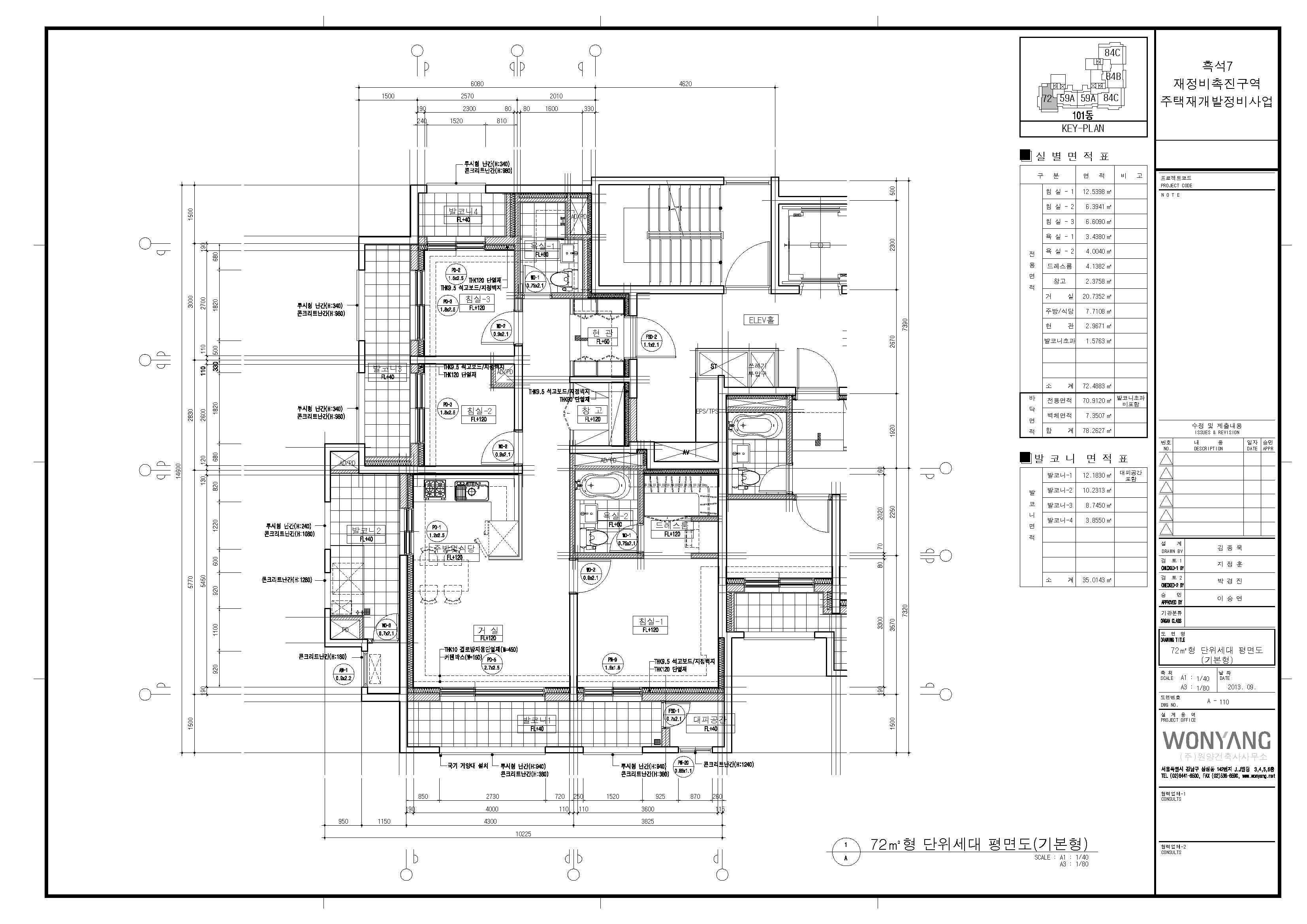
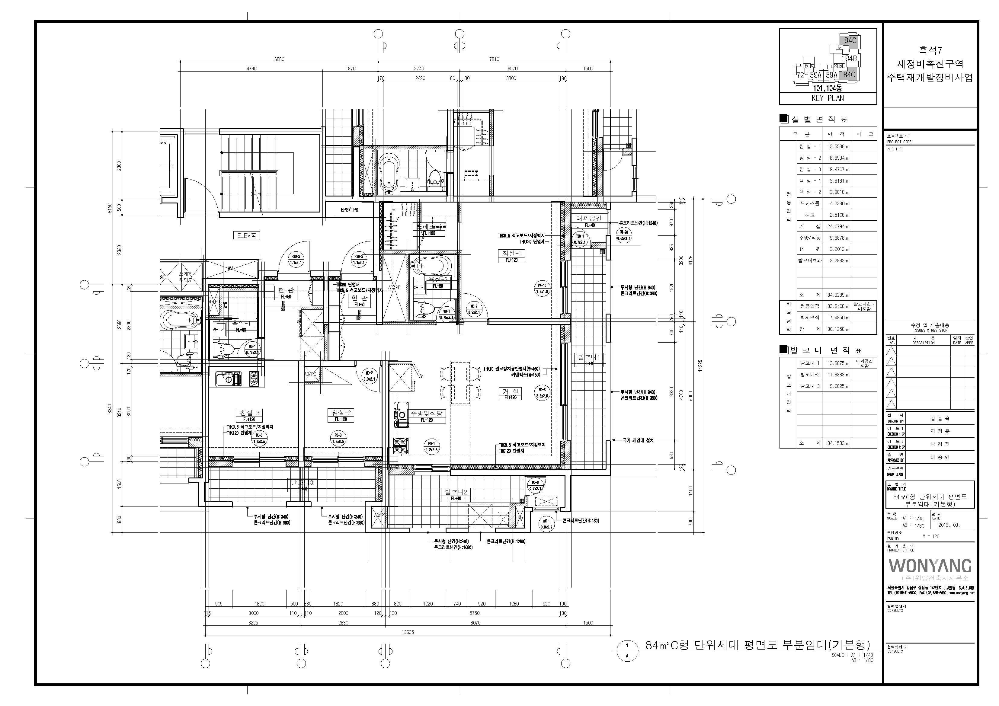
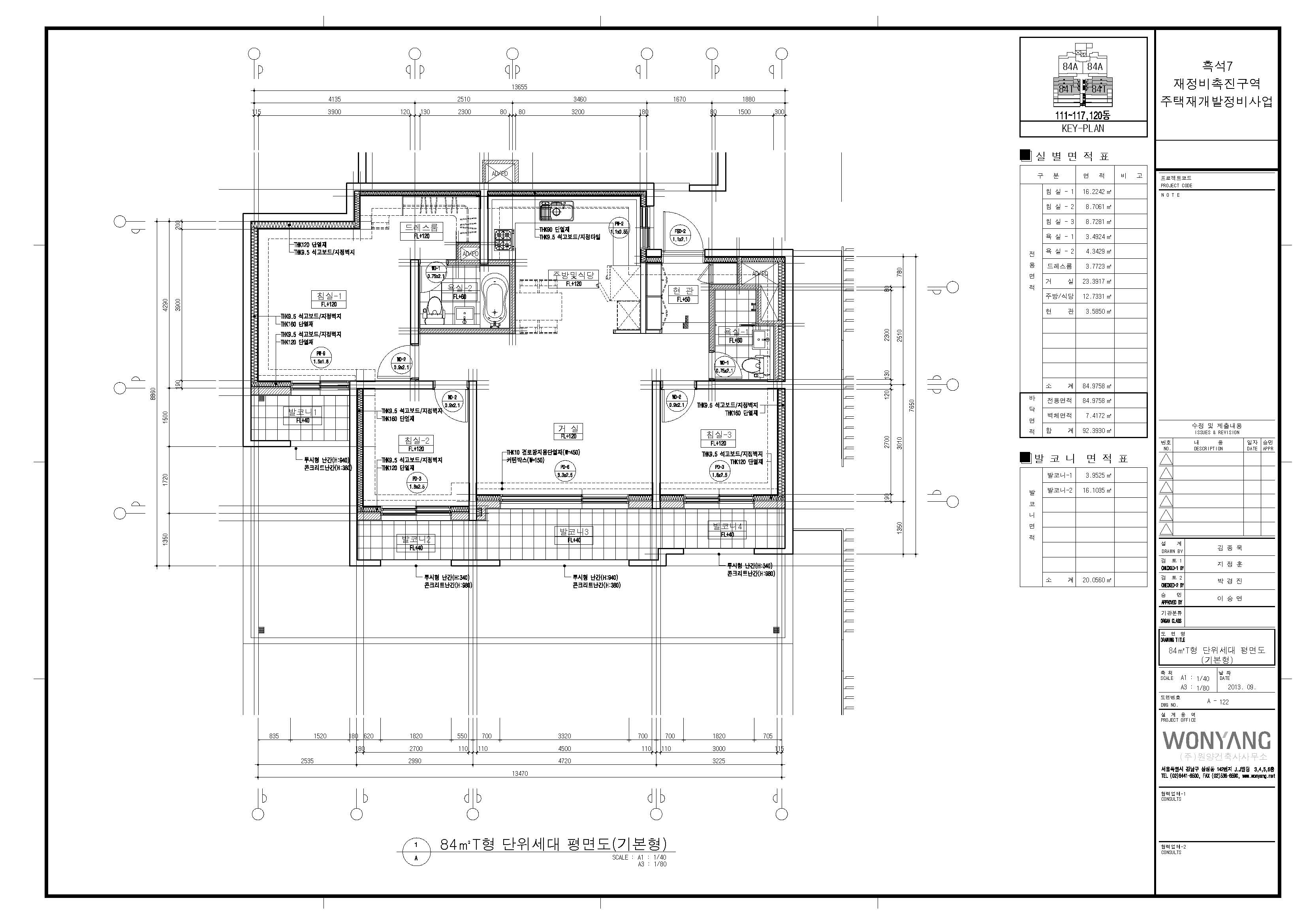
단위세대평면도
정비사업 추진과정을 유리알처럼 투명하게 공개
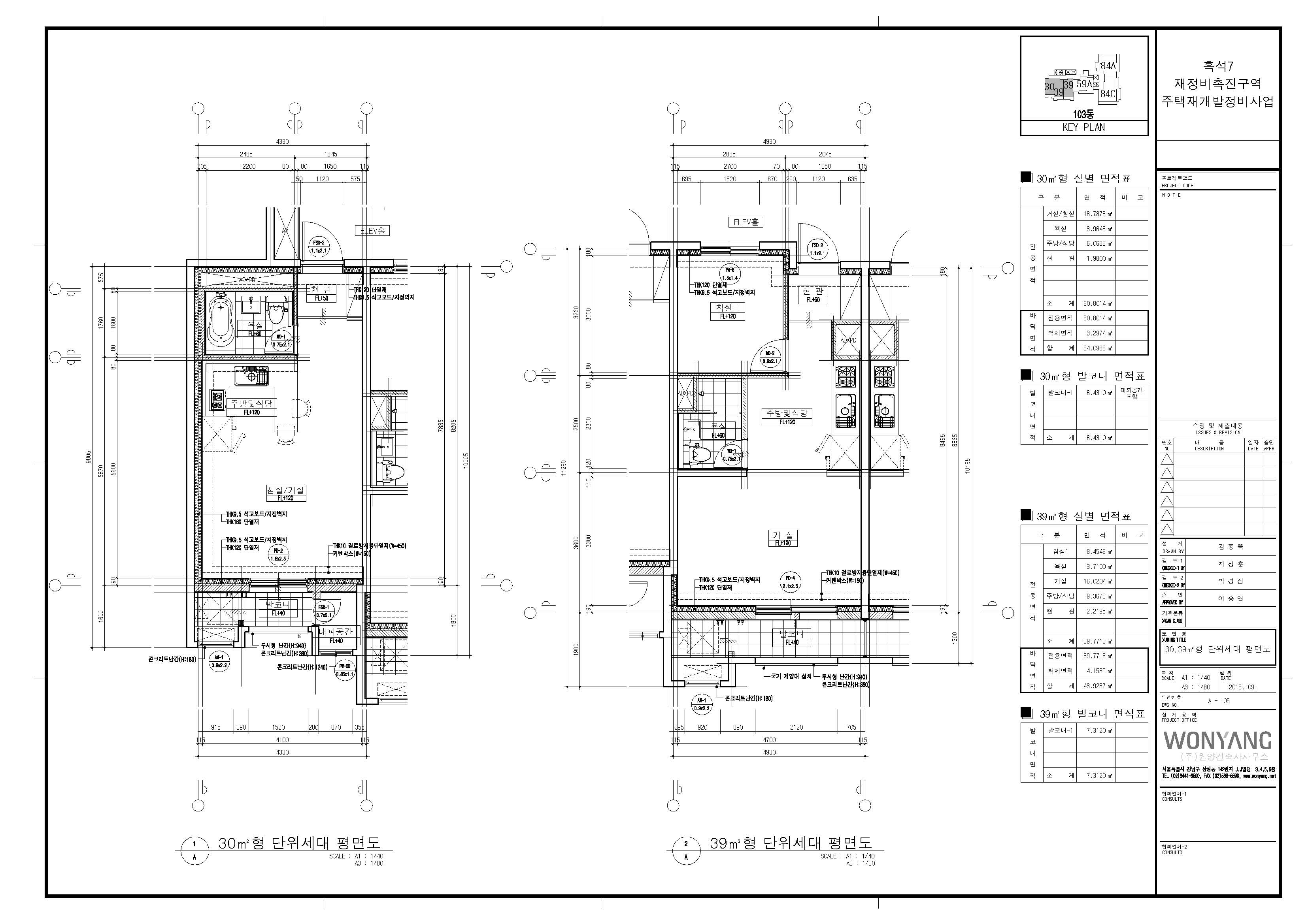
| 공급면적 (㎡) | 30,39 |
|---|---|
| 사업시행인가(변경)일자 | 2013-12-17 |
| 형별 | 30제곱미터형, 39제곱미터형 |
| 세대수 | 70 |
| 전용면적 (㎡) | 30.8014, 39.7718 |
| 공용면적 (㎡) | 11.7078, 15.0167 |
| 공급면적 (㎡) | 42, 59A(기본형) |
|---|---|
| 사업시행인가(변경)일자 | 2013-12-17 |
| 형별 | 42제곱미터형, 59제곱미터A형 |
| 세대수 | 227 |
| 전용면적 (㎡) | 42.6988, 59.9121 |
| 공용면적 (㎡) | 15.9852, 21.8211 |
| 공급면적 (㎡) | 59 |
|---|---|
| 사업시행인가(변경)일자 | 2013-12-17 |
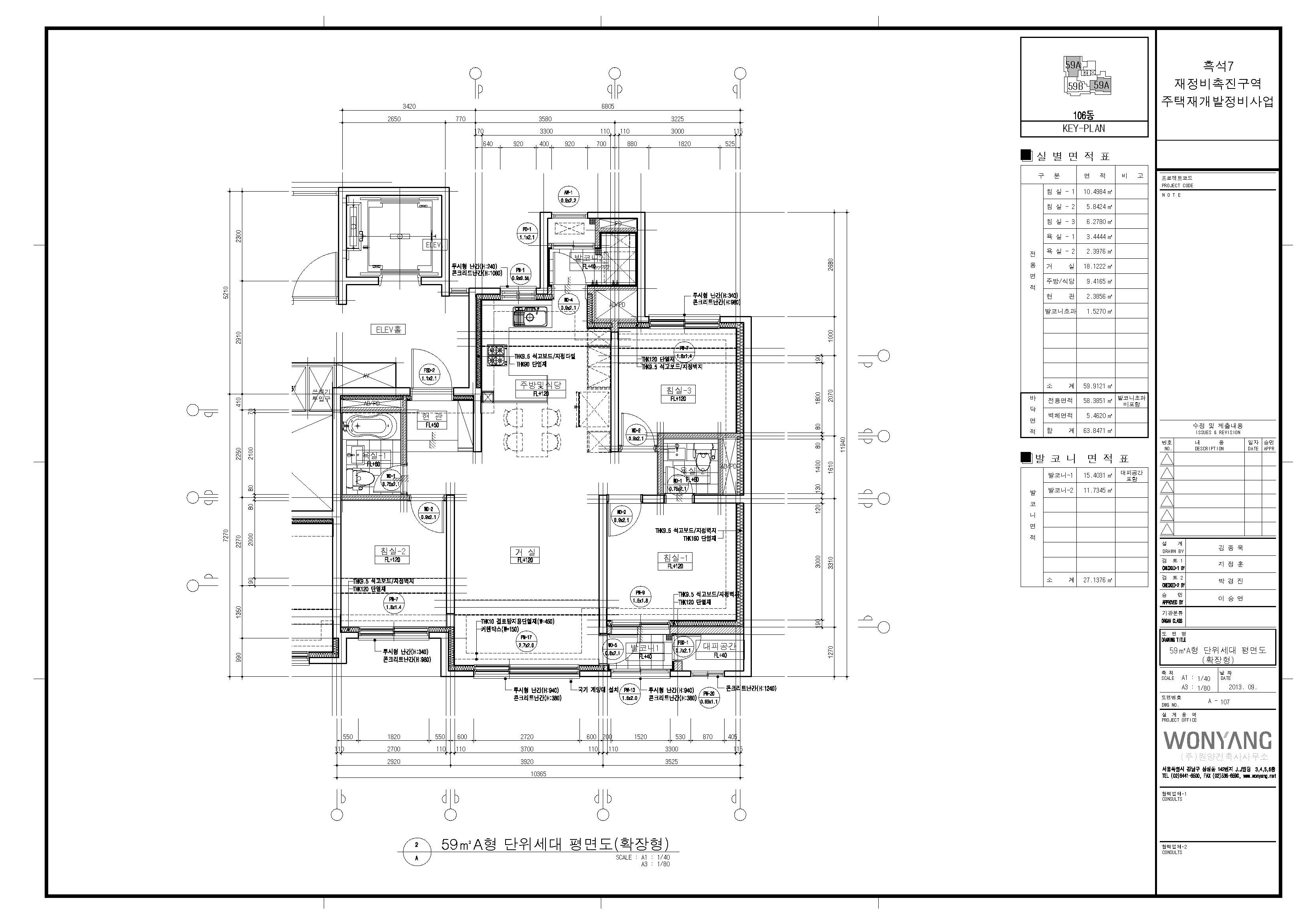
| 형별 | 59A(확장형) |
| 세대수 | 151 |
| 전용면적 (㎡) | 59.9121 |
| 공용면적 (㎡) | 21.8211 |
| 공급면적 (㎡) | 59 |
|---|---|
| 사업시행인가(변경)일자 | 2013-12-17 |
| 형별 | 59B(기본형) |
| 세대수 | 22 |
| 전용면적 (㎡) | 59.4968 |
| 공용면적 (㎡) | 23.3201 |
| 공급면적 (㎡) | 59 |
|---|---|
| 사업시행인가(변경)일자 | 2013-12-17 |
| 형별 | 59B(확장형) |
| 세대수 | 22 |
| 전용면적 (㎡) | 59.4968 |
| 공용면적 (㎡) | 23.3201 |
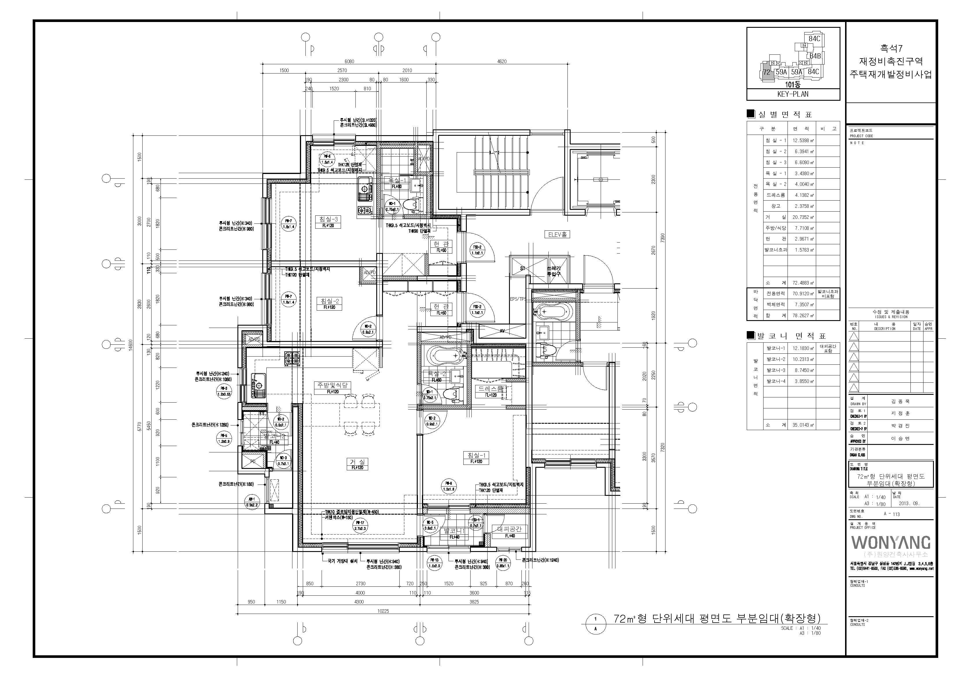
| 공급면적 (㎡) | 72 |
|---|---|
| 사업시행인가(변경)일자 | 2013-12-17 |
| 형별 | 72(기본형) |
| 세대수 | 44 |
| 전용면적 (㎡) | 72.4883 |
| 공용면적 (㎡) | 27.1440 |
| 공급면적 (㎡) | 72 |
|---|---|
| 사업시행인가(변경)일자 | 2013-12-17 |
| 형별 | 72(기본형)부분임대 단위세대 |
| 세대수 | 22 |
| 전용면적 (㎡) | 72.4883 |
| 공용면적 (㎡) | 27.1440 |
| 공급면적 (㎡) | 72 |
|---|---|
| 사업시행인가(변경)일자 | 2013-12-17 |
| 형별 | 72(확장형) |
| 세대수 | 44 |
| 전용면적 (㎡) | 72.4883 |
| 공용면적 (㎡) | 27.1440 |
| 공급면적 (㎡) | 72 |
|---|---|
| 사업시행인가(변경)일자 | 2013-12-17 |
| 형별 | 72(확장형)부분임대 |
| 세대수 | 44 |
| 전용면적 (㎡) | 72.4883 |
| 공용면적 (㎡) | 27.1440 |
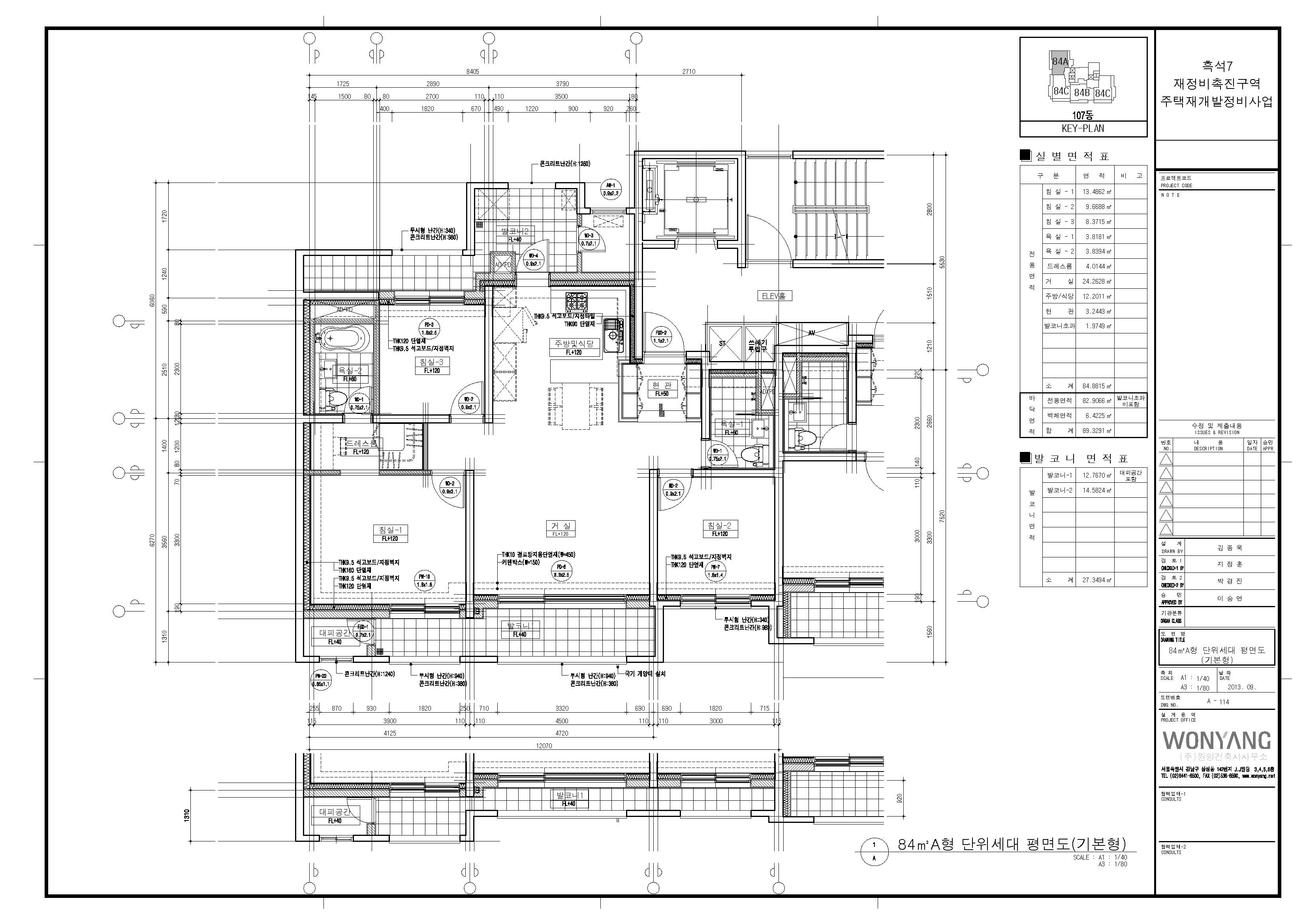
| 공급면적 (㎡) | 84 |
|---|---|
| 사업시행인가(변경)일자 | 2013-12-17 |
| 형별 | 84A(기본형) |
| 세대수 | 94 |
| 전용면적 (㎡) | 84.8815 |
| 공용면적 (㎡) | 29.5997 |
| 공급면적 (㎡) | 84 |
|---|---|
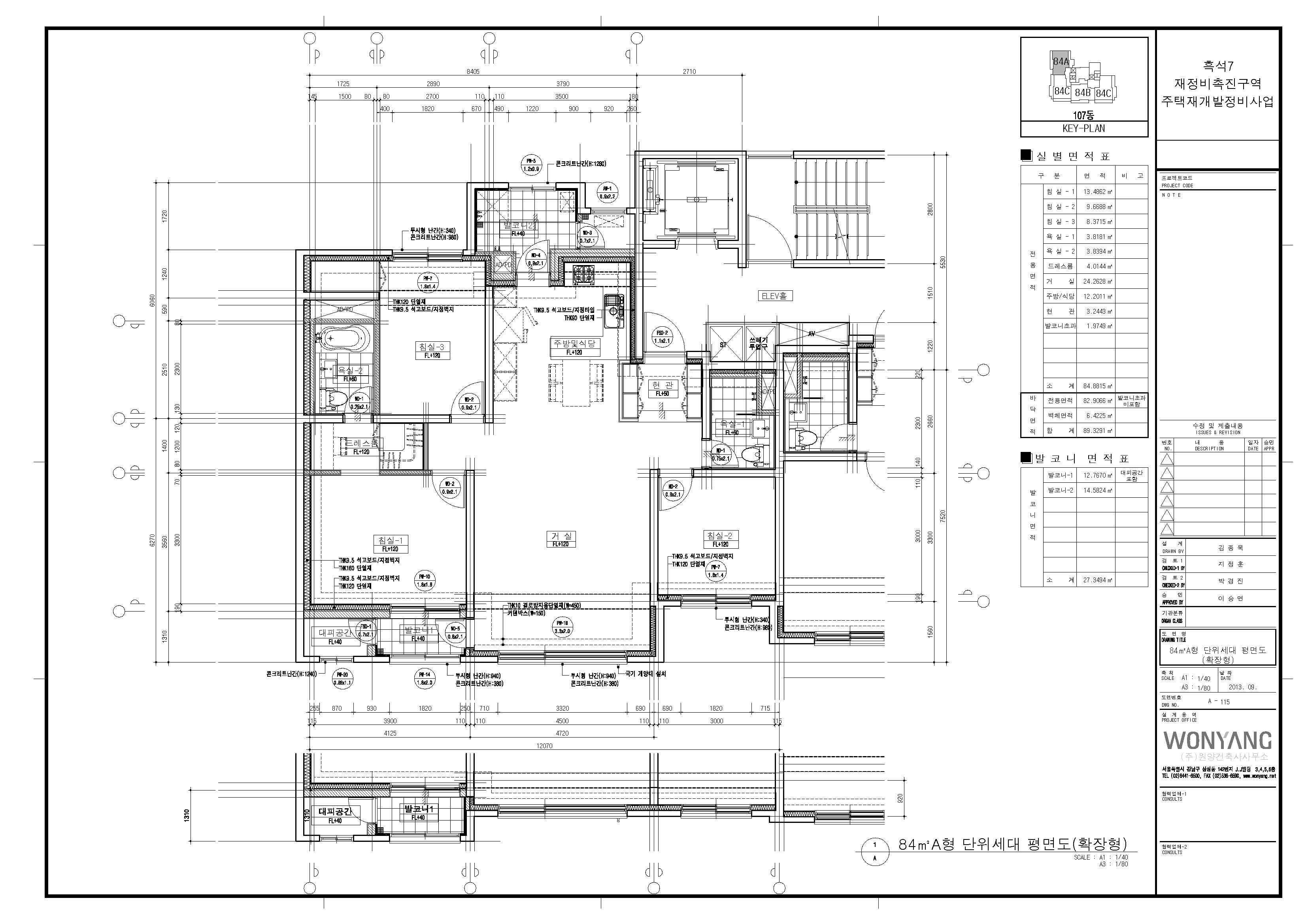
| 사업시행인가(변경)일자 | 2013-12-17 |
| 형별 | 84A(확장형) |
| 세대수 | 109 |
| 전용면적 (㎡) | 84.8815 |
| 공용면적 (㎡) | 26.5331 |
| 공급면적 (㎡) | 84 |
|---|---|
| 사업시행인가(변경)일자 | 2013-12-17 |
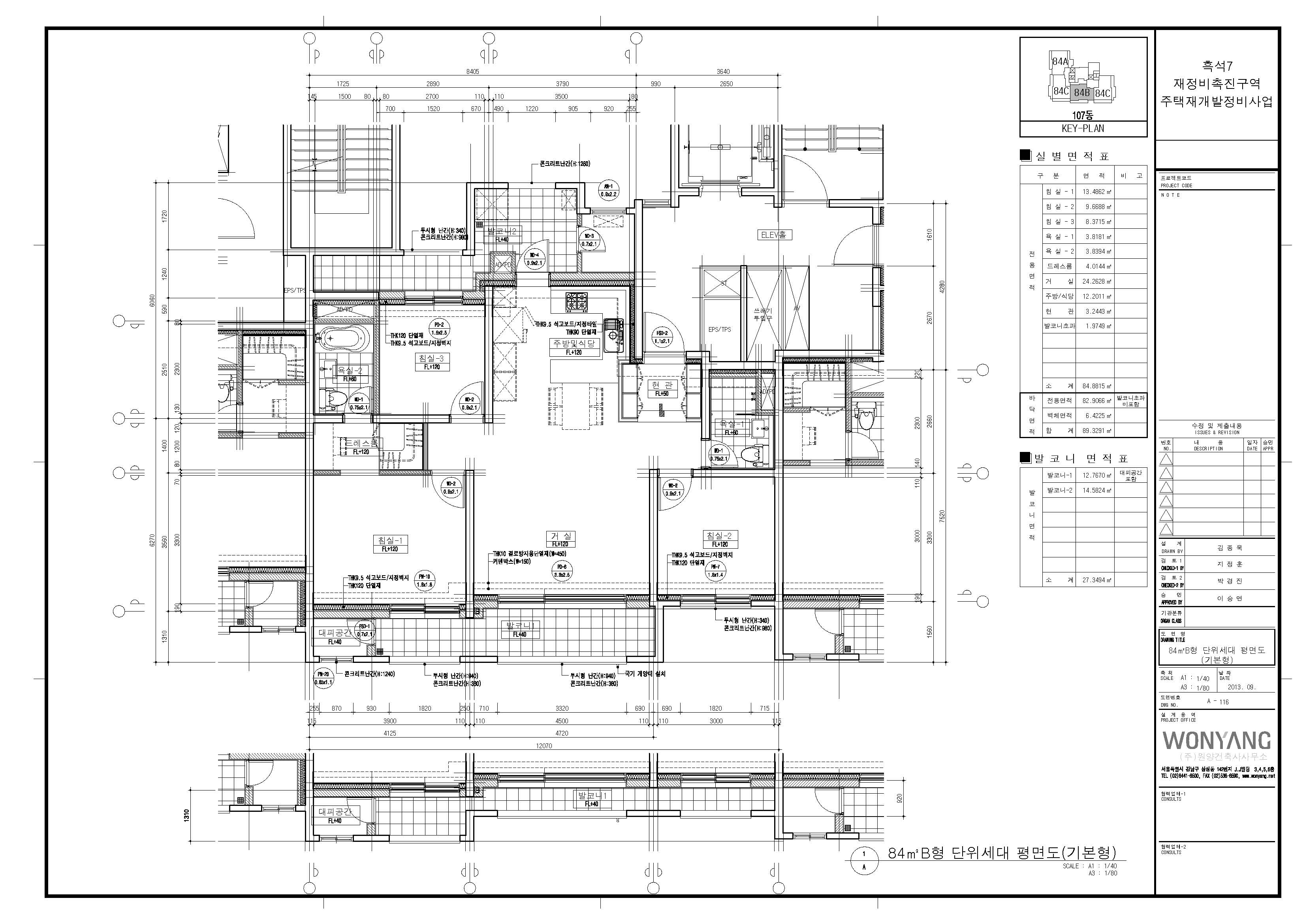
| 형별 | 84B(기본형) |
| 세대수 | 75 |
| 전용면적 (㎡) | 84.8815 |
| 공용면적 (㎡) | 29.5997 |
| 공급면적 (㎡) | 84 |
|---|---|
| 사업시행인가(변경)일자 | 2013-12-17 |
| 형별 | 84B(확장형) |
| 세대수 | 54 |
| 전용면적 (㎡) | 84.8815 |
| 공용면적 (㎡) | 26.5331 |
| 공급면적 (㎡) | 84 |
|---|---|
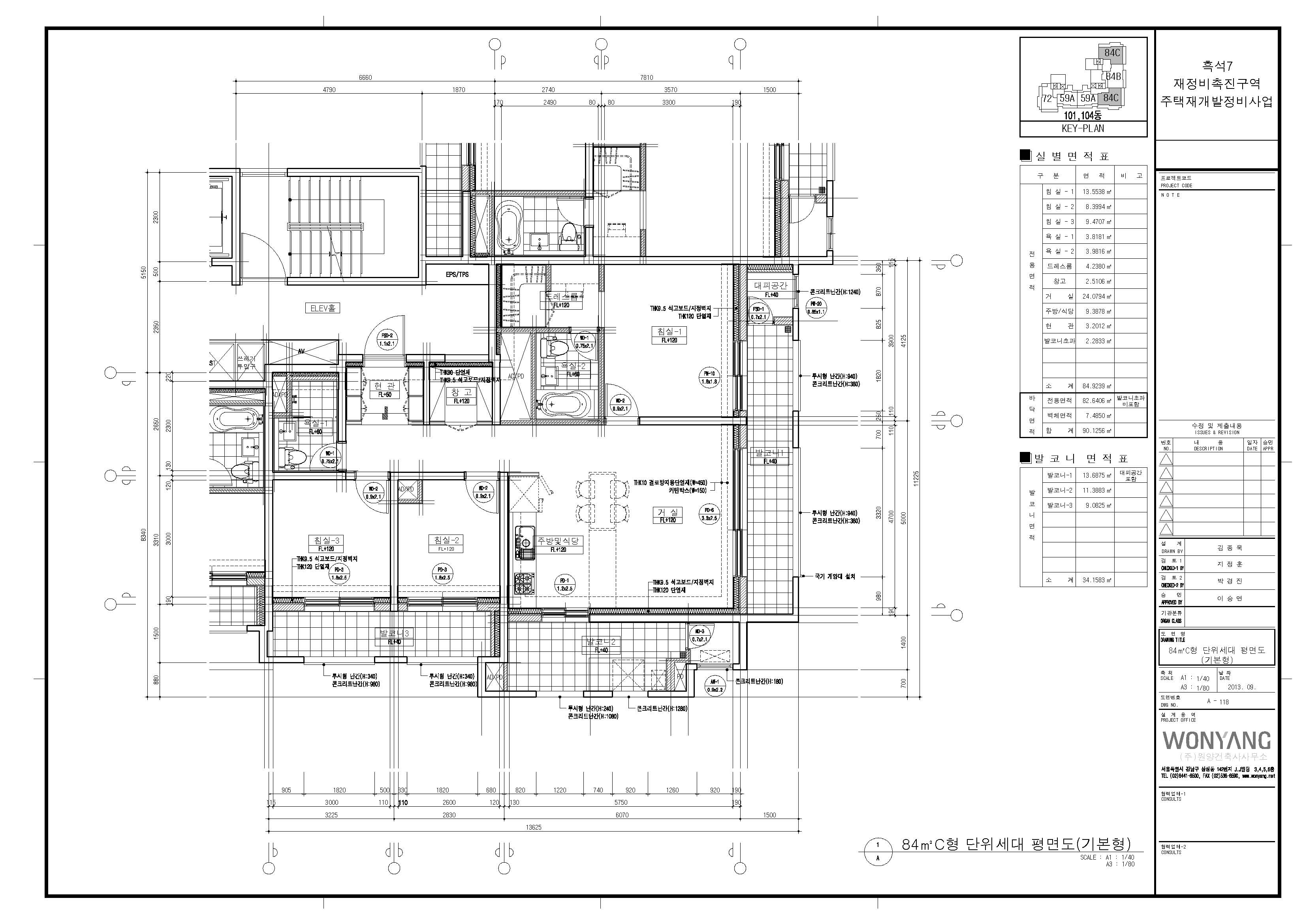
| 사업시행인가(변경)일자 | 2013-12-17 |
| 형별 | 84C(기본형) |
| 세대수 | 90 |
| 전용면적 (㎡) | 84.9239 |
| 공용면적 (㎡) | 27.6057 |
| 공급면적 (㎡) | 84 |
|---|---|
| 사업시행인가(변경)일자 | 2013-12-17 |
| 형별 | 84C(기본형)부분임대 |
| 세대수 | 90 |
| 전용면적 (㎡) | 84.9239 |
| 공용면적 (㎡) | 27.6057 |
| 공급면적 (㎡) | 84 |
|---|---|
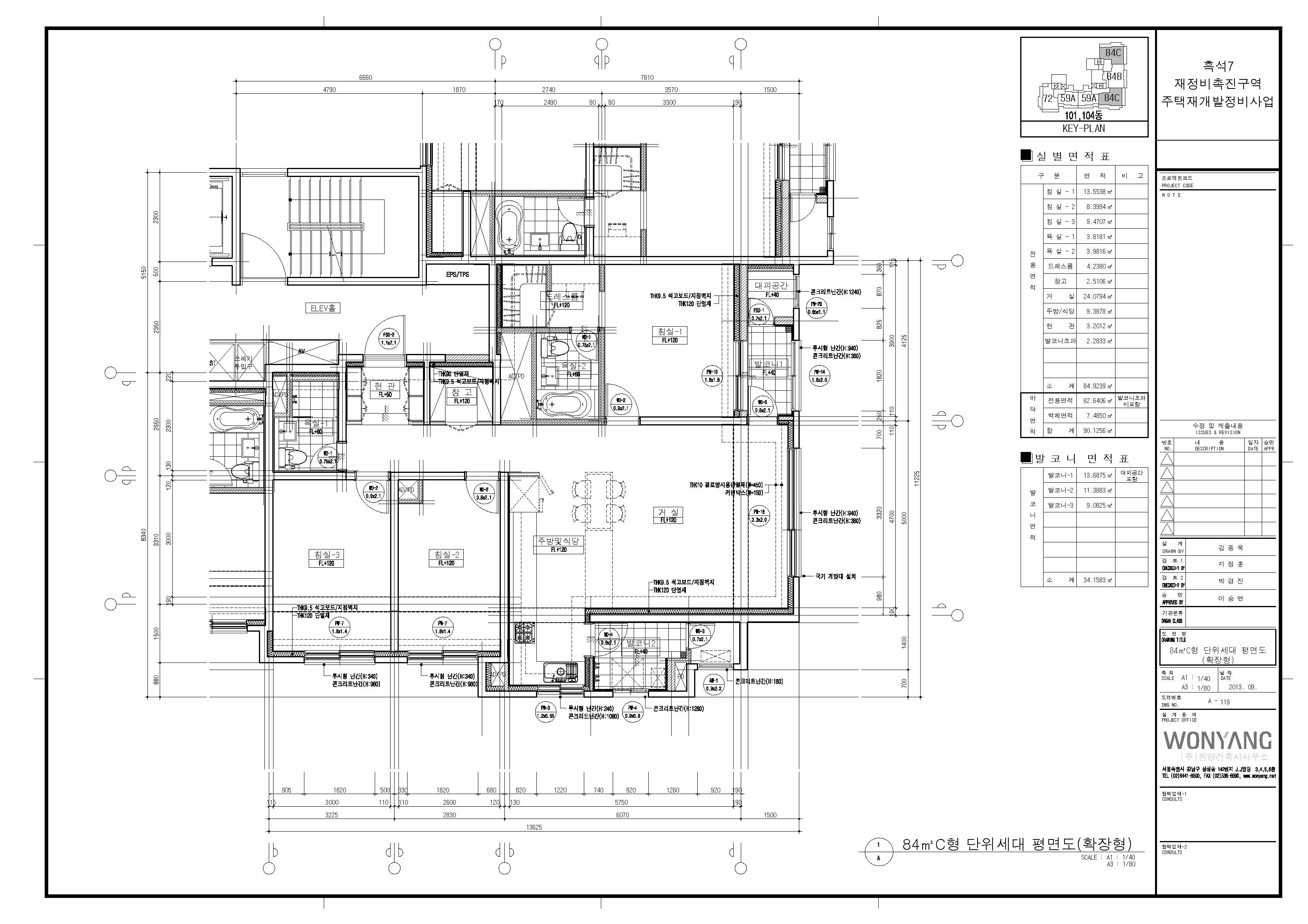
| 사업시행인가(변경)일자 | 2013-12-17 |
| 형별 | 84C(확장형) |
| 세대수 | 183 |
| 전용면적 (㎡) | 84.9239 |
| 공용면적 (㎡) | 30.6738 |
| 공급면적 (㎡) | 84 |
|---|---|
| 사업시행인가(변경)일자 | 2013-12-17 |
| 형별 | 84C(확장형)부분임대 |
| 세대수 | 183 |
| 전용면적 (㎡) | 84.9239 |
| 공용면적 (㎡) | 30.6738 |
| 공급면적 (㎡) | 84 |
|---|---|
| 사업시행인가(변경)일자 | 2013-12-17 |
| 형별 | 84T(기본형) |
| 세대수 | 62 |
| 전용면적 (㎡) | 84.9758 |
| 공용면적 (㎡) | 27.5500 |
| 공급면적 (㎡) | 84 |
|---|---|
| 사업시행인가(변경)일자 | 2013-12-17 |
| 형별 | 84T(확장형) |
| 세대수 | 62 |
| 전용면적 (㎡) | 84.9758 |
| 공용면적 (㎡) | 27.5500 |
| 공급면적 (㎡) | 113 |
|---|---|
| 사업시행인가(변경)일자 | 2013-12-17 |
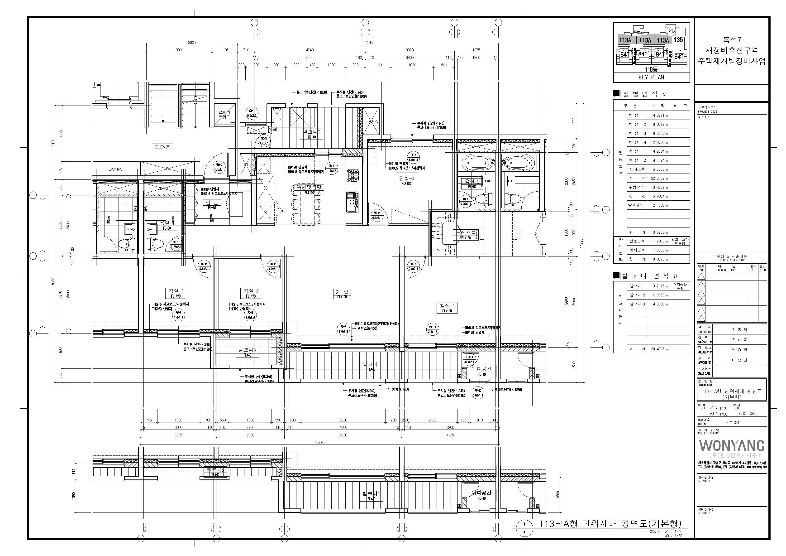
| 형별 | 113A(기본형) |
| 세대수 | 16 |
| 전용면적 (㎡) | 113.8966 |
| 공용면적 (㎡) | 34.3747 |
| 공급면적 (㎡) | 113 |
|---|---|
| 사업시행인가(변경)일자 | 2013-12-17 |
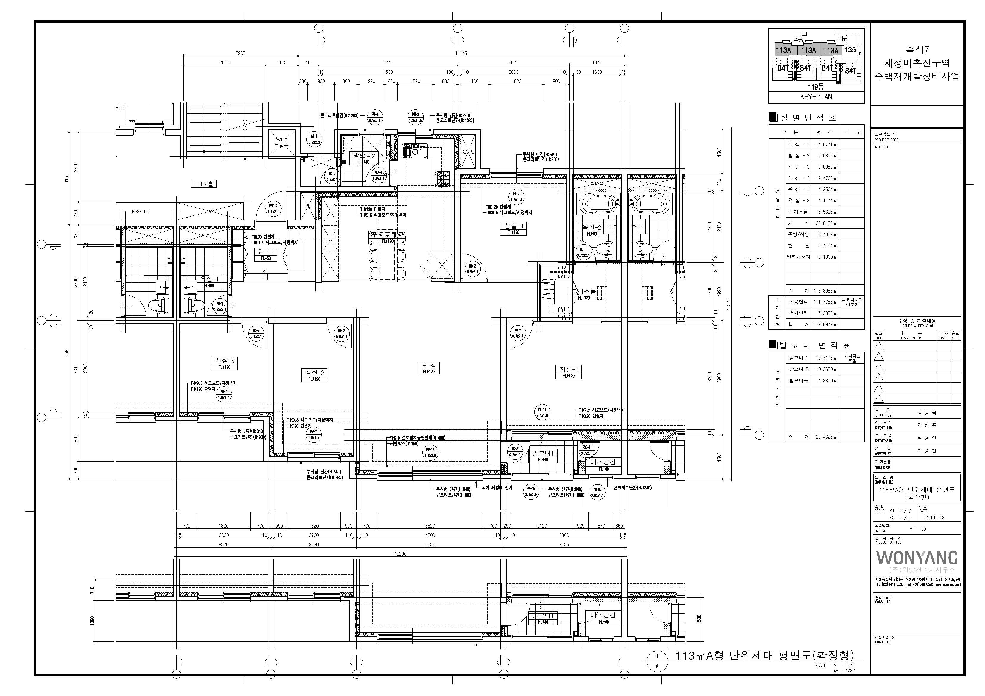
| 형별 | 113A(확장형) |
| 세대수 | 16 |
| 전용면적 (㎡) | 113.8966 |
| 공용면적 (㎡) | 34.3747 |
| 공급면적 (㎡) | 113 |
|---|---|
| 사업시행인가(변경)일자 | 2013-12-17 |
| 형별 | 113B(기본형) |
| 세대수 | 20 |
| 전용면적 (㎡) | 113.0204 |
| 공용면적 (㎡) | 40.0574 |
| 공급면적 (㎡) | 113 |
|---|---|
| 사업시행인가(변경)일자 | 2013-12-17 |
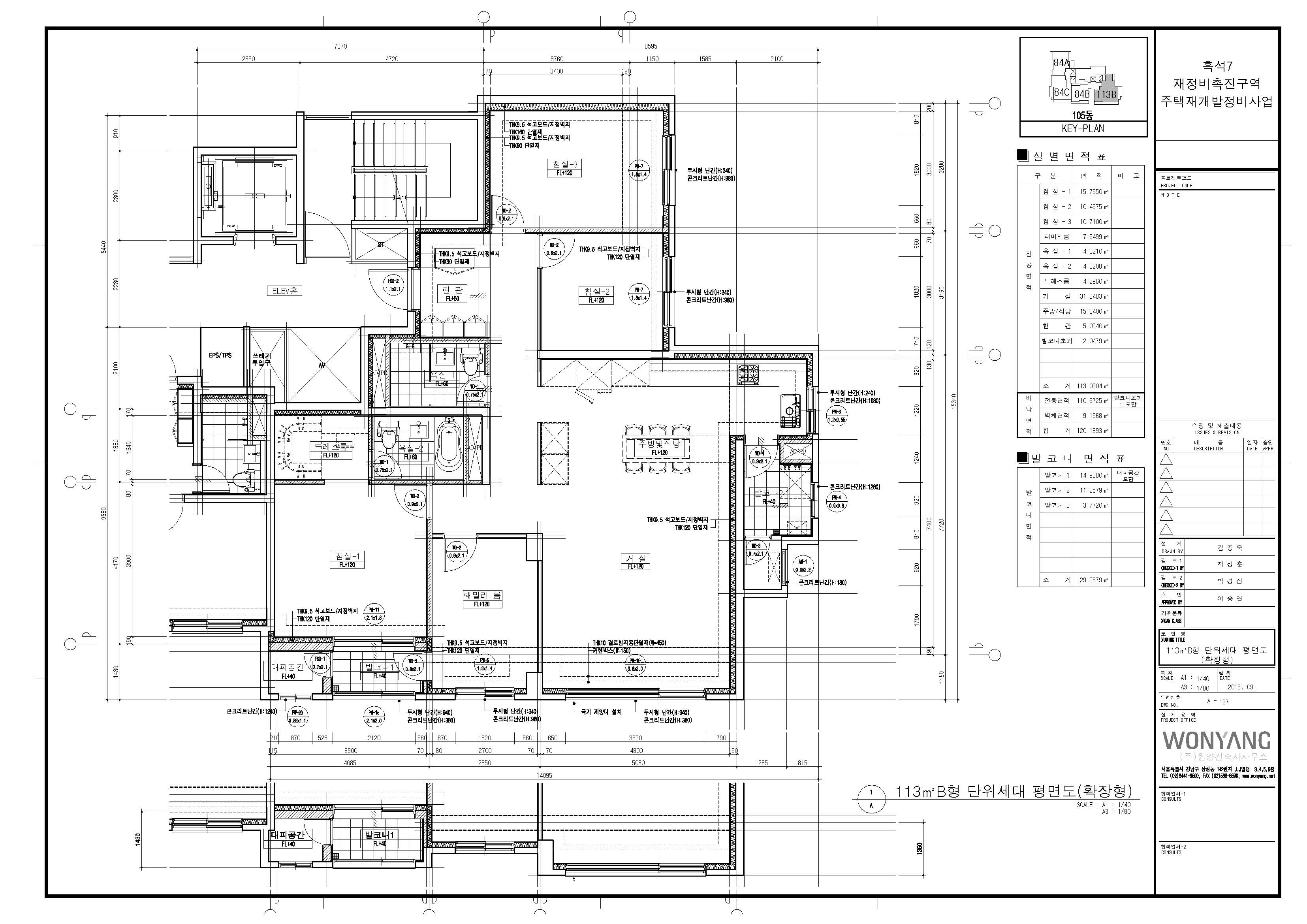
| 형별 | 113B(확장형) |
| 세대수 | 20 |
| 전용면적 (㎡) | 113.0204 |
| 공용면적 (㎡) | 40.0574 |
| 공급면적 (㎡) | 135 |
|---|---|
| 사업시행인가(변경)일자 | 2013-12-17 |
| 형별 | 135(기본형) |
| 세대수 | 8 |
| 전용면적 (㎡) | 135.9121 |
| 공용면적 (㎡) | 41.6667 |
| 공급면적 (㎡) | 135 |
|---|---|
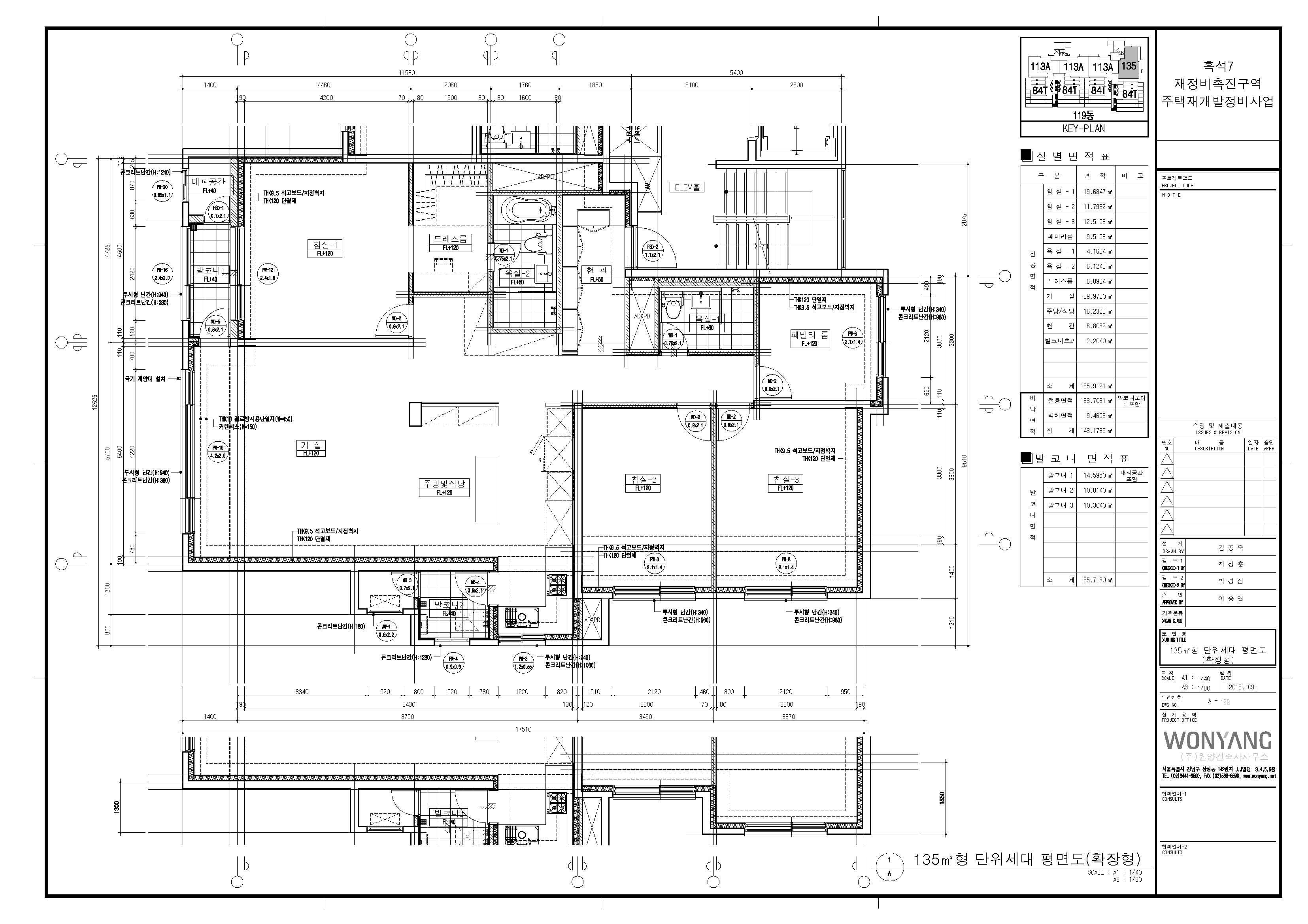
| 사업시행인가(변경)일자 | 2013-12-17 |
| 형별 | 135(확장형) |
| 세대수 | 8 |
| 전용면적 (㎡) | 135.9121 |
| 공용면적 (㎡) | 41.6667 |