단위세대평면도
정비사업 추진과정을 유리알처럼 투명하게 공개

24형 단위세대평면도(확장전)

24형 단위세대평면도(확장전)
공급면적 (㎡) 79.480
사업시행인가(변경)일자 2010-02-17
형별 24평형
세대수 70
전용면적 (㎡) 59.957
공용면적 (㎡) 19.532

단위세대평면도 이미지

25형 단위세대평면도(확장전)

25형 단위세대평면도(확장전)
공급면적 (㎡) 83.091
사업시행인가(변경)일자 2010-02-17
형별 25평형
세대수 48
전용면적 (㎡) 59.804
공용면적 (㎡) 23.287

단위세대평면도 이미지

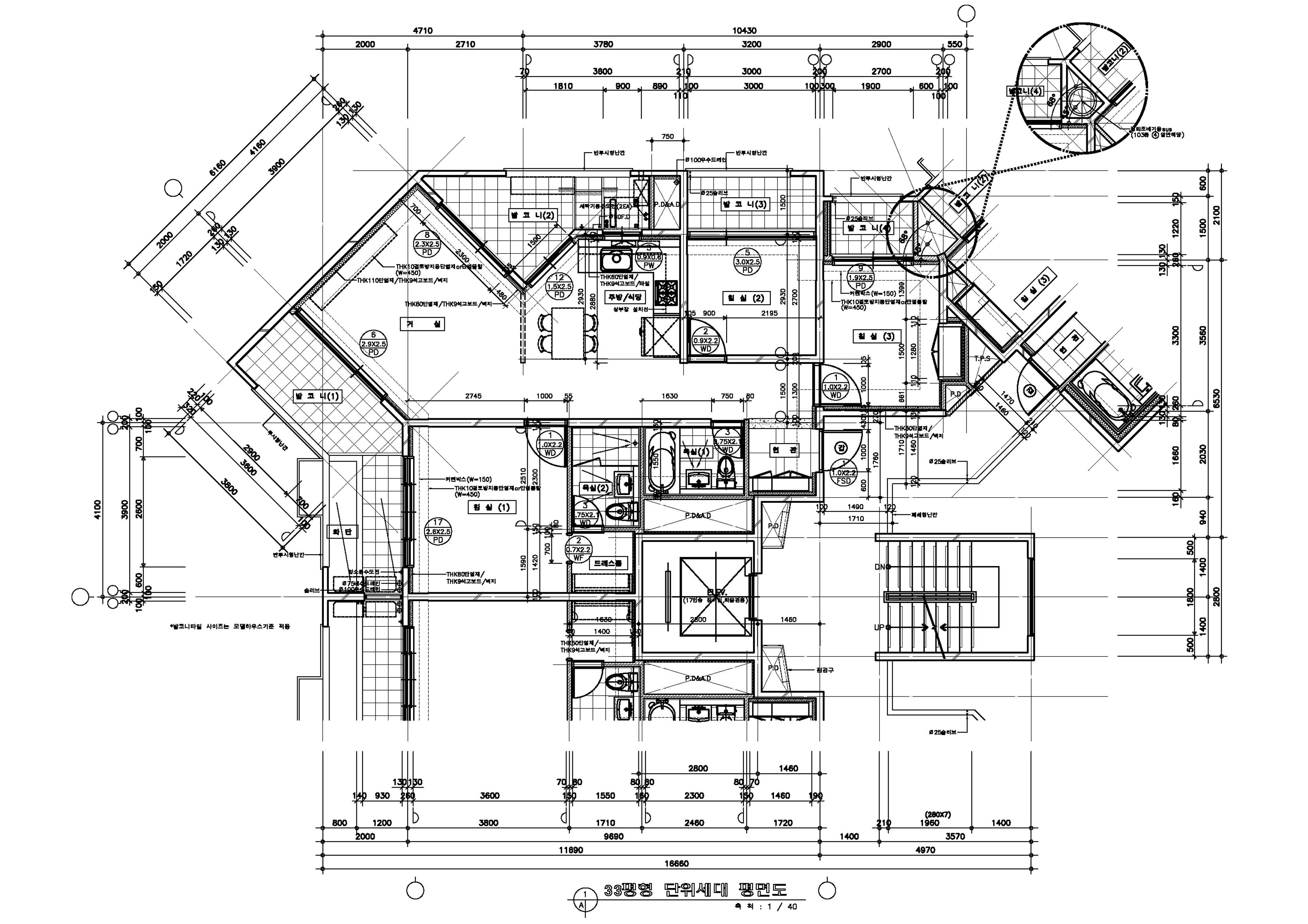
33형 단위세대평면도(확장전)

33형 단위세대평면도(확장전)
공급면적 (㎡) 111.479
사업시행인가(변경)일자 2010-02-17
형별 33평형
세대수 80
전용면적 (㎡) 84.913
공용면적 (㎡) 26.566

단위세대평면도 이미지

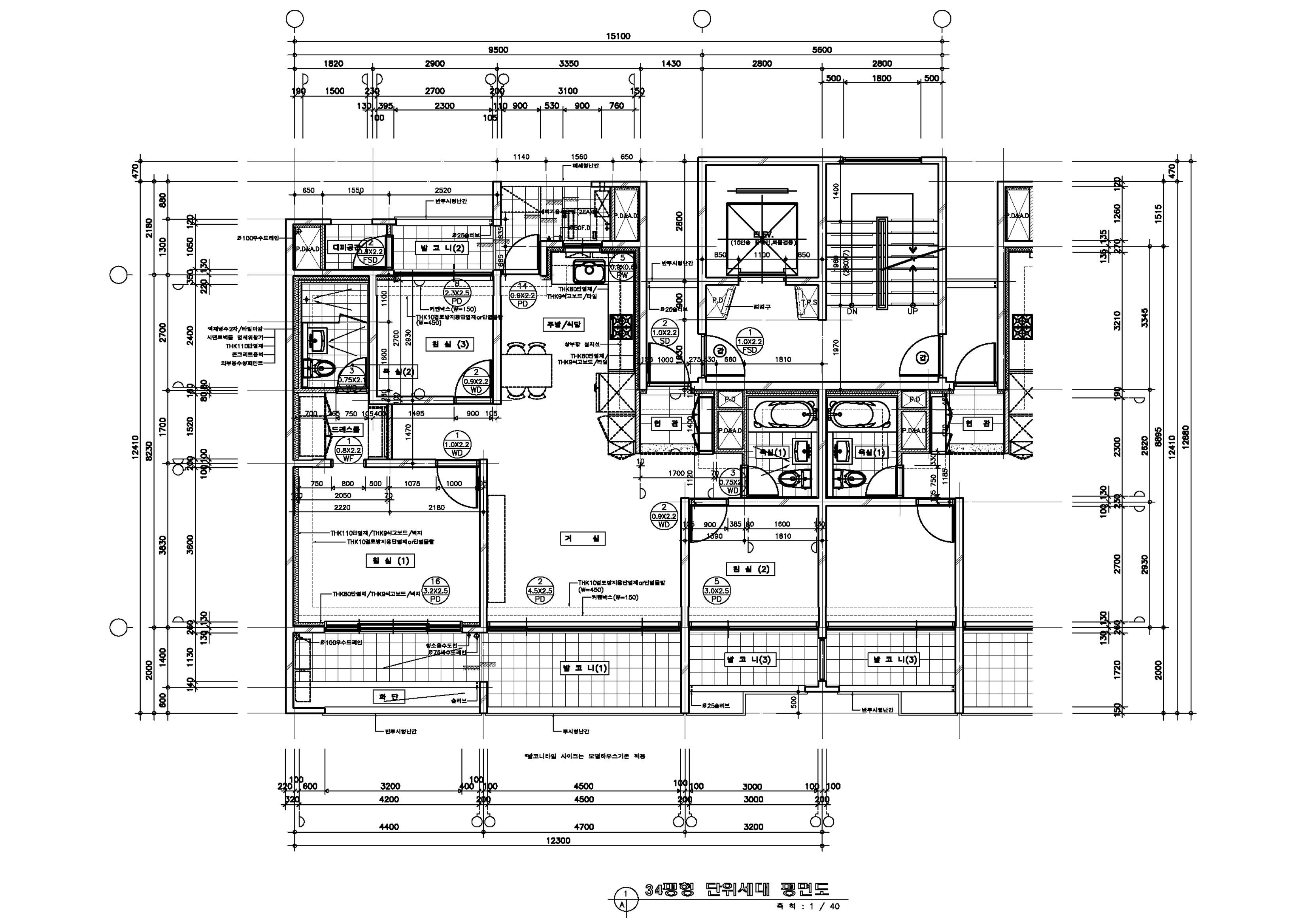
34형 단위세대평면도(확장전)

34형 단위세대평면도(확장전)
공급면적 (㎡) 112.545
사업시행인가(변경)일자 2010-02-17
형별 34
세대수 56
전용면적 (㎡) 84.868
공용면적 (㎡) 27.677

단위세대평면도 이미지

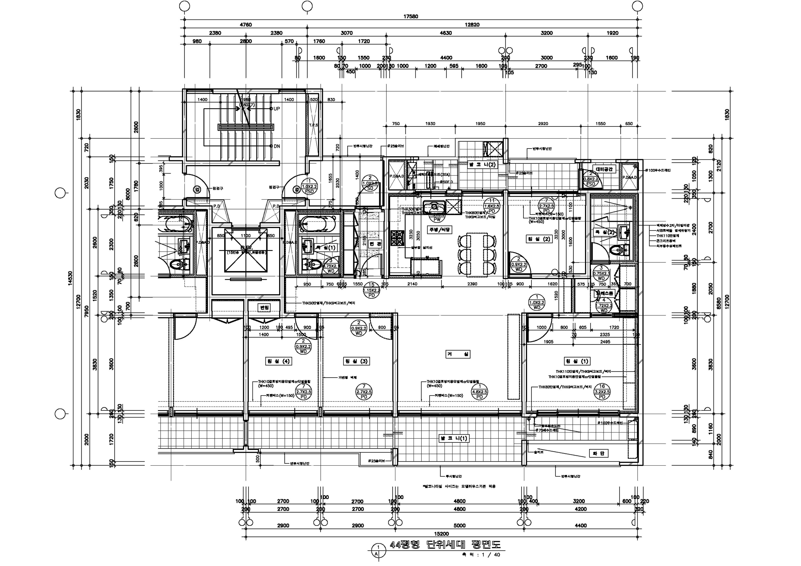
44형 단위세대평면도(확장전)

44형 단위세대평면도(확장전)
공급면적 (㎡) 147.119
사업시행인가(변경)일자 2010-02-17
형별 44
세대수 45
전용면적 (㎡) 114.685
공용면적 (㎡) 32.434

단위세대평면도 이미지

사업추진 단계별
공개자료 조회

툴팁 아이콘
원하시는 사업 추진단계에 등록된 자료들을 조회해 보실 수 있습니다.