단위세대평면도
정비사업 추진과정을 유리알처럼 투명하게 공개

49 TYPE 단위세대(확장형)

49 TYPE 단위세대(확장형)
공급면적 (㎡) 68.9251
사업시행인가(변경)일자 2019-11-01
형별 49
세대수 50
전용면적 (㎡) 49.0972
공용면적 (㎡) 19.8972

단위세대평면도 이미지

56 TYPE 단위세대(확장형)

56 TYPE 단위세대(확장형)
공급면적 (㎡) 78.7856
사업시행인가(변경)일자 2019-11-01
형별 56
세대수 25
전용면적 (㎡) 56.2770
공용면적 (㎡) 22.5086

단위세대평면도 이미지

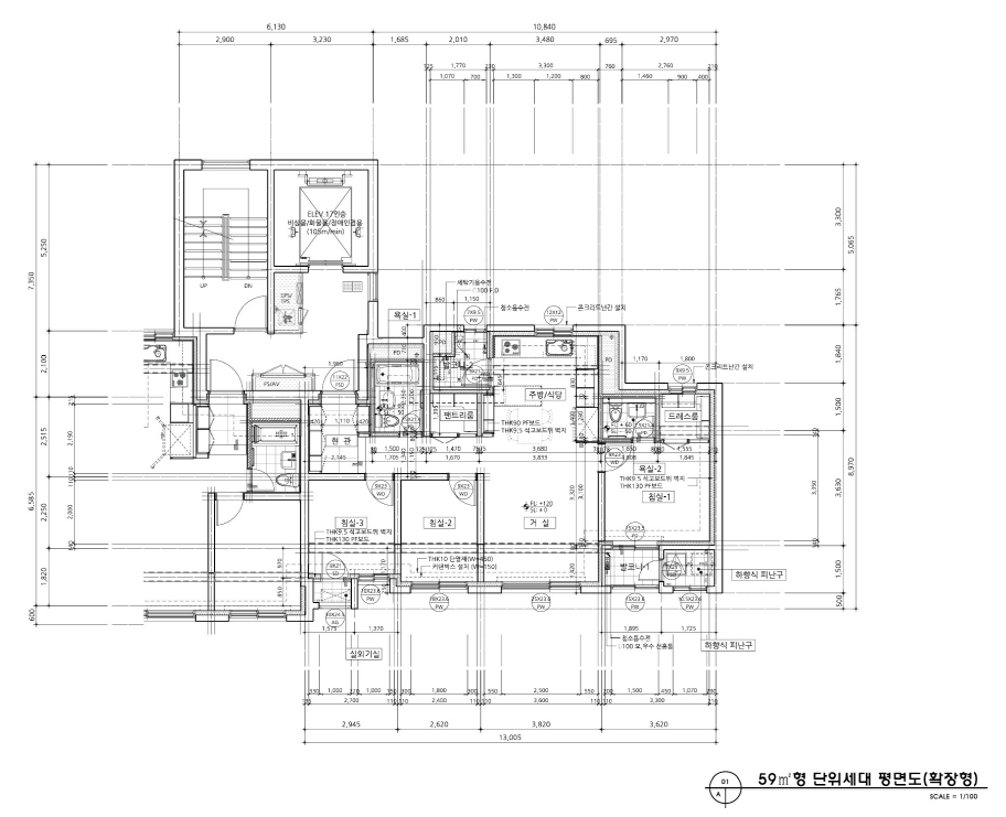
59 TYPE 단위세대(확장형)

59 TYPE 단위세대(확장형)
공급면적 (㎡) 83.9108
사업시행인가(변경)일자 2019-11-01
형별 59
세대수 81
전용면적 (㎡) 59.9953
공용면적 (㎡) 23.9155

단위세대평면도 이미지

사업추진 단계별
공개자료 조회

툴팁 아이콘
원하시는 사업 추진단계에 등록된 자료들을 조회해 보실 수 있습니다.