단위세대평면도
정비사업 추진과정을 유리알처럼 투명하게 공개

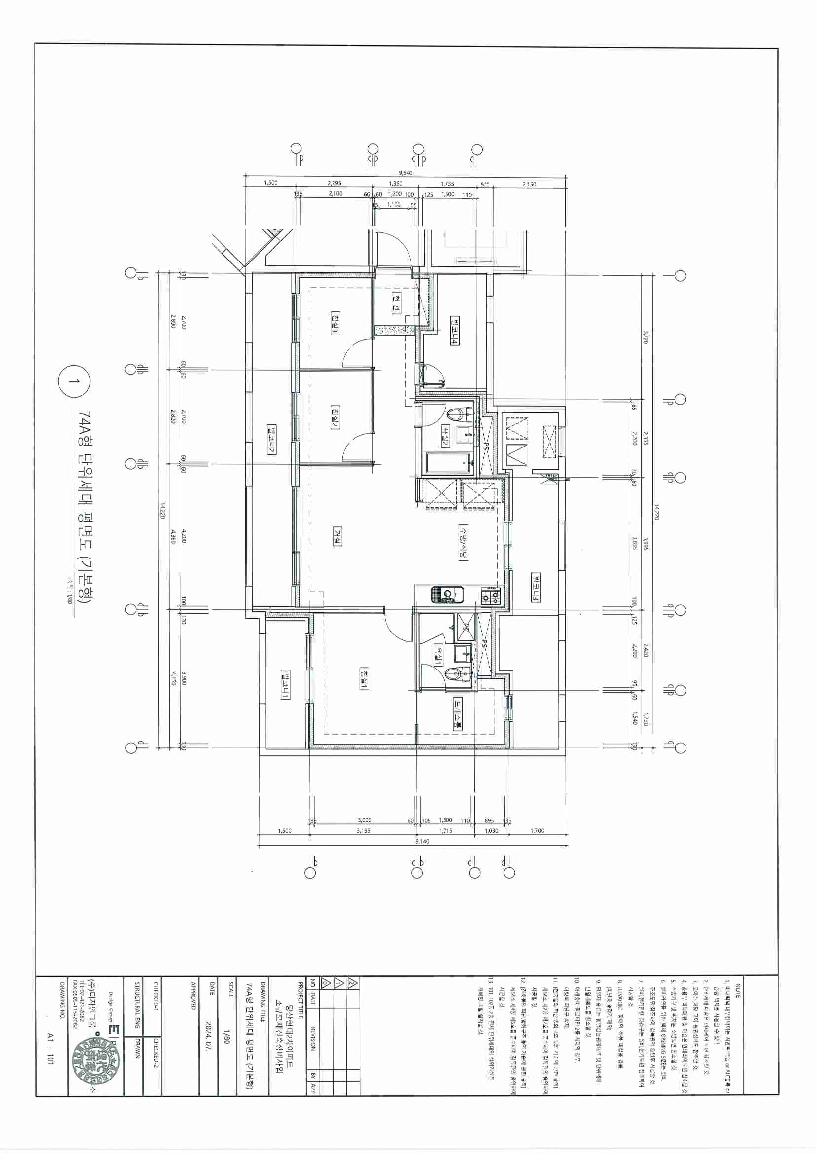
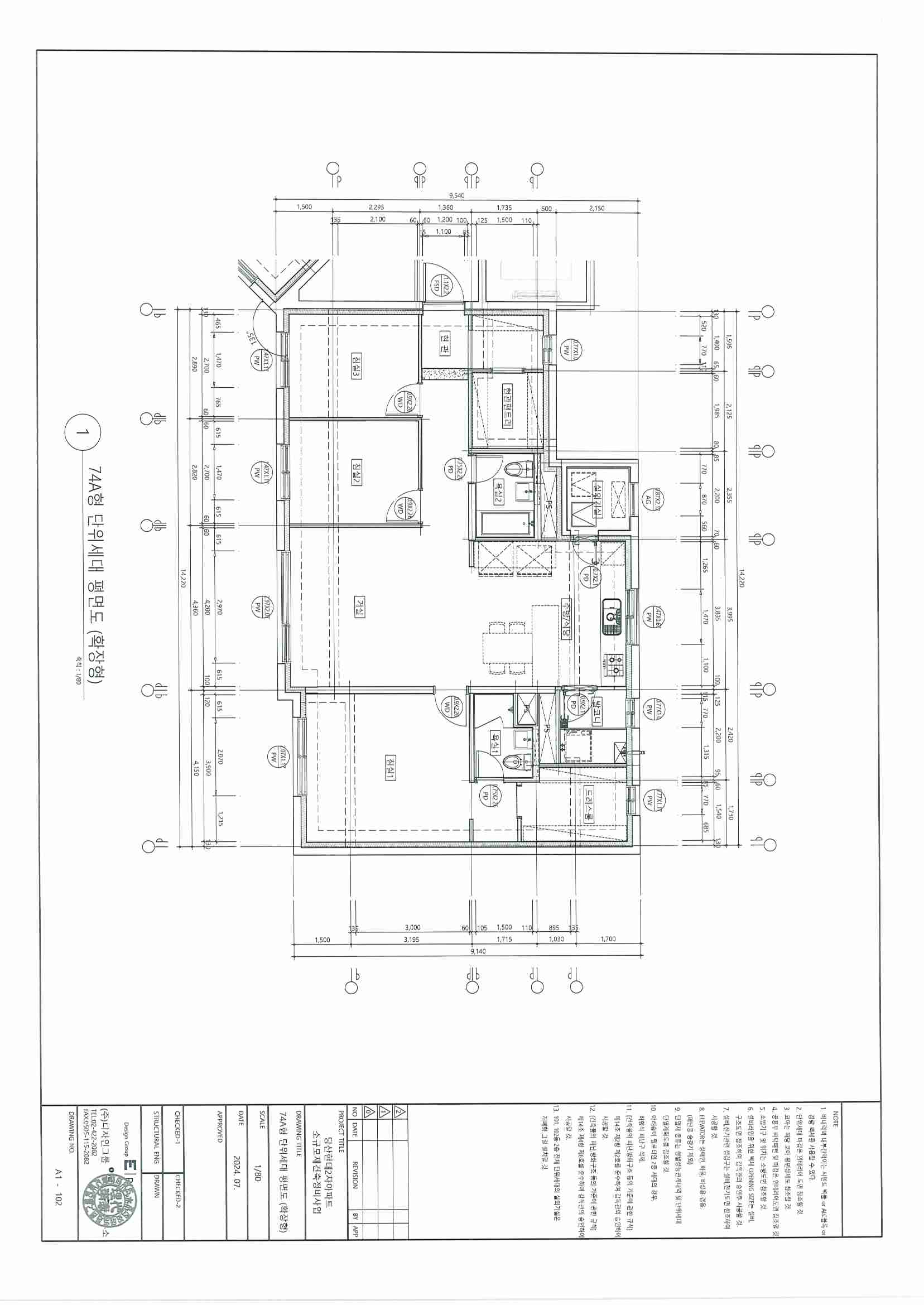
단위세대평면도 - 74A

단위세대평면도 - 74A
공급면적 (㎡) 95.5956
사업시행인가(변경)일자 2024-06-26
형별 74A
세대수 19
전용면적 (㎡) 74.2504
공용면적 (㎡) 21.3452

단위세대평면도 이미지

단위세대평면도 이미지

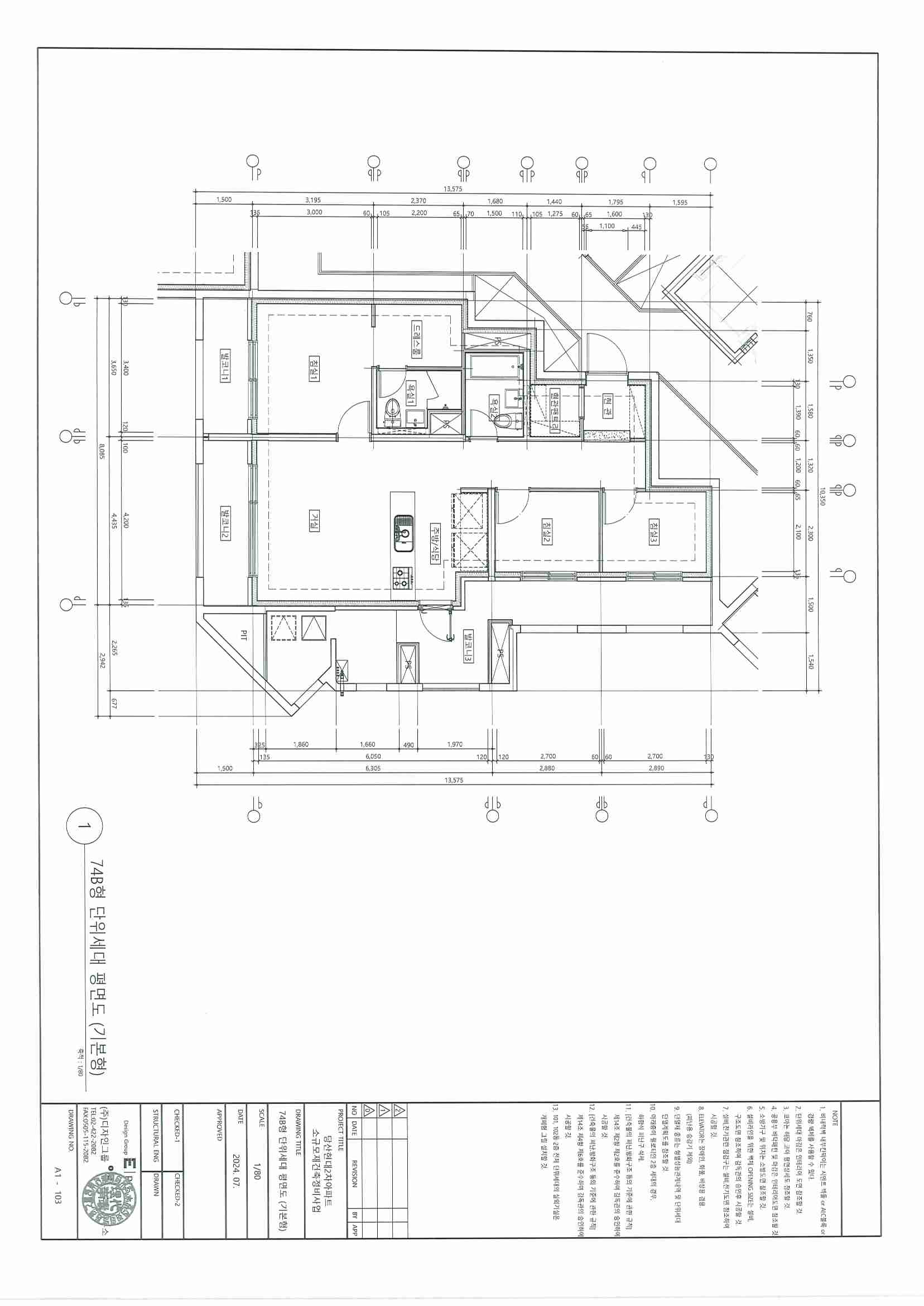
단위세대평면도 - 74B

단위세대평면도 - 74B
공급면적 (㎡) 95.5057
사업시행인가(변경)일자 2024-06-26
형별 74B
세대수 19
전용면적 (㎡) 74.3430
공용면적 (㎡) 21.1627

단위세대평면도 이미지

단위세대평면도 이미지

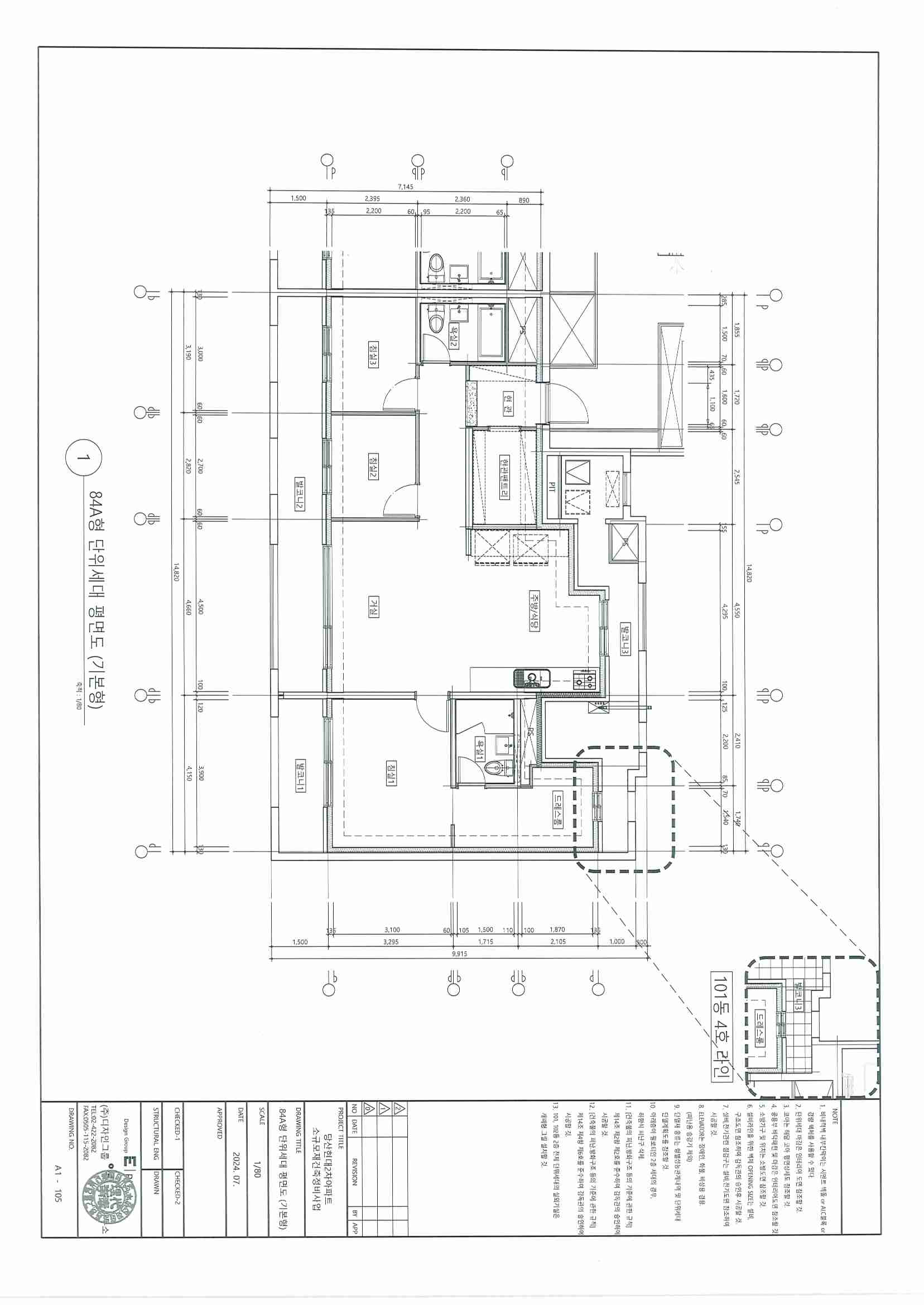
단위세대평면도 - 84A

단위세대평면도 - 84A
공급면적 (㎡) 108.5390
사업시행인가(변경)일자 2024-06-26
형별 84A
세대수 76
전용면적 (㎡) 84.2427
공용면적 (㎡) 24.2963

단위세대평면도 이미지

단위세대평면도 이미지

단위세대평면도 - 84B

단위세대평면도 - 84B
공급면적 (㎡) 108.3624
사업시행인가(변경)일자 2024-06-26
형별 84B
세대수 19
전용면적 (㎡) 84.4136
공용면적 (㎡) 23.9488

단위세대평면도 이미지

단위세대평면도 이미지

단위세대평면도 - 84C

단위세대평면도 - 84C
공급면적 (㎡) 107.9155
사업시행인가(변경)일자 2024-06-26
형별 84C
세대수 12
전용면적 (㎡) 84.3295
공용면적 (㎡) 23.5860

단위세대평면도 이미지

단위세대평면도 이미지

사업추진 단계별
공개자료 조회

툴팁 아이콘
원하시는 사업 추진단계에 등록된 자료들을 조회해 보실 수 있습니다.