단위세대평면도
정비사업 추진과정을 유리알처럼 투명하게 공개

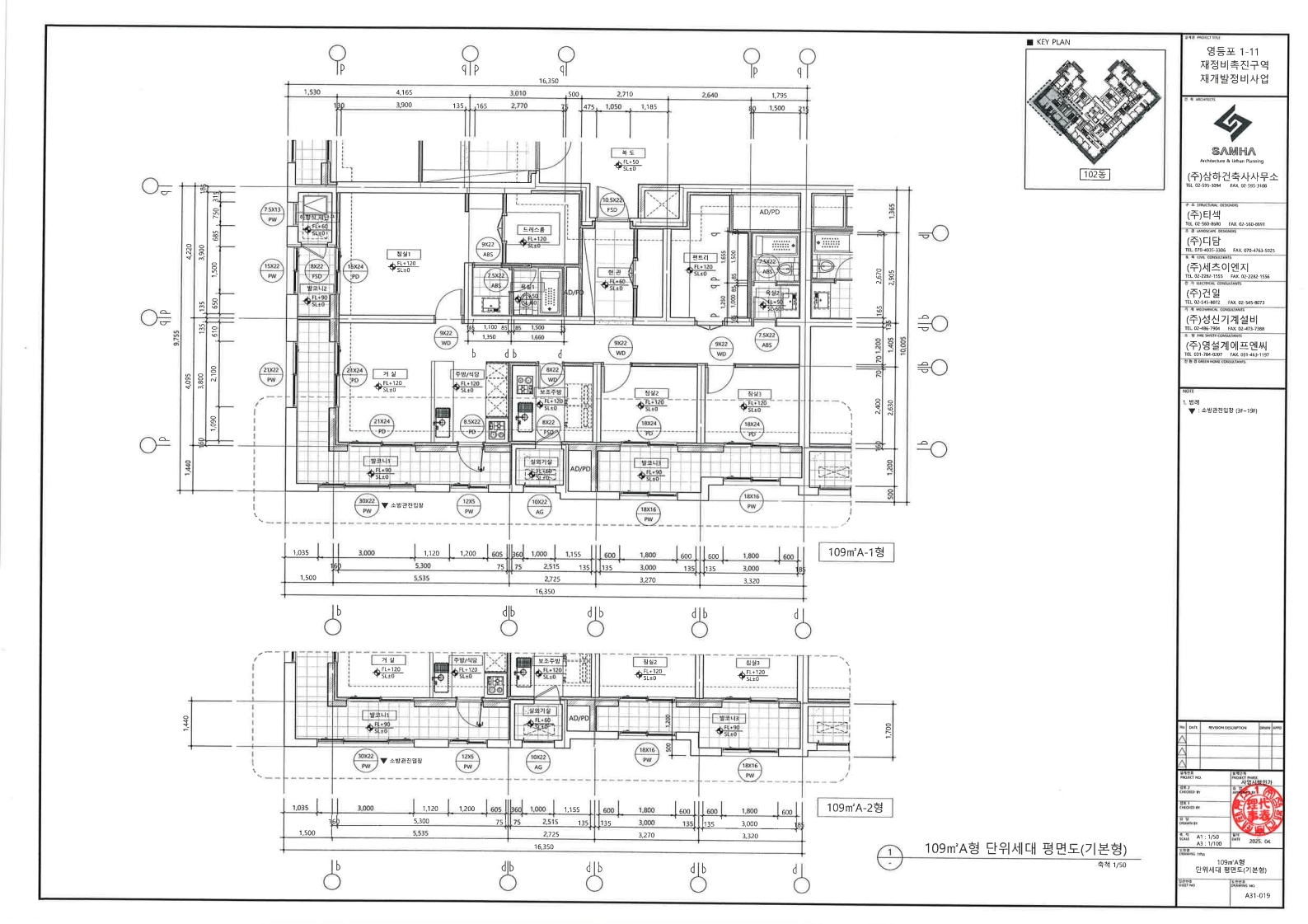
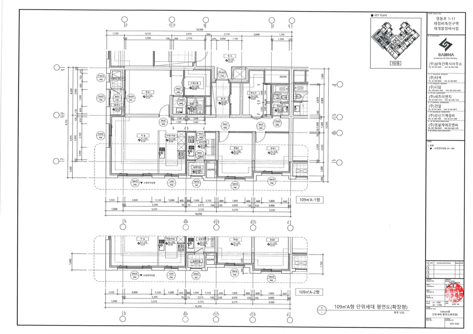
건축시설계획-사업시행인가(단위세대평면도-109A타입)

건축시설계획-사업시행인가(단위세대평면도-109A타입)
공급면적 (㎡) 265.372
사업시행인가(변경)일자 2025-05-14
형별 109㎡A형
세대수 34
전용면적 (㎡) 109.130
공용면적 (㎡) 44.750

단위세대평면도 이미지

단위세대평면도 이미지

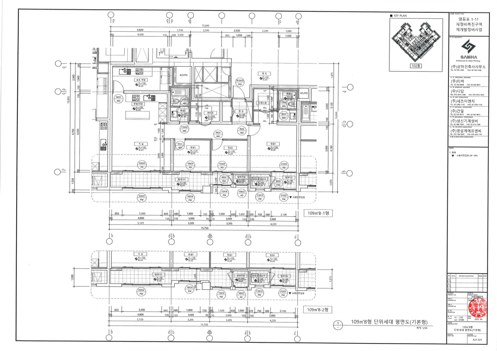
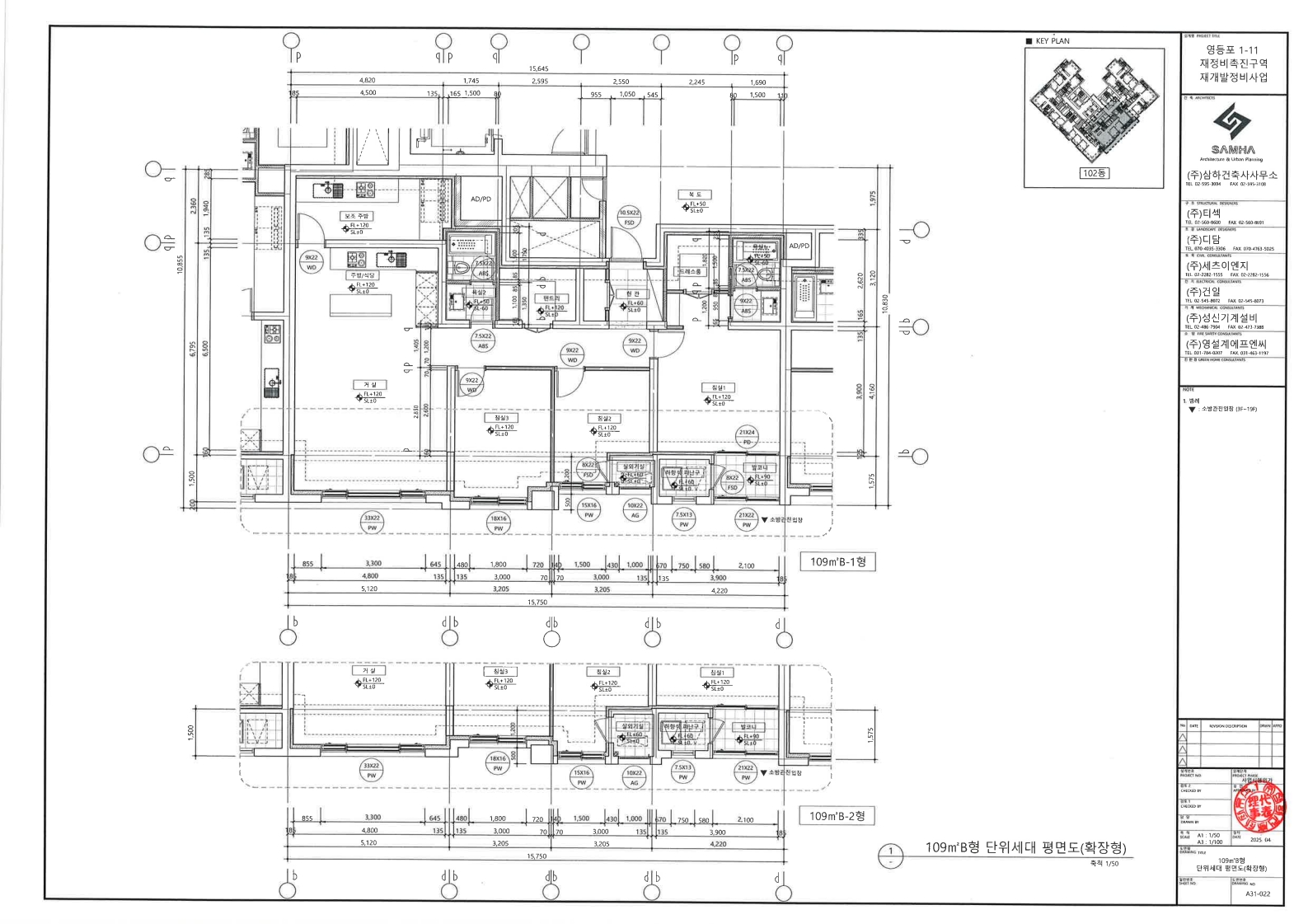
건축시설계획-사업시행인가(단위세대평면도-109B타입)

건축시설계획-사업시행인가(단위세대평면도-109B타입)
공급면적 (㎡) 266.356
사업시행인가(변경)일자 2025-05-14
형별 109㎡B형
세대수 34
전용면적 (㎡) 109.266
공용면적 (㎡) 45.458

단위세대평면도 이미지

단위세대평면도 이미지

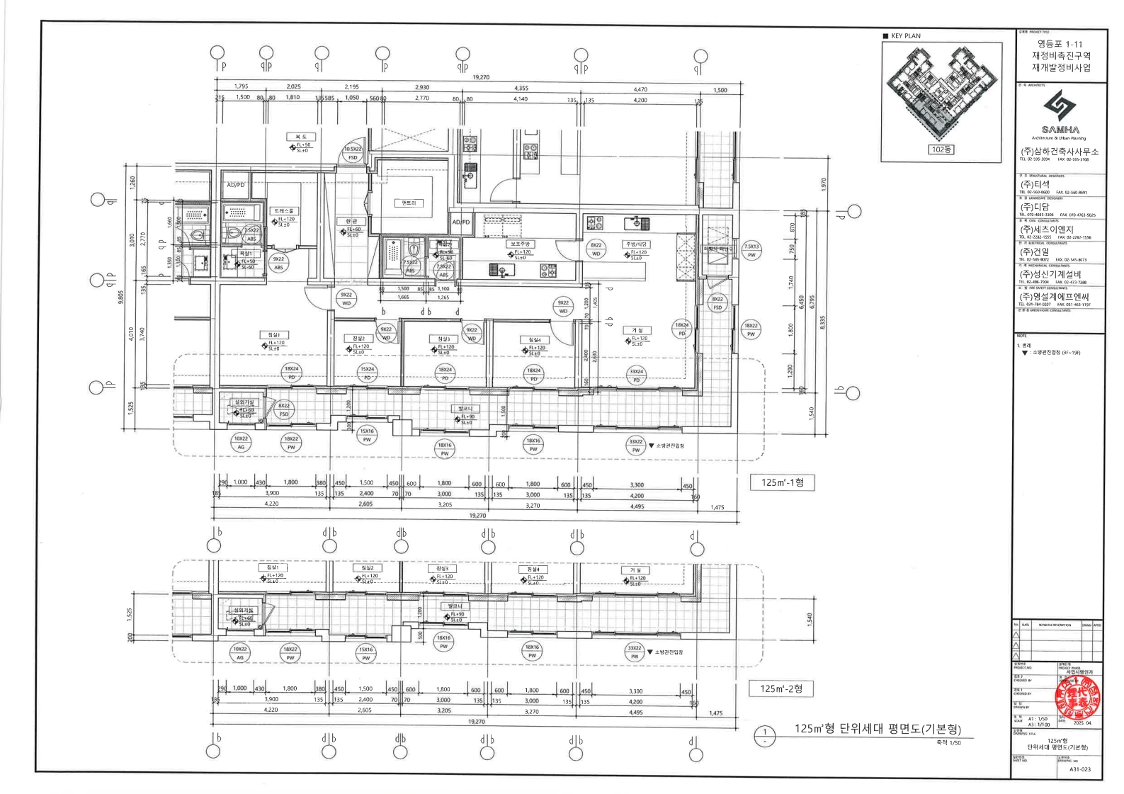
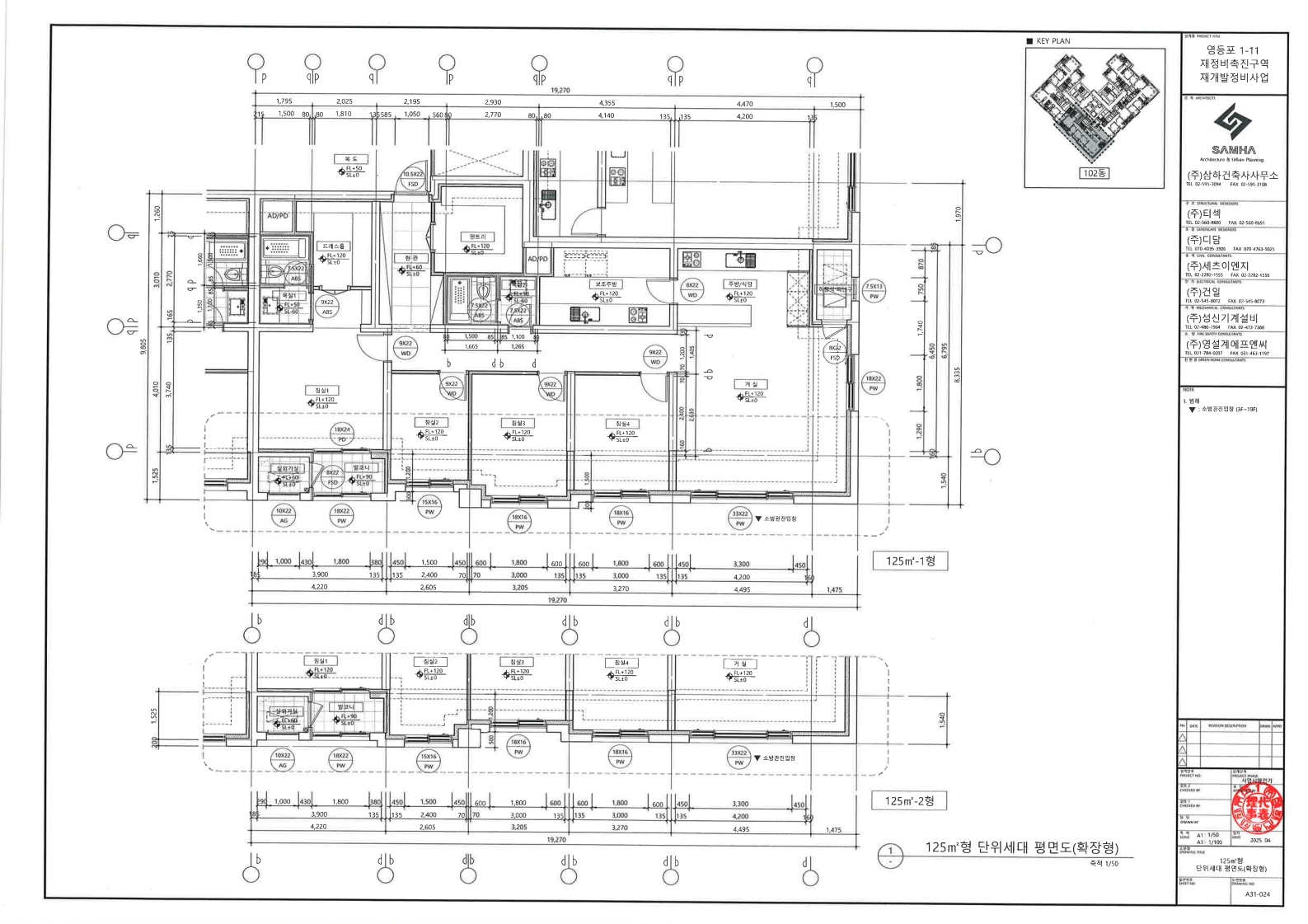
건축시설계획-사업시행인가(단위세대평면도-125A타입)

건축시설계획-사업시행인가(단위세대평면도-125A타입)
공급면적 (㎡) 305.094
사업시행인가(변경)일자 2025-05-14
형별 125㎡A형
세대수 34
전용면적 (㎡) 125.692
공용면적 (㎡) 50.989

단위세대평면도 이미지

단위세대평면도 이미지

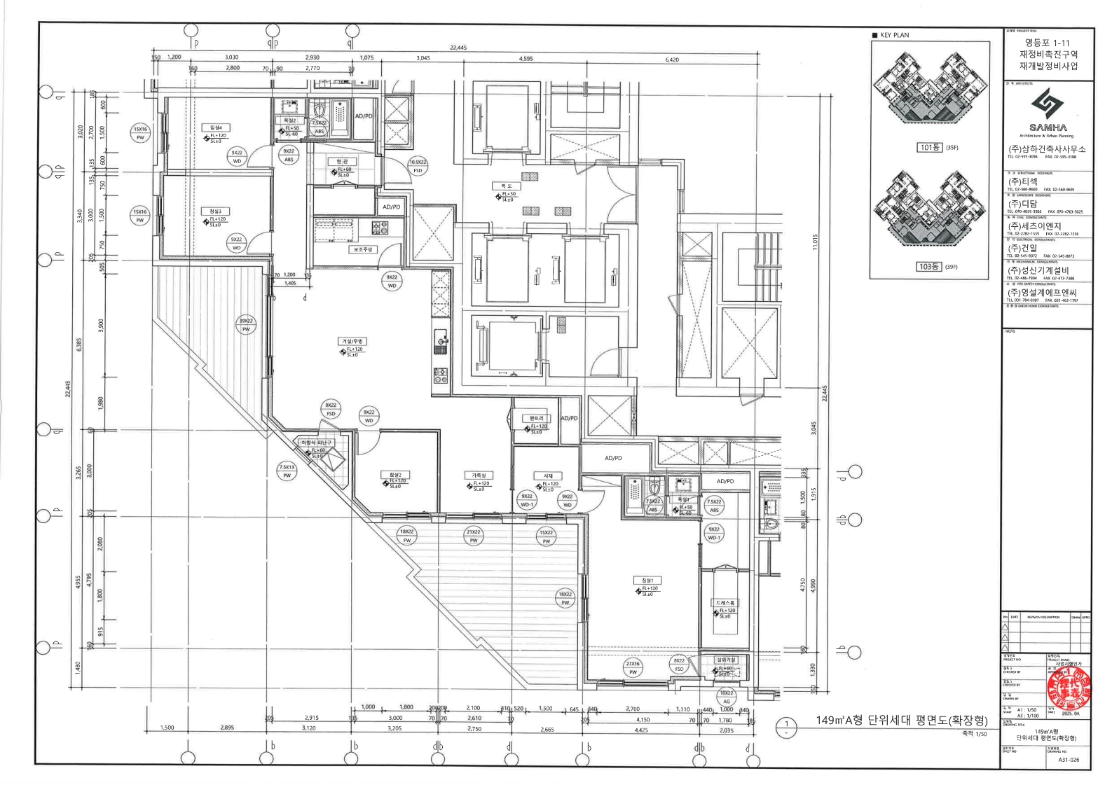
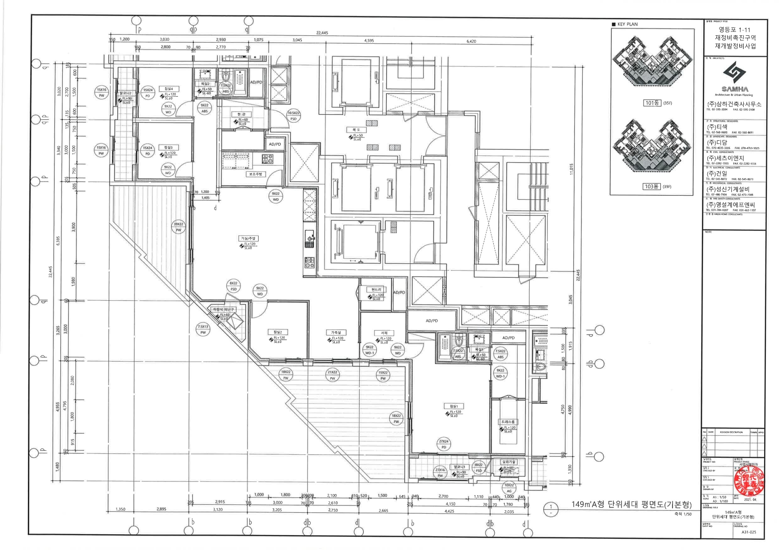
건축시설계획-사업시행인가(단위세대평면도-149A타입)

건축시설계획-사업시행인가(단위세대평면도-149A타입)
공급면적 (㎡) 365.982
사업시행인가(변경)일자 2025-05-14
형별 149㎡A형
세대수 2
전용면적 (㎡) 149.717
공용면적 (㎡) 63.308

단위세대평면도 이미지

단위세대평면도 이미지

건축시설계획-사업시행인가(단위세대평면도-149B타입)

건축시설계획-사업시행인가(단위세대평면도-149B타입)
공급면적 (㎡) 365.270
사업시행인가(변경)일자 2025-05-14
형별 149㎡B형
세대수 1
전용면적 (㎡) 149.781
공용면적 (㎡) 62.466

단위세대평면도 이미지

단위세대평면도 이미지

건축시설계획-사업시행인가(단위세대평면도-149C타입)

건축시설계획-사업시행인가(단위세대평면도-149C타입)
공급면적 (㎡) 371.000
사업시행인가(변경)일자 2025-05-14
형별 149㎡C형
세대수 1
전용면적 (㎡) 149.991
공용면적 (㎡) 67.771

단위세대평면도 이미지

단위세대평면도 이미지

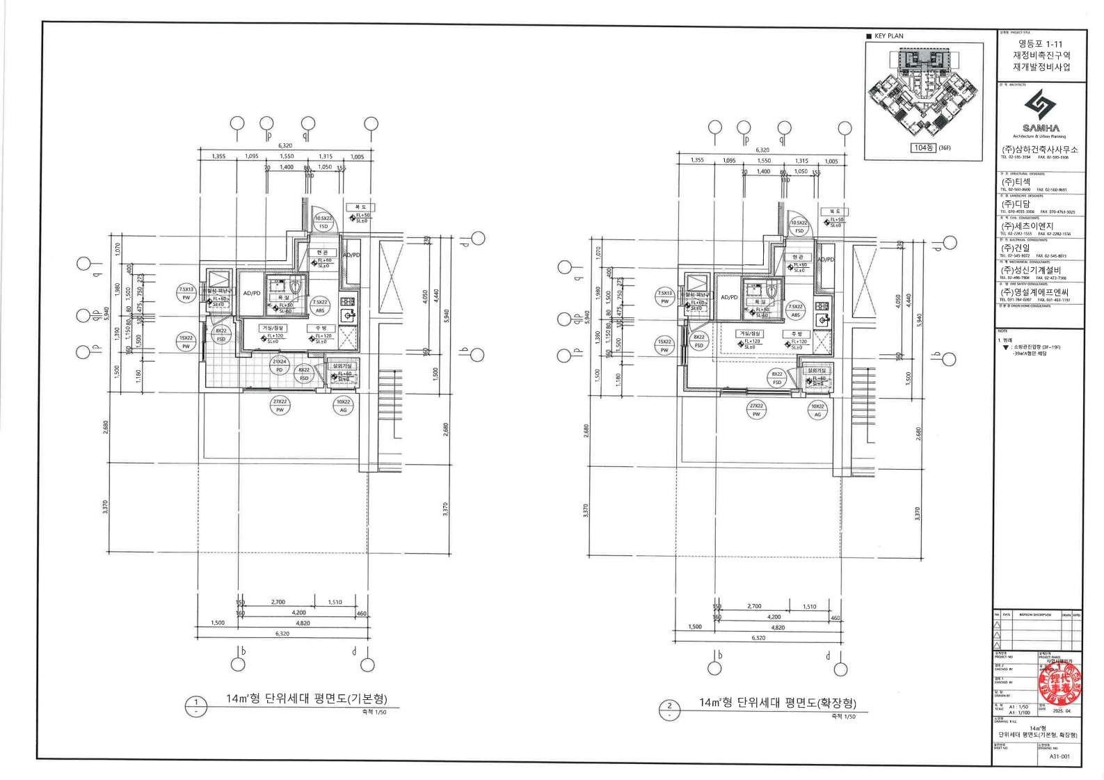
건축시설계획-사업시행인가(단위세대평면도-14A타입)

건축시설계획-사업시행인가(단위세대평면도-14A타입)
공급면적 (㎡) 35.961
사업시행인가(변경)일자 2025-05-14
형별 14㎡A형
세대수 2
전용면적 (㎡) 14.033
공용면적 (㎡) 7.592

단위세대평면도 이미지

건축시설계획-사업시행인가(단위세대평면도-24A타입)

건축시설계획-사업시행인가(단위세대평면도-24A타입)
공급면적 (㎡) 62.899
사업시행인가(변경)일자 2025-05-14
형별 24㎡A형
세대수 4
전용면적 (㎡) 24.958
공용면적 (㎡) 12.444

단위세대평면도 이미지

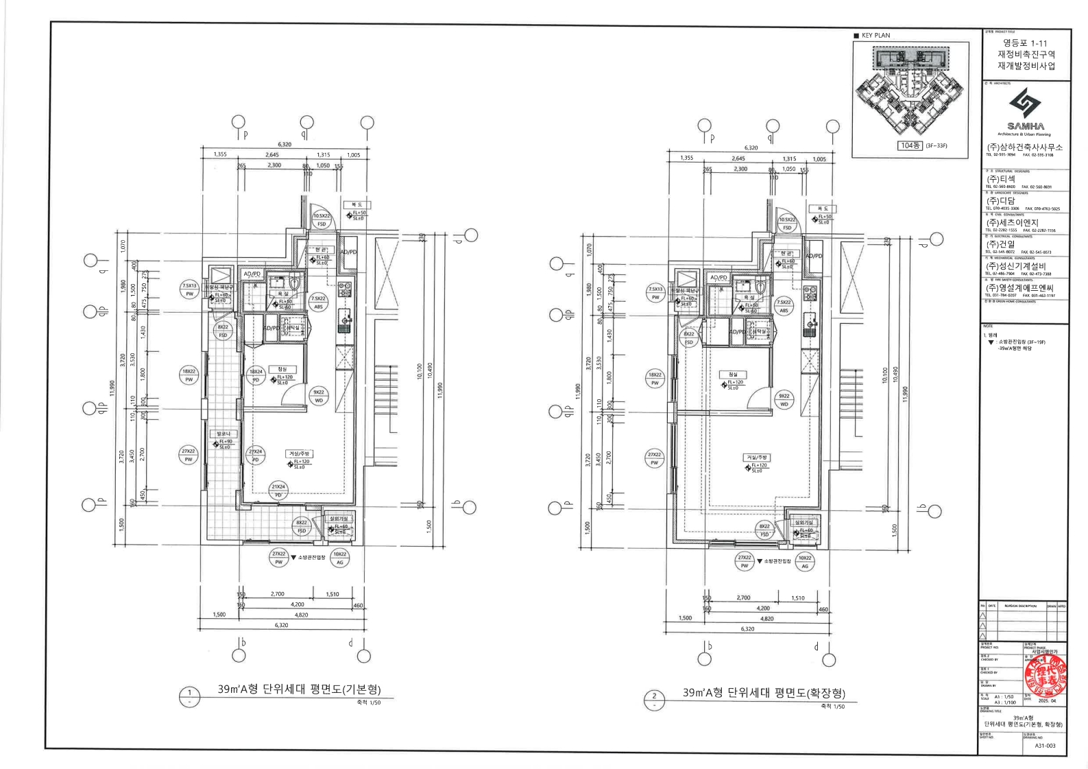
건축시설계획-사업시행인가(단위세대평면도-39A타입)

건축시설계획-사업시행인가(단위세대평면도-39A타입)
공급면적 (㎡) 99.252
사업시행인가(변경)일자 2025-05-14
형별 39㎡A형
세대수 18
전용면적 (㎡) 39.944
공용면적 (㎡) 18.500

단위세대평면도 이미지

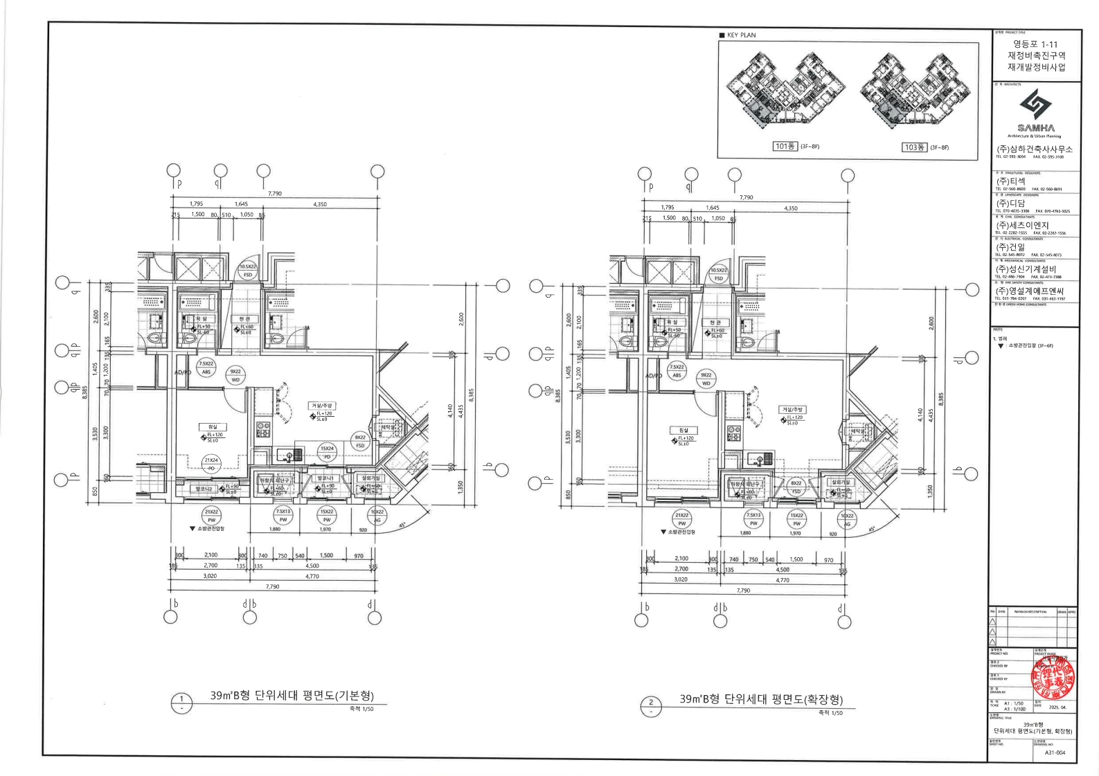
건축시설계획-사업시행인가(단위세대평면도-39B타입)

건축시설계획-사업시행인가(단위세대평면도-39B타입)
공급면적 (㎡) 98.862
사업시행인가(변경)일자 2025-05-14
형별 39㎡B형
세대수 12
전용면적 (㎡) 39.951
공용면적 (㎡) 18.096

단위세대평면도 이미지

건축시설계획-사업시행인가(단위세대평면도-39C타입)

건축시설계획-사업시행인가(단위세대평면도-39C타입)
공급면적 (㎡) 98.909
사업시행인가(변경)일자 2025-05-14
형별 39㎡C형
세대수 12
전용면적 (㎡) 39.935
공용면적 (㎡) 18.176

단위세대평면도 이미지

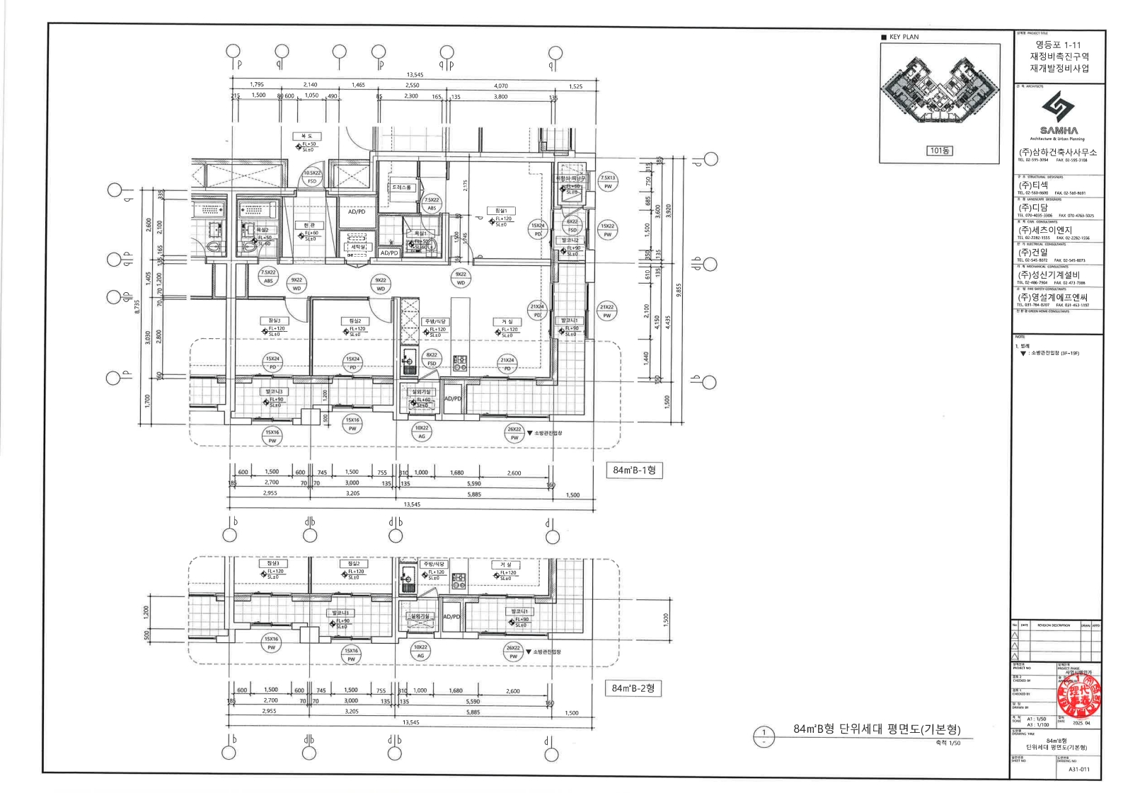
건축시설계획-사업시행인가(단위세대평면도-59A타입)

건축시설계획-사업시행인가(단위세대평면도-59A타입)
공급면적 (㎡) 147.309
사업시행인가(변경)일자 2025-05-14
형별 59㎡A형
세대수 127
전용면적 (㎡) 59.906
공용면적 (㎡) 26.201

단위세대평면도 이미지

건축시설계획-사업시행인가(단위세대평면도-59B타입)

건축시설계획-사업시행인가(단위세대평면도-59B타입)
공급면적 (㎡) 146.448
사업시행인가(변경)일자 2025-05-14
형별 59㎡B형
세대수 66
전용면적 (㎡) 59.889
공용면적 (㎡) 25.374

단위세대평면도 이미지

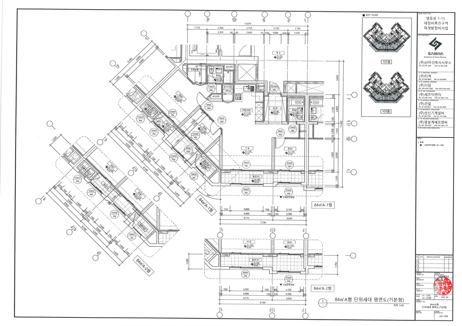
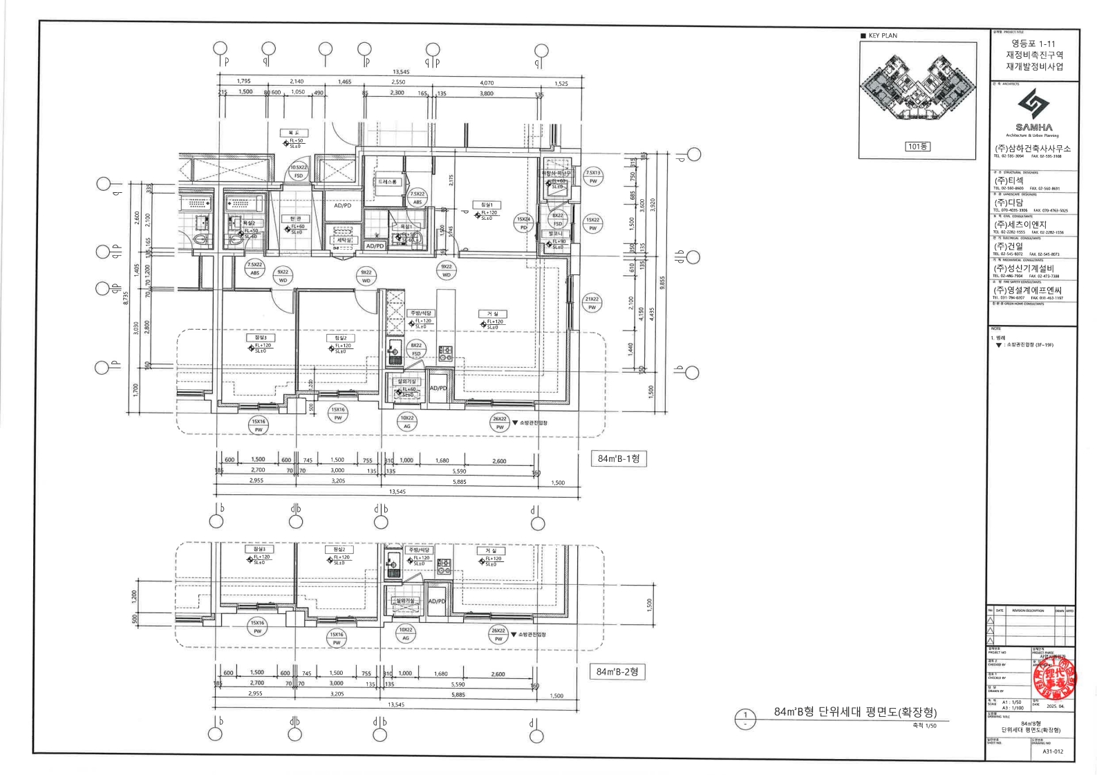
건축시설계획-사업시행인가(단위세대평면도-84A타입)

건축시설계획-사업시행인가(단위세대평면도-84A타입)
공급면적 (㎡) 206.618
사업시행인가(변경)일자 2025-05-14
형별 84㎡A형
세대수 72
전용면적 (㎡) 84.978
공용면적 (㎡) 34.821

단위세대평면도 이미지

건축시설계획-사업시행인가(단위세대평면도-84B타입)

건축시설계획-사업시행인가(단위세대평면도-84B타입)
공급면적 (㎡) 207.328
사업시행인가(변경)일자 2025-05-14
형별 84㎡B형
세대수 64
전용면적 (㎡) 84.986
공용면적 (㎡) 35.516

단위세대평면도 이미지

단위세대평면도 이미지

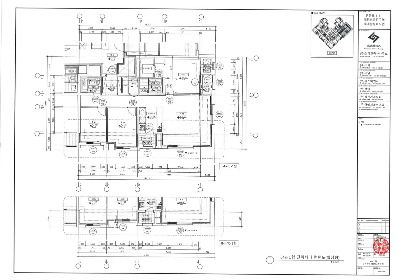
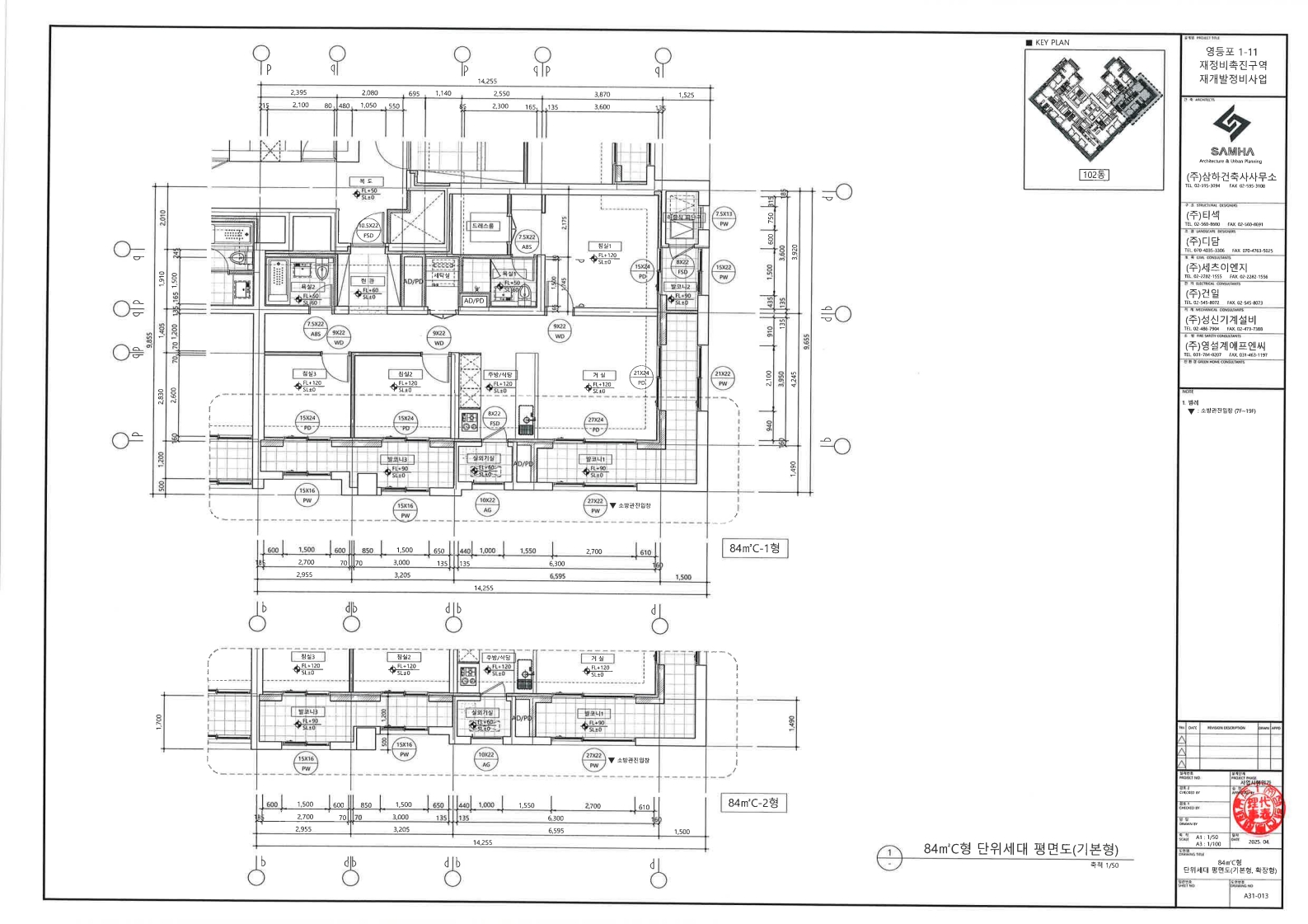
건축시설계획-사업시행인가(단위세대평면도-84C타입)

건축시설계획-사업시행인가(단위세대평면도-84C타입)
공급면적 (㎡) 207.570
사업시행인가(변경)일자 2025-05-14
형별 84㎡C형
세대수 33
전용면적 (㎡) 84.914
공용면적 (㎡) 35.903

단위세대평면도 이미지

단위세대평면도 이미지

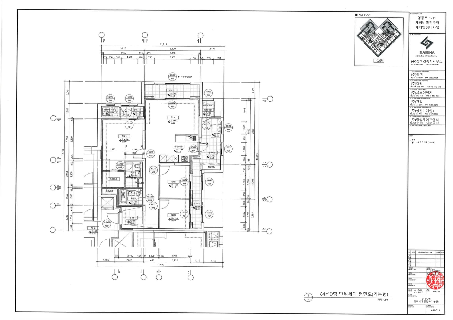
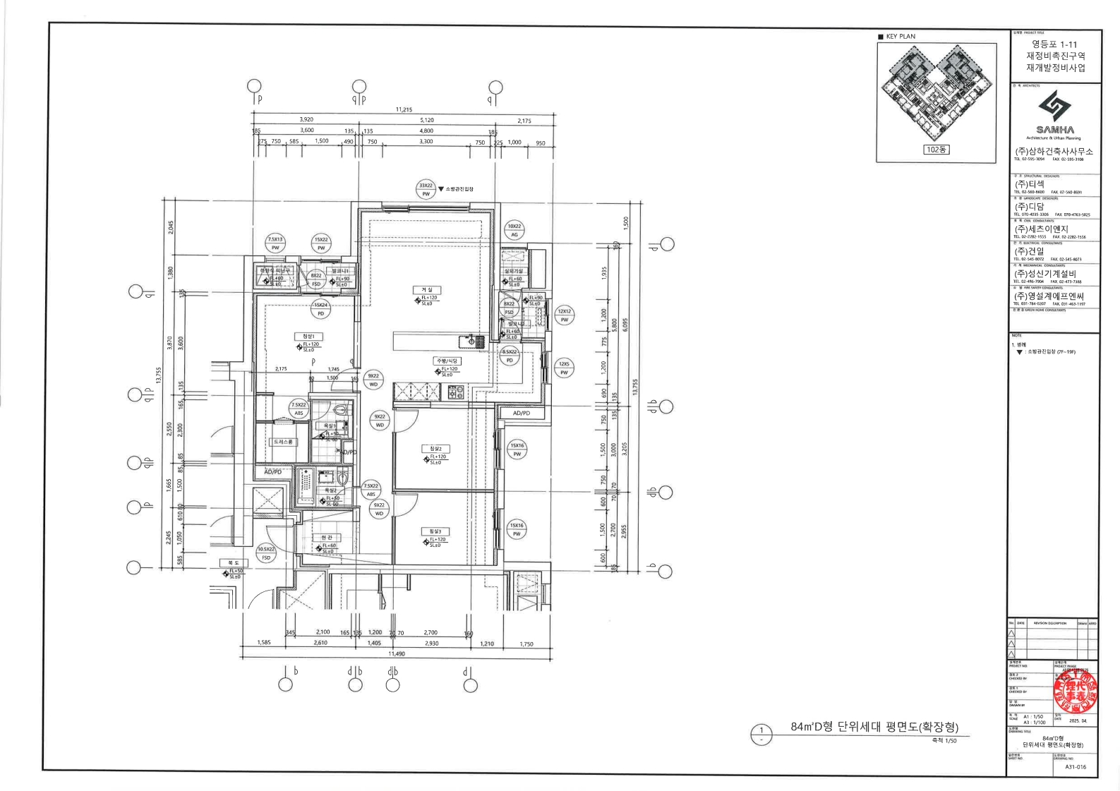
건축시설계획-사업시행인가(단위세대평면도-84D타입)

건축시설계획-사업시행인가(단위세대평면도-84D타입)
공급면적 (㎡) 207.319
사업시행인가(변경)일자 2025-05-14
형별 84㎡D형
세대수 67
전용면적 (㎡) 84.876
공용면적 (㎡) 35.730

단위세대평면도 이미지

단위세대평면도 이미지

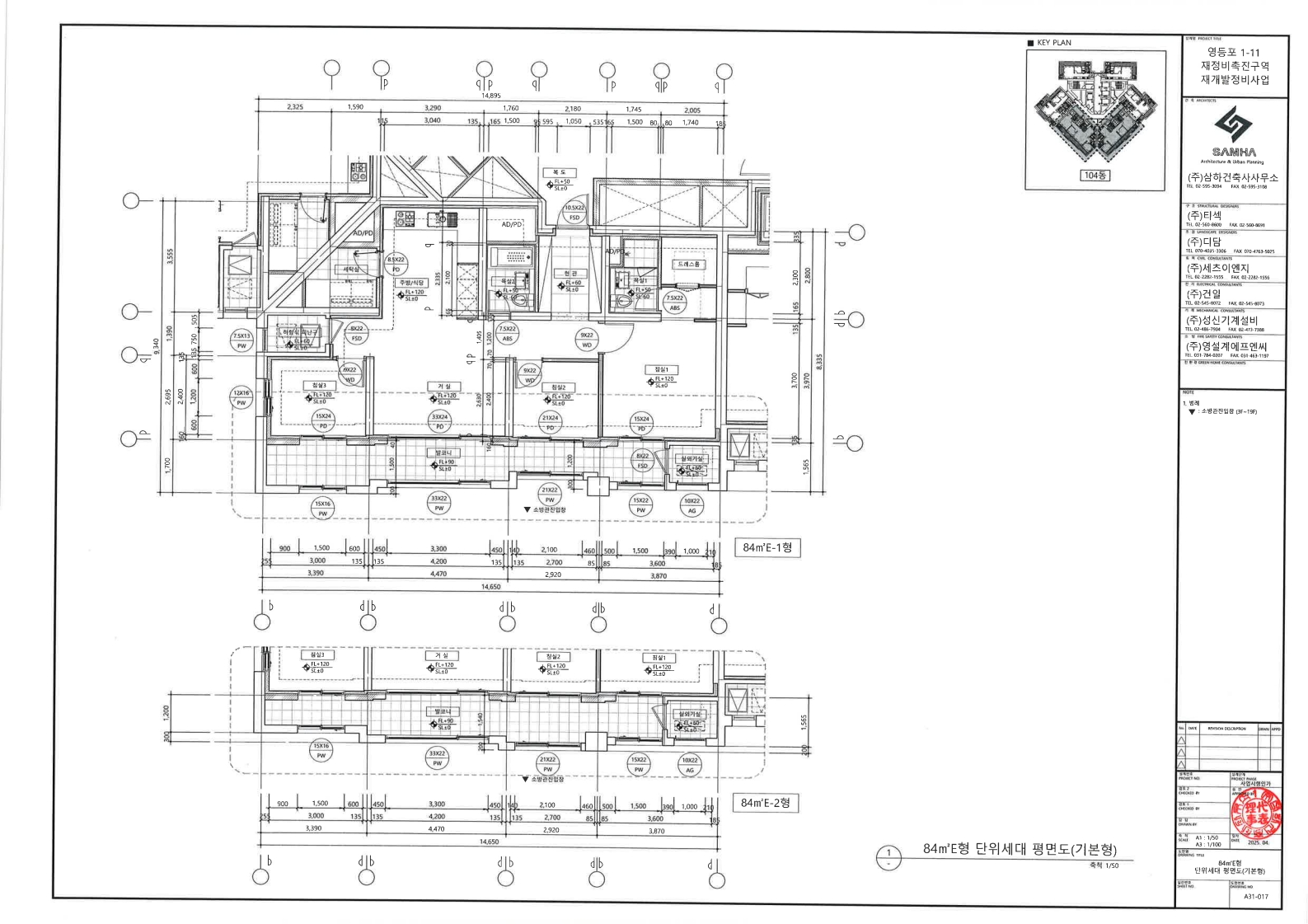
건축시설계획-사업시행인가(단위세대평면도-84E타입)

건축시설계획-사업시행인가(단위세대평면도-84E타입)
공급면적 (㎡) 207.706
사업시행인가(변경)일자 2025-05-14
형별 84㎡E형
세대수 64
전용면적 (㎡) 84.961
공용면적 (㎡) 35.946

단위세대평면도 이미지

단위세대평면도 이미지

사업추진 단계별
공개자료 조회

툴팁 아이콘
원하시는 사업 추진단계에 등록된 자료들을 조회해 보실 수 있습니다.