단위세대평면도
정비사업 추진과정을 유리알처럼 투명하게 공개

20190604 사업시행계획(경미한)변경 - 114

20190604 사업시행계획(경미한)변경 - 114
공급면적 (㎡) 154.9404
사업시행인가(변경)일자 2019-06-04
형별 114
세대수 25
전용면적 (㎡) 114.6500
공용면적 (㎡) 40.2904

단위세대평면도 이미지

단위세대평면도 이미지

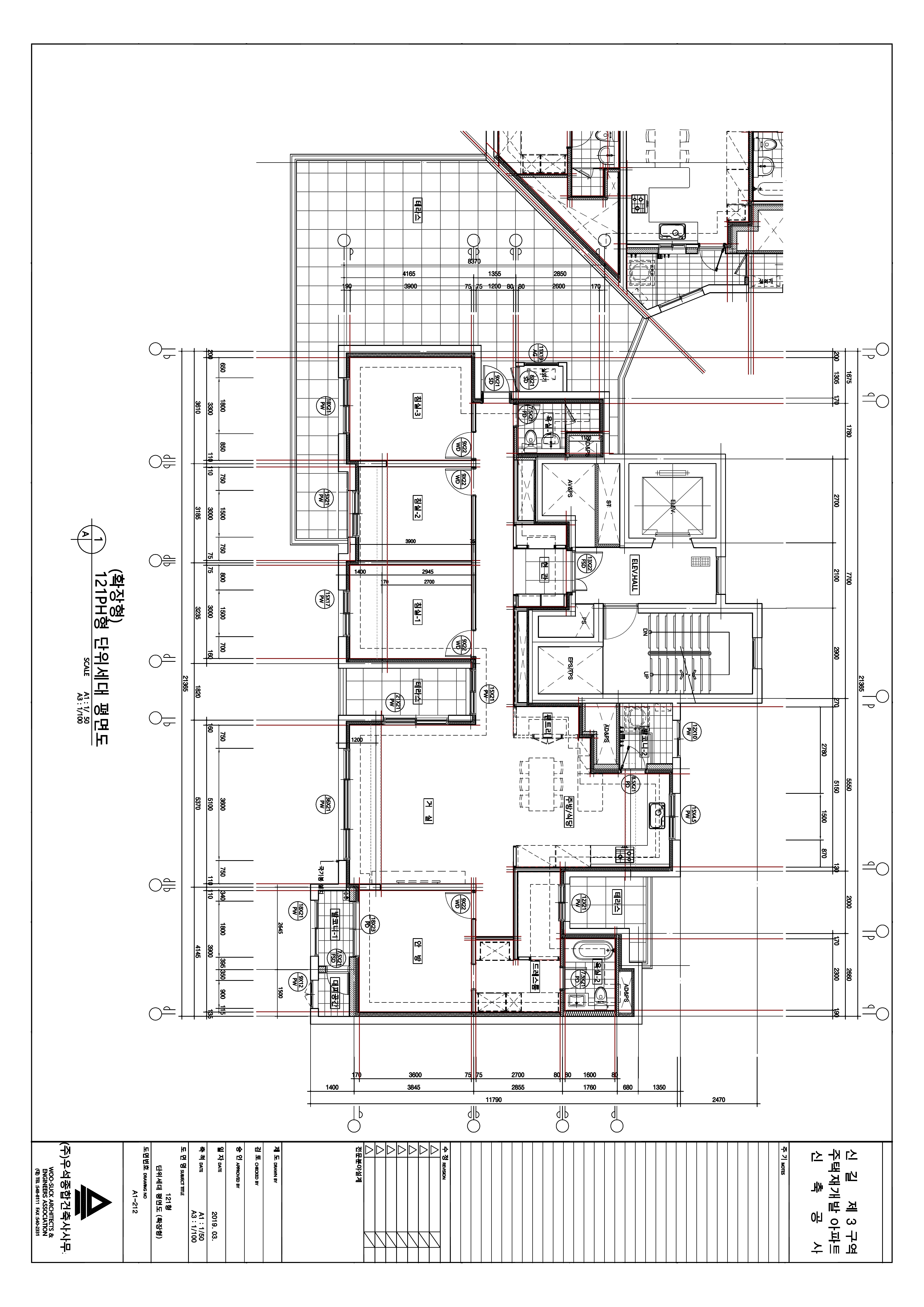
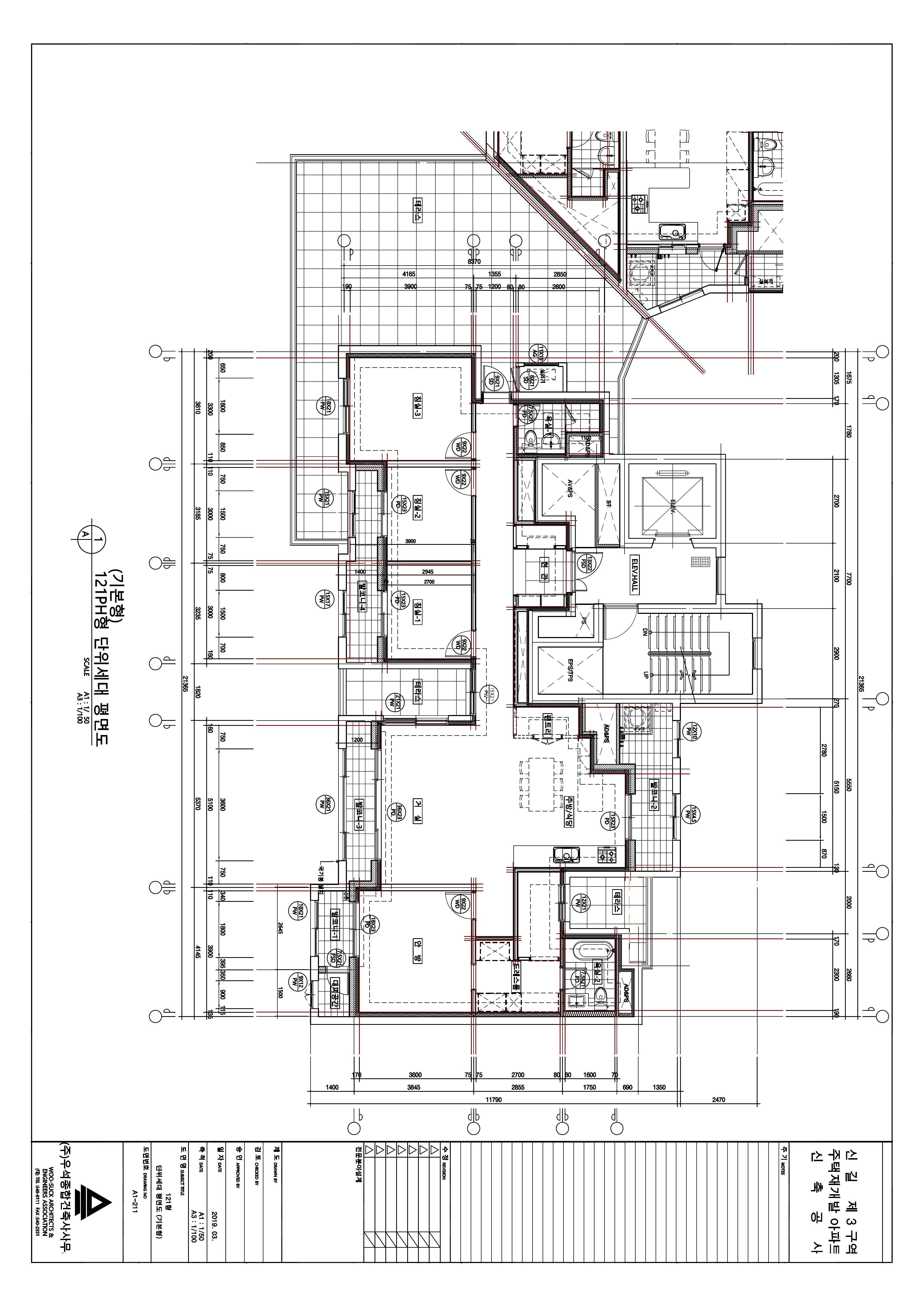
20190604 사업시행계획(경미한)변경 - 121

20190604 사업시행계획(경미한)변경 - 121
공급면적 (㎡) 168.9082
사업시행인가(변경)일자 2019-06-04
형별 121
세대수 3
전용면적 (㎡) 121.9757
공용면적 (㎡) 46.9325

단위세대평면도 이미지

단위세대평면도 이미지

20190604 사업시행계획(경미한)변경 - 59A

20190604 사업시행계획(경미한)변경 - 59A
공급면적 (㎡) 82.5702
사업시행인가(변경)일자 2019-06-04
형별 59A
세대수 198
전용면적 (㎡) 59.8635
공용면적 (㎡) 22.7067

단위세대평면도 이미지

단위세대평면도 이미지

20190604 사업시행계획(경미한)변경 - 59B

20190604 사업시행계획(경미한)변경 - 59B
공급면적 (㎡) 82.4043
사업시행인가(변경)일자 2019-06-04
형별 59B
세대수 46
전용면적 (㎡) 59.8995
공용면적 (㎡) 22.5048

단위세대평면도 이미지

단위세대평면도 이미지

20190604 사업시행계획(경미한)변경 - 59C

20190604 사업시행계획(경미한)변경 - 59C
공급면적 (㎡) 82.3765
사업시행인가(변경)일자 2019-06-04
형별 59C
세대수 22
전용면적 (㎡) 59.8943
공용면적 (㎡) 22.4822

단위세대평면도 이미지

단위세대평면도 이미지

20190604 사업시행계획(경미한)변경 - 59D

20190604 사업시행계획(경미한)변경 - 59D
공급면적 (㎡) 82.6744
사업시행인가(변경)일자 2019-06-04
형별 59D
세대수 22
전용면적 (㎡) 59.6879
공용면적 (㎡) 22.9865

단위세대평면도 이미지

단위세대평면도 이미지

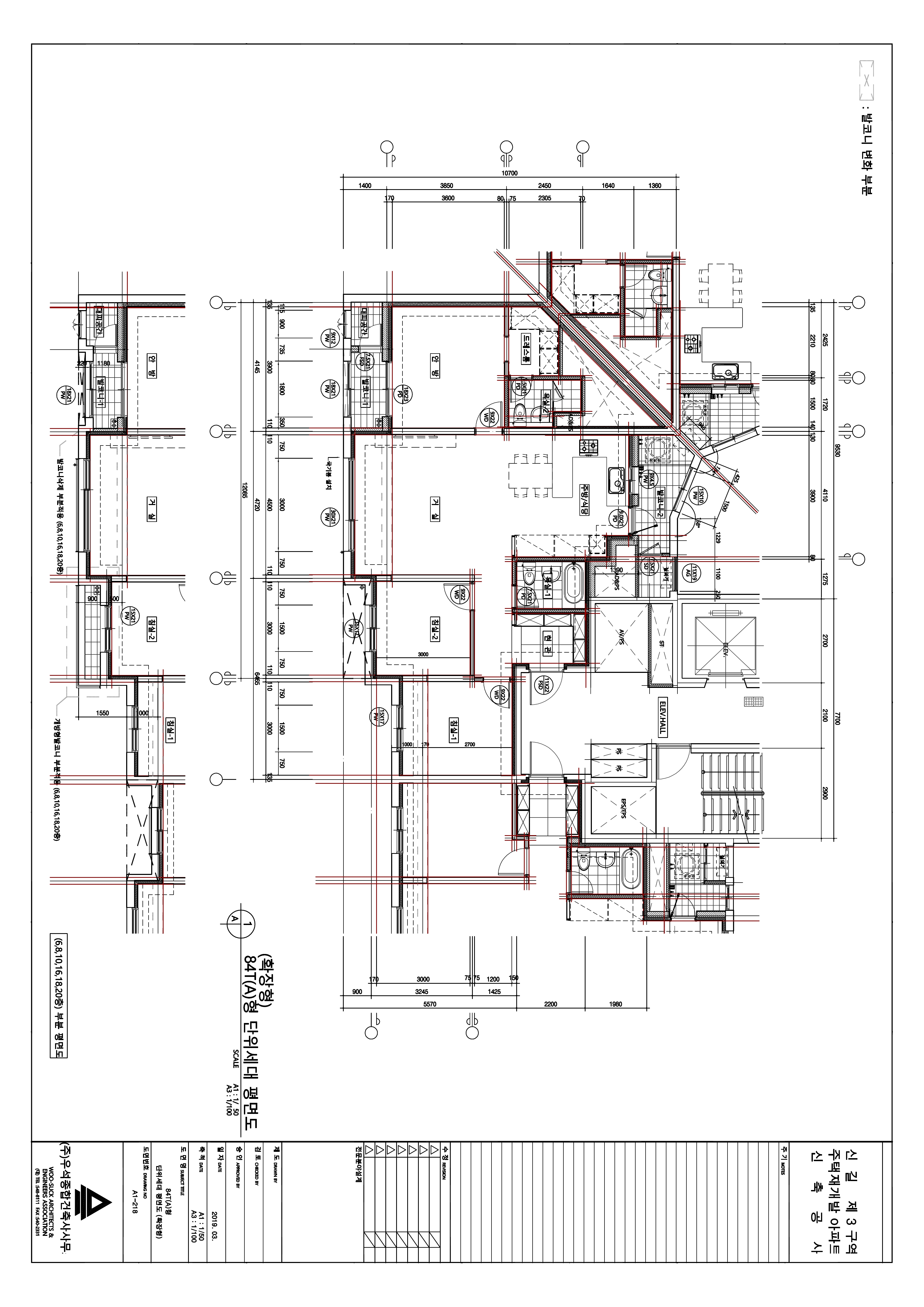
20190604 사업시행계획(경미한)변경 - 84TA

20190604 사업시행계획(경미한)변경 - 84TA
공급면적 (㎡) 116.3186
사업시행인가(변경)일자 2019-06-04
형별 84TA
세대수 163
전용면적 (㎡) 84.9005
공용면적 (㎡) 31.4181

단위세대평면도 이미지

단위세대평면도 이미지

20190604 사업시행계획(경미한)변경 - 84TB

20190604 사업시행계획(경미한)변경 - 84TB
공급면적 (㎡) 115.8386
사업시행인가(변경)일자 2019-06-04
형별 84TB
세대수 166
전용면적 (㎡) 84.9626
공용면적 (㎡) 30.8760

단위세대평면도 이미지

단위세대평면도 이미지

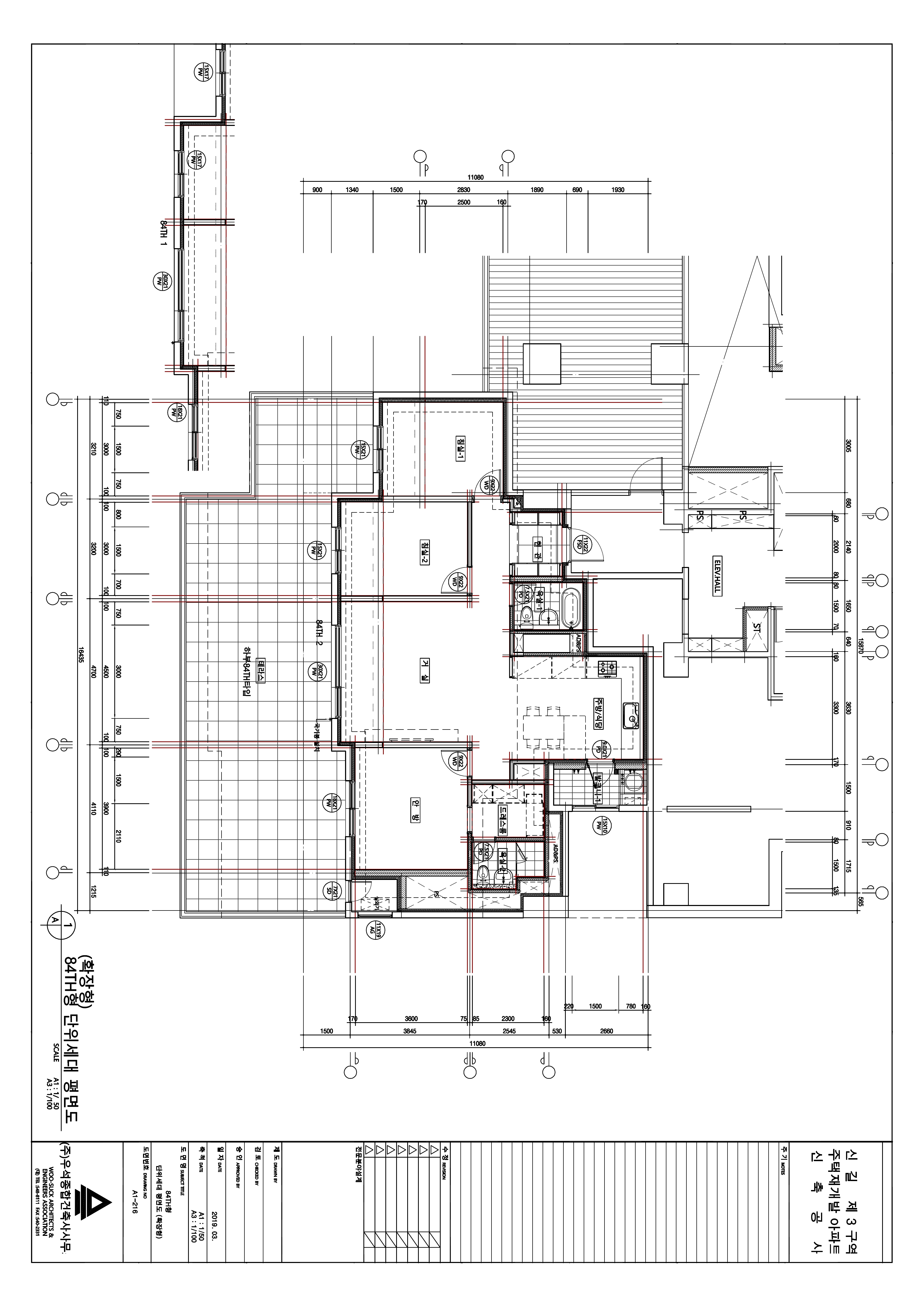
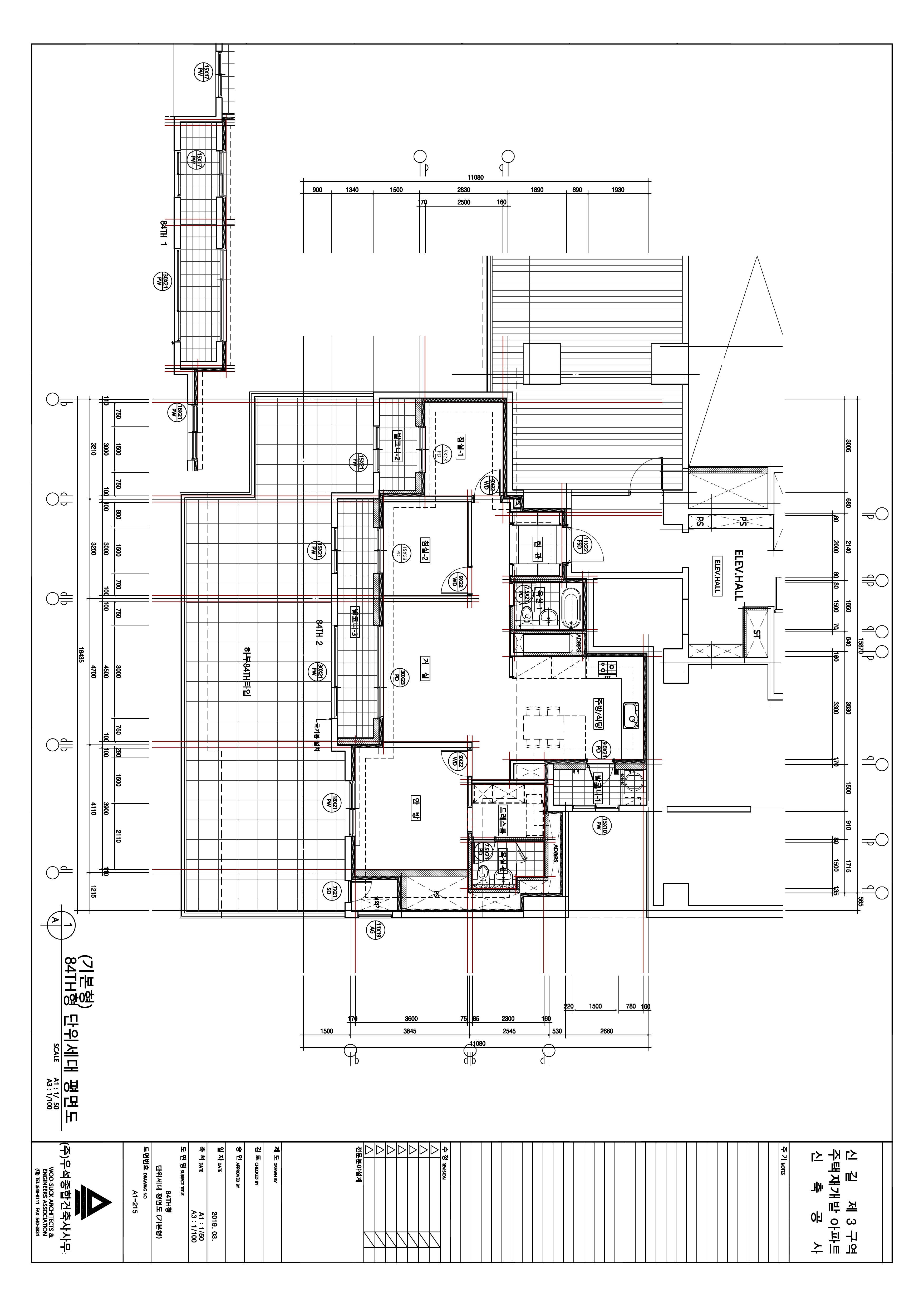
20190604 사업시행계획(경미한)변경 - 84TH

20190604 사업시행계획(경미한)변경 - 84TH
공급면적 (㎡) 116.9126
사업시행인가(변경)일자 2019-06-04
형별 84TH(테라스)
세대수 4
전용면적 (㎡) 84.9865
공용면적 (㎡) 31.9261

단위세대평면도 이미지

단위세대평면도 이미지

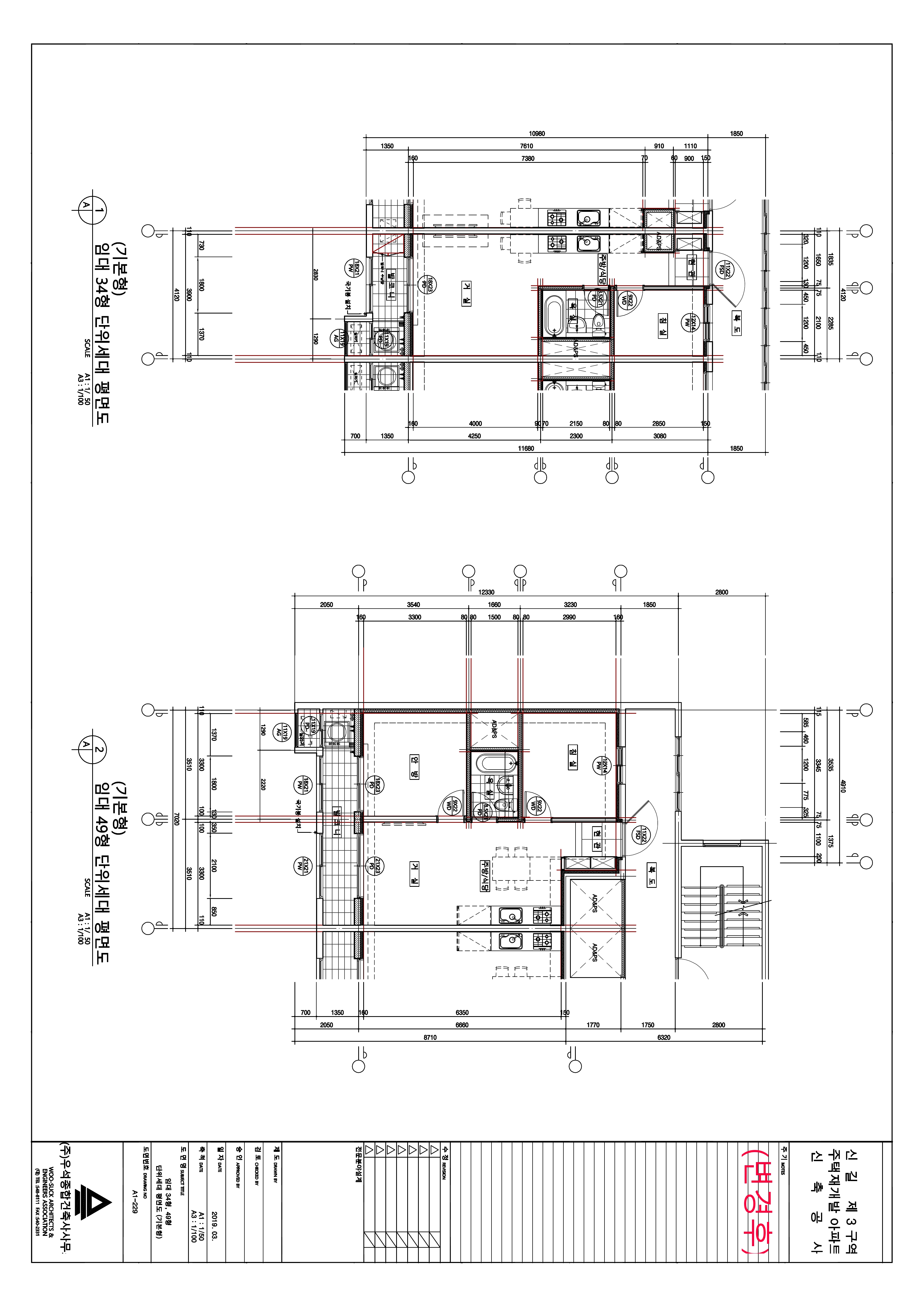
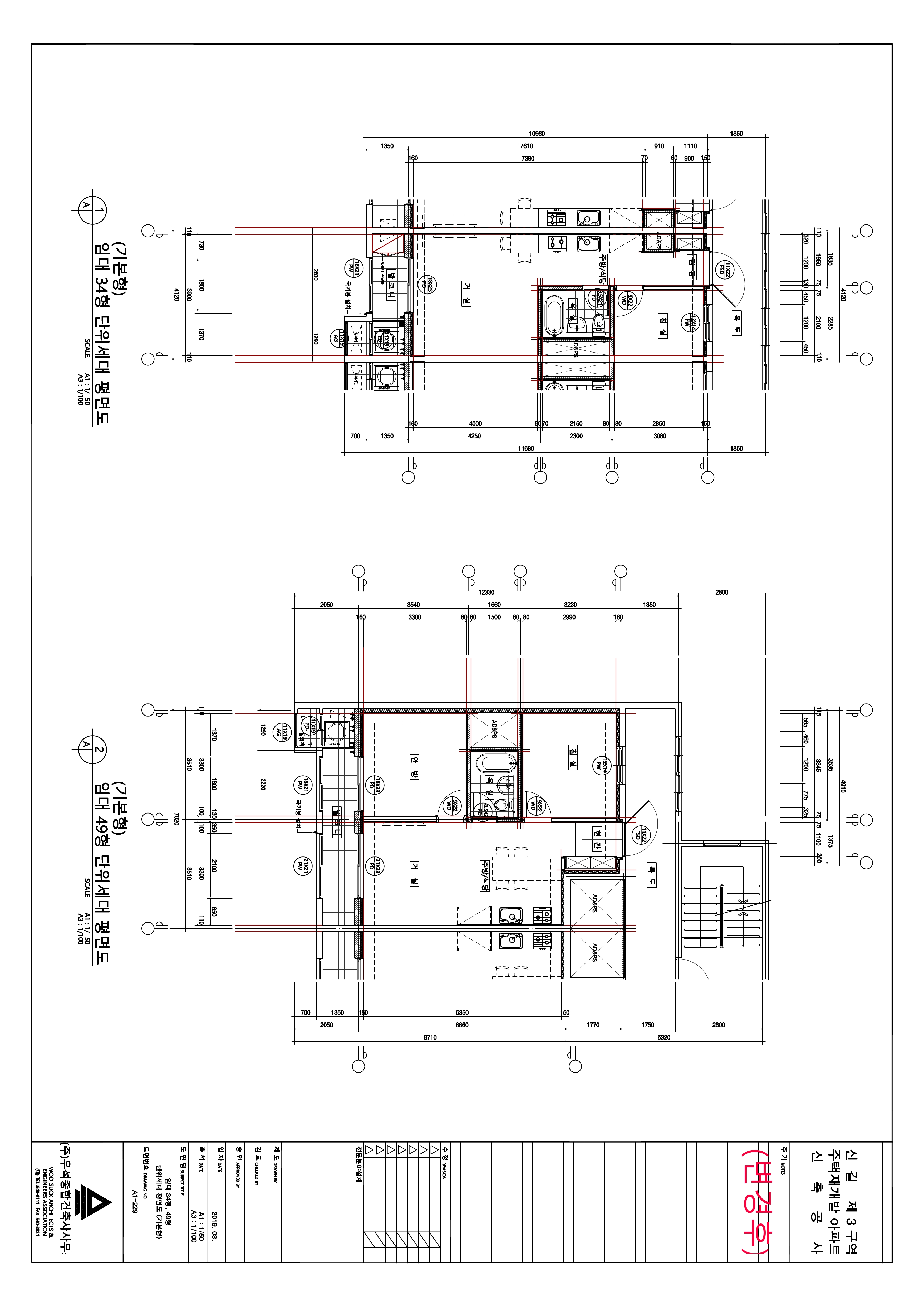
20190604 사업시행계획(경미한)변경 - 임대 34

20190604 사업시행계획(경미한)변경 - 임대 34
공급면적 (㎡) 54.6345
사업시행인가(변경)일자 2019-06-04
형별 34
세대수 72
전용면적 (㎡) 34.5413
공용면적 (㎡) 20.0932

단위세대평면도 이미지

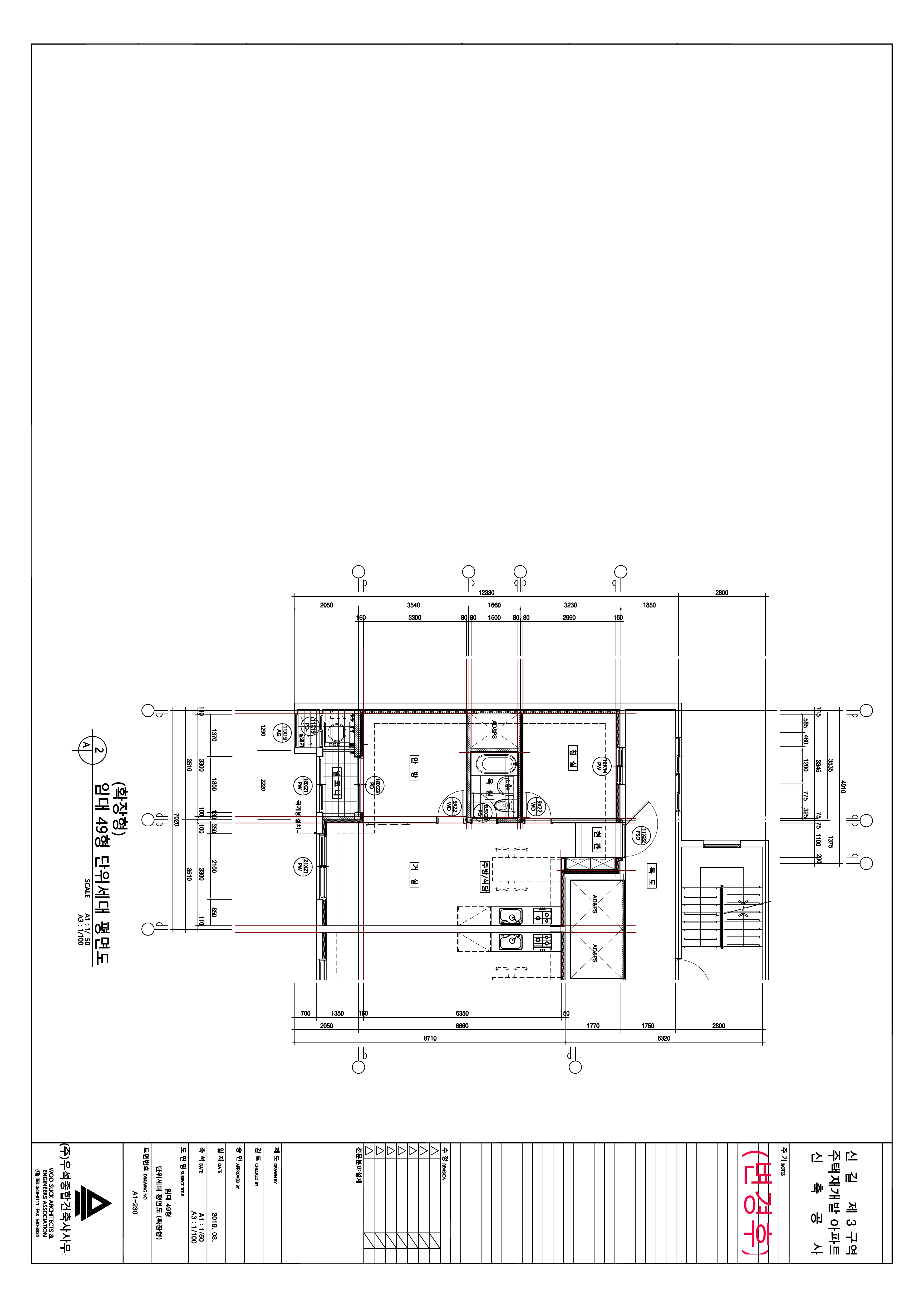
20190604 사업시행계획(경미한)변경 - 임대 49

20190604 사업시행계획(경미한)변경 - 임대 49
공급면적 (㎡) 78.2295
사업시행인가(변경)일자 2019-06-04
형별 49
세대수 62
전용면적 (㎡) 49.8445
공용면적 (㎡) 28.3850

단위세대평면도 이미지

단위세대평면도 이미지

20190604 사업시행계획(경미한)변경 - 임대 57

20190604 사업시행계획(경미한)변경 - 임대 57
공급면적 (㎡) 91.0633
사업시행인가(변경)일자 2019-06-04
형별 57
세대수 16
전용면적 (㎡) 57.8347
공용면적 (㎡) 33.2286

단위세대평면도 이미지

단위세대평면도 이미지

사업추진 단계별
공개자료 조회

툴팁 아이콘
원하시는 사업 추진단계에 등록된 자료들을 조회해 보실 수 있습니다.