단위세대평면도
정비사업 추진과정을 유리알처럼 투명하게 공개

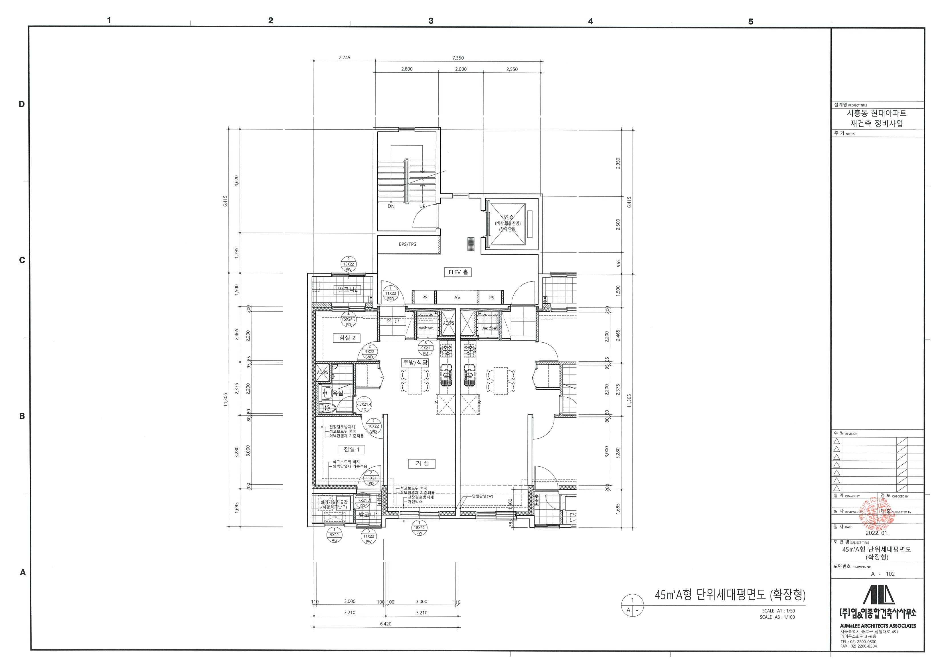
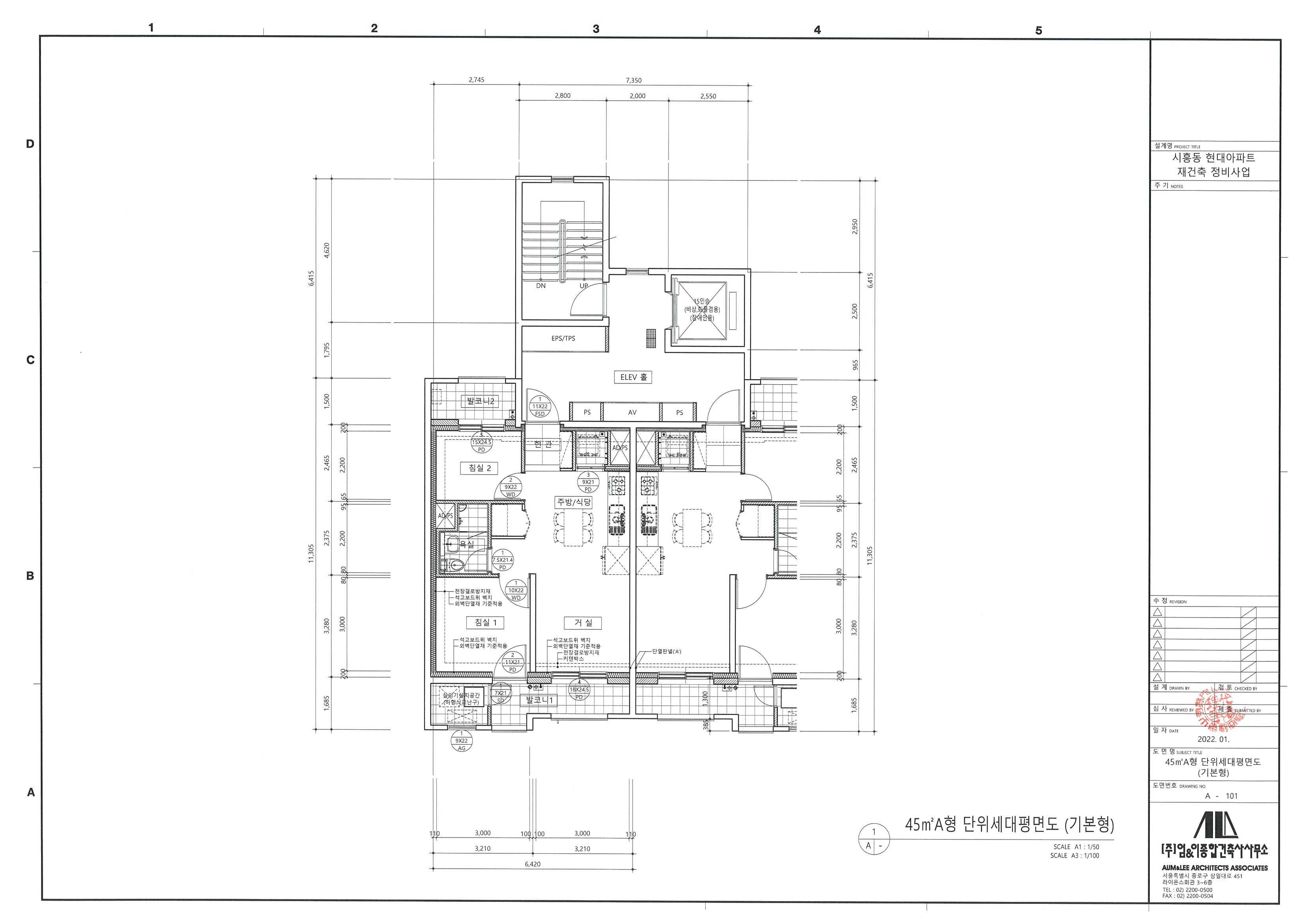
시흥동 현대아파트 재건축정비사업 단위세대평면도(45형)

시흥동 현대아파트 재건축정비사업 단위세대평면도(45형)
공급면적 (㎡) 62.05
사업시행인가(변경)일자 2022-02-28
형별 45
세대수 18
전용면적 (㎡) 45.99
공용면적 (㎡) 16.06

단위세대평면도 이미지

단위세대평면도 이미지

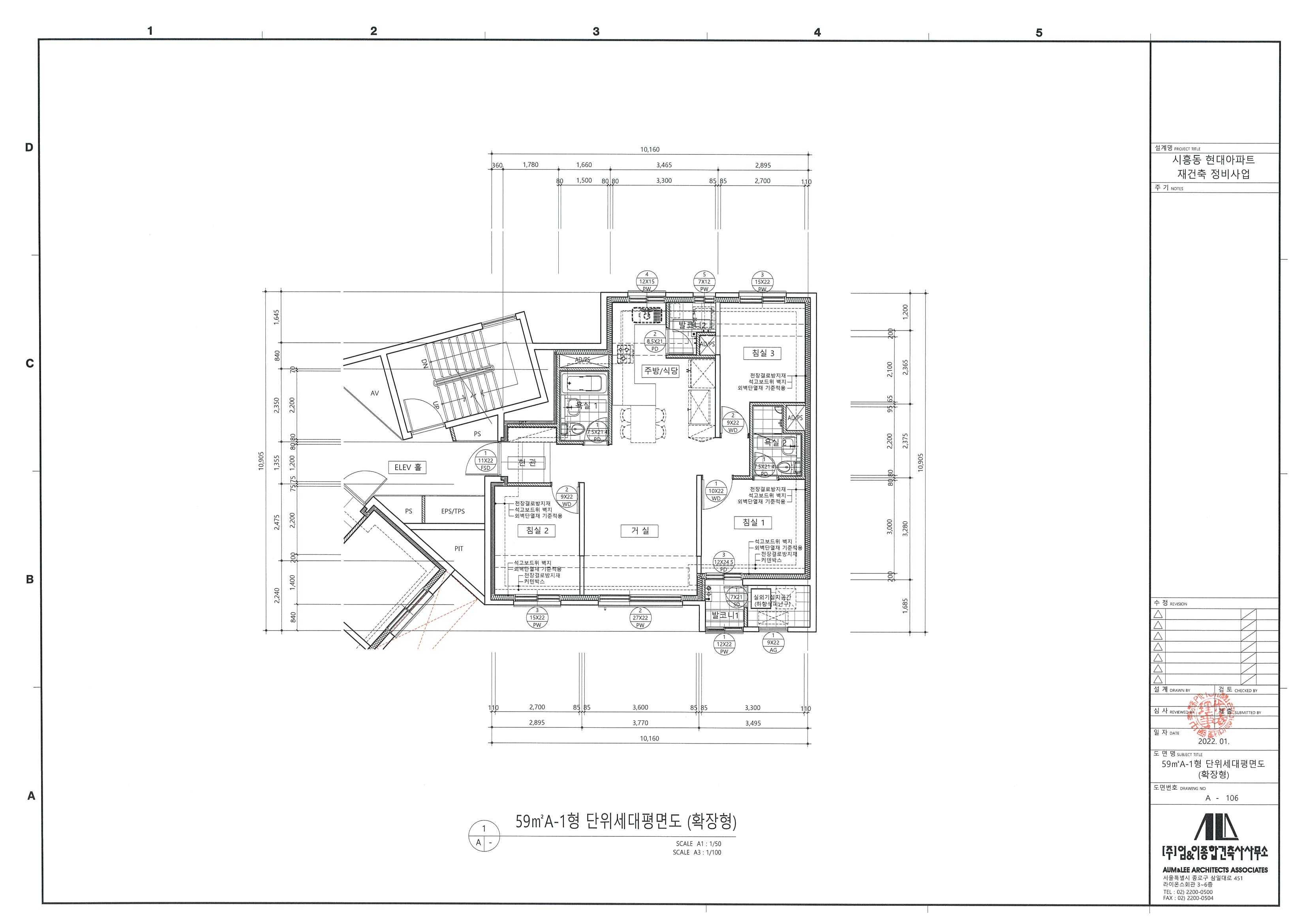
시흥동 현대아파트 재건축정비사업 단위세대평면도(59A-1형)

시흥동 현대아파트 재건축정비사업 단위세대평면도(59A-1형)
공급면적 (㎡) 80.89
사업시행인가(변경)일자 2022-02-28
형별 59A-1
세대수 21
전용면적 (㎡) 59.96
공용면적 (㎡) 20.93

단위세대평면도 이미지

단위세대평면도 이미지

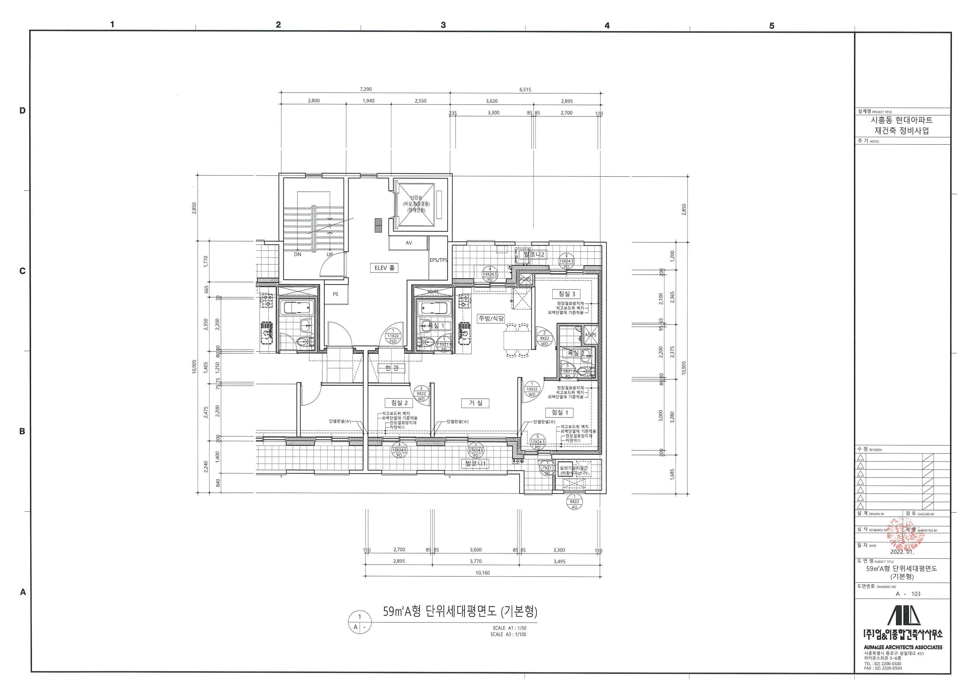
시흥동 현대아파트 재건축정비사업 단위세대평면도(59A형)

시흥동 현대아파트 재건축정비사업 단위세대평면도(59A형)
공급면적 (㎡) 81.14
사업시행인가(변경)일자 2022-02-28
형별 59A
세대수 67
전용면적 (㎡) 59.96
공용면적 (㎡) 21.18

단위세대평면도 이미지

단위세대평면도 이미지

시흥동 현대아파트 재건축정비사업 단위세대평면도(59B형)

시흥동 현대아파트 재건축정비사업 단위세대평면도(59B형)
공급면적 (㎡) 81.93
사업시행인가(변경)일자 2022-02-28
형별 59B
세대수 14
전용면적 (㎡) 59.90
공용면적 (㎡) 22.03

단위세대평면도 이미지

단위세대평면도 이미지

시흥동 현대아파트 재건축정비사업 단위세대평면도(74A-1형)

시흥동 현대아파트 재건축정비사업 단위세대평면도(74A-1형)
공급면적 (㎡) 100.98
사업시행인가(변경)일자 2022-02-28
형별 74A-1
세대수 12
전용면적 (㎡) 74.97
공용면적 (㎡) 26.01

단위세대평면도 이미지

단위세대평면도 이미지

시흥동 현대아파트 재건축정비사업 단위세대평면도(74A형)

시흥동 현대아파트 재건축정비사업 단위세대평면도(74A형)
공급면적 (㎡) 101.00
사업시행인가(변경)일자 2022-02-28
형별 74A
세대수 78
전용면적 (㎡) 74.96
공용면적 (㎡) 26.04

단위세대평면도 이미지

단위세대평면도 이미지

시흥동 현대아파트 재건축정비사업 단위세대평면도(74B형)

시흥동 현대아파트 재건축정비사업 단위세대평면도(74B형)
공급면적 (㎡) 101.68
사업시행인가(변경)일자 2022-02-28
형별 74B
세대수 9
전용면적 (㎡) 74.98
공용면적 (㎡) 26.70

단위세대평면도 이미지

단위세대평면도 이미지

사업추진 단계별
공개자료 조회

툴팁 아이콘
원하시는 사업 추진단계에 등록된 자료들을 조회해 보실 수 있습니다.