단위세대평면도
정비사업 추진과정을 유리알처럼 투명하게 공개

71A 단위세대평면도

71A 단위세대평면도
공급면적 (㎡) 126.06
사업시행인가(변경)일자 2010-03-30
형별 27
세대수 24
전용면적 (㎡) 71.09
공용면적 (㎡) 36.05

단위세대평면도 이미지

84A 단위세대평면도

84A 단위세대평면도
공급면적 (㎡) 150.54
사업시행인가(변경)일자 2010-03-30
형별 32
세대수 12
전용면적 (㎡) 84.97
공용면적 (㎡) 43.09

단위세대평면도 이미지

84B 단위세대평면도

84B 단위세대평면도
공급면적 (㎡) 150.87
사업시행인가(변경)일자 2010-03-30
형별 32
세대수 14
전용면적 (㎡) 84.98
공용면적 (㎡) 43.09

단위세대평면도 이미지

84C 단위세대평면도

84C 단위세대평면도
공급면적 (㎡) 151.41
사업시행인가(변경)일자 2010-03-30
형별 32
세대수 14
전용면적 (㎡) 84.99
공용면적 (㎡) 43.10

단위세대평면도 이미지

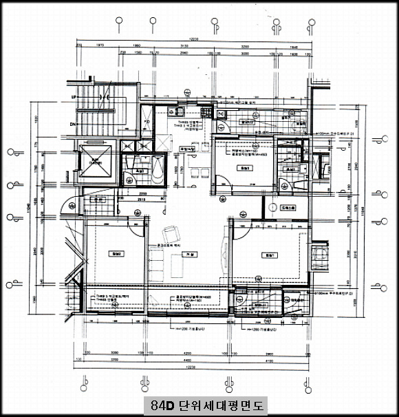
84D-1 단위세대평면도

84D-1 단위세대평면도
공급면적 (㎡) 150.61
사업시행인가(변경)일자 2010-03-30
형별 32
세대수 1
전용면적 (㎡) 84.98
공용면적 (㎡) 43.09

단위세대평면도 이미지

84D-1 단위세대평면도

84D-1 단위세대평면도
공급면적 (㎡) 150.61
사업시행인가(변경)일자 2010-03-30
형별 32
세대수 10
전용면적 (㎡) 84.98
공용면적 (㎡) 43.09

단위세대평면도 이미지

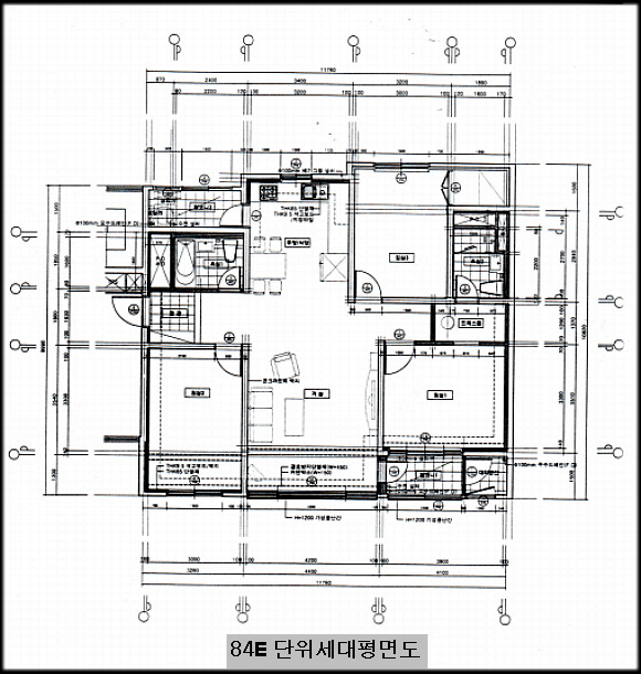
84E 단위세대평면도

84E 단위세대평면도
공급면적 (㎡) 150.62
사업시행인가(변경)일자 2010-03-30
형별 32
세대수 7
전용면적 (㎡) 84.94
공용면적 (㎡) 43.07

단위세대평면도 이미지

사업추진 단계별
공개자료 조회

툴팁 아이콘
원하시는 사업 추진단계에 등록된 자료들을 조회해 보실 수 있습니다.