단위세대평면도
정비사업 추진과정을 유리알처럼 투명하게 공개

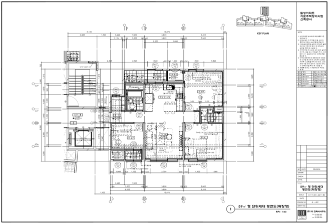
칠성아파트 가로주택정비사업조합 단위세대평면도

칠성아파트 가로주택정비사업조합 단위세대평면도
공급면적 (㎡) 59형
사업시행인가(변경)일자 2017-08-09
형별 59형
세대수 13
전용면적 (㎡) 59.2505
공용면적 (㎡) 67.5032

단위세대평면도 이미지

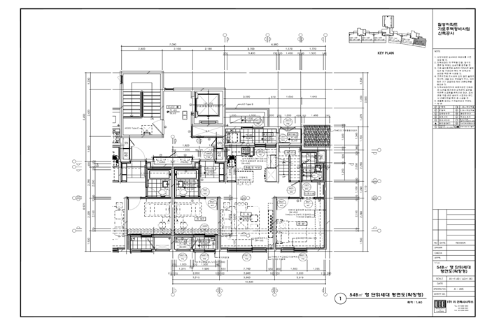
칠성아파트 가로주택정비사업조합 단위세대평면도54 A형

칠성아파트 가로주택정비사업조합 단위세대평면도54 A형
공급면적 (㎡) 54
사업시행인가(변경)일자 2017-08-09
형별 54 A형
세대수 4
전용면적 (㎡) 54.8420
공용면적 (㎡) 62.4806

단위세대평면도 이미지

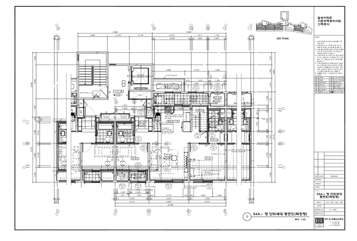
칠성아파트 가로주택정비사업조합 단위세대평면도54 B형

칠성아파트 가로주택정비사업조합 단위세대평면도54 B형
공급면적 (㎡) 54
사업시행인가(변경)일자 2017-08-09
형별 54
세대수 1
전용면적 (㎡) 54.8420
공용면적 (㎡) 62.4806

단위세대평면도 이미지

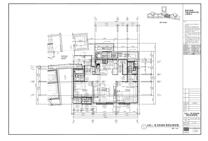
칠성아파트 가로주택정비사업조합 단위세대평면도54 C형

칠성아파트 가로주택정비사업조합 단위세대평면도54 C형
공급면적 (㎡) 54
사업시행인가(변경)일자 2017-08-09
형별 54 A형
세대수 1
전용면적 (㎡) 54.8420
공용면적 (㎡) 62.4806

단위세대평면도 이미지

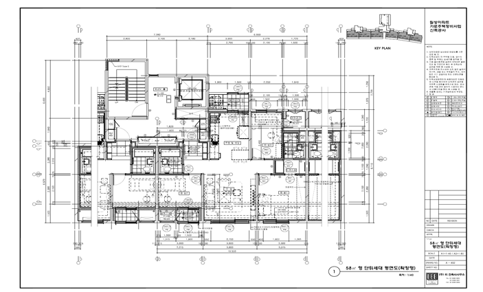
칠성아파트 가로주택정비사업조합 단위세대평면도58형

칠성아파트 가로주택정비사업조합 단위세대평면도58형
공급면적 (㎡) 58형
사업시행인가(변경)일자 2017-08-09
형별 58형
세대수 79
전용면적 (㎡) 58.0820
공용면적 (㎡) 66.2297

단위세대평면도 이미지

사업추진 단계별
공개자료 조회

툴팁 아이콘
원하시는 사업 추진단계에 등록된 자료들을 조회해 보실 수 있습니다.