단위세대평면도
정비사업 추진과정을 유리알처럼 투명하게 공개

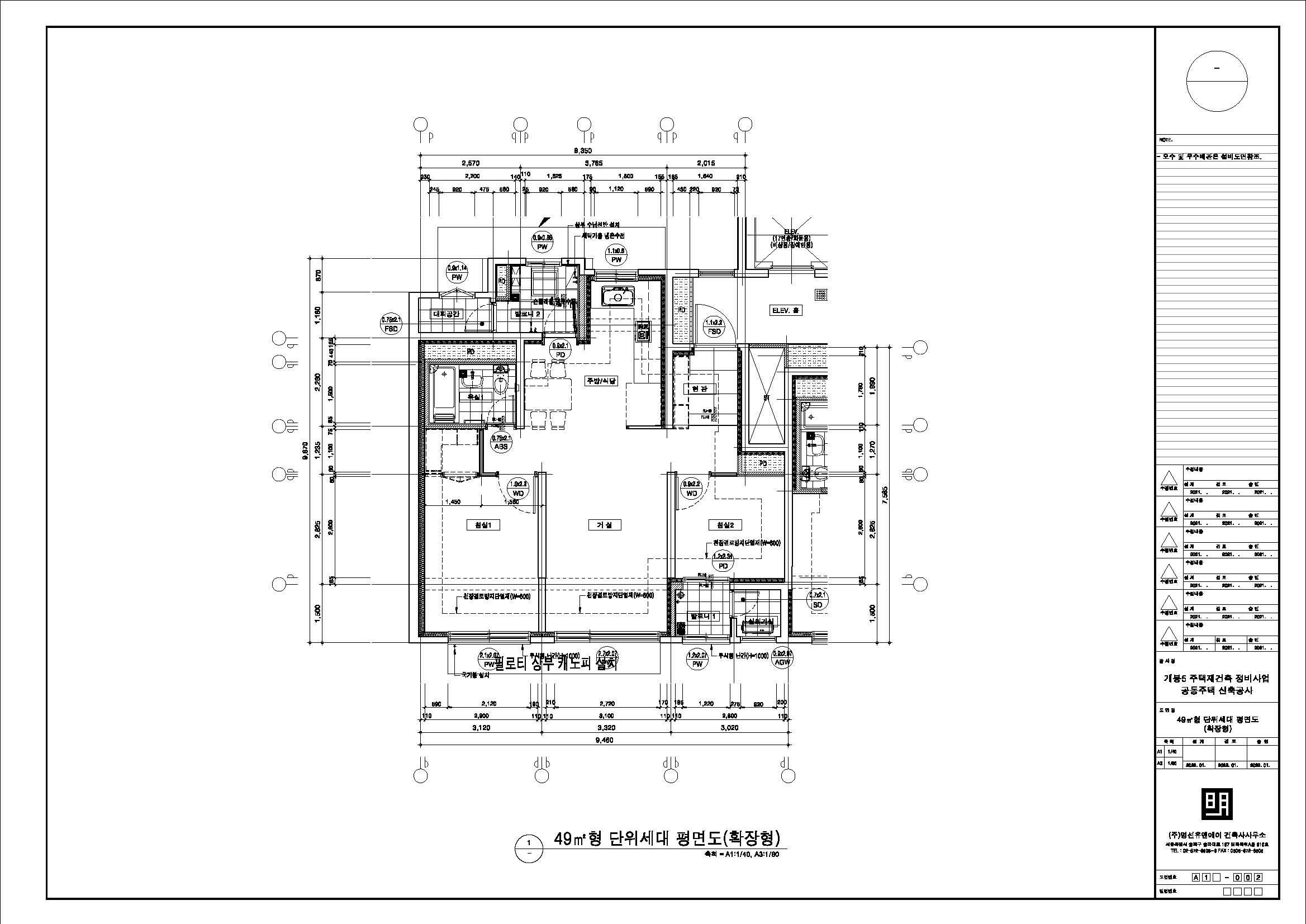
49A 평면동

49A 평면동
공급면적 (㎡) 68.147
사업시행인가(변경)일자 2022-04-25
형별 49A
세대수 21
전용면적 (㎡) 49.913
공용면적 (㎡) 18.234

단위세대평면도 이미지

단위세대평면도 이미지

평면도114P

평면도114P
공급면적 (㎡) 157.132
사업시행인가(변경)일자 2022-04-25
형별 114P
세대수 2
전용면적 (㎡) 114.694
공용면적 (㎡) 42.438

단위세대평면도 이미지

단위세대평면도 이미지

평면도59A

평면도59A
공급면적 (㎡) 82.127
사업시행인가(변경)일자 2022-04-25
형별 59A
세대수 106
전용면적 (㎡) 59.927
공용면적 (㎡) 22.200

단위세대평면도 이미지

단위세대평면도 이미지

평면도59B

평면도59B
공급면적 (㎡) 82.039
사업시행인가(변경)일자 2022-04-25
형별 59B
세대수 64
전용면적 (㎡) 59.611
공용면적 (㎡) 22.428

단위세대평면도 이미지

단위세대평면도 이미지

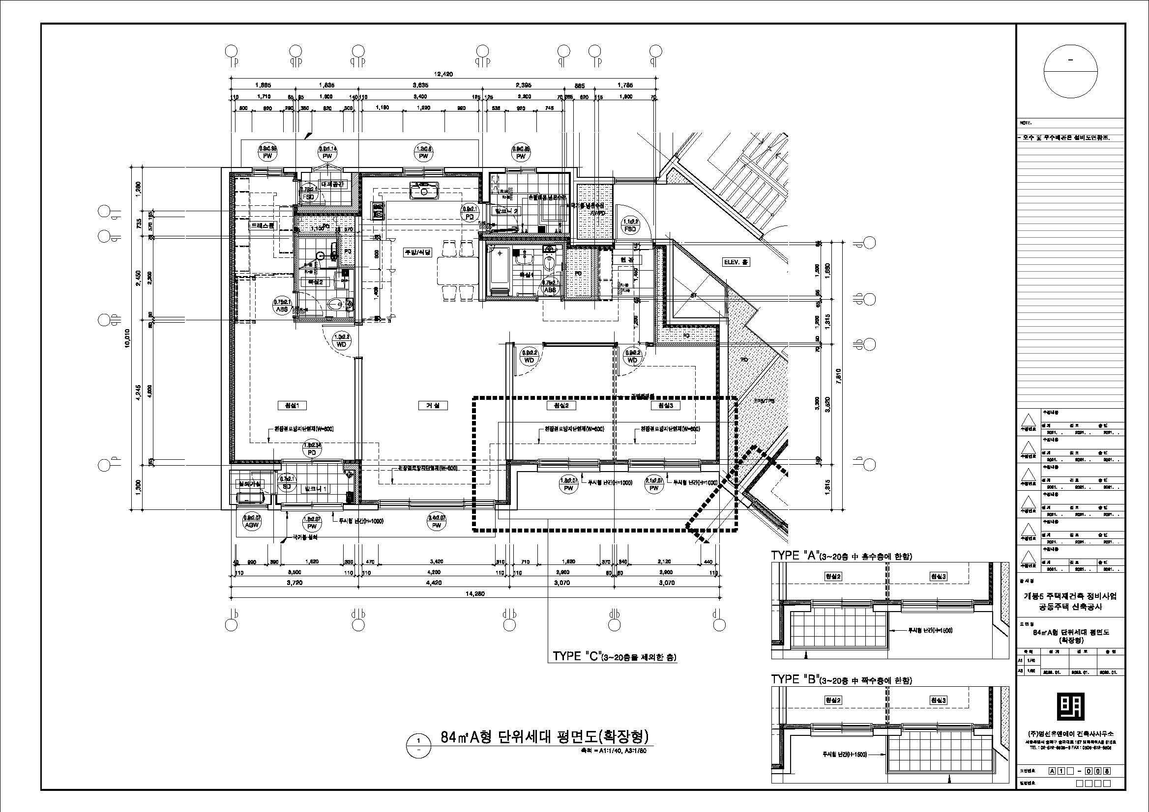
평면도84A

평면도84A
공급면적 (㎡) 114.312
사업시행인가(변경)일자 2022-04-25
형별 84A
세대수 59
전용면적 (㎡) 84.787
공용면적 (㎡) 29.525

단위세대평면도 이미지

단위세대평면도 이미지

평면도84B

평면도84B
공급면적 (㎡) 114.361
사업시행인가(변경)일자 2022-04-25
형별 84B
세대수 42
전용면적 (㎡) 84.614
공용면적 (㎡) 29.747

단위세대평면도 이미지

단위세대평면도 이미지

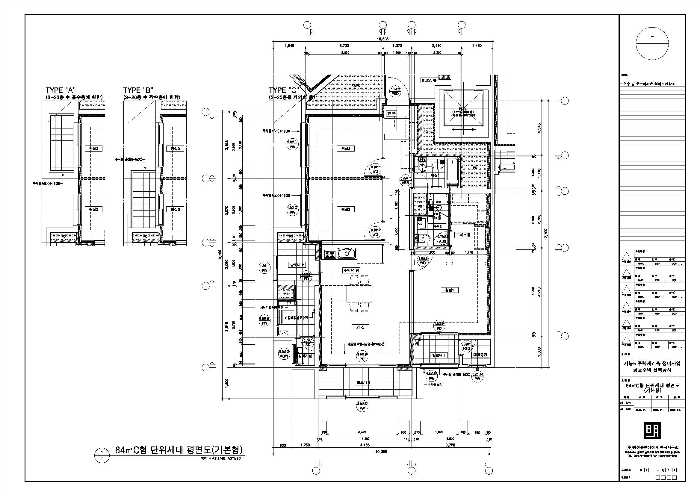
평면도84C

평면도84C
공급면적 (㎡) 84.879
사업시행인가(변경)일자 2022-04-25
형별 84C
세대수 20
전용면적 (㎡) 84.879
공용면적 (㎡) 29.930

단위세대평면도 이미지

단위세대평면도 이미지

평면도84P

평면도84P
공급면적 (㎡) 117.974
사업시행인가(변경)일자 2022-04-25
형별 84P
세대수 3
전용면적 (㎡) 84.730
공용면적 (㎡) 33.244

단위세대평면도 이미지

단위세대평면도 이미지

사업추진 단계별
공개자료 조회

툴팁 아이콘
원하시는 사업 추진단계에 등록된 자료들을 조회해 보실 수 있습니다.