단위세대평면도
정비사업 추진과정을 유리알처럼 투명하게 공개

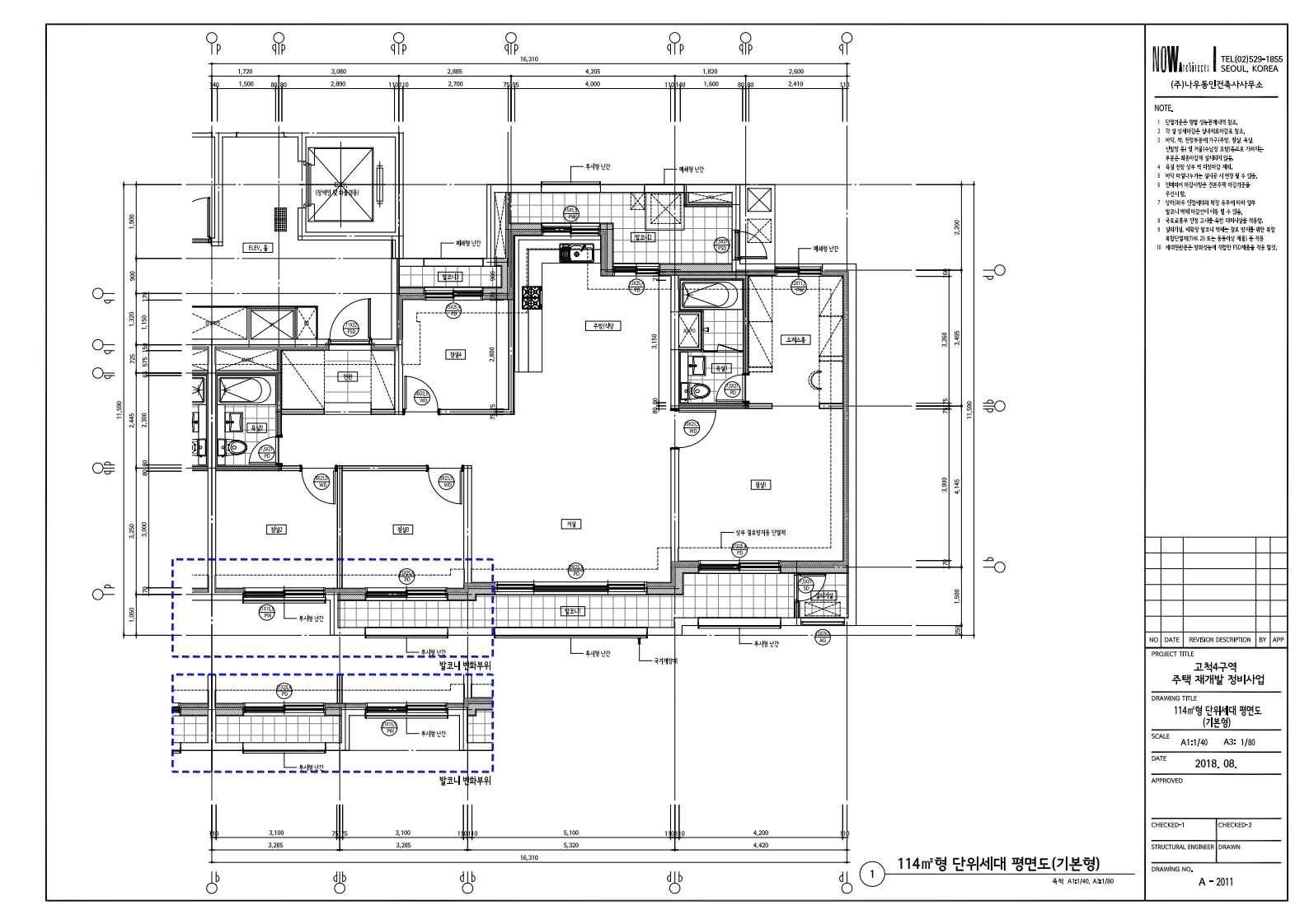
단위세대평면도-114㎡형

단위세대평면도-114㎡형
공급면적 (㎡) 145.06
사업시행인가(변경)일자 2018-12-20
형별 114㎡
세대수 40
전용면적 (㎡) 114.93
공용면적 (㎡) 30.13

단위세대평면도 이미지

단위세대평면도 이미지

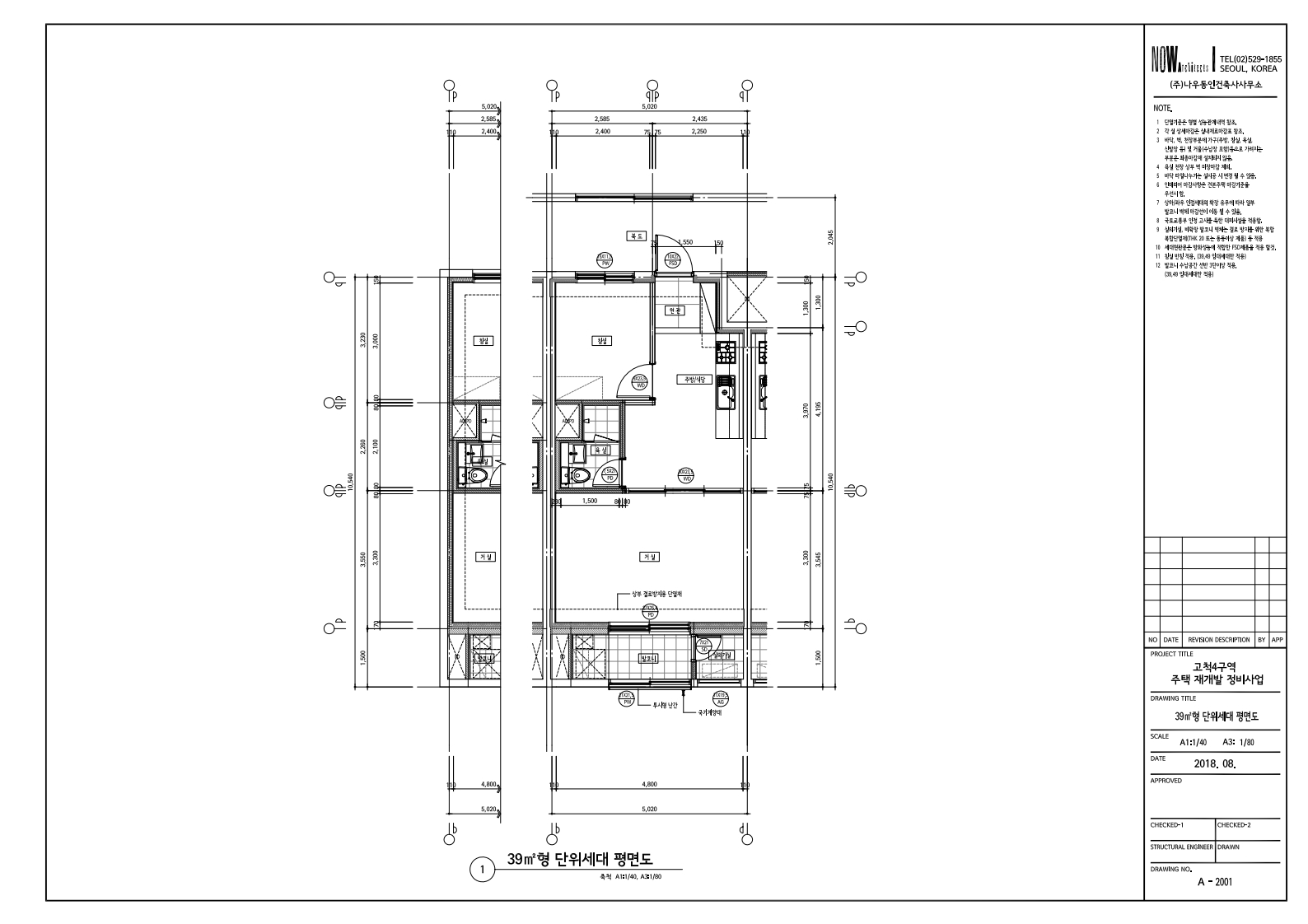
단위세대평면도-39㎡형

단위세대평면도-39㎡형
공급면적 (㎡) 60.45
사업시행인가(변경)일자 2018-12-20
형별 39㎡
세대수 58세대
전용면적 (㎡) 39.98
공용면적 (㎡) 20.47

단위세대평면도 이미지

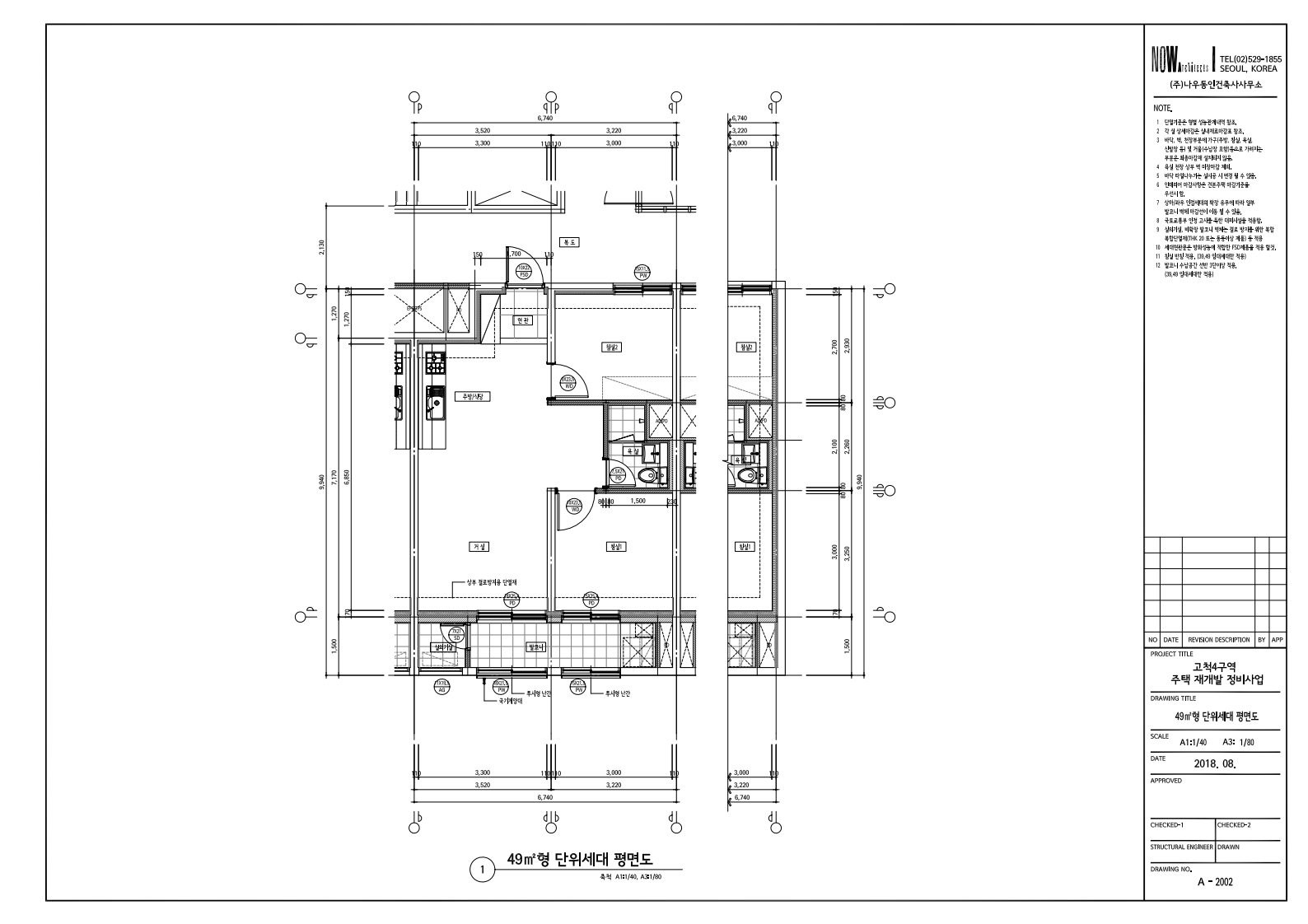
단위세대평면도-49㎡형

단위세대평면도-49㎡형
공급면적 (㎡) 75.00
사업시행인가(변경)일자 2018-12-20
형별 49㎡
세대수 90
전용면적 (㎡) 49.95
공용면적 (㎡) 25.05

단위세대평면도 이미지

단위세대평면도-59A㎡형

단위세대평면도-59A㎡형
공급면적 (㎡) 83.22
사업시행인가(변경)일자 2018-12-20
형별 59A㎡
세대수 438
전용면적 (㎡) 59.99
공용면적 (㎡) 23.23

단위세대평면도 이미지

단위세대평면도 이미지

단위세대평면도-59B㎡형

단위세대평면도-59B㎡형
공급면적 (㎡) 84.18
사업시행인가(변경)일자 2018-12-20
형별 59B㎡
세대수 87
전용면적 (㎡) 59.96
공용면적 (㎡) 24.22

단위세대평면도 이미지

단위세대평면도 이미지

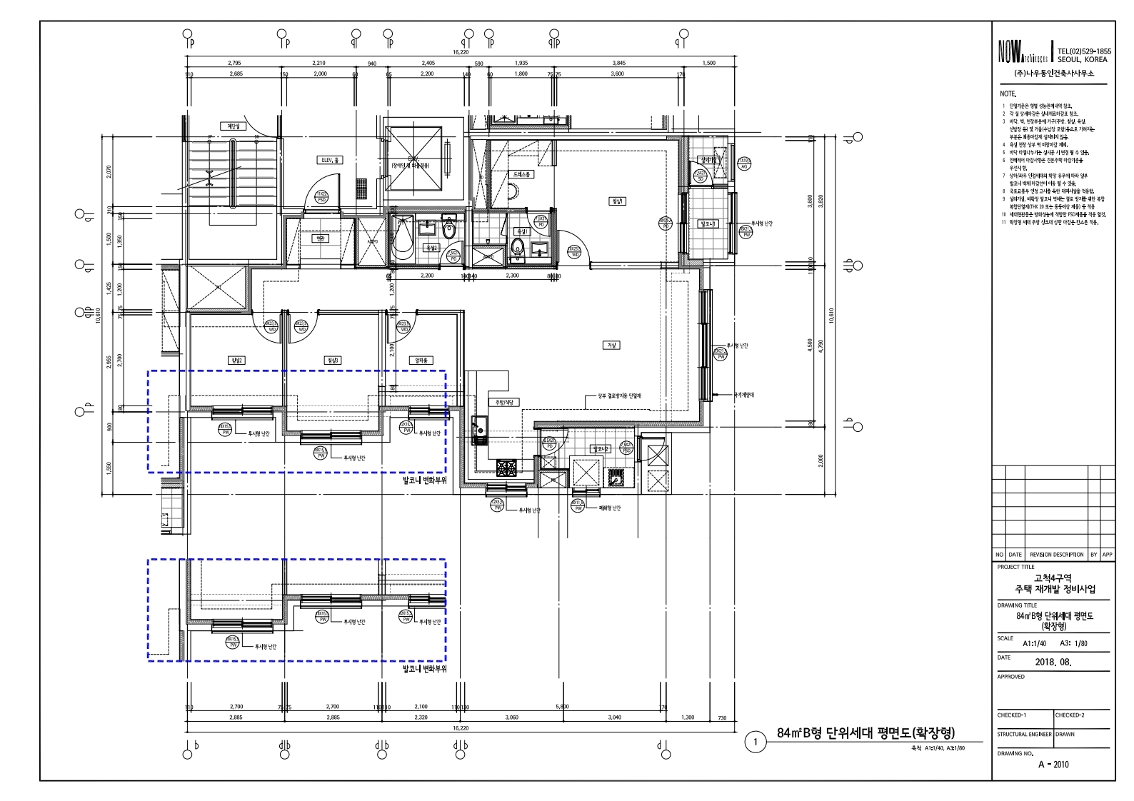
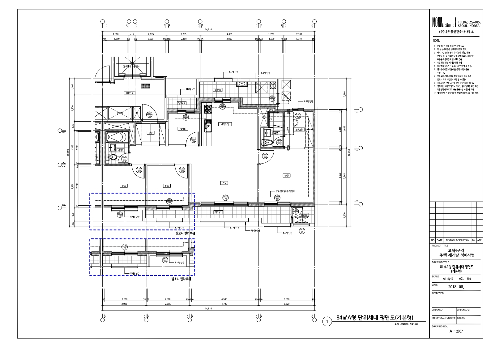
단위세대평면도-84A㎡형

단위세대평면도-84A㎡형
공급면적 (㎡) 111.17
사업시행인가(변경)일자 2018-12-20
형별 84A㎡
세대수 246
전용면적 (㎡) 84.95
공용면적 (㎡) 26.22

단위세대평면도 이미지

단위세대평면도 이미지

단위세대평면도-84B㎡형

단위세대평면도-84B㎡형
공급면적 (㎡) 112.07
사업시행인가(변경)일자 2018-12-20
형별 84B㎡형
세대수 24
전용면적 (㎡) 84.98
공용면적 (㎡) 27.09

단위세대평면도 이미지

단위세대평면도 이미지

사업추진 단계별
공개자료 조회

툴팁 아이콘
원하시는 사업 추진단계에 등록된 자료들을 조회해 보실 수 있습니다.