단위세대평면도
정비사업 추진과정을 유리알처럼 투명하게 공개

건축시설계획-단위세대평면도 A1타입(사업시행계획인가)

건축시설계획-단위세대평면도 A1타입(사업시행계획인가)
공급면적 (㎡) 74.8932
사업시행인가(변경)일자 2024-03-08
형별 A1
세대수 6
전용면적 (㎡) 59.6713
공용면적 (㎡) 15.2219

단위세대평면도 이미지

단위세대평면도 이미지

건축시설계획-단위세대평면도 A타입(사업시행계획인가)

건축시설계획-단위세대평면도 A타입(사업시행계획인가)
공급면적 (㎡) 74.3888
사업시행인가(변경)일자 2024-03-08
형별 A
세대수 6
전용면적 (㎡) 59.1344
공용면적 (㎡) 15.2544

단위세대평면도 이미지

단위세대평면도 이미지

건축시설계획-단위세대평면도 B타입(사업시행계획인가)

건축시설계획-단위세대평면도 B타입(사업시행계획인가)
공급면적 (㎡) 75.2178
사업시행인가(변경)일자 2024-03-08
형별 B
세대수 12
전용면적 (㎡) 59.7382
공용면적 (㎡) 15.4796

단위세대평면도 이미지

단위세대평면도 이미지

건축시설계획-단위세대평면도 C1타입(사업시행계획인가)

건축시설계획-단위세대평면도 C1타입(사업시행계획인가)
공급면적 (㎡) 76.1133
사업시행인가(변경)일자 2024-03-08
형별 C1
세대수 1
전용면적 (㎡) 59.8594
공용면적 (㎡) 16.2539

단위세대평면도 이미지

단위세대평면도 이미지

건축시설계획-단위세대평면도 C타입(사업시행계획인가)

건축시설계획-단위세대평면도 C타입(사업시행계획인가)
공급면적 (㎡) 76.0010
사업시행인가(변경)일자 2024-03-08
형별 C
세대수 6
전용면적 (㎡) 59.8594
공용면적 (㎡) 16.1416

단위세대평면도 이미지

단위세대평면도 이미지

건축시설계획-단위세대평면도 D타입(사업시행계획인가)

건축시설계획-단위세대평면도 D타입(사업시행계획인가)
공급면적 (㎡) 57.3701
사업시행인가(변경)일자 2024-03-08
형별 D
세대수 7
전용면적 (㎡) 44.5837
공용면적 (㎡) 12.7864

단위세대평면도 이미지

단위세대평면도 이미지

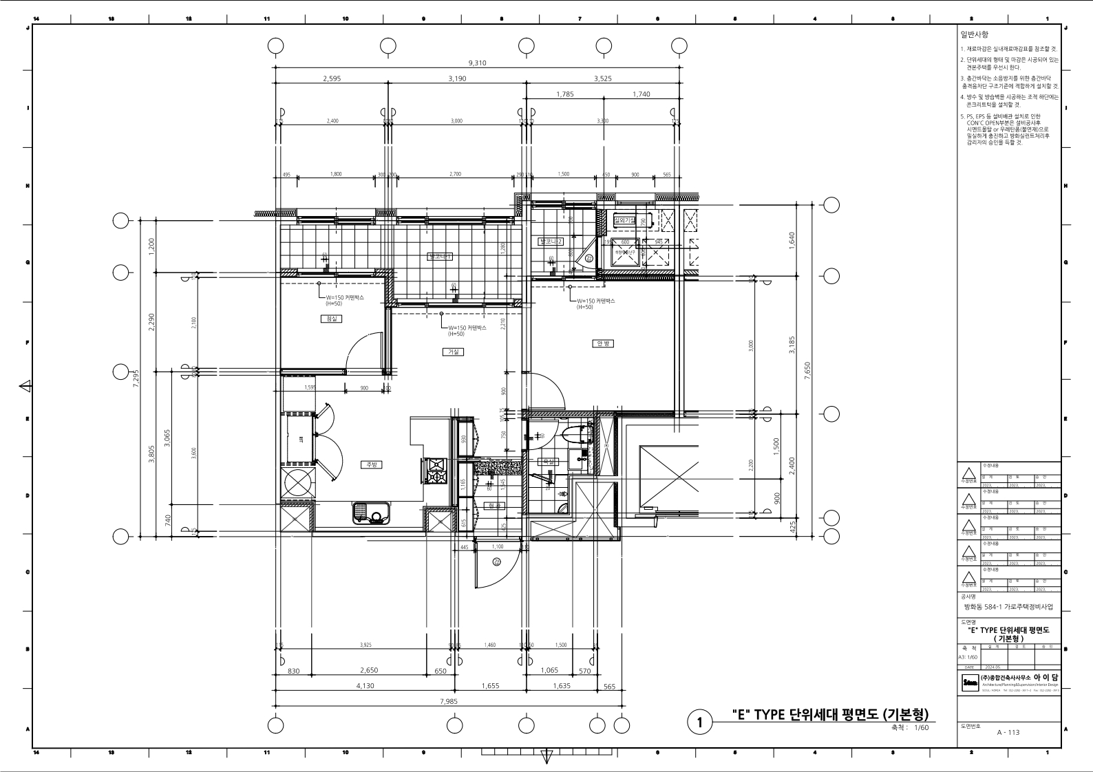
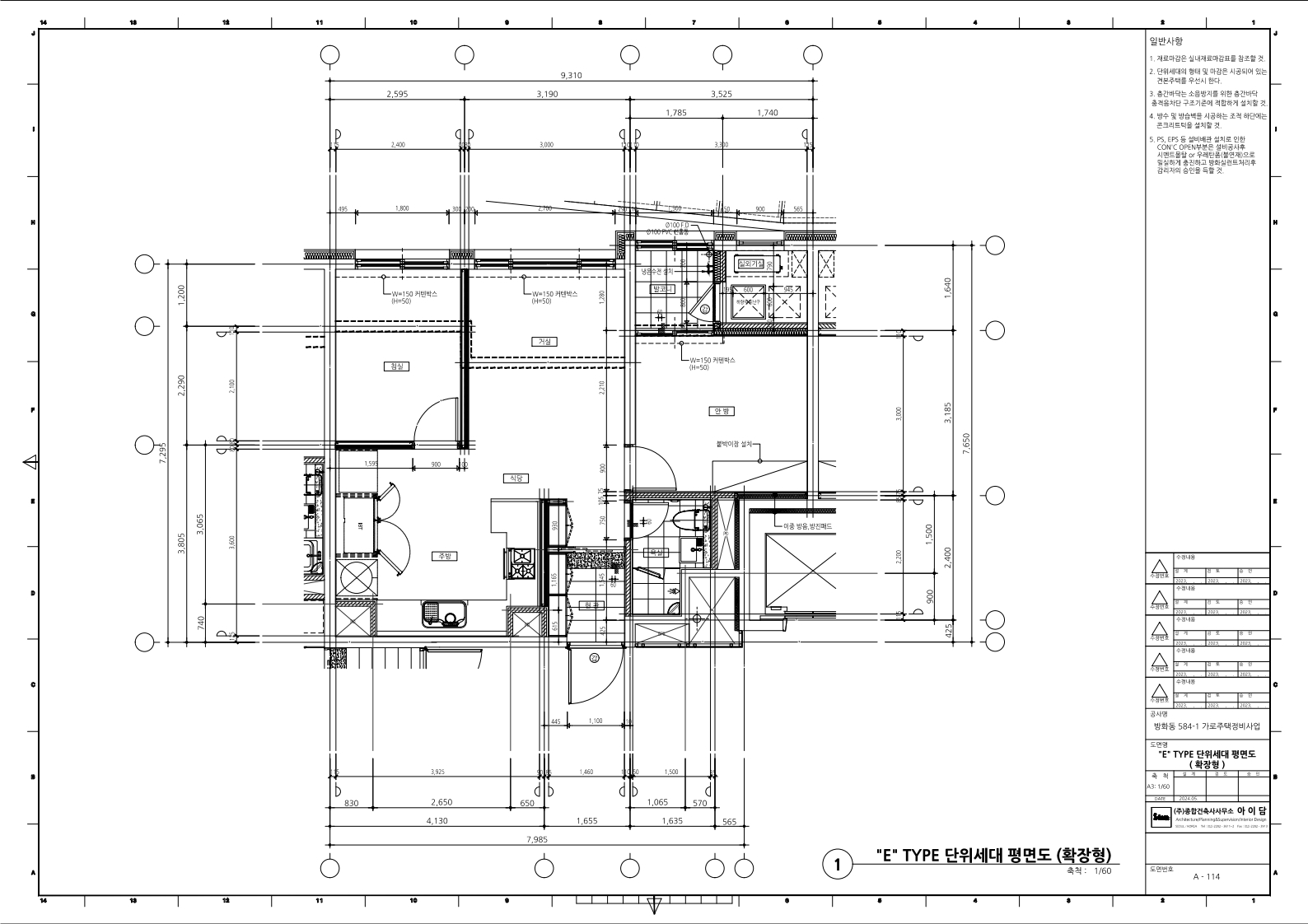
건축시설계획-단위세대평면도 E타입(사업시행계획인가)

건축시설계획-단위세대평면도 E타입(사업시행계획인가)
공급면적 (㎡) 55.0441
사업시행인가(변경)일자 2024-03-08
형별 E
세대수 14
전용면적 (㎡) 43.1547
공용면적 (㎡) 11.8894

단위세대평면도 이미지

단위세대평면도 이미지

사업추진 단계별
공개자료 조회

툴팁 아이콘
원하시는 사업 추진단계에 등록된 자료들을 조회해 보실 수 있습니다.