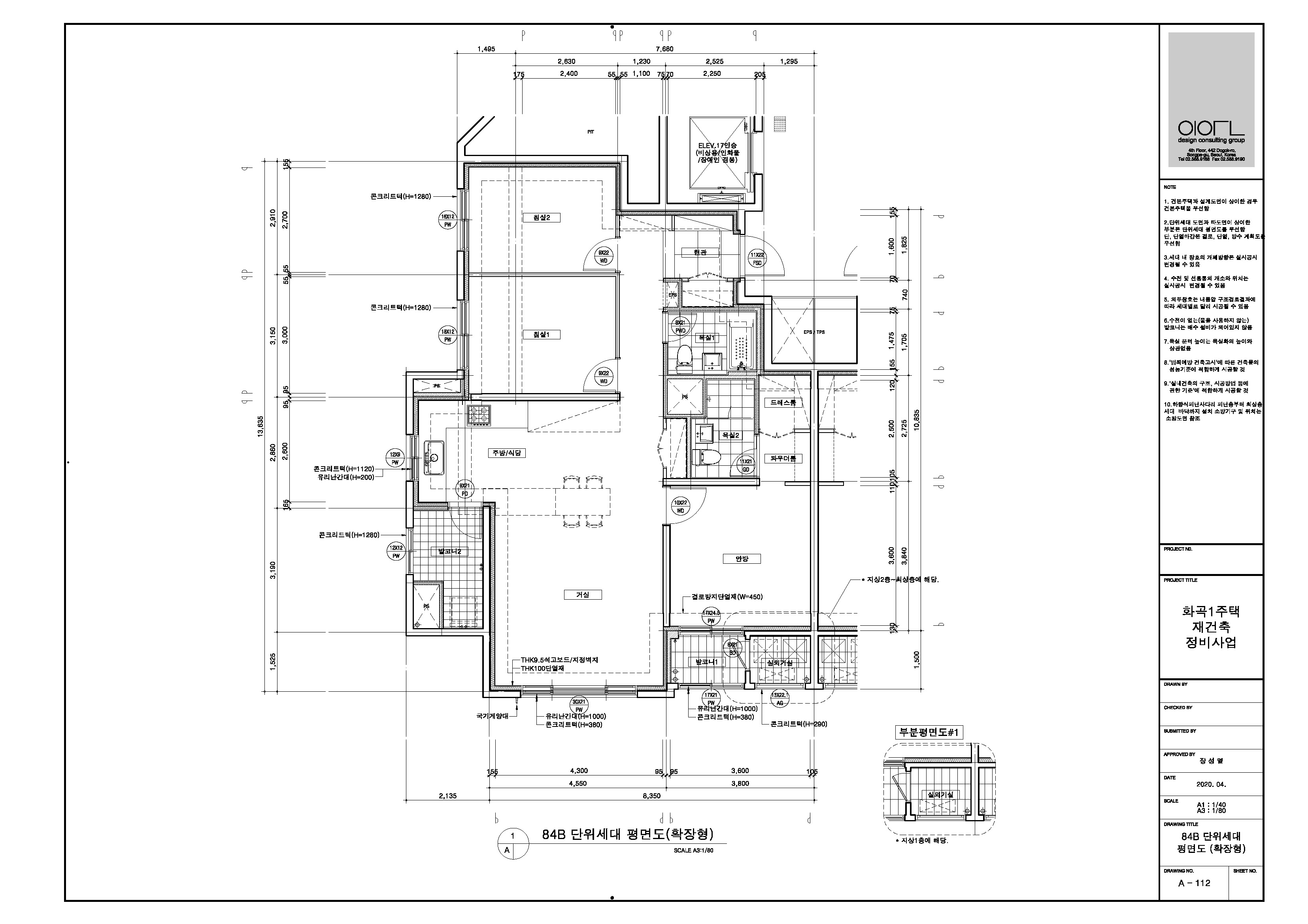
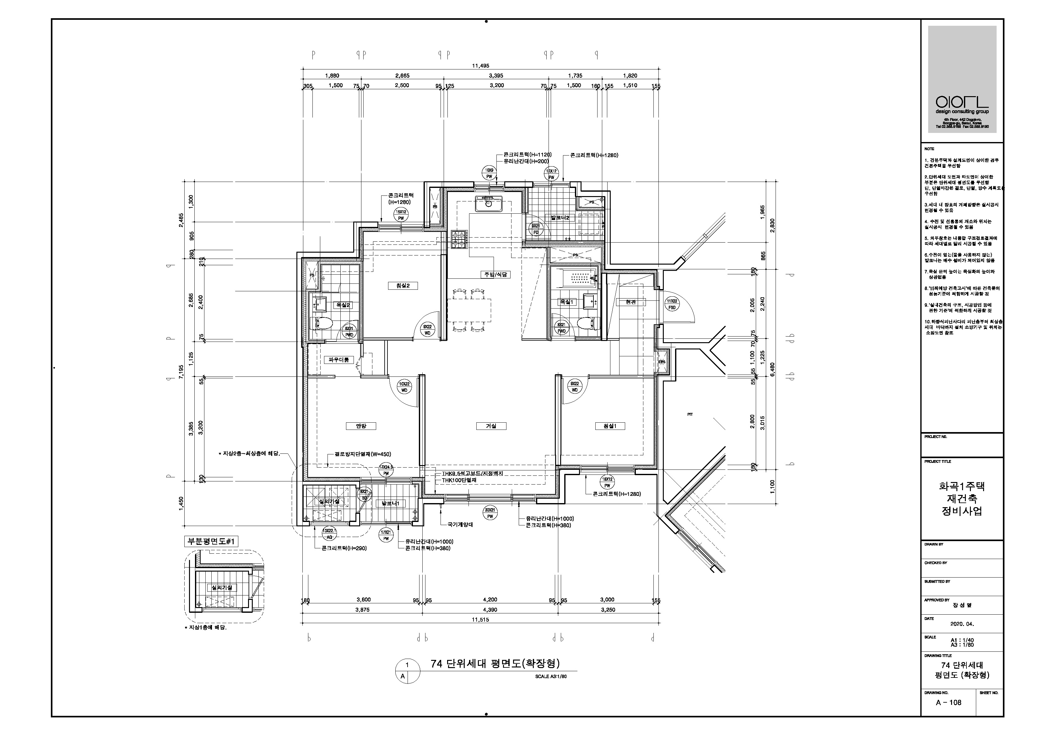
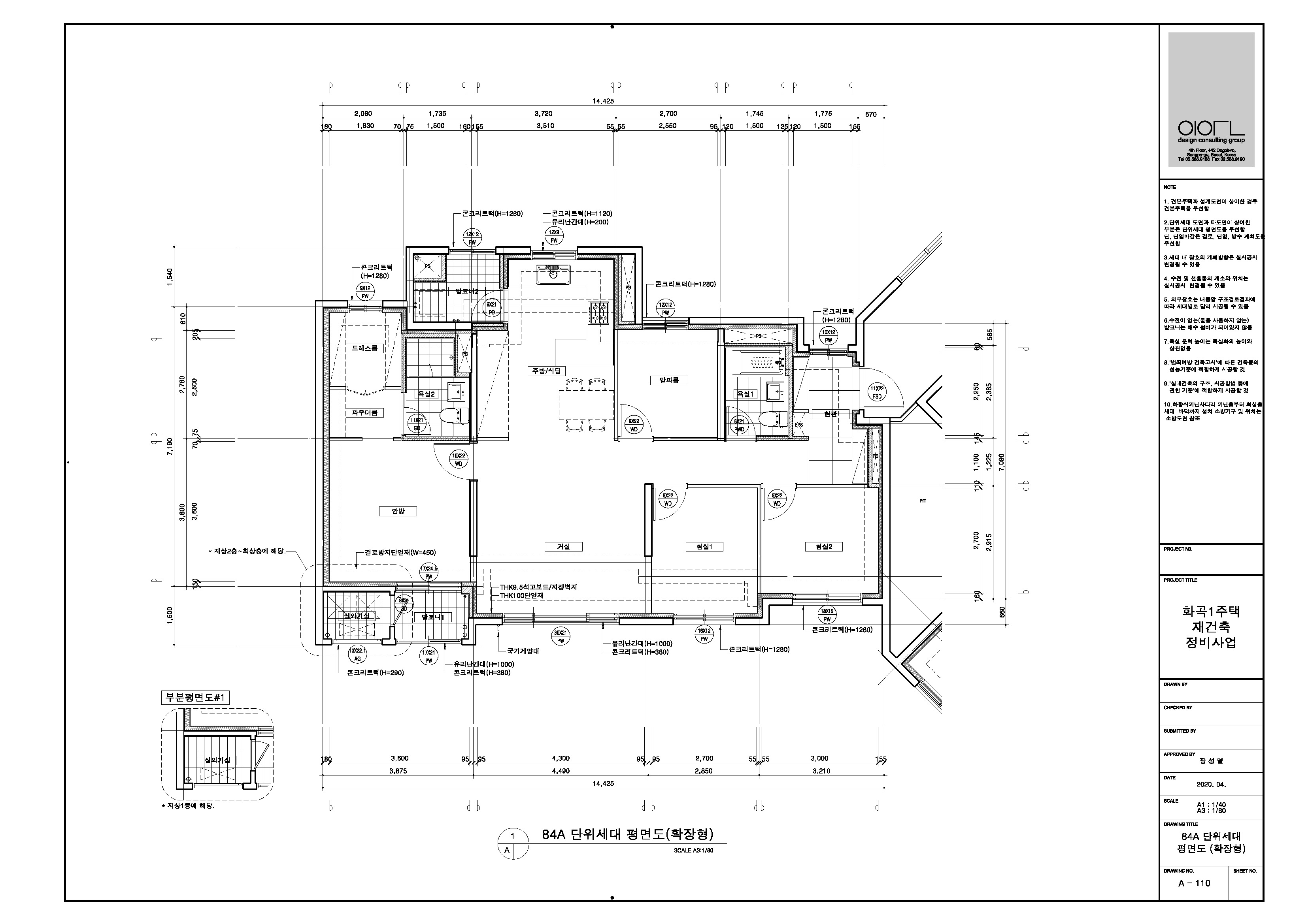
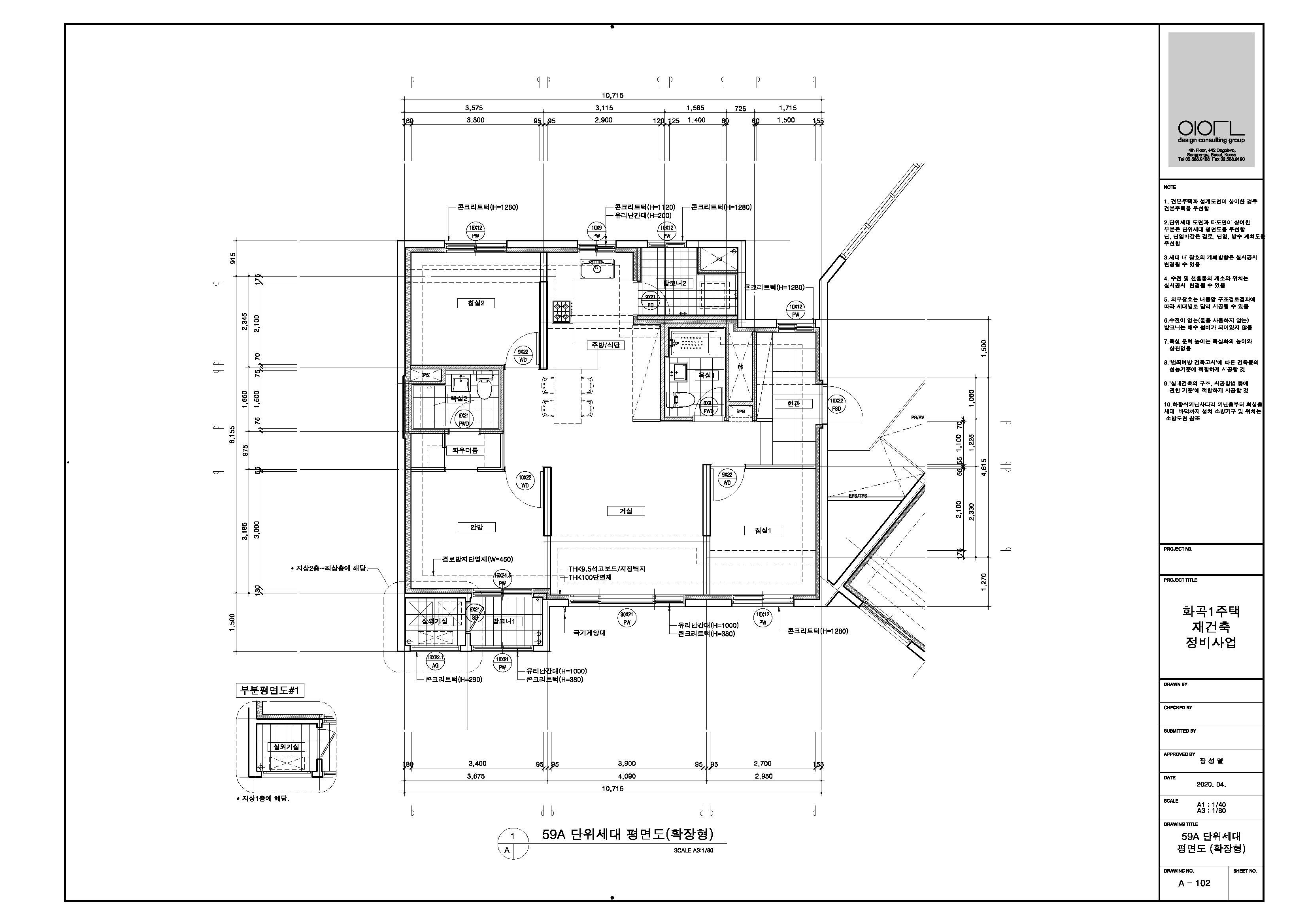
단위세대평면도
정비사업 추진과정을 유리알처럼 투명하게 공개

우장산숲 아이파크 - 단위세대평면도

우장산숲 아이파크 - 단위세대평면도
공급면적 (㎡) 55,412,1623
사업시행인가(변경)일자 2019-10-17
형별 59A/B/C-74A-84A/B/C
세대수 576세대
전용면적 (㎡) 41,015,2644
공용면적 (㎡) 3,690,9281

단위세대평면도 이미지

단위세대평면도 이미지

단위세대평면도 이미지

단위세대평면도 이미지

단위세대평면도 이미지

단위세대평면도 이미지

단위세대평면도 이미지

사업추진 단계별
공개자료 조회

툴팁 아이콘
원하시는 사업 추진단계에 등록된 자료들을 조회해 보실 수 있습니다.