단위세대평면도
정비사업 추진과정을 유리알처럼 투명하게 공개

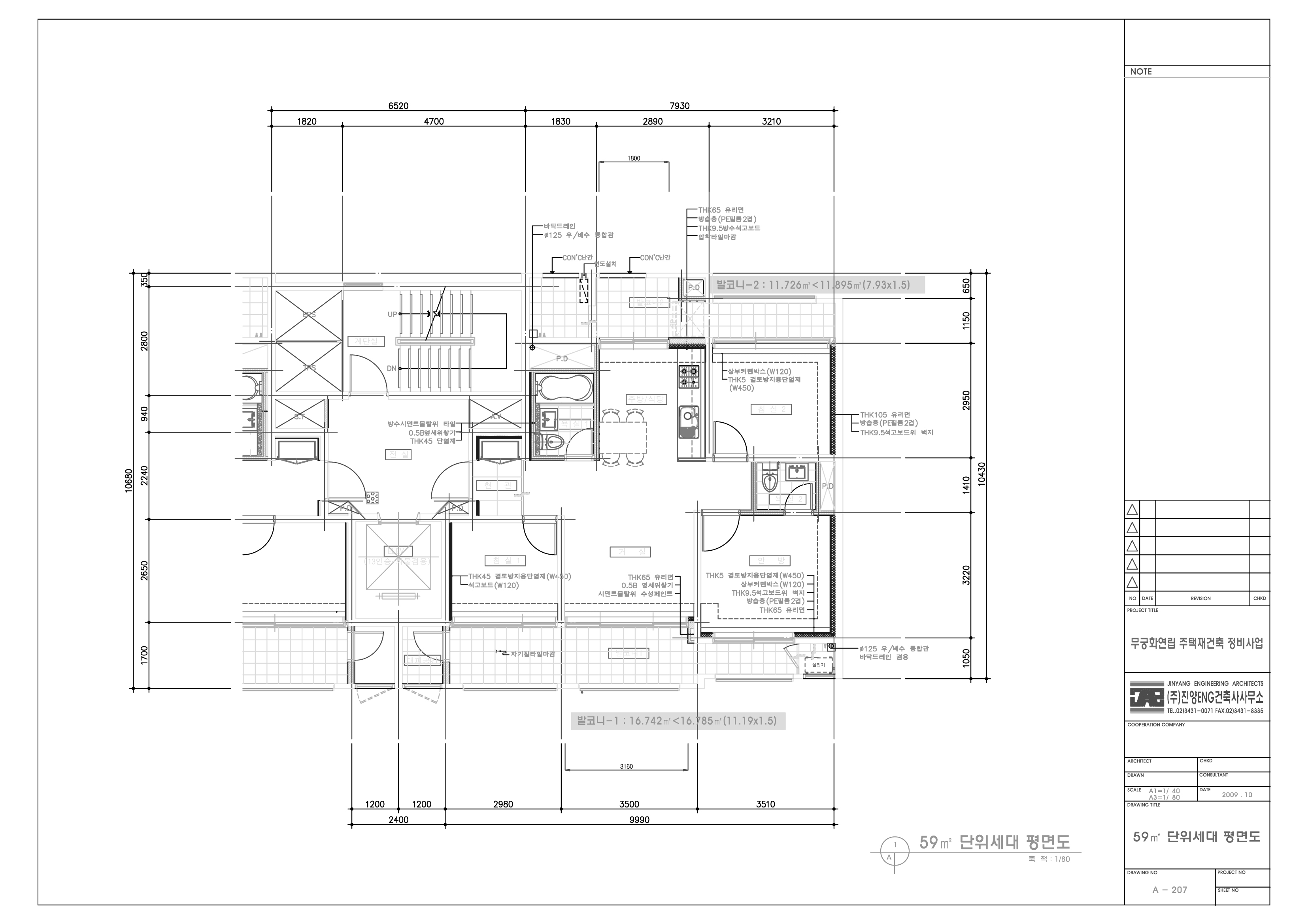
단위세대평면도(59)_20091230

단위세대평면도(59)_20091230
공급면적 (㎡) 79.412
사업시행인가(변경)일자 2010-05-31
형별 59㎡
세대수 42
전용면적 (㎡) 59.978
공용면적 (㎡) 19.434

단위세대평면도 이미지

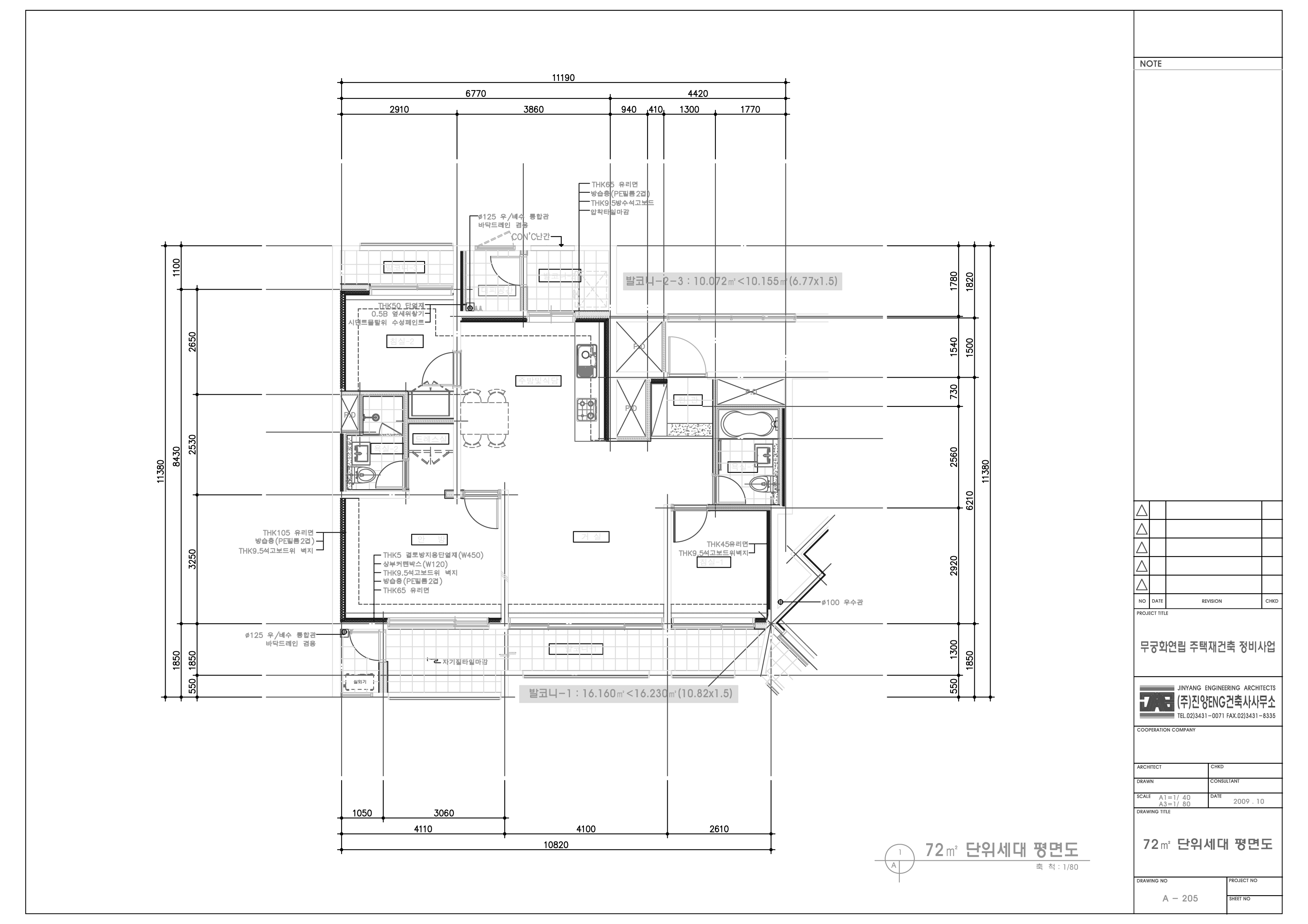
단위세대평면도(72)_20091230

단위세대평면도(72)_20091230
공급면적 (㎡) 94.943
사업시행인가(변경)일자 2010-05-31
형별 72㎡
세대수 26
전용면적 (㎡) 72.034
공용면적 (㎡) 22.909

단위세대평면도 이미지

단위세대평면도(78)_20091230

단위세대평면도(78)_20091230
공급면적 (㎡) 103.663
사업시행인가(변경)일자 2010-05-31
형별 78㎡
세대수 1
전용면적 (㎡) 78.352
공용면적 (㎡) 25.311

단위세대평면도 이미지

단위세대평면도(84)_20091230

단위세대평면도(84)_20091230
공급면적 (㎡) 111.931
사업시행인가(변경)일자 2010-05-31
형별 84㎡
세대수 29
전용면적 (㎡) 84.958
공용면적 (㎡) 26.973

단위세대평면도 이미지

사업추진 단계별
공개자료 조회

툴팁 아이콘
원하시는 사업 추진단계에 등록된 자료들을 조회해 보실 수 있습니다.