단위세대평면도
정비사업 추진과정을 유리알처럼 투명하게 공개

단위세대평면도

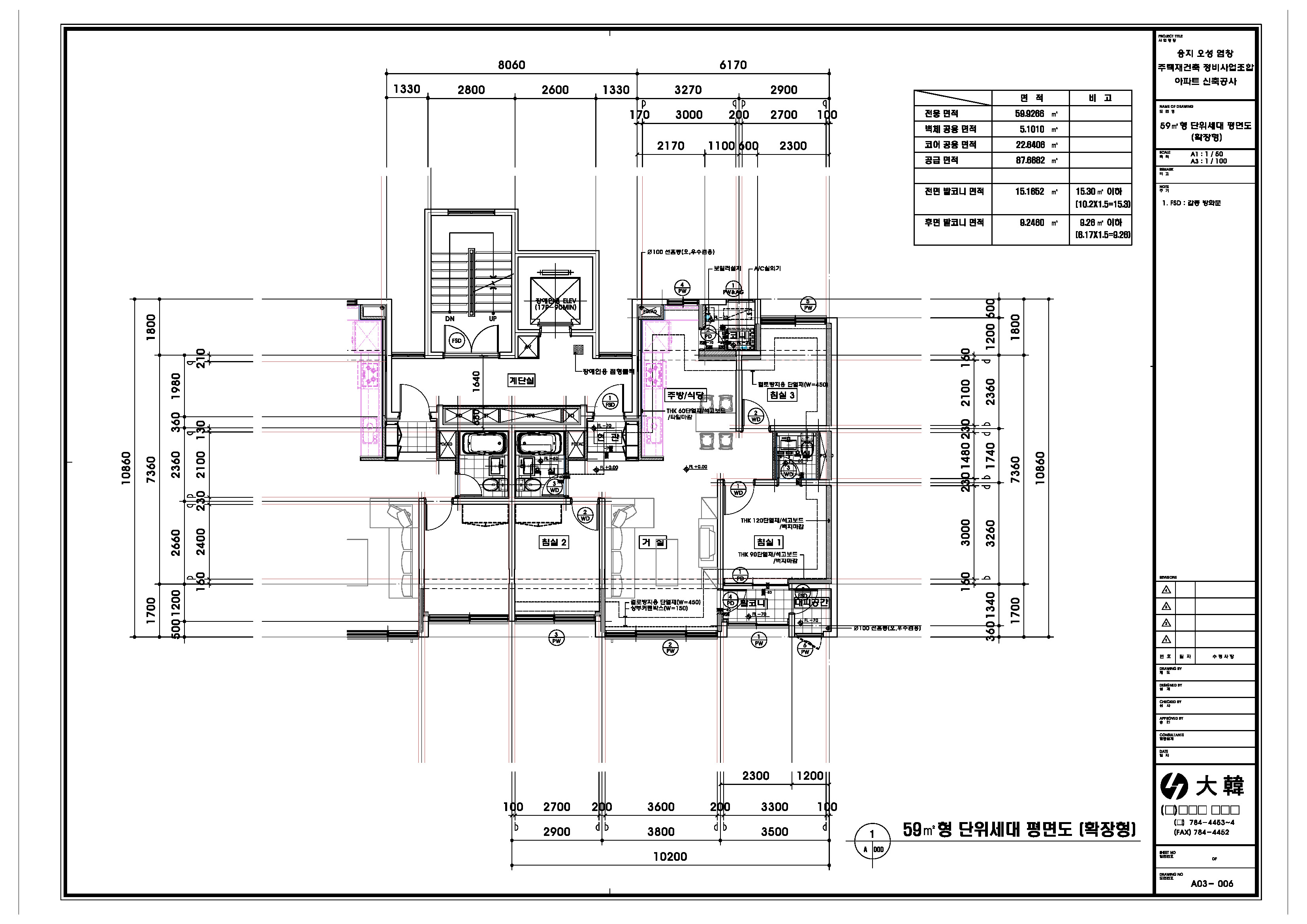
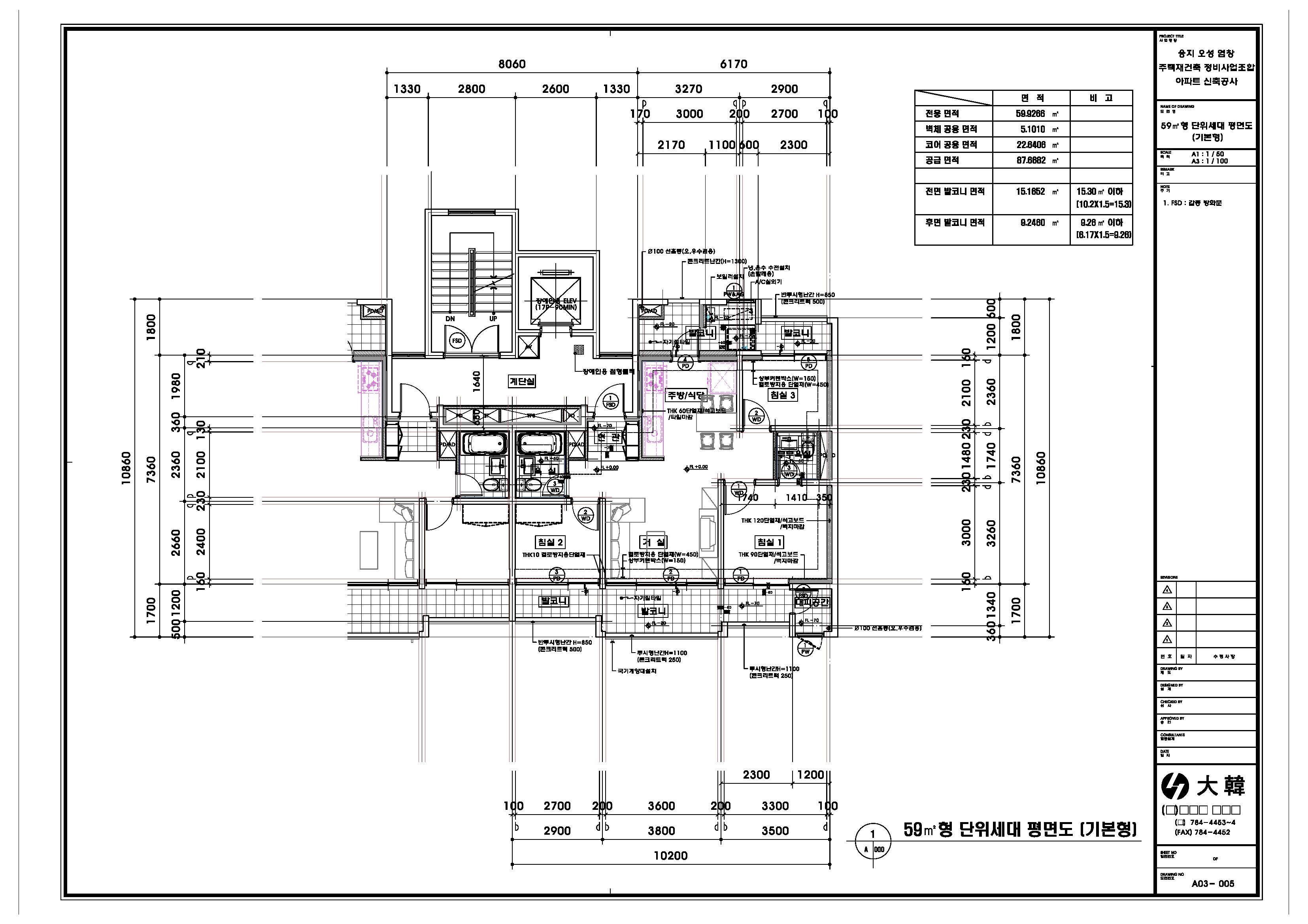
단위세대평면도
공급면적 (㎡) 87.6682
사업시행인가(변경)일자 2010-04-13
형별 26
세대수 18
전용면적 (㎡) 59.9266
공용면적 (㎡) 27.7416

단위세대평면도 이미지

단위세대평면도 이미지

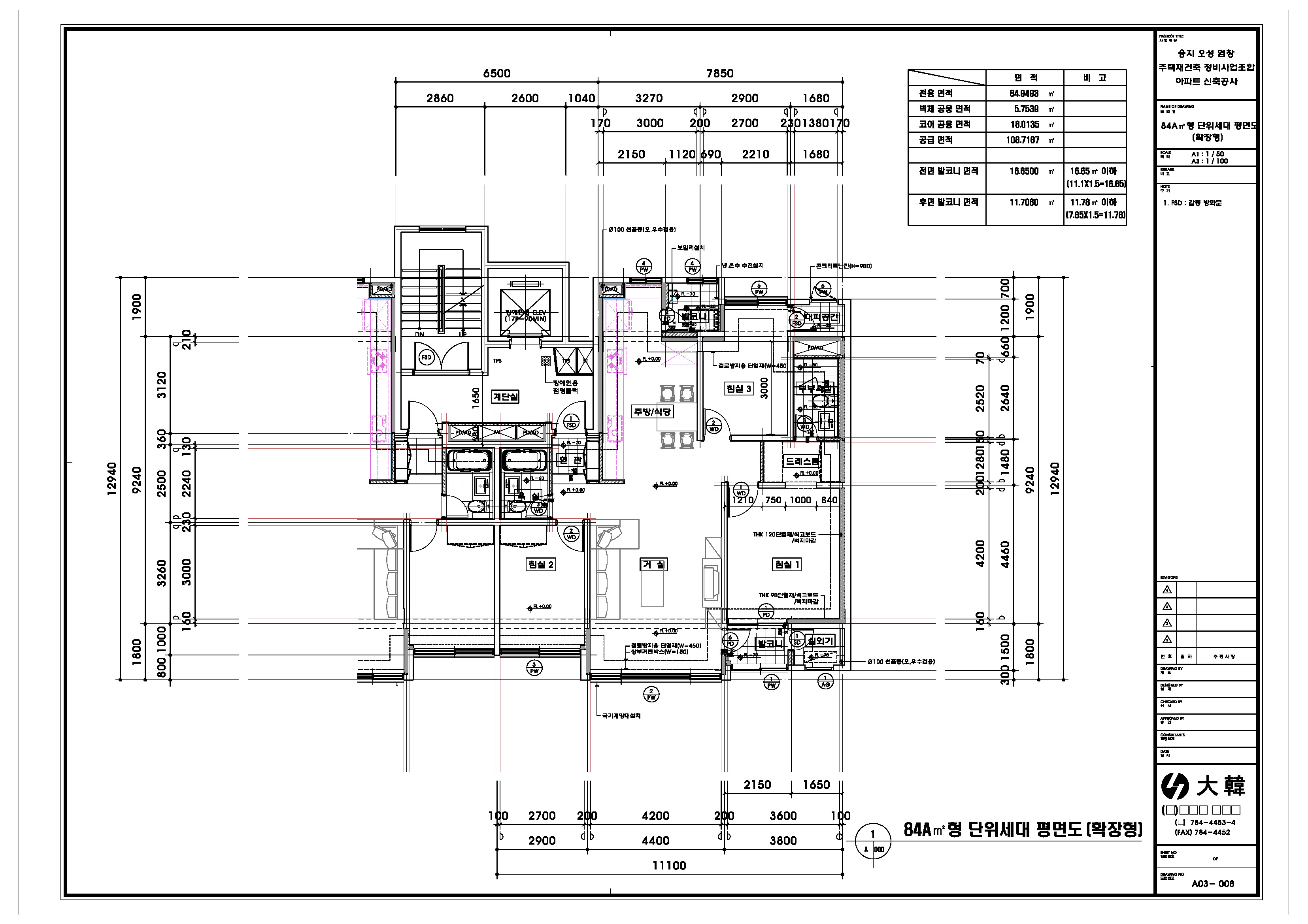
단위세대평면도

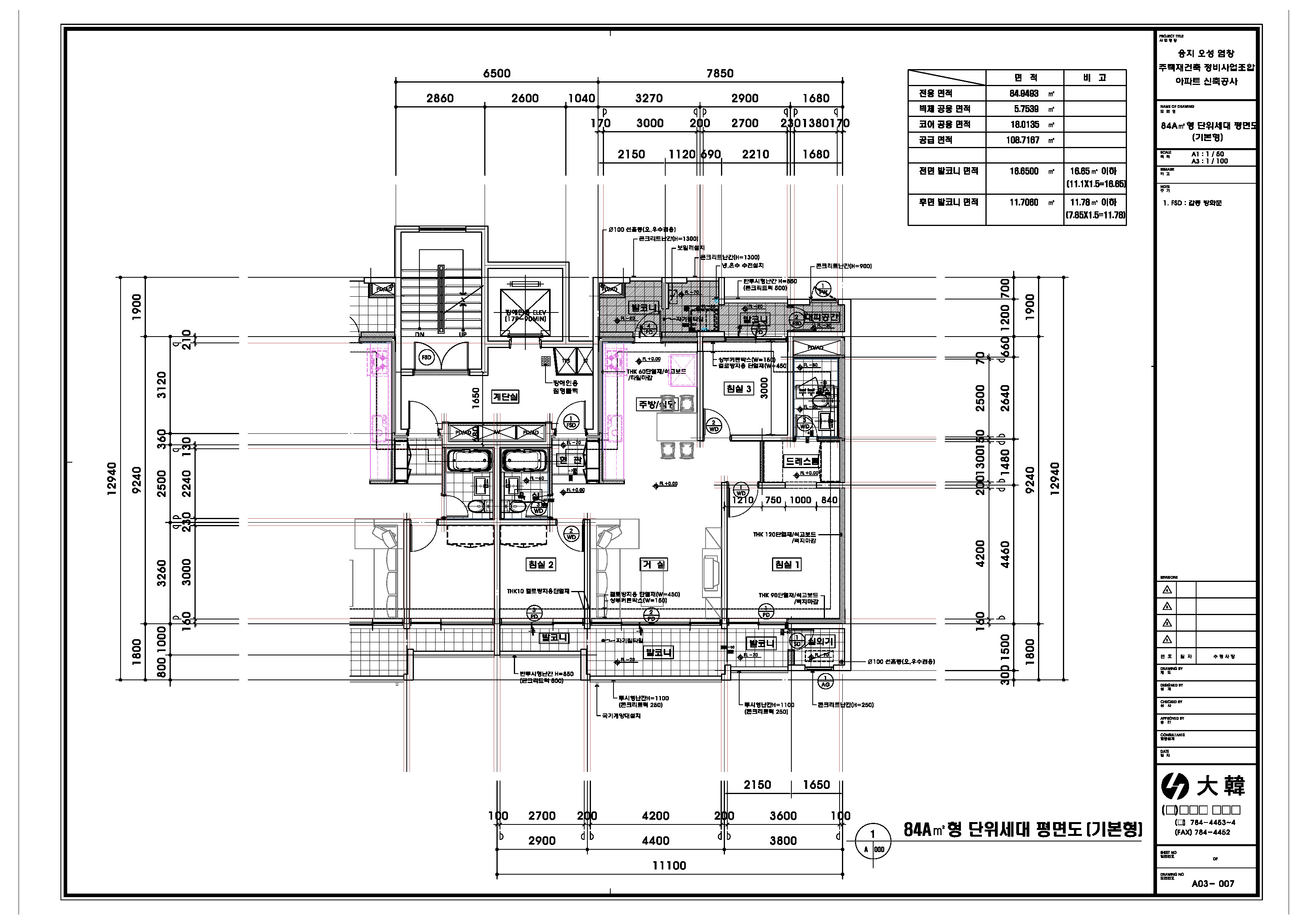
단위세대평면도
공급면적 (㎡) 108.7167
사업시행인가(변경)일자 2010-04-13
형별 33A
세대수 99
전용면적 (㎡) 84.9493
공용면적 (㎡) 23.7674

단위세대평면도 이미지

단위세대평면도 이미지

단위세대평면도

단위세대평면도
공급면적 (㎡) 109.6879
사업시행인가(변경)일자 2010-04-13
형별 33B
세대수 11
전용면적 (㎡) 84.9915
공용면적 (㎡) 24.6964

단위세대평면도 이미지

단위세대평면도 이미지

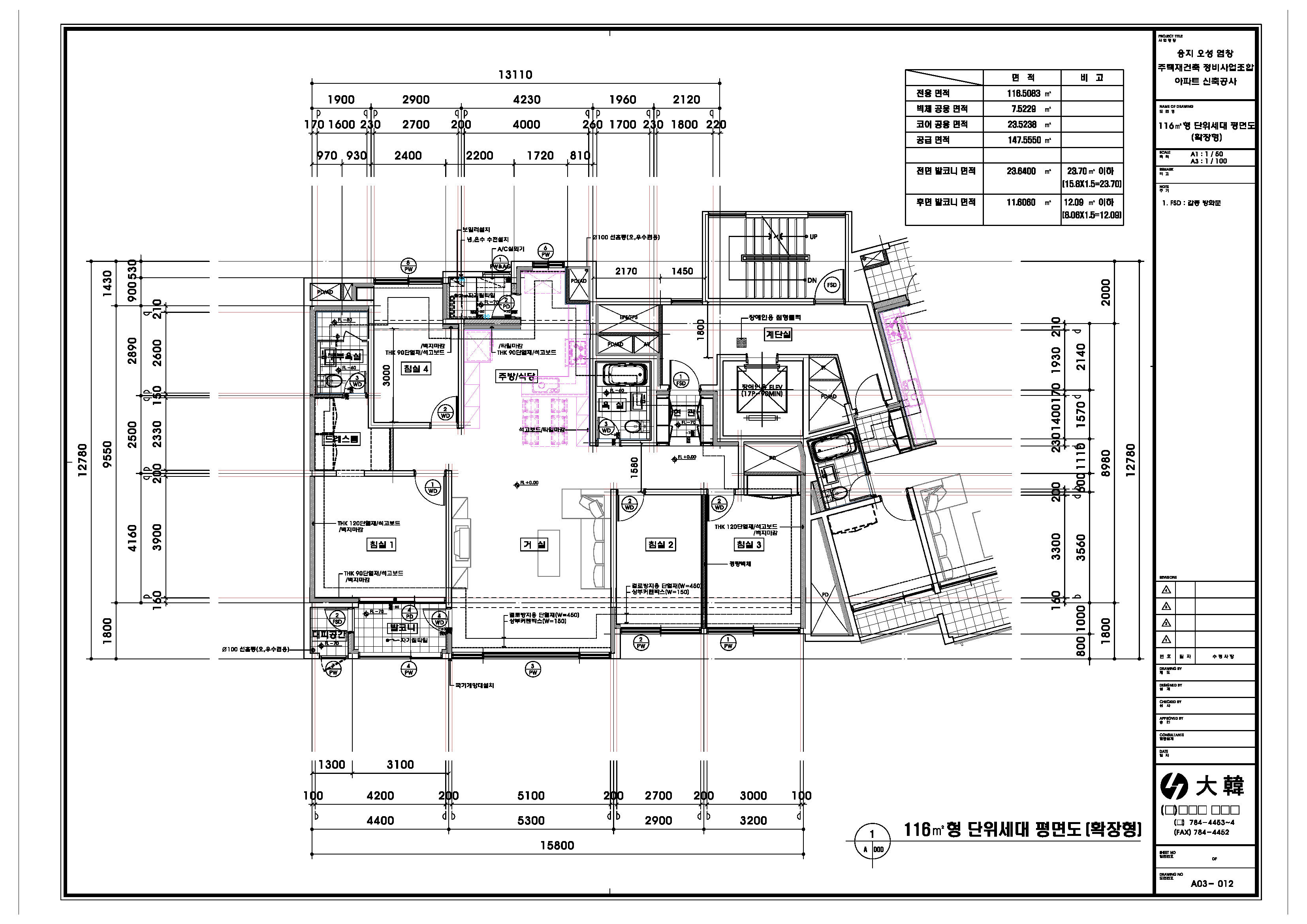
단위세대평면도

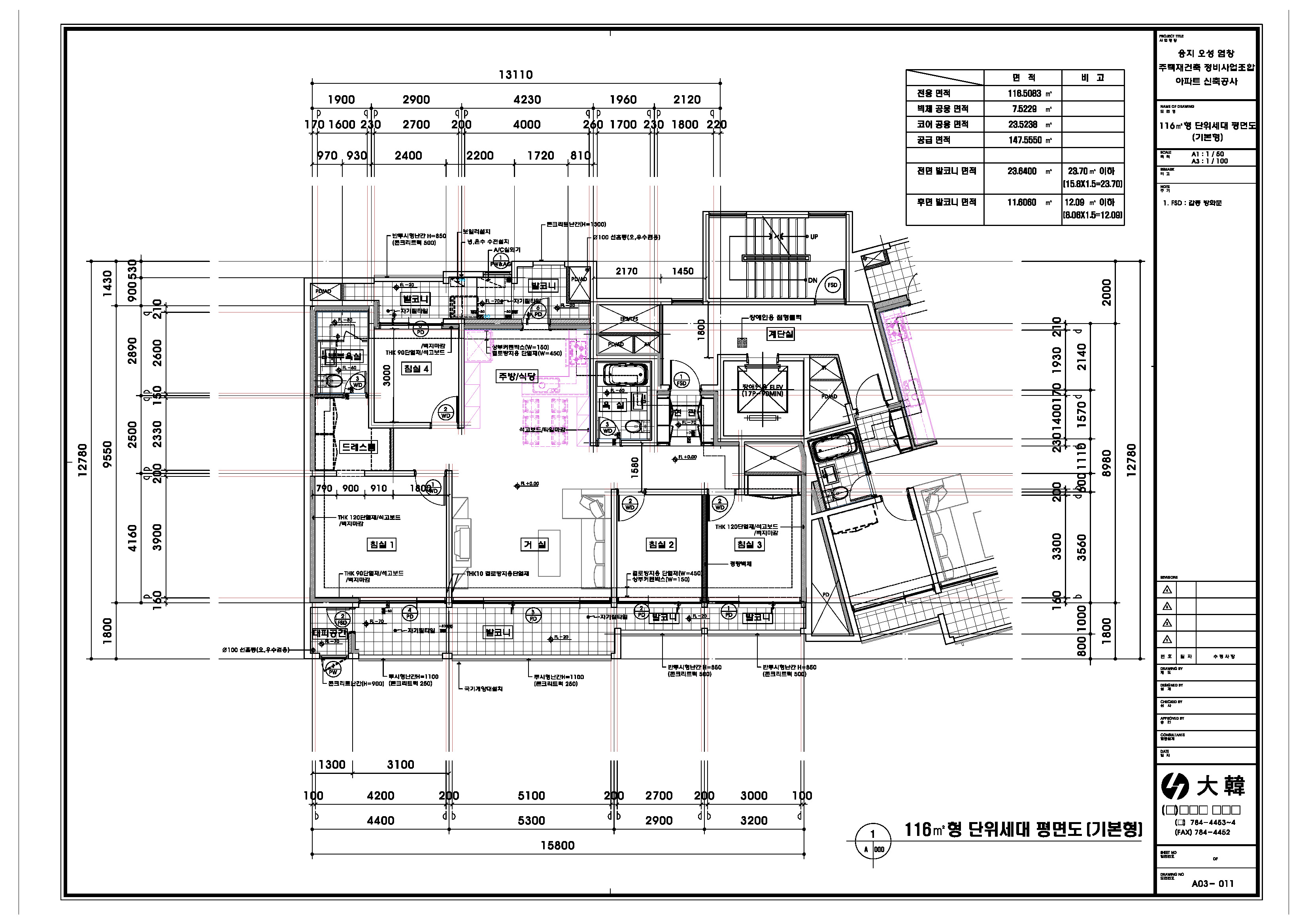
단위세대평면도
공급면적 (㎡) 147.5550
사업시행인가(변경)일자 2010-04-13
형별 44
세대수 18
전용면적 (㎡) 116.5083
공용면적 (㎡) 31.0467

단위세대평면도 이미지

단위세대평면도 이미지

사업추진 단계별
공개자료 조회

툴팁 아이콘
원하시는 사업 추진단계에 등록된 자료들을 조회해 보실 수 있습니다.