단위세대평면도
정비사업 추진과정을 유리알처럼 투명하게 공개

116㎡형 단위세대평면도

116㎡형 단위세대평면도
공급면적 (㎡) 153.11
사업시행인가(변경)일자 2018-12-14
형별 116
세대수 3
전용면적 (㎡) 116.56
공용면적 (㎡) 116.32

단위세대평면도 이미지

150㎡형 단위세대평면도

150㎡형 단위세대평면도
공급면적 (㎡) 189.49
사업시행인가(변경)일자 2018-12-14
형별 150
세대수 1
전용면적 (㎡) 150.99
공용면적 (㎡) 141.83

단위세대평면도 이미지

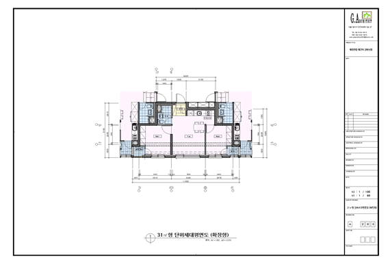
31㎡형 단위세대평면도

31㎡형 단위세대평면도
공급면적 (㎡) 42.30
사업시행인가(변경)일자 2018-12-14
형별 31형
세대수 19
전용면적 (㎡) 31.17
공용면적 (㎡) 32.46

단위세대평면도 이미지

50㎡형 단위세대평면도

50㎡형 단위세대평면도
공급면적 (㎡) 66.02
사업시행인가(변경)일자 2018-12-14
형별 50
세대수 38
전용면적 (㎡) 50.09
공용면적 (㎡) 50.21

단위세대평면도 이미지

59㎡형 단위세대평면도

59㎡형 단위세대평면도
공급면적 (㎡) 78.61
사업시행인가(변경)일자 2018-12-14
형별 59
세대수 102
전용면적 (㎡) 59.98
공용면적 (㎡) 59.67

단위세대평면도 이미지

64㎡형 단위세대평면도

64㎡형 단위세대평면도
공급면적 (㎡) 82.65
사업시행인가(변경)일자 2018-12-14
형별 64
세대수 18
전용면적 (㎡) 64.46
공용면적 (㎡) 62.30

단위세대평면도 이미지

84㎡형 단위세대평면도

84㎡형 단위세대평면도
공급면적 (㎡) 105.21
사업시행인가(변경)일자 2018-12-14
형별 84
세대수 36
전용면적 (㎡) 84.74
공용면적 (㎡) 78.46

단위세대평면도 이미지

사업추진 단계별
공개자료 조회

툴팁 아이콘
원하시는 사업 추진단계에 등록된 자료들을 조회해 보실 수 있습니다.