단위세대평면도
정비사업 추진과정을 유리알처럼 투명하게 공개

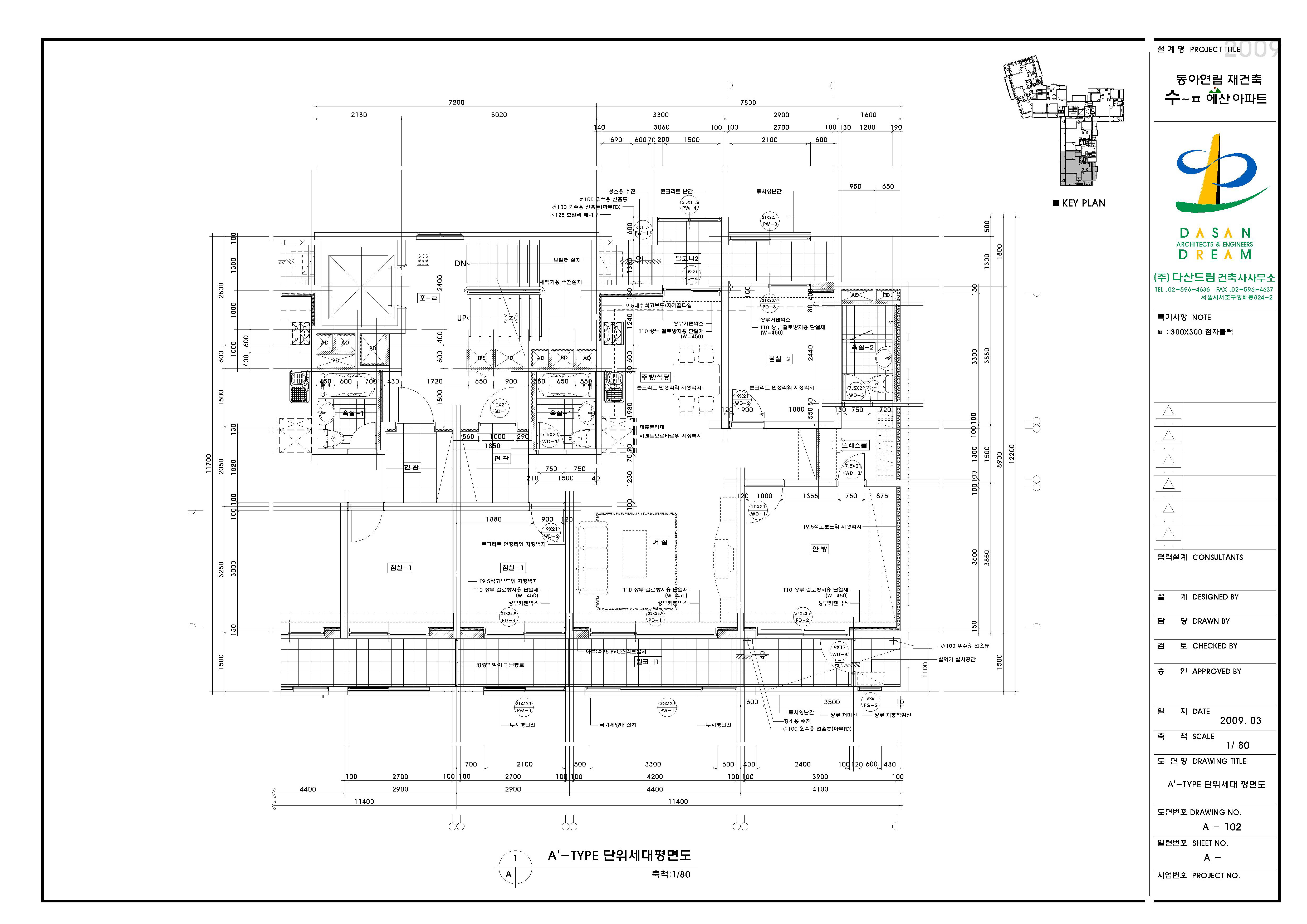
A'-TYPE 단위세대평면도

A'-TYPE 단위세대평면도
공급면적 (㎡) 106.40
사업시행인가(변경)일자 2009-11-26
형별 A'-TYPE
세대수 1세대
전용면적 (㎡) 84.78
공용면적 (㎡) 21.62

단위세대평면도 이미지

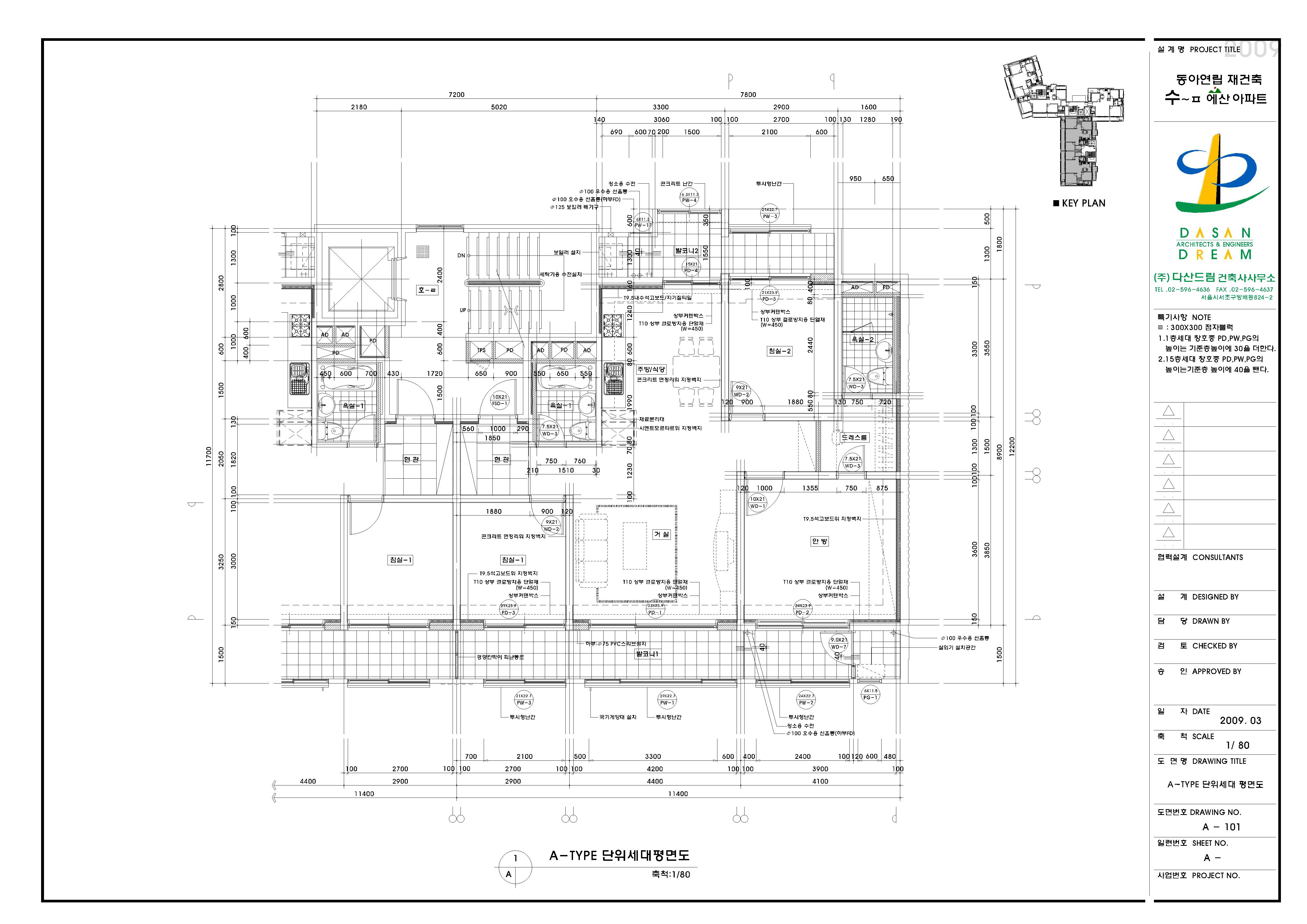
A-TYPE 단위세대평면도

A-TYPE 단위세대평면도
공급면적 (㎡) 106.40
사업시행인가(변경)일자 2009-11-26
형별 A-TYPE
세대수 26세대
전용면적 (㎡) 84.78
공용면적 (㎡) 21.62

단위세대평면도 이미지

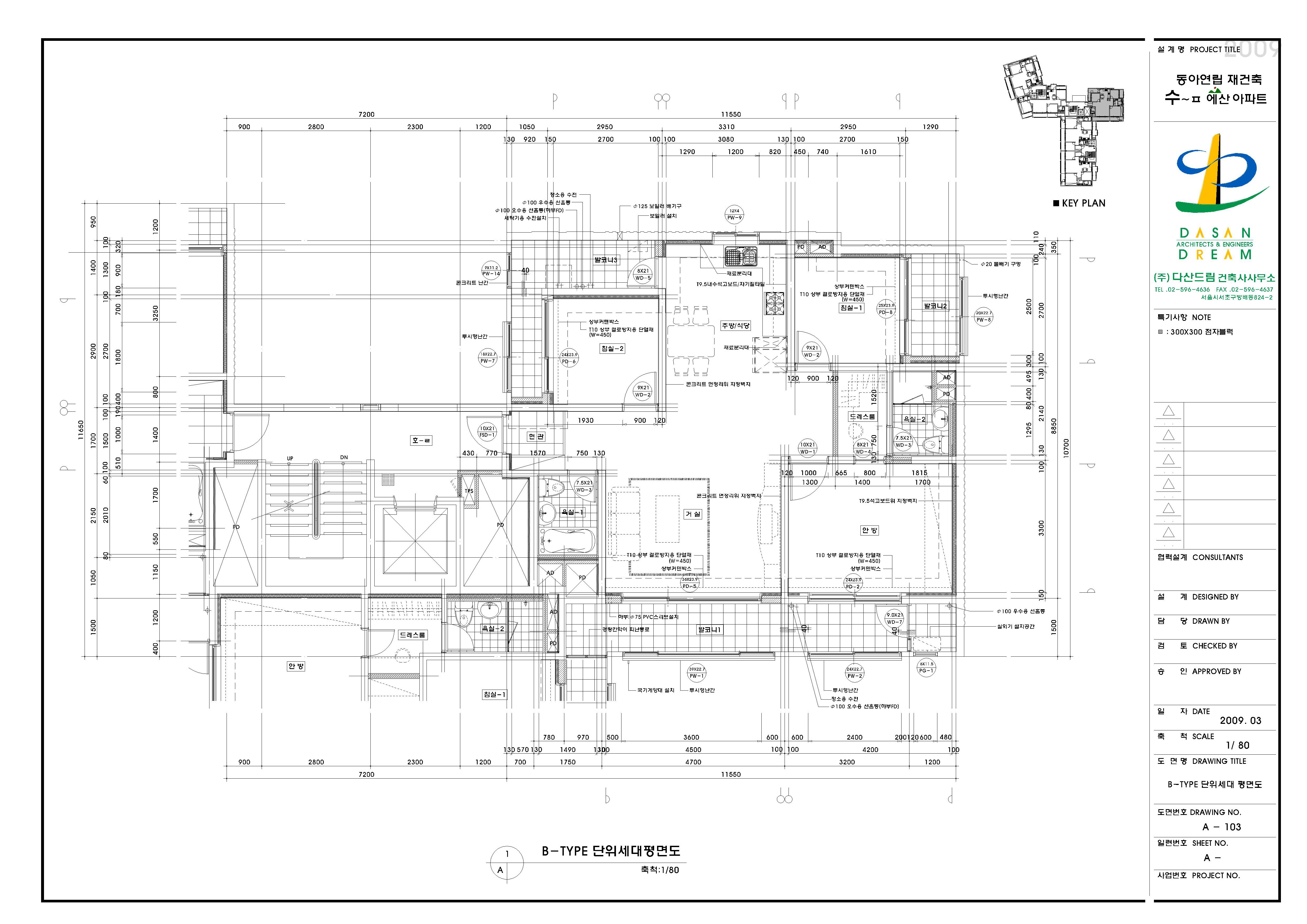
B-TYPE 단위세대평면도

B-TYPE 단위세대평면도
공급면적 (㎡) 105.88
사업시행인가(변경)일자 2009-11-26
형별 B-TYPE
세대수 9세대
전용면적 (㎡) 84.94
공용면적 (㎡) 20.94

단위세대평면도 이미지

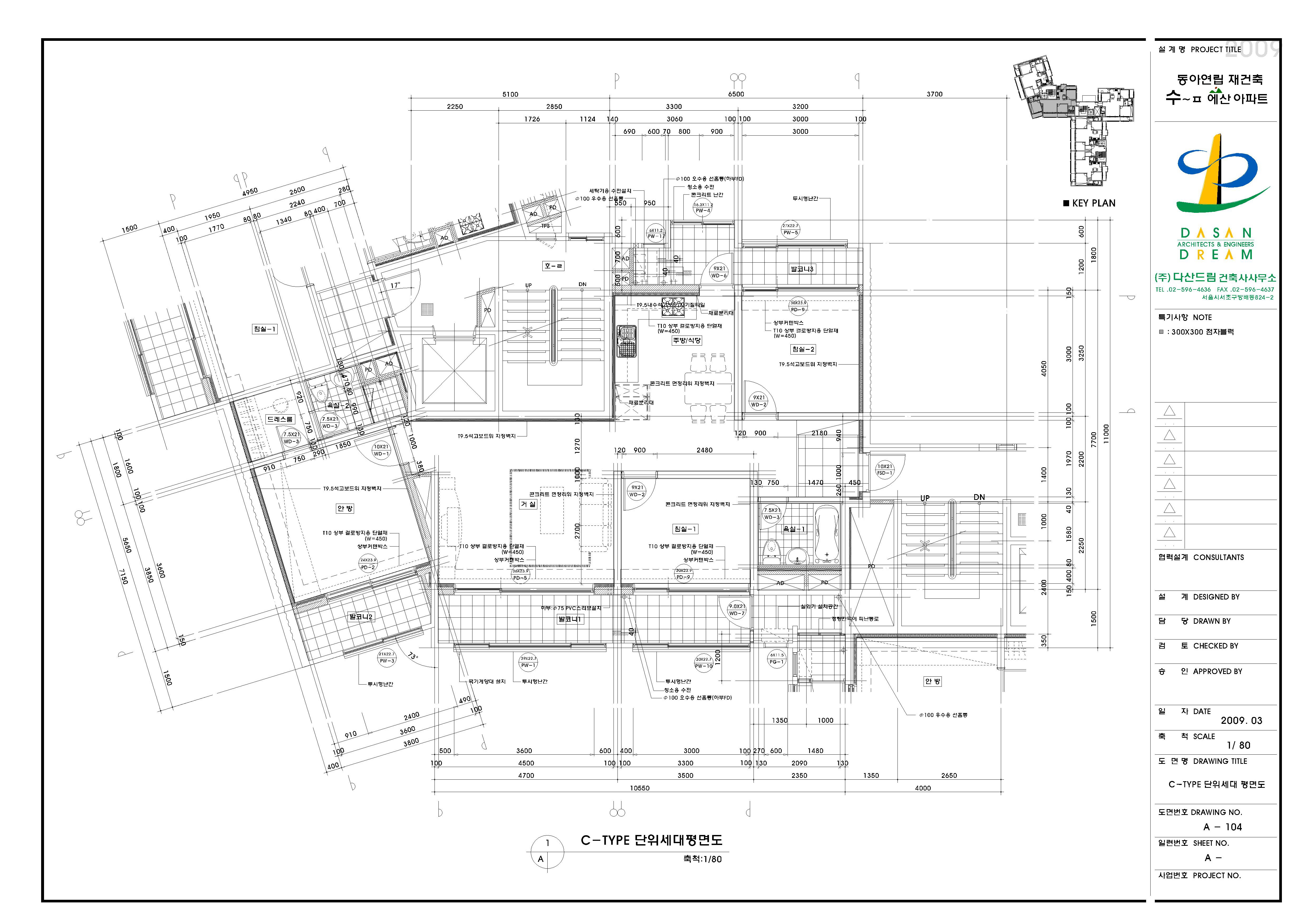
C-TYPE 단위세대평면도

C-TYPE 단위세대평면도
공급면적 (㎡) 107.43
사업시행인가(변경)일자 2009-11-26
형별 C-TYPE
세대수 9세대
전용면적 (㎡) 84.41
공용면적 (㎡) 23.02

단위세대평면도 이미지

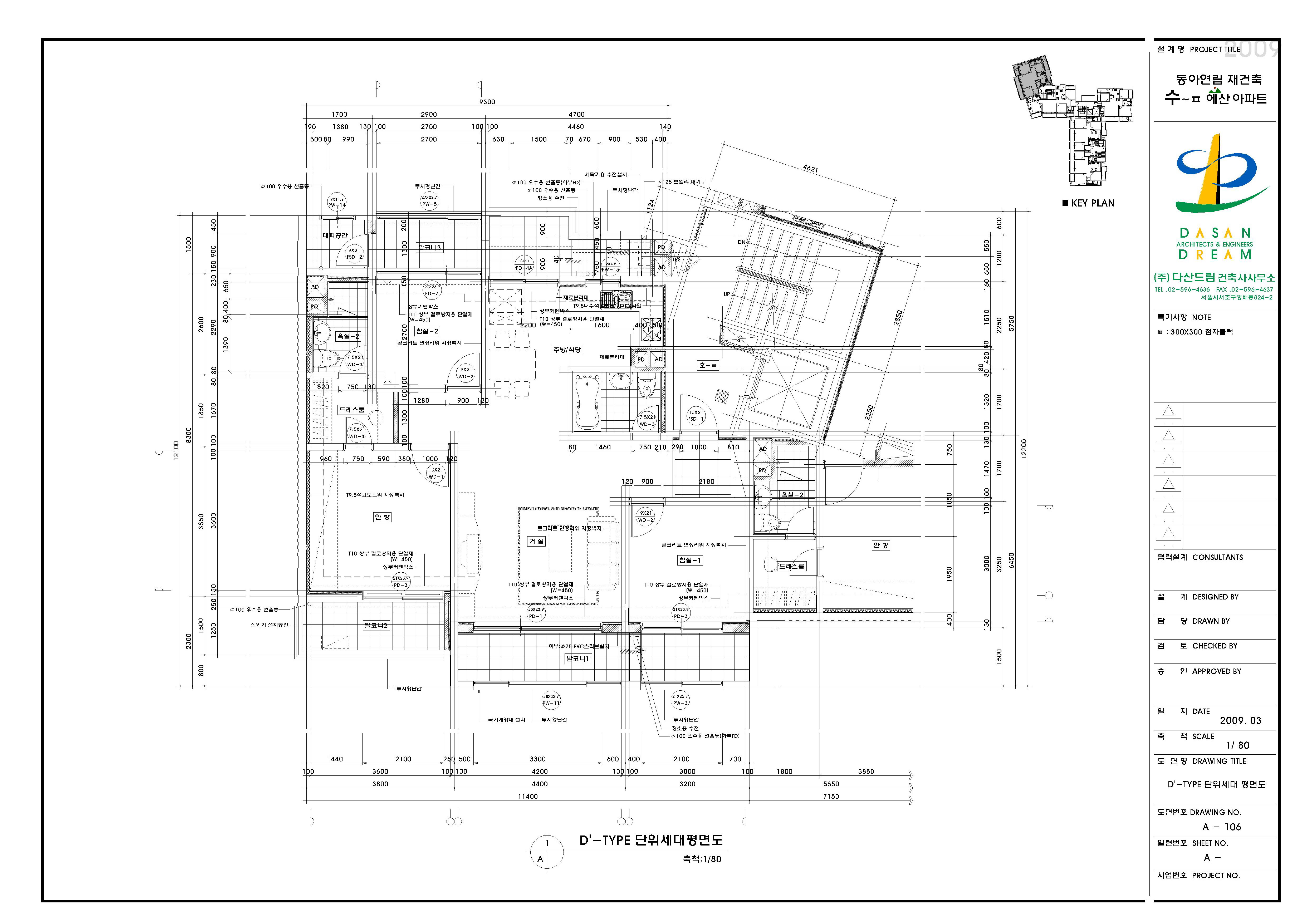
D'-TYPE 단위세대평면도

D'-TYPE 단위세대평면도
공급면적 (㎡) 106.23
사업시행인가(변경)일자 2009-11-26
형별 D'-TYPE
세대수 1세대
전용면적 (㎡) 84.34
공용면적 (㎡) 21.89

단위세대평면도 이미지

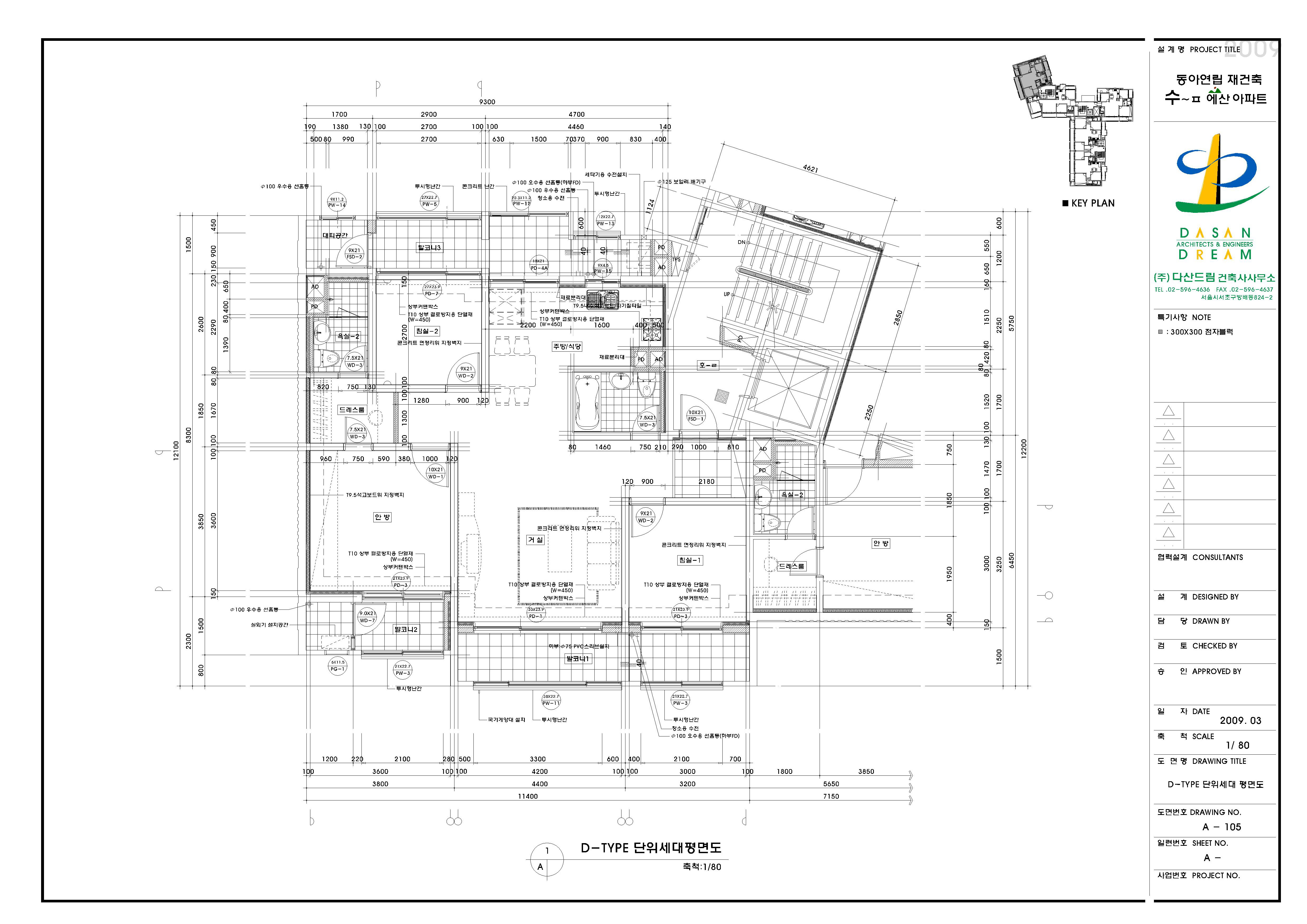
D-TYPE 단위세대평면도

D-TYPE 단위세대평면도
공급면적 (㎡) 106.23
사업시행인가(변경)일자 2009-11-26
형별 D-TYPE
세대수 6세대
전용면적 (㎡) 84.34
공용면적 (㎡) 21.89

단위세대평면도 이미지

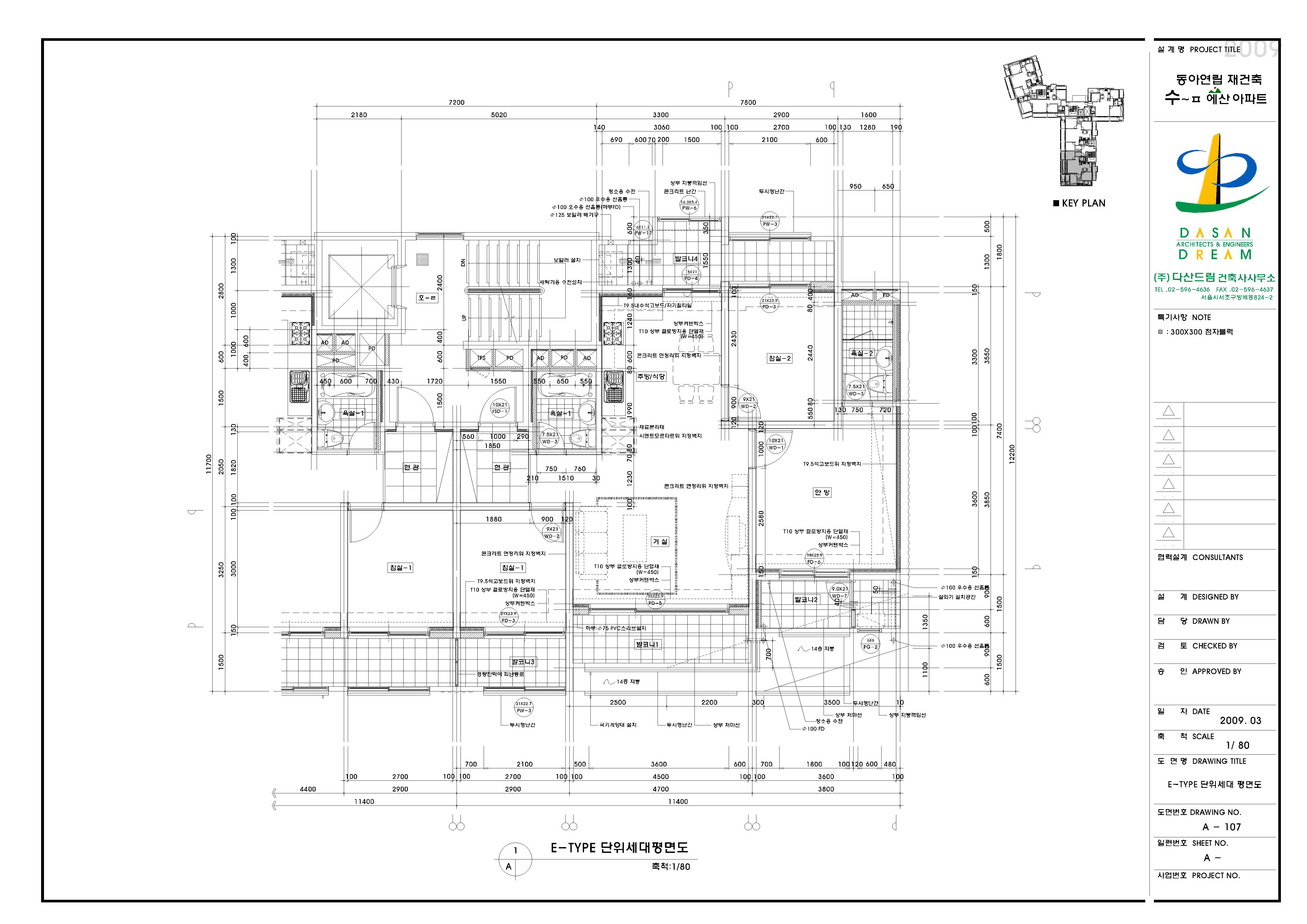
E-TYPE 단위세대평면도

E-TYPE 단위세대평면도
공급면적 (㎡) 96.27
사업시행인가(변경)일자 2009-11-26
형별 E-TYPE
세대수 1세대
전용면적 (㎡) 76.32
공용면적 (㎡) 19.95

단위세대평면도 이미지

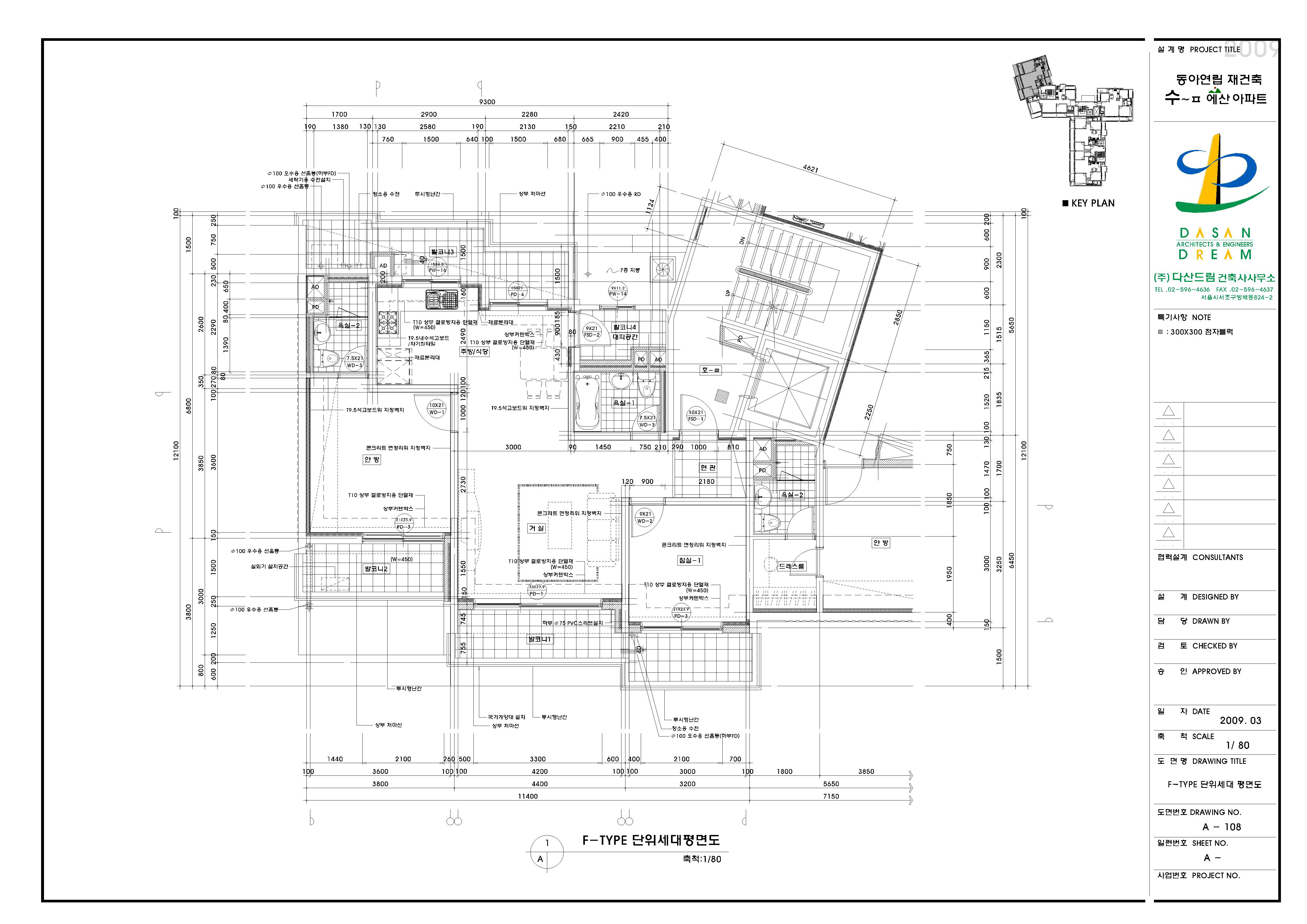
F-TYPE 단위세대평면도

F-TYPE 단위세대평면도
공급면적 (㎡) 88.28
사업시행인가(변경)일자 2009-11-26
형별 F-TYPE
세대수 1세대
전용면적 (㎡) 69.35
공용면적 (㎡) 18.93

단위세대평면도 이미지

사업추진 단계별
공개자료 조회

툴팁 아이콘
원하시는 사업 추진단계에 등록된 자료들을 조회해 보실 수 있습니다.