단위세대평면도
정비사업 추진과정을 유리알처럼 투명하게 공개

단위세대평면도 (A-201 90.94㎡)

단위세대평면도 (A-201 90.94㎡)
공급면적 (㎡) 90.94㎡
사업시행인가(변경)일자 2010-06-17
형별 A-201
세대수 10
전용면적 (㎡) 72.4629㎡
공용면적 (㎡) 23.60㎡

단위세대평면도 이미지

단위세대평면도 (A-202 91.06㎡)

단위세대평면도 (A-202 91.06㎡)
공급면적 (㎡) 91.06㎡
사업시행인가(변경)일자 2010-06-17
형별 A-202
세대수 5
전용면적 (㎡) 72.7736㎡
공용면적 (㎡) 23.43㎡

단위세대평면도 이미지

단위세대평면도 (A-203 91.14㎡)

단위세대평면도 (A-203 91.14㎡)
공급면적 (㎡) 91.1429㎡
사업시행인가(변경)일자 2010-06-17
형별 A-203
세대수 5
전용면적 (㎡) 72.6027㎡
공용면적 (㎡) 23.68㎡

단위세대평면도 이미지

단위세대평면도 (A-204 79.39㎡)

단위세대평면도 (A-204 79.39㎡)
공급면적 (㎡) 79.39㎡
사업시행인가(변경)일자 2010-06-17
형별 A-204
세대수 2
전용면적 (㎡) 62.9829㎡
공용면적 (㎡) 20.86㎡

단위세대평면도 이미지

단위세대평면도 (A-205 80.64㎡)

단위세대평면도 (A-205 80.64㎡)
공급면적 (㎡) 80.64㎡
사업시행인가(변경)일자 2010-06-17
형별 A-205
세대수 1
전용면적 (㎡) 64.4320㎡
공용면적 (㎡) 20.766㎡

단위세대평면도 이미지

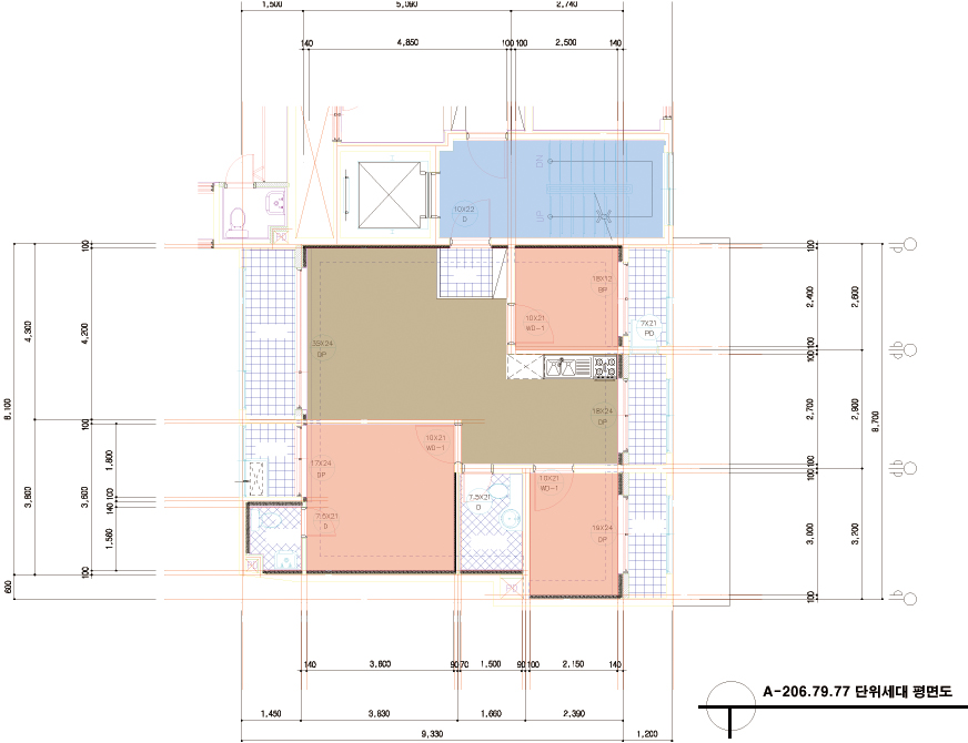
단위세대평면도 (A-206 79.77㎡)

단위세대평면도 (A-206 79.77㎡)
공급면적 (㎡) 79.77㎡
사업시행인가(변경)일자 2010-06-17
형별 A-206
세대수 1
전용면적 (㎡) 63.2527㎡
공용면적 (㎡) 20.99㎡

단위세대평면도 이미지

사업추진 단계별
공개자료 조회

툴팁 아이콘
원하시는 사업 추진단계에 등록된 자료들을 조회해 보실 수 있습니다.