단위세대평면도
정비사업 추진과정을 유리알처럼 투명하게 공개

단위세대 평면도 (임대)

단위세대 평면도 (임대)
공급면적 (㎡) 87.596
사업시행인가(변경)일자 2010-02-26
형별 36형
세대수 160
전용면적 (㎡) 36.806
공용면적 (㎡) 50.790

단위세대평면도 이미지

단위세대 평면도 (51평형)

단위세대 평면도 (51평형)
공급면적 (㎡) 240.311
사업시행인가(변경)일자 2010-02-26
형별 129형(51평형)
세대수 19
전용면적 (㎡) 129.368
공용면적 (㎡) 110.943

단위세대평면도 이미지

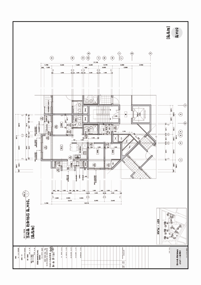
단위세대 평면도 59A형(24평형)

단위세대 평면도 59A형(24평형)
공급면적 (㎡) 112.679
사업시행인가(변경)일자 2010-02-26
형별 59A형(24평형)
세대수 118
전용면적 (㎡) 59.747
공용면적 (㎡) 52.932

단위세대평면도 이미지

단위세대 평면도 59B형(24평형)

단위세대 평면도 59B형(24평형)
공급면적 (㎡) 111.264
사업시행인가(변경)일자 2010-02-26
형별 59B형(24평형)
세대수 23
전용면적 (㎡) 59.474
공용면적 (㎡) 51.790

단위세대평면도 이미지

단위세대 평면도 59C형(24평형)

단위세대 평면도 59C형(24평형)
공급면적 (㎡) 112.436
사업시행인가(변경)일자 2010-02-26
형별 59C형(24평형)
세대수 58
전용면적 (㎡) 59.948
공용면적 (㎡) 52.488

단위세대평면도 이미지

단위세대 평면도 84A형 (34A평형)

단위세대 평면도 84A형 (34A평형)
공급면적 (㎡) 158.986
사업시행인가(변경)일자 2010-02-26
형별 84A형(34평형)
세대수 294
전용면적 (㎡) 84.984
공용면적 (㎡) 74.002

단위세대평면도 이미지

단위세대 평면도 84B형(34평형)

단위세대 평면도 84B형(34평형)
공급면적 (㎡) 158.317
사업시행인가(변경)일자 2010-02-26
형별 84B형(34평형)
세대수 182
전용면적 (㎡) 84.966
공용면적 (㎡) 73.351

단위세대평면도 이미지

사업추진 단계별
공개자료 조회

툴팁 아이콘
원하시는 사업 추진단계에 등록된 자료들을 조회해 보실 수 있습니다.