단위세대평면도
정비사업 추진과정을 유리알처럼 투명하게 공개

12평형 단위세대 평면도

12평형 단위세대 평면도
공급면적 (㎡) 42.90
사업시행인가(변경)일자 2011-11-15
형별 12
세대수 61
전용면적 (㎡) 31.93
공용면적 (㎡) 10.97

단위세대평면도 이미지

23평 단위세대평면도-기본형

23평 단위세대평면도-기본형
공급면적 (㎡) 78.62
사업시행인가(변경)일자 2011-11-15
형별 23평형
세대수 21
전용면적 (㎡) 59.78
공용면적 (㎡) 18.84

단위세대평면도 이미지

23평형 단위세대평면도-확장형

23평형 단위세대평면도-확장형
공급면적 (㎡) 78.62
사업시행인가(변경)일자 2011-11-15
형별 23평형
세대수 21
전용면적 (㎡) 59.78
공용면적 (㎡) 18.84

단위세대평면도 이미지

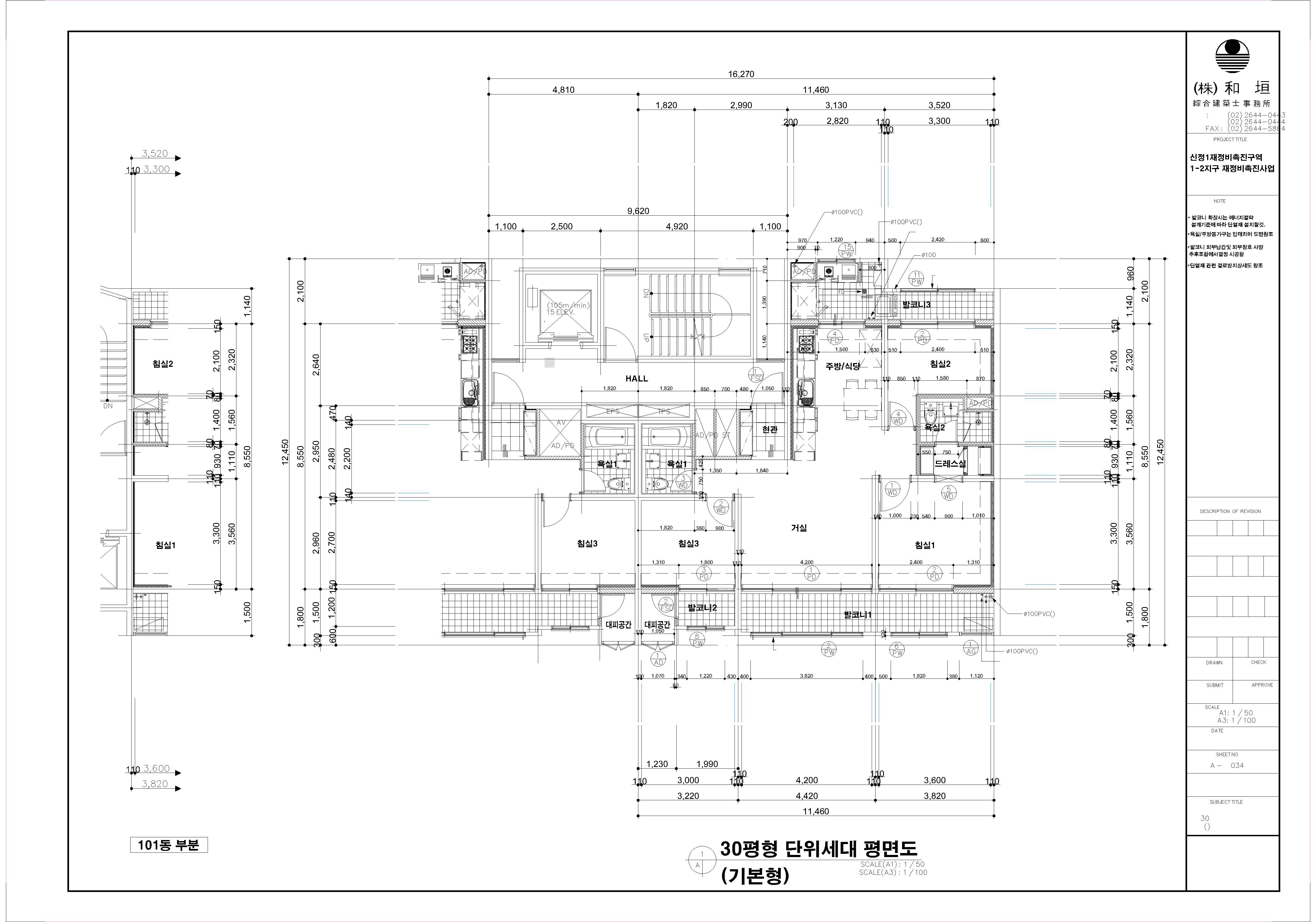
30평 단위세대평면도-기본형

30평 단위세대평면도-기본형
공급면적 (㎡) 99.82
사업시행인가(변경)일자 2011-11-15
형별 30평형
세대수 84
전용면적 (㎡) 75.63
공용면적 (㎡) 24.19

단위세대평면도 이미지

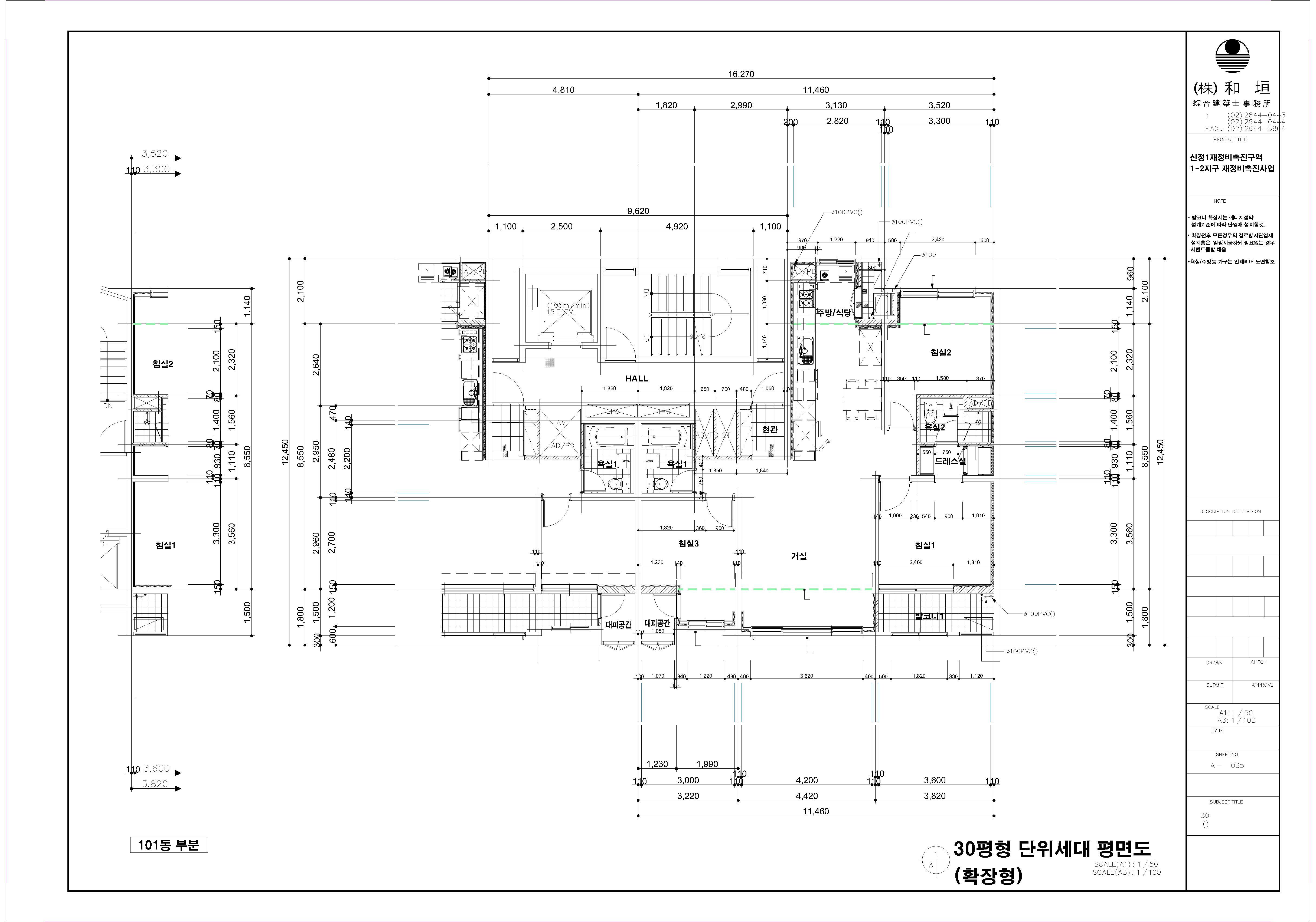
30평 단위세대평면도-확장형

30평 단위세대평면도-확장형
공급면적 (㎡) 99.82
사업시행인가(변경)일자 2011-11-15
형별 30평형
세대수 84
전용면적 (㎡) 75.63
공용면적 (㎡) 24.19

단위세대평면도 이미지

33평A / 33평B 단위세대평면도-기본형

33평A / 33평B 단위세대평면도-기본형
공급면적 (㎡) 33평A 110.66 / 33평B 110.40
사업시행인가(변경)일자 2011-11-15
형별 33평A / 33평B
세대수 33평A 78 / 33평B 80
전용면적 (㎡) 33평A 84.22 / 33평B 84.04
공용면적 (㎡) 33평A 26.44 / 33평B 26.36

단위세대평면도 이미지

33평A / 33평B 단위세대평면도-확장형

33평A / 33평B 단위세대평면도-확장형
공급면적 (㎡) 33평A 110.66 / 33평B 110.40
사업시행인가(변경)일자 2011-11-15
형별 33평A / 33평B
세대수 33평A 78 / 33평B 80
전용면적 (㎡) 33평A 84.22 / 33평B 84.04
공용면적 (㎡) 33평A 26.44 / 33평B 26.36

단위세대평면도 이미지

42평 단위세대평면도-기본형

42평 단위세대평면도-기본형
공급면적 (㎡) 140.09
사업시행인가(변경)일자 2011-11-15
형별 42평형
세대수 33
전용면적 (㎡) 107.57
공용면적 (㎡) 32.52

단위세대평면도 이미지

42평형 단위세대 평면도-확장형

42평형 단위세대 평면도-확장형
공급면적 (㎡) 140.09
사업시행인가(변경)일자 2011-11-15
형별 42
세대수 33
전용면적 (㎡) 107.57
공용면적 (㎡) 32.52

단위세대평면도 이미지

사업추진 단계별
공개자료 조회

툴팁 아이콘
원하시는 사업 추진단계에 등록된 자료들을 조회해 보실 수 있습니다.