단위세대평면도
정비사업 추진과정을 유리알처럼 투명하게 공개

평형별단위세대평면도(획지1)

평형별단위세대평면도(획지1)
공급면적 (㎡) 19,295.42
사업시행인가(변경)일자 2009-11-30
형별 평형별단위세대평면도(획지1)
세대수 197
전용면적 (㎡) 14,184.25
공용면적 (㎡) 5,111.17

단위세대평면도 이미지

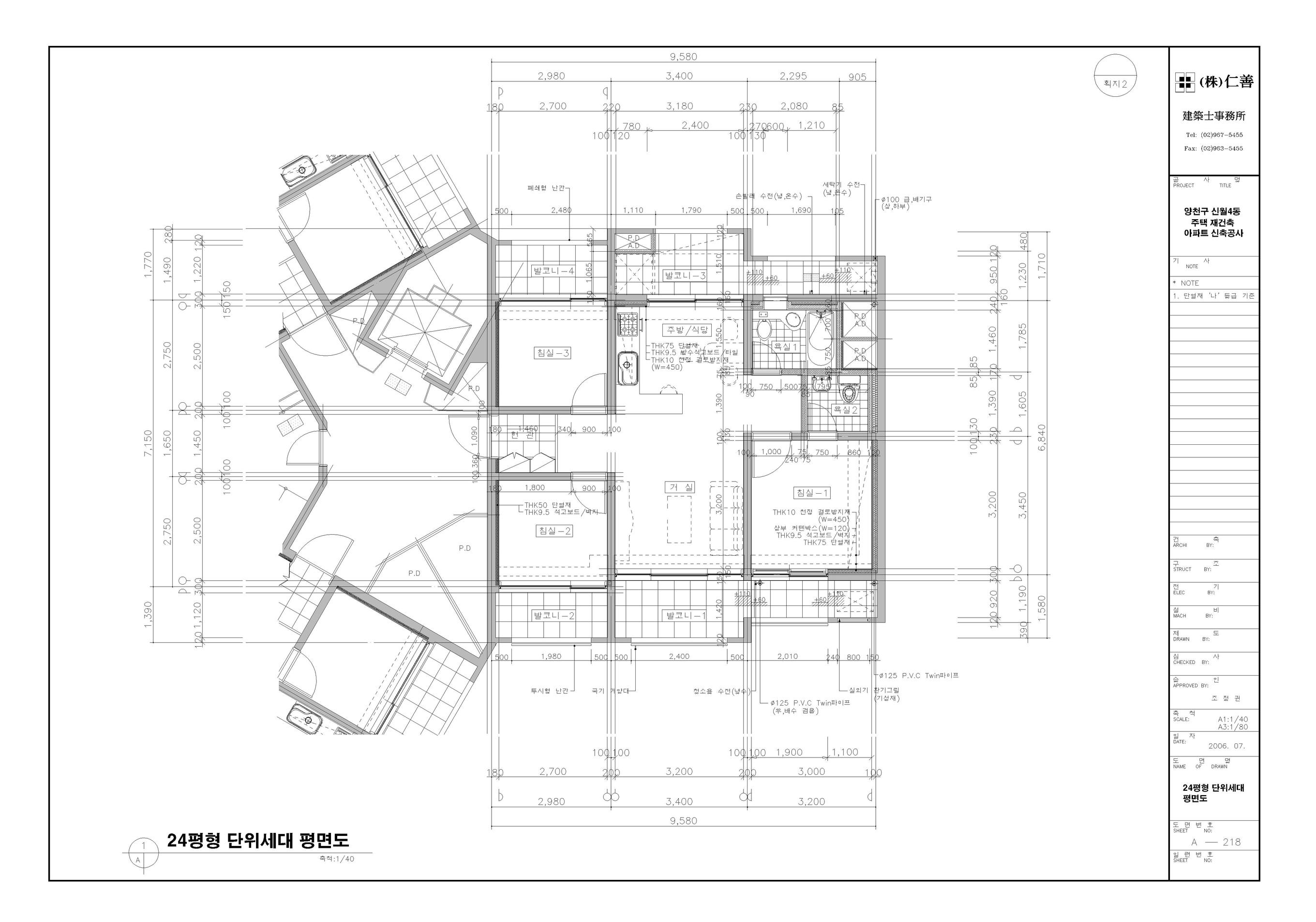
평형별단위세대평면도(획지2)

평형별단위세대평면도(획지2)
공급면적 (㎡) 12,292,87
사업시행인가(변경)일자 2009-11-30
형별 평형별단위세대평면도(획지2)
세대수 120
전용면적 (㎡) 9,253.56
공용면적 (㎡) 3,039.31

단위세대평면도 이미지

사업추진 단계별
공개자료 조회

툴팁 아이콘
원하시는 사업 추진단계에 등록된 자료들을 조회해 보실 수 있습니다.