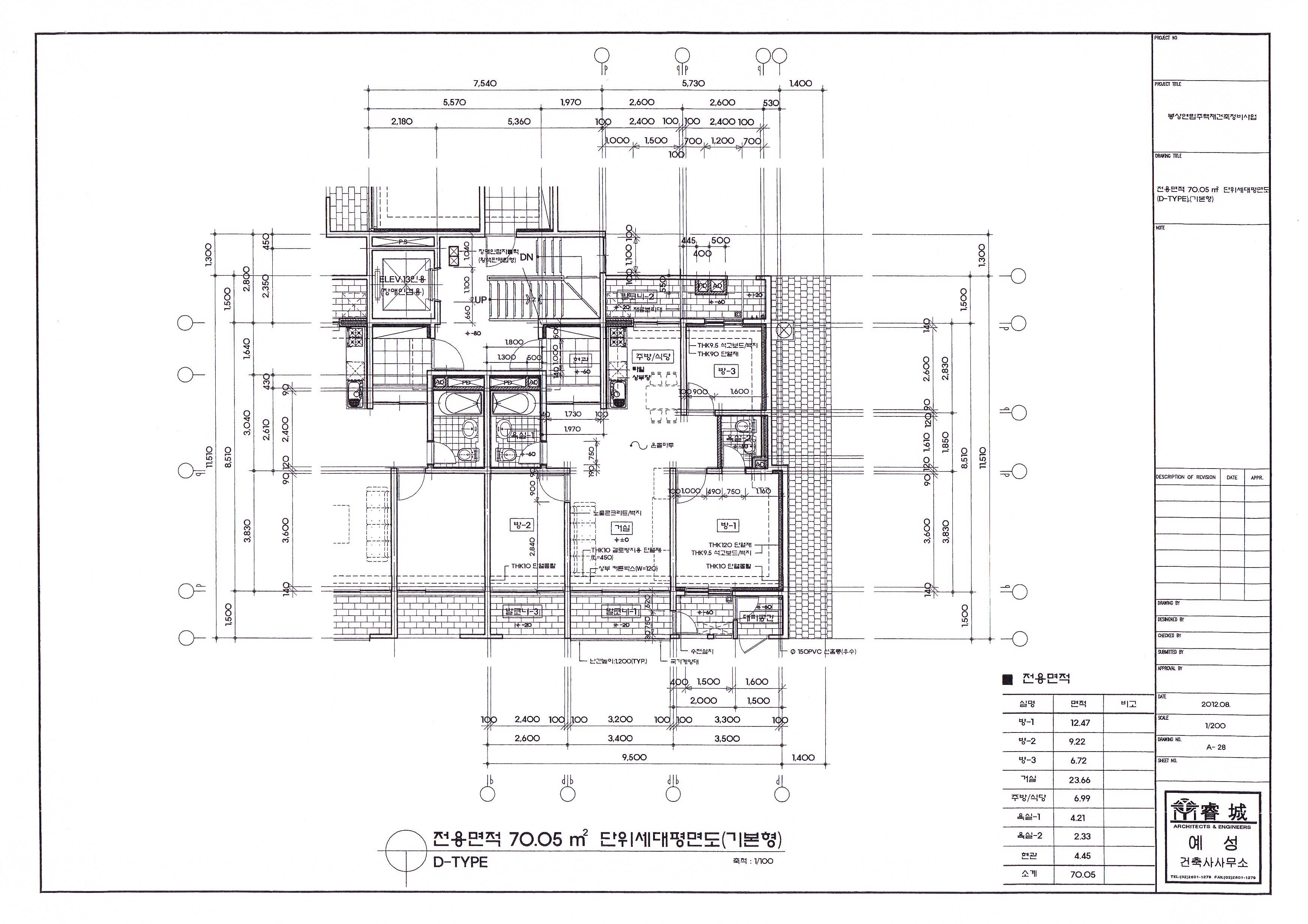
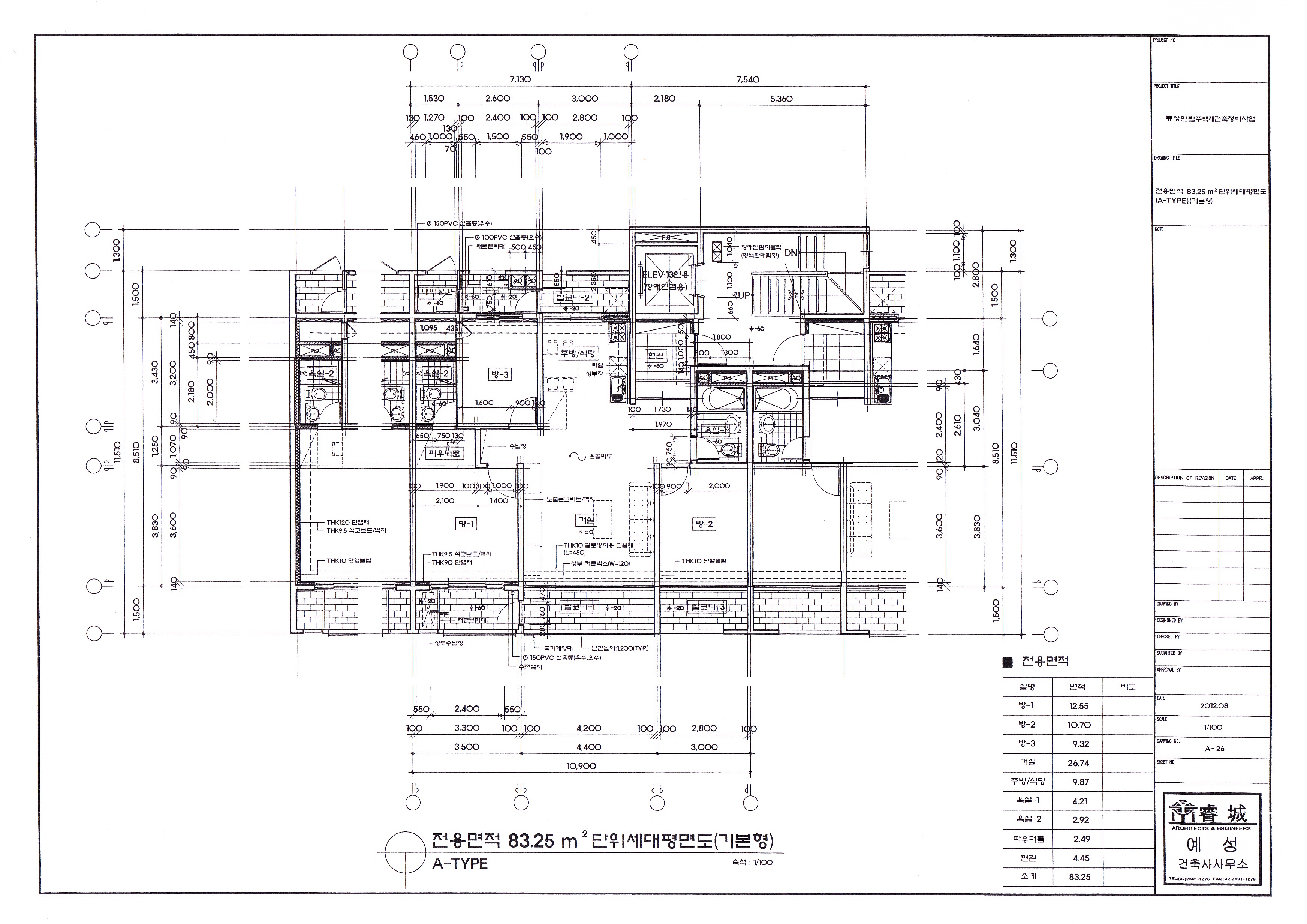
단위세대평면도
정비사업 추진과정을 유리알처럼 투명하게 공개
| 공급면적 (㎡) | 100.4794 |
|---|---|
| 사업시행인가(변경)일자 | 2012-10-18 |
| 형별 | a-type |
| 세대수 | 34 |
| 전용면적 (㎡) | 83.25 |
| 공용면적 (㎡) | 17.2294 |
| 공급면적 (㎡) | 101.1121 |
|---|---|
| 사업시행인가(변경)일자 | 2012-10-18 |
| 형별 | b-type |
| 세대수 | 6 |
| 전용면적 (㎡) | 83.20 |
| 공용면적 (㎡) | 17.9121 |
| 공급면적 (㎡) | 101.3959 |
|---|---|
| 사업시행인가(변경)일자 | 2012-10-18 |
| 형별 | c-type |
| 세대수 | 6 |
| 전용면적 (㎡) | 83.50 |
| 공용면적 (㎡) | 17.8959 |
| 공급면적 (㎡) | 84.7146 |
|---|---|
| 사업시행인가(변경)일자 | 2012-10-18 |
| 형별 | d-type |
| 세대수 | 1 |
| 전용면적 (㎡) | 70.05 |
| 공용면적 (㎡) | 14.6646 |
| 공급면적 (㎡) | 58.5966 |
|---|---|
| 사업시행인가(변경)일자 | 2012-10-18 |
| 형별 | e-type |
| 세대수 | 1 |
| 전용면적 (㎡) | 48.05 |
| 공용면적 (㎡) | 10.5466 |