단위세대평면도
정비사업 추진과정을 유리알처럼 투명하게 공개

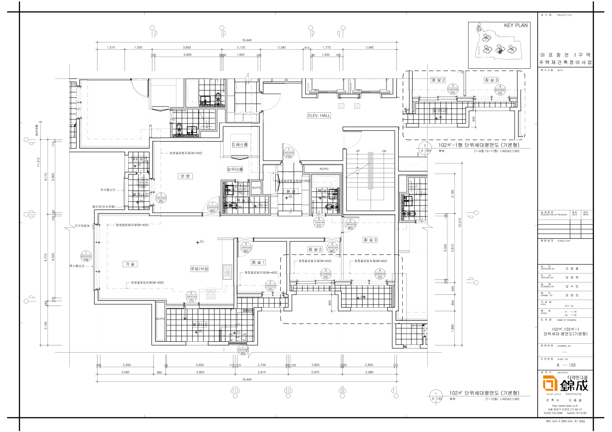
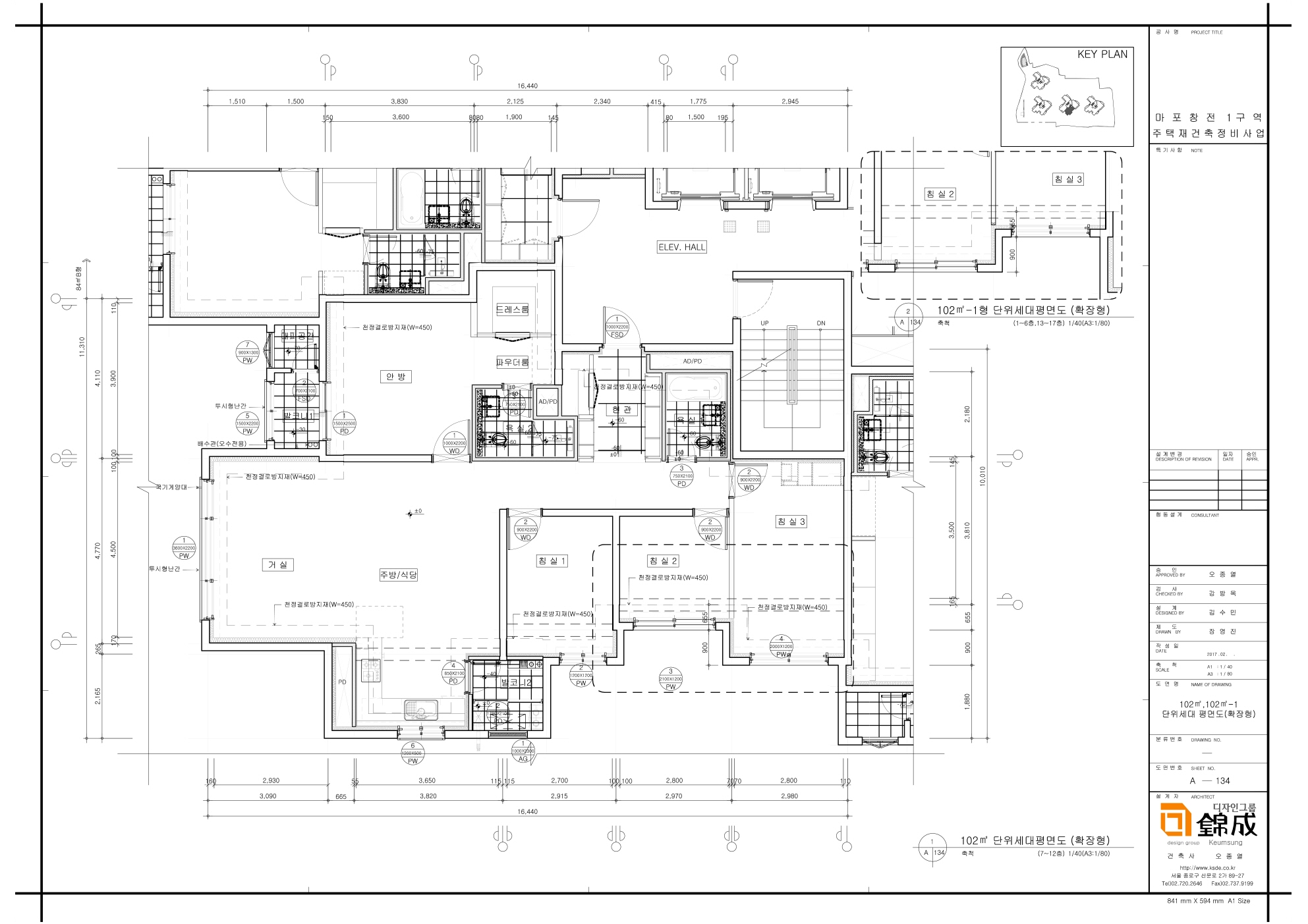
102㎡형,102㎡-1형 단위세대 평면도

102㎡형,102㎡-1형 단위세대 평면도
공급면적 (㎡) 102㎡형 : 134.5136㎡,102㎡-1형 : 134.5024㎡
사업시행인가(변경)일자 2017-04-13
형별 102㎡형,102㎡-1형
세대수 102㎡형 : 6세대,102㎡-1형 : 11세대
전용면적 (㎡) 102㎡형 : 102.7090㎡,102㎡-1형 : 102.7000㎡
공용면적 (㎡) 102㎡형 : 31.8046㎡,102㎡-1형 : 31.8024㎡

단위세대평면도 이미지

단위세대평면도 이미지

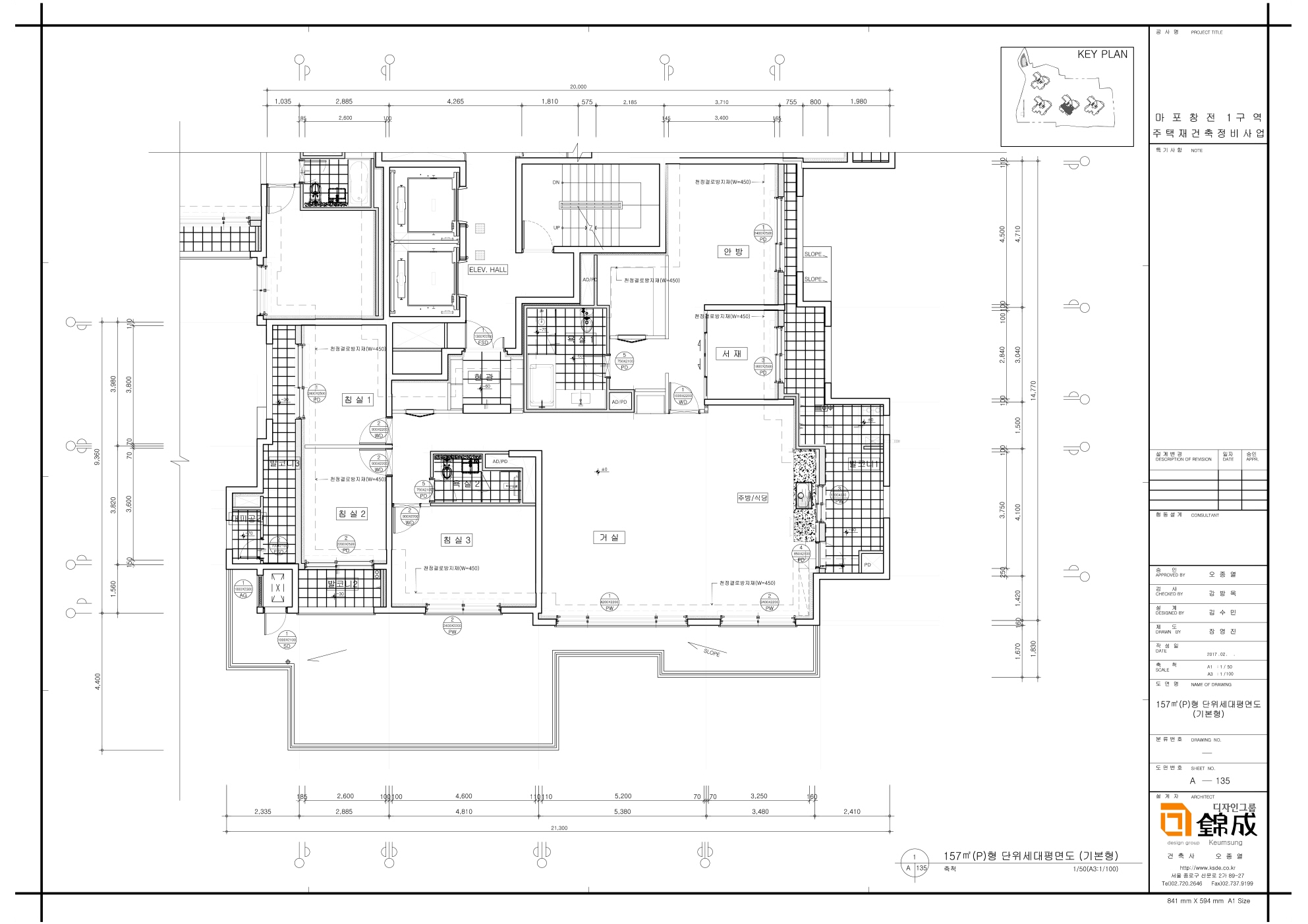
157㎡-P형 단위세대 평면도

157㎡-P형 단위세대 평면도
공급면적 (㎡) 205.1625㎡
사업시행인가(변경)일자 2017-04-13
형별 157㎡-P형
세대수 1세대
전용면적 (㎡) 157.2620㎡
공용면적 (㎡) 47.9005㎡

단위세대평면도 이미지

단위세대평면도 이미지

59㎡-A형 단위세대 평면도

59㎡-A형 단위세대 평면도
공급면적 (㎡) 80.7221㎡
사업시행인가(변경)일자 2017-04-13
형별 59㎡-A형
세대수 11세대
전용면적 (㎡) 59.9890㎡
공용면적 (㎡) 20.7331㎡

단위세대평면도 이미지

단위세대평면도 이미지

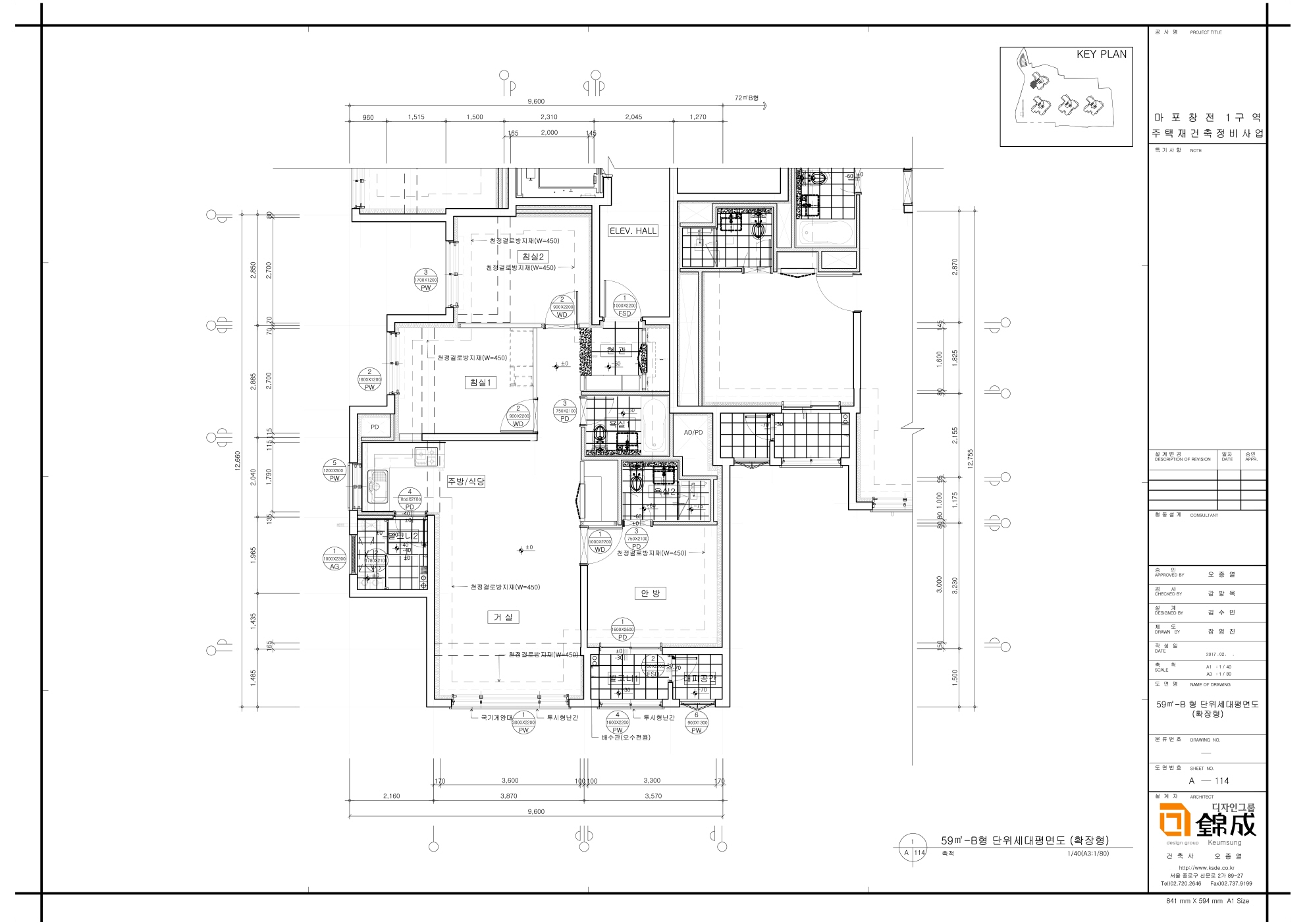
59㎡-B형 단위세대 평면도

59㎡-B형 단위세대 평면도
공급면적 (㎡) 79.3674㎡
사업시행인가(변경)일자 2017-04-13
형별 59㎡-B형
세대수 13세대
전용면적 (㎡) 59.8170㎡
공용면적 (㎡) 19.5504㎡

단위세대평면도 이미지

단위세대평면도 이미지

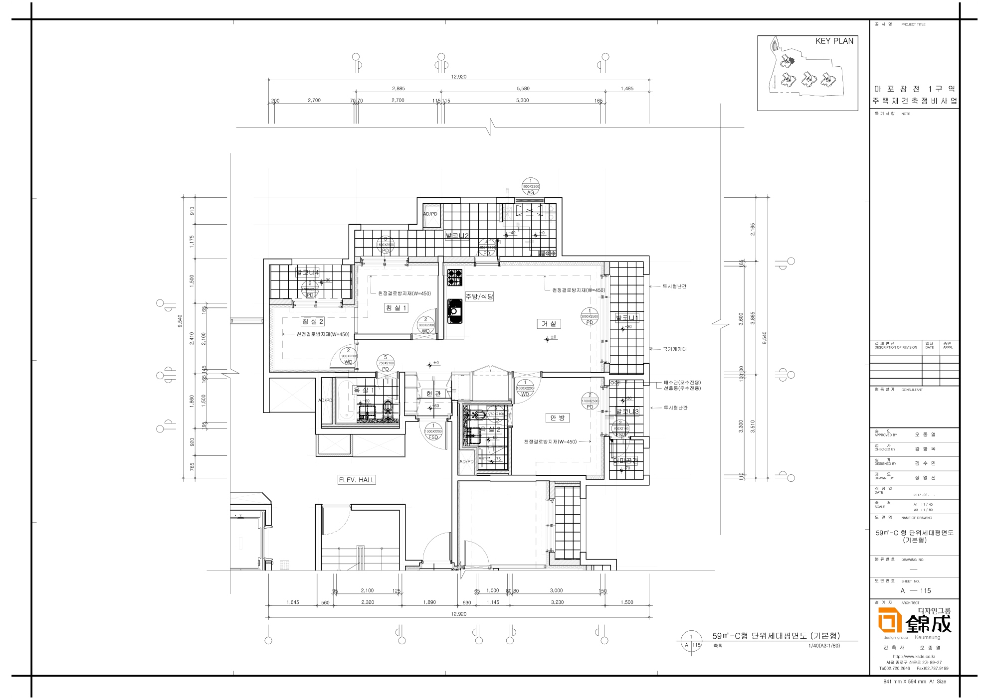
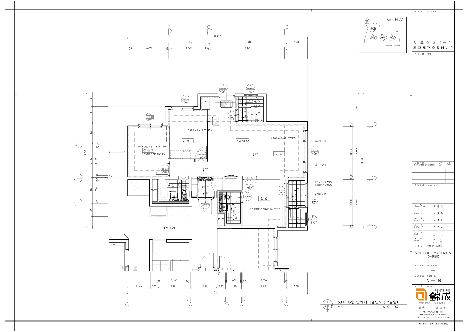
59㎡-C형 단위세대 평면도

59㎡-C형 단위세대 평면도
공급면적 (㎡) 79.7423㎡
사업시행인가(변경)일자 2017-04-13
형별 59㎡-C형
세대수 14
전용면적 (㎡) 59.8040㎡
공용면적 (㎡) 19.9383㎡

단위세대평면도 이미지

단위세대평면도 이미지

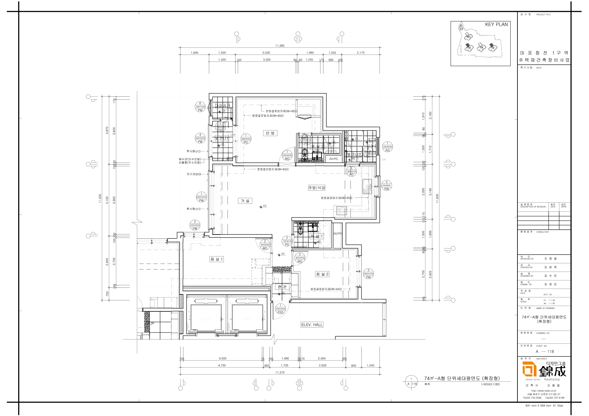
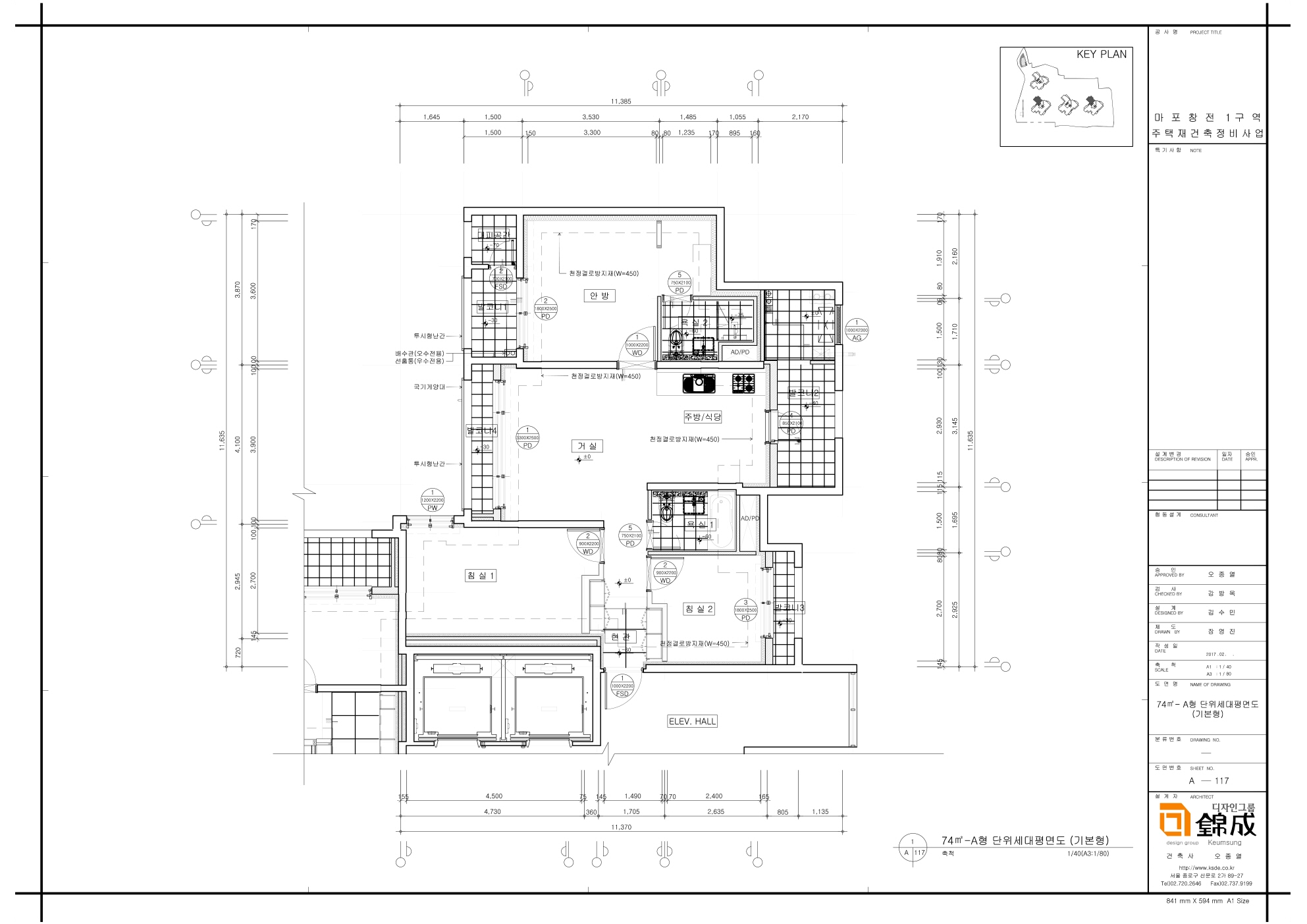
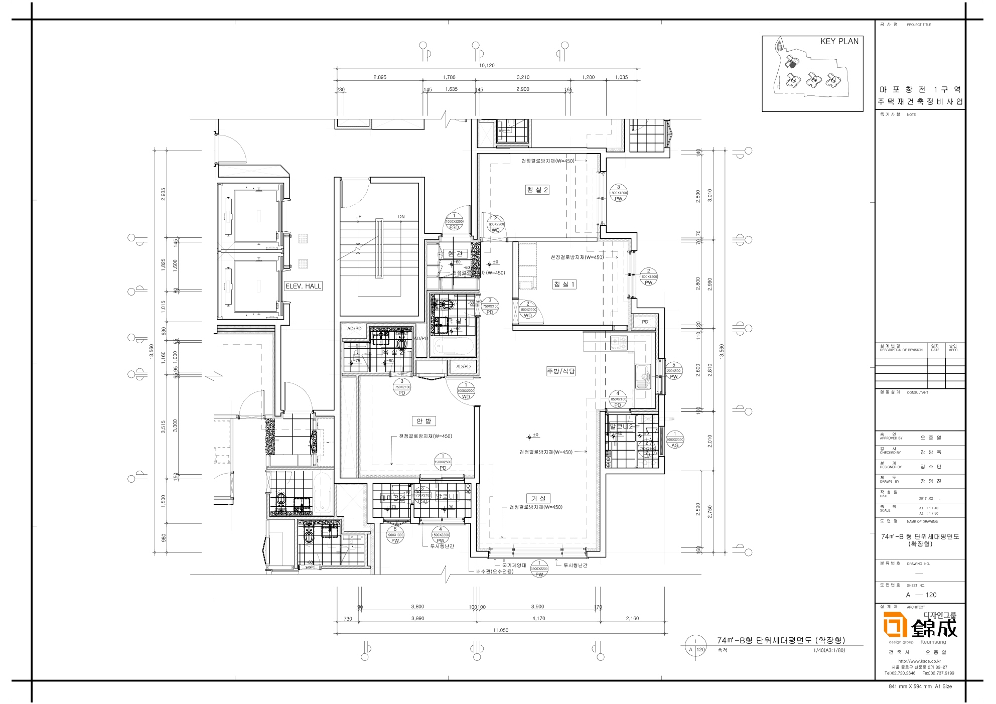
74㎡-A형 단위세대 평면도

74㎡-A형 단위세대 평면도
공급면적 (㎡) 99.1078㎡
사업시행인가(변경)일자 2017-04-13
형별 74㎡-A형
세대수 35세대
전용면적 (㎡) 74.7840㎡
공용면적 (㎡) 24.3238㎡

단위세대평면도 이미지

단위세대평면도 이미지

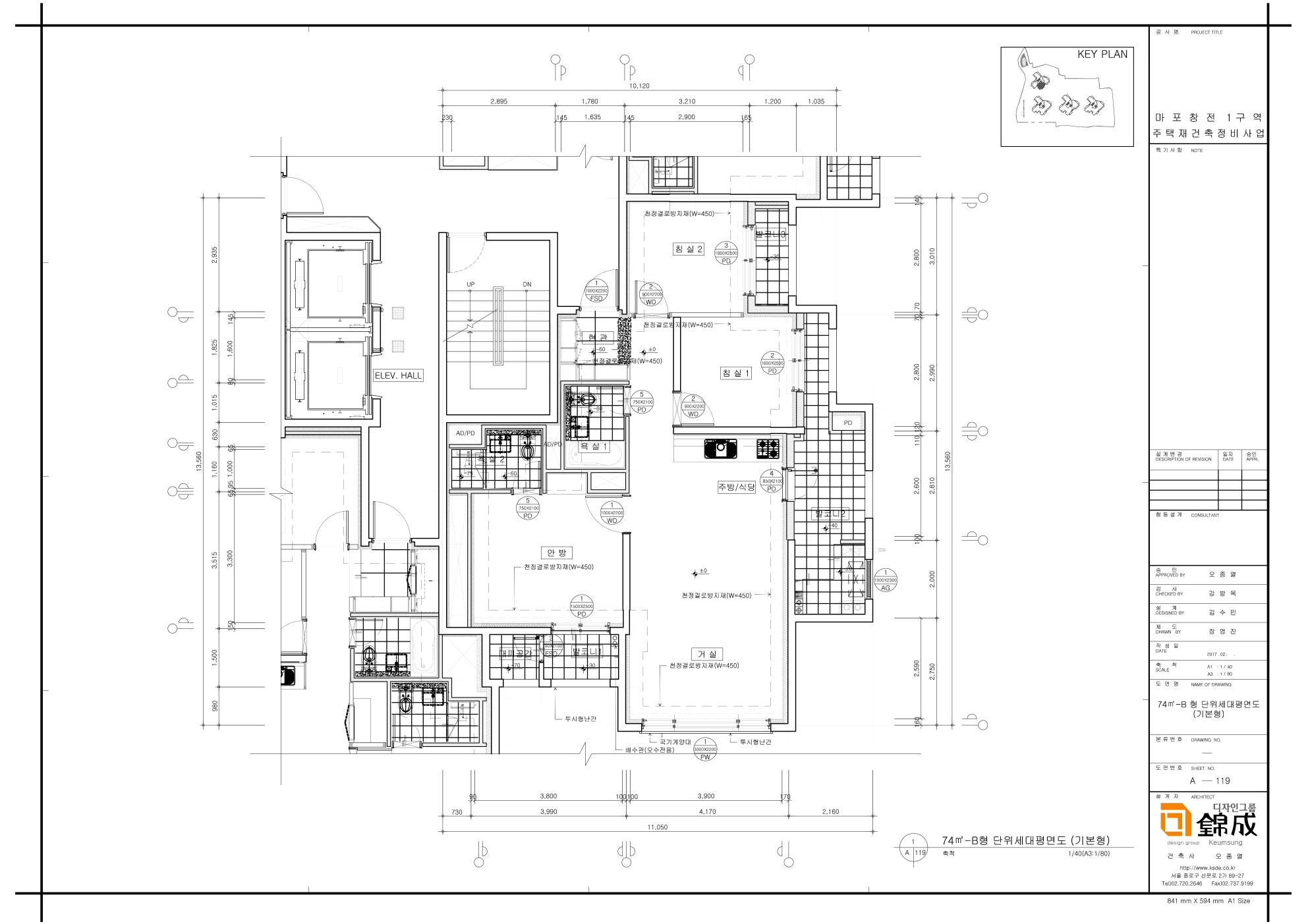
74㎡-B형 단위세대 평면도

74㎡-B형 단위세대 평면도
공급면적 (㎡) 99.2144㎡
사업시행인가(변경)일자 2017-04-13
형별 74㎡-B형
세대수 14세대
전용면적 (㎡) 74.7910㎡
공용면적 (㎡) 24.4234㎡

단위세대평면도 이미지

단위세대평면도 이미지

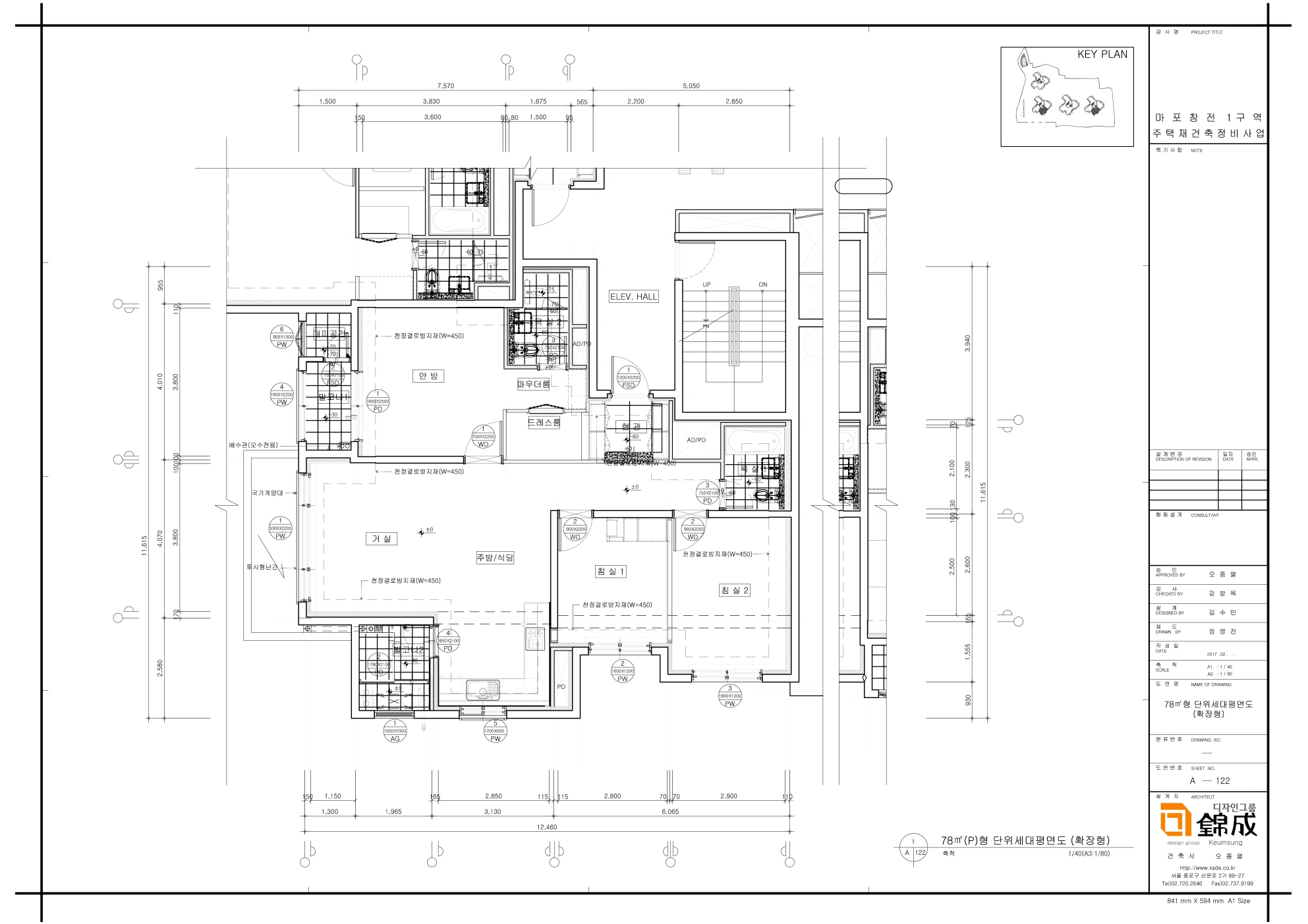
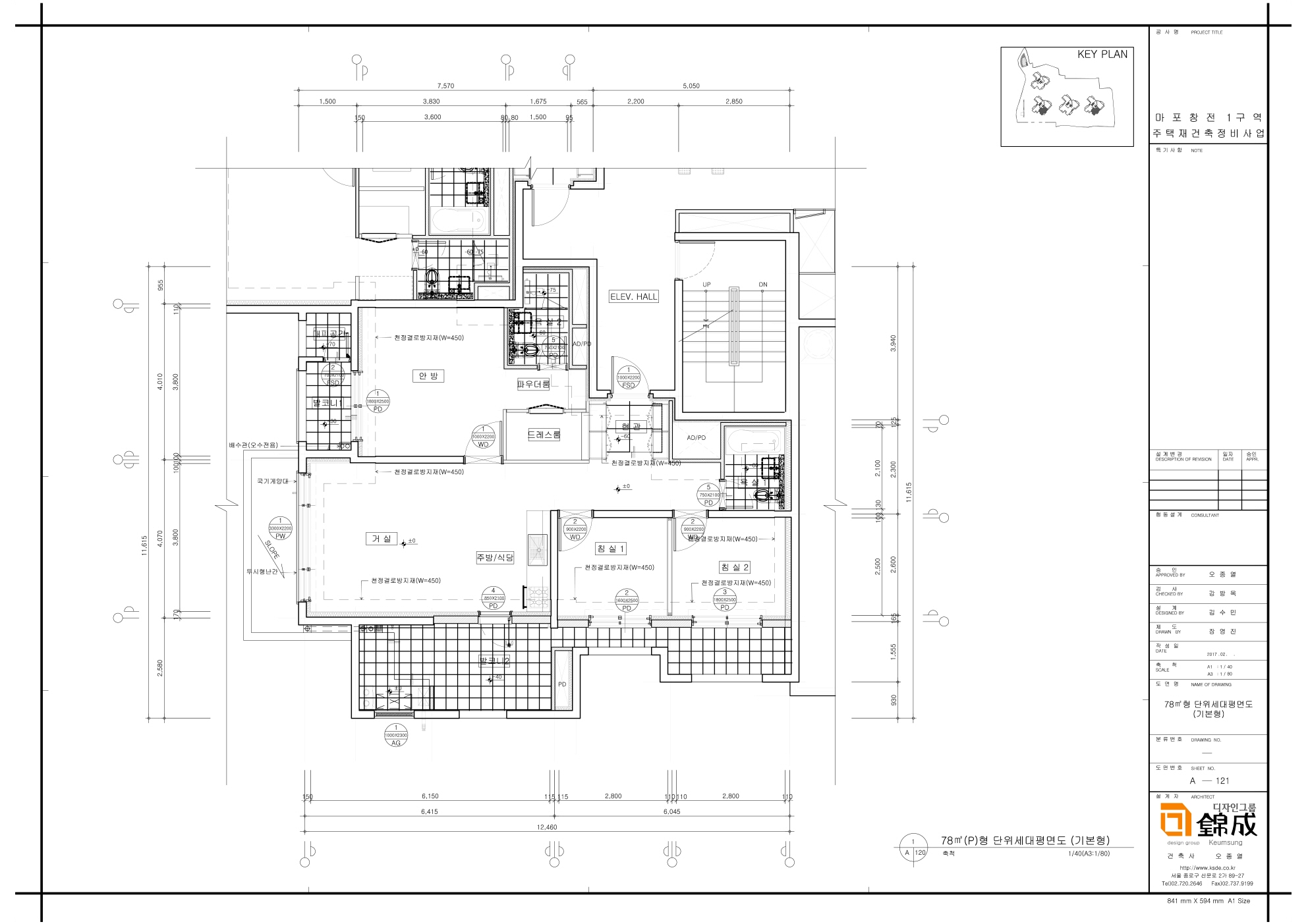
78㎡-P형 단위세대 평면도

78㎡-P형 단위세대 평면도
공급면적 (㎡) 103.1675㎡
사업시행인가(변경)일자 2017-04-13
형별 78㎡-P형
세대수 2세대
전용면적 (㎡) 78.4670㎡
공용면적 (㎡) 24.7005㎡

단위세대평면도 이미지

단위세대평면도 이미지

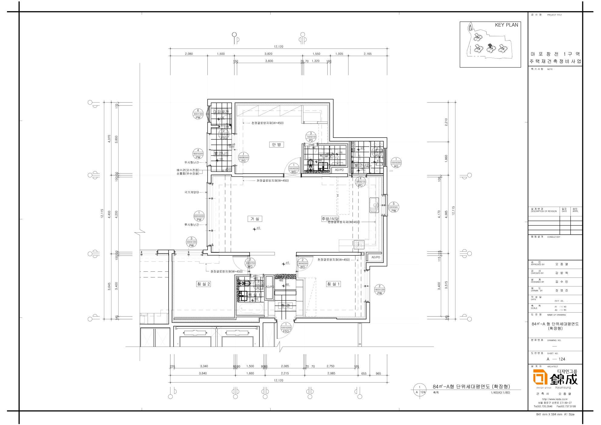
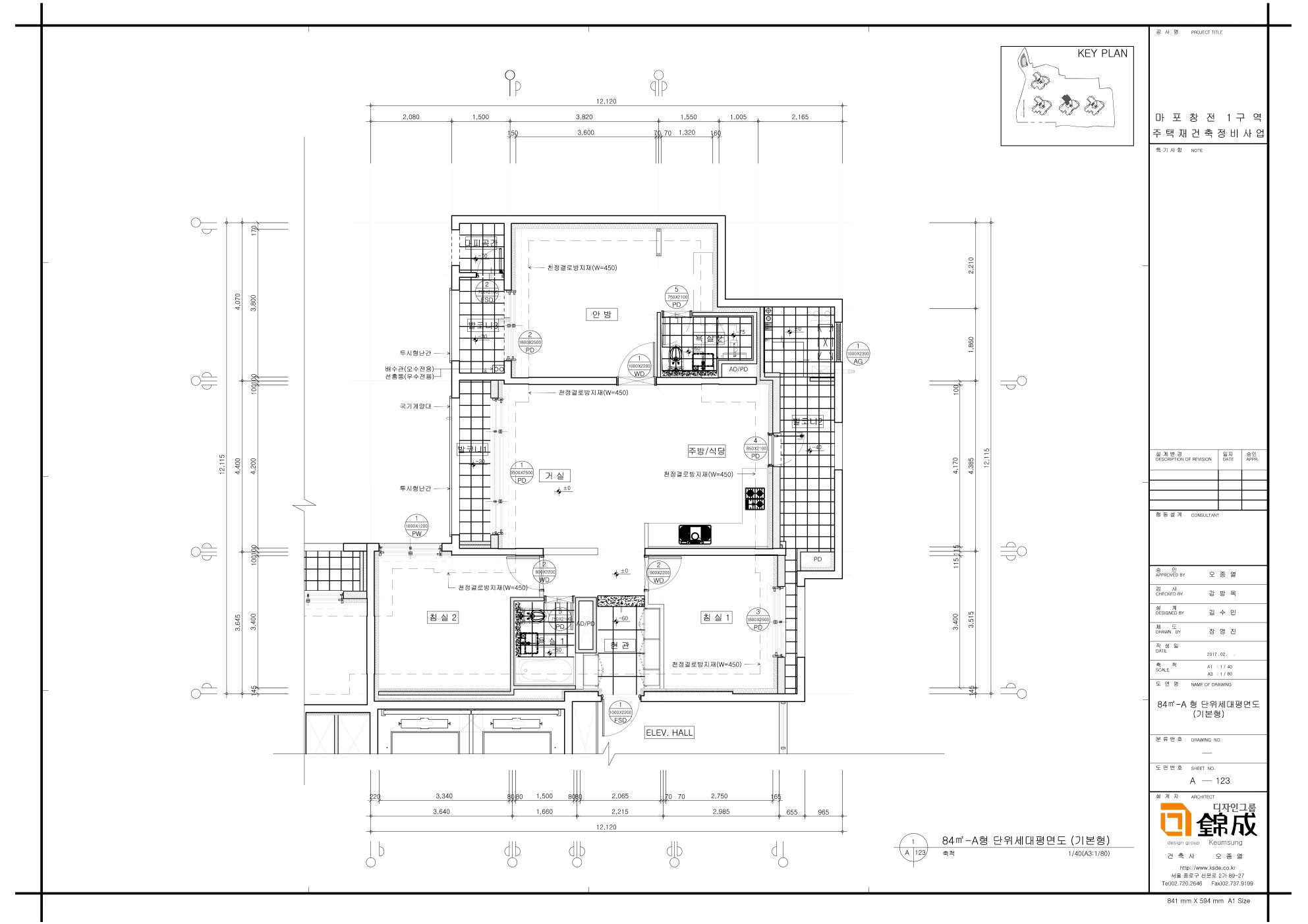
84㎡-A형 단위세대 평면도

84㎡-A형 단위세대 평면도
공급면적 (㎡) 112.2135㎡
사업시행인가(변경)일자 2017-04-13
형별 84㎡-A형
세대수 21세대
전용면적 (㎡) 84.5580㎡
공용면적 (㎡) 27.6555㎡

단위세대평면도 이미지

단위세대평면도 이미지

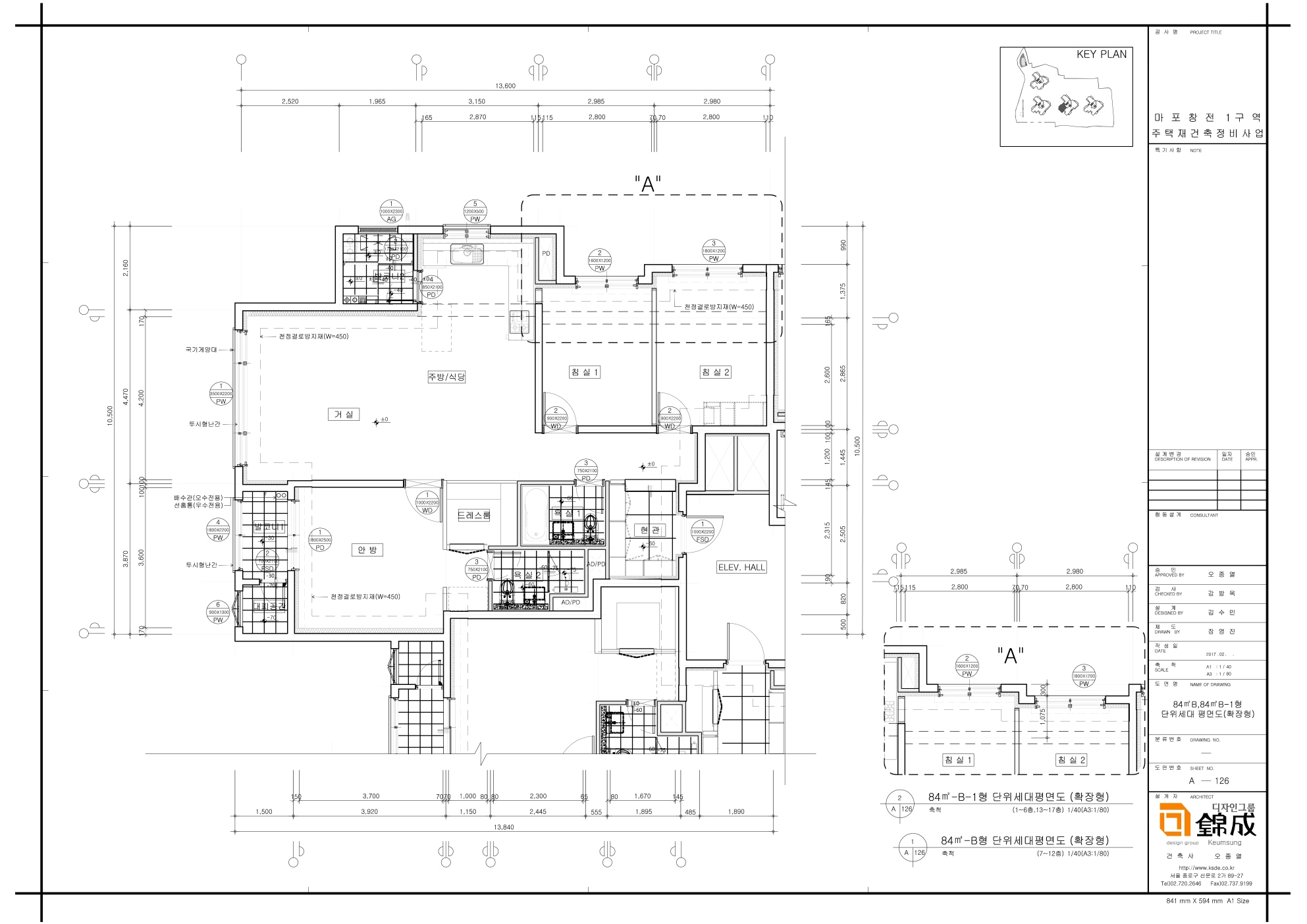
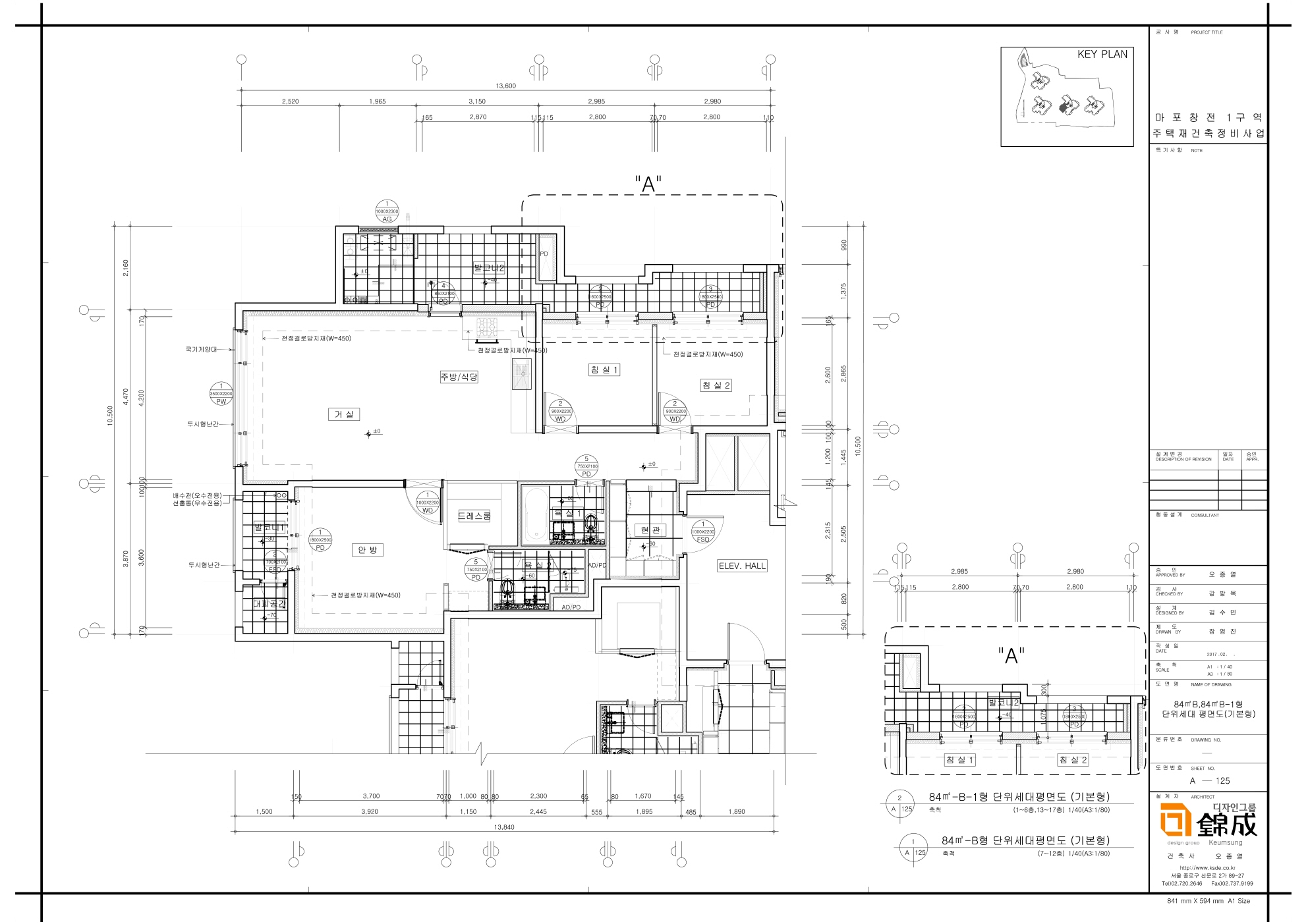
84㎡-B형,B-1형 단위세대 평면도

84㎡-B형,B-1형 단위세대 평면도
공급면적 (㎡) 84㎡-B형 : 111.4471㎡, 84㎡-B-1형 : 111.4595㎡
사업시행인가(변경)일자 2017-04-13
형별 84㎡-B형,B-1형
세대수 84㎡-B형 : 6세대, 84㎡-B-1형 : 11세대
전용면적 (㎡) 84㎡-B형 : 84.7850㎡, 84㎡-B-1형 : 84.7950㎡
공용면적 (㎡) 84㎡-B형 : 26.6621㎡, 84㎡-B-1형 : 26.6645㎡

단위세대평면도 이미지

단위세대평면도 이미지

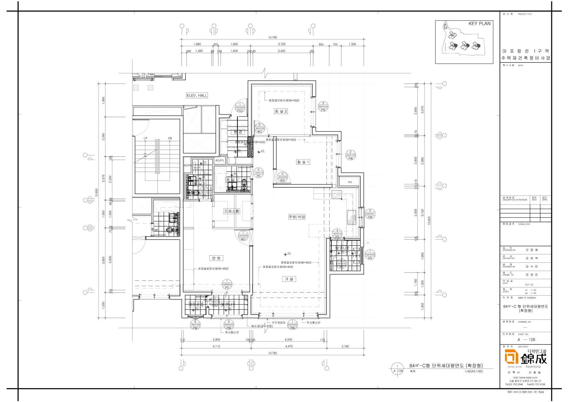
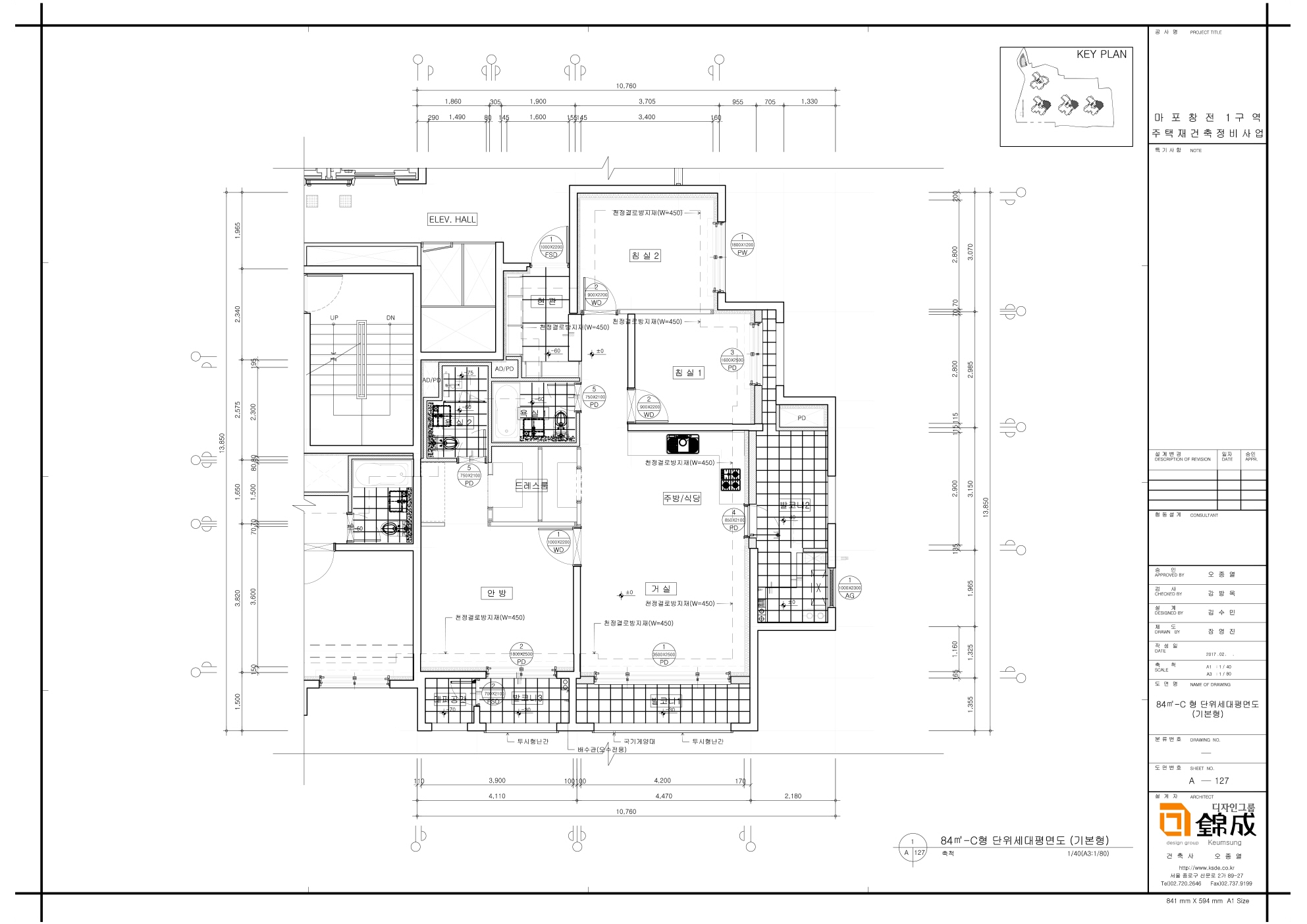
84㎡-C형 단위세대 평면도

84㎡-C형 단위세대 평면도
공급면적 (㎡) 111.2910㎡
사업시행인가(변경)일자 2017-04-13
형별 84㎡-C형
세대수 58세대
전용면적 (㎡) 84.7930㎡
공용면적 (㎡) 26.4980㎡

단위세대평면도 이미지

단위세대평면도 이미지

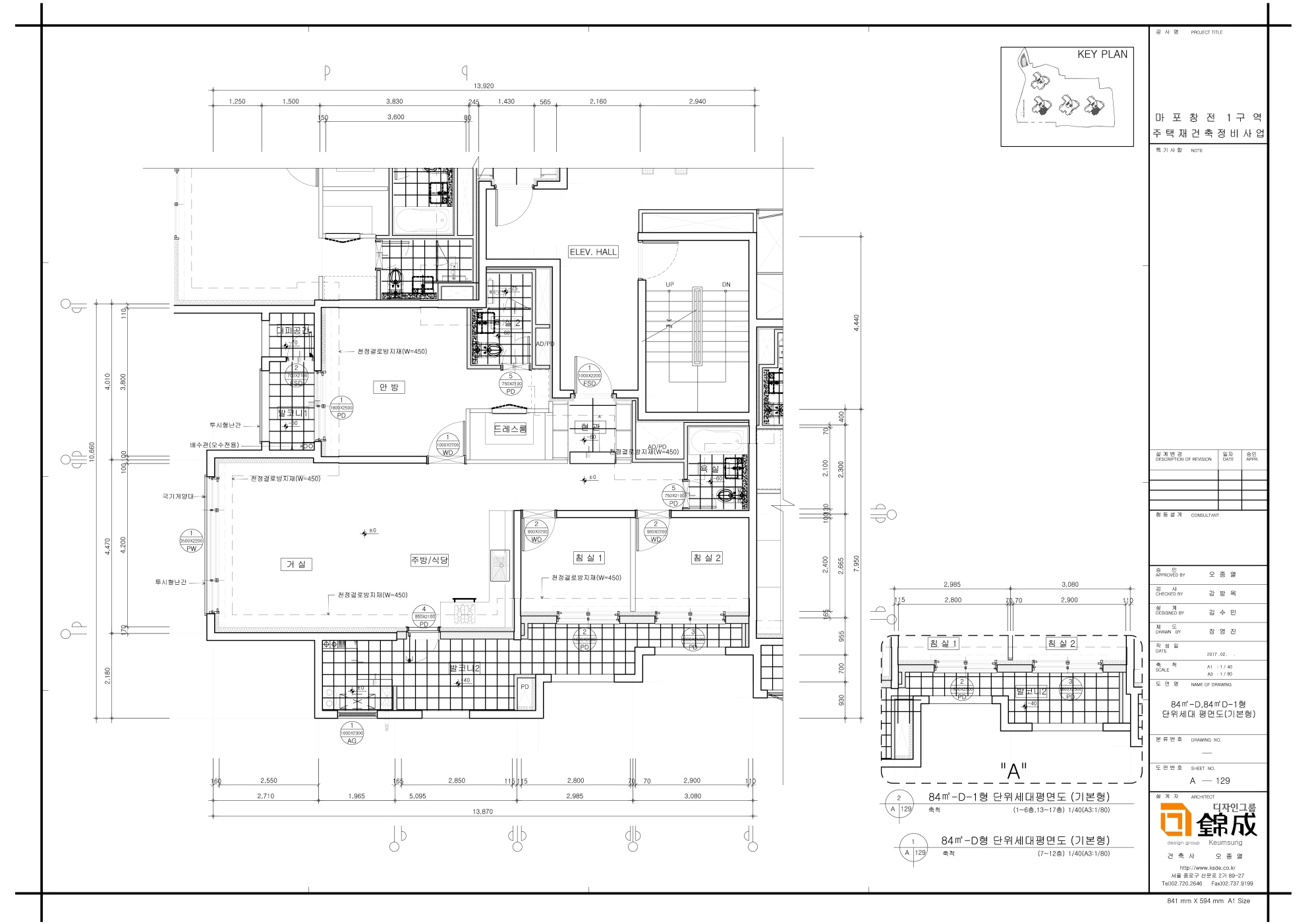
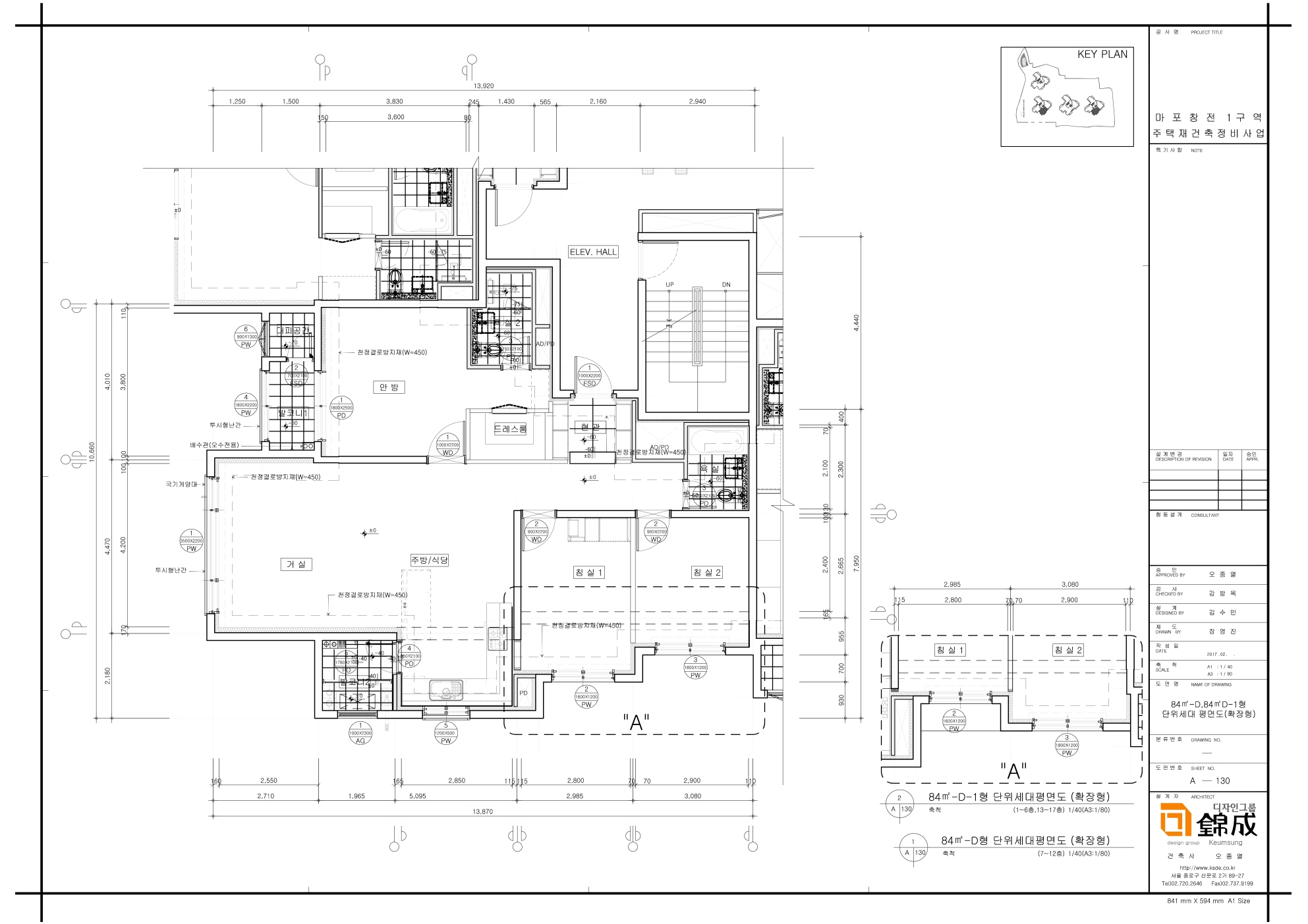
84㎡-D형,D-1형 단위세대 평면도

84㎡-D형,D-1형 단위세대 평면도
공급면적 (㎡) 84㎡-D형 : 111.7639㎡, 84㎡-D-1형 : 111.8195㎡
사업시행인가(변경)일자 2017-04-13
형별 84㎡-D형,D-1형
세대수 84㎡-D형 : 12세대, 84㎡-D-1형 : 21세대
전용면적 (㎡) 84㎡-D형 : 84.6740㎡, 84㎡-D-1형 : 84.7190㎡
공용면적 (㎡) 84㎡-D형 : 27.0899㎡, 84㎡-D-1형 : 27.1005㎡

단위세대평면도 이미지

단위세대평면도 이미지

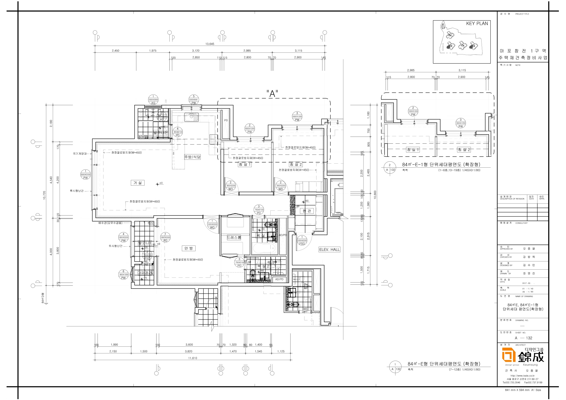
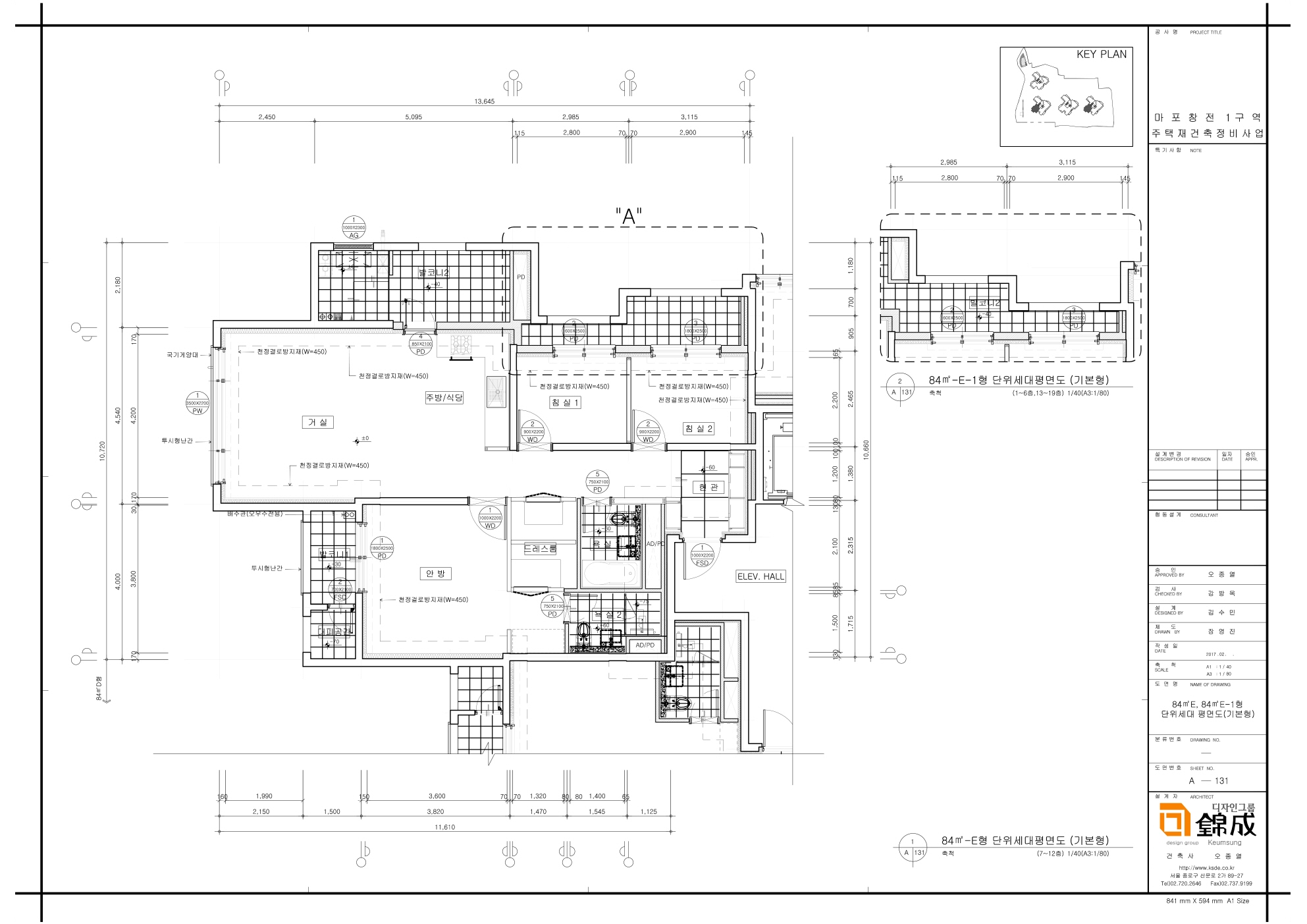
84㎡-E형,E-1형 단위세대 평면도

84㎡-E형,E-1형 단위세대 평면도
공급면적 (㎡) 84㎡-E형 : 111.3195㎡, 84㎡-E-1형 : 111.2070㎡
사업시행인가(변경)일자 2017-04-13
형별 84㎡-E형,E-1형
세대수 84㎡-E형 : 15세대, 84㎡-E-1형 : 25세대
전용면적 (㎡) 84㎡-E형 : 84.4820㎡, 84㎡-E-1형 : 84.3910㎡
공용면적 (㎡) 84㎡-E형 : 26.8375㎡, 84㎡-E-1형 : 26.8160㎡

단위세대평면도 이미지

단위세대평면도 이미지

사업추진 단계별
공개자료 조회

툴팁 아이콘
원하시는 사업 추진단계에 등록된 자료들을 조회해 보실 수 있습니다.