단위세대평면도
정비사업 추진과정을 유리알처럼 투명하게 공개
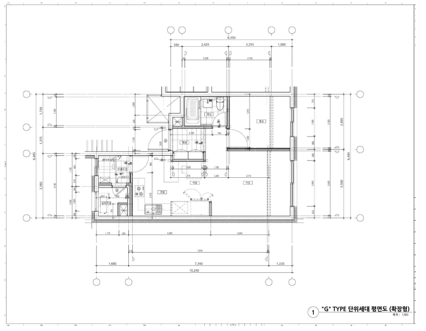
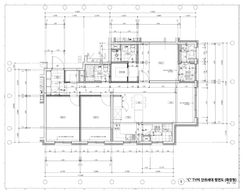
단위세대평면도-A타입, C타입, E타입, G타입(총13개 타입중 일부)
단위세대평면도-A타입, C타입, E타입, G타입(총13개 타입중 일부)
공급면적 (㎡)
75.29㎡외
사업시행인가(변경)일자
2024-05-22
형별
A타입외
세대수
총152세대
전용면적 (㎡)
59.96㎡외
공용면적 (㎡)
45.56㎡외
사업추진 단계별
공개자료 조회
운영구분
사업진행단계
조회
툴팁 아이콘
원하시는 사업 추진단계에 등록된 자료들을 조회해 보실 수 있습니다.
사업개요
위치도
조감도
배치도
단위세대
평면도
찾아오시는길
정보공개
자료열람
추진경과
공사비
변경내역
향후일정
전체보기