단위세대평면도
정비사업 추진과정을 유리알처럼 투명하게 공개

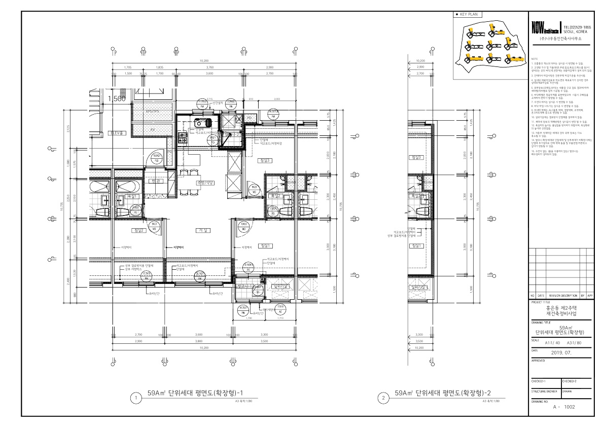
힐스테이트 홍은 포레스트 59㎡A 평면도

힐스테이트 홍은 포레스트 59㎡A 평면도
공급면적 (㎡) 79.79
사업시행인가(변경)일자 2019-08-28
형별 59㎡A 기본형, 확장형
세대수 246
전용면적 (㎡) 59.84
공용면적 (㎡) 19.95

단위세대평면도 이미지

단위세대평면도 이미지

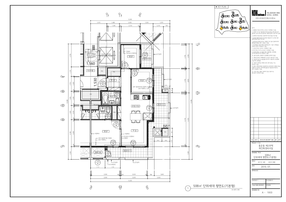
힐스테이트 홍은 포레스트 59㎡B 평면도

힐스테이트 홍은 포레스트 59㎡B 평면도
공급면적 (㎡) 80.67
사업시행인가(변경)일자 2019-08-28
형별 59㎡B 기본형, 확장형
세대수 48
전용면적 (㎡) 59.99
공용면적 (㎡) 20.68

단위세대평면도 이미지

단위세대평면도 이미지

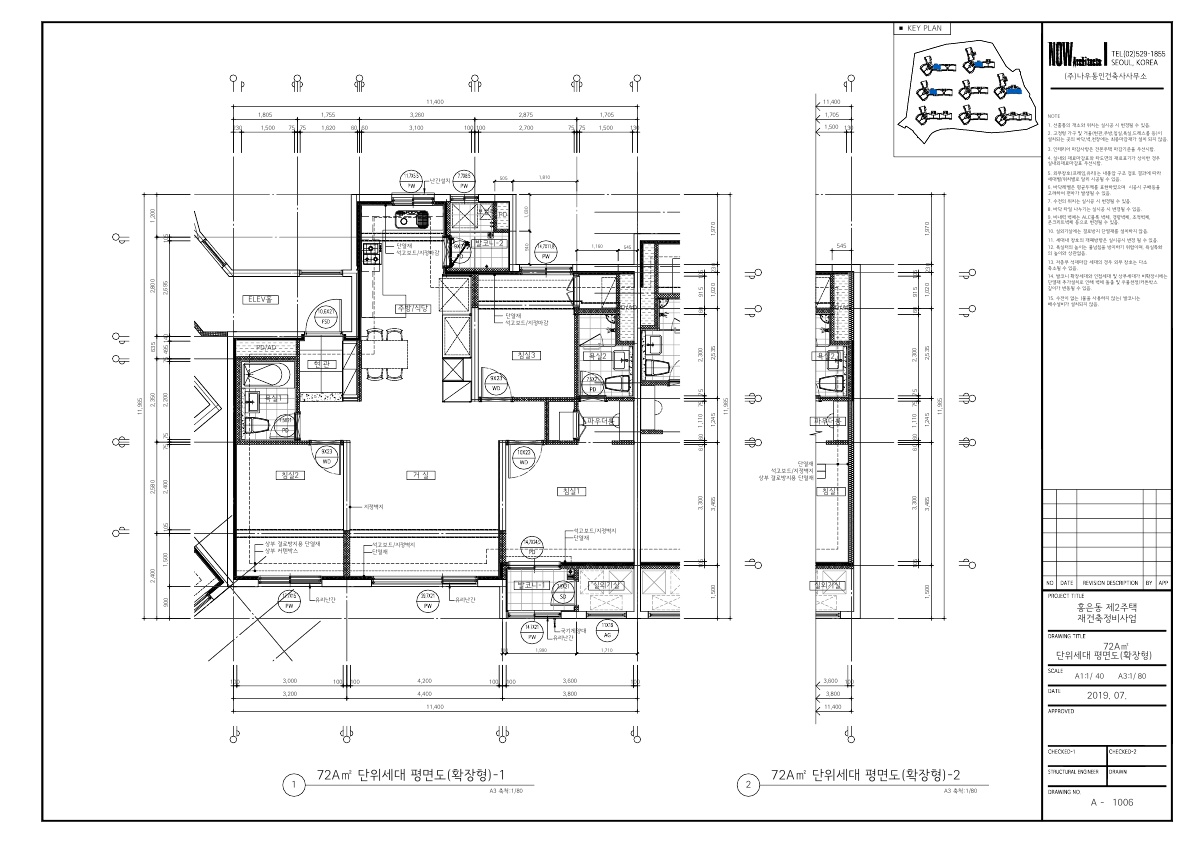
힐스테이트 홍은 포레스트 72㎡A 평면도

힐스테이트 홍은 포레스트 72㎡A 평면도
공급면적 (㎡) 95.95
사업시행인가(변경)일자 2019-08-28
형별 72㎡A 기본형, 확장형
세대수 65
전용면적 (㎡) 72.97
공용면적 (㎡) 22.98

단위세대평면도 이미지

단위세대평면도 이미지

힐스테이트 홍은 포레스트 72㎡B 평면도

힐스테이트 홍은 포레스트 72㎡B 평면도
공급면적 (㎡) 96.24
사업시행인가(변경)일자 2019-08-28
형별 72㎡B 기본형, 확장형
세대수 160
전용면적 (㎡) 72.79
공용면적 (㎡) 23.45

단위세대평면도 이미지

단위세대평면도 이미지

힐스테이트 홍은 포레스트 84㎡ 평면도

힐스테이트 홍은 포레스트 84㎡ 평면도
공급면적 (㎡) 104.90
사업시행인가(변경)일자 2019-08-28
형별 84㎡ 기본형, 확장형
세대수 104
전용면적 (㎡) 84.53
공용면적 (㎡) 20.37

단위세대평면도 이미지

단위세대평면도 이미지

사업추진 단계별
공개자료 조회

툴팁 아이콘
원하시는 사업 추진단계에 등록된 자료들을 조회해 보실 수 있습니다.