단위세대평면도
정비사업 추진과정을 유리알처럼 투명하게 공개

건축시설계획-단위세대평면도(112형)

건축시설계획-단위세대평면도(112형)
공급면적 (㎡) 145.2545
사업시행인가(변경)일자 2016-09-22
형별 112형
세대수 35
전용면적 (㎡) 112.8619
공용면적 (㎡) 32.3926

단위세대평면도 이미지

단위세대평면도 이미지

건축시설계획-단위세대평면도(59)

건축시설계획-단위세대평면도(59)
공급면적 (㎡) 83.8706
사업시행인가(변경)일자 2016-09-22
형별 59
세대수 136
전용면적 (㎡) 59.9835
공용면적 (㎡) 23.8871

단위세대평면도 이미지

단위세대평면도 이미지

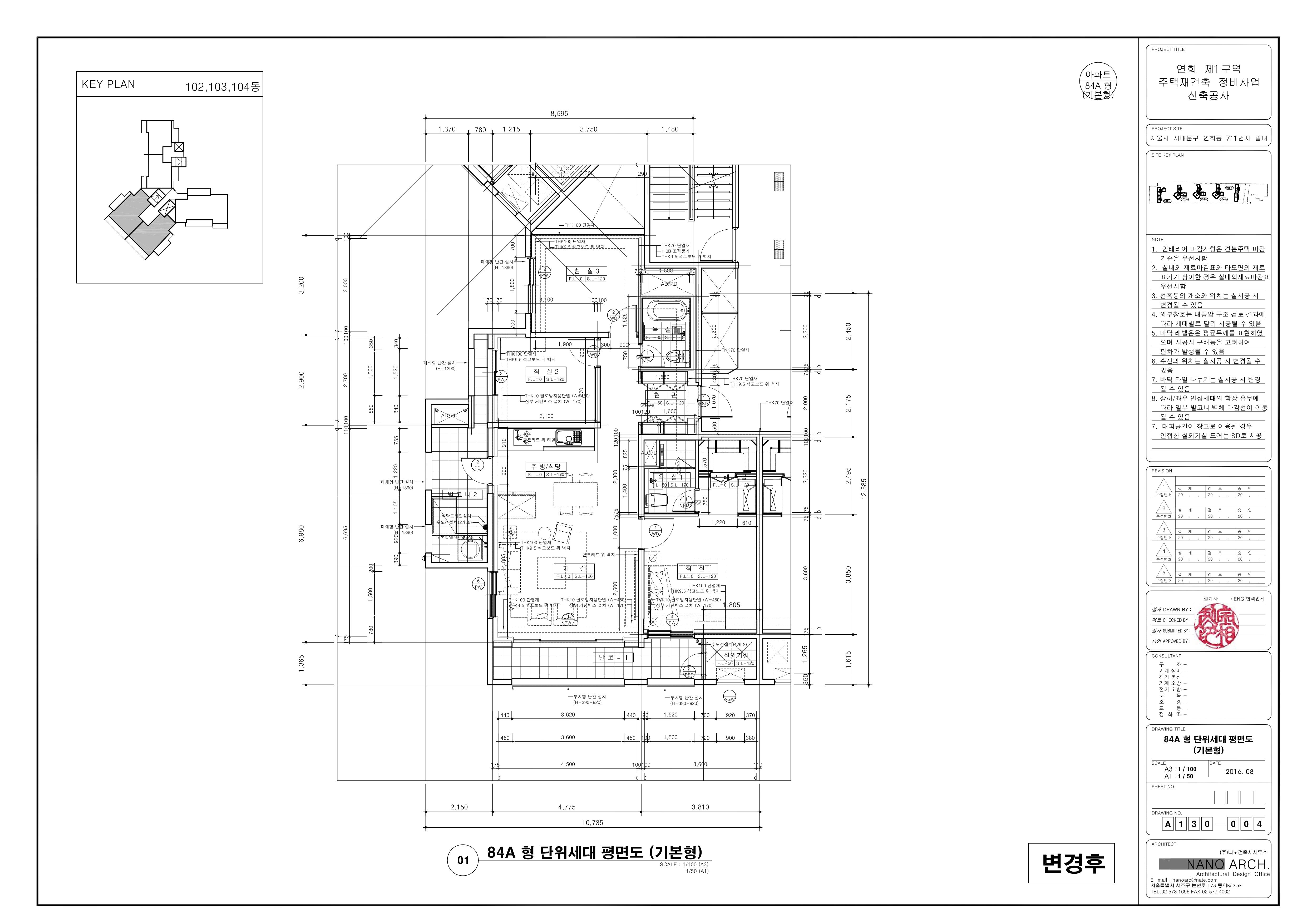
건축시설계획-단위세대평면도(84A)

건축시설계획-단위세대평면도(84A)
공급면적 (㎡) 110.5492
사업시행인가(변경)일자 2016-09-22
형별 84A
세대수 106
전용면적 (㎡) 84.4317
공용면적 (㎡) 26.1175

단위세대평면도 이미지

단위세대평면도 이미지

건축시설계획-단위세대평면도(84B)

건축시설계획-단위세대평면도(84B)
공급면적 (㎡) 109.4164
사업시행인가(변경)일자 2016-09-22
형별 84B
세대수 90
전용면적 (㎡) 84.8003
공용면적 (㎡) 24.6161

단위세대평면도 이미지

단위세대평면도 이미지

건축시설계획-단위세대평면도(84C)

건축시설계획-단위세대평면도(84C)
공급면적 (㎡) 110.2602
사업시행인가(변경)일자 2016-09-22
형별 84C
세대수 14
전용면적 (㎡) 84.6194
공용면적 (㎡) 25.6408

단위세대평면도 이미지

단위세대평면도 이미지

건축시설계획-단위세대평면도(84D)

건축시설계획-단위세대평면도(84D)
공급면적 (㎡) 111.3385
사업시행인가(변경)일자 2016-09-22
형별 84D
세대수 15
전용면적 (㎡) 84.1861
공용면적 (㎡) 25.6408

단위세대평면도 이미지

단위세대평면도 이미지

사업추진 단계별
공개자료 조회

툴팁 아이콘
원하시는 사업 추진단계에 등록된 자료들을 조회해 보실 수 있습니다.