단위세대평면도
정비사업 추진과정을 유리알처럼 투명하게 공개

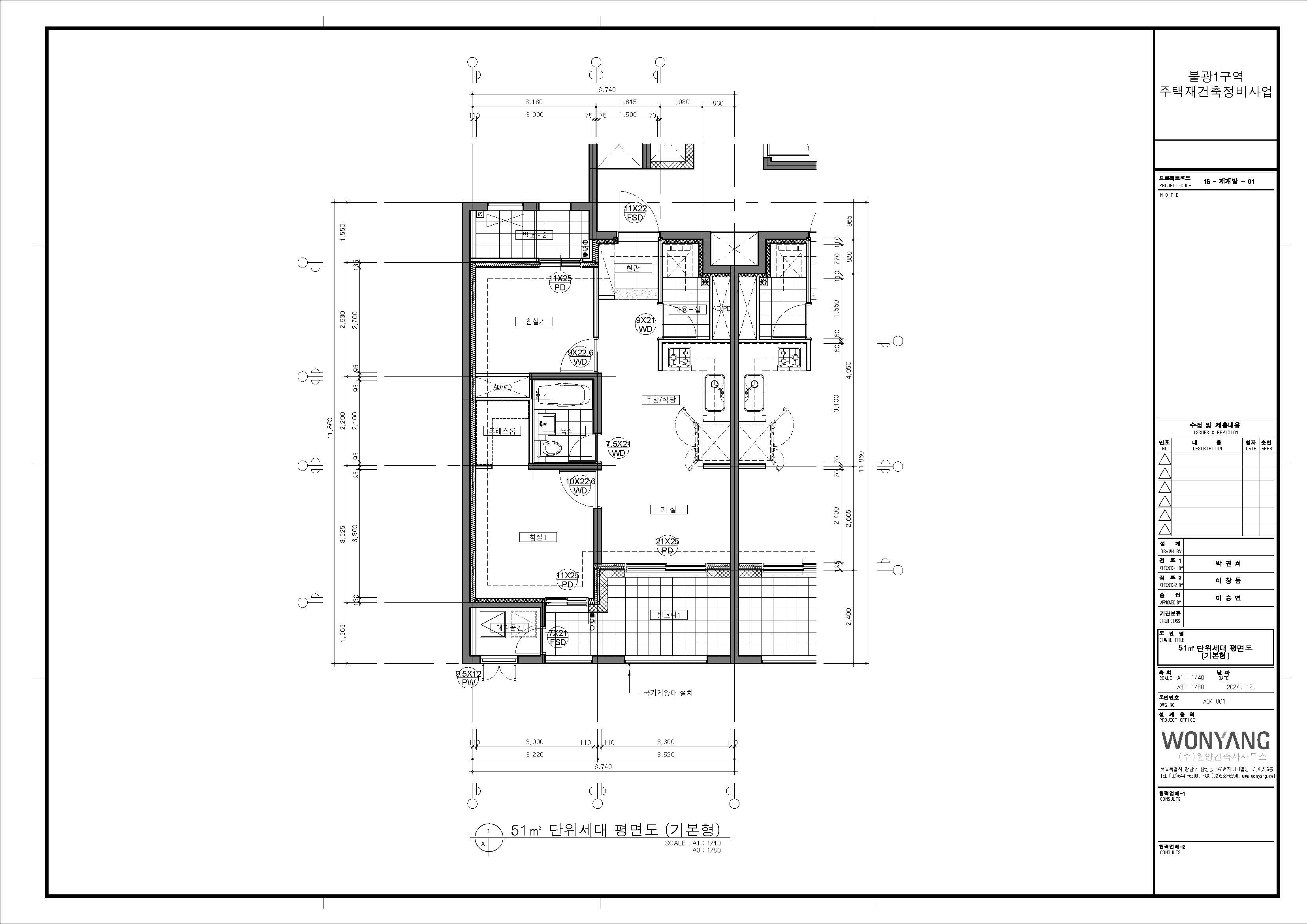
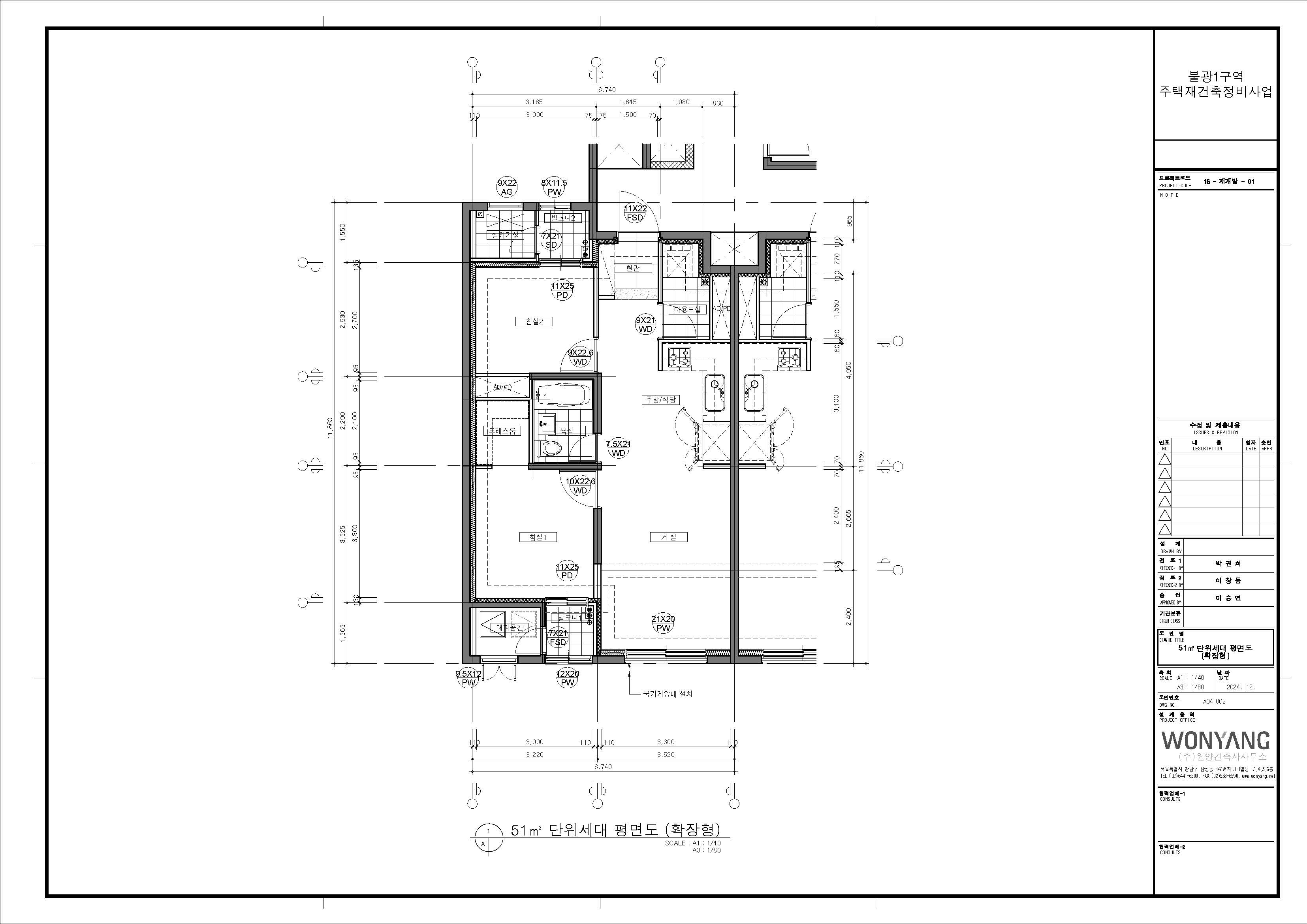
51A형 단위세대 평면도

51A형 단위세대 평면도
공급면적 (㎡) 69.1277
사업시행인가(변경)일자 2024-12-26
형별 51A
세대수 88
전용면적 (㎡) 51.9941
공용면적 (㎡) 20.9111

단위세대평면도 이미지

단위세대평면도 이미지

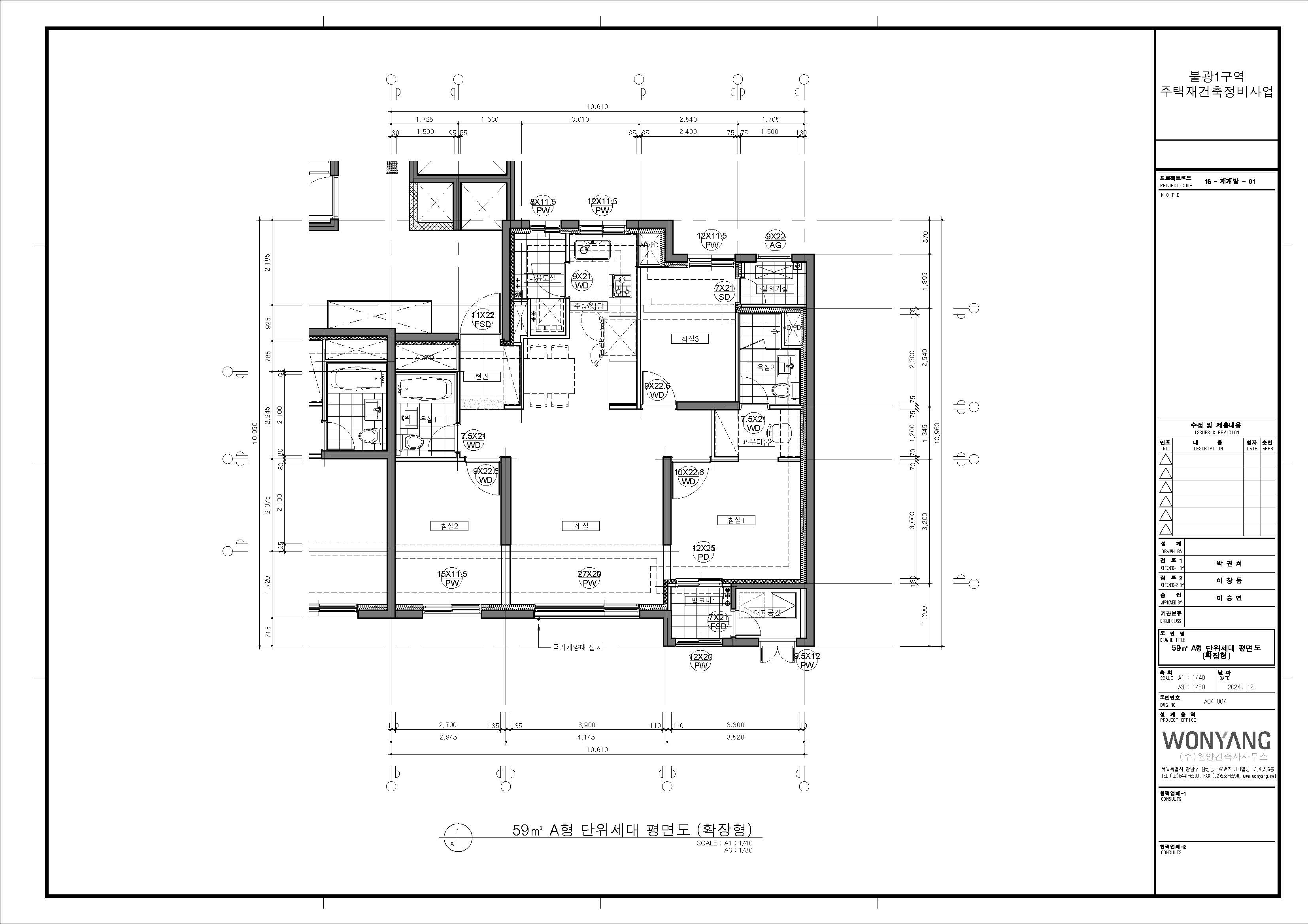
59A형 단위세대 평면도

59A형 단위세대 평면도
공급면적 (㎡) 80.0706
사업시행인가(변경)일자 2024-12-26
형별 59A
세대수 54
전용면적 (㎡) 59.9848
공용면적 (㎡) 20.0858

단위세대평면도 이미지

단위세대평면도 이미지

59B형 단위세대 평면도

59B형 단위세대 평면도
공급면적 (㎡) 80.0706
사업시행인가(변경)일자 2024-12-26
형별 59B
세대수 52
전용면적 (㎡) 59.9978
공용면적 (㎡) 20.2720

단위세대평면도 이미지

단위세대평면도 이미지

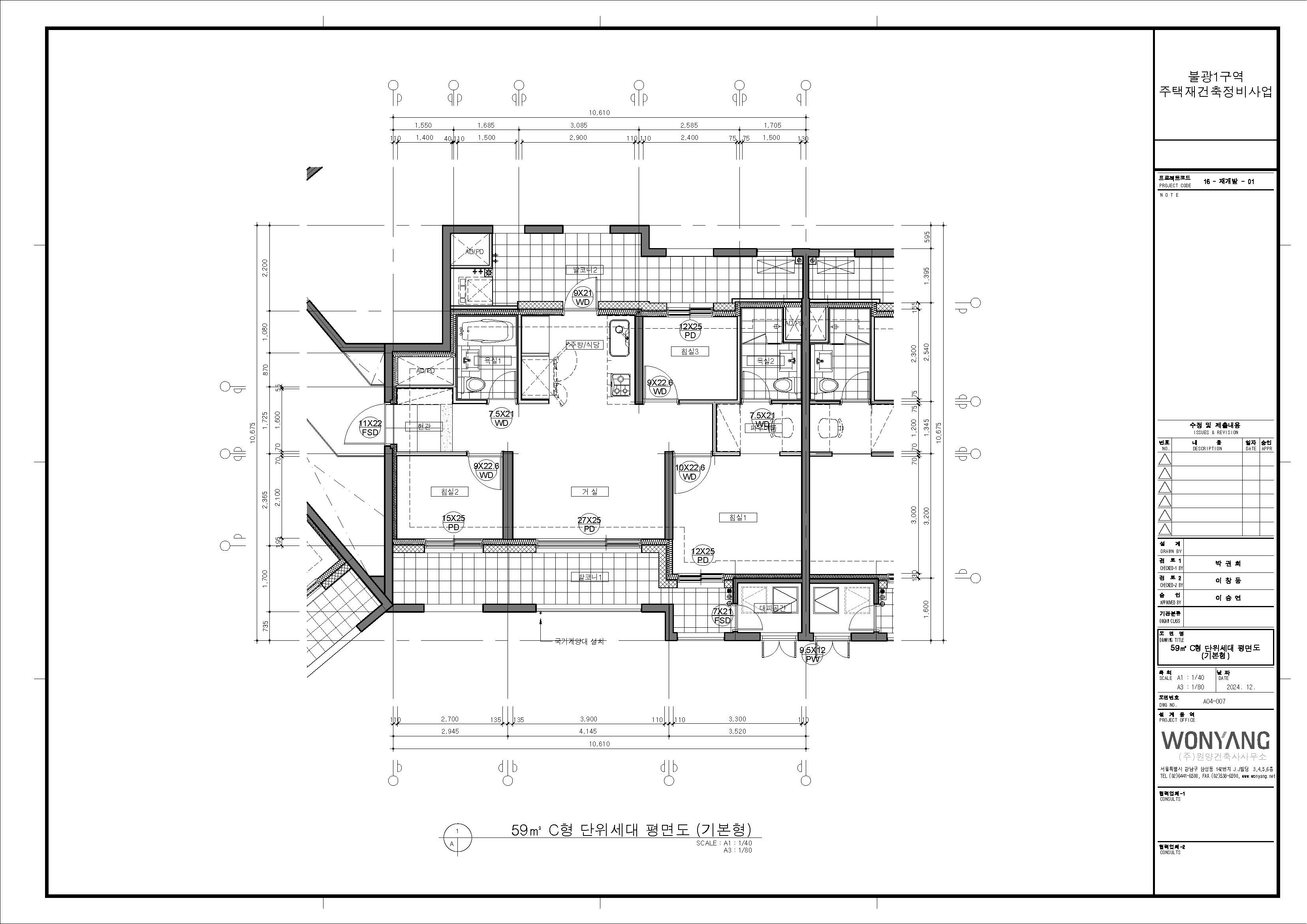
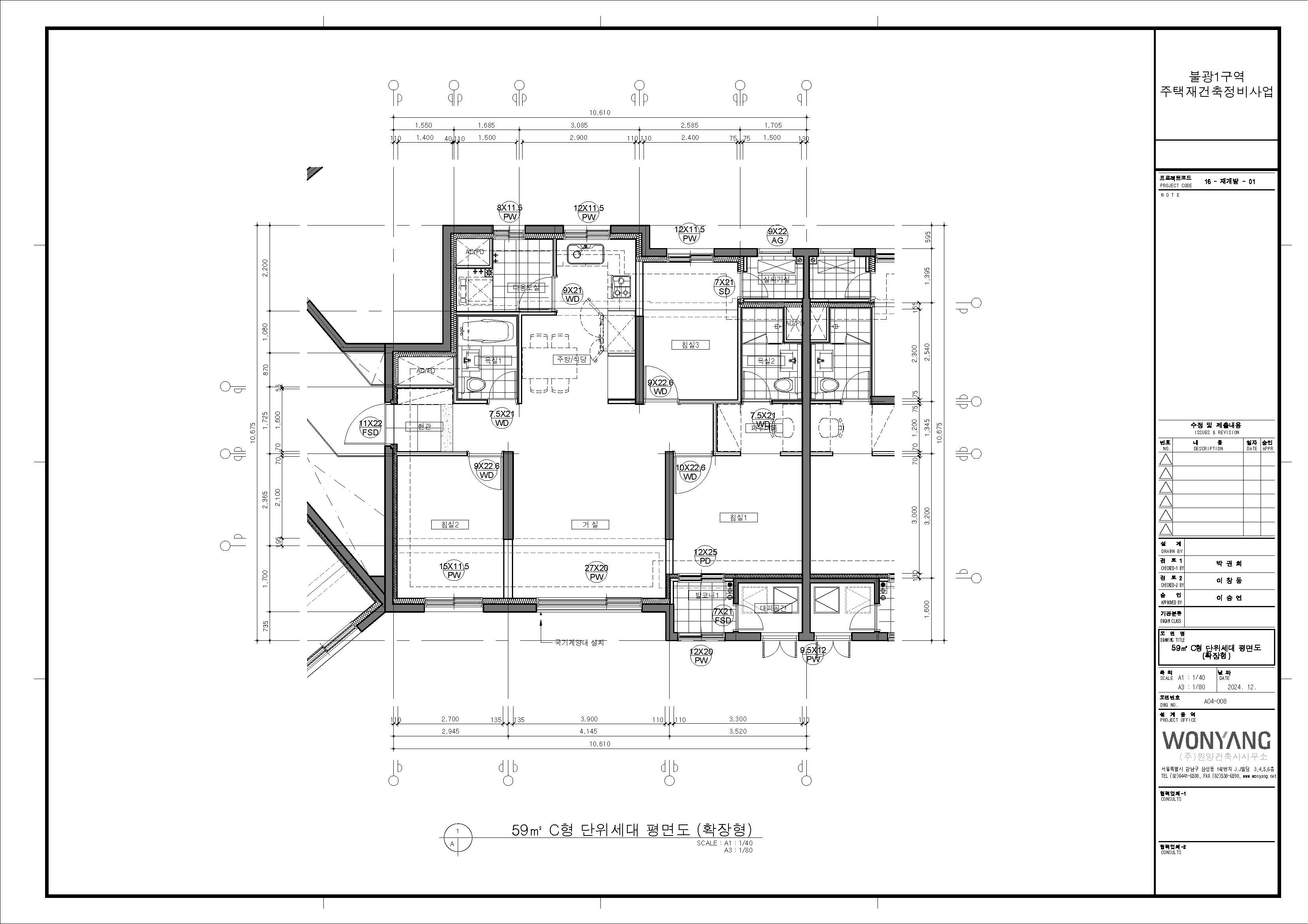
59C형 단위세대 평면도

59C형 단위세대 평면도
공급면적 (㎡) 80.1335
사업시행인가(변경)일자 2024-12-26
형별 59C
세대수 93
전용면적 (㎡) 59.9902
공용면적 (㎡) 20.1433

단위세대평면도 이미지

단위세대평면도 이미지

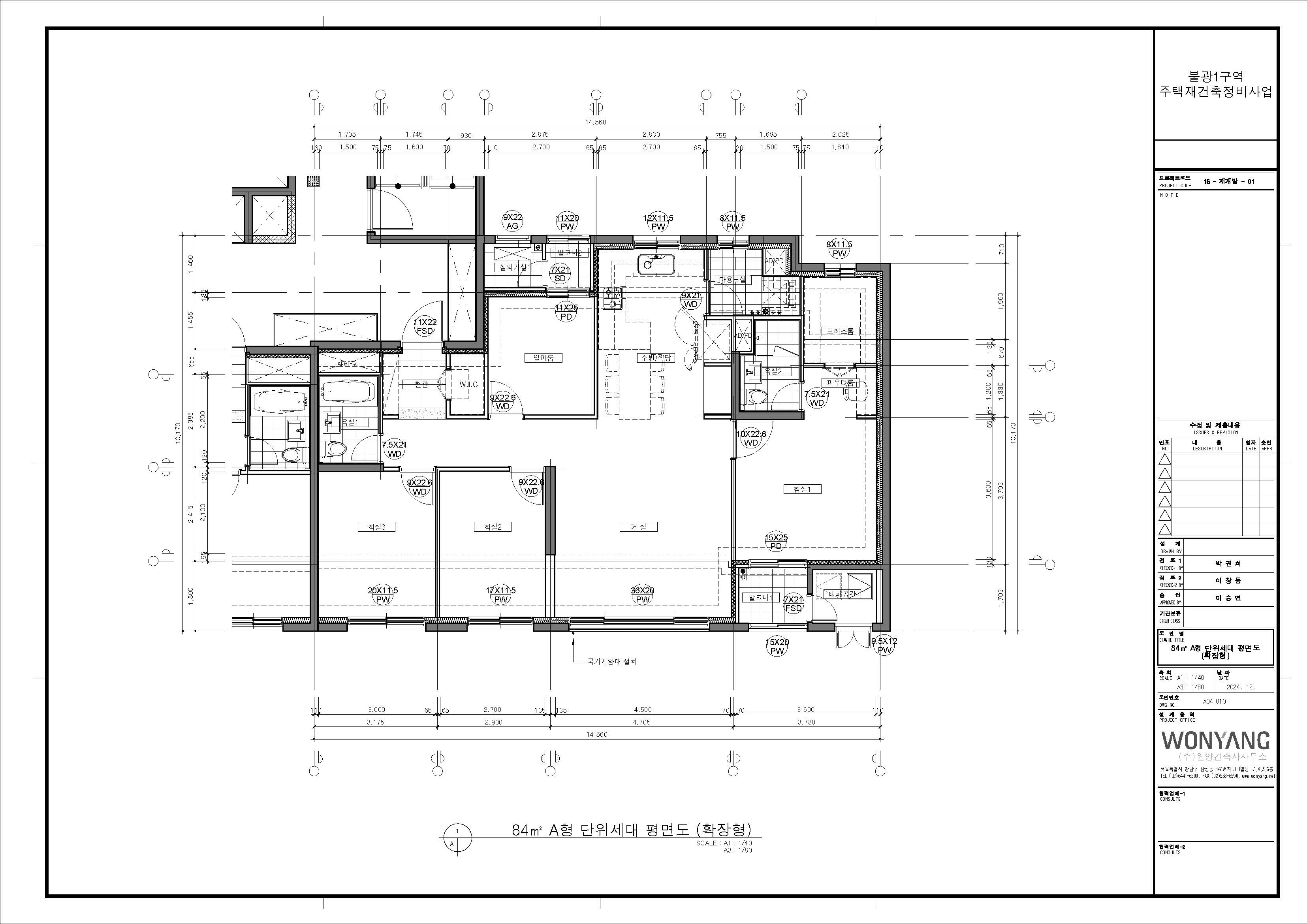
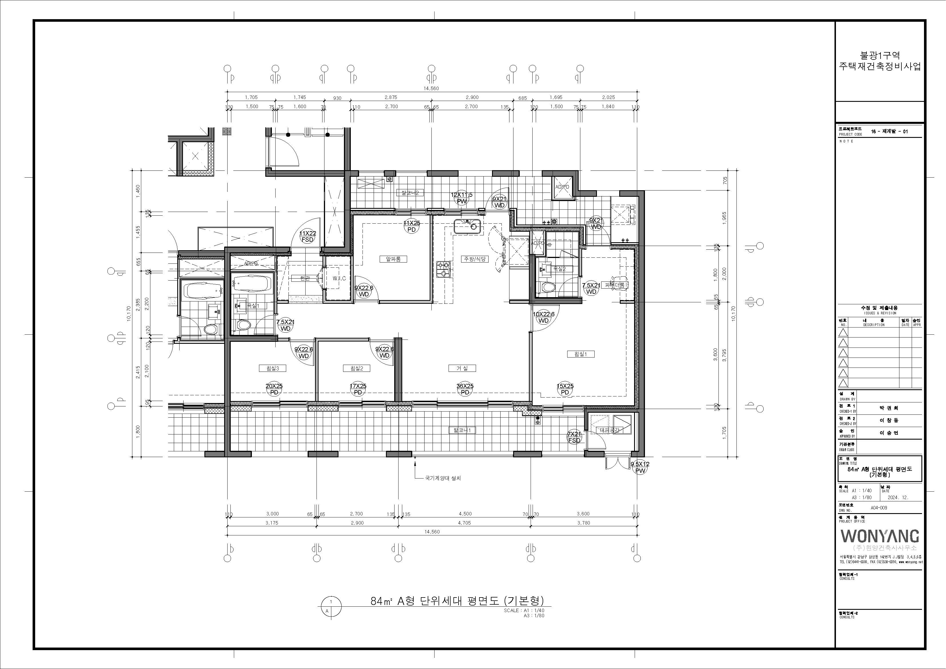
84A형 단위세대 평면도

84A형 단위세대 평면도
공급면적 (㎡) 112.4203
사업시행인가(변경)일자 2024-12-26
형별 84A
세대수 53
전용면적 (㎡) 84.9996
공용면적 (㎡) 27.4207

단위세대평면도 이미지

단위세대평면도 이미지

84B형 단위세대 평면도

84B형 단위세대 평면도
공급면적 (㎡) 113.0705
사업시행인가(변경)일자 2024-12-26
형별 84B
세대수 108
전용면적 (㎡) 84.9975
공용면적 (㎡) 28.0730

단위세대평면도 이미지

단위세대평면도 이미지

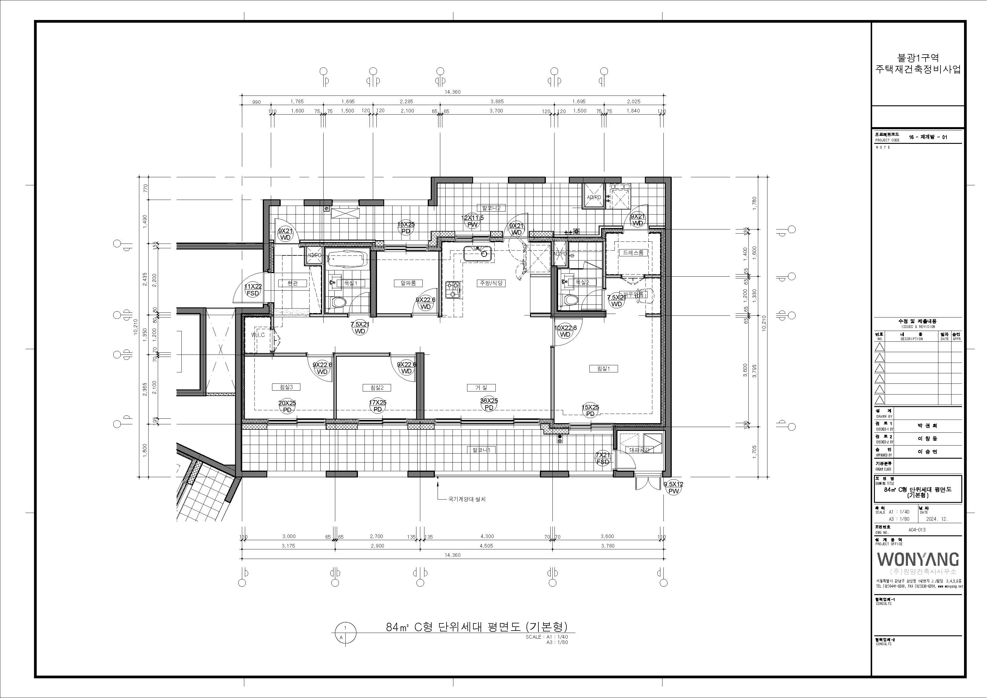
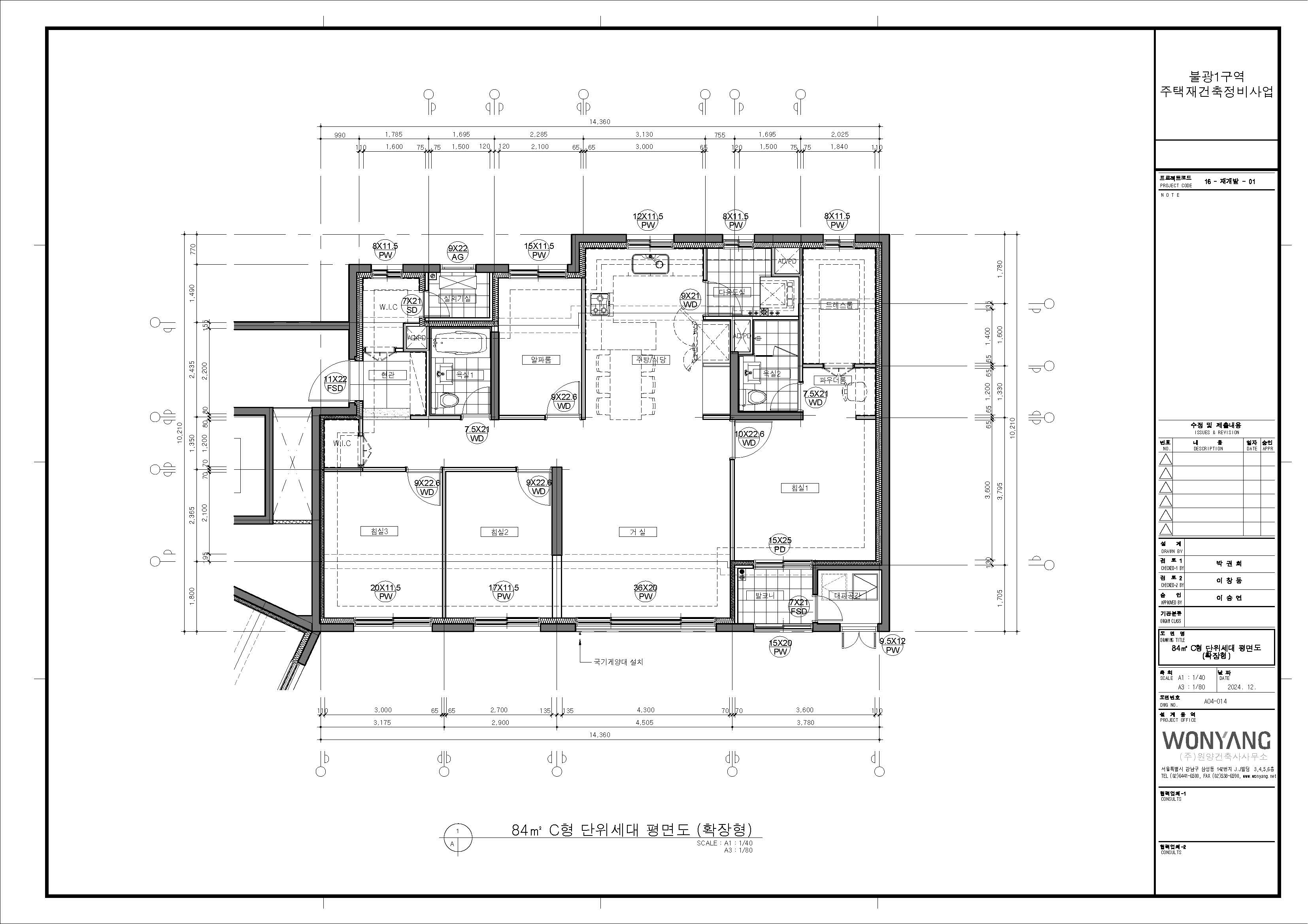
84C형 단위세대 평면도

84C형 단위세대 평면도
공급면적 (㎡) 112.8552
사업시행인가(변경)일자 2024-12-26
형별 84C
세대수 51
전용면적 (㎡) 84.9912
공용면적 (㎡) 27.8640

단위세대평면도 이미지

단위세대평면도 이미지

사업추진 단계별
공개자료 조회

툴팁 아이콘
원하시는 사업 추진단계에 등록된 자료들을 조회해 보실 수 있습니다.