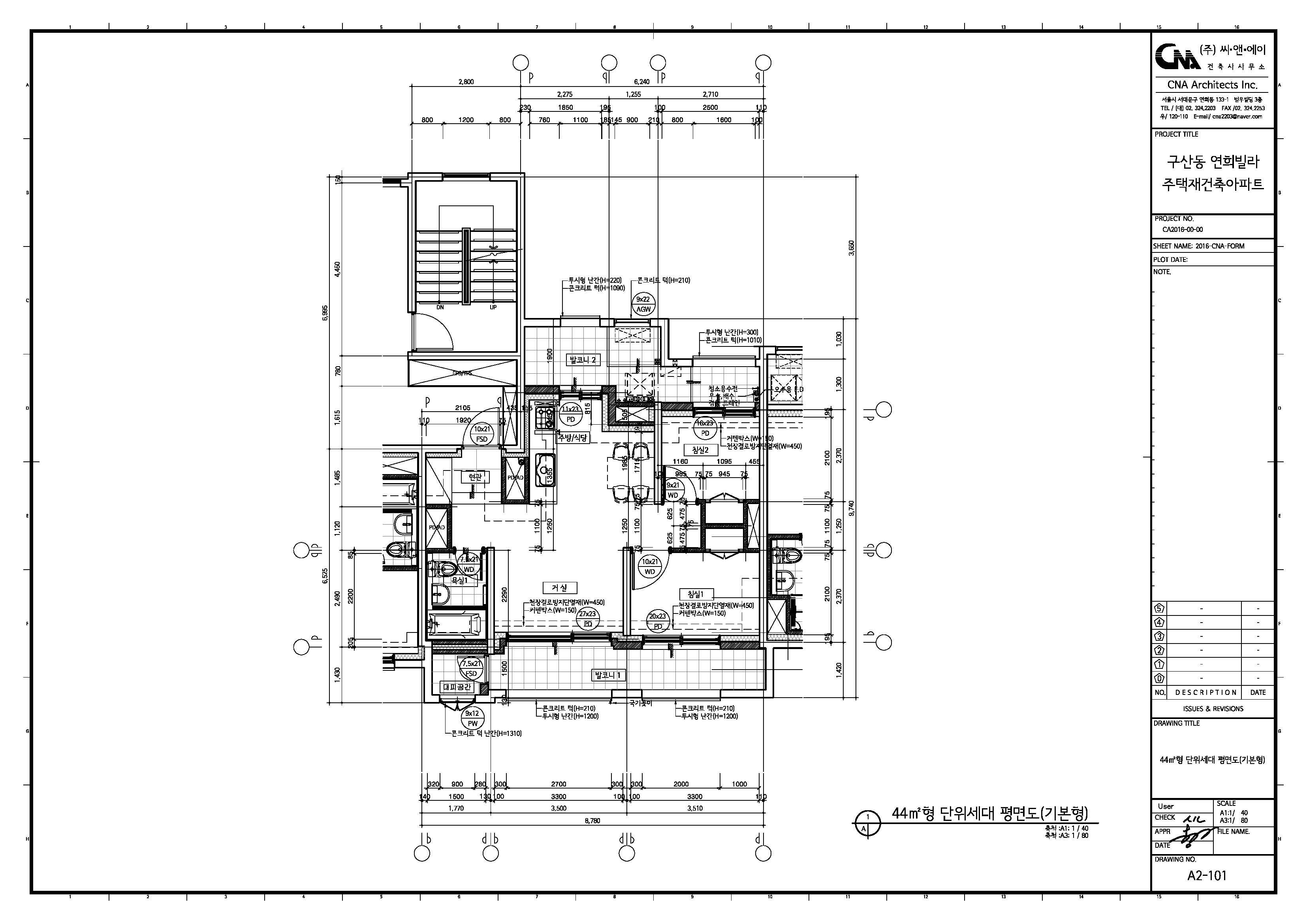
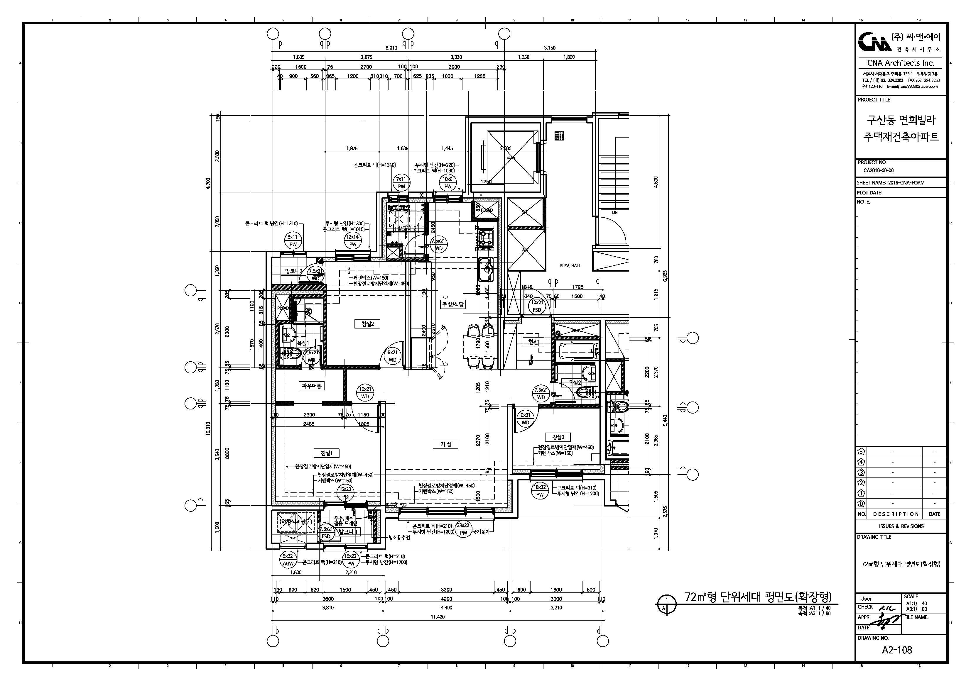
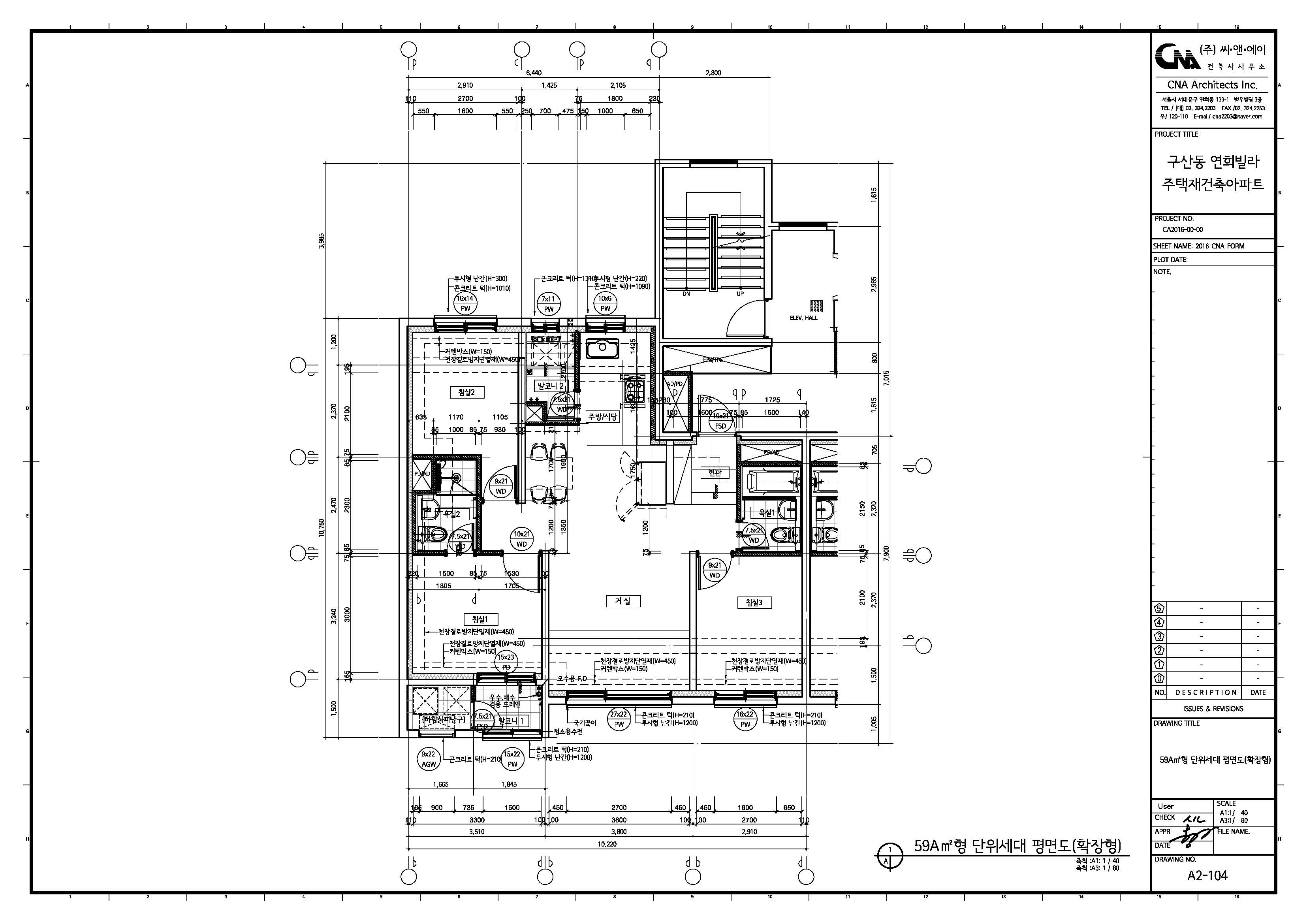
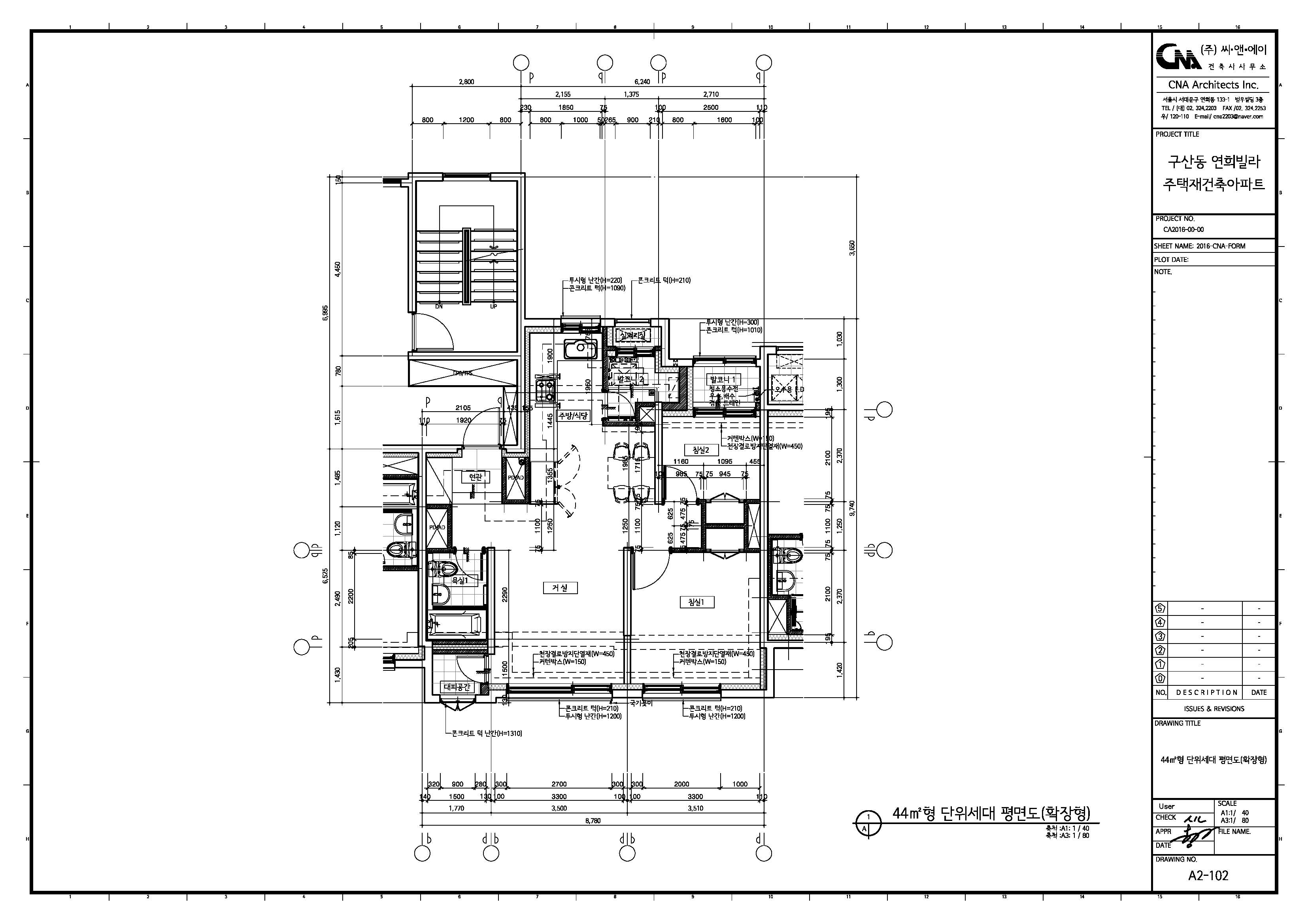
단위세대평면도
정비사업 추진과정을 유리알처럼 투명하게 공개

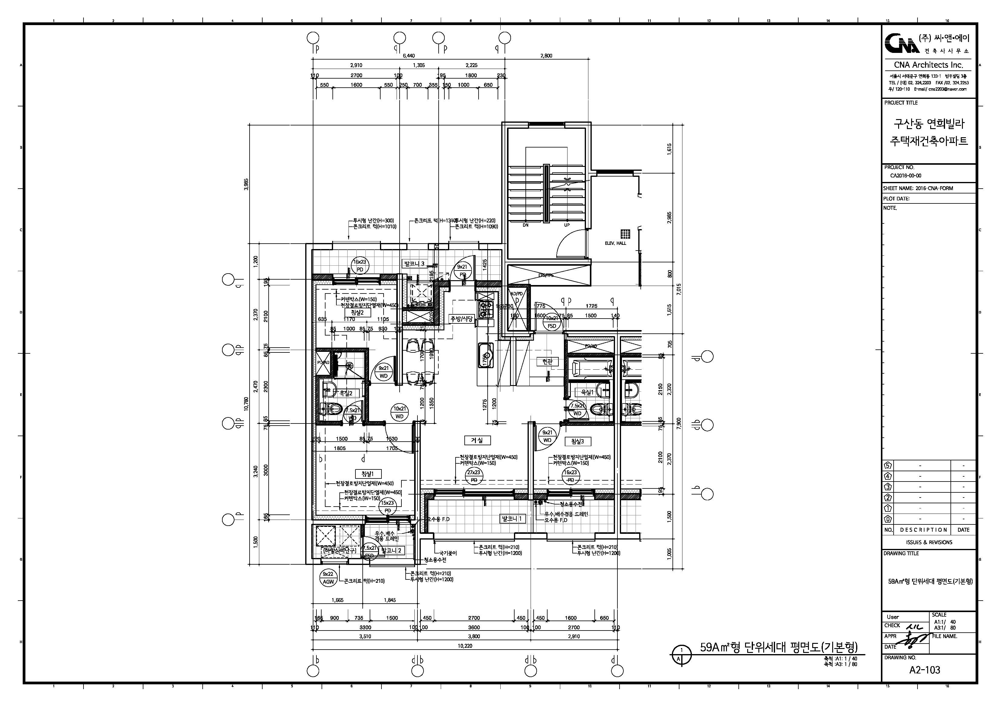
연희빌라 주택재건축정비사업 단위세대 평면도

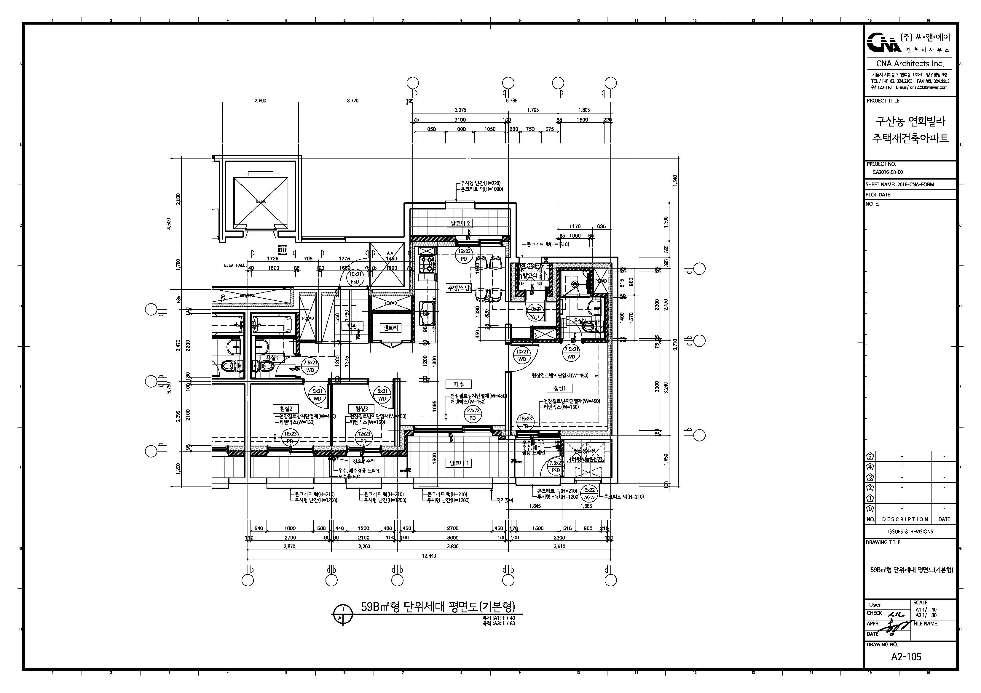
연희빌라 주택재건축정비사업 단위세대 평면도
공급면적 (㎡) 62.0320 / 81.4965 / 82.5647 / 98.5923
사업시행인가(변경)일자 2017-09-14
형별 44TYPE / 59A TYPE / 59BBTYPE / 72 TYPE
세대수 16 / 38 / 76 / 16
전용면적 (㎡) 44.2653 / 59.2112 / 59.6483 / 72.0441
공용면적 (㎡) 2.8004 / 3.7476 / 3.7753 / 4.5598

단위세대평면도 이미지

단위세대평면도 이미지

단위세대평면도 이미지

단위세대평면도 이미지

단위세대평면도 이미지

단위세대평면도 이미지

단위세대평면도 이미지

단위세대평면도 이미지

사업추진 단계별
공개자료 조회

툴팁 아이콘
원하시는 사업 추진단계에 등록된 자료들을 조회해 보실 수 있습니다.