단위세대평면도
정비사업 추진과정을 유리알처럼 투명하게 공개

59타입 평면도

59타입 평면도
공급면적 (㎡) 59
사업시행인가(변경)일자 2025-09-11
형별 59
세대수 95
전용면적 (㎡) 59.9724
공용면적 (㎡) 18.0832

단위세대평면도 이미지

단위세대평면도 이미지

단위세대평면도 이미지

단위세대평면도 이미지

단위세대평면도 이미지

단위세대평면도 이미지

76타입 평면도

76타입 평면도
공급면적 (㎡) 76
사업시행인가(변경)일자 2025-09-11
형별 76
세대수 34
전용면적 (㎡) 76.81
공용면적 (㎡) 21.64

단위세대평면도 이미지

단위세대평면도 이미지

단위세대평면도 이미지

단위세대평면도 이미지

단위세대평면도 이미지

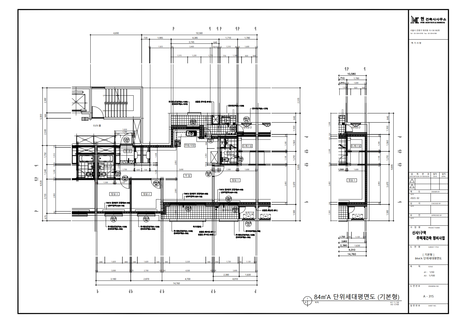
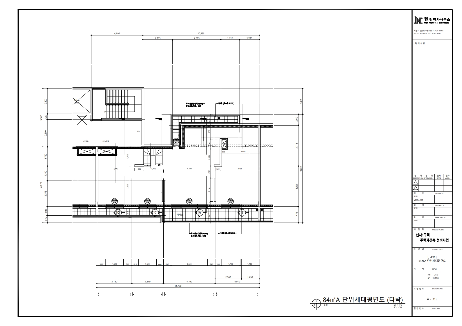
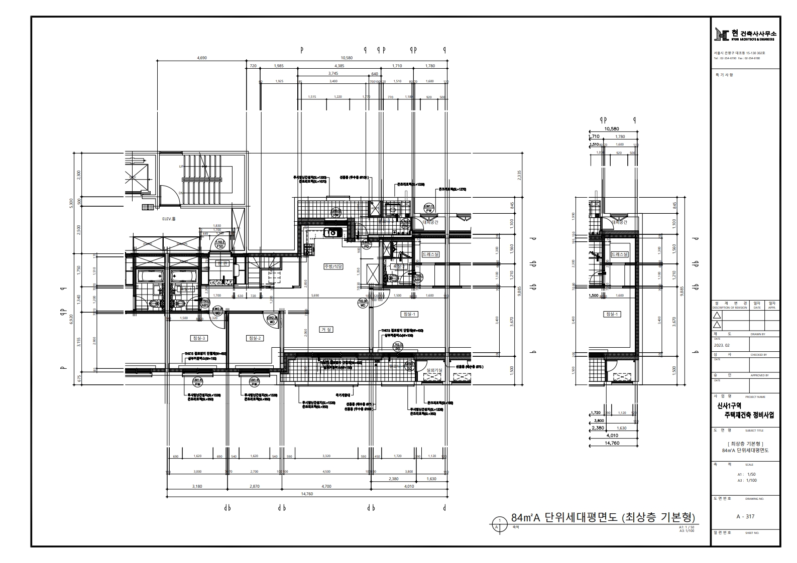
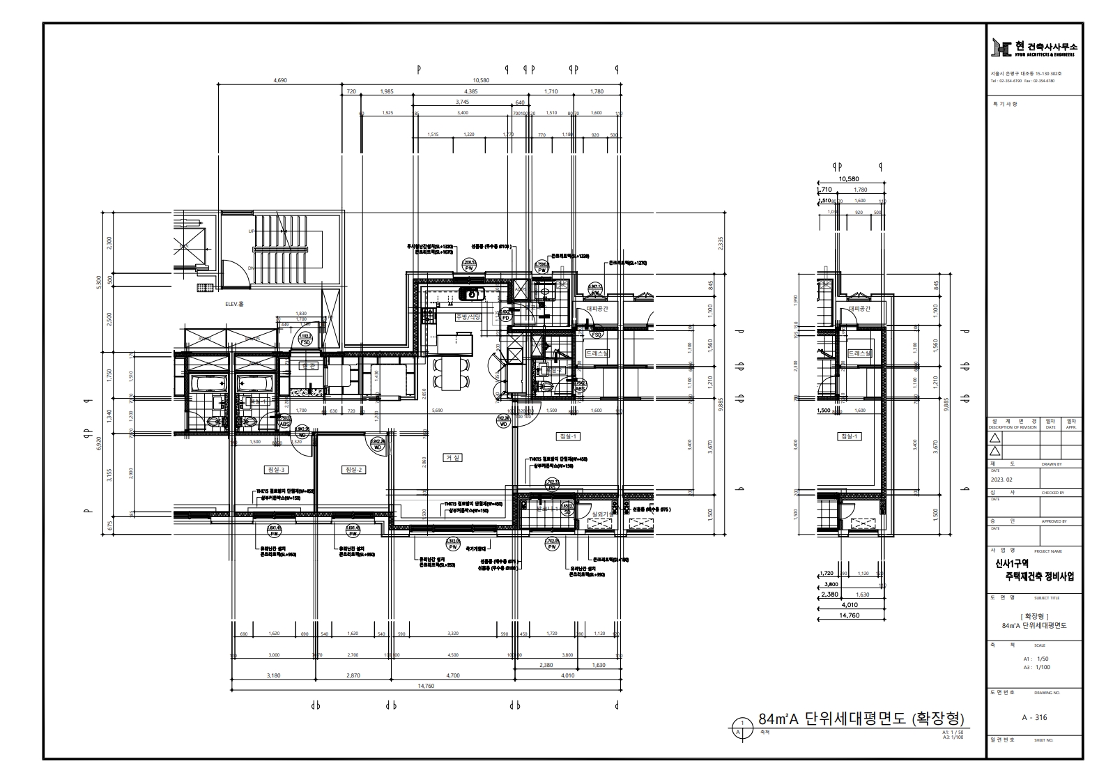
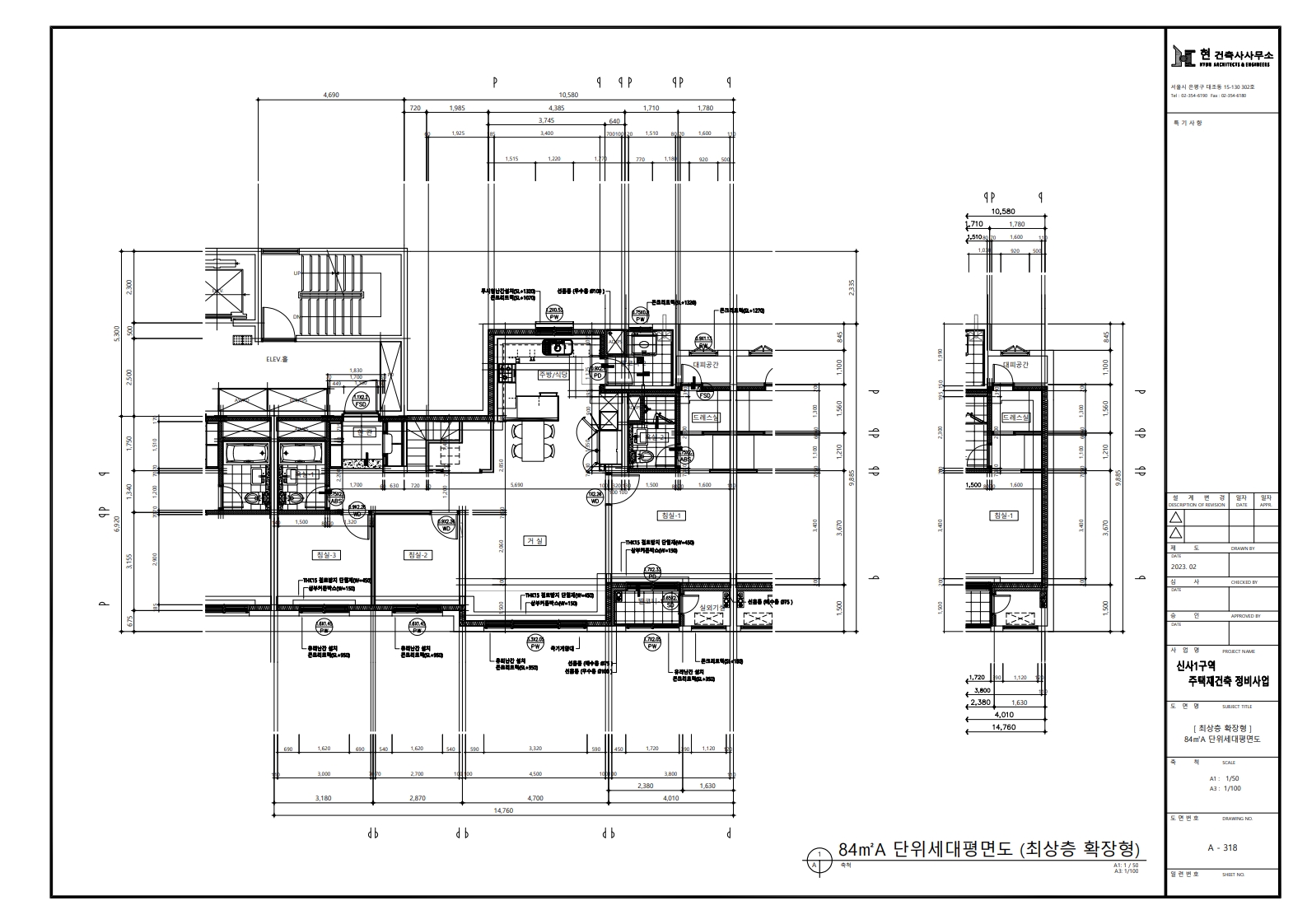
84A타입 평면도

84A타입 평면도
공급면적 (㎡) 84
사업시행인가(변경)일자 2025-09-11
형별 84A
세대수 152
전용면적 (㎡) 84.98
공용면적 (㎡) 23.37

단위세대평면도 이미지

단위세대평면도 이미지

단위세대평면도 이미지

단위세대평면도 이미지

단위세대평면도 이미지

84B타입 평면도

84B타입 평면도
공급면적 (㎡) 84
사업시행인가(변경)일자 2025-09-11
형별 84B
세대수 76
전용면적 (㎡) 84.96
공용면적 (㎡) 22.98

단위세대평면도 이미지

단위세대평면도 이미지

단위세대평면도 이미지

단위세대평면도 이미지

단위세대평면도 이미지

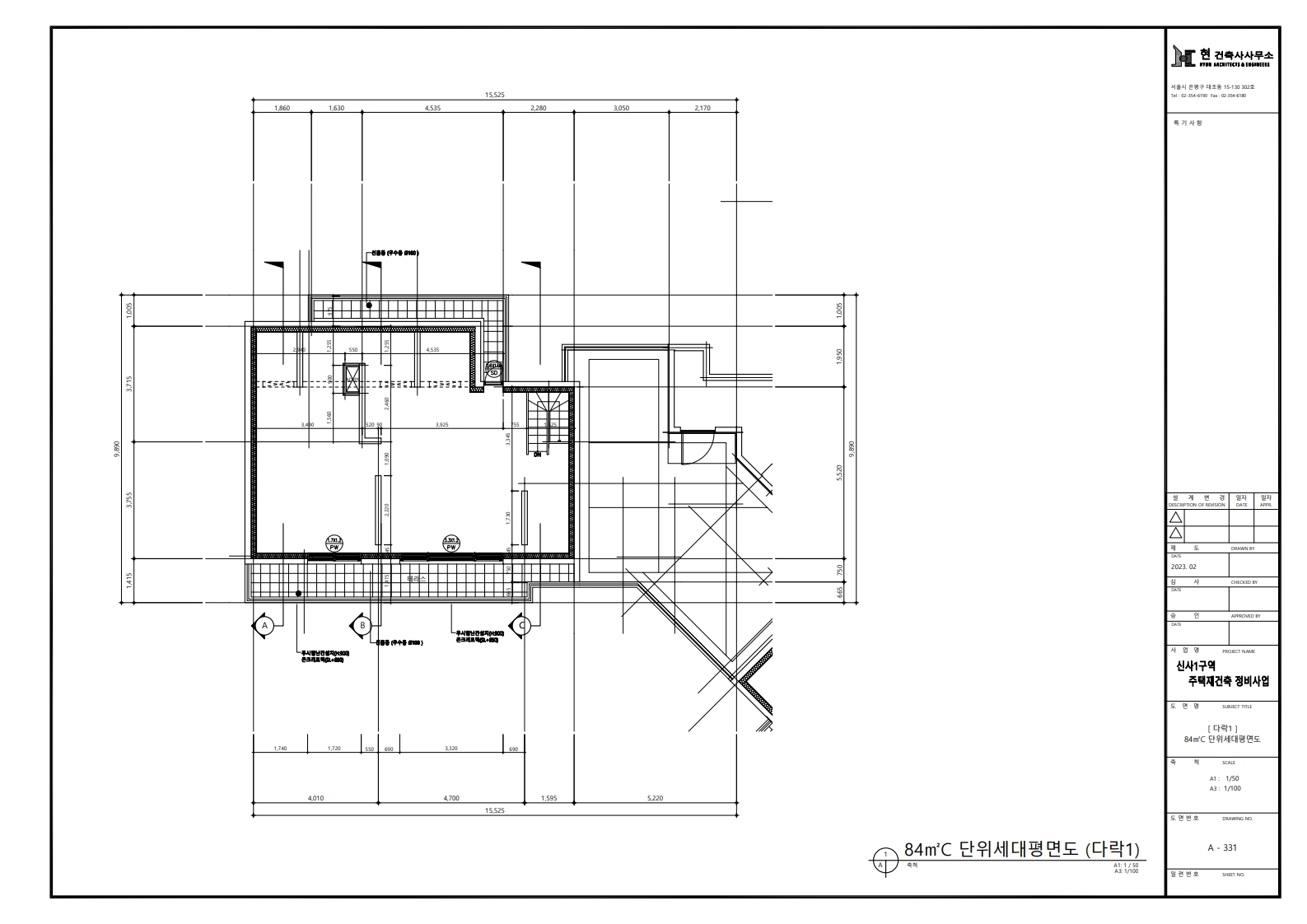
84C타입 평면도

84C타입 평면도
공급면적 (㎡) 84
사업시행인가(변경)일자 2025-09-11
형별 84C
세대수 67
전용면적 (㎡) 84.99
공용면적 (㎡) 23.69

단위세대평면도 이미지

단위세대평면도 이미지

단위세대평면도 이미지

단위세대평면도 이미지

단위세대평면도 이미지

사업추진 단계별
공개자료 조회

툴팁 아이콘
원하시는 사업 추진단계에 등록된 자료들을 조회해 보실 수 있습니다.